Pioneer FH-P80BT: Connexions des appareils
Connexions des appareils: Pioneer FH-P80BT

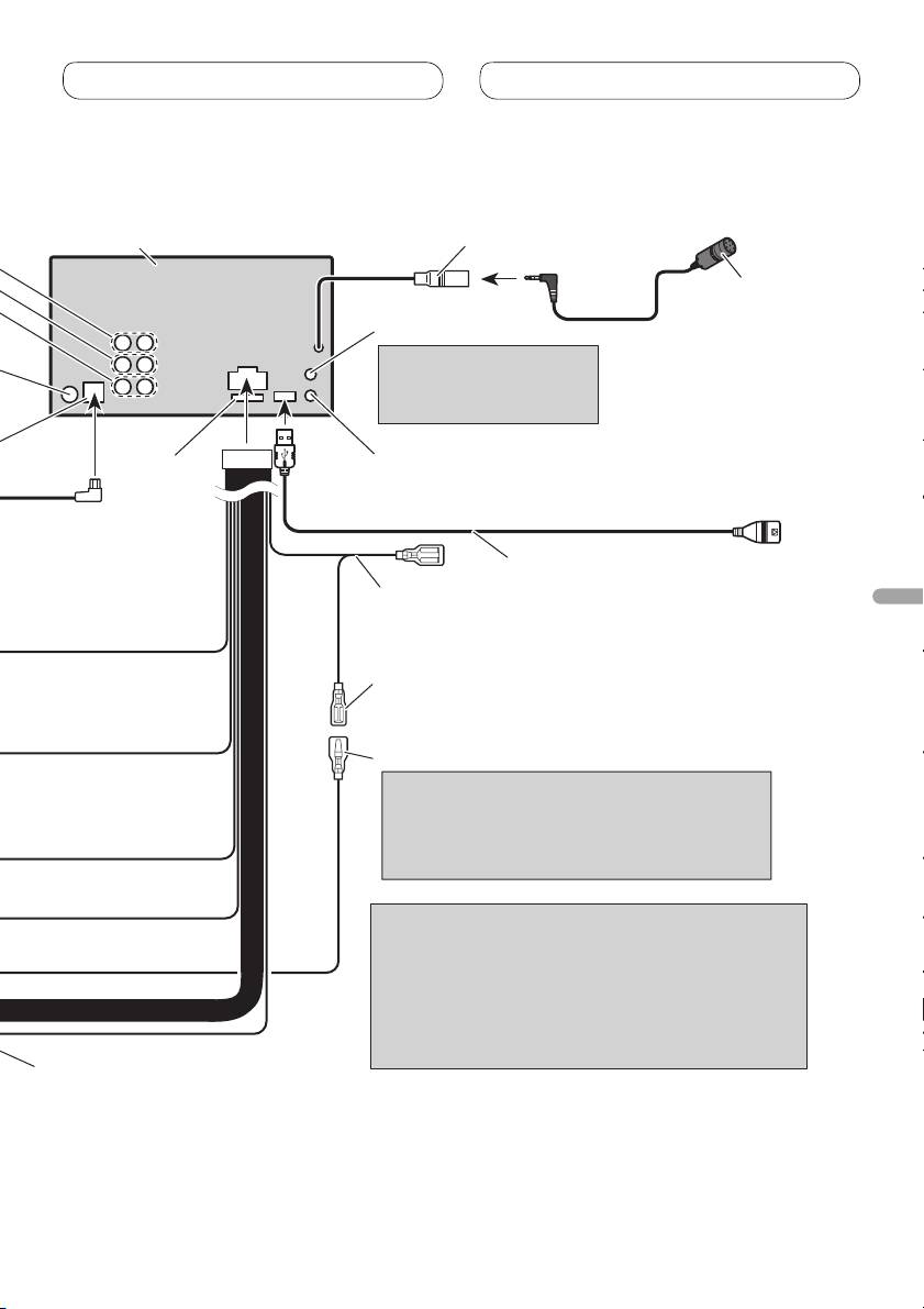
Connexions des appareils
Cet appareil
Entrée microphone
14 cm
Microphone
4 m
Prise AUX (3.5 ø)
Utilisez un câble à fiches
stéréo mini pour raccorder
un appareil auxiliaire.
Entrée de télécommande câblée
Fusible (10 A)
Un adaptateur de télécommande câblée
peut être connecté (vendu séparément).
1,5 m
Câble USB
Connectez-le à un périphérique USB
Bleu/blanc
vendu séparément.
Français
Connectez à la prise de commande du système de
l’amplificateur de puissance (max. 300 mA 12 V CC).
Bleu/blanc (7*)
Connectez à la prise du contrôle de relais de
l’antenne automatique (max. 300 mA, 12 V CC).
Bleu/blanc (6*)
La position des broches du connecteur ISO diffère
en fonction du type de véhicule. Connectez 6* et
7* quand la broche 5 correspond à la commande
de l’antenne. Dans les autres cas, ne connectez
jamais 6* et 7*.
Remarques
• Change le réglage initial de cet appareil
(reportez-vous aux mode d’emploi). La sortie de
caisson de grave de cet appareil est monophonique.
• Lors de l’utilisation d’un caisson de grave de 70 W
(2 Ω), assurez-vous de le raccorder aux câbles Violet
et Violet/noir de cet appareil. Ne connectez rien aux
câbles Vert et Vert/noir.
Câbles d’enceinte
Blanc: Avant gauche
Blanc/noir: Avant gauche
Gris: Avant droit
Gris/noir: Avant droit
Vert: Arrière gauche ou caisson de grave
Vert/noir: Arrière gauche ou caisson de grave
Violet: Arrière droit ou caisson de grave
Violet/noir: Arrière droit ou caisson de grave
5

Connexions des appareils
Raccordement à un amplificateur de puissance séparé
Entrée microphone
(Reportez-vous aux pages 4 et 5.)
14 cm
Cet appareil
Sortie avant
Sortie arrière
Sortie du caisson de grave
Prise AUX (3.5 ø)
(Reportez-vous aux pages
4 et 5.)
Entrée de télécommande câblée
Prise d’antenne
Un adaptateur de
télécommande câblée peut être
Entrée IP-BUS (Bleu)
Fusible (10 A)
connecté (vendu séparément).
Lecteur de CD
Reportez-vous aux pages 4 et 5.
à chargeur
Câble IP-BUS
(vendu séparément)
La position des broches du
connecteur ISO diffère en fonction
du type de véhicule. Connectez 6*
et 7* quand la broche 5
correspond à la commande de
l’antenne. Dans les autres cas, ne
connectez jamais 6* et 7*.
Reportez-vous aux pages 4 et 5.
Bleu/blanc (7*)
Bleu/blanc (6*)
Connectez à la prise du
contrôle de relais de
l’antenne automatique
(max. 300 mA, 12 V CC).
6
Table of contents
- Contents Connecting the units
- Connecting the units
- Connecting the units
- Connecting the units
- Installation
- Installation
- Installation
- Installation
- Contenido Conexión de las unidades
- Conexión de las unidades
- Conexión de las unidades
- Conexión de las unidades
- Instalación
- Instalación
- Instalación
- Instalación
- Inhalt Anschließen der Geräte
- Anschließen der Geräte
- Anschließen der Geräte
- Anschließen der Geräte
- Einbauverfahren
- Einbauverfahren
- Einbauverfahren
- Einbauverfahren
- Table des matières Connexions des appareils
- Connexions des appareils
- Connexions des appareils
- Connexions des appareils
- Installation
- Installation
- Installation
- Installation
- Indice Collegamento delle unità
- Collegamento delle unità
- Collegamento delle unità
- Collegamento delle unità
- Installazione
- Installazione
- Installazione
- Installazione
- Inhoud Aansluiten van de toestellen
- Aansluiten van de toestellen
- Aansluiten van de toestellen
- Aansluiten van de toestellen
- Installeren
- Installeren
- Installeren
- Installeren
- Содержание Подключение устройств
- Подключение устройств
- Подключение устройств
- Подключение устройств
- Установка
- Установка
- Установка
- Установка






