Pioneer KRP-TS02: 注 意
注 意: Pioneer KRP-TS02
62
ChH
將本產品安裝到機架等裝置上
˙ 安裝至機櫃時,請務必由兩位以上人員抓穩先鋒顯示器及電視。
˙ 請勿利用揚聲器或機架為施力點搬動先鋒顯示器及電視,以免造成損壞。
注 意
請勿利用揚聲器為施力點搬動先鋒顯示器及電視。
安裝側揚聲器時
安裝底部揚聲器時
安裝側揚聲器時
安裝底部揚聲器時
請由頂部並利用把手搬動先鋒顯
示器及電視。
請勿利用機架為施力點搬動先鋒顯示
器及電視。
請由側邊並利用把手搬動先鋒顯示
器及電視。
63
ChH
中文
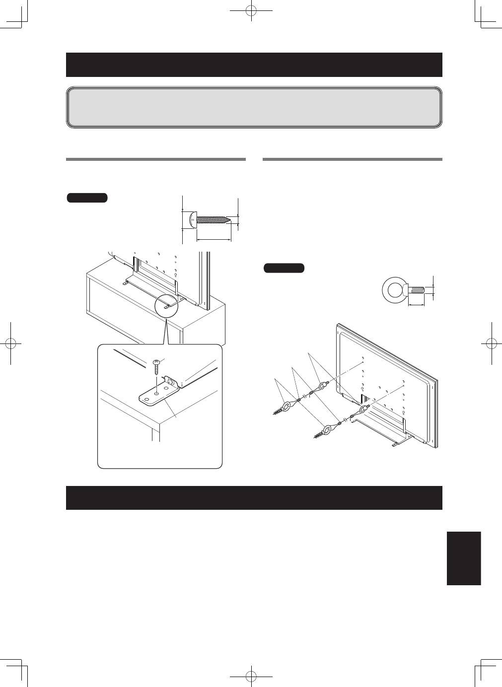
預防設備摔落
穩固於桌上
如圖所示,使用市面可購得的螺絲,將先鋒顯示器及電視固定。
附注
要將設備穩固於桌上,請使用額定直
徑為
4 mm
及至少
20 mm
長的螺絲。
在機架上板上鑽出一個前導孔後,使用商店
購得的螺絲將此板鎖緊。
螺絲
(市面上可購得者)
防摔落金屬配件
�����
至
������
最少
�����
����
利用牆壁固定
1
將防摔落螺絲(掛鉤)安裝到電漿電視上。
2
利用強力鋼索適當地穩固並牢牢固定到牆上、
柱上或其他堅固的元件上。
請使用相同方式固定好左右兩側。
附注
請使用一般市面上的掛鉤、鋼索及固定配件。
建議掛鉤:額定直徑
M8
長度
12 mm
至
15 mm
�
鋼索
�
掛鉤
固定配件
��
������
至
������
規格
外部尺寸:
KRP-TS02 ............. 552 mm
( 寬 )
× 323 mm
( 高 )
× 350 mm
( 深 )
PDK-TS33 ............ 550 mm
( 寬 )
× 402 mm
( 高 )
× 349 mm
( 深 )
PDK-TS33A .......... 552 mm
( 寬 )
× 402 mm
( 高 )
× 350 mm
( 深 )
重量:
KRP-TS02 ............. 2.5 kg
PDK-TS33 ............ 2.2 kg
PDK-TS33A .......... 2.7 kg
‧ 以上的外部規格如有修改,以改善產品品質,恕不另行通知。
‧ 在安裝支架後,請特別小心確定設備不會摔落。
‧ 將電漿電視安裝至機櫃和牆面上。
64
ChH
日本先鋒公司出版。
版權
©2008
日本先鋒公司。
版權所有。
安裝側揚聲器時
KRP-TS02
單位:
mm
未配備揚聲器
KRP-TS02
單位:
mm
213.5
80
1233
723
65
350
552
64*
1
93*
2
135*
1
117*
2
64*
1
93*
2
1399*
1
/1445*
2
723
65
350
552
80
213.5
135*
1
117*
2
尺寸圖
安裝底部揚聲器時
PDK-TS33
*1
PDK-TS33A
*2
單位:
mm
117
1233
803
64
550*
1
/ 552*
2
349* / 350*
2
292.5
80
93
*
1
KRP-500P / KRP-500M
*
2
PDP-LX5090 / PDP-LX5090H / PDP-LX509A
*
1
KRP-500P / KRP-500M
*
2
PDP-LX5090 / PDP-LX5090H / PDP-LX509A
65
Ru
Pyccкий
Спасибо за покупку продукта Pioneer.
Пожалуйста, прочтите данные инструкции по эксплуатации,
чтобы знать, как безопасно и правильно обращаться с этой
моделью. Сохраните данные инструкции по эксплуатации в
надежном месте для использования в будущем.
Установка
• Проконсультируйтесь с Вашим дилером, если Вы
столкнетесь с трудностями при этой установке.
• Pioneer не несет ответственности за любые
повреждения, возникшие по причине ненадлежащей
установки, ненадлежащего использования,
модификации или стихийных бедствий.
ОЧЕНЬ ВАЖНО
Запишите приведенные ниже номер модели и серийный
номер данного оборудования.
Номер модели Серийный номер
Сохраните эти номера для последующего использования.
Содержание
Внимание .............................................................. 65
Проверка наличия стандартных
аксессуаров .......................................................... 66
Сборка столика-подставки ............................... 67
Подсоединение подкладки ............................... 68
Подсоединение дисплея и телевизора
Pioneer ................................................................... 69
Установка продукта на стойке и т.д. ............... 70
Предотвращение падения оборудования ..... 71
Спецификации ..................................................... 71
Размеры ................................................................ 72
Это обозначение относится к опасности или
опасному режиму работы, которые могут привести
к физическим повреждениям или повреждениям
имущества.
ВНИМАНИЕ
Внимание
Этот столик-подставка, предназначен исключительно для
дисплеев и телевизоров Pioneer (PDP-LX5090 / PDP-LX5090H
/ PDP-LX509A / PDP-C509A / KRP-500P / KRP-500M).
Использование с другими моделями может повлечь за
собой неустойчивость и привести к возможным физическим
повреждениям. Для получения дополнительной информации
обратитесь в магазин, где Вы купили телевизор.
Не устанавливайте и не модифицируйте данный продукт,
если это не указано.
Не используйте этот столик-подставку для дисплея и
телевизора Pioneer не по назначению, не модифицируйте и
не используйте его для других целей.
Место установки
• Выберите место, достаточно прочное, чтобы выдерживать
вес столика-подставки и телевизора.
• Удостоверьтесь, что размещаете столик-подставку на
ровной и устойчивой поверхности.
• Не устанавливайте его вне помещения или в мокром
месте, например, на горячем источнике или вблизи
берега.
• Не устанавливайте столик-подставку в месте, где он
может быть подвержен вибрации или удару.
Сборка и установка
• Соберите столик-подставку в соответствии с
инструкциями по сборке и надежно затяните все
винты в указанных местах.
Бывали случаи, когда после установки дисплея
возникали непредвиденные происшествия,
такие как поломка или падение оборудования,
так как столик-подставка был установлен не по
инструкции.
• Дисплей всегда должен устанавливаться
двумя или более лицами, чтобы гарантировать
надежность его установки.
• Перед установкой отключите питание дисплея
и внешних устройств, затем выньте кабель
питания из розетки.
Не допускайте повреждений, вызываемых падением
продукта, приняв надежные меры против падения (см.
страницу 71).
Таблица совместимости дисплея, телевизора
и столика-подставки Pioneer
Дисплеи и телевизоры
Pioneer
Столик-подставка
50-дюймовая
модель с нижними
громкоговорителями
PDK-TS33A/PDK-TS33
50-дюймовая
модель с боковыми
громкоговорителями
KRP-TS02
66
Ru
Проверка наличия стандартных аксессуаров
Перед сборкой и установкой проверьте наличие всех стандартных аксессуаров.
•
Основание ×1
��
Опорная стойка
(левая) ×1
���
Инструкция по эксплуатации
(этот документ) ×1
��
Подкладка ×
�
��
Установочный винт
�
(M4 x 35 мм: черный) ×2
[для металлического фитинга
предотвращения падения]
• Металлический фитинг для
предотвращения падения ×2
��
Светозащитная накладка*
�
×
�
• Винт
�
�
(4 мм x 10 мм: серебристый) ×4
��
Опорная стойка
(правая) ×1
��
Установочный винт
�
�
�
(M8 x 23 мм: черный) ×2
��
Установочный винт
�
�
��
(M8 x 40 мм: черный) ×2
��
Установочный винт
�
�
�
(M8 x 15 мм: черный) ×2
*: Используйте с PDP-LX5090 / PDP-LX5090H / PDP-C509A (с установленными нижними громкоговорителями).
67
Ru
Pyccкий
Сборка столика-подставки
Порядок сборки
1
Переверните основание так, чтобы его
нижняя часть была обращена вверх.
2
Вставьте в основание опорные стойки.
• Вставьте опорную стойку (правую) на стороне с
маркировкой “R”, и опорную стойку (левую) на
стороне с маркировкой “L”.
• Удостоверьтесь, что открытые стороны опорных
стоек обращены вовнутрь. Вставьте опорные стойки,
убедившись в их совмещении с выступом основания.
3
Затяните винты
➀
(4 мм × 10 мм:
серебристые) для фиксации опорных стоек.
Ткань
Винты
�
�
�
(4 мм × 10 мм: серебристые)
Винты
�
�
�
(4 мм × 10 мм:
серебристые)
Опорная стойка
(левая)
Опорная
стойка
(правая)
Удостоверьтесь, что открытые стороны
опорных стоек обращены вовнутрь.
Вставьте опорные стойки, убедившись в
их совмещении с выступом основания.
Основание
Задняя
сторона
Столик-подставка
в комплекте
Передняя
сторона
Внимание
•
Собирайте столик-подставку с помощью мягкой
простыни, подложенной под основание. Если перед
сборкой не расстелить простынь, то можно поцарапать
лицевую поверхность основания.
•
Будьте осторожны при установке опорных стоек (левой)
и (правой), чтобы гарантировать, что они находятся в
правильных положениях. Ошибочная установка опорных
стоек может вызвать повреждение столика-подставки.
4
После сборки столика-подставки
подсоедините металлические фитинги
для предотвращения падения с помощью
установочных винтов
➄
(M4 × 35 мм:
черные).
Металлический фитинг для
предотвращения падения
Основание
Установочные винты
�
�
(M4 × 35 мм: черный)
Задняя
сторона
Передняя
сторона
Внимание
Убедитесь, что не подсоединяете металлические фитинги
в обратном положении.
<Неправильное подсоединение>
<Правильное подсоединение>
68
Ru
Эта деталь предотвращает отражение света от кабелей,
присоединенных к задней стороне дисплея и телевизора
Pioneer, на основание.
Внимание
Подсоедините ее после фиксации основания на ровной,
устойчивой поверхности.
Задняя
сторона
Передняя
сторона
Основание
Подкладка
Подсоединение подкладки
Порядок подсоединения
1
Снимите одну сторону двухсторонней
клеящей ленты на подкладке и
подсоедините подкладку в положении,
показанном на схеме ниже.
Задняя
сторона
Передняя
сторона
Внимание
• Будьте внимательны, чтобы подкладка не попала на
установочные отверстия для опорных стоек.
• Зафиксируйте ее на месте, чтобы не было никаких
зазоров. При наличии зазора подкладка может
отделиться.
2
После подсоединения телевизора Pioneer
к столику-подставке снимите одну
сторону двухсторонней клеящей ленты и
подсоедините светозащитную накладку
в положении, показанном на схеме ниже
(только PDP-LX5090 / PDP-LX5090H / PDP-
C509A).
69
Ru
Pyccкий
2
Крепление дисплея и телевизора Pioneer с
помощью установочных винтов.
Закрепите детали, помеченные стрелками (отверстия с
маркировкой T), с помощью отвертки.
[PDP-LX5090 / PDP-LX5090H / PDP-LX509A / PDP-C509A]
KRP-TS02 / PDK-TS33A / PDK-TS33
Верхняя сторона .....Установочный винт
➁
(M8 × 40 мм: черный)
Нижняя сторона ..... Установочный винт
➃
(M8 × 15 мм: черный)
[KRP-500P / KRP-500M]
KRP-TS02
Верхняя сторона .....Установочный винт
➂
(M8 × 23 мм: черный)
Нижняя сторона ..... Установочный винт
➃
(M8 × 15 мм: черный)
Установочный винт
�
(M8 x 40 мм: черный)
������������������
или
�
�
(M8 x 23 мм: черный)
Установочный винт
�
�
�
(M8 x 15 мм: черный)
Задняя
сторона
Передняя
сторона
Вес дисплея и телевизора Pioneer составляет
примерно 30 кг, он не имеет достаточной
толщины и является неустойчивым.
Следовательно, их должны собирать и
устанавливать, как минимум, два человека.
Внимание
• Обязательно установку выполняйте на ровной,
устойчивой поверхности.
• Вставьте винты в отверстия вертикально и надежно
затяните.
• Подложите ткань или другой материал под дисплей для
предотвращения царапин или повреждений.
• После легкого поворота винта вручную на два или три
оборота затяните его отверткой.
1
Подсоединение дисплея и телевизора
Pioneer к столику-подставке.
Уложите дисплей и телевизор Pioneer на ровную
поверхность. Выровняйте опоры столика-подставки с
установочными пазами дисплея и телевизора Pioneer
и аккуратно вставьте опоры. Убедитесь, что опоры
столика-подставки не входят в контакт ни с чем другим,
кроме установочных пазов дисплея и телевизора Pioneer.
Контакт с любой другой поверхностью может привести
к появлению царапин или деформации задней стороны
дисплея или терминалов.
Задняя
сторона
Передняя
сторона
Внимание
При укладывании дисплея и телевизора Pioneer будьте
внимательны, чтобы его не поцарапать и не повредить.
Подсоединение дисплея и телевизора Pioneer
Внимание
70
Ru
Установка продукта на стойке и т.д.
• При установке продукта на стойке и т.д. убедитесь, что дисплей и телевизор Pioneer
поддерживается двумя или более лицами.
• Не держите дисплей и телевизор Pioneer за громкоговорители или столик-подставку. Это может
повредить продукт.
Внимание
При установке боковых громкоговорителей
�����������������������������������
При установке нижних громкоговорителей
При установке боковых громкоговорителей
Держите дисплей и
телевизор Pioneer за его
ручки и сверху.
Не держите дисплей и
телевизор Pioneer за столик-
подставку.
Не держите дисплей и телевизор Pioneer за громкоговорители.
Держите дисплей и
телевизор Pioneer за его
ручки и с боковых сторон.
71
Ru
Pyccкий
Предотвращение падения оборудования
Обеспечение устойчивости на
стойке и т.д.
Для фиксации дисплея и телевизора Pioneer используйте
винты (имеющиеся в продаже), как показано на схеме.
Внимание
Для обеспечения устойчивости
оборудования на столике
используйте винты с
номинальным диаметром 4 мм и
длиной, как минимум, 20 мм.
После сверления установочного отверстия в
верхней панели стойки затяните ее винтом.
Металлический
фитинг для
предотвращения
падения
Винт (имеющийся в продаже)
Мин. 20 мм
4 мм
от 8 мм до 15 мм
Использование стены для
обеспечения устойчивости
1
Присоединение к дисплею и
телевизору Pioneer болтов (крюков) для
предотвращения падения.
2
Использование прочных шнуров для
обеспечения надлежащего и прочного
крепления на стену, стойку или другой
жесткий элемент конструкции.
Выполняйте эту работу одинаковым образом с левой и
правой сторон.
Внимание
Используйте крюки, шнуры и фитинги
которые имеются в продаже.
Рекомендуемый крюк:
Номинальный диаметр M8
Длина от 12 мм до 15 мм
�
Шнур
�
Крюк
Фитинг
M8
от 12 мм до 15 мм
Спецификации
Наружные размеры:
KRP-TS02 .............552 мм (Ш) × 323 мм (В) × 350 мм (Г)
PDK-TS33 .............550 мм (Ш) × 402 мм (В) × 349 мм (Г)
PDK-TS33A ..........552 мм (Ш) × 402 мм (В) × 350 мм (Г)
Вес
:
KRP-TS02 .............2,5 кг
PDK-TS33 .............2,2 кг
PDK-TS33A ..........2,7 кг
• Вышеуказанные спецификации и внешний вид могут быть изменены без предварительного уведомления для
совершенствования продукта.
• После установки столика-подставки соблюдайте особую осторожность, чтобы избежать
падения оборудования.
• Крепите плазменный телевизор, как к стойке, так и к поверхности стены.
72
Ru
Издано Pioneer Corporation.
© Pioneer Corporation, 2008.
Все права защищены.
При установке боковых громкоговорителей
KRP-TS02
Единицы: мм
Без громкоговорителей
KRP-TS02
Единицы: мм
213,5
80
1233
723
65
350
552
64*
1
93*
2
135*
1
117*
2
64*
1
93*
2
1399*
1
/1445*
2
723
65
350
552
80
213,5
135*
1
117*
2
Размеры
При установке нижних громкоговорителей
PDK-TS33
*1
PDK-TS33A
*2
Единицы: мм
117
1233
803
64
550*
1
/ 552*
2
349* / 350*
2
292,5
80
93
*
1
KRP-500P / KRP-500M
*
2
PDP-LX5090 / PDP-LX5090H / PDP-LX509A
*
1
KRP-500P / KRP-500M
*
2
PDP-LX5090 / PDP-LX5090H / PDP-LX509A





