Pioneer KRP-TS02: ������������
������������: Pioneer KRP-TS02
46
Du
Installatie van het apparaat op een rack enz.
• Zorg ervoor dat de Pioneer Display en Televisie door twee of meer mensen wordt vastgehouden
wanneer deze op een rek etc. wordt geïnstalleerd.
• Houd de Pioneer Display en Televisie niet bij de luidsprekers of de staander vast, omdat het product
anders beschadigd kan raken.
������������
���������������������������
��������������������������������
�������������������
�������������������������������������������������������������������
���������������������������
�������������������������������
�����
����������������������������������������
�����������
���������������������������������������������������
����������������������������������������
����������������������������������������
���������������������������
�����������������������������
�����������������
47
Du
Nederlands
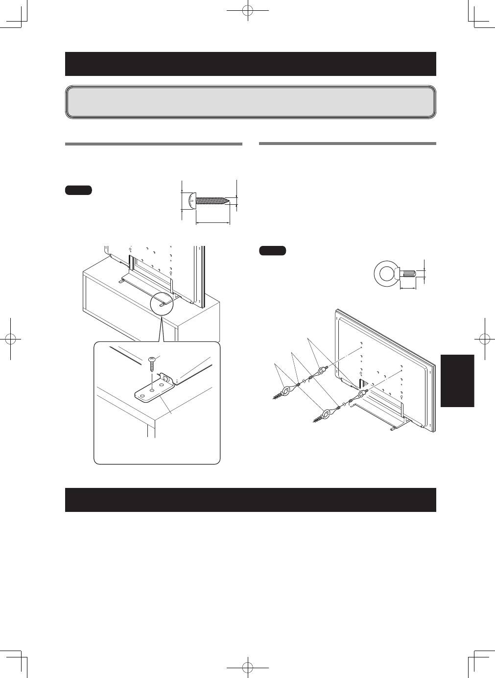
Zo zorgt u ervoor dat de apparatuur niet omvalt
Stabiliteit op de tafel
Gebruik (in de winkel verkrijgbare) schroeven om de Pioneer
Display en Televisie zoals in de figuur aangegeven vast te
zetten.
������
Voor het stabiel plaatsen van de
apparatuur op een tafel, moeten
schroeven met een nominale
diameter van 4 mm en een lengte van
minimaal 20 mm worden gebruikt.
�������������������������������������������
��������������������������������������������
���������������������
����������
��������������
�������������
��������������������
�������������������
��������
����������
����
��������������
Gebruik van een muur voor stabiliteit
1
Bevestiging van de bouten (haken) aan de
Pioneer Display en Televisie om omvallen te
voorkomen.
2
Gebruik stevige snoeren om de display op de
juiste wijze stabiliteit te geven, en deze stevig
aan een muur, zuil of ander stevig element te
bevestigen.
Dit dient op dezelfde wijze aan de linker- en rechterzijde
van de display te worden gedaan.
������
Gebruik haken, snoeren en appendages
die in de winkel verkrijgbaar zijn.
Aanbevolen schroefhaak:
Nominale diameter M8
Lengte 12 mm tot 15 mm
�
�����
�
�����������
�����������
��
���������������
Technische gegevens
Afmetingen buitenzijde:
KRP-TS02 ............. 552 mm (B) × 323 mm (H) × 350 mm (D)
PDK-TS33 ............ 550 mm (B) × 402 mm (H) × 349 mm (D)
PDK-TS33A .......... 552 mm (B) × 402 mm (H) × 350 mm (D)
Gewicht:
KRP-TS02 ............. 2,5 kg
PDK-TS33 ............ 2,2 kg
PDK-TS33A .......... 2,7 kg
• Het is mogelijk dat bovenstaande gegevens en de buitenzijde zonder voorafgaande berichtgeving ter verbetering van het
product worden gewijzigd.
• Zorg ervoor nadat de staander is geïnstalleerd, dat de apparatuur niet omvalt.
• Zet de Pioneer Display en Televisie zowel aan het rek als aan het wandoppervlak vast.
48
Du
Uitgegeven door Pioneer Corporation.
Copyright © 2008 Pioneer Corporation.
Alle rechten voorbehouden.
Bij installatie van de luidsprekers aan weerszijden
KRP-TS02
Eenheid: mm
Zonder luidsprekers
KRP-TS02
Eenheid: mm
213,5
80
1233
723
65
350
552
64*
1
93*
2
135*
1
117*
2
64*
1
93*
2
1399*
1
/1445*
2
723
65
350
552
80
213,5
135*
1
117*
2
Afmetingen
Bij installatie van de luidspreker onder
PDK-TS33
*1
PDK-TS33A
*2
Eenheid: mm
117
1233
803
64
550*
1
/ 552*
2
349* / 350*
2
292,5
80
93
*
1
KRP-500P / KRP-500M
*
2
PDP-LX5090 / PDP-LX5090H / PDP-LX509A
*
1
KRP-500P / KRP-500M
*
2
PDP-LX5090 / PDP-LX5090H / PDP-LX509A
49
Sp
Español
Gracias por comprar un producto Pioneer.
Tenga la amabilidad de leer el Manual de Instrucciones
para saber cómo utilizar este modelo de una forma segura
y adecuada. Asimismo, le recomendamos que conserve el
Manual de Instrucciones para futuras referencias.
Instalación
• Si experimentara alguna dificultad con la instalación,
consulte a su distribuidor.
• Pioneer no se responsabiliza de ningún daño que
pudiera derivarse de una instalación incorrecta, un
uso inadecuado, la realización de modificaciones o
catástrofes naturales.
Índice
Advertencias .......................................................... 49
Verificación de las piezas suministradas .............. 50
Cómo montar el soporte ....................................... 51
Cómo colocar la almohadilla ................................. 52
Cómo instalar el monitor y televisor Pioneer ..... 53
Cómo instalar el producto sobre un bastidor
u otra estructura similar ........................................ 54
Cómo evitar que el equipo se caiga ..................... 55
Especificaciones ..................................................... 55
Diagrama de dimensiones .................................... 56
Advertencias
Este producto es un soporte de mesa diseñado
exclusivamente para ser utilizado con monitores y televisores
Pioneer (PDP-LX5090 / PDP-LX5090H / PDP-LX509A / PDP-
C509A / KRP-500P / KRP-500M).
Su empleo con otros modelos podría provocar su
inestabilidad, con el consiguiente riesgo de lesiones.
Para más información, póngase en contacto con el
establecimiento donde adquirió su pantalla.
No instale ni modifique este producto, salvo según lo
especificado.
No utilice este soporte para un monitor y televisor Pioneer
distinto de los especificados, y no lo modifique ni lo utilice
para otros fines.
Dónde instalar el soporte
• Elija un lugar cuya resistencia permita aguantar el peso
del soporte y de la pantalla.
• Asegúrese de que el lugar de instalación sea una
superficie llana y estable.
• No instale el soporte en el exterior, junto a una fuente
termal o cerca de una playa.
• No instale el soporte donde el mismo pueda estar sujeto a
vibraciones o golpes.
Montaje e instalación
• Instale el soporte de acuerdo con las instrucciones de
montaje y fije correctamente todos los tornillos en
los lugares indicados.
En ocasiones, se han producido accidentes
imprevistos –como la rotura o la caída del equipo
– tras haber realizado el montaje, debido a que el
soporte no se instaló conforme a las instrucciones
facilitadas.
• Para tener la certeza de que el producto se instala de
forma segura, es imprescindible que en su montaje
intervengan dos o más personas.
• Antes de proceder a la instalación, apague el monitor
y televisor Pioneer y los dispositivos periféricos.
Seguidamente, desenchufe el cable de alimentación
de la toma de corriente.
Tome las debidas precauciones para impedir la caída del
producto y evitar accidentes imprevistos (consulte las página
55).
Mesa compatible con monitores, televisores y
soportes Pioneer
Monitores y televisores Pioneer
Soporte de mesa
Modelo de 50 pulgadas, con
el altavoz situado en la parte
inferior
PDK-TS33A/PDK-TS33
Modelo de 50 pulgadas, con
los altavoces situados en los
laterales
KRP-TS02
50
Sp
Verificación de las piezas suministradas
Antes de proceder al montaje e instalación, asegúrese de que dispone de todas las piezas suministradas.
�� ����������������
�� ������������������
� ������������������
�� �����������������������
� �������������������
�� ��������������
�� ����������������������
�
�
� �����������������������
� ����������������������������
� ����������
�� �������������������
� ������������
�� ������������������������
�� ����������
�
�
� ����������������������������
�� ������������������
� ����������������
�� ����������������������
�
�
� �����������������������
�� ����������������������
�
��
� �����������������������
�� ����������������������
�
�
� �����������������������
������������������������������������������������������������������������������������������������������������������
51
Sp
Español
Cómo montar el soporte
Procedimiento de montaje
1
Déle la vuelta a la base de apoyo, de manera
que la parte inferior mire hacia arriba.
2
Introduzca las columnas de soporte en la base
de apoyo.
• Introduzca la columna de soporte (R) en el lado
señalado con la letra “R” y la columna de soporte (L)
en el lado señalado con la letra “L”.
• Asegúrese de que los lados abiertos de las columnas
de soporte miran hacia dentro. Introduzca las
columnas de soporte de modo que las mismas
coincidan con la parte levantada de la base de apoyo.
3
Apriete los tornillos
➀
(4 mm × 10 mm:
plateados) para estabilizar las columnas de
soporte.
������
����������
�
�
�������������������������
����������
�
�
���������������
����������
�������������
����������
�����������
����������
�����������
���������������������������������������
������������������������������������
�����������������������������������
�������������������������������
���������������������������������������
��������������
���������������
������������������
���������������
���������������
����
• Para montar el soporte, coloque una sábana suave debajo de
la base de apoyo.
Si no coloca ninguna sábana antes de proceder al montaje, la
superficie frontal de la base de apoyo se podría rayar.
• Asegúrese de que instala las columnas de soporte (L) y (R) en
la posición correcta, ya que de lo contrario el soporte podría
resultar dañado.
4
Después de montar el soporte, asegure los
accesorios metálicos anticaída mediante los
tornillos de fijación
➄
(M4 × 35 mm: negros).
�������������
���������������
���������������
����������������������
�
�
���������������������
�������������������
���������
����
Asegúrese de que no coloca al revés los accesorios metálicos
anticaída.
�����������������������
���������������������
52
Sp
Este dispositivo impide que los cables conectados a la parte
posterior del monitor y televisor Pioneer se reflejen en la
base de apoyo.
����
Instale el dispositivo tras haber dispuesto firmemente la base
de apoyo sobre una superficie llana y estable.
�����������
�������������
���������������
���������������
Cómo colocar la almohadilla
Procedimiento de colocación
1
Despegue un lado de la cinta adhesiva de
doble cara de la almohadilla y adhiera ésta en
la posición que se indica en la figura inferior.
���������������
���������������
����
• Tenga cuidado de que la almohadilla no interfiera con los
agujeros para introducir las columnas de soporte.
• Colóquela de manera que no quede ningún hueco, ya que en
tal caso la almohadilla podría despegarse.
2
Tras haber instalado el televisor Pioneer en el
soporte, despegue un lado de la cinta adhesiva
de doble cara y adhiera el bloque antirreflejos
en la posición que se indica en la figura inferior
(sólo los modelos PDP-LX5090 / PDP-LX5090H /
PDP-C509A).
53
Sp
Español
2
Cómo asegurar el monitor y televisor Pioneer
mediante los tornillos de fijación.
Utilice un destornillador Phillips para asegurar las piezas
acompañadas de una flecha (agujeros marcados con
una “T”).
[PDP-LX5090 / PDP-LX5090H / PDP-LX509A / PDP-C509A]
KRP-TS02 / PDK-TS33A / PDK-TS33
Arriba ................Tornillos de fijación
➁
(M8 × 40 mm: negros)
Abajo ................. Tornillos de fijación
➃
(M8 × 15 mm: negros)
[KRP-500P / KRP-500M]
KRP-TS02
Arriba ................Tornillos de fijación
➂
(M8 × 23 mm: negros)
Abajo ................. Tornillos de fijación
➃
(M8 × 15 mm: negros)
����������������������
�
���������������������
��������������������
�
���������������������
����������������������
�
�
��������������������
������
���������
���������������
Un monitor y televisor Pioneer pesa alrededor de
30 kg; puesto que carece de fondo, es inestable.
Por consiguiente, es imprescindible que al menos
dos personas intervengan en su montaje e
instalación.
����
• Asegúrese de que instala el televisor sobre una superficie
llana y estable.
• Introduzca los tornillos en los agujeros verticalmente y no los
apriete más de lo necesario.
• Extienda una sábana u otro material debajo de la pantalla
para evitar que la misma se raye o sufra daños.
• Después de haber girado manualmente los tornillos unas dos
o tres veces, apriételos a conciencia con un destornillador.
1
Cómo acoplar el monitor y televisor Pioneer al
soporte.
Coloque el monitor y televisor Pioneer en posición
horizontal. Alinee las columnas de soporte con las
ranuras del soporte del monitor y televisor Pioneer
e introdúzcalas lentamente y de forma horizontal.
Asegúrese de que las columnas de soporte únicamente
entran en contacto con las ranuras practicadas en el
monitor y televisor Pioneer. Si entraran en contacto con
un área distinta, los terminales o la parte posterior de la
pantalla podrían rayarse o deformarse.
���������������
���������������
����
Cuando coloque el monitor y televisor Pioneer en posición
horizontal, tome precauciones para que el mismo no se raye ni
sufra daños.
Cómo instalar el monitor y televisor Pioneer
����������
Table of contents
- �������
- ���������
- ��������
- ����������
- ������������
- ����������
- 注 意





