Pioneer KRP-TS02: ����������
����������: Pioneer KRP-TS02
38
It
Montaggio del prodotto su uno scaffale, ecc.
• Quando lo installate su una mensola, ecc., assicuratevi che il display e televisore Pioneer sia sollevato
da due o più persone.
• Non sollevate il display e televisore Pioneer dagli altoparlanti o dal supporto. In caso contrario, potreste
danneggiare il prodotto.
����������
����������������������������������
�������������������������
����������
���������������������������������������������������������������������
�������������������������������������
�������������������������������������
������������������������������������
������������������������������������
���������������������������
���������������������������������
����������������������������������
����������������������������������
39
It
Italiano
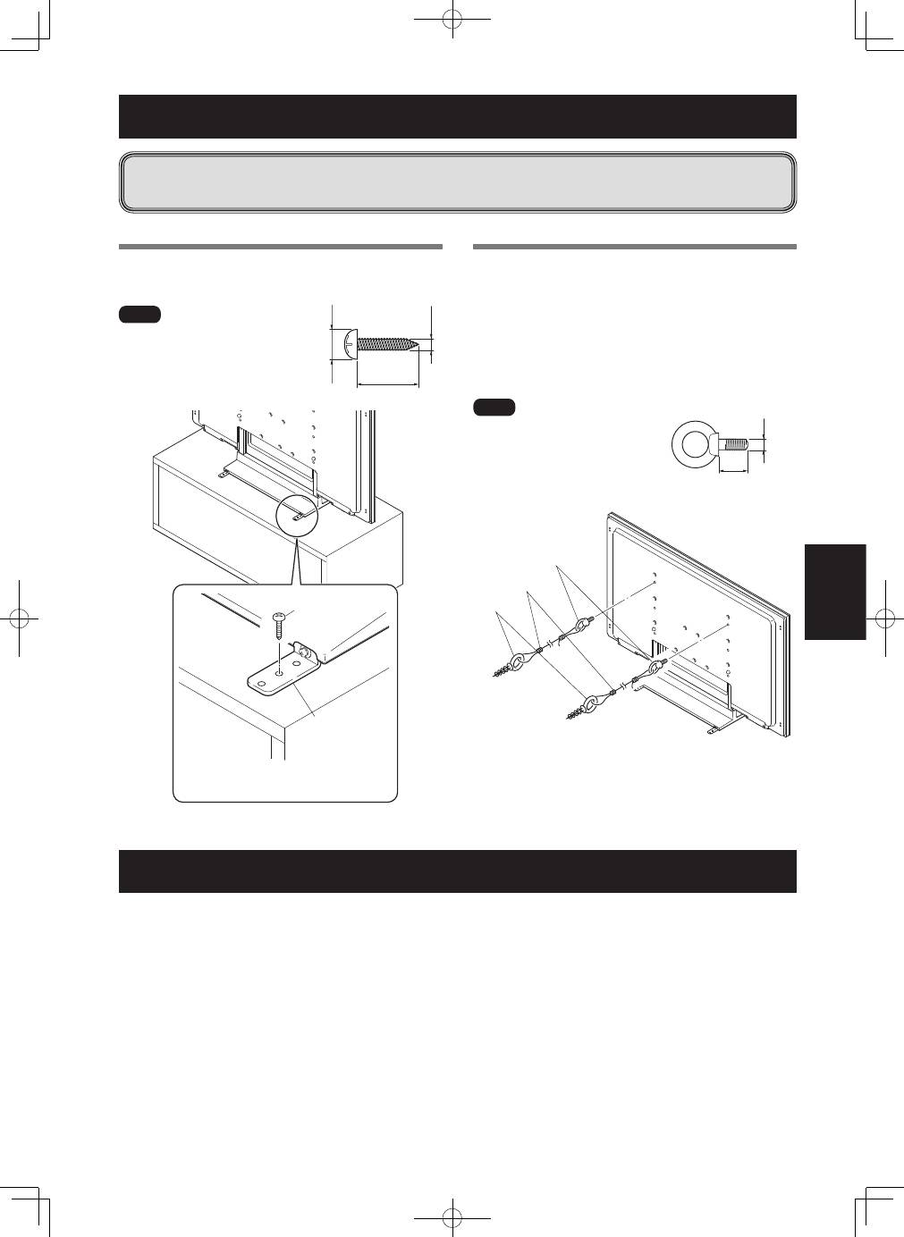
Prevenire la caduta dell’apparecchio
Fissare su tavolo
Usate le viti (in commercio) per fissare il display e televisore
Pioneer come mostrato nella figura.
����
Per fissare l’apparecchio su un tavolo,
usate viti con diametro nominale di 4
mm e lunghezza di almeno 20 mm.
���������������������������������������������
����������������������������������������������
��������������������������
������������������
�������������
���������������������
����������
����������
����
���������������
Fissare l’apparecchio al muro
1
Fissaggio dei bulloni anticaduta (ganci) al
display e televisore Pioneer.
2
Usate corde robuste per fissarlo bene e con
cura a un muro, pilastro o altro elemento
resistente.
Svolgete questo lavoro nello stesso modo sul lato sinistro
e su quello destro.
����
Usate ganci, corde e accessori
disponibili in commercio.
Gancio consigliato:
Diametro nominale M8
Lunghezza da 12 mm a 15 mm
�
�����
�
������
����������
��
����������������
Dati tecnici
Misure esterne:
KRP-TS02 ............. 552 mm (L) × 323 mm (A) × 350 mm (P)
PDK-TS33 ............ 550 mm (L) × 402 mm (A) × 349 mm (P)
PDK-TS33A .......... 552 mm (L) × 402 mm (A) × 350 mm (P)
Peso:
KRP-TS02 ............. 2,5 kg
PDK-TS33 ............ 2,2 kg
PDK-TS33A .......... 2,7 kg
• Le suddette specifiche e l’aspetto esteriore possono essere modificati senza alcun preavviso per migliorare il prodotto.
• Dopo il montaggio del supporto, assicuratevi che l’apparecchio non rischi di cadere.
• Fissate il televisore al plasma allo scaffale e al muro.
40
It
Con gli altoparlanti laterali montati
KRP-TS02
Unità: mm
Senza altoparlanti
KRP-TS02
Unità: mm
213,5
80
1233
723
65
350
552
64*
1
93*
2
135*
1
117*
2
64*
1
93*
2
1399*
1
/1445*
2
723
65
350
552
80
213,5
135*
1
117*
2
Grafico delle misure
Con l’altoparlante inferiore montato
PDK-TS33
*1
PDK-TS33A
*2
Unità: mm
117
1233
803
64
550*
1
/ 552*
2
349* / 350*
2
292,5
80
93
*
1
KRP-500P / KRP-500M
*
2
PDP-LX5090 / PDP-LX5090H / PDP-LX509A
*
1
KRP-500P / KRP-500M
*
2
PDP-LX5090 / PDP-LX5090H / PDP-LX509A
Pubblicato da Pioneer Corporation.
Copyright © 2008 Pioneer Corporation.
Tutti i diritti riservati.
41
Du
Nederlands
Hartelijk dank voor de aanschaf van dit product van Pioneer.
Lees s.v.p. de gebruiksaanwijzing door voor informatie
omtrent de juiste bediening van uw product.
Bewaar de gebruiksaanwijzing zorgvuldig zodat u deze
naderhand nogmaals kunt raadplegen.
Installatie
• Raadpleeg uw dealer wanneer u problemen met de
installatie ondervindt.
• Pioneer is niet aansprakelijk voor schade ontstaan
tengevolge van onjuiste installatie, onjuist gebruik,
wijzigingen of natuurrampen.
Inhoud
Waarschuwingen ................................................... 41
Controleren van de standaardonderdelen .......... 42
Montage van de tafelbladstaander ..................... 43
Bevestiging van de vulling .................................... 44
Bevestiging van de Pioneer Display
en Televisie ............................................................. 45
Installatie van het apparaat op een rack enz. ..... 46
Zo zorgt u ervoor dat de apparatuur
niet omvalt ............................................................. 47
Technische gegevens ............................................. 47
Afmetingen ............................................................ 48
Waarschuwingen
Dit product is een tafelbladstaander die exclusief voor Pioneer
Displays en Televisies (PDP-LX5090 / PDP-LX5090H / PDP-
LX509A / PDP-C509A / KRP-500P / KRP-500M) is ontworpen.
Indien dit model met een ander model wordt gebruikt kan
dit tot instabiliteit leiden hetgeen letsel kan veroorzaken.
Raadpleeg s.v.p. het verkooppunt waar u deze display heeft
gekocht voor meer gegevens hierover.
Het product mag niet op een andere dan volgens de
aangegeven wijze worden geïnstalleerd of gewijzigd.
Deze staander mag niet voor een andere dan de daarvoor
bestemde Pioneer Display en Televisie worden gebruikt, ook
mogen er geen wijzigingen op worden aangebracht noch
mag het voor andere doeleinden worden gebruikt.
Plaats van installatie
• Kies een plaats die sterk genoeg is om het gewicht van de
staander en de displays te kunnen dragen.
• Zorg ervoor dat de plaats van installatie vlak en stabiel is.
• Plaats het apparaat niet buiten, bij een warmwaterbron of
nabij het strand.
• Plaats de standaard niet waar deze blootstaat aan trillen of
schokken.
Montage en installatie
• Monteer de tafelbladstaander overeenkomstig de
montage-instructies en bevestig alle schroeven stevig
op de aangegeven plaatsen.
Onvoorziene ongevallen, zoals het breken of
omvallen van de apparatuur, kunnen zich na
installatie van de display voordoen wanneer de
staander niet op de aangegeven wijze wordt
geïnstalleerd.
• De display dient altijd door twee of meerdere
mensen te worden geplaatst om er zeker van te zijn
dat het apparaat op veilige wijze wordt geïnstalleerd.
• Schakel de display en randapparatuur voorafgaande
aan de installatie uit, en verwijder vervolgens het
netsnoer van de netspanning.
Ongelukken veroorzaakt door het omvallen van het product
kunnen worden voorkomen wanneer de juiste maatregelen
worden genomen (zie blz. 47).
Pioneer Display, Televisie en Tafel voor de
Tafelbladstaander
Pioneer displays en televisies
tafelbladstaander
50-inch model luidspreker onder
PDK-TS33A/PDK-TS33
50-inch model luidsprekers aan
weerszijden
KRP-TS02
42
Du
Controleren van de standaardonderdelen
Controleer voorafgaande aan de montage en installatie of alle standaardonderdelen aanwezig zijn.
�� �����������
�� ����������
� �������������
�� �����������
� ���������������������
�� ����������
�� �����������������
�
�
� ����������������������
� ����������������������������������
� ������������������������
�� ��������������������
� �������������������
� �����������
�� �����������������������
�� ����������
�
�
� �������������������������
�� ����������
� ��������������
�� �����������������
�
�
� ����������������������
�� �����������������
�
��
� ����������������������
�� �����������������
�
�
� ����������������������
�������������������������������������������������������������������������������������������������������������
43
Du
Nederlands
Montage van de tafelbladstaander
Wijze van montage
1
Keer het voetstuk om zodat de onderzijde naar
boven wijst.
2
Voeg de opzetstukken in het voetstuk.
• Voeg het opzetstuk (R) in op de plaats met “R”
aangeven en opzetstuk (L) op de plaats met “L”
aangegeven.
• Zorg ervoor dat de open zijden van de opzetstukken
naar binnen gericht zijn. Voeg de opzetstukken in
terwijl ze zijn opgelijnd met het verhoogde gedeelte
van het voetstuk.
3
Draai de schroeven
➀
(4 mm × 10 mm: zilver)
aan om de opzetstukken vast te zetten.
����
��������
�������������
�������������
��������������������������������������
���������������������������������������
���������������������������������������
�������������������������������������
�����������������
����
������
���������
�����������������
����������
�
�
���������������
�������
����������
�
�
����������������������
������
• Plaats een zachte doek onder het voetstuk wanneer de
staander wordt gemonteerd.
Indien er voorafgaande aan de montage geen doek onder
wordt neergelegd, kunnen er aan de bovenzijde van het
voetstuk krassen ontstaan.
• Let goed op wanneer de opzetstukken (L) en (R) worden
gemonteerd om ervoor te zorgen dat ze zich op de juiste
plaats bevinden. Wanneer ze foutief worden gemonteerd
kan dit de staander beschadigen.
4
Nadat de staander is geïnstalleerd, dienen de
metalen montagestukken ter voorkoming van
omvallen met de montageschroeven
➄
(M4 ×
35 mm: zwart) te worden bevestigd.
�����������������
�
�
�������������������
����
��������
������
��������������������
���������������������������
������
Zorg ervoor dat de metalen montagestukken ter voorkoming
van omvallen niet verkeerd om worden bevestigd.
����������������������
��������������������
44
Du
Dit element zorgt ervoor dat de kabels die aan de achterzijde
van de Pioneer Display en Televisie op het voetstuk zijn
bevestigd geen licht weerkaatsen.
������
Bevestig dit element nadat het voetstuk op een vlakke en
stabiele ondergrond is vastgezet.
��������
�������
����
������
Bevestiging van de vulling
Wijze van bevestiging
1
Verwijder een zijde van de dubbelzijdige
hechtband op de vulling en bevestig de vulling
op de juiste plaats zoals in de onderste figuur
is aangegeven.
����
������
������
• Zorg ervoor dat de vulling niet de invoeggaten van de buizen
afdekt.
• Bevestig de vulling stevig op zijn plaats zodat er geen gaten
ontstaan. Indien dit wel het geval is, is het mogelijk dat de
vulling loslaat.
2
Nadat de Pioneer Televisie aan de staander is
bevestigd, kan een zijde van het dubbelzijdige
hechtband worden verwijderd en het
lichtafschermblokje op de juiste plaats zoals
in de onderste figuur aangegeven worden
bevestigd (alleen voor PDP-LX5090 / PDP-
LX5090H / PDP-C509A).
45
Du
Nederlands
2
Vastzetten van de Pioneer Display en Televisie
met montageschroeven.
Zet de met pijlen aangegeven onderdelen (met
“T” aangegeven gaten) met gebruik van een
kruiskopschroevendraaier vast.
[PDP-LX5090 / PDP-LX5090H / PDP-LX509A / PDP-C509A]
KRP-TS02 / PDK-TS33A / PDK-TS33
Bovenste ............. Montageschroeven
➁
(M8 × 40 mm: zwart)
Onderste ............. Montageschroeven
➃
(M8 × 15 mm: zwart)
[KRP-500P / KRP-500M]
KRP-TS02
Bovenste ............. Montageschroeven
➂
(M8 × 23 mm: zwart)
Onderste ............. Montageschroeven
➃
(M8 × 15 mm: zwart)
����������������
�
��������������������
��������������������
�
��������������������
�����������������
�
�
��������������������
����
������
Het gewicht van een Pioneer Display en Televisie
bedraagt ongeveer 30 kg; vanwege de vlakke
vorm is hij instabiel. Zorg er daarom voor dat
tenminste twee personen de apparatuur plaatsen
en installeren.
������
• Zorg ervoor dat de Pioneer Display en Televisie op een vlakke
en stabiele plaats wordt geïnstalleerd.
• Voeg de schroeven verticaal in de gaten en draai ze stevig
aan.
• Plaats een doek of ander materiaal onder de display om
krassen en beschadiging te voorkomen.
• Nadat de schroef handmatig twee- of driemaal enigszins
is ingedraaid kan deze met een schroevendraaier worden
vastgedraaid.
1
Bevestiging van de Pioneer Display en Televisie
aan de tafelbladstaander.
Leg de Pioneer Display en Televisie vlak neer. Lijn de
steunen van de staander op met de gleuven van de
staander in de Pioneer Display en Televisie, en voeg de
steunen geleidelijk horizontaal in. Zorg ervoor dat de
steunen van de staander uitsluitend in aanraking komen
met de gleuven van de staander in de Pioneer Display en
Televisie, omdat de achterzijde of de eindklemmen van
de Display anders bekrast of beschadigd kunnen raken.
����
������
������
Zorg ervoor dat de Pioneer Display en Televisie niet worden
bekrast of beschadigd wanneer hij wordt neergelegd.
Bevestiging van de Pioneer Display en Televisie
������������





