Bosch FAD-420-HS-EN Duct Smoke Detector – page 11
Manual for Bosch FAD-420-HS-EN Duct Smoke Detector

Дымовой извещатель для
Монтаж | ru 201
№Описание
y Базы извещателя
z Дымовой извещатель FAD-
O420
Рисунок 4.15 Установка пожарного
извещателя
2. Поверните извещатель по часовой стрелке так, чтобы
совпали отметки на извещателе и базе (см.
Рисунок 4.16).
№Описание
a Метки правильного
положения извещателя
Рисунок 4.16 Фиксирование извещателя
в базе
Bosch Sicherheitssysteme GmbH Руководство по установке F.01U.033.733 | 5.0 | 2011.11

Дымовой извещатель для
202 ru | Подключение
5Подключение
№Описание
1 + 2 Контакты сквозного
подключения линии
дополнительного питания
3Экран
(вход./исход.)
4LSN вход
5 LSN выход
6 Внешняя индикация
тревоги
Может использоваться,
только если не установлена
релейная плата НР FAD-RB-
DIBT!
7 Контакты реле (НР, ОБЩ,
НЗ)
Могут использоваться,
только если установлена
релейная плата FAD-RB-
DIBT!
Максимальное нагрузка на
контакты: 2 A при 30 В
пост. тока
F.01U.033.733 | 5.0 | 2011.11 Руководство по установке Bosch Sicherheitssysteme GmbH

Дымовой извещатель для
Настройки | ru 203
6 Настройки
6.1 Установка перемычек
Коммутационная плата
извещателя FAD-420-HS-EN
№ Настройки
2-3 Тампер-контакт
деактивирован*
1-2 Тампер-контакт
активирован
FAD-RB-DIBT Релейная плата
№ Настройки
1-2 Реле выключается в случае
отсутствия питания и/или
если активирована точка C
извещателя.
2-3 Реле включается, если
активирована точка C
извещателя.
* Настройка по умолчанию
ЗАМЕЧАНИЕ!
Отрегулируйте чувствительность извещателя с помощью ПО
конфигурирования пожарной панели.
Инструкции см. в справке программного обеспечения.
6.2 Проверка воздушного потока
Опционально:
Чтобы убедиться в правильности работы системы, проверьте,
что скорость воздушного потока позволяет установить
достаточный перепад давления в устройстве. Это можно
сделать с помощью манометра. Скорость воздушного потока
должна находиться в пределах от 1,5 до 20 м/с. Перепад
давления между пробоотборными трубами должен
находиться в следующих пределах:
Bosch Sicherheitssysteme GmbH Руководство по установке F.01U.033.733 | 5.0 | 2011.11

Дымовой извещатель для
204 ru | Настройки
Минимум Максимум
0,25 мм H
O 4,57 см H
O
2
2
0,025 мбар 4,48 мбар
2,5 Па 448 Па
6.3 Проверка извещателя
1. Переключите извещатель FAD-420-HS-EN в режим
тестирования на пожарной панели.
2. Если активирован тампер-контакт, установите какой-
либо магнит у геркона (E) на боковой поверхности
корпуса извещателя.
Например, можно использовать магниты IMI-ESMAG
(F.01U.142.997).
3. Это обеспечивает шунтирование тампер-контакта (F) и
позволяет снять крышку корпуса (B) без отключения
дымового извещателя FAD-O420 (D).
4. Ослабьте крепежные винты (A) на крышке и снимите
крышку (B).
5. Проверьте оба воздушных фильтра (C) на предмет
загрязнения и замените их при необходимости.
При необходимости проверьте и прочистите
пробоотборную и вентиляционную трубы.
6. Проверьте дымовой извещатель FAD-O420 (D) с
помощью специализированного тестового аэрозоля.
7. После проверки извещателя повторно прикрепите
крышку, снимите магниты и переключите извещатель в
рабочий режим на пожарной панели.
F.01U.033.733 | 5.0 | 2011.11 Руководство по установке Bosch Sicherheitssysteme GmbH

Дымовой извещатель для
Технические характеристики | ru 205
7 Технические характеристики
Извещатель FAD-420-HS-EN
Рабочее напряжение 24 В пост. тока (от 15 В пост. тока
до 33 В пост. тока)
Макс. ток потребления 0,51 мА
(0,71 мА с релейной платой FAD-
RB-DIBT)
Допустимая скорость воздушного
От 1,5 м/с до 20 м/с
потока
Степень защиты оболочки по IEC
IP30
60529
Стандарты безопасности IEC 60950 / EN 60950
Защищенность от помех ЭМС В соответствии с EN 50130-4
Испускание помех ЭМС В соответствии с EN 61000-6-3
Допустимая рабочая температура От 0 °C до +50 °C
Допустимая температура хранения От -20 °C до +60 °C
Относительная влажность Макс. 95% (без конденсации)
Материал и цвет корпуса:
– Основание корпуса
Армированный волокнами
пластик PPE/PS (UL94-V1), серый
– Крышка корпуса
Пластик PC (UL94-V2),
прозрачный
Размеры (Ш x В x Г) 16,5 см x 39,5 см x 11 см
Масса
–с упаковкой
2,0 кг
– FAD-420-HS-EN в рабочем
1,5 кг
режиме
Релейная плата FAD-RB-DIBT
Макс. нагрузка на контактах 2 A при 30 В пост.тока
Масса 11 г
Bosch Sicherheitssysteme GmbH Руководство по установке F.01U.033.733 | 5.0 | 2011.11

206 tr | İçindekiler Kanal Duman Dedektörü
İçindekiler
1 Ürün açıklamaları 207
1.1 Servis kapsamı 207
1.2 Aksesuarlar 208
2 Ürün hakkında genel bilgiler 208
3 Montaj/konfigürasyon notları 210
3.1 Ön koşul 210
3.2 Montaj konumu 210
3.3 Muhafaza konumu 211
4Montaj 211
4.1 Örnek tüpü 211
4.2 FAD-420-HS-EN dedektörünün kurulması 213
4.3 FAD-RB-DIBT Röle Kartının montajı 217
4.4 FAD-O420 Duman Dedektörü Montajı 217
5Bağlantı 219
6 Konfigürasyon 220
6.1 Atlatıcı ayarı 220
6.2 Hava akışı kontrolü 220
6.3 Dedektör testi 221
7 Teknik veriler 222
F.01U.033.733 | 5.0 | 2011.11 Montaj kılavuzu Bosch Sicherheitssysteme GmbH

Kanal Duman Dedektörü Ürün açıklamaları | tr 207
1 Ürün açıklamaları
FAD-420-HS-EN Hava Örnekleme Dedektörü, havalandırma
sistemlerindeki dumanı algılamak için kullanılır. Modern
LSN
veri iletişim teknolojisiyle birlikte, kompakt
geliştirilmiş
muhafaza tasarımı sayesinde havalandırma kanalındaki havayı
sürekli olarak dedektörün içinden geçirerek yangının erkenden
algılanmasını sağlar.
FAD-420-HS-EN'e, işlevine yardımcı olmak için özel olarak
uyarlanmış bir FAD-O420 tipi fotoelektrik duman dedektörü
monte edilmiştir. FAD-O420 duman algıladığında yangın
paneline bir mesaj gönderir, sonra bu mesaj bir alarm mesajını
gösterir ve havalandırma sistemindeki fanların kapatılması gibi
önceden programlanmış gerekli adımları uygular.
FAD-O420 duman dedektörü özelliği bulunan FAD-420-HS-EN,
Yerel Güvenlik Ağı (LSN) geliştirilmiş sürümünde FAP-O420/
FAD-O420 olarak tanımlanır.
Aksesuar olarak, fan veya duman söndürücüler gibi cihazların
değiştirme kontaklı bir röle ile etkinleştirilmesini kolaylaştıran
bir röle kartı mevcuttur.
1.1 Servis kapsamı
Mkt. Parça
1 Bağlantı kartlı, dedektör tabanlı ve kapaklı dedektör muhafazası
2 Muhafazayı havalandırma kanalı üzerine monte etmek için kullanılan
#10-24 x 1 inç vida
2 Muhafazayı havalandırma kanalı üzerine monte etmek için kullanılan
#10-24 genişletme somunu
1 D344-1,54 Örnek Tüpü, 0,46 m
1 Havalandırma tüpü
2 Örnek tüpü ve havalandırma tüpü için kullanılan sabitleme bilezikleri
4 Sabitleme flanşlarını monte etmek için kullanılan #8-32 x 9/16 inç
vidalar
2 Köpük kauçuk sızdırmazlık halkaları
2 Örnek tüpü ve havalandırma tüpü için kullanılan hava filtreleri
1 Delme aygıtı (kendinden yapışkanlı)
Ürün hakkında genel bilgiler için bkz. Sayfa 208
Bosch Sicherheitssysteme GmbH Montaj kılavuzu F.01U.033.733 | 5.0 | 2011.11

208 tr | Ürün hakkında genel bilgiler Kanal Duman Dedektörü
1.2 Aksesuarlar
– FAD-O420 Fotoelektrik Duman Dedektörü
– D344-1,5 Örnek Tüpü, 0,46 m
– D344-3 Örnek Tüpü, 0,91 m
– D344-5 Örnek Tüpü, 1,52 m
– FAD-RB-DIBT Röle Kartı
– FAA-420-RI Uzaktan Gösterge
Not: FAD-RB-DIBT Röle Kartı monte edilmişse bağlanamaz!
– D344-TF Örnek/Havalandırma Tüpü için kullanılan hava
filtresi (20 ünite)
2 Ürün hakkında genel bilgiler
F.01U.033.733 | 5.0 | 2011.11 Montaj kılavuzu Bosch Sicherheitssysteme GmbH

Kanal Duman Dedektörü Ürün hakkında genel bilgiler | tr 209
Kon
Açıklama
um.
A Havalandırma kanalı dedektör muhafazası
B FAD-O420 Duman Dedektörü için kullanılan dedektör tabanı
C Havalandırma tüpü için kullanılan montaj bileziği
D Ürün tüpü için kullanılan montaj bileziği
E Bağlantı kartı
F Geçiş anahtarını köprülemek için kullanılan dilli anahtar (x)
GÖrnek tüpü
H Havalandırma tüpü
I 3 kutuplu konnektör fişi
J 2 kutuplu konnektör fişi
K Sabitleme flanşlarını monte etmek için kullanılan #8-32 x 9/16 inç
vidalar (L)
L Örnek tüpü ve havalandırma tüpü için kullanılan sabitleme bilezikleri
M Muhafazanın havalandırma kanalı üzerine montajı için kullanılan #10-
24 genişletme somunları
N Muhafazanın havalandırma kanalı üzerine montajı için kullanılan #10-
24 x 1 inç vidalar
O Örnek tüpü ve havalandırma tüpü için kullanılan hava filtreleri
P Köpük kauçuk sızdırmazlık halkaları
x İzinsiz olarak kapağın açılıp açılmadığını izlemek için kullanılan dilli
anahtar
Bosch Sicherheitssysteme GmbH Montaj kılavuzu F.01U.033.733 | 5.0 | 2011.11

210 tr | Montaj/konfigürasyon notları Kanal Duman Dedektörü
3 Montaj/konfigürasyon notları
No. Açıklama
a Kıvrımlar ve hava akışındaki
diğer gecikmeler
b En az 3xd
c Kıvrımda türbülans (a)
d Havalandırma kanalının
genişliği
Şekil 3.1 Tipik montaj konumu
3.1 Ön koşul
FAD-420-HS-EN Hava Örnekleme Dedektörü 1,5 m/sn ila 20 m/
sn değerinde hava hızına sahip havalandırma sistemlerinde
kullanılmak üzere tasarlanmıştır.
Bu sınırlara uyulduğundan emin olmak için montajdan önce
havalandırma sisteminin teknik özelliklerini kontrol edin.
Şüpheniz varsa, kanaldaki havanın hızını ölçmek için bir hava
akışı ölçüm cihazı kullanın.
3.2 Montaj konumu
Durgun hava bölgesi olan kanalların veya türbülanslı alanların
yanında montaj konumlaması yapmayın.
Türbülans genellikle, bağlantı bileziklerinin, kolların, keskin
kıvrımların ve uzun, düz kanalların yanında oluşur.
FAD-420-HS-EN dedektörünü, bu kritik alanlardan uzağa
yerleştirin ve mesafenin havalandırma kanalının genişliğinin
[b ≥ 3 x d] en az üç katı kadar olmasını sağlayın (bkz.
Resim 3.1).
F.01U.033.733 | 5.0 | 2011.11 Montaj kılavuzu Bosch Sicherheitssysteme GmbH

Kanal Duman Dedektörü Montaj | tr 211
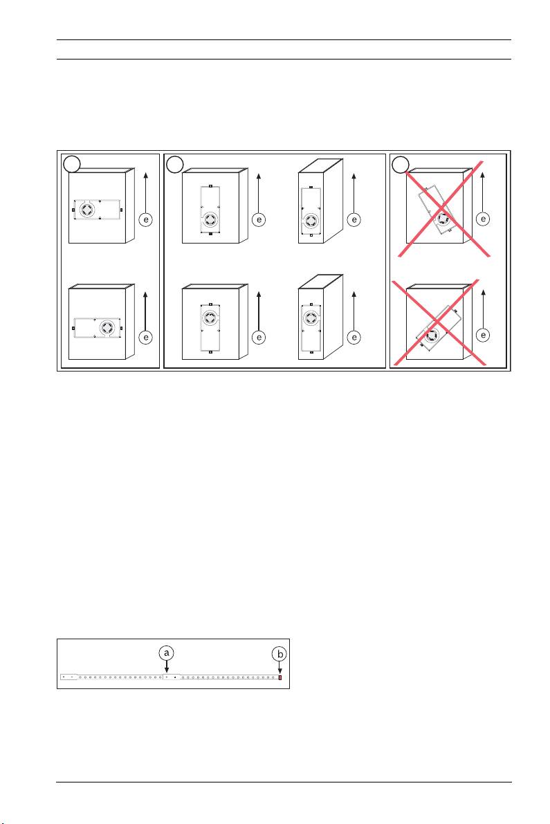
3.3 Muhafaza konumu
FAD-420-HS-EN dedektörünün sadece dikey veya yatay
konumda monte edilmesi gerekir (bkz Resim 3.2).
1
2
3
Şekil 3.2 Havalandırma kanalı üzerindeki muhafazanın konumu
No. Açıklama
e Hava akış yönü
4 Montaj
4.1 Örnek tüpü
Örnek tüplerinin havalandırma kanalı genişliğinin tamamına
kadar uzanması gerekir, bu sebeple üç farklı uzunluğu bulunur:
– D344-1,5 (0,46 m/1,5 ft)
– D344-3 (0,91 m/3 ft)
– D344-5 (1,52 m/5 ft)
No. Açıklama
a Konumlandırma vidası
bUç kapak
Şekil 4.1 Örnek tüpü
Örnek tüpleri, daha geniş havalandırma kanalları için
birleştirilebilir, ancak bir uç kapakla kapatılmalıdır (bkz
Resim 4.1). Tüm örnek tüplerinde, içinden geçirilen bir
Bosch Sicherheitssysteme GmbH Montaj kılavuzu F.01U.033.733 | 5.0 | 2011.11

212 tr | Montaj Kanal Duman Dedektörü
konumlandırma pimi ve bir uç kapağı bulunur! İki örnek tüpünü
birleştirirken, ilk örnek tüpünün uç kapağı ve ikinci örnek
tüpünün konumlandırma vidası ve konumlandırma pimi
çıkarılmalıdır!
Sınırlar:
DİKKAT!
Bir örnek tüpünde en az 12 örnekleme deliğinin bulunması ve
bu tüpün en az 30 cm uzunluğunda olması gerekir. İzin verilen
maksimum uzunluk 3 m'dir!
İki örnek türünü birleştirirken kullanılacak adımlar:
1. İlk örnek tüpünün uç kapağını çıkarın.
2. İkinci örnek tüpünün konumlandırma pimini ve
konumlandırma vidasını çıkarın.
3. İki örnek tüpünü bağlayın.
4. Örnek tüplerinin deliklerini hizalayın ve konumlandırma
vidalarını sıkın.
5. Uç kapağı takın.
Örnek: 2,13 m uzunluğunda bir örnek tüpüne ihtiyacınız var.
Bir D344-3 (0,91 m) ile D344-5 (1,52 m) tüpünü birleştirin.
Sonra, D344-5 tüpünü 30 cm kısaltın ve uç kapağı takın.
No. Açıklama
c 2,5 cm–5 cm (1 inç–2 inç)
Şekil 4.2 Örnek tüpünü destekleme
90 cm değerinden uzun olan örnek tüplerinin havalandırma
kanalıyla desteklenmesi gerekir.
Yoğunlaşmanın tahliye edilebilmesi için havalandırma
kanalındaki destek delikleri giriş deliğinin 2,5 cm–5 cm altında
olmalıdır (bkz. Resim 4.2).
Havalandırma kanalı ile örnek tüpü arasındaki boşluğu kapatın.
F.01U.033.733 | 5.0 | 2011.11 Montaj kılavuzu Bosch Sicherheitssysteme GmbH

Kanal Duman Dedektörü Montaj | tr 213
No. Açıklama
d Bu delikleri kanal bandıyla
kapatın
Şekil 4.3 Örnekleme deliklerini kapatma
D344-1,5 Örnek Tüpü, 30–45 cm genişliğindeki havalandırma
kanallarına kuruluysa, 19 örnekleme deliğinden bazılarını
kapatmalısınız. 45 cm genişliğindeki bir havalandırma kanalı için
altı delik kapatılmalıdır (bkz. Resim 4.3).
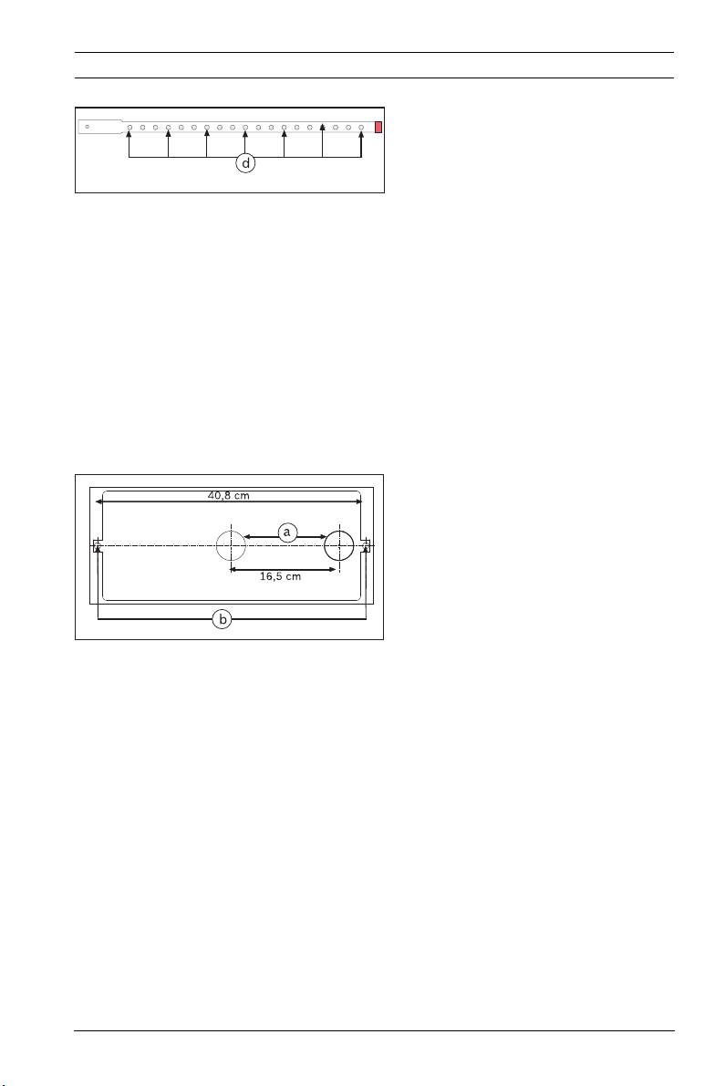
4.2 FAD-420-HS-EN dedektörünün kurulması
1. Kapalı, kendinden yapışkanlı delme aygıtını (bkz.
Resim 4.4) kutudan çıkarın ve arkasındaki koruyucu kağıdı
sökün.
No. Açıklama
a Örnek tüpü ve havalandırma
tüpü için kullanılan ∅ 44,5
mm'lik delikler
b Sabitleme muhafazası için
kullanılan ∅ 9,5 mm'lik
delikler
Şekil 4.4 Delme aygıtı
2. Seçili montaj konumunda delme aygıtını havalandırma
kanalının üzerine yerleştirin ve yapıştırın (bkz. Resim 4.5).
3. Muhafazayı sabitlemek amacıyla kullanılan genişletme
somunları için kullanılmak üzere havalandırma kanalında
∅ 9,5 mm'lik ve örnek tüpü ve havalandırma tüpü için
kullanılmak üzere ∅ 44,5 mm'lik delikler açın.
4. Delme aygıtını kaldırın, keskin kenarların çapaklarını alın ve
çıkan toz ve kiri temizleyin.
Bosch Sicherheitssysteme GmbH Montaj kılavuzu F.01U.033.733 | 5.0 | 2011.11

214 tr | Montaj Kanal Duman Dedektörü
No. Açıklama
c Havalandırma kanalı
d Delme aygıtı
Şekil 4.5 Delme aygıtının konumu
5. İki adet ∅ 9,5 mm'lik deliğe #10-24 genişletme somunlarını
(bkz. Resim 4.6) yerleştirin.
6. #10-24 x 1 inç vidaları, genişletme somunlarına takın ve
elinizle sıkıştırın. Bu sayede, genişletme somunları
havalandırma kanalına güvenle sabitlenir.
Vidalar sıkılırken genişletme somunlarının dönmesini
engellemek bir kargaburunla güvenle tutulabilir.
7. Şimdi her iki vidayı da sökün.
Şekil 4.6 #10-24 genişletme somunları
8. Örnek tüpünün ve havalandırma tüpünün montaj
bileziklerinin üzerine FAD-420-HS-EN dedektörünün
arkasındaki köpük kauçuk sızdırmazlık halkaları
yerleştirilmelidir (bkz. Resim 4.7).
No. Açıklama
e Havalandırma tüpü montaj
flanşı
f Havalandırma tüpü montaj
flanşı
g Köpük kauçuk sızdırmazlık
halkaları
Şekil 4.7 Köpük kauçuk sızdırmazlık
halkaları
F.01U.033.733 | 5.0 | 2011.11 Montaj kılavuzu Bosch Sicherheitssysteme GmbH

Kanal Duman Dedektörü Montaj | tr 215
9. FAD-420-HS-EN dedektörünü havalandırma kanalına monte
edin ve genişletme somunlarına sabitlemek için #10-24 x 1
inç vidalar kullanın (bkz Resim 4.8).
Vidaları aşırı sıkmayın. Vidaları aşırı sıkarsanız,
havalandırma kanalı sacı eğrilebilir!
No. Açıklama
h Havalandırma kanalı
i Dedektör muhafazası
k #10-24 x 1 inç vidalar
Şekil 4.8 Muhafaza montajı
10. Havalandırma tüpünü ve örnek tüpünü kutudan çıkarın. Uç
kapağın örnek tüpüne takılı olup olmadığını kontrol edin
(bkz Resim 4.9).
No. Açıklama
l Havalandırma tüpü
m Havalandırma tüpünün her
iki ucunun da açık olması
Şekil 4.9 Örnek tüpü ve havalandırma tüpü
gerekir!
nÖrnek tüpü
o Uç kapak takılı olmalıdır!
11. Örnek tüpünü monte ederken hava akışı yönünün dikkate
alınması gerekir. Örnekleme deliklerinin hava akışına
bakması gerekir (bkz. Resim 4.10).
No. Açıklama
p Hava akış yönü
rÖrnek tüpü
s Örnekleme delikleri
Şekil 4.10 Hava akış yönü
12. Dedektör, Resim 3.2 öğesinin 2. konumuna göre monte
edildiyse, havalandırma tüpü örnek tüpünün aşağı hava
akımı tarafına yerleştirilmelidir (bkz. Resim 4.11).
Bosch Sicherheitssysteme GmbH Montaj kılavuzu F.01U.033.733 | 5.0 | 2011.11

216 tr | Montaj Kanal Duman Dedektörü
No. Açıklama
p Hava akış yönü
rÖrnek tüpü
t Havalandırma tüpü
Şekil 4.11 Örnek tüpünün ve havalandırma
tüpünün konumu
13. Örnek tüpünü ve havalandırma tüpünü sabitleme
bileziklerine takın ve belirtilen girintilerle konumlandırma
pimlerinin aynı hizada olduğundan emin olun. Örnek
tüpünün üzerindeki örnekleme delikleri hava akışına
bakmalıdır! Her iki sabitleme flanşını takın ve dört adet #8-
32 x 9/16 inç vidayla monte edin. Vidaları elinizle sıkın.
No. Açıklama
rÖrnek tüpü
t Havalandırma tüpü
u Sabitleme bilezikleri
Şekil 4.12 Sabitleme bileziklerinin montajı
14. Hava filtrelerini örnek tüpünün ve havalandırma tüpünün
uçlarına yerleştirin (bkz. Resim 4.13).
15. Şimdi montajın tamamını gözünüzle kontrol edin.
No. Açıklama
rÖrnek tüpü
t Havalandırma tüpü
v Hava filtresi
Şekil 4.13 Örnek tüpü ve havalandırma
tüpü hava filtreleri
F.01U.033.733 | 5.0 | 2011.11 Montaj kılavuzu Bosch Sicherheitssysteme GmbH

Kanal Duman Dedektörü Montaj | tr 217
4.3 FAD-RB-DIBT Röle Kartının montajı
NOT!
Opsiyonel FAD-RB-DIBT Röle Kartı ek cihazları aktif hale
getirmek için kullanılabilir (örneğin; fanlar, kapı kontrol
sistemleri, harici ekran cihazları).
1. Röle kartını, bağlantı kartının tam olarak kontak pimlerinin
üzerine yerleştirin.
Röle kartı üzerindeki ara cıvataların, bağlantı kartındaki
deliklerin tam olarak üzerine yerleşmesi gerekir (bkz.
Resim 4.14).
2. Ara cıvataları bağlantı kartı üzerindeki deliklere klik sesi
çıkararak oturana kadar röle kartının dört köşesinden eşit
olarak bastırın.
No. Açıklama
w FAD-RB-DIBT Röle Kartı
x FAD-420-HS-EN Bağlantı
Kartı
Şekil 4.14 Röle kartı montajı
4.4 FAD-O420 Duman Dedektörü Montajı
1. FAD-O420 Duman Dedektörünü dedektör tabanına takın
(bkz. Resim 4.15).
Dedektör, sadece belli bir konumda tabana yerleştirilebilir!
Bosch Sicherheitssysteme GmbH Montaj kılavuzu F.01U.033.733 | 5.0 | 2011.11

218 tr | Montaj Kanal Duman Dedektörü
No. Açıklama
y Dedektör Tabanları
z FAD-O420 Duman Dedektörü
Şekil 4.15 Yangın dedektörü montajı
2. Tabandaki ve dedektördeki işaretler aynı hizaya gelene
kadar dedektörü saat yönünde döndürün (bkz. Resim 4.16).
No. Açıklama
a Doğru dedektör konumunu
işaretleme
Şekil 4.16 Dedektörün Tabana oturtulması
F.01U.033.733 | 5.0 | 2011.11 Montaj kılavuzu Bosch Sicherheitssysteme GmbH

Kanal Duman Dedektörü Bağlantı | tr 219
5 Bağlantı
Konu
Açıklama
m.
1 + 2 Yardımcı güç kaynağında
devre kurmak için kullanılan
bağlantılar
3 Blendajlı kablo
(gelen/giden)
4 LSN gelen
5 LSN giden
6 Harici alarm göstergesi
Sadece, FAD-RB-DIBT Röle
Kartı takılı değilse
kullanılabilir!
7 Röle kontakları
Sadece FAD-RB-DIBT Röle
Kartı takılı ise kullanılabilir!
Maksimum kontak yükü:
30 V DC'de 2 A
Bosch Sicherheitssysteme GmbH Montaj kılavuzu F.01U.033.733 | 5.0 | 2011.11

220 tr | Konfigürasyon Kanal Duman Dedektörü
6 Konfigürasyon
6.1 Atlatıcı ayarı
FAD-420-HS-EN Bağlantı Kartı
No. Konfigürasyon
2-3 Geçiş anahtarı devre dışı*
1-2 Geçiş anahtarı etkin
FAD-RB-DIBT Röle Kartı
No. Konfigürasyon
1-2 Hiç güç yoksa ve/veya C
dedektör noktası
etkinleştirilmişse röle sinyal
vermez.
2-3 C dedektör noktası
etkinleştirilmişse röle açılır.
* Varsayılan ayar
NOT!
Kontrol panelindeki programlama yazılımını kullanarak
dedektörün hassasiyetini ayarlayın.
Bkz. yazılımın çevrimiçi yardımı.
6.2 Hava akışı kontrolü
Opsiyonel:
Sistemin doğru çalıştığından emin olmak için hava hızının,
cihazda ayarlanabilmesi için yeterli bir diferansiyel basınç
sağlayıp sağlamadığını kontrol edin. Bu, bir manometreyle
yapılabilir. Kanaldaki hava hızı 1,5 m/sn ila 20 m/sn arasında
olmalıdır. Örnek tüpleri arasındaki diferansiyel basıncı şu
aralıklarda ölçülmelidir:
Minimum Maksimum
0,25 mm H
O (0,01 inç H
O) 4,57 cm H
O (1,8 inç H
O)
2
2
2
2
0,025 mbar 4,48 mbar
2,5 Pa 448 Pa
F.01U.033.733 | 5.0 | 2011.11 Montaj kılavuzu Bosch Sicherheitssysteme GmbH

