Bosch FAD-420-HS-EN Duct Smoke Detector – page 10
Manual for Bosch FAD-420-HS-EN Duct Smoke Detector

Detector óptico de fumo para
Instalação | pt 181
12. Se o detector foi instalado de acordo com a posição 2 da
Figura 3.2, o tubo de ventilação deve ser posicionado a
jusante do tubo de amostragem (ver Figura 4.11).
N.º Descrição
p Sentido do fluxo de ar
r Tubo de amostragem
t Tubo de ventilação
Figura 4.11 Posição do tubo de amostra-
gem e do tubo de ventilação
13. Insira o tubo de amostragem e o tubo de ventilação através
das flanges de fixação e certifique-se de que os pinos de
centragem estão alinhados com os entalhes adequados.
Os orifícios de extracção do tubo de amostragem têm de
estar virados para o fluxo de ar! Instale ambas as flanges
de fixação e aperte com os quatro parafusos n.º 8-32 x 9/
16 pol. Aperte os parafusos manualmente.
N.º Descrição
r Tubo de amostragem
t Tubo de ventilação
u Flanges de fixação
Figura 4.12 Instalação das flanges de fixa-
ção
14. Coloque os filtros de ar nas extremidades do tubo de
amostragem e do tubo de ventilação (ver Figura 4.13).
15. Em seguida, verifique visualmente toda a instalação.
Bosch Sicherheitssysteme GmbH Manual de instalação F.01U.033.733 | 5.0 | 2011.11

Detector óptico de fumo para
182 pt | Instalação
N.º Descrição
r Tubo de amostragem
t Tubo de ventilação
v Filtro de ar
Figura 4.13 Tubo de amostragem e filtros
de ar do tubo de ventilação
4.3 Instalação do FAD-RB-DIBT
NOTA!
A Placa de Relés FAD-RB-DIBT opcional pode ser utilizada para
activar dispositivos adicionais (por ex., ventiladores, sistemas
de controlo de portas, dispositivos de visualização externos).
1. Coloque a placa de relé exactamente sobre os pinos de
contacto da placa de ligação.
Os parafusos espaçadores da placa de relé têm de estar
posicionados exactamente sobre os orifícios da placa de
ligação (ver Figura 4.14).
2. Empurre uniformemente a placa de relé para baixo nos
quatro cantos até que os parafusos espaçadores encaixem
nos orifícios da placa de ligação.
N.º Descrição
w FAD-RB-DIBT Placa de Relés
x FAD-420-HS-EN Placa de
Ligação
Figura 4.14 Instalação da placa de relé
F.01U.033.733 | 5.0 | 2011.11 Manual de instalação Bosch Sicherheitssysteme GmbH

Detector óptico de fumo para
Instalação | pt 183
4.4 Instalação do Detector Óptico de Fumo
FAD-O420
1. Introduza o Detector Óptico de Fumo FAD-O420 na base
para detectores (ver Figura 4.15).
O detector só encaixa na base em determinada posição!
N.º Descrição
y Bases para Detectores
z FAD-O420 Detector de Fumo
Figura 4.15 Montagem do detector de
incêndio
2. Rode o detector no sentido dos ponteiros do relógio até
que as marcas da base e do detector fiquem alinhadas (ver
Figura 4.16).
N.º Descrição
a Marcação para o
posicionamento correcto do
detector
Figura 4.16 Bloqueio do detector na base
Bosch Sicherheitssysteme GmbH Manual de instalação F.01U.033.733 | 5.0 | 2011.11

Detector óptico de fumo para
184 pt | Ligação
5Ligação
Pos. Descrição
1 + 2 Ligações para ligar a fonte de
alimentação auxiliar em loop
3 Cabo blindado
(entrada/saída)
4 LSN de entrada
5LSN de saída
6 Indicação externa de alarme
Só pode ser usada se não
estiver instalada uma Placa de
Relés FAD-RB-DIBT!
7 Contactos de relé
Só podem ser usados se
estiver instalada uma Placa de
Relés FAD-RB-DIBT!
Carga de contacto máxima:
2A a 30Vdc
6 Configuração
6.1 Definição por jumper
FAD-420-HS-EN Placa de Ligação
N.º Configuração
2-3
Interruptor contra sabotagem
(tamper) desactivado*
1-2 Interruptor contra sabotagem
(tamper) activado
FAD-RB-DIBT Placa de Relés
N.º Configuração
1-2
O relé permanece em repouso se
não houver alimentação e/ou se o
ponto C do detector estiver
activado.
2-3 O relé muda de estado se o ponto C
do detector estiver activado.
F.01U.033.733 | 5.0 | 2011.11 Manual de instalação Bosch Sicherheitssysteme GmbH

Detector óptico de fumo para
Configuração | pt 185
* Predefinição
NOTA!
Ajuste a sensibilidade do detector através do software de
programação do painel de controlo.
Consulte a ajuda online do software.
6.2 Verificação do fluxo de ar
Opcional:
para se certificar de que o sistema funciona correctamente,
verifique se a velocidade do ar permite uma pressão de
diferencial suficiente para ser definida no dispositivo. Pode
fazê-lo utilizando um manómetro. A velocidade do ar na
conduta deve estar entre 1,5 m/s e 20 m/s. A pressão de
diferencial entre os tubos de amostragem deve encontrar-se
dentro do limite:
Mínimo Máximo
0,25 mm H
O (0,01 pol. H
O) 4,57 cm H
O (1,8 pol. H
O)
2
2
2
2
0,025 mbar 4,48 mbar
2,5 Pa 448 Pa
6.3 Teste dos detectores
1. Mude o FAD-420-HS-EN para o modo de teste no painel de
incêndio.
Bosch Sicherheitssysteme GmbH Manual de instalação F.01U.033.733 | 5.0 | 2011.11

Detector óptico de fumo para
186 pt | Configuração
2. Se tiver activado o jumper para o interruptor contra
sabotagem (tamper), coloque um íman no interruptor reed
(E) na parte lateral da caixa do detector.
Pode utilizar os ímanes IMI-ESMAG (F.01U.142.997) , por
exemplo.
3. Deste modo, o interruptor contra sabotagem (tamper) é
protegido (F) e a tampa (B) pode ser removida sem ter de
desligar o Detector Óptico de Fumo FAD-O420 (D).
4. Solte os parafusos de fixação (A) da tampa e remova a
tampa (B).
5. Verifique ambos os filtros de ar (C) para verificar se existe
contaminação e substitua-os, caso seja necessário.
Se necessário, verifique e limpe o tubo de amostragem e o
tubo de ventilação.
6. Teste o Detector Óptico de Fumo FAD-O420 (D) com um
aerossol de teste adequado.
7. Assim que o detector for verificado, volte a colocar a
tampa, retire os ímanes e defina o detector para o modo
de funcionamento programado, actuando no painel de
incêndio.
F.01U.033.733 | 5.0 | 2011.11 Manual de instalação Bosch Sicherheitssysteme GmbH

Detector óptico de fumo para
Dados técnicos | pt 187
7 Dados técnicos
FAD-420-HS-EN
Tensão de serviço 24 Vdc (15 Vdc a 33 Vdc)
Consumo de corrente máx. Aprox. 0,51 mA
(Aprox. 0,71 mA com Placa de
Relés FAD-RB-DIBT)
Velocidade do ar permitida 1,5 m/s a 20 m/s.
Classe de protecção em
IP30
conformidade com a norma CEI
60529
Normas de segurança CEI 60950 / EN 60950
Imunidade a interferências CEM EN 50130-4
Emissão de interferências CEM EN 61000-6-3
Temperatura de serviço permitida 0 °C a 50 °C
Temperatura de armazenamento
-20 °C a 60 °C
permitida
Humidade relativa Máx. 95 %, sem condensação
Material e cor da caixa:
– Parte inferior da caixa
Plástico reforçado com fibra, PPE +
PS (UL94-V1), cinzento
– Tampa da caixa
Plástico, PC (UL94-V2),
transparente
Dimensões (A x L x P) 16,5 cm x 39,5 cm x 11 cm
Peso:
– incluindo embalagem
Aprox. 2,0 kg
– FAD-420-HS-EN operacional
Aprox. 1,5 kg
FAD-RB-DIBT Placa de Relés
Carga de contacto máxima 2 A a 30 Vdc
Peso Aprox. 11 g
Bosch Sicherheitssysteme GmbH Manual de instalação F.01U.033.733 | 5.0 | 2011.11

Дымовой извещатель для
188 ru | Содержание
Содержание
1 Описание изделия 189
1.1 Комплект поставки 189
1.2 Дополнительное оборудование 190
2 Общий вид 191
3 Замечания по установке и размещению 192
3.1 Предварительные условия 192
3.2 Размещение 193
3.3 Положение корпуса 193
4Монтаж 194
4.1 Пробоотборная труба 194
4.2 Установка извещателя FAD-420-HS-EN 196
4.3 Установка релейной платы FAD-RB-DIBT 200
4.4 Установка дымового извещателя FAD-O420 200
5 Подключение 202
6 Настройки 203
6.1 Установка перемычек 203
6.2 Проверка воздушного потока 203
6.3 Проверка извещателя 204
7 Технические характеристики 205
F.01U.033.733 | 5.0 | 2011.11 Руководство по установке Bosch Sicherheitssysteme GmbH

Дымовой извещатель для
Описание изделия | ru 189
1 Описание изделия
Дымовой извещатель для вентиляционных каналов FAD-420-
HS-EN предназначен для обнаружения дыма в воздуховодах.
Он обеспечивает раннее обнаружение возгорания благодаря
компактной конструкции корпуса, пропускающего воздух из
вентиляционных каналов через извещатель, использующий
современную адресную технологию LSN
.
improved
Для увеличения эффективности работы в извещатель FAD-
420-HS-EN устанавливается специальный адаптированный
дымовой оптико-электронный извещатель типа FAD-O420.
При обнаружении дыма извещатель FAD-O420 посылает
сообщение на пожарную панель, которая затем отображает
тревожное сообщение и выполняет необходимые
запрограммированные действия (например, выключение
вентиляторов в вентиляционной системе).
В адресном шлейфе LSN improved извещатель FAD-420-HS-
EN с дымовым извещателем FAD-O420 определяется как
FAP-O420/FAD-O420.
В качестве дополнительного оборудования предлагается
релейная плата, которая облегчает активацию устройств
(например, вентиляторов или дымозадерживающих
клапанов) при помощи реле с переключающимися
контактами.
1.1 Комплект поставки
Кол-
Компонент
во
1 Корпус извещателя с коммутационной платой, монтажной базой
извещателя и крышкой
2 Винты 10-24 x 1" для крепления корпуса на вентиляционном
канале
2 Закладные гайки 10-24 для крепления корпуса на вентиляционном
канале
1 Пробоотборная труба D344-1.54 (0,46 м)
1 Вентиляционная труба
2 Фланцы крепления пробоотборной и вентиляционной труб
Bosch Sicherheitssysteme GmbH Руководство по установке F.01U.033.733 | 5.0 | 2011.11

Дымовой извещатель для
190 ru | Описание изделия
Кол-
Компонент
во
4 Винты 8-32 x 9/16" для установки фланцев крепления
2 Уплотнительные кольца из пористой резины
2 Воздушные фильтры для пробоотборной трубы и вентиляционной
трубы
1 Шаблон для сверления (самоклеящийся)
Общий вид изделия см. Страница 191
1.2 Дополнительное оборудование
– FAD-O420 Дымовой оптико-электронный извещатель
– D344-1.5 Пробоотборная труба (0,46 м)
– D344-3 Пробоотборная труба (0,91 м)
– D344-5 Пробоотборная труба (1,52 м)
– FAD-RB-DIBT Релейная плата
– FAA-420-RI Выносной индикатор (ВУОС)
Замечание. Подключение невозможно, если
установлена релейная плата FAD-RB-DIBT!
– Воздушные фильтры (20 шт.) для пробоотборной/
вентиляционной трубы D344-TF
F.01U.033.733 | 5.0 | 2011.11 Руководство по установке Bosch Sicherheitssysteme GmbH

Дымовой извещатель для
Общий вид | ru 191
2 Общий вид
№Описание
A Корпус извещателя для вентиляционных каналов
B Монтажная база для дымового извещателя FAD-O420
C Монтажный фланец вентиляционной трубы
D Монтажный фланец пробоотборной трубы
E Коммутационная плата
F Геркон для шунтирования тампер-контакта (x)
G Пробоотборная труба
H Вентиляционная труба
I 3-контактная клеммная колодка
J 2-контактная клеммная колодка
K Винты 8-32 x 9/16" для установки фланцев крепления (L)
L Фланцы крепления пробоотборной и вентиляционной труб
M Закладные гайки 10-24 для крепления корпуса на вентиляционном
канале
N Винты 10-24 x 1" для крепления корпуса на вентиляционном канале
Bosch Sicherheitssysteme GmbH Руководство по установке F.01U.033.733 | 5.0 | 2011.11

Дымовой извещатель для
192 ru | Замечания по установке и размещению
№Описание
O Воздушные фильтры для пробоотборной и вентиляционной труб
P Уплотнительные кольца из пористой резины
x Тампер-контакт для контроля несанкционированного вскрытия
корпуса
3 Замечания по установке и
размещению
№Описание
a Изгиб или другие
препятствия для
воздушного потока
b Не менее 3 x d
c Турбулентность из-за
изгиба (a)
d Ширина вентиляционного
канала
Рисунок 3.1 Типовое размещение
3.1 Предварительные условия
Дымовой извещатель для вентиляционных каналов FAD-420-
HS-EN предназначен для использования в воздуховодах со
скоростью потока от 1,5 м/с до 20 м/с.
Перед установкой проверьте характеристики
вентиляционной системы, чтобы убедиться в соблюдении
этих требований.
При возникновении сомнений используйте устройство для
измерения скорости воздушного потока в вентиляционном
канале.
F.01U.033.733 | 5.0 | 2011.11 Руководство по установке Bosch Sicherheitssysteme GmbH

Дымовой извещатель для
Замечания по установке и размещению | ru 193
3.2 Размещение
Не устанавливайте извещатель вблизи каналов с застойной
зоной воздушного потока или вблизи зон турбулентности.
Турбулентность обычно возникает вблизи соединительных
фланцев, ответвлений, сильных изгибов и длинных прямых
каналов.
Располагайте извещатель FAD-420-HS-EN на расстоянии, в
три или более раза превышающем ширину вентиляционного
канала [b ≥ 3 x d], от таких критических участков (см.
Рисунок 3.1).
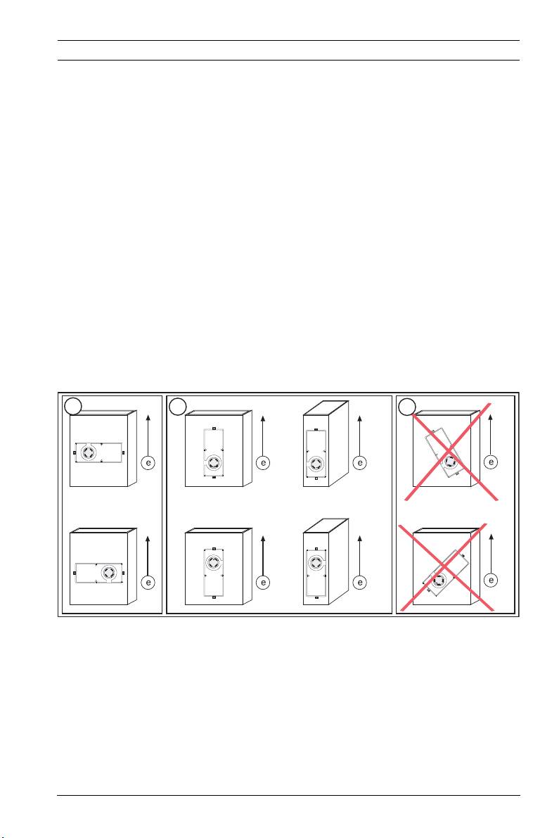
3.3 Положение корпуса
Извещатель FAD-420-HS-EN должен устанавливаться только в
вертикальном или горизонтальном положении (см.
Рисунок 3.2).
Рисунок 3.2 Положение корпуса на вентиляционном канале
Bosch Sicherheitssysteme GmbH Руководство по установке F.01U.033.733 | 5.0 | 2011.11
1
2
3
№Описание
e Направление воздушного
потока

Дымовой извещатель для
194 ru | Монтаж
4Монтаж
4.1 Пробоотборная труба
Пробоотборные трубы должны располагаться поперек всего
вентиляционного канала и поэтому выпускаются в трех
размерах:
– D344-1.5 (0,46 м)
– D344-3 (0,91 м)
– D344-5 (1,52 м)
№Описание
a Фиксирующий винт
b Концевая заглушка
Рисунок 4.1 Пробоотборная труба
Пробоотборные трубы могут комбинироваться для
использования в более широких вентиляционных каналах и
должны оканчиваться концевой заглушкой (см. Рисунок 4.1).
Каждая пробоотборная труба имеет ввинченный резьбовой
установочный штифт и концевую заглушку. При
комбинировании двух пробоотборных труб необходимо
снять концевую заглушку первой трубы и установочный
штифт и фиксирующий винт второй трубы!
Ограничения.
ВНИМАНИЕ!
Пробоотборная труба должна иметь не менее 12 открытых
заборных отверстий и иметь длину не менее 30 см.
Максимально допустимая длина составляет 3 м.
Для комбинирования двух пробоотборных труб выполните
следующие действия.
1. Снимите концевую заглушку с первой пробоотборной
трубы.
2. Выверните установочный штифт и фиксирующий винт
на второй пробоотборной трубе.
3. Соедините пробоотборные трубы.
F.01U.033.733 | 5.0 | 2011.11 Руководство по установке Bosch Sicherheitssysteme GmbH

Дымовой извещатель для
Монтаж | ru 195
4. Совместите отверстия пробоотборных труб и вверните
фиксирующие винты.
5. Вставьте концевую заглушку.
Пример. Требуется установить пробоотборную трубу длиной
2,13 м.
Соедините пробоотборные трубы D344-3 (0,91 м) и D344-5
(1,52 м). Затем укоротите трубу D344-5 на 30 см и вставьте
концевую заглушку.
№Описание
c От 2,5см до 5см
Рисунок 4.2 Установка пробоотборной
трубы
Пробоотборные трубы длиной более 90 см должны
упираться в вентиляционный канал.
Упорное отверстие в вентиляционном канале должно
располагаться на расстоянии от 2,5 см до 5 см ниже
входного отверстия, чтобы обеспечить слив конденсата (см.
Рисунок 4.2).
Загерметизируйте зазор между вентиляционным каналом и
пробоотборной трубой.
№Описание
d Закройте эти отверстия
клейкой лентой для
герметизации
Рисунок 4.3 Закрывание заборных
воздуховодов
отверстий
Если пробоотборная труба D344-1.5 устанавливается в
воздуховоды шириной 30–45 см, следует закрыть некоторые
из 19 заборных отверстий. В случае вентиляционных
каналов шириной 45 см должны быть закрыты 6 отверстий
(см. Рисунок 4.3).
Bosch Sicherheitssysteme GmbH Руководство по установке F.01U.033.733 | 5.0 | 2011.11

Дымовой извещатель для
196 ru | Монтаж
4.2 Установка извещателя FAD-420-HS-EN
1. Выньте из коробки прилагаемый самоклеящийся
шаблон для сверления (см. Рисунок 4.4) и отделите
защитный слой с задней поверхности.
№Описание
a Отверстия диам. 44,5 мм
для пробоотборной и
вентиляционной трубы
b Отверстия диам. 9,5 мм для
крепления корпуса
Рисунок 4.4 Шаблон для сверления
2. Наложите и приклейте шаблон для сверления в
выбранном месте на вентиляционном канале (см.
Рисунок 4.5).
3. Просверлите два отверстия диам. 9,5 мм в
вентиляционном канале для двух закладных гаек для
крепления корпуса и просверлите отверстия диам. 44,5
мм для пробоотборной трубы и вентиляционной трубы.
4. Отделите шаблон для сверления, зачистите острые края
и удалите отходы и грязь.
№Описание
c Вентиляционный канал
d Шаблон для сверления
Рисунок 4.5 Положение шаблона для
сверления
5. Вставьте закладные гайки 10-24 (см. Рисунок 4.6) в два
отверстия ? 9,5 мм.
F.01U.033.733 | 5.0 | 2011.11 Руководство по установке Bosch Sicherheitssysteme GmbH

Дымовой извещатель для
Монтаж | ru 197
6. Вверните винты 10-24 x 1" в закладные гайки и затяните
их вручную. Это обеспечит надежную фиксацию
закладных гаек в вентиляционном канале.
Можно придерживать закладные гайки плоскогубцами,
чтобы они не проворачивались во время вкручивания
винтов.
7. Теперь выверните оба винта.
Рисунок 4.6 Закладные гайки 10-24
8. Наденьте уплотнительные кольца из пористой резины на
задней поверхности извещателя FAD-420-HS-EN на
монтажные фланцы пробоотборной и вентиляционной
труб (см. Рисунок 4.7).
№Описание
e Монтажный фланец
пробоотборной трубы
f Монтажный фланец
вентиляционной трубы
g Уплотнительные кольца из
пористой резины
Рисунок 4.7 Уплотнительные кольца из
пористой резины
9. Установите извещатель FAD-420-HS-EN в
вентиляционный канал и закрепите его, ввернув винты
10-24 x 1" в закладные гайки (см. Рисунок 4.8).
Не затягивайте винты слишком сильно. Слишком
сильное затягивание винтов может привести к
деформации стенок вентиляционного канала.
Bosch Sicherheitssysteme GmbH Руководство по установке F.01U.033.733 | 5.0 | 2011.11

Дымовой извещатель для
198 ru | Монтаж
№Описание
h Вентиляционный канал
iКорпус извещателя
k Винты 10-24 x 1"
Рисунок 4.8 Установка корпуса
10. Выньте из коробки вентиляционную и пробоотборную
трубы. Проверьте наличие концевой заглушки на конце
пробоотборной трубы (см. Рисунок 4.9).
№Описание
l Вентиляционная труба
m Вентиляционная труба
должна быть открыта с
Рисунок 4.9 Пробоотборная и
обоих концов!
вентиляционная трубы
n Пробоотборная труба
o Концевая заглушка должна
быть вставлена!
11. При установке пробоотборной трубы следует учитывать
направление воздушного потока. Заборные отверстия
должны быть обращены навстречу воздушному потоку
(см. Рисунок 4.10).
№Описание
p Направление воздушного
потока
r Пробоотборная труба
s Заборные отверстия
Рисунок 4.10 Направление воздушного
потока
12. Если извещатель установлен, как показано в п. 2 на
Рисунок 3.2, то вентиляционная труба должна быть
установлена после пробоотборной трубы (см.
Рисунок 4.11).
F.01U.033.733 | 5.0 | 2011.11 Руководство по установке Bosch Sicherheitssysteme GmbH

Дымовой извещатель для
Монтаж | ru 199
№Описание
p Направление воздушного
потока
r Пробоотборная труба
t Вентиляционная труба
Рисунок 4.11 Положение
вентиляционной и пробоотборной труб
13. Вставьте пробоотборную и вентиляционную трубы во
фланцы крепления и убедитесь, что установочные
штифты совмещены с соответствующими углублениями.
Заборные отверстия должны быть обращены навстречу
воздушному потоку! Установите фланцы крепления и
закрепите их с помощью четырех винтов 8-32 x 9/16".
Затяните винты вручную.
№Описание
r Пробоотборная труба
t Вентиляционная труба
u Фланцы крепления
Рисунок 4.12 Установка фланцев
крепления
14. Установите воздушные фильтры на концы
пробоотборной и вентиляционной труб (см.
Рисунок 4.13).
15. Затем визуально проверьте правильность выполнения
установки.
№Описание
r Пробоотборная труба
t Вентиляционная труба
v Воздушный фильтр
Рисунок 4.13 Воздушные фильтры
пробоотборной и вентиляционной труб
Bosch Sicherheitssysteme GmbH Руководство по установке F.01U.033.733 | 5.0 | 2011.11

Дымовой извещатель для
200 ru | Монтаж
4.3 Установка релейной платы FAD-RB-DIBT
ЗАМЕЧАНИЕ!
Дополнительная релейная плата FAD-RB-DIBT может
использоваться для активации дополнительных устройств
(например, вентиляторов, систем управления дверьми или
внешних устройств индикации).
1. Разместите релейную плату точно над контактными
разъемами коммутационной платы.
Расположите распорные болты релейной платы точно
над отверстиями коммутационной платы (см.
Рисунок 4.14).
2. Надавите на релейную плату равномерно со всех
четырех углов, пока распорные болты не
зафиксируются в отверстиях коммутационной платы с
характерным щелчком.
№Описание
w Релейная плата FAD-RB-
DIBT
x Коммутационная плата
извещателя FAD-420-HS-EN
Рисунок 4.14 Установка релейной платы
4.4 Установка дымового извещателя FAD-
O420
1. Вставьте дымовой извещатель FAD-O420 в монтажную
базу извещателя (см. Рисунок 4.15).
Извещатель вставляется в базу только в определенном
положении!
F.01U.033.733 | 5.0 | 2011.11 Руководство по установке Bosch Sicherheitssysteme GmbH

