Bosch GTL 3 Professional – page 17
Manual for Bosch GTL 3 Professional

OBJ_BUCH-828-001.book Page 321 Wednesday, October 15, 2008 3:12 PM
ภาษาไทย | 321
ข้อมูลทางเทคนิค
เลเซอร์ทำระดับแผ่นกระเบื้อง GTL 3
Professional
หมายเลขสินค้า 3 601 K15 200
ย่านการทำงาน (ใช้แผ่นเป้าหมายเลเซอร์หรือใช้แผ่นเพดาน)
20 ม.
1)
ความแม่นยำของการวัดมุม ± 0.2 มม./ม.
2)
อุณหภูมิปฏิบัติงาน – 10 °C ... +50 °C
อุณหภูมิเก็บรักษา – 20 °C ... +70 °C
ความชื้นสัมพัทธ์ สูงสุด 90 %
ระดับเลเซอร์
2
ชนิดเลเซอร์
635 nm, <1 mW
C
6
1
แบตเตอรี่
4x1.5โวลท์ LR6 (AA)
ระยะเวลาทำงาน
–ใช้เส้นเลเซอร์ 2 เส้น
18 ชั่วโมง
–ใช้เส้นเลเซอร์ 3 เส้น
12 ชั่วโมง
ปิดสวิทช์อัตโนมัติ หลังประมาณ
30 นาที
น้ำหนักตามระเบียบการ-EPTA-Procedure 01/2003
0.5 กก.
ขนาด
156 x 102 x 98 มม.
ระดับการคุ้มกัน
IP 54 (ป้องกันฝุ่นและน้ำกระเด็นเปียก)
1) ย่านการทำงานอาจลดลงหากมีสภาวะแวดล้อมที่ไม่เหมาะสม (ต.ย. เช่น แสงอาทิตย์ส่องโดยตรง)
2) ความแม่นยำของการวัดมุมระหว่างเส้นเลเซอร์ 45
° และเส้นเลเซอร์ 90° สูงสุดคือ ± 0.4 มม./ม.
เครื่องแต่ละเครื่องอาจมีชื่อทางการค้าแตกต่างกัน ดังนั้นกรุณาสังเกตหมายเลขสินค้าบนแผ่นป้ายรุ่นของเครื่องมือวัดของท่าน
เครื่องมือวัดนี้มีหมายเลขเครื่อง 5 บนแผ่นป้ายรุ่น
Bosch Power Tools 1 609 929 S09 | (15.10.08)

OBJ_BUCH-828-001.book Page 322 Wednesday, October 15, 2008 3:12 PM
322 | ภาษาไทย
การประกอบ
อุณหภูมิรอบด้านก่อนใช้เครื่องทำงาน ในกรณีที่ได้รับ
อุณหภูมิที่สูงมาก หรือรับอุณหภู
มิที่เปลี่ยนแปลง
การใส่/การเปลี่ยนแบตเตอรี่
มาก เครื่องมือวัดอาจมีความแม่นยำน้อยลง
ขอแนะนำให้ใช้แบตเตอรี่แบบอัลคาไลน์แมงกานีสกับเครื่องมือวั
f หลีกเลี่ยงอย่าให้เครื่องมือวัดตกหล่นหรือถูก
ดนี้
กระทบอย่างแรง หากเครื่องมือวัดถูกกระทบจากปัจจัย
แวดล้อมอย่างแรง ท่านควรตรวจสอบความแม่นยำของ
เมื่อต้องการเปิดฝาแบตเตอรี่ 6 ให้กดบนตัวล็อคฝาแบตเตอรี่
เครื่องมือวัดทุกครั้งก่อนทำงานของท่านต่อไป
7 และพับฝาแบตเตอรี่ขึ้น ใส่แบตเตอรี่เข้าไป ขณะใส่ต้องดูให้
(ดู "ความแม่นยำของการวัดมุม" หน้า 323)
ขั้วแบตเตอรี่อยู่ในตำแหน่งที่ถูกต้องตามที่กำหนดไว้ที่ช่องใส่
แบตเตอรี่
การเปิดและปิดเครื่อง
เมื่อสัญลักษณ์สถานะของแบตเตอรี่ 8 กะพริบขึ้นแสดงว่า
เปิดเครื่องมือวัดทำงานโดยกดปุ่มเปิด-ปิด 3 สั้นๆ หนึ่งครั้ง
แบตเตอรี่อ่อน เมื่อสัญลักษณ์สถานะของแบตเตอรี่กะพริบขึ้น
ทันทีที่เปิดสวิทช์ เครื่องมือวัดจะฉายเส้นเลเซอร์
สามเส้น 0°,
เป็นครั้งแรก เครื่องมือวัดจะยังคงสามารถทำงานได้นาน
45
° และ 90° จากช่องทางออกลำแสงเลเซอร์ 1 นอกจากนี้
ประมาณ 2 ช.ม.
สัญลักษณ์สถานะของแบตเตอรี่ 8 จะติดขึ้นนาน 3 วินาที
เมื่อสัญลั
กษณ์สถานะของแบตเตอรี่ 8 ติดขึ้นตลอดเวลา ไม่
f อย่าส่องลำแสงเลเซอร์ไปยังคนหรือสัตว์ และอย่า
สามารถทำการวัดต่อไปได้อีก หลังจากนั้นไม่นานเครื่องมือวัดจะ
จ้องมองลำแสงเลเซอร์แม้จะอยู่ในระยะไกล
ปิดสวิทช์โดยอัตโนมัติ
เมื่อกดปุ่มเปิด-ปิด 3 เป็นครั้งที่สอง เครื่องมือวัดจะสลับจาก
เปลี่ยนแบตเตอรี่ทุกก้อนพร้อมกันเสมอ โดยใช้แบตเตอรี่ยี่ห้อ
การทำงานแบบ 3-เส้น มาเป็นการทำงานแบบ 2-เส้น: เฉพาะ
เดียวกันทั้งหมดและมีความจุเท่ากันทุกก้อน
เส้นเลเซอร์ 0
° และ 90° จะถูกฉายออกมา
f เมื่อไม่ใช้งานเป็นเวลานาน ให้นำแบตเตอรี่ออกจาก
ปิดเครื่องมือวัดโดยกดปุ่มเปิด-ปิด 3 เป็นครั้งที่สาม
เครื่องมือวัด หากใส่แบตเตอรี่ทิ้งไว้นานๆ แบตเตอรี่จะเกิด
การยกเลิกการปิดอัตโนมัติ
การกัดกร่อนและปล่อยประจุไฟฟ้าออกมา
เครื่องมือวัดจะปิดสวิทช์โดยอัตโนมัติหลังใช้งานไป 30 นาที
เมื่อต้องการยกเลิกการปิดสวิทช์โดยอัตโนมัติ ในขณะที่ท่านเปิด
การปฏิบัติงาน
สวิทช์เครื่องมือวัดให้กดปุ่มเปิด-ปิด 3 นาน 3 วินาที เมื่อการปิด
สวิทช์โดยอัตโนมัติถูกยกเลิก หลังเปิดสวิทช์เส้นเลเซอร์จะ
การเริ่มต้นใช้งาน
กะพริบขึ้นสั้นๆ เพ
ื่อยืนยันการยกเลิก
f ป้องกันไม่ให้เครื่องมือวัดได้รับความชื้นและโดน
f อย่าเปิดเครื่องมือวัดทิ้งไว้โดยไม่ควบคุมดูแล และให้
แสงแดดส่องโดยตรง
ปิดเครื่องมือวัดหลังใช้งาน ลำแสงเลเซอร์อาจทำให้
f อย่าให้เครื่องมือวัดได้รับอุณหภูมิที่สูงมาก หรือรับ
บุคคลอื่นตาพร่าได้
อุณหภูมิที่เปลี่ยนแปลงมาก ตัวอย่าง เข่น อย่าปล่อย
เมื่อต้องการเรียกใช้งานการปิดสวิทช์โดยอัตโนมัติ ให้ปิดสวิทช์
เครื่องไว้ในรถยนต์เป็นเวลานาน ในกรณีที่อุณหภูมิมีการ
เครื่องมือวัดและเปิดสวิทช์อีกครั้งโดยกดปุ่มเปิด-ปิด 3 สั้นๆ หลัง
เปลี่ยนแปลงมาก ต้องปล่อยให้เครื่องมือวัดปรับเข้ากับ
เปิดสวิทช์เส้นเลเซอร์จะไม่กะพริบ
1 609 929 S09 | (15.10.08) Bosch Power Tools

OBJ_BUCH-828-001.book Page 323 Wednesday, October 15, 2008 3:12 PM
ภาษาไทย | 323
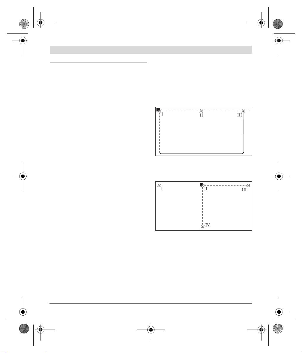
การตรวจสอบความแม่นยำของการวัดมุมระหว่างเส้น
ความแม่นยำของการวัดมุม
เลเซอร์ 0
° และ 90°
ผลกระทบต่อความแม่นยำ
– วางเครื่องมือวัดไว้ที่มุมใดมุมหนึ่งของพื้นผิววัด เปิดสวิทช์
อุณหภูมิรอบด้านมีผลต่อความแม่นยำมากที่สุด โดยเฉพาะ
เครื่องมือวัดและปรับแนวเครื่องในลักษณะให้เส้นเลเซอร์
อย่างยิ่งความแตกต่างของอุณหภูมิจากพื้นขึ้นไปที่ระดับสูงกว่า
0
° วิ่งเทียบไปตามด้านยาวของพื้นผิววัด และให้เส้นเลเซอร์
สามารถเบี่ยงเบนลำแสงเลเซอร์ได้
90
° วิ่งเทียบไปตามด้านสั้นของพื้นผิววัด
ดังนั้นให้วางเครื่องมือวัดไว้ใกล้พื้นผิวงานให้มากที่สุด และยึด
เครื่องโดยให้ด้านใต้ขนานกับพื้นผิวงานให้มากที่สุด
นอกจากผลกระทบจากภายนอกแล้ว ผลกระทบโดยเฉพาะต่อ
ตัวเครื่อง (เช่น ถูกกระแทกอย่างแรงหรือตกพื้น) สามารถทำให้
5 m
เกิดความเบี่ยงเบนได้ ดังนั้นต้องตรวจสอบความแม่นยำของ
เครื่องมือวัดทุกครั้งก่อนเริ่มทำงาน
10 m
การตรวจสอบความแม่นยำของการวัดมุ
ม
– ทำเครื่องหมายที่จุดตัดของเส้นเลเซอร์บนพื้น (จุด
I) ทำ
สำหรับการตรวจสอบนี้ ต้องใช้พื้นผิวว่างเปล่าประมาณ
เครื่องหมายที่จุดกลางของเส้นเลเซอร์ 0
° ที่ระยะห่าง 5 ม.
10 x 5 ม. บนพื้นที่เรียบและมั่นคง
(จุด
II) และที่ระยะห่าง 10 ม. (จุด III) ด้วยเช่นกัน
หากเครื่องมือวัดมีความเบี่ยงเบนมากกว่าความเบี่ยงเบนสูงสุด
ในขณะทำการทดสอบครั้งใดครั้งหนึ่ง กรุณาส่งเครื่องให้ศูนย์
บริการหลังการขาย บ๊อช ซ่อมแซม
– วางเครื่องมือวัด (โดยไม่หมุนเครื่อง) ที่ระยะห่าง 5 ม. ใน
ลักษณะให้จุดตัดของเส้นเลเซอร์อยู่บนจุดที่ทำเครื่องหมาย
ไว้แล้ว
II และให้เส้นเลเซอร์ 0° วิ่งผ่านจุด III
ทำเครื่องหมายที่จุดกลางของเส้นเลเซอร์ 90° ที่ระยะห่าง
5 ม. (จุด
IV)
Bosch Power Tools 1 609 929 S09 | (15.10.08)

OBJ_BUCH-828-001.book Page 324 Wednesday, October 15, 2008 3:12 PM
324 | ภาษาไทย
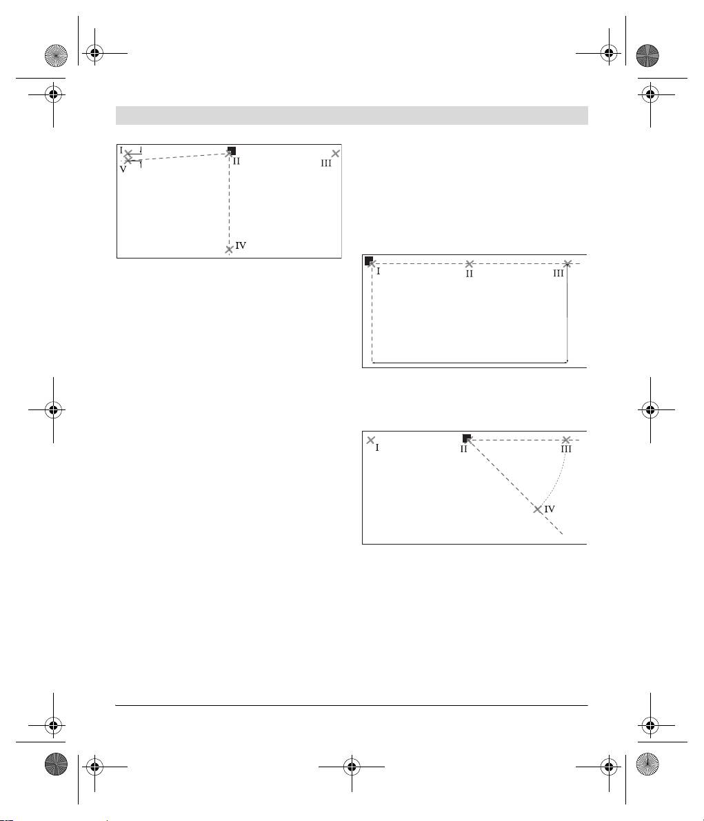
การตรวจสอบความแม่นยำของการวัดมุมระหว่างเส้น
d
เลเซอร์ 0
° และ 45°
– วางเครื่องมือวัดไว้ที่มุมใดมุมหนึ่งของพื้นผิววัด เปิดสวิทช์
เครื่องมือวัดและปรับแนวเครื่องในลักษณะให้เส้นเลเซอร์
0
° วิ่งเทียบไปตามด้านยาวของพื้นผิววัด และให้เส้นเลเซอร์
90
° วิ่งเทียบไปตามด้านสั้นของพื้นผิววัด
– หมุนเครื่องมือวัดไป 90° ในลักษณะให้จุดกลางของเส้น
เลเซอร์ 0
° วิ่งผ่านจุด IV
จุดตัดของเส้นเลเซอร์ยังต้องอยู่บนจุด II
– ทำเครื่องหมายที่จุดกลางของเส้นเลเซอร์ 90° ที่ระยะ
5 m
ห่าง 5 ม. เป็นจุด
V ให้ใกล้ที่สุดข้างๆ จุด I
– ความต่าง d ของจุดทั้งสอง V และ I แสดงความเบี่ยงเบน
10 m
ของเส้นเลเซอร์ 0
° และเส้นเลเซอร์ 90° จากมุมฉาก
– ทำเครื่องหมายที่จุดตัดของเส้นเลเซอร์บนพื้น (จุด
I) ทำ
ที่ความยาววัด 2x5ม.=10ม. ความเบี่ยงเบนสูงสุดที่อนุญาต
เครื่องหมายที่จุดกลางของเส้นเลเซอร์ 0
° ที่ระยะห่าง 5 ม.
คือ:
(จุด
II) และที่ระยะห่าง 10 ม. (จุด III) ด้วยเช่นกัน
10 ม.x
± 0.2 มม./ม.=± 2 มม.
ดังนั้นความต่างสูงสุด d ระหว่างจุด
I และ V ต้องมีค่าเท่ากับ
2 มม. หรือน้อยกว่า
– วางเครื่องมือวัด (โดยไม่หมุนเครื่อง) ที่ระยะห่าง 5 ม. ใน
ลักษณะให้จุดตัดของเส้นเลเซอร์อยู่บนจุดที่ทำเครื่องหมาย
ไว้แล้ว
II และให้เส้นเลเซอร์ 0° วิ่งผ่านจุด III
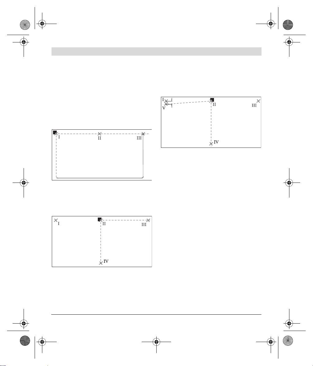
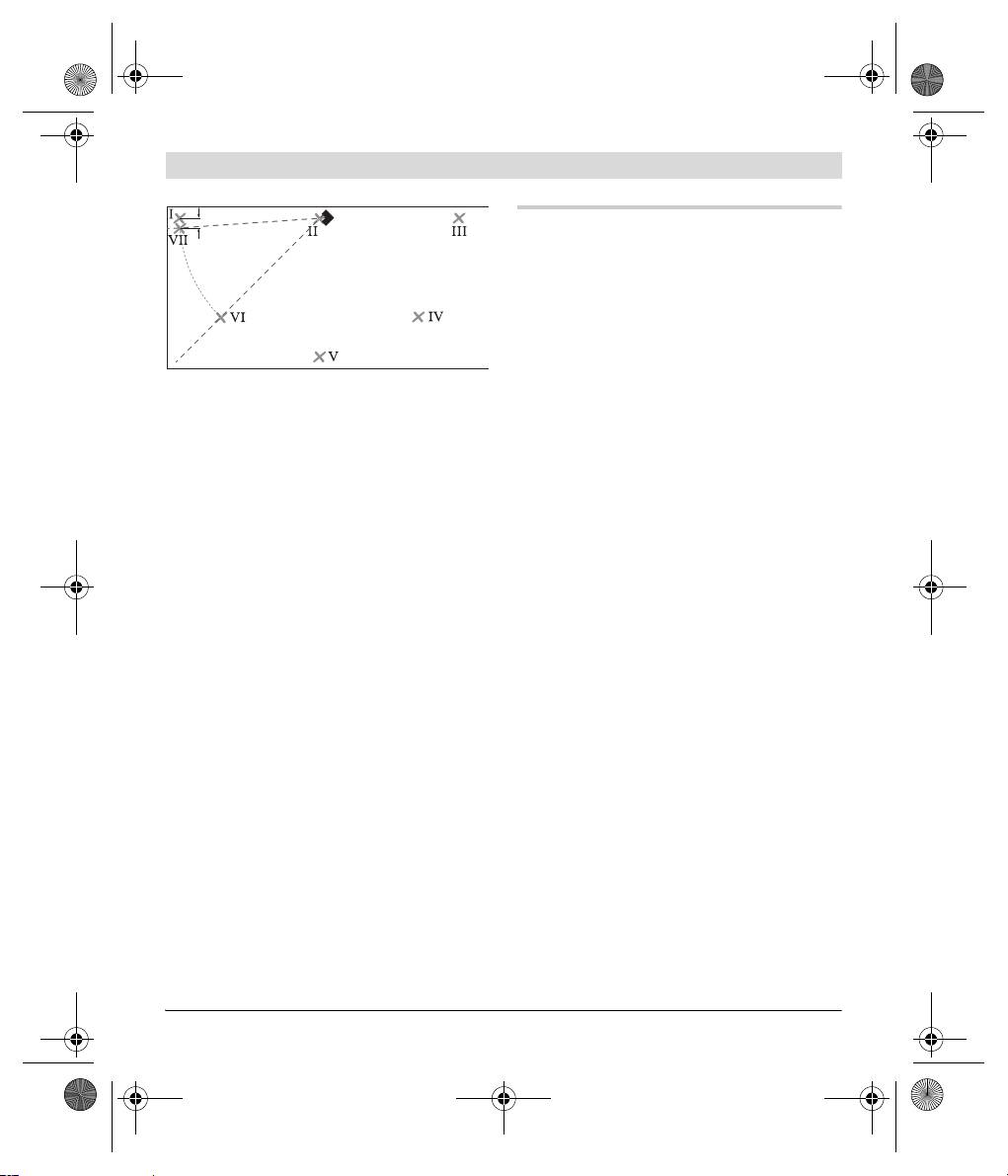
ทำเครื่องหมายที่เส้นเลเซอร์ 45° ที่ระยะห่าง 5 ม. (จุด IV)
1 609 929 S09 | (15.10.08) Bosch Power Tools

OBJ_BUCH-828-001.book Page 325 Wednesday, October 15, 2008 3:12 PM
ภาษาไทย | 325
d
– หมุนเครื่องมือวัดไป 45° ในลักษณะให้จุดกลางของเส้น
– หมุนเครื่องมือวัดไป 45° ในลักษณะให้จุดกลางของเส้น
เลเซอร์ 0
° วิ่งผ่านจุด IV
เลเซอร์ 0
° วิ่งผ่านจุด VI
จุดตัดของเส้นเลเซอร์ยังต้องอยู่บนจุด II
จุดตัดของเส้นเลเซอร์ยังต้องอยู่บนจุด II
ทำเครื่องหมายที่เส้นเลเซอร์ 45° ที่ระยะห่าง 5 ม. เป็นจุด V
– ทำเครื่องหมายที่จุดกลางของเส้นเลเซอร์ 45° ที่ระยะห่าง
5 ม. เป็นจุด
VII ให้ใกล้ที่สุดข้างๆ จุด I
– ความต่าง d ของจุดทั้งสอง VII และ I แสดงความ
เบี่ยงเบนของเส้นเลเซอร์ 0
° และเส้นเลเซอร์ 45°
ที่ความยาววัด 4x5ม.=20ม. ความเบี่ยงเบนสูงสุดที่อนุญาต
คือ:
20 ม.x
± 0.4 มม./ม.* = ± 8 มม.
ดังนั้นความต่างสูงสุด d ระหว่างจุด
I และ VII ต้องมีค่าเท่ากับ
– หมุนเครื่องมือวัดไป 45° ในลักษณะให้จุดกลางของเส้น
8 มม. หรือน้อยกว่า
เลเซอร์ 0
° วิ่งผ่านจุด V
* ค่า
± 0.4 มม./ม. เป็นผลจากความแม่นยำของการวัด
จุดตัดของเส้นเลเซอร์ยังต้องอยู่บนจุด II
มุม
± 0.2 มม./ม. บวกความไม่แน่นอนที่อาจเกิดขึ้นได้ขณะหมุน
ทำเครื่องหมายที่เส้นเลเซอร์ 45° ที่ระยะห่าง 5 ม. เป็นจุด VI
0.2 มม./ม.
Bosch Power Tools 1 609 929 S09 | (15.10.08)

OBJ_BUCH-828-001.book Page 326 Wednesday, October 15, 2008 3:12 PM
326 | ภาษาไทย
การทำงานกับแผ่นเป้าหมายเลเซอร์/แผ่นวัดเพดาน
ข้อแนะนำในการทำงาน
(ดูภาพประกอบ A)
f วางเครื่องมือวัดราบบนพื้นหรือยึดเครื่องราบบนผนัง
แผ่นเป้าหมายเลเซอร์ 9 หรือแผ่นวัดเพดาน 14 ช่วยให้มองเห็น
เสมอ ในกรณีที่วางหรือยึดไม่ราบเรียบ มุมจะเล็กกว่า
ลำแสงเลเซอร์ได้ดียิ่งขึ้นในสภาวะที่ไม่เหมาะสมและในระยะ
45
° และ 90°
ทางไกลๆ
f ทำเครื่องหมายตรงกลางเส้นเลเซอร์เสมอ ความกว้าง
ส่วนสะท้อนกลับของแผ่นเป้าหมายเลเซอร์ 9 ช่วยให้มองเห็น
ของเส้นเลเซอร์เปลี่ยนไปตามระยะทาง
เส้นเลเซอร์ได้ดียิ่งขึ้น เนื่องจากมีส่วนโปร่งใส จึงสามารถ
f เมื่อเครื่องมือวัดตั้งอยู่บนพื้น อย่าฉายเส้นเลเซอร์
มองเห็นเส้นเลเซอร์จากทางด้านหลั
งของแผ่นเป้าหมายเลเซอร์
ไปยังผนังเพื่อปรับแนวอย่างเด็ดขาด เครื่องมือวัดไม่ทำ
ได้ด้วย
ระดับโดยอัตโนมัติ ดังนั้นเส้นบนผนังจะผิดเพี้ยน
แผ่นวัดเพดาน 14 (อุปกรณ์ประกอบ) ใช้สำหรับแสดงเส้นเลเซอร์
f จุดอ้างอิงสำหรับการปรับแนวของแผ่นกระเบื้องคือ
ได้ด้วย แผ่นนี้มีลักษณะเหมือนกับแผ่นเป้าหมายเลเซอร์ คือมี
จุดตัด P ของเส้นเลเซอร์ที่อยู่หน้าเครื่องมือวัด
ส่วนสะท้อนกลับและส่วนโปร่งใส
พอดี เมื่อต้องการทำรอยเส้นมุม ต้องหมุนเครื่องมือ
วัดที่จุดตัดนี้ ดูภาพประกอบ F
แว่นสำหรับมองแสงเลเซอร์ (อุปกรณ์ประกอบ)
f วางเครื่องมือวั
ดบนแผ่นปรับระดับที่สะอาด
แว่นสำหรับมองแสงเลเซอร์ช่วยกรองแสงสว่างรอบด้านออกไป
10 เท่านั้น หากแผ่นปรับระดับมีพื้นผิวที่สกปรกและไม่
ทำให้ตามองเห็นแสงสีแดงของเลเซอร์ได้ชัดเจนขึ้น
เสมอกัน จะไม่สามารถตั้งเครื่องมือวัดให้ราบเรียบ
ได้ และจะทำให้ได้ผลการวัดที่ผิดพลาด
f อย่าใช้แว่นสำหรับมองแสงเลเซอร์เป็นแว่นนิรภัย แว่น
สำหรับมองแสงเลเซอร์ใช้สำหรับมองลำแสงเลเซอร์ให้เห็น
การทำงานกับแผ่นปรับระดับ (ดูภาพประกอบ D
–E)
ชัดเจนขึ้น แต่ไม่ได้ช่วยป้
องกันรังสีจากลำแสงเลเซอร์
เมื่อใช้แผ่นปรับระดับ 10 ท่านสามารถวางเครื่องมือวัดราบบน
f อย่าใช้แว่นสำหรับมองแสงเลเซอร์เป็นแว่นกันแดด
พื้นที่ไม่เสมอกันหรือไม่มั่นคงได้
หรือใส่ขับรถยนต์ แว่นสำหรับมองแสงเลเซอร์ไม่สามารถ
แผ่นปรับระดับ 10 สามารถใช้เป็นที่แขวนเครื่องมือวัดบนผนังได้
ป้องกันรังสีอัลตราไวโอเลต (UV) ได้อย่างสมบูรณ์ และยัง
ด้วย ยึดแผ่นปรับระดับบนผนังหรือพื้นผิวลาดเอียงไม่ให้ลื่นหลุด
ทำให้มองเห็นแสงสีไม่ชัดเจน
โดยใช้สกรู (ที่จำหน่ายทั่วไป) เป็นต้น วางแผ่นปรับระดับให้ราบ
บนพื้นผิวโดยใช้ระดับน้ำช่วย
การวางเครื่องมือวัดบนแผ่นปรับระดับ: จับเครื่องมือวัดโดย
ให้แม่เหล็ก 4
บนด้านใต้วางลงบนแผ่นปรับระดับ 10 เส้นตาราง
ที่อยู่ด้านบนของแผ่นปรับระดับช่วยให้วางเครื่องมือวัดได้อย่าง
เที่ยงตรง เมื่อต้องการทำรอยเส้นมุม 90
° หรือ 45° ให้วางแผ่น
ปรับระดับที่ขอบอ้างอิงหรือส่วนยื่นจากผนัง และวางเครื่องมือวั
ดดังแสดงไว้ที่ด้านบนของแผ่นปรับระดับ
1 609 929 S09 | (15.10.08) Bosch Power Tools

OBJ_BUCH-828-001.book Page 327 Wednesday, October 15, 2008 3:12 PM
ภาษาไทย | 327
ตัวอย่างการปฏิบัติงาน
การบำรุงรักษาและการบริการ
การตรวจสอบมุมฉาก (ดูภาพประกอบ A)
การบำรุงรักษาและการทำความสะอาด
วางเครื่องมือวัดไว้ที่มุมใดมุมหนึ่งของห้อง และวางเครื่องใน
เก็บรักษาและขนย้ายเครื่องมือวัดเฉพาะเมื่อบรรจุอยู่ภายใน
ลักษณะให้เส้นเลเซอร์ 0
° วิ่งขนานไปกับเส้น
กระเป๋าใส่เครื่องมือวัดที่จัดมาให้เท่านั้น
อ้างอิง (ต.ย. เช่น ผนัง) วัดระยะห่างระหว่างเส้นเลเซอร์และเส้น
รักษาเครื่องมือวัดให้สะอาดตลอดเวลา
อ้างอิงที่เครื่องมือวัดพอดีและที่ระยะห่างที่สุดที่เป็นไปได้จาก
เครื่องมือวัด ปรับแนวเครื่องมือวัดในลักษณะให้ระยะห่างทั้งสอง
อย่าจุ่มเครื่องมือวัดลงในน้ำหรือของเหลวอื่นๆ
มีค่าเท่ากัน
เช็ดสิ่งสกปรกออกด้วยผ้านุ่มที่เปียกหมาดๆ ห้ามใช้สารทำ
จากนั้นให้วัดระยะห่างระหว่างเส้นเลเซอร์ 90
° และผนังที่
ความสะอาดหรือสารละลายใดๆ
ตำแหน่งต่างๆ กัน อย่างน้อยสองจุด หากระยะวัดไปยังเส้น
ทำความสะอาดพื้นผิวตรงช่องทางออกลำแสงเลเซอร์เป็นประจำ
เลเซอร์ 90
° มีค่าเท่ากัน แสดงว่าผนังตั้งเป็นมุมฉาก
และเอาใจใส่อย่าให้ขุยผ้าติด
การปูแผ่นกระเบื้องสี่เหลี่ยม (ดูภาพประกอบ B)
เครื่องมือวัดนี้ผ่านกรรมวิธีการผลิตและตรวจสอบอย่างละเอียด
ถี่ถ้วนมาแล้ว ถึงกระนั้น หากเครื่องเกิดขัดข้อง ต้องส่งเครื่องให้
วางเครื่องมือวัดไว้ที่มุมใดมุมหนึ่งในลักษณะให้เส้นเลเซอร์
ศูนย์บริการหลังการขายที
่ได้รับมอบหมายสำหรับเครื่องมือ
0
° วิ่งขนานกับผนังหนึ่งด้าน ปูกระเบื้องสี่เหลี่ยมแผ่นแรกที่
ไฟฟ้า บ๊อช ซ่อมแซม
จุดตัดของเส้นเลเซอร์ 0
° และ 90°
เมื่อต้องการสอบถามและสั่งซื้ออะไหล่ กรุณาแจ้งหมายเลข
การปูแบบทแยงมุม (ดูภาพประกอบ C)
สินค้า 10 หลักบนแผ่นป้ายรุ่นของเครื่องมือวัดทุกครั้ง
วางเครื่องมือวัดในลักษณะให้เส้นเลเซอร์ 45
° ทำรอยตรงร่องต่อ
ในกรณีซ่อมแซม ให้ส่งเครื่องมือวัดโดยบรรจุลงในกระเป๋าใส่
แบบทแยงมุมระหว่างแผ่นกระเบื้อง
เครื่องมือวัด 12
การปูแผ่นกระเบื้องในห้องครัวเล็ก (ดูภาพประกอบ D)
ในขั้นแรก ให้กำหนดความสูงของแถวแรกของแผ่นกระเบื้อง ยึด
เครื่องมือวัดกับแผ่นปรับระดับ 10 ในแนวดิ่งบนผนังในลักษณะ
ให้เส้นเลเซอร์ 90
° ทำรอยขอบล่างของแถวแรกของแผ่นกระเบื้อง
การปูจากขอบ (ดูภาพประกอบ E)
วางเครื่องมือวัดบนแผ่นปรับระดับ 10 ที่ขอบในลักษณะให้
ส่วนเว้าด้านข้าง 11 ของแผ่นปรับระดับอยู่ตรงขอบพอดี เส้น
เลเซอร์ 0
° ควรวิ่งขนานกับขอบหนึ่งด้าน ตอนนี้เส้นเลเซอร์
90
° ทำรอยแถวล่างของแผ่นกระเบื้อง
Bosch Power Tools 1 609 929 S09 | (15.10.08)

OBJ_BUCH-828-001.book Page 328 Wednesday, October 15, 2008 3:12 PM
328 | ภาษาไทย
ศูนย์บริการซ่อมและฝึกอบรม
การบริการหลังการขายและการให้คำแนะนำลูกค้า
ศูนย์บริการซ่อมและฝึกอบรมบ๊อช
ศูนย์บริการหลังการขายของเรายินดีตอบคำถามของท่านที่
2869 – 2869/1 ซอยบ้านกล้วย
เกี่ยวกับการบำรุงรักษาและการซ่อมแซมผลิตภัณฑ์รวมทั้งเรื่อง
ถนนพระรามที่ 4 (ใกล้ทางรถไฟสายปากน้ำเก่า)
อะไหล่ ภาพขยายและข้อมูลเกี่ยวกับอะไหล่ กรุณาดูใน:
พระโขนง
www.bosch-pt.com
กรุงเทพฯ 10110
แผนกให้คำปรึกษาลูกค้าของเราพร้อมให้คำแนะนำที่ดีที่สุด
ประเทศไทย
แก่ท่านในเรื่องการซื้อผลิตภัณฑ์ การใช้งานและการปรับแต่ง
โทรศัพท์ +66 (0)2 / 6 71 78 00 – 4
ผลิตภัณฑ์และอุปกรณ์ประกอบต่างๆ
โทรสาร +66 (0)2 / 2 49 42 96
ในกรณีประกัน ซ่อมแซม หรือซื้อชิ้นส่วนมาเปลี่ยน
โทรสาร +66 (0)2 / 249 5299
กรุณาติดต่อผู้ขายที่ได้รับแต่งตั้งเท่านั้น
ประเทศไทย
การกำจัดขยะ
สำนักงาน
เครื่องมือวัด อุปกรณ์ประกอบ และหีบห่อ ต้องนำไปแยกประเภท
บริษัท โรเบิร์ต บ๊
อช จำกัด
วัสดุเพื่อนำกลับมาใช้ใหม่โดยไม่ทำลายสภาพแวดล้อม
ชั้น 11 ตึกลิเบอร์ตี้ สแควร์
แพ็คแบตเตอรี่/แบตเตอรี่:
287 ถนนสีลม
กรุงเทพฯ 10500
อย่าทิ้งแพ็คแบตเตอรี่/แบตเตอรี่ลงในขยะบ้าน โยนลงน้ำ หรือ
โทรศัพท์ +66 (0)2 / 6 31 18 79 – 18 88 (10 หมายเลข)
โยนเข้ากองไฟ ต้องเก็บรวบรวมแพ็คแบตเตอรี่/แบตเตอรี่ และนำ
โทรสาร +66 (0)2 / 2 38 47 83
เข้าสู่กระบวนการนำกลับมาใช้ใหม่ หรือนำไปกำจัดในลักษณะที่
ไม่ทำลายสภาพแวดล้อม
ตู้ไปรษณีย์
บริษัท โรเบิร์ต บ๊อช จำกัด
ขอสงวนสิทธิ์ในการเปลี่ยนแปลงโดยไม่ต้องแจ้งล่วงหน้า
แผนกเครื่องมือไฟฟ้า
ตู้ ปณ. 20 54
กรุงเทพฯ 10501
ประเทศไทย
1 609 929 S09 | (15.10.08) Bosch Power Tools

OBJ_BUCH-828-001.book Page 329 Wednesday, October 15, 2008 3:12 PM
Bahasa Indonesia | 329
Petunjuk-Petunjuk untuk
Janganlah mengarahkan sinar
laser pada orang-orang lain
Keselamatan Kerja
atau binatang dan janganlah
Semua petunjuk-petunjuk harus
melihat ke sinar laser. Alat
dibaca, supaya penggunaan alat
pengukur ini menghasilkan
pengukur tidak membahayakan
sinar laser kelas 2 sesuai deng-
dan selalu aman. Janganlah
an peraturan IEC 60825-1.
menutupi atau menghapus label
Sinar ini bisa merusakkan mata.
pada alat pengukur tentang keselamatan
f Janganlah menggunakan kaca mata
kerja. SIMPANKAN PETUNJUK-PETUNJUK
untuk melihat sinar laser sebagai kaca
INI DENGAN SEKSAMA.
mata pelindung. Kaca mata ini
f Peringatan – jika digunakan sarana
berguna untuk melihat sinar laser dengan
penggunaan atau sarana penyetelan
lebih jelas, akan tetapi tidak melindungi
yang lain daripada yang disebutkan di
mata terhadap sinar laser.
sini atau dilakukan cara penggunaan
f Janganlah memakai kaca mata untuk
yang lain, bisa terjadi penyinaran yang
melihat sinar laser sebagai kaca mata
membahayakan.
hitam atau jika sedang mengendarai
f Alat pengukur dipasok dengan label
kendaraan. Kaca mata untuk melihat sinar
tentang keselamatan kerja dalam bahasa
laser tidak melindungi mata terhadap
Inggeris (pada gambar dari alat peng-
sinar ultra violet dan membuat mata tidak
ukur pada halaman bergambar ditandai
mengenali warna dengan baik.
dengan nomor 2).
f Biarkan alat pengukur ini direparasikan
oleh orang-orang yang ahli dan ber-
pengalaman saja dan hanya dengan
menggunakan suku cadang yang asli
bermerek Bosch. Dengan demikian
IEC 60825-1:2007-03
keselamatan kerja dengan alat pengukur
<1 mW, 635 nm
ini selalu terjamin.
f Janganlah membiarkan anak-anak
menggunakan alat pengukur dengan
f Sebelum Anda menggunakan alat peng-
sinar laser ini tanpa bimbingan. Tanpa
ukur untuk pertama kalinya, tempelkan
disengaja anak-anak bisa merusakkan
label tentang keselamatan kerja dalam
mata orang lain dengan sinar laser.
bahasa negara Anda yang ikut dipasok,
di atas label dalam bahasa Inggeris ini.
Bosch Power Tools 1 609 929 S09 | (15.10.08)

OBJ_BUCH-828-001.book Page 330 Wednesday, October 15, 2008 3:12 PM
330 | Bahasa Indonesia
Janganlah mendekatkan alat
pengukur dan pelat ukur
Bagian-bagian pada gambar
langit-langit 14 pada alat
Nomor-nomor dari bagian-bagian alat peng-
pemacu jantung (pacemaker).
ukur pada gambar sesuai dengan gambar alat
Magnet-magnet 4 yang berada
pengukur pada halaman bergambar.
pada sebelah bawah dari alat
1 Lubang pengedar sinar laser
pengukur serta magnet-magnet yang berada
pada pelat ukur langit-langit mengadakan
2 Label keselamatan kerja dengan laser
medan magnet yang bisa mengganggu fungsi
3 Tombol untuk menghidupkan dan
dari alat pemacu jantung.
mematikan
f Jauhkan alat pengukur dan pelat ukur
4 Magnet-magnet
langit-langit 14 dari media penyimpanan
5 Nomor model
data yang magnetis dan alat-alat yang
6 Tutup kotak baterai
peka magnet. Daya magnet dari magnet-
7 Penguncian tutup kotak baterai
magnet 4 yang berada pada sebelah
8 Simbol baterai
bawah dari alat pengukur serta magnet-
magnet yang berada pada pelat ukur
9 Reflektor (alat pemantulan) sinar laser
langit-langit bisa mengakibatkan data-
10 Pelat pedoman untuk mencocokkan arah
data hilang untuk selamanya.
pengukuran
11 Lekukan pada pelat pedoman untuk
mencocokkan arah pengukuran
Penjelasan tentang cara
12 Tas pelindung
13 Kaca mata untuk melihat sinar laser*
berfungsi
14 Pelat ukur langit-langit*
Bukakan halaman lipatan dengan gambar
*Aksesori yang ada pada gambar atau yang
dari alat pengukur dan biarkan halaman ini
dijelaskan, tidak termasuk pasokan standar dari
terbuka selama Anda membaca petunjuk-
alat pengukur. Semua aksesori yang ada bisa Anda
petunjuk untuk penggunaan.
lihat dalam program aksesori Bosch.
Penggunaan alat pengukur
Alat pengukur ini cocok untuk mengukur dan
memeriksa sudut siku-siku serta untuk
memasangkan ubin pada sudut 45° dan 90°.
1 609 929 S09 | (15.10.08) Bosch Power Tools

OBJ_BUCH-828-001.book Page 331 Wednesday, October 15, 2008 3:12 PM
Bahasa Indonesia | 331
Data teknis
Laser ubin GTL 3
Professional
Nomor model
3 601 K15 200
Jarak pengukuran (dengan reflektor sinar laser atau
dengan pelat ukur langit-langit)
20 m
1)
Ketelitian sudut ±0,2 mm/m
2)
Suhu kerja – 10 °C ... +50 °C
Suhu penyimpanan
– 20 °C ... +70 °C
Kelembaban udara relatif maks.
90 %
Kelas laser
2
Jenis laser
635 nm, <1 mW
C
6
1
Baterai
4x1,5VLR6(AA)
Kemampuan baterai pada penggunaan
– dengan 2 garis laser
18 h
– dengan 3 garis laser
12 h
Pemadaman otomatis setelah kira-kira
30 min
Berat sesuai dengan EPTA-Procedure 01/2003
0,5 kg
Ukuran
156 x 102 x 98 mm
Jenis keamanan
IP 54 (lindungan terhadap debu
dan air penyiraman)
1) Jarak pengukuran bisa berkurang, jika keadaan sekeliling tidak menguntungkan (misalnya sinar matahari
yang langsung).
2) Ketelitian sudut antara garis laser 45° dan garis laser 90° besarnya maksimal
±0,4 mm/m.
Perhatikanlah nomor model yang tercantum pada label tipe alat pengukur Anda, karena nama dagang dari
beberapa alat pengukur bisa berbeda.
Anda bisa mengidentifikasikan alat pengukur Anda dengan pasti, dengan nomor seri 5 pada label tipe.
Bosch Power Tools 1 609 929 S09 | (15.10.08)

OBJ_BUCH-828-001.book Page 332 Wednesday, October 15, 2008 3:12 PM
332 | Bahasa Indonesia
Cara memasang
Penggunaan
Memasang/mengganti baterai
Cara penggunaan
Untuk menjalankan alat pengukur ini dian-
f Lindungilah alat pengukur terhadap
jurkan penggunaan baterai-baterai mangan-
cairan dan sinar matahari yang langsung.
alkali.
f Jagalah supaya alat pengukur tidak ter-
Untuk membuka tutup kotak baterai 6, tekan
kena suhu yang luar biasa atau peru-
penguncian tutup kotak baterai 7 dan buka-
bahan suhu yang luar biasa. Misalnya,
kan tutup kotak baterai. Pasangkan baterai-
janganlah meninggalkan alat pengukur
baterai. Perhatikan positip dan negatip dari
untuk waktu yang lama di dalam mobil.
baterai-baterai, sesuai dengan gambar pada
Jika ada perubahan suhu yang besar,
bagian dalam dari kotak baterai.
biarkan alat pengukur mencapai suhu
Jika simbol baterai 8 berkedip-kedip, baterai-
yang merata dahulu sebelum Anda mulai
baterai hampir kosong. Setelah simbol baterai
menggunakannya. Pada suhu yang luar
berkedip-kedip untuk pertama kalinya, alat
biasa atau jika ada perubahan suhu yang
pengukur masih bisa digunakan selama kira-
luar biasa, ketelitian pengukuran alat
kira 2 jam.
pengukur bisa terganggu.
Jika simbol baterai 8 menyala menetap, alat
f Jagalah supaya alat pengukur tidak ter-
pengukur sudah tidak bisa digunakan untuk
bentur atau terjatuh. Jika alat pengukur
mengukur. Alat pengukur setelah waktu pen-
terkena daya yang besar dari luar, sebe-
dek mati secara otomatis.
lum melanjutkan penggunaan alat pengu-
kur, lakukan selalu pemeriksaan ketelitian
Gantikanlah selalu semua baterai sekaligus.
pengukuran (lihat „Ketelitian sudut“,
Gunakanlah baterai-baterai yang sama me-
halaman 333).
reknya dan dengan kapasitas yang sama.
f Keluarkanlah baterai-baterai dari alat
Menghidupkan/mematikan
pengukur, jika alat pengukur tidak digu-
Untuk menghidupkan alat pengukur, tekan
nakan untuk waktu yang lama. Jika bate-
satu kali dan sebentar saja tombol untuk
rai disimpan untuk waktu yang lama, bate-
menghidupkan dan mematikan 3. Alat peng-
rai bisa berkorosi dan mengosong sendiri.
ukur segera setelah dihidupkan mengedar-
kan tiga garis laser 0°, 45° dan 90° dari
lubang-lubang pengedar sinar laser 1, selain
itu simbol baterai 8 menyala selama 3 detik.
f Janganlah mengarahkan sinar laser pada
orang-orang lain atau binatang dan
janganlah melihat ke sinar laser, juga
tidak dari jarak jauh.
1 609 929 S09 | (15.10.08) Bosch Power Tools

OBJ_BUCH-828-001.book Page 333 Wednesday, October 15, 2008 3:12 PM
Bahasa Indonesia | 333
Jika tombol untuk menghidupkan dan mema-
tikan 3 ditekan kedua kalinya, alat pengukur
Ketelitian sudut
beralih dari penggunaan dengan 3 garis laser
Pengaruh terhadap ketelitian
ke penggunaan dengan 2 garis laser: kini
Pengaruh terbesar terhadap ketelitian bera-
hanya tampil garis laser-garis laser 0° dan 90°.
sal dari suhu lingkungan sekeliling. Khu-
Untuk mematikan alat pengukur, tekan tom-
susnya perbedaan suhu dari bumi ke atas
bol untuk menghidupkan dan mematikan 3
bisa mempengaruhi sinar laser.
ketiga kalinya.
Oleh sebab itu, pasangkan alat pengukur se-
dekat mungkin pada bidang yang dikerjakan
Mematikan pemadaman otomatis
dan kencangkan alat pengukur dengan ba-
Setelah penggunaan selama 30 menit, alat
gian bawahnya sesejajar mungkin terhadap
pengukur padam secara otomatis.
bidang yang dikerjakan.
Untuk mematikan pemadaman otomatis,
Selain pengaruh dari luar, pengaruh khusus
pada waktu menghidupkan alat pengukur,
dari alat sendiri (misalnya jika jatuh atau
tekan tombol untuk menghidupkan dan me-
kena benturan yang kuat) bisa mengakibat-
matikan 3 selama 3 detik. Jika pemadaman
kan ketidak tepatan. Oleh sebab itu, perik-
otomatis mati, setelah alat pengukur dihi-
salah selalu ketepatan pengukuran dari alat
dupkan, garis laser-garis laser berkedip-
pengukur setiap kali sebelum mengguna-
kedip sebentar sebagai tanda konfirmasi.
kannya.
f Janganlah meninggalkan alat pengukur
yang hidup tanpa pengawasan dan mati-
Memeriksa ketelitian sudut
kan segera alat pengukur setelah peng-
Untuk melakukan pemeriksaan ini, dibutuh-
gunaannya. Sinar laser bisa merusakkan
kan permukaan yang kosong sebesar kira-kira
mata dari orang-orang lain.
10 x 5 m pada alas yang keras dan mendatar.
Untuk menghidupkan pemadaman otomatis,
Jika pada pemeriksaan ketelitian ternyata
matikan alat pengukur, kemudian hidupkan
hasil pengukuran alat pengukur tidak tepat
kembali alat pengukur dengan cara menekan
dan melebihi ambang batas maksimal,
sebentar tombol untuk menghidupkan dan
biarkan alat pengukur direparasikan oleh
mematikan 3. Setelah alat pengukur dihidup-
Service Center Bosch.
kan, garis laser-garis laser tidak berkedip-
kedip.
Bosch Power Tools 1 609 929 S09 | (15.10.08)

OBJ_BUCH-828-001.book Page 334 Wednesday, October 15, 2008 3:12 PM
334 | Bahasa Indonesia
Memeriksa ketelitian sudut antara garis
laser mengena persis pada titik II yang
laser 0° dan 90°
ditandai sebelumnya dan garis laser 0°
– Tempatkan alat pengukur di salah satu
mengena persis pada titik III.
sudut dari permukaan yang diukur. Hidup-
Berikan tanda pada tengah-tengah dari
kan alat pengukur dan cocokkan kedudu-
garis laser 90° pada jarak 5 m (titik IV).
kannya sedemikian, sehingga garis laser
0° beredar sepanjang sisi yang panjang
d
dari permukaan yang diukur dan garis
laser 90° beredar sepanjang sisi yang
pendek dari permukaan yang diukur.
– Putarkan alat pengukur sebanyak 90°
5 m
sedemikian, sehingga tengah-tengah dari
garis laser 0° melalui titik IV.
Titik temu dari garis laser-garis laser harus
10 m
tetap berada pada titik II.
– Berikan tanda pada titik temu dari garis
– Berikan tanda pada tengah-tengah dari ga-
laser-garis laser pada lantai (titik I).
ris laser 90° pada jarak 5 m sebagai titik V
Selain itu, berikan tanda pada tengah-
yang sedekat mungkin dengan titik I.
tengah dari garis laser 0° pada jarak 5 m
– Selisih d antara kedua titik-titik V dan
(titik II) dan pada jarak 10 m (titik III).
I adalah ketidak tepatan dari garis laser
0° dan garis laser 90° terhadap sudut
siku-siku.
Pada jarak pengukuran sebesar
2x5m=10m selisih maksimal yang
diizinkan adalah:
10 m x ± 0,2 mm/m = ±2 mm.
Selisih d yang diizinkan antara titik-titik I dan
V adalah maksimal 2 mm.
– Kini tempatkan alat pengukur (tanpa me-
mutarkannya) pada jarak 5 m sedemikian,
sehingga titik temu dari garis laser-garis
1 609 929 S09 | (15.10.08) Bosch Power Tools

OBJ_BUCH-828-001.book Page 335 Wednesday, October 15, 2008 3:12 PM
Bahasa Indonesia | 335
Memeriksa ketelitian sudut antara garis
laser-garis laser mengena persis pada
laser 0° dan 45°
titik II yang ditandai sebelumnya dan garis
– Tempatkan alat pengukur di salah satu
laser 0° mengena persis pada titik III.
sudut dari permukaan yang diukur. Hidup-
Tandai garis laser 45° pada jarak 5 m
kan alat pengukur dan cocokkan kedudu-
(titik IV).
kannya sedemikian, sehingga garis laser
0° beredar sepanjang sisi yang panjang
dari permukaan yang diukur dan garis
laser 90° beredar sepanjang sisi yang
pendek dari permukaan yang diukur.
– Putarkan alat pengukur sebanyak 45°
5 m
sedemikian, sehingga tengah-tengah dari
garis laser 0° melalui titik IV.
Titik temu dari garis laser-garis laser harus
10 m
tetap berada pada titik II.
Tandai garis laser 45° pada jarak 5 m
– Berikan tanda pada titik temu dari garis
sebagai titik V.
laser-garis laser pada lantai (titik I).
Selain itu, berikan tanda pada tengah-
tengah dari garis laser 0° pada jarak 5 m
(titik II) dan pada jarak 10 m (titik III).
– Putarkan alat pengukur sebanyak 45°
sedemikian, sehingga tengah-tengah dari
garis laser 0° melalui titik V.
Titik temu dari garis laser-garis laser harus
– Kini tempatkan alat pengukur (tanpa
tetap berada pada titik II.
memutarkannya) pada jarak 5 m sede-
Tandai garis laser 45° pada jarak 5 m
mikian, sehingga titik temu dari garis
sebagai titik VI.
Bosch Power Tools 1 609 929 S09 | (15.10.08)

OBJ_BUCH-828-001.book Page 336 Wednesday, October 15, 2008 3:12 PM
336 | Bahasa Indonesia
d
Petunjuk-petunjuk untuk pemakaian
f Pasangkan selalu alat pengukur secara
rata pada lantai atau kencangkannya
secara rata pada dinding. Jika alat peng-
ukur tidak ditempatkan atau dikencang-
kan secara rata, sudutnya lebih kecil dari
45° atau 90°.
f Berilah tanda hanya pada tengah-tengah
– Putarkan alat pengukur sebanyak 45°
dari garis laser. Kelebaran garis laser
sedemikian, sehingga tengah-tengah dari
berubah sesuai dengan perubahan jarak.
garis laser 0° melalui titik VI.
Titik temu dari garis laser-garis laser harus
f Janganlah sekali-kali menggunakan garis
tetap berada pada titik II.
laser-garis laser yang diedarkan alat
pengukur yang berada pada lantai yang
– Berikan tanda pada tengah-tengah dari
mengena pada dinding sebagai patokan.
garis laser 45° pada jarak 5 m sebagai
Alat pengukur ini tidak melakukan
titik VII sedekat mungkin pada titik I.
penyetelan otomatis, sehingga garis pada
– Selisih d antara titik-titik VII dan I adalah
dinding tidak tepat.
ketidak tepatan dari garis laser 0° dan
f Titik patokan untuk mencocokkan ubin-
garis laser 45°.
ubin adalah titik potong P dari garis
Pada jarak pengukuran sebesar
laser-garis laser persis di depan alat
4 x 5 m = 20 m ketidak tepatan maksimal
pengukur. Untuk memindahkan satu
yang diizinkan adalah:
sudut, alat pengukur harus diputarkan
20 m x ± 0,4 mm/m* = ±8mm.
pada titik potong ini, lihat gambar F.
Selisih d yang diizinkan antara titik-titik I dan
f Pasangkan alat pengukur hanya pada
VII adalah maksimal 8 mm.
pelat pedoman untuk mencocokkan arah
* Nilai sebesar ± 0,4 mm/m adalah hasil dari
pengukuran 10 yang bersih. Permukaan
ketelitian sudut ±0,2 mm/m ditambah
dari pelat pedoman yang tidak rata dan
ketidak tepatan yang mungkin terjadi pada
tercemar membuat alat pengukur tidak
waktu memutarkan sebesar 0,2 mm/m.
bisa ditempatkan secara datar dan bisa
membuat hasil pengukuran tidak tepat.
1 609 929 S09 | (15.10.08) Bosch Power Tools

OBJ_BUCH-828-001.book Page 337 Wednesday, October 15, 2008 3:12 PM
Bahasa Indonesia | 337
Menggunakan pelat pedoman untuk
Menggunakan reflektor sinar laser/pelat
mencocokkan arah pengukuran
ukur langit-langit (lihat gambar A)
(lihat gambar D–E)
Dengan reflektor (alat pemantulan) sinar
Dengan menggunakan pelat pedoman untuk
laser 9 atau pelat ukur langit-langit 14, sinar
mencocokkan arah pengukuran 10 Anda juga
laser tampak lebih jelas jika keadaan tidak
bisa menempatkan alat pengukur secara rata
menguntungkan dan jaraknya jauh.
pada permukaan yang tidak datar atau tidak
Paruh yang memantulkan dari reflektor sinar
keras.
laser 9 membuat garis laser tampak lebih
Pelat pedoman 10 juga cocok sebagai peno-
jelas, dengan bantuan paruh yang transparan
pang dinding bagi alat pengukur. Kencang-
garis laser juga tampak dari sebelah belakang
kan pelat pdoman secara kukuh supaya tidak
dari reflektor sinar laser.
tergoyang pada satu dinding atau permukaan
Pelat ukur langit-langit 14 (aksesori) juga
yang miring, misalnya dengan menggunakan
bisa digunakkan untuk menampilkan garis
sekrup (yang lazim bisa dibeli). Gunakan satu
laser-garis laser. Seperti reflektor sinar laser,
waterpas, untuk menempatkan pelat pedo-
pelat ukur langit-langit terdiri dari paruh yang
man secara rata pada permukaan.
memantulkan dan paruh yang transparan.
Mencocokkan kedudukan alat pengukur
pada pelat pedoman: Letakkan alat pengu-
Kaca mata untuk melihat laser (aksesori)
kur dengan magnet-magnet 4 yang berada
pada sebelah bawah, pada pelat pedoman
Kaca mata untuk melihat laser menyaring
10. Garis-garis berupa jala pada sebelah atas
cahaya lingkungan. Dengan demikian sinar
dari pelat pedoman berguna untuk menco-
merah dari laser bagi mata kita tampak lebih
cokkan kedudukan alat pengukur secara
cerah.
seksama. Untuk memindahkan sudut-sudut
f Janganlah menggunakan kaca mata
90° atau 45° letakkan pelat pedoman pada
untuk melihat sinar laser sebagai kaca
pinggiran yang menjadi patokan atau tonjo-
mata pelindung. Kaca mata ini berguna
lan tembok dan tempatkan alat pengukur
untuk melihat sinar laser dengan lebih
sedemikian, seperti digambarkan pada
jelas, akan tetapi tidak melindungi mata
bagian atas dari pelat pedoman.
terhadap sinar laser.
f Janganlah memakai kaca mata untuk
melihat sinar laser sebagai kaca mata
hitam atau jika sedang mengendarai
kendaraan. Kaca mata untuk melihat sinar
laser tidak melindungi mata terhadap
sinar ultra violet dan membuat mata tidak
mengenali warna dengan baik.
Bosch Power Tools 1 609 929 S09 | (15.10.08)

OBJ_BUCH-828-001.book Page 338 Wednesday, October 15, 2008 3:12 PM
338 | Bahasa Indonesia
Memasang tegel pada dinding dapur
Contoh untuk penggunaan
(lihat gambar D)
Memeriksa sudut siku (lihat gambar A)
Ukurkan dahulu ketinggian, di mana deretan
Tempatkan alat pengukur di satu sudut dari
pertama dari tegel dinding harus dimulai. Ken-
ruangan dan cocokkan kedudukannya sede-
cangkan alat pengukur dengan pelat pedoman
mikian, sehingga garis laser 0° sejajar terha-
untuk mencocokkan arah pengukuran 10 se-
dap garis patokan (misalnya dinding). Ukur-
cara tegak lurus pada dinding, sehingga garis
kan jarak antara garis laser dan garis patokan
laser 90° menunjukkan pinggiran bawah dari
langsung pada alat pengukur dan pada jarak
deretan tegel dinding yang pertama.
yang sejauh mungkin dari alat pengukur. Tem-
Memasang tegel mulai pinggiran
patkan alat pengukur sedemikian, sehingga
(lihat gambar E)
kedua jarak sama besarnya.
Tempatkan alat pengukur pada pelat pedo-
Setelah itu, ukurkan pada paling sedikit dua
man untuk mencocokkan arah pengukuran 10
titik yang berlainan, jarak-jarak antara garis
pada pinggiran sedemikian, sehingga satu le-
laser 90° dan dinding. Jika jarak-jarak pada
kukan 11 pada sisi pelat pedoman persis bera-
garis laser 90° sama besarnya, kedudukan
da pada pinggiran. Garis laser 0° harus sejajar
dinding-dinding merupakan sudut siku.
terhadap satu pinggiran. Garis laser 90° kini
Memasang ubin dengan pola bujur sangkar
menandai deretan tegel sebelah bawah.
(lihat gambar B)
Tempatkan alat pengukur di satu sudut,
sehingga garis laser 0° sejajar dengan satu
Rawatan dan servis
dinding. Letakkan ubin bentuk bujur sangkar
pertama pada titik potong dari garis laser 0°
Rawatan dan kebersihan
dan garis laser 90°.
Simpankan dan transportasikan alat peng-
Memasang ubin dengan pola diagonal
ukur hanya di dalam tas pelindung yang ikut
(lihat gambar C)
dipasok.
Tempatkan alat pengukur sedemikian, se-
Jagalah supaya alat pengukur selalu bersih.
hingga garis laser 45° menjadi tanda dari
Janganlah memasukkan alat pengukur ke
sela ubin yang diagonal.
dalam air atau cairan lainnya.
1 609 929 S09 | (15.10.08) Bosch Power Tools

OBJ_BUCH-828-001.book Page 339 Wednesday, October 15, 2008 3:12 PM
Bahasa Indonesia | 339
Jika alat pengukur kotor, bersihkannya deng-
Indonesia
an lap yang lembab dan lunak. Janganlah
PT. Multi Tehaka
menggunakan deterjen atau tiner.
Kawasan Industri Pulogadung
Bersihkanlah secara berkala, terutama per-
Jalan Rawa Gelam III No. 2
mukaan pada lubang pengedar sinar laser,
Jakarta 13930
dan perhatikanlah apakah ada bulu yang
Indonesia
mencemarinya.
Tel.: +62 (21) 4 60 12 28
Jika pada suatu waktu alat pengukur ini tidak
Fax: +62 (21) 46 82 68 23
berfungsi meskipun telah diproduksikan dan
E-Mail: sales@multitehaka.co.id
diperiksa dengan seksama, reparasinya harus
www.multitehaka.co.id
dilakukan oleh Service Center perkakas listrik
Bosch yang resmi.
Cara membuang
Jika Anda hendak menanyakan sesuatu atau
memesan suku cadang, sebutkan selalu
Alat pengukur, aksesori dan kemasan
nomor model yang terdiri dari 10 angka dan
sebaiknya didaur ulangkan sesuai dengan
tercantum pada label tipe alat pengukur.
upaya untuk melindungi lingkungan hidup.
Jika alat pengukur harus direparasikan,
kirimkannya di dalam tas pelindung 12.
Aki/Baterai:
Janganlah membuang aki/baterai ke dalam
Layanan pasca beli dan konsultasi
sampah rumah tangga, ke dalam api atau ke
dalam air. Aki/baterai sebaiknya
bagi pelanggan
dikumpulkan, didaur ulangkan atau dibuang
Layanan pasca beli Bosch menjawab semua
sesuai dengan upaya untuk melindungi
pertanyaan Anda tentang reparasi dan pera-
lingkungan hidup.
watan serta tentang suku cadang produk ini.
Gambar tiga dimensi dan informasi tentang
suku cadang bisa Anda lihat di:
Perubahan adalah hak Bosch.
www.bosch-pt.com
Tim konsultan Bosch dengan senang hati
membantu Anda pada pembelian, penggunaan
dan penyetelan produk ini dan aksesorinya.
Bosch Power Tools 1 609 929 S09 | (15.10.08)

OBJ_BUCH-828-001.book Page 340 Wednesday, October 15, 2008 3:12 PM
340 | Tiøng Vi·t
C¯c Nguy›n TÄc An Toμn
Khäng {õïc rãi lu≥ng laze vμo
ngõìi hay thÏ vŸt vμ chflnh b”n
VŸn hμnh dông cô {o mét c¯ch an
cóng khäng {õïc nh‡n chæm
toμn lμ vi·c cß thÚ thúc hi·n {õïc
chæm vμo lu≥ng laze. Dông cô
chÜ khi {’ {ãc kþ toμn bé tμi li·u
{o nμy ph¯t ra tia laze cß c`p {é
hõëng dÿn s¥ dông vμ c¯c thäng
böc x” laze 2 dúa tr›n ti›u chu¤n
tin vÖ an toμn, cóng nhõ tuÉn thò nghi›m ng◊t
IEC 60825-1. [iÖu nμy cß thÚ
c¯c hõëng dÿn trong tμi li·u. Khäng bao giì
dÿn {øn vi·c gÉy mñ làa cho
{õïc lμm cho nh’n cΩnh b¯o tr›n dông cô {o
ngõìi kh¯c.
khäng thÚ {ãc {õïc. H^Y GI‘ LŞI T}I LI√U
f Khäng {õïc s¥ dông kflnh nh‡n laze nhõ lμ
Hı©NG DÃN N}Y.
kflnh bΩ
o hé lao {éng. Kflnh nh‡n laze {õïc
f Lõu û – Vi·c s¥ dông {Ú ho”t {éng kh¯c
s¥ dông {Ú cΩi thi·n sú quan s¯t lu≥ng laze,
vëi môc {flch thiøt kø hay thiøt bÔ {iÖu
nhõng chÏng khäng bΩo v· chång l”i tia böc
chÜnh ho◊c öng dông vëi qui tr‡nh kh¯c vëi
x” laze.
nhùng g‡ {Ö cŸp í {Éy {Öu cß thÚ dÿn {øn
f Khäng {õïc s¥ dông kflnh nh‡n laze nhõ
phêi nhiÆm böc x” nguy hiÚm.
kflnh m¯t hay dñng trong giao thäng. Kflnh
f Dông cô {o {õïc giao kÎm theo nh’n cΩnh
nh‡n laze khäng {ò khΩ næng bΩo v· hoμn
b¯o bÅng tiøng Anh ({õïc {¯nh d`u bÅng
toμn UV (tia cúc tflm) vμ lμm giΩm sú cΩm nhŸn
så 2 trong trang h‡nh mi›u tΩ dông cô {o
mμu sÄc.
trong trang h‡nh Ωnh).
f ChÜ giao dông cô {o cho chuy›n vi›n cß
tr‡nh {é chuy›n män vμ s¥ dông phô tñng
chflnh h’ng s¥a chùa. [iÖu nμy {Ωm bΩo
cho sú an toμn còa dông cô {o {õïc giù
nguy›n.
IEC 60825-1:2007-03
<1 mW, 635 nm
f Khäng cho ph⁄p trÑ em s¥ dông dông cô
{o laze mμ thiøu sú gi¯m s¯t. ChÏng cß thÚ
vä t‡nh lμm ngõìi kh¯c mñ mÄt.
f Trõëc khi s¥ dông l÷n {÷u ti›n, d¯n ch≥ng
nh’n d¯n dflnh {õïc cung c`p kÎm theo
bÅng ngän ngù còa nõëc b”n l›n tr›n
nh’n cΩnh b¯o bÅng tiøng Anh.
1 609 929 S09 | (15.10.08) Bosch Power Tools

