Dell PowerVault ML6000 – page 3
Manual for Dell PowerVault ML6000
Table of contents
- Notes, Cautions, and Warnings
- Contents
- Dell PowerVault ML6000 Getting Started Guide (English)
- Installing Your Library in a Rack Special Instructions for LTO-5 Tape Drives
- LTO-5 Fibre Channel Tape Drive LTO-5 SAS Tape Drive
- Connecting Parallel SCSI Cables
- Dell PowerVault ML6000 Getting Started Guide
- Connecting Fibre Channel Cables to a Host or Switch
- Connecting Fibre Channel Cables Through a Fibre Channel I/O Blade
- Connecting Serial Attached SCSI (SAS) Cables
- Dell PowerVault ML6000 Getting Started Guide
- Finishing Cabling the Library
- Powering On the Library
- Getting Started
Guide de démarrage rapide Dell PowerVault ML6000
41
1
Connexion d'un lecteur de bande par
bus SCSI
2
Connexion de deux lecteurs de
bande par bus SCSI
3
Câble SCSI à l'hôte
4
Terminateur SCSI
EMEA1.book Page 41 Tuesday, March 9, 2010 4:38 PM
42
Guide de démarrage rapide Dell PowerVault ML6000
Connexion des câbles Fibre Channel à un hôte ou à un commutateur
Effectuez cette étape si votre bibliothèque contient des lecteurs de bande Fibre
Channel que vous connecterez directement à un hôte ou un commutateur.
Utilisez des câbles Fibre Channel pour connecter votre hôte (ou commutateur)
à la bibliothèque. Pour chaque lecteur de bande :
1
Connectez une extrémité du câble Fibre Channel au port Fibre Channel
du lecteur de bande.
2
Connectez l'autre extrémité du câble Fibre Channel à votre hôte ou
commutateur.
1
Port Fibre Channel
2
Câble Fibre Channel
EMEA1.book Page 42 Tuesday, March 9, 2010 4:38 PM
Guide de démarrage rapide Dell PowerVault ML6000
43
Connexion des câbles Fibre Channel au moyen d'une lame d'E/S Fibre Channel
Effectuez cette étape si votre bibliothèque contient des lecteurs de bande Fibre
Channel que vous connecterez directement à votre hôte ou commutateur au
moyen d'une lame d'E/S Fibre Channel.
1
Pour chaque lecteur de bande : connectez une extrémité du câble Fibre
Channel au port Fibre Channel du lecteur de bande. Connectez l'autre
extrémité du câble Fibre Channel à un port déclencheur (ports inférieurs 3
à 6) sur la lame d'E/S Fibre Channel la plus proche.
2
Pour chaque lame d'E/S Fibre Channel : connectez une extrémité du câble
Fibre Channel à un des ports cibles (ports supérieurs 1 et 2) de la lame
d'E/S Fibre Channel. Connectez l'autre extrémité du câble Fibre Channel
à votre hôte ou commutateur.
Utilisez des câbles Ethernet pour connecter la lame de contrôle de la
bibliothèque du module de contrôle de bibliothèque 5U à chaque module
d'extension de bibliothèque 9U qui contient une lame d'E/S Fibre Channel.
Pour chaque lame d'E/S Fibre Channel installée dans un module d'extension de
bibliothèque 9U :
3
Connectez une extrémité du câble Ethernet à un des quatre ports
Ethernet centraux du concentrateur Ethernet de la lame de contrôle de la
bibliothèque.
4
Connectez l'autre extrémité du câble au port du module d'extension de
bibliothèque 9U approprié. Si la lame d'E/S Fibre Channel est installée
dans la baie supérieure, utilisez le port intitulé « UPPER (supérieur) ». Si la
lame d'E/S Fibre Channel est installée dans la baie inférieure, utilisez le
port intitulé « LOWER (inférieur) ».
EMEA1.book Page 43 Tuesday, March 9, 2010 4:38 PM
44
Guide de démarrage rapide Dell PowerVault ML6000
Connexion des câbles SCSI (SAS)
Effectuez cette étape si votre bibliothèque contient des lecteurs de bande SAS
(serial attached SCSI).
Utilisez des câbles SAS pour connecter les lecteurs de bande SAS directement à
l'hôte. Pour chaque lecteur de bande :
1
Ports Ethernet centraux de la lame
de contrôle de la bibliothèque
2
Lame d'E/S Fibre Channel
3
Ports cibles
4
Ports déclencheurs
5
Port Fibre Channel
6
Câbles Ethernet
7
Ports « UPPER (supérieur) » et
« LOWER (inférieur) »
EMEA1.book Page 44 Tuesday, March 9, 2010 4:38 PM
Guide de démarrage rapide Dell PowerVault ML6000
45
1
Connectez une extrémité du câble SAS au port SAS du lecteur de bande.
2
Connectez l'autre extrémité du câble SAS directement à l'hôte.
1
Port SAS
2
Câble SAS
EMEA1.book Page 45 Tuesday, March 9, 2010 4:38 PM
46
Guide de démarrage rapide Dell PowerVault ML6000
Terminer le câblage de la bibliothèque
Toutes les bibliothèques doivent utiliser des terminateurs de module. Les
bibliothèques composées de plusieurs modules doivent utiliser des câbles
module-à-module.
ATTENTION !
Un terminateur de module n'est pas la même chose qu'un
terminateur SCSI. L'utilisation d'un terminateur SCSI au lieu d'un terminateur de
module peut endommager la bibliothèque. Les terminateurs de module sont situés
dans un emballage en plastique attaché à l'arrière du module de contrôle de
bibliothèque 5U.
1
Retirez les bouchons en plastique protecteurs qui recouvrent les
connecteurs de module du module de contrôle de bibliothèque 5U et des
modules d'extension de bibliothèque 9U.
2
À l'aide des câbles module-à-module du kit d'accessoires, connectez
chaque module à celui du dessus. Connectez une extrémité du câble au
module inférieur. Puis connectez l'autre extrémité du câble au module
situé au dessus.
3
À l'aide des terminateurs de module de l'emballage en plastique attaché à
l'arrière du module de contrôle de bibliothèque 5U, terminez les modules
situés tout en haut et tout en bas.
4
Connectez un câble Ethernet au port Gigabit Ethernet supérieur de la
lame de contrôle de la bibliothèque pour permettre l'accès à distance à la
bibliothèque via le client Web (câble Ethernet non fourni).
5
Au moins un bloc d'alimentation est requis pour chaque module
contenant des lecteurs de bande. Pour chaque bloc d'alimentation,
connectez une extrémité du cordon d'alimentation au bloc d'alimentation.
Connectez l'autre extrémité à une source de courant alternatif mise à la
terre (du type indiqué sur l'étiquette du produit).
EMEA1.book Page 46 Tuesday, March 9, 2010 4:38 PM
Guide de démarrage rapide Dell PowerVault ML6000
47
Mise sous tension de la bibliothèque
1
Appuyez sur l'interrupteur d'alimentation de chaque bloc d'alimentation.
2
Allumez l'alimentation principale de la bibliothèque au moyen du bouton
d'alimentation situé à l'avant du module de contrôle de bibliothèque 5U.
L'écran Setup Wizard (Assistant d'installation) apparaît sur le panneau de
commande lorsque la bibliothèque a terminé son test d'autodiagnostic et
l'initialisation. Ce processus prend environ 30 minutes. N'éteignez pas la
bibliothèque pendant ce processus.
1
Terminateur de module
2
Câble Ethernet connecté au port
Ethernet Gigabit
3
Câble module-à-module
4
Cordons d'alimentation
EMEA1.book Page 47 Tuesday, March 9, 2010 4:38 PM
48
Guide de démarrage rapide Dell PowerVault ML6000
Guide de démarrage rapide
1
Configurez votre bibliothèque à l'aide de l'assistant d'installation. Pour
obtenir des détails, consultez le
Guide d'utilisation de la bandothèque
Dell™ PowerVault™ ML6000
.
2
Vérifiez que chaque hôte peut communiquer avec les lecteurs de bande de
la bibliothèque. Pour obtenir des détails, consultez la documentation de
votre application hôte.
1
Interrupteur d'alimentation du bloc
d'alimentation
EMEA1.book Page 48 Tuesday, March 9, 2010 4:38 PM
Dell PowerVault ML6000 Erste Schritte
49
Dell PowerVault ML6000 Erste Schritte (German)
WARNUNG:
Lesen Sie den Dell™ PowerVault™ Systems
Produktinformationsleitfaden, bevor Sie Ihre Bibliothek verkabeln.
WARNUNG:
Alle Bibliotheken müssen in ein Rack montiert werden, das eine
Haupt-Schutzerdungsklemme hat. Detaillierte Informationen hierzu finden Sie im
Dell™ PowerVault™ ML6000 Tape Library-Benutzerhandbuch.
WARNUNG:
Die Anschlusssteckdose muss sich in der Nähe des Gerätes
befinden und gut zugänglich sein.
WARNUNG:
Der Schalter auf dem Bedienfeld ist nicht der Hauptschalter des
Gerätes. Ziehen Sie alle Stecker aus den Eingängen des Gerätes, um dieses
vollständig auszuschalten.
WARNUNG:
Entfernen Sie das vollständige innere Verpackungsmaterial, bevor
Sie Ihre Bibliothek verkabeln. Die orangefarbene Transportsicherung des
Roboters, mit der dieser am Boden der Bibliothek befestigt ist, muss entfernt
werden. Entfernen Sie außerdem den gelben Streifen in der I/E-Station. Bewahren
Sie alle Verpackungsmaterialien und die orangefarbene Roboter-
Transportsicherung auf, falls Sie die Bibliothek in Zukunft bewegen oder
transportieren wollen. Einzelheiten hierzu finden Sie in der Auspackanleitung, die
Sie zusammen mit der Bibliothek und dem Dell™ PowerVault™ ML6000 Tape
Library-Benutzerhandbuch erhalten haben.
EMEA1.book Page 49 Tuesday, March 9, 2010 4:38 PM
50
Dell PowerVault ML6000 Erste Schritte
Einbau Ihrer Bibliothek in ein Rack
Alle Dell™ PowerVault™ ML6000-Bibliotheken müssen in ein Rack eingebaut
werden. Anweisungen hierzu finden Sie im
Dell
™
PowerVault
™
ML6000 Tape
Library-Benutzerhandbuch
.
•
Das ML6010 CM ist ein einzelnes 5U Bibliothek-Steuermodul.
•
Das ML6020 CM besteht aus einem (1) ML6010 CM 5U Bibliothek-
Steuermodul und einem (1) ML6000 EM 9U Bibliothek-
Erweiterungsmodul (insgesamt 14U).
•
Das ML6030 CM besteht aus einem (1) ML6010 CM 5U Bibliothek-
Steuermodul und zwei (2) ML6000 EM 9U Bibliothek-
Erweiterungsmodulen (insgesamt 23U).
Sonderanweisungen für LTO-5-Bandlaufwerke
Zurzeit unterstützt die Bibliothek die Verwendung der folgenden Funktionen
von LTO-5-Bandlaufwerken nicht:
•
Ethernetanschluss
1
5U Bibliothek-Steuermodul
2
9U Bibliothek-Erweiterungsmodul
EMEA1.book Page 50 Tuesday, March 9, 2010 4:38 PM
Dell PowerVault ML6000 Erste Schritte
51
•
Anschluss 2 auf Bandlaufwerken mit Dualanschluss
Einzelheiten hierzu finden Sie in folgenden zwei Abbildungen.
LTO-5 Fibre Channel-Bandlaufwerk
LTO-5 SAS-Bandlaufwerk
1
Ethernetanschluss - nicht verwenden 2
Fibre Channel-Anschluss - diesen
Anschluss verwenden
1
SAS Anschluss 1 - diesen Anschluss
verwenden
2
SAS Anschluss 2 - nicht verwenden
3
Ethernetanschluss - nicht verwenden
EMEA1.book Page 51 Tuesday, March 9, 2010 4:38 PM
52
Dell PowerVault ML6000 Erste Schritte
Anschließen von parallelen SCSI-Kabeln
Führen Sie diesen Schritt durch, wenn Ihre Bibliothek mit parallelen SCSI-
Bandlaufwerken ausgerüstet ist.
Es gibt zwei empfohlene Verkabelungsverfahren für SCSI-Bandlaufwerke: ein
Bandlaufwerk pro SCSI-Bus oder zwei Bandlaufwerke pro SCSI-Bus.
ANMERKUNG:
Schließen Sie nicht mehr als zwei Bandlaufwerke pro SCSI-Bus
an, um mögliche Leistungsprobleme auszuschließen.
Anschluss eines Bandlaufwerks pro SCSI-Bus:
1
Verwenden Sie ein SCSI-Kabel, um den unteren Anschluss des
Bandlaufwerks mit dem Host-System zu verbinden.
2
Verwenden Sie einen SCSI-Terminator, um den oberen Anschluss des
Bandlaufwerks abzuschließen.
Anschluss von zwei Bandlaufwerken pro SCSI-Bus:
1
Schließen Sie ein Ende eines SCSI-Kabels an den oberen SCSI-Anschluss
des unteren Bandlaufwerks an.
2
Schließen Sie das andere Ende des Kabels an den unteren SCSI-Anschluss
des oberen Bandlaufwerks an.
3
Verwenden Sie ein weiteres SCSI-Kabel, um das Bandlaufwerk des SCSI-
Bus an Ihr Host-System anzuschließen.
4
Verwenden Sie einen SCSI-Terminator, um das obere Bandlaufwerk des
SCSI-Bus abzuschließen.
EMEA1.book Page 52 Tuesday, March 9, 2010 4:38 PM
Dell PowerVault ML6000 Erste Schritte
53
1
Anschluss eines Bandlaufwerks pro
SCSI-Bus
2
Anschluss zweier Bandlaufwerke pro
SCSI-Bus
3
SCSI-Kabel an Host
4
SCSI-Terminator
EMEA1.book Page 53 Tuesday, March 9, 2010 4:38 PM
54
Dell PowerVault ML6000 Erste Schritte
Anschluss von Fibre Channel-Kabeln an einen Host oder Switch
Führen Sie diesen Schritt aus, wenn Ihre Bibliothek mit Fibre Channel-
Bandlaufwerken ausgerüstet ist, die Sie direkt an einen Host oder an einen
Switch anschließen.
Verwenden Sie Fibre Channel-Kabel, um Ihren Host (oder Switch) an die
Bibliothek anzuschließen. Führen Sie folgende Schritte für jedes Bandlaufwerk
durch:
1
Schließen Sie ein Ende des Fibre Channel-Kabels an den Fibre Channel-
Anschluss des Bandlaufwerks an.
2
Schließen Sie das andere Ende des Fibre Channel-Kabels an Ihren Host
oder Switch an.
1
Fibre Channel-Anschluss
2
Fibre Channel-Kabel
EMEA1.book Page 54 Tuesday, March 9, 2010 4:38 PM
Dell PowerVault ML6000 Erste Schritte
55
Anschluss von Fibre Channel-Kabeln über ein Fibre Channel E/A-Blade
Führen Sie diesen Schritt durch, wenn Ihre Bibliothek mit Fibre Channel-
Bandlaufwerken ausgestattet ist, die Sie über ein Fibre Channel E/A-Blade an
Ihren Host oder Switch anschließen wollen.
1
Führen Sie folgende Schritte für jedes Bandlaufwerk durch: Schließen Sie
ein Ende eines Fibre Channel-Kabels an den Fibre Channel-Anschluss des
Bandlaufwerks an. Schließen Sie das andere Ende des Fibre Channel-
Kabels an einen Initiatoranschluss (untere Anschlüsse 3 - 6) am nächsten
Fibre Channel E/A-Blade an.
2
Führen Sie folgende Schritte für jedes Fibre Channel E/A-Blade durch:
Schließen Sie ein Ende des Fibre Channel-Kabels an einen der
Zielanschlüsse (obere Anschlüsse 1 und 2) des Fibre Channel E/A-Blade
an. Schließen Sie das andere Ende des Fibre Channel-Kabels an Ihren Host
oder Switch an.
Verwenden Sie Ethernetkabel, um das LCB im 5U Bibliothek-Steuermodul an
jedes 9U Bibliothek-Erweiterungsmodul, das mit einem Fibre Channel E/A-
Blade ausgestattet ist, anzuschließen. Führen Sie für jedes im 9U Bibliothek-
Erweiterungsmodul installierte Fibre Channel E/A-Blade folgende Schritte
durch:
3
Schließen Sie ein Ende des Ethernetkabels an einen beliebigen der vier
mittleren Ethernetanschlüsse des LCB Ethernet-Hubs an.
4
Schließen Sie das andere Ende des Kabels an den entsprechenden
Anschluss im 9U Bibliothek-Erweiterungsmodul an. Wenn das Fibre
Channel E/A-Blade im oberen Schacht installiert ist, verwenden Sie den
Anschluss mit der Bezeichnung "UPPER" (OBERE). Wenn das Fibre
Channel E/A-Blade im unteren Schacht installiert ist, verwenden Sie den
Anschluss mit der Bezeichnung "LOWER" (UNTERE).
EMEA1.book Page 55 Tuesday, March 9, 2010 4:38 PM
56
Dell PowerVault ML6000 Erste Schritte
1
Mittlere LCB Ethernetanschlüsse
2
Fibre Channel E/A-Blade
3
Zielanschlüsse
4
Initiatoranschlüsse
5
Fibre Channel-Anschluss
6
Ethernetkabel
7
Anschlüsse "UPPER" (OBERE) und
"LOWER" (UNTERE)
EMEA1.book Page 56 Tuesday, March 9, 2010 4:38 PM
Dell PowerVault ML6000 Erste Schritte
57
Anschluss von SAS-Kabeln
Führen Sie diesen Schritt durch, wenn Ihre Bibliothek mit SAS-Bandlaufwerken
ausgerüstet ist.
Verwenden Sie SAS-Kabel, um die SAS-Bandlaufwerke direkt an den Host
anzuschließen. Führen Sie folgende Schritte für jedes Bandlaufwerk durch:
1
Schließen Sie ein Ende des SAS-Kabels an den SAS-Anschluss des
Bandlaufwerks an.
2
Schließen Sie das andere Ende des SAS-Kabels direkt an den Host an.
1
SAS-Anschluss
2
SAS-Kabel
EMEA1.book Page 57 Tuesday, March 9, 2010 4:38 PM
58
Dell PowerVault ML6000 Erste Schritte
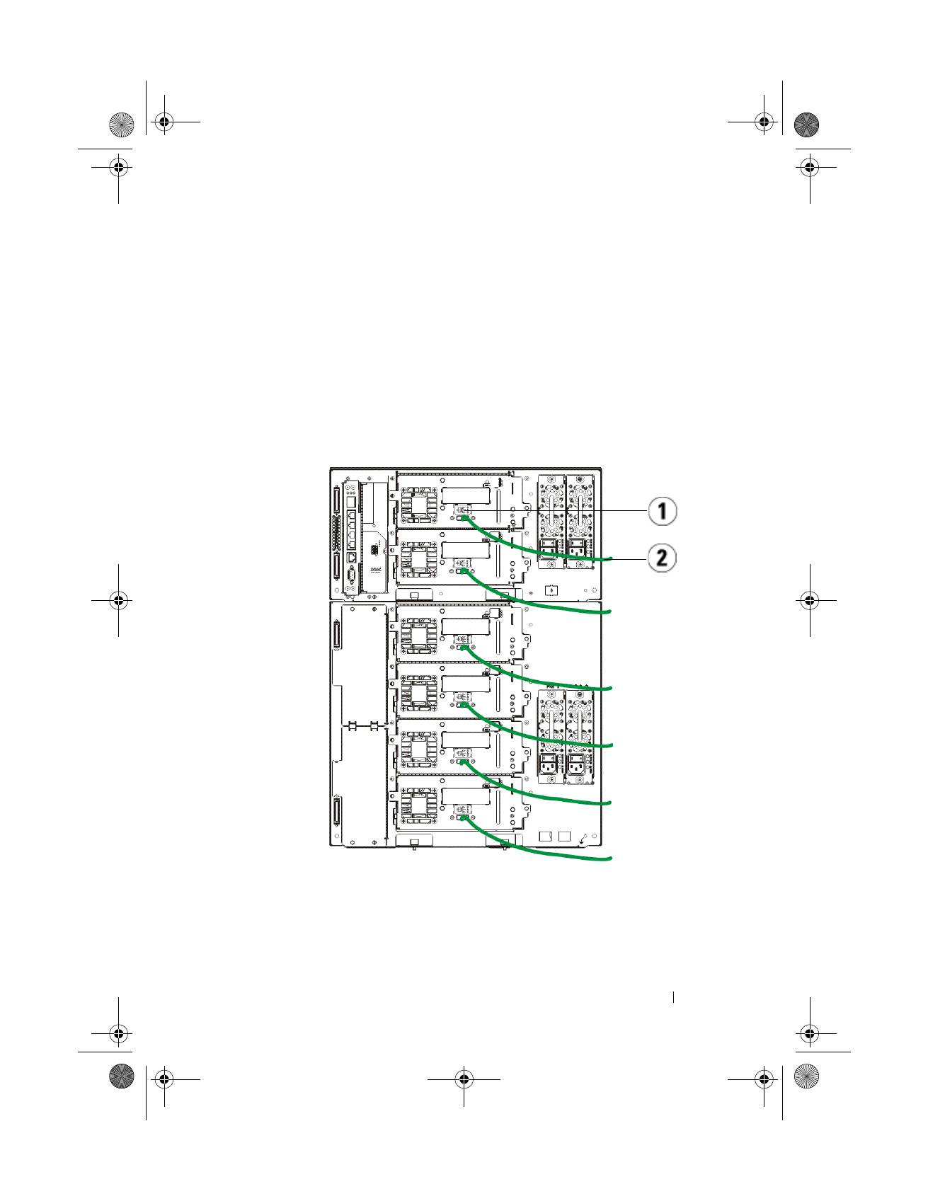
Fertigstellen der Verkabelung der Bibliothek
Alle Bibliotheken müssen mit Modulterminatoren ausgerüstet sein. Bei aus
mehreren Modulen bestehenden Bibliotheken müssen Modul-zu-Modul-Kabel
verwendet werden.
VORSICHT:
Der Modulterminator ist nicht identisch mit dem SCSI-Terminator.
Wenn anstelle eines Modulterminators ein SCSI-Terminator verwendet wird, kann
die Bibliothek beschädigt werden. Die Modulterminatoren befinden sich in einem
an der Rückseite des 5U Bibliothek-Steuermoduls befestigten Kunststoffbeutel.
1
Entfernen Sie die Kunststoff-Schutzkappen auf den Modulsteckern des 5U
Bibliothek-Steuermoduls und des/der 9U Bibliothek-
Erweiterungsmoduls/-module.
2
Verbinden Sie mit den Modul-zu-Modul-Kabeln aus dem Zubehörsatz
jedes Modul mit dem jeweils darüberliegenden Modul. Schließen Sie ein
Ende des Kabels an das untere Modul an. Schließen Sie dann das andere
Ende des Kabels an das jeweils darüberliegende Modul an.
3
Terminieren Sie das obere und das untere Modul mit den
Modulterminatoren, die sich in dem an der Rückseite des 5U Bibliothek-
Steuermoduls befestigten Kunststoffbeutel befinden.
4
Schließen Sie ein Ethernetkabel an den oberen Gigabit-Ethernetanschluss
des Bibliothek-Steuerblades (LCB) an, um den Remote-Zugriff auf die
Bibliothek über den Webclient herzustellen. (Das Ethernetkabel ist nicht
im Lieferumfang enthalten.)
5
Für jedes Modul, das Bandlaufwerke enthält, ist mindestens ein Netzteil
erforderlich. Schließen Sie für jedes Netzteil ein Ende des Netzkabels an
das Netzteil an. Schließen Sie das andere Ende an eine nahegelegene und
geerdete Wechselstromsteckdose an (siehe Markierung auf dem
Produktetikett).
EMEA1.book Page 58 Tuesday, March 9, 2010 4:38 PM
Dell PowerVault ML6000 Erste Schritte
59
Einschalten der Bibliothek
1
Schalten Sie den Netzschalter jedes Netzteils ein.
2
Schalten Sie die Hauptstromversorgung der Bibliothek mit dem Schalter
an der Vorderseite des 5U Bibliothek-Steuermoduls ein.
Nach Ende des POST-Tests und der Initialisierung wird auf dem
Bedienfeld der Einrichtungsassistent angezeigt. Dieser Prozess dauert etwa
30 Minuten. Schalten Sie die Bibliothek während dieses Prozesses nicht
aus.
1
Modulterminator
2
An Gigabit-Ethernetanschluss
angeschlossenes Ethernetkabel
3
Modul-zu-Modul-Kabel
4
Netzkabel
EMEA1.book Page 59 Tuesday, March 9, 2010 4:38 PM
60
Dell PowerVault ML6000 Erste Schritte
Erste Schritte
1
Konfigurieren Sie Ihre Bibliothek mit dem Einrichtungsassistenten.
Einzelheiten hierzu finden Sie im
Dell™ PowerVault™ ML6000 Tape
Library-Benutzerhandbuch
.
2
Überprüfen Sie, ob jeder Host mit den Bandlaufwerken der Bibliothek
kommunizieren kann. Einzelheiten hierzu finden Sie in der
Dokumentation der Host-Anwendung.
1
Netzschalter Stromversorgung
EMEA1.book Page 60 Tuesday, March 9, 2010 4:38 PM

