Dell PowerVault ML6000 – page 2
Manual for Dell PowerVault ML6000
Table of contents
- Notes, Cautions, and Warnings
- Contents
- Dell PowerVault ML6000 Getting Started Guide (English)
- Installing Your Library in a Rack Special Instructions for LTO-5 Tape Drives
- LTO-5 Fibre Channel Tape Drive LTO-5 SAS Tape Drive
- Connecting Parallel SCSI Cables
- Dell PowerVault ML6000 Getting Started Guide
- Connecting Fibre Channel Cables to a Host or Switch
- Connecting Fibre Channel Cables Through a Fibre Channel I/O Blade
- Connecting Serial Attached SCSI (SAS) Cables
- Dell PowerVault ML6000 Getting Started Guide
- Finishing Cabling the Library
- Powering On the Library
- Getting Started
Dell PowerVault ML6000 Getting Started Guide
21
1
SAS port
2
SAS cable
EMEA1.book Page 21 Tuesday, March 9, 2010 4:38 PM
22
Dell PowerVault ML6000 Getting Started Guide
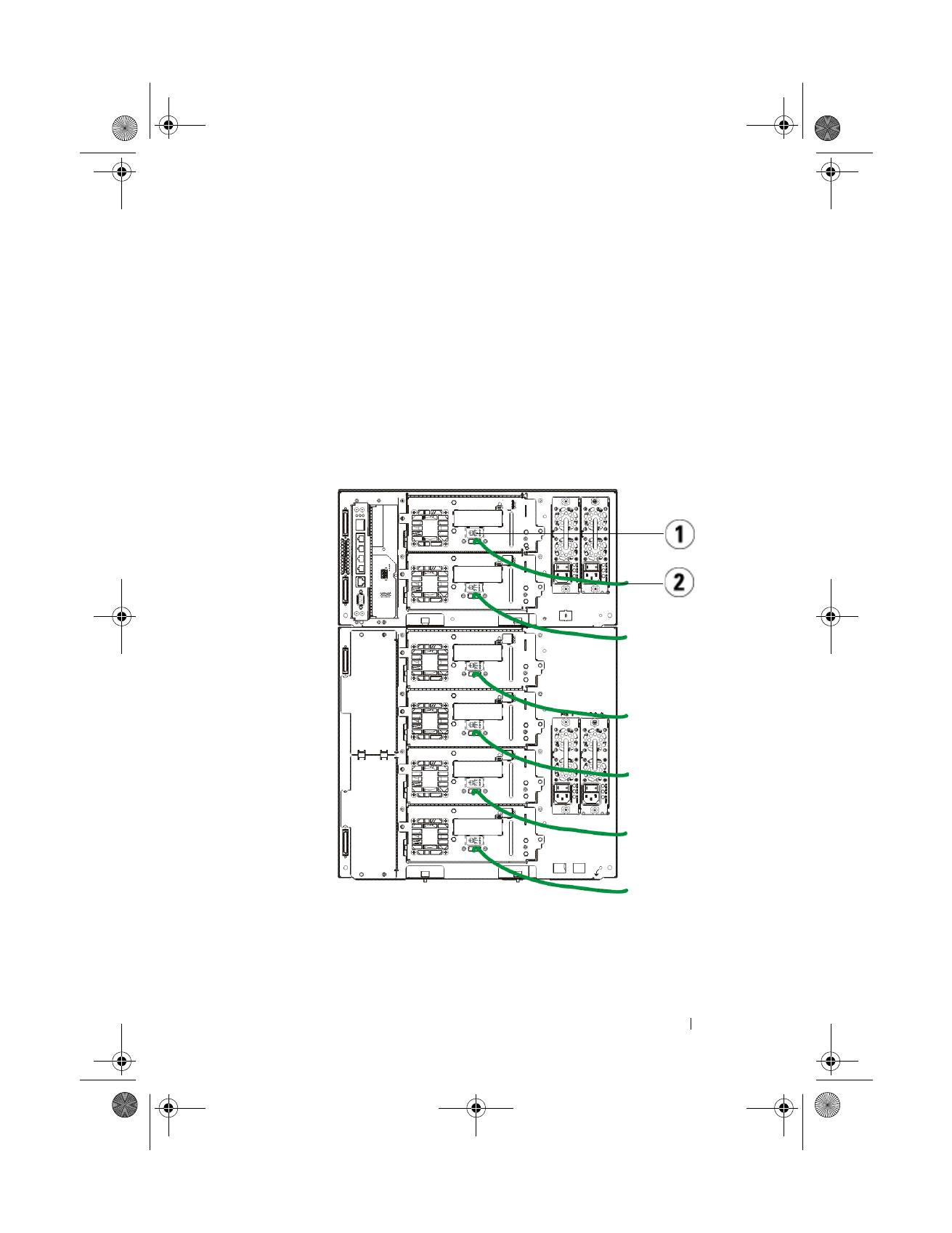
Finishing Cabling the Library
All libraries must use module terminators. Libraries that consist of multiple
modules must use module-to-module cables.
CAUTION:
The module terminator is not the same as a SCSI terminator. Using a
SCSI terminator instead of a module terminator can damage the library. The
module terminators are located in a plastic package tied to the back of the
5U Library Control Module.
1
Remove the protective plastic caps covering the module connectors on the
5U Library Control Module and 9U Library Expansion Module(s).
2
Using the module-to-module cables from the accessory kit, connect each
module to the one above it. Connect one end of the cable to the bottom
module. Then connect the other end of the cable to the module above it.
3
Using the module terminators from the plastic package tied to the back of
the 5U Liberary Control Module, terminate the topmost and botommost
modules.
4
Connect an Ethernet cable to the top Gigabit Ethernet port on the library
control blade (LCB) for remote access to the library via the Web client.
(Ethernet cable not supplied.)
5
At least one power supply is required for each module that contains tape
drives. For each power supply, connect one end of the power cord to the
power supply. Connect the other end to a nearby grounded AC power
source (of the type marked on the product label).
EMEA1.book Page 22 Tuesday, March 9, 2010 4:38 PM
Dell PowerVault ML6000 Getting Started Guide
23
Powering On the Library
1
Turn on each power supply’s power switch.
2
Turn on the library’s main power using the power button located on the
front of the 5U Library Control Module.
The Setup Wizard screen appears on the operator panel when the library
has completed its power-on self-test (POST) and initialization. This
process takes approximately 30 minutes. Do not power off the library
during this process.
1
Module terminator
2
Ethernet cable connected to Gigabit
Ethernet port
3
Module-to-module cable
4
Power cords
EMEA1.book Page 23 Tuesday, March 9, 2010 4:38 PM
24
Dell PowerVault ML6000 Getting Started Guide
Getting Started
1
Configure your library using the Setup Wizard. For details, see the
Dell™
PowerVault™ ML6000 Tape Library User’s Guide
.
2
Verify that each host can communicate with the library’s tape drives. For
details, see your host application documentation.
1
Power supply power switch
EMEA1.book Page 24 Tuesday, March 9, 2010 4:38 PM
Příručka Dell PowerVault ML6000 – začínáme
25
Příručka Dell PowerVault ML6000 – začínáme (Czech)
VAROVÁNÍ:
Před připojením páskové knihovny kabelem si přečtěte
Informační příručku k systémům Dell™ PowerVault™.
VAROVÁNÍ:
Všechny knihovny musí být nainstalovány ve stojanu
vybaveném hlavním ochranným uzemňovacím výstupem. Podrobné
instalační pokyny viz Uživatelská příručka k páskové knihovně Dell™
PowerVault™ ML6000.
VAROVÁNÍ:
Používaná zásuvka by měla být instalována v blízkosti
zařízení a být snadno přístupná.
VAROVÁNÍ:
Vypínač na předním panelu není hlavní odpojovač.
Chcete-li zařízení zcela vypnout, odpojte od něho všechny napájecí
kabely.
VAROVÁNÍ:
Před připojením knihovny kabelem odstraňte veškeré
vnitřní obaly. Nezapomeňte odstranit oranžový zámek robota, který
zajišťuje robota k podlaze knihovny. Kromě toho odstraňte žlutou
pásku ve stanici I/E. Uschovejte veškeré obalové materiály a oranžový
zámek robota pro případné budoucí přemísťování nebo převážení
knihovny. Podrobné informace naleznete v pokynech pro vybalení,
dodaných s knihovnou, a v Uživatelské příručce k páskové knihovně
Dell™ PowerVault™ ML6000.
EMEA1.book Page 25 Tuesday, March 9, 2010 4:38 PM
26
Příručka Dell PowerVault ML6000 – začínáme
Instalace knihovny do stojanu
Všechny knihovny Dell™ PowerVault™ ML6000 musí být nainstalovány ve
stojanu. Pokyny viz
Uživatelská příručka k páskové knihovně Dell
™
PowerVault
™
ML6000
.
•
ML6010 CM je samostatný řídící modul knihovny 5U.
•
ML6020 CM se skládá z jednoho (1) řídícího modulu knihovny 5U ML6010
CM a jednoho (1) rozšiřujícího modulu knihovny 9U ML6000 EM
(celkem 14U).
•
ML6030 CM se skládá z jednoho (1) řídícího modulu knihovny 5U ML6010
CM a dvou (2) rozšiřujících modulů knihovny 9U ML6000 EM (celkem 23U).
Zvláštní pokyny pro páskové jednotky LTO-5
V současné době knihovna nepodporuje využívání následujících funkcí páskových
jednotek LTO-5:
1
Řídící modul knihovny 5U
2
Rozšiřující modul knihovny 9U
EMEA1.book Page 26 Tuesday, March 9, 2010 4:38 PM
Příručka Dell PowerVault ML6000 – začínáme
27
•
Síťový port (ethernet)
•
Port 2 na páskových jednotkách se dvěma porty
Více podrobností viz následující dva obrázky.
Optická sběrnice páskové jednotky LTO-5
Pásková jednotka LTO-5 SAS
1
Ethernetový port – nepoužívejte
2
Optický port sběrnice – použijte
tento port
1
Port 1 SAS – použijte tento port
2
Port 2 SAS – nepoužívejte
3
Ethernetový port – nepoužívejte
EMEA1.book Page 27 Tuesday, March 9, 2010 4:38 PM
28
Příručka Dell PowerVault ML6000 – začínáme
Připojování paralelními kabely SCSI
Tento krok proveďte, pokud Vaše knihovna obsahuje paralelní páskové jednotky
SCSI.
Existují dva doporučené způsoby připojení páskových jednotek SCSI kabelem:
jedna pásková jednotka na sběrnici SCSI nebo dvě páskové knihovny na sběrnici
SCSI.
POZNÁMKA:
Aby se zabránilo možným problémům s výkonem,
nepřipojujte na sběrnici SCSI více než dvě páskové jednotky.
Připojení jedné páskové jednotky na sběrnici SCSI:
1
Pomocí kabelu SCSI připojte dolní port páskové jednotky k hostitelskému
počítači.
2
Pomocí terminátoru SCSI zakončete horní port páskové jednotky.
Připojení dvou páskových jednotek na sběrnici SCSI:
1
Připojte jeden konec kabelu SCSI k hornímu portu SCSI dolní páskové
jednotky.
2
Připojte druhý konec kabelu k dolnímu portu SCSI horní páskové jednotky.
3
Pomocí dalšího kabelu SCSI připojte dolní páskovou jednotku sběrnice SCSI
k hostitelskému počítači.
4
Pomocí terminátoru SCSI zakončete horní páskovou jednotku sběrnice SCSI.
EMEA1.book Page 28 Tuesday, March 9, 2010 4:38 PM
Příručka Dell PowerVault ML6000 – začínáme
29
1
Připojení jedné páskové jednotky
na sběrnici SCSI
2
Připojení dvou páskových
jednotek na sběrnici SCSI
3
Kabel SCSI k hostiteli
4
Terminátor SCSI
EMEA1.book Page 29 Tuesday, March 9, 2010 4:38 PM
30
Příručka Dell PowerVault ML6000 – začínáme
Připojování sběrnice optickým kabelem k hostiteli nebo přepínači
Tento krok proveďte, pokud Vaše knihovna obsahuje páskové jednotky Fibre
Channel, které budete připojovat přímo k hostiteli nebo přepínači.
Připojte hostitele (nebo přepínač) ke knihovně pomocí kabelů Fibre Channel. Pro
každou páskovou jednotku:
1
Připojte jeden konec kabelu Fibre Channel k portu Fibre Channel na páskové
jednotce.
2
Připojte druhý konec kabelu Fibre Channel k hostiteli nebo přepínači.
1
Port Fibre Channel
2
Kabel Fibre Channel
EMEA1.book Page 30 Tuesday, March 9, 2010 4:38 PM
Příručka Dell PowerVault ML6000 – začínáme
31
Připojování sběrnice s optickými kabely přes optickou sběrnici I/O Blade
Tento krok proveďte, pokud Vaše knihovna obsahuje páskové jednotky Fibre
Channel, které budete připojovat k hostiteli nebo přepínači prostřednictvím
modulu Fibre Channel I/O blade.
1
Pro každou páskovou jednotku: Připojte jeden konec kabelu Fibre Channel k
portu Fibre Channel na páskové jednotce. Připojte druhý konec kabelu Fibre
Channel k portu iniciátora (dolní porty 3—6) na nejbližším modulu Fibre
Channel I/O blade.
2
Každý modul Fibre Channel I/O blade: Připojte jeden konec kabelu Fibre
Channel k jednomu z cílových portů (horní porty 1 a 2) na modulu Fibre
Channel I/O blade. Připojte druhý konec kabelu Fibre Channel k hostiteli
nebo přepínači.
Pomocí kabelů Ethernet připojte LCB v řídícím modulu knihovny 5U ke každému
rozšiřujícímu modulu knihovny 9U, který obsahuje modul Fibre Channel I/O
blade. Pro každý modul Fibre Channel I/O blade nainstalovaný v rozšiřujícím
modulu knihovny 9U:
3
Připojte jeden konec kabelu Ethernet k některému ze čtyř prostředních portů
Ethernet na rozbočovači LCB Ethernet.
4
Připojte druhý konec kabelu k příslušnému portu na rozšiřujícím modulu
knihovny 9U. Pokud je modul Fibre Channel I/O blade nainstalován v horní
pozici, použijte port označený „UPPER“ (HORNÍ). Pokud je modul Fibre
Channel I/O blade nainstalován v dolní pozici, použijte port označený
„LOWER“ (DOLNÍ).
EMEA1.book Page 31 Tuesday, March 9, 2010 4:38 PM
32
Příručka Dell PowerVault ML6000 – začínáme
1
Prostřední porty Ethernet na
rozbočovači LCB
2
Modul Fibre Channel I/O blade
3
Cílové porty
4
Porty iniciátora
5
Port Fibre Channel
6
Kabely Ethernet
7
Porty „UPPER“ a „LOWER“
(DOLNÍ)
EMEA1.book Page 32 Tuesday, March 9, 2010 4:38 PM
Příručka Dell PowerVault ML6000 – začínáme
33
Sériové připojování dodávanými kabely SCSI (SAS)
Tento krok proveďte, pokud Vaše knihovna obsahuje páskové jednotky s
rozhraním SAS (Serial Attached SCSI).
Použijte kabely SAS pro připojení páskových jednotek SAS přímo k hostiteli. Pro
každou páskovou jednotku:
1
Připojte jeden konec kabelu SAS k portu SAS na páskové jednotce.
2
Druhý konec kabelu SAS připojte přímo k hostiteli.
1
Port SAS
2
Kabel SAS
EMEA1.book Page 33 Tuesday, March 9, 2010 4:38 PM
34
Příručka Dell PowerVault ML6000 – začínáme
Dokončení kabeláže knihovny
Všechny knihovny musí používat modulární terminátory. Knihovny, které se
skládají z více modulů, musí používat kabely modul-modul.
POZOR! Modulární terminátor není totožný s terminátorem SCSI. Při
použití terminátoru SCSI místo modulárního terminátoru může dojít k
poškození knihovny. Modulární terminátory se nacházejí v plastovém
obalu, připevněném k zadní části řídícího modulu knihovny 5U.
1
Odstraňte ochranná plastová víčka zakrývající konektory modulu na řídícím
modulu knihovny 5U a rozšiřujícím modulu (modulech) knihovny 9U.
2
Pomocí kabelů modul-modul ze sady příslušenství připojte každý modul k
modulu nad ním. Připojte jeden konec kabelu k dolnímu modulu. Poté
připojte druhý konec kabelu k modulu nad ním.
3
Pomocí modulárních terminátorů z plastového obalu, připevněného k zadní
části řídícího modulu knihovny 5U, zakončete nejvyšší a nejnižší moduly.
4
Chcete-li získat vzdálený přístup ke knihovně prostřednictvím webového
klienta, připojte kabel Ethernet k hornímu portu Gigabit Ethernet na řídícím
modulu blade knihovny (LCB). (Kabel Ethernet není dodáván.)
5
Každý modul, který obsahuje páskové jednotky, vyžaduje alespoň jeden
zdroj napájení. Pro každý zdroj napájení připojte jeden konec napájecí šňůry
ke zdroji napájení. Připojte druhý konec k nejbližšímu uzemněnému zdroji
střídavého proudu (jehož typ odpovídá označení na štítku výrobku).
EMEA1.book Page 34 Tuesday, March 9, 2010 4:38 PM
Příručka Dell PowerVault ML6000 – začínáme
35
Elektrické napájení knihovny
1
Zapněte vypínač napájení každého zdroje.
2
Zapněte hlavní napájení knihovny pomocí vypínače na přední straně řídícího
modulu knihovny 5U.
Po dokončení automatického testu při spuštění (POST) a inicializaci
knihovny se na panelu obsluhy zobrazí Setup Wizard (Průvodce nastavením).
Tento proces trvá přibližně 30 minut. Během tohoto procesu nevypínejte
napájení knihovny.
1
Modulární terminátor
2
Kabel Ethernet připojený k portu
Gigabit Ethernet
3
Kabel modul-modul
4
Napájecí šňůry
EMEA1.book Page 35 Tuesday, March 9, 2010 4:38 PM
36
Příručka Dell PowerVault ML6000 – začínáme
Začínáme
1
Nakonfigurujte knihovnu pomocí Průvodce nastavením. Podrobnosti viz
Uživatelská příručka k páskové knihovně Dell™ PowerVault™ ML6000
.
2
Ověřte, zda může každý hostitel komunikovat s páskovými jednotkami
knihovny. Podrobnosti viz dokumentace k hostitelské aplikaci.
1
Vypínač zdroje napájení
EMEA1.book Page 36 Tuesday, March 9, 2010 4:38 PM
Guide de démarrage rapide Dell PowerVault ML6000
37
Guide de démarrage rapide de Dell PowerVault ML6000 (French)
AVERTISSEMENT :
Avant d'effectuer le câblage de votre bibliothèque, consultez
le Manuel d'informations sur les produits système Dell™ PowerVault™.
AVERTISSEMENT :
Toutes les bibliothèques doivent être installées dans un rack
disposant d'une borne de mise à la terre (masse) principale. Pour obtenir des
informations détaillées sur l'installation, consultez le Guide d'utilisation de la
bandothèque Dell™ PowerVault™ ML6000.
AVERTISSEMENT :
La prise de courant doit être installée près de l'équipement
et être facilement accessible.
AVERTISSEMENT :
L'interrupteur d'alimentation du panneau avant ne constitue
pas le principal dispositif de déconnexion. Veuillez retirer toutes les prises
principales des entrées de l'appareil avant d'éteindre complètement l'appareil.
AVERTISSEMENT :
Avant d'effectuer le câblage de votre bibliothèque, retirez
tout l'emballage intérieur. Assurez-vous de retirer l'attache orange du robot qui
fixe le robot à la base de la bibliothèque. Retirez également la bande jaune du
poste I/E. Conservez tout le matériel d'emballage et l'attache orange du robot au
cas où vous auriez besoin de déplacer ou d'expédier la librairie par la suite. Pour
obtenir des détails, consultez les instructions de déballage contenues dans la
librairie et le Guide d'utilisation de la bandothèque Dell™ PowerVault™ ML6000.
EMEA1.book Page 37 Tuesday, March 9, 2010 4:38 PM
38
Guide de démarrage rapide Dell PowerVault ML6000
Installation de votre bibliothèque dans un rack
Toutes les bibliothèques Dell™ PowerVault™ ML6000 doivent être installées
dans un rack. Pour obtenir des instructions, consultez le
Guide d'utilisation de la
bandothèque Dell
™
PowerVault
™
ML6000
.
•
ML6010 CM est un module de contrôle de bibliothèque 5U unique.
•
ML6020 CM est composé d'un (1) module de contrôle de bibliothèque
ML6010 CM 5U et d'un (1) module d'extension de bibliothèque ML6000
EM 9U (14U au total).
•
ML6030 CM est composé d'un (1) module de contrôle de bibliothèque
ML6010 CM 5U et de deux (2) modules d'extension de bibliothèque
ML6000 EM 9U (23U au total).
Instructions spéciales pour les lecteurs de bande LTO-5
La bibliothèque ne prend actuellement pas en charge les fonctionnalités
suivantes des lecteurs de bande LTO-5 :
1
Module de contrôle de bibliothèque 5U
2
Module de contrôle de bibliothèque 9U
EMEA1.book Page 38 Tuesday, March 9, 2010 4:38 PM
Guide de démarrage rapide Dell PowerVault ML6000
39
•
Port Ethernet
•
Port numéro 2 des lecteurs de bande à double port
Voir les deux figures suivantes pour plus de détails.
Lecteur de bande Fibre Channel LTO-5
Lecteur de bande LTO-5 SAS
1
Port Ethernet : ne pas utiliser
2
Port Fibre Channel : port à utiliser
1
Port SAS 1 : port à utiliser
2
Port SAS 2 : ne pas utiliser
3
Port Ethernet : ne pas utiliser
EMEA1.book Page 39 Tuesday, March 9, 2010 4:38 PM
40
Guide de démarrage rapide Dell PowerVault ML6000
Connexion des câbles SCSI parallèles
Effectuez cette étape si votre bibliothèque contient des lecteurs de bande SCSI
parallèles.
Il existe deux manières recommandées d'effectuer le câblage des lecteurs de
bande SCSI : un lecteur de bande par bus SCSI ou deux lecteurs de bande par
bus SCSI.
REMARQUE :
Pour éviter d'éventuels problèmes de performance, ne connectez
pas plus de deux lecteurs de bande par bus SCSI.
Pour connecter un lecteur de bande par bus SCSI :
1
Utilisez un câble SCSI pour connecter le port inférieur du lecteur de
bande à votre système hôte.
2
Raccordez un terminateur SCSI pour terminer le port supérieur du lecteur
de bande.
Pour connecter deux lecteurs de bande par bus SCSI :
1
Connectez une extrémité du câble SCSI au port SCSI supérieur du lecteur
de bande inférieur.
2
Connectez l'autre extrémité du câble au port SCSI inférieur du lecteur de
bande supérieur.
3
Utilisez un autre câble SCSI pour connecter le lecteur de bande inférieur
du bus SCSI à votre système hôte.
4
Utilisez un terminateur SCSI pour terminer le lecteur de bande supérieur
du bus SCSI.
EMEA1.book Page 40 Tuesday, March 9, 2010 4:38 PM

