Hach-Lange POLYMETRON 9500 Basic User Manual: Instalacja
Instalacja: Hach-Lange POLYMETRON 9500 Basic User Manual

można zostać wykorzystana jako szablon do montażu panelu, zanim oddzielona zostanie jej
wewnętrzna część.
Instalacja
Montaż elementów i wymiary
U W A G A
Zagrożenie obrażeniami ciała. Tylko wykwalifikowany personel powinien przeprowadzać prace opisane w tym
rozdziale instrukcji obsługi.
Regulator można montować na powierzchni, panelu lub rurze (poziomo i pionowo). Więcej opcji
montażu można znaleźć w częściach Rysunek 2, Rysunek 3 na stronie 212, Rysunek 4
na stronie 213, Rysunek 5 na stronie 214 oraz Rysunek 6 na stronie 215.
W przypadku montażu poziomego do wspornika montażowego należy pionowo zamocować stopy
montażowe (Rysunek 2).
W przypadku montażu pionowego i poziomego należy w sposób pokazany na rysunku Rysunek 5
na stronie 214 zamocować do kontrolera wspornik montażowy.
210 Polski

Rysunek 2 Elementy montażowe
1 Stopy montażowe (2 szt.) 7 Podkładka zabezpieczająca, ¼ cala ID (4 szt.)
2 Uszczelka montażowa do mocowania panelu,
8 Nakrętki sześciokątne M5 x 0,8 Keps (4 szt.)
neoprenowa
3 Wspornik do montażu ściennego i narurowego 9 Śruby z łbem walcowym zaokrąglonym,
M 5 x 0,8 x 100 mm (4 szt.) (do montażu na rurach
o różnej średnicy)
4 Uszczelka wibroizolacyjna do montażu narurowego 10 Śruby z łbem walcowym zaokrąglonym,
M 5 x 0,8 x 15 mm (4 szt.)
5 Podkładka wibroizolacyjna do montażu narurowego
11 Wspornik do montażu panelowego
(4 szt.)
6 Podkładki płaskie, ¼ cala ID (4 szt.)
Polski 211

Mocowanie kontrolera
Rysunek 3 Wymiary montowania powierzchniowego
212 Polski

Rysunek 4 Wymiary montowania panelowego
Uwaga: Jeżeli do montowania panelowego używany jest wspornik (w zestawie), należy przełożyć kontroler przez
otwór w panelu, a następnie nasunąć wspornik na kontroler z tyłu panelu. Do mocowania wspornika do kontrolera
należy użyć czterech śrub z łbem walcowym zaokrąglonym o długości 15 mm (w zestawie).
Polski
213

Rysunek 5 Montaż narurowy (rura pionowa)
214 Polski

Rysunek 6 Widok z góry i z dołu
Zabezpieczenie przed wysokim napięciem
Przewody wysokiego napięcia kontrolera znajdują się za zabezpieczeniem w obudowie urządzenia.
Zabezpieczenie musi pozostawać na miejscu, chyba że montuje się moduły lub gdy wykwalifikowany
specjalista podłącza zasilanie, alarmy, wyjścia lub przekaźniki. Bariery nie wolno usuwać, gdy
urządzenie jest podłączone do zasilania.
Polski
215

Uwagi dotyczące wyładowań elektrostatycznych (ESD)
P O W I A D O M I E N I E
Potencjalne uszkodzenie urządzenia. Elektryczność statyczna może doprowadzić do uszkodzenia delikatnych
wewnętrznych komponentów elektronicznych, powodując gorsze działanie urządzenia lub jego ewentualne
uszkodzenie.
Wykonaj czynności dla tej procedury, aby zapobiec wyładowaniom elektrostatycznym, które mogłoby
uszkodzić przyrząd:
• Dotknij uziemionej metalowej powierzchni (np. obudowy przyrządu lub metalowej rury), aby
rozładować napięcie elektrostatyczne swojego ciała.
• Unikaj wykonywania gwałtownych ruchów. Elementy wrażliwe na ładunki elektrostatyczne należy
transportować w opakowaniach antystatycznych.
• Załóż opaskę na nadgarstek połączoną z uziemieniem.
• Pracuj w środowisku wyłożonym antystatycznymi płytkami podłogowymi i okładziną na stole.
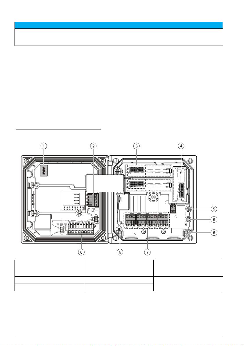
Opis okablowania
Na rysunku Rysunek 7 przedstawione jest okablowanie w urządzeniu z usuniętą osłoną wysokiego
napięcia. Po lewej stronie rysunku widoczny jest tył pokrywy urządzenia.
Uwaga: Przed rozpoczęciem instalowania modułu ze złączy należy zdjąć nasadki.
Rysunek 7 Opis połączeń przewodów
1
1 Podłączenie przewodu
4 Złącze modułu komunikacji (np.
7 Połączenia przekaźników
roboczego
Modbus, Profibus, opcjonalny
moduł 4–20 mA itp.)
1
1
1
2 Wyjście 4–20 mA
5 Złącze zasilania AC i DC
8 Złącze wejść dyskretnych
3 Złącze modułu czujnika 6 Zacisk uziemienia
1
Terminale można zdemontować, aby ułatwić dostęp.
216
Polski

Okablowanie zasilające
O S T R Z E Ż E N I E
Potencjalne niebezpieczeństwo śmiertelnego porażenia prądem elektrycznym. Wykonując połączenia elektryczne
zawsze odłączać zasilanie urządzenia.
O S T R Z E Ż E N I E
Potencjalne niebezpieczeństwo śmiertelnego porażenia prądem elektrycznym. Jeśli sprzęt jest stosowany
na zewnątrz lub w potencjalnie wilgotnych lokalizacjach, należy zastosować wyłącznik różnicowo-prądowy
przed podłączeniem sprzętu do głównego źródła zasilania.
N I E B E Z P I E C Z E Ń S T W O
Niebezpieczeństwo śmiertelnego porażenia prądem elektrycznym. Nie należy podłączać zasilania prądem
przemiennym do modelu zasilanego prądem stałym 24 V.
O S T R Z E Ż E N I E
Potencjalne niebezpieczeństwo śmiertelnego porażenia prądem elektrycznym. Podłączenie uziemienia jest
wymagane w przypadku podłączeń 100-240 VAC i 24 VDC. Brak podłączenia wydajnego uziemienia może
skutkować porażeniem prądem lub niewydajnym działaniem urządzenia ze względu na zakłócenia
elektromagnetyczne. ZAWSZE należy podłączyć wydajne uziemienie do zacisku kontrolera.
P O W I A D O M I E N I E
Urządzenia należy zainstalować w lokalizacji oraz w pozycji, które umożliwiają łatwe odłączanie urządzenia i jego
obsługę.
Kontroler można zakupić w wersji zasilanej prądem 100–240 V AC lub 24 V DC. Należy postępować
zgodnie z instrukcjami dotyczącymi okablowania konkretnego modelu.
Urządzenie można podłączyć do zasilania liniowego poprzez okablowanie stałe w rurce lub
za pomocą przewodu zasilającego. Niezależnie od typu okablowania, połączenia wykonuje się w tym
samym terminalu. Wymagane jest zainstalowanie lokalnego odłącznika zasilania elektrycznego
i musi on być oznakowany w instalacjach wszelkich typów. Przy zastosowaniach z okablowaniem
stałym, wymagania przewodu uziemiającego wynoszą 18–12 AWG.
Uwagi:
• Osłona napięcia musi zostać zdjęta przed wykonaniem dowolnych połączeń elektrycznych.
Po wykonaniu wszystkich połączeń, należy ponownie zamontować osłonę przed zamknięciem
osłony urządzenia.
• Aby utrzymać zgodność z normą bezpieczeństwa NEMA 4X/IP66, można użyć uszczelniającej
dławicy kablowej oraz przewodu zasilającego krótszego niż 3 metry (10 stóp) z trzema
przewodnikami o średnicy 18 (wraz z przewodem uziemiającym).
• Urządzenia można zamawiać w wersji z zamocowanymi już przewodami AC. Można także
zamawiać dodatkowe przewody zasilające.
• Źródło zasilania DC, które dostarcza zasilanie do urządzenia V DC musi zachować regulację
napięcia w określonych granicach 24 V DC-15% +20%. Źródło zasilania DC musi także
odpowiednio zabezpieczać przed przepięciami oraz przebiegami nieustalonymi.
Procedura okablowania
Aby podłączyć urządzenie do źródła zasilania, należy postępować zgodnie z ponumerowanymi
krokami, informacjami w Tabela 1 lub Tabela 2. Każdy przewód należy wkładać do odpowiedniego
terminala, aż do momentu, gdy izolacja oprze się o złącze, bez widocznego nieizolowanego
przewodu. Po podłączeniu lekko pociągnij za przewód w celu sprawdzenia, czy został
on odpowiednio podłączony. Uszczelnić wszelkie nieużywane otwory skrzynki regulatora za pomocą
korków uszczelniających otworów rur kablowych.
Polski
217

Tabela 1 Informacje o okablowaniu zasilającym (tylko modele zasilane prądem zmiennym)
Zacisk Opis Kolor — Ameryka Płn. Kolor — UE
1 Przewód fazowy (L1) Czarny Brązowy
2 Neutralny (L2) Biały Niebieski
— Uziemienie ochronne (PE) Zacisk oczkowy uziemiający Zielony Zielony i żółty
Tabela 2 Informacje o okablowaniu DC (tylko modele DC)
Zacisk Opis Kolor — Ameryka Płn. Kolor — UE
1 +24 VDC Czerwony Czerwony
2 Powrót 24 V prądu stałego Czarny Czarny
— Uziemienie ochronne (PE) Zacisk oczkowy uziemiający Zielony Zielony i żółty
218 Polski

Polski 219

Alarmy i przekaźniki
Kontroler jest wyposażony w cztery niezasilane, jednobiegunowe przekaźniki - 100–250 V AC,
50/60 Hz, maks. 5 amperów rezystancji. Styki: 250 V AC, maks. 5 amperów rezystancji dla
kontrolera zasilanego prądem zmiennym i 4 V DC, maks. 5 A rezystancji dla kontrolera zasilanego
prądem stałym. Przekaźniki nie są chronione przez obciążeniami indukcyjnymi.
Okablowanie przekaźników
O S T R Z E Ż E N I E
Potencjalne niebezpieczeństwo śmiertelnego porażenia prądem elektrycznym. Wykonując połączenia elektryczne
zawsze odłączać zasilanie urządzenia.
O S T R Z E Ż E N I E
Potencjalne zagrożenie pożarem. Styki przekaźników mają wytrzymałość 5 A i nie są chronione przez
bezpiecznik. Zewnętrzne obciążenia podłączane do przekaźników muszą być wyposażone w urządzenia
ograniczające prąd do <5 A.
O S T R Z E Ż E N I E
Potencjalne zagrożenie pożarem. Nie należy wewnątrz urządzenia łączyć szeregowo złączy przekaźników ani
przewodów połączeniowych ze złącza zasilania.
O S T R Z E Ż E N I E
Potencjalne niebezpieczeństwo śmiertelnego porażenia prądem elektrycznym. Aby zachować zgodność obudowy
ze standardami NEMA/IP, do doprowadzania przewodów do urządzenia należy używać wyłącznie osprzętu
do rurkowania oraz dławików zgodnych co najmniej ze standardem NEMA 4X/IP66.
Urządzenia zasilane prądem 100–250 V AC
O S T R Z E Ż E N I E
Potencjalne niebezpieczeństwo śmiertelnego porażenia prądem elektrycznym. Kontrolery o zasilaniu sieciowym
(115 V-230 V) są przeznaczone dla połączeń przekaźnika do obwodów zasilających (tj. napięcia większe niż
16 V-RMS, 22.6 V-PEAK lub 35 VDC).
Ten przedział okablowania nie jest przeznaczony do podłączania napięcia przekraczającego
250 V AC.
Urządzenie zasilanie prądem 24 V DC
O S T R Z E Ż E N I E
Potencjalne niebezpieczeństwo śmiertelnego porażenia prądem elektrycznym. Kontrolery zasilane napięciem 24V
są przeznaczone dla połączeń przekaźnika do obwodów niskiego napięcia (tj. napięcia o wartości mniejszej niż
16 V-RMS, 22.6 V-PEAK lub 35 VDC).
Przekaźniki kontrolera 24 V DC są przeznaczone do podłączania do obwodów NISKO-napięciowych
(np. napięcie niższe niż 30 V RMS, 42,2 V-PEAK lub 60 V DC. Ten przedział okablowania nie jest
przeznaczony do połączeń przekraczających te zakresy.
Do złącza przekaźnika pasują przewody 18–12 AWG (zależnie od obciążenia). Rozmiar przewodu
mniejszy niż 18 AWG nie jest zalecany.
Styki przekaźnika normalnie otwarte (NO) i wspólne (COM) zostaną zwarte w przypadku
uaktywnienia się alarmu lub innego warunku. Styki przekaźnika normalnie zamknięte (NC) i wspólne
(COM) zostaną zwarte w przypadku, gdy alarm lub inny warunek nie uaktywnią się (chyba
że wybrana zostanie opcja Fail Safe [Odporny na uszkodzenia]) lub gdy urządzenie zostanie
odłączone od zasilania.
Większość połączeń przekaźników wykorzystuje złącza NO i COM lub NC i COM. Ponumerowane
kroki montażowe przedstawiają sposób podłączania do złączy NO i COM.
220
Polski

Polski 221

Analogowe złącza wyjściowe
O S T R Z E Ż E N I E
Potencjalne niebezpieczeństwo śmiertelnego porażenia prądem elektrycznym. Wykonując połączenia elektryczne
zawsze odłączać zasilanie urządzenia.
O S T R Z E Ż E N I E
Potencjalne niebezpieczeństwo śmiertelnego porażenia prądem elektrycznym. Aby zachować zgodność obudowy
ze standardami NEMA/IP, do doprowadzania przewodów do urządzenia należy używać wyłącznie osprzętu
do rurkowania oraz dławików zgodnych co najmniej ze standardem NEMA 4X/IP66.
W zestawie dostępne są dwa izolowane wyjścia analogowe. Takie wyjścia przeważnie stosuje się
do analogowego przesyłania sygnału lub do kontrolowania innych urządzeń zewnętrznych. Przewody
do kontrolera należy podłączać w sposób pokazany na Rysunek 8 i Tabela 3.
Uwaga: Na rysunku Rysunek 8 widać tył pokrywy kontrolera, a nie wnętrze jego głównej komory.
Rysunek 8 Analogowe złącza wyjściowe
Tabela 3 Złącza wyjściowe
Przewody przyrządu rejestrującego Lokalizacja płytki obwodu
Wyjście 2- 4
Wyjście 2+ 3
Wyjście 1- 2
Wyjście 1+ 1
1. Otworzyć pokrywę kontrolera.
2. Przeciągnąć przewody przez dławicę kablową.
3. Ułożyć przewody wedle potrzeb i zacisnąć dławicę kablową.
4. Przyłączenie należy przeprowadzić przy pomocy ekranowanej skrętki dwużyłowej i przyłączyć
ekran po stronie kontrolowanego komponentu lub po stronie pętli kontrolnej.
• Nie wolno przyłączać ekranu na obu końcach przewodu.
• Użycie nieekranowanego przewodu może spowodować emisję na częstotliwości radiowej lub
poziom wrażliwości na zakłócenia wyższy od dopuszczalnego.
• Maksymalna oporność pętli wynosi 500 omów.
222
Polski

5. Zamknij pokrywkę kontrolera i dokręć śrubki.
6. Skonfiguruj wyjścia w urządzeniu sterującym.
Złącza wejść dyskretnych
O S T R Z E Ż E N I E
Potencjalne niebezpieczeństwo śmiertelnego porażenia prądem elektrycznym. Wykonując połączenia elektryczne
zawsze odłączać zasilanie urządzenia.
O S T R Z E Ż E N I E
Potencjalne niebezpieczeństwo śmiertelnego porażenia prądem elektrycznym. Aby zachować zgodność obudowy
ze standardami NEMA/IP, do doprowadzania przewodów do urządzenia należy używać wyłącznie osprzętu
do rurkowania oraz dławików zgodnych co najmniej ze standardem NEMA 4X/IP66.
Trzy wejścia dyskretne są przeznaczone dla wejść zamknięcia przełącznika lub wejść napięcia
na poziomie układu logicznego. Sposób podłączania przewodów do kontrolera i ustawiania zworek
pokazano na Rysunek 9, Tabela 4 i Rysunek 10.
Uwaga: Na rysunku Rysunek 9 widać tył pokrywy kontrolera, a nie wnętrze jego głównej komory.
Rysunek 9 Złącza wejść dyskretnych
Tabela 4 Złącza wejściowe
Wejścia dyskretne Położenie złącza - wejścia
Położenie złącza - wejścia
przełącznika
napięcia
Wejście 1+ 3 2
Wejście 1- 2 3
Wejście 2+ 6 5
Wejście 2- 5 6
Wejście 3+ 8 7
Wejście 3- 7 8
Polski 223
Оглавление
- English..............................................................................................................................3 Deutsch..........................................................................................................................27 Italiano............................................................................................................................53 Français.........................................................................................................................79 Español........................................................................................................................105 Português....................................................................................................................131 中文...............................................................................................................................157 Nederlands.................................................................................................................180 Polski............................................................................................................................206 Suomi............................................................................................................................232 Русский........................................................................................................................256
- Additional information
- Installation
- User interface and navigation
- System startup
- Maintenance
- Zusätzliche Informationen
- Installation
- Benutzerschnittstelle und Navigation
- Inbetriebnahme
- Wartung
- Fehlersuche
- Ulteriori informazioni
- Informazioni generali
- Installazione
- Interfaccia utente e navigazione
- Avvio del sistema
- Manutenzione
- Risoluzione dei problemi
- Informations supplémentaires
- Généralités
- Montage
- Interface utilisateur et navigation
- Démarrage du système
- Entretien
- Recherche de panne
- Información adicional
- Información general
- Instalación
- Interfaz del usuario y navegación
- Arranque del sistema
- Mantenimiento
- Solución de problemas
- Informação adicional
- Informação geral
- Instalação
- Interface do utilizador e navegação
- Arranque do sistema
- Manutenção
- Resolução de problemas
- 附加信息
- 安装
- 用户界面及导航
- 系统启动
- 维护
- Meer informatie
- Algemene informatie
- Installatie
- Gebruikersinterface en navigatie
- Het systeem starten
- Onderhoud
- Foutenopsporing
- Dodatkowe informacje
- Instalacja
- Interfejs użytkownika i nawigacja
- Uruchamianie systemu
- Konserwacja
- Rozwiązywanie problemów
- Lisätiedot
- Asennus
- Käyttöliittymä ja selaaminen
- Järjestelmän käynnistäminen
- Huolto
- Vianmääritys
- Дополнительная информация
- Общая информация
- Монтаж
- Пользовательский интерфейс и управление курсором
- Запуск системы
- Техническое обслуживание

