Hotpoint-Ariston KIO 632 C C: Installation
Installation: Hotpoint-Ariston KIO 632 C C
39
DE
Installation
!
Bewahren Sie diese Bedienungsanleitung bitte sorgfältig
auf, damit Sie sie jederzeit zu Rate ziehen können. Sorgen
Sie dafür, dass sie im Falle eines Verkaufs, eines Umzugs
oder einer Übergabe an einen anderen Benutzer das Gerät
stets begleitet, damit auch der Nachbesitzer die Möglichkeit
hat, darin nachschlagen zu können.
!
Lesen Sie bitte die nachfolgenden Hinweise aufmerksam
durch: sie liefern wichtige Informationen hinsichtlich der
Installation, des Gebrauchs und der Sicherheit.
Posizionamento
!
Verpackungsmaterial ist kein Spielzeug für Kinder. Es ist
entsprechend den Vorschriften zur getrennten Müllsammlung
zu entsorgen (
siehe Vorsichtsmaßregeln und Hinweise
).
!
Die Installation ist gemäß den vorliegenden Anweisungen
und von Fachpersonal durchzuführen. Jede unsachgemäße
Installation kann Menschen und Tiere gefährden oder
Sachschaden verursachen.
Einbau
Um eine einwandfreie Betriebsweise des Gerätes zu
gewährleisten, muss der Umbauschrank folgende
Eigenschaften aufweisen:
• Die Auflagefläche muss aus hitzebeständigem Material
beschaffen sein, um einer Temperatur von ca. 100°C
standzuhalten.
• Soll das Kochfeld über einem Backofen installiert werden,
muss letzterer mit einem Kühlsystem mit Zwangsbelüftung
ausgestattet sein.
• Von der Installation eines Kochfeldes über einem
Geschirrspüler wird abgeraten. Gegebenenfalls ist zur
Abdichtung ein Zwischenteil zwischen beiden Geräten zu
installieren.
• Je nach dem zu installierenden Kochfeld (
siehe
Abbildungen
) sind Arbeitsflächenausschnitte folgender
Abmessungen vorzusehen:
560 +/- 1
490 +/- 1
48
590
520
690
520
560 +/- 1
490 +/- 1
48
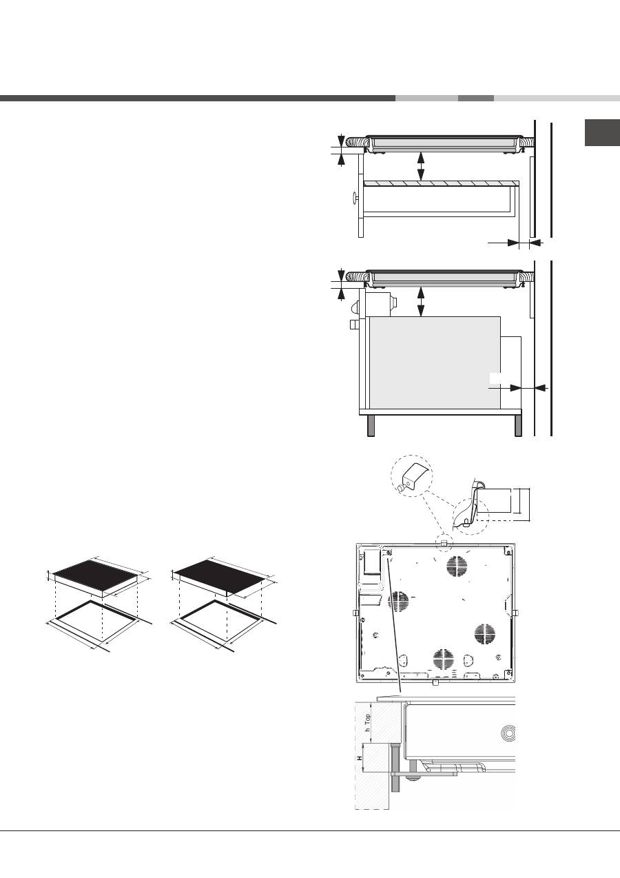
Belüftung
Zur ausreichenden Belüftung und zur Vermeidung
der Überhitzung der Flächen rund um das Gerät muss das
Kochfeld wie folgt positioniert werden:
• in einem Abstand von mindestens 40 mm von der dahinter
liegenden Wand;
• um einen Abstand von mindestens 20 mm zwischen
dem für den Einbau bestimmten Ausschnitt und dem
entsprechenden Unterschrank zu gewährleisten.
• Angrenzende Schränke, deren Höhe die der Arbeitsplatte
überschreiten, müssen einen Abstand vom Rand der
Kochmulde von mindestens 600 mm aufweisen.
5 mm
min. 20 mm
min. 20 mm
min. 40 mm
WÄRMEFACH
5 mm
min. 40 mm
HEIßLUFT
FRONTSEITE DES
KOCHFELDES
AUFLAGEFLÄCHE
30
40
KOCHFELD
UMGEDREHT
AUFLAGEFLÄCHE
40
DE
Befestigung
Das Kochfeld muss auf einer
perfekt ebenen Stütz- bzw.
Auflagefläche installiert werden.
Durch unsachgemäße Befestigung hervorgerufene
Verformungen könnten die Eigenschaften und Leistungen
des Kochfeldes beeinträchtigen.
Die Länge der Regelschrauben der Befestigungsklammern
wird vor Montage derselben eingestellt,
und zwar je nach der
Stärke der Auflagefläche:
• 30 mm - Schraube 17.5 mm;
• 40 mm - Schraube 7.5 mm.
Verfahren Sie zur Befestigung wie folgt:
1. Schrauben Sie die 4 Zentrierungsfedern mittels der vier
kurzen, stumpfen Schrauben in die in der Mitte einer jeden
Kochfeldseite befindlichen Lochbohrungen.
2. Setzen Sie das Kochfeld durch leichtes Andrücken
des gesamten umlaufenden Randes mittig in den
Möbelausschnitt ein, und zwar so, dass es vorschriftsmäßig
auf der gesamten Auflagefläche aufstützt.
3. Für Kochfelder mit Seitenprofilen: Stecken Sie nach
Einsatz des Kochfeldes in den Möbelausschnitt die 4
Befestigungshaken (ein jeder mit seinem Stift) in den
umlaufenden unteren Rand des Kochfeldes, und schrauben
Sie diese mittels der vier langen, spitzen Schrauben fest, bis
das Glas an der Auflagefläche anhaftet.
!
Die Schrauben der Zentrierungsfedern müssen unbedingt
zugänglich sein.
!
Gemäß den Sicherheitsvorschriften muss nach erfolgtem
Einbau die Möglichkeit einer Berührung mit Strom führenden
Teilen ausgeschlossen sein.
!
Alle zum Schutz dienenden Teile müssen so befestigt
werden, dass ein Entfernen derselben ohne Zuhilfenahme
eines Werkzeugs nicht möglich ist.
Elektroanschluss
!
Bei der Installation des Kochfeldes und der eines
eventuellen Einbaubackofens müssen sämtliche
Elektroanschlüsse getrennt vorgenommen werden, und dies
nicht nur aus Sicherheitsgründen, sondern auch um den
Backofen, falls nötig, leichter herausziehen zu können.
Einphasenanschluss
Das Kochfeld ist mit einem bereits angeschlossenen
Netzkabel ausgestattet und ist für einen Einphasenanschluss
voreingestellt. Schließen Sie die Drähte gemäß nachfolgender
Tabelle und Zeichnungen an:
Netzspannung
und -frequenz
Elektrokabel
Anschluss der Drähte
220-240V 1+N ~
50 Hz
: gelb/grün;
N
: die 2 blauen Drähte zusammen
L
: braun zusammen mit schwarz
Andere Anschlussarten
Sollte die Elektroanlage einer der nachfolgenden
Eigenschaften entsprechen:
Netzspannung und -frequenz
• 400V - 2+N ~ 50 Hz
• 220-240V 3 ~ 50 Hz
• 400V 3 - N ~ 50 Hz
• 400V - 2+2N ~ 50 Hz
Trennen Sie die Drähte und schließen Sie sie gemäß
nachfolgender Tabelle und Zeichnungen an:
Netzspannung
und -frequenz
Elektrokabel
Anschluss der Drähte
400V - 2+N ~
50 Hz
220-240V 3 ~
50 Hz
400V 3-N ~
50 Hz
: gelb/grün;
N
: die 2 blauen
Drähte zusammen
L1
: schwarz
L2
: braun
400V - 2+2N ~
50 Hz
: gelb/grün;
N1
: blau
N2
: blau
L1
: schwarz
L2
: braun
Anschluss des Netzkabels an das Stromnetz
Wird das Gerät direkt an das Stromnetz angeschlossen, ist
zwischen Stromnetz und Gerät ein allpoliger Schalter mit
einer Mindestkontaktöffnung von 3 mm zwischenzuschalten.
!
Der Installateur ist für den ordnungsgemäßen elektrischen
Anschluss sowie die Einhaltung der Sicherheitsvorschriften
verantwortlich.
Vor dem Anschluss stellen Sie bitte sicher, dass:
• die Netzsteckdose geerdet ist und den gesetzlichen
Bestimmungen entspricht;
• die Netzsteckdose für die auf dem Typenschild
(befindlich auf dem Gerät) angegebene maximale
Leistungsaufnahme des Gerätes ausgelegt ist;
• die Netzspannung im Bereich der auf dem Typenschild
angegebenen Werte liegt;
• die Steckdose mit dem Netzstecker kompatibel ist. Sollte
dies nicht der Fall sein, wechseln Sie bitte die Steckdose
oder den Netzstecker aus; verwenden Sie keine
Verlängerungen und Mehrfachsteckdosen.
!
Netzkabel und Steckdose müssen bei installiertem Gerät
leicht zugänglich sein.
!
Das Netzkabel darf nicht gebogen oder eingeklemmt
werden.
!
Das Netzkabel muss regelmäßig kontrolliert werden und
darf nur durch autorisiertes Fachpersonal ausgetauscht
werden.
!
Der Hersteller lehnt jede Verantwortung ab, falls diese
Vorschriften nicht eingehalten werden sollten.
!
Entfernen oder ersetzten Sie unter keinen Umständen
das Netzkabel. Wird das Kabel entfernt oder ersetzt,
verfallen sowohl die Gewährleistung als auch das
CE-Zeichen. INDESIT übernimmt keine Verantwortung
für Unfälle oder Schäden, die durch das Entfernen/
Ersetzen des Original-Netzkabels verursacht
werden. Der Austausch darf ausschließlich mit einem
Originalersatzteil und durch autorisiertes Fachpersonal
INDESIT durchgeführt werden.
Оглавление
- Installation
- Start-up and use
- Precautions and tips
- Care and maintenance
- Installation
- Mise en marche et utilisation
- Précautions et conseils
- Nettoyage et entretien
- Instalación
- Puesta en funcionamiento y uso
- Precauciones y consejos
- Mantenimiento y cuidados
- Instalação
- Início e utilização
- Precauções e conselhos
- Manutenção e cuidados
- Installation
- Inbetriebsetzung und Gebrauch
- Vorsichtsmaßregeln und Hinweise
- Reinigung und Pflege
- Installazione
- Avvio e utilizzo
- Precauzioni e consigli
- Manutenzione e cura
- Installatie
- Starten en gebruik
- Voorzorgsmaatregelen en advies
- Onderhoud en verzorging
- Instalacja
- Uruchomienie i użytkowanie
- Zalecenia i środki ostrożności
- Konserwacja i utrzymanie
- Монтаж
- Включение и эксплуатация
- Предосторожности и рекомендации
- Техническоеобслуживани и уход
- Техническое описание моделей

