Hotpoint-Ariston KIC 740 B IT: Instalacja
Instalacja: Hotpoint-Ariston KIC 740 B IT
64
PL
Instalacja
!
Nale
ż
y zachowa
ć
niniejsz
ą
instrukcj
ę
, aby móc z niej
skorzysta
ć
w ka
ż
dej chwili. W razie sprzeda
ż
y, odst
ą
pienia
lub przeniesienia urz
ą
dzenia, nale
ż
y si
ę
upewni
ć
, czy
instrukcja zosta
ł
a przekazana wraz z nim, aby nowy
w
ł
a
ś
ciciel p
ł
yty grzejnej móg
ł
si
ę
zapozna
ć
z jej dzia
ł
aniem i z
w
ł
a
ś
ciwymi ostrze
ż
eniami.
!
Nale
ż
y uwa
ż
nie przeczyta
ć
instrukcj
ę
: zawiera ona
wa
ż
ne informacje dotycz
ą
ce instalacji, u
ż
ytkowania i
bezpiecze
ń
stwa.
Ustawienie
!
Elementy opakowania nie sa zabawkami dla dzieci i nalezy
je usunac zgodnie z normami dotyczacymi selektywnego
gromadzenia odpadów (
patrz Zalecenia i srodki ostroznosci
).
!
Instalacja powinna zosta
ć
wykonana zgodnie z niniejszymi
instrukcjami przez wykwali
fi
kowany personel. Niew
ł
a
ś
ciwa
instalacja mo
ż
e spowodowa
ć
szkody w stosunku do osób,
zwierz
ą
t lub mienia.
Zabudowa
Aby zapewni
ć
prawid
ł
owe dzia
ł
anie urz
ą
dzenia, mebel musi
posiada
ć
odpowiednie w
ł
a
ś
ciwo
ś
ci:
• blat musi by
ć
wykonany z materia
ł
u odpornego na ciep
ł
o,
na temperatur
ę
oko
ł
o 100°C;
• je
ś
li p
ł
yta grzejna ma by
ć
zainstalowana na piecu, musi on
posiada
ć
system ch
ł
odzenia z wentylacj
ą
wymuszon
ą
;
• nale
ż
y unika
ć
instalowania p
ł
yty grzejnej na zmywarce: w
przypadku takiej konieczno
ś
ci, umie
ś
ci
ć
pomi
ę
dzy dwoma
urz
ą
dzeniami szczelny element oddzielaj
ą
cy;
• w zaleznosci od plyty grzejnej, jaka ma byc zainstalowana
(
patrz rysunki
), wewnetrzna czesc mebla powinna miec
nastepujace wymiary:
560 +/- 1
490 +/- 1
53
590
520
690
520
560 +/- 1
490 +/- 1
53
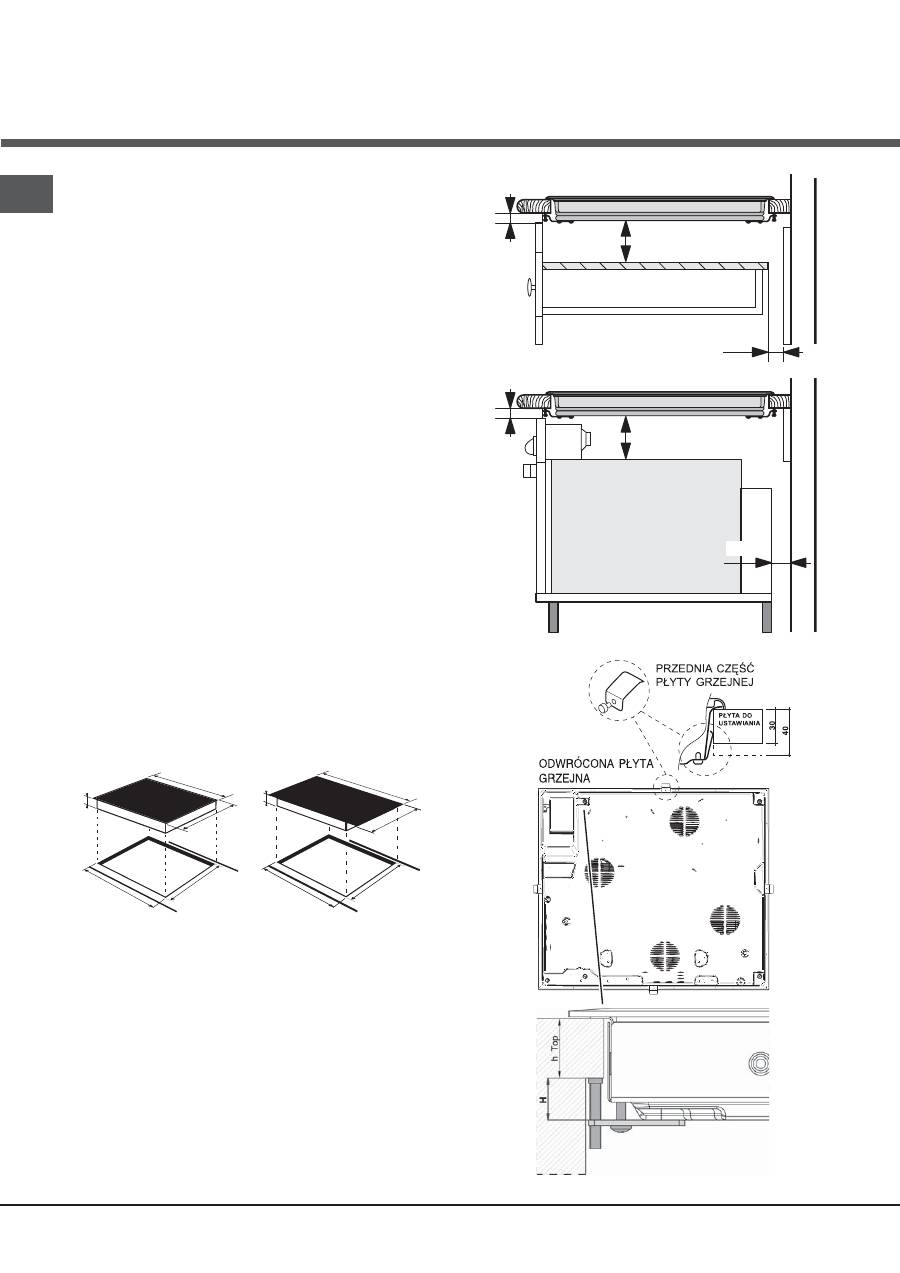
Obieg powietrza
Aby umo
ż
liwi
ć
w
ł
a
ś
ciwy obieg powietrza i aby unikn
ąć
przegrzania powierzchni wokó
ł
urz
ą
dzenia, p
ł
yta grzejna powinna
by
ć
umieszczona:
• w
odleg
ł
o
ś
ci co najmniej 40 mm od tylnej
ś
ciany lub od
ka
ż
dej innej pionowej powierzchni;
• w taki sposób, aby zachowa
ć
odleg
ł
o
ść
minimum 20 mm
pomi
ę
dzy przestrzeni
ą
do zabudowy a znajduj
ą
cym si
ę
pod ni
ą
meblem.
• Meble
znajduj
ą
ce si
ę
obok, a których wysoko
ść
przekracza
wysoko
ść
p
ł
yty roboczej, powinny zosta
ć
odsuni
ę
te przynajmniej na
600 mm od kraw
ę
dzi p
ł
yty roboczej.
Mocowanie
Urz
ą
dzenie powinno by
ć
zainstalowane
na idealnie p
ł
askim
5 mm
min. 20 mm
min. 20 mm
min. 40 mm
SZUFLADY
5 mm
min. 40 mm
PIEKARNK
WENTYLATOROWY
65
PL
blacie.
Ewentualne odkszta
ł
cenia, spowodowane nieprawid
ł
owym
zamocowaniem, mog
ą
by
ć
przyczyn
ą
zmiany w
ł
a
ś
ciwo
ś
ci
urz
ą
dzenia i, w konsekwencji, wp
ł
ywaj
ą
c niekorzystnie na
jego prac
ę
.
D
ł
ugo
ść
ś
ruby regulacyjnej uchwytów mocuj
ą
cych nale
ż
y
ustawi
ć
przed ich zamontowaniem,
na podstawie grubo
ś
ci
blatu:
• grubo
ść
30 mm:
ś
ruba 23 mm;
• grubo
ść
40 mm:
ś
ruba 13 mm.
W celu zamocowania urz
ą
dzenia nale
ż
y wykona
ć
nast
ę
puj
ą
ce czynno
ś
ci:
1. Przy pomocy krótkich
ś
rub bez
ł
ba przykr
ę
ci
ć
4 spr
ęż
yny
centruj
ą
ce do otworów umieszczonych w
ś
rodkowej cz
ęś
ci
ka
ż
dego boku p
ł
yty;
2. umie
ś
ci
ć
p
ł
yt
ę
grzejn
ą
w meblu, wy
ś
rodkowa
ć
j
ą
i wywrze
ć
odpowiedni nacisk na ca
ł
y jej obwód, tak aby p
ł
yta dobrze
przylega
ł
a do blatu.
3. w przypadku p
ł
yt z pro
fi
lami bocznymi: po zainstalowaniu
p
ł
yty grzejnej w meblu umie
ś
ci
ć
4 uchwyty mocuj
ą
ce (ka
ż
dy
ze sworzniem) na dolnym obwodzie p
ł
yty grzejnej i przykr
ę
ci
ć
je d
ł
ugimi
ś
rubami z
ł
bem w taki sposób, aby szk
ł
o przylega
ł
o
do blatu.
!
Ś
ruby spr
ęż
yn centruj
ą
cych musz
ą
pozosta
ć
dost
ę
pne.
!
Zgodnie z normami bezpiecze
ń
stwa, po zabudowaniu
urz
ą
dzenia nie powinien by
ć
mo
ż
liwy kontakt z jego
elementami elektrycznymi.
!
Wszystkie cz
ęś
ci, które stanowi
ą
zabezpieczenie, powinny
by
ć
zamocowane w taki sposób, aby nie mo
ż
na by
ł
o ich zdj
ąć
bez u
ż
ycia narz
ę
dzia.
Pod
łą
czenie do sieci elektrycznej
!
Pod
łą
czenie do sieci elektrycznej p
ł
yty grzejnej oraz
ewentualnego pieca do zabudowy powinno by
ć
wykonane
oddzielnie, zarówno ze wzgl
ę
dów bezpiecze
ń
stwa
elektrycznego, jak i dla u
ł
atwienia czynno
ś
ci zwi
ą
zanych z
wyjmowaniem pieca.
Pod
łą
czenie jednofazowe
P
ł
yta jest wyposa
ż
ona w kabel zasilaj
ą
cy przygotowany do
pod
łą
czenia jednofazowego. Nale
ż
y po
łą
czy
ć
przewody
zgodnie z tabel
ą
i z rysunkami umieszczonymi poni
ż
ej:
Inne typy pod
łą
cze
ń
Je
ś
li instalacja elektryczna posiada jedn
ą
z nast
ę
puj
ą
cych
cech:
Typowe napi
ę
cie i cz
ę
stotliwo
ść
sieci
• 400V - 2+N ~ 50 Hz
• 220-240V 3 ~ 50 Hz
• 400V 3 - N ~ 50 Hz
• 400V - 2+2N ~ 50 Hz
Oddzieli
ć
kable i po
łą
czy
ć
przewody zgodnie z tabel
ą
i z
rysunkami umieszczonymi poni
ż
ej:
Pod
łą
czenie kabla zasilaj
ą
cego do sieci
W przypadku bezpo
ś
redniego pod
łą
czenia do sieci pomi
ę
dzy
urz
ą
dzeniem a sieci
ą
, nale
ż
y zainstalowa
ć
wy
łą
cznik
wielobiegunowy z minimalnym otwarciem mi
ę
dzy stykami
wynosz
ą
cym 3 mm.
!
Instalator odpowiada za prawid
ł
owe wykonanie pod
łą
czenia
elektrycznego i za zachowanie norm bezpiecze
ń
stwa.
Przed pod
łą
czeniem urz
ą
dzenia, nale
ż
y si
ę
upewni
ć
czy:
• gniazdko posiada uziemienie i jest zgodne z
obowiazujacymi przepisami;
• gniazdko jest w stanie wytrzymac maksymalne obciazenie
mocy urzadzenia wskazane na tabliczce znamionowej
plyty;
• napi
ę
cie zasilania odpowiada warto
ś
ciom podanym na
tabliczce znamionowej;
• gniazdko jest kompatybilne z wtyczk
ą
urz
ą
dzenia. Je
ś
li
gniazdko nie jest kompatybilne, nale
ż
y wymieni
ć
gniazdko
lub wtyczk
ę
; nie stosowa
ć
przed
ł
u
ż
aczy ani rozga
łę
ziaczy.
!
Po zainstalowaniu urz
ą
dzenia kabel elektryczny i gniazdko
pr
ą
du powinny by
ć
ł
atwo dost
ę
pne.
!
Kabel nie powinien by
ć
pogi
ę
ty ani przygnieciony.
!
Kabel elektryczny musi byc okresowo sprawdzany i
wymieniany wylacznie przez autoryzowany personel
techniczny.
!
W przypadku nieprzestrzegania tych zasad, producent
nie ponosi ¿adnej odpowiedzialnoœci.
!
Nie usuwa
ć
ani zamienia
ć
przewodu zasilaj
ą
cego z jakiego
kolwiek powodu. Usuni
ę
cie lub wymiana b
ę
dzie powodem
utracenia gwarancji i znaku CE. INDESIT zwolniony jest
z jakiejkolwiek odpowiedzialno
ś
ci za wypadki lub szkody
wynikaj
ą
ce z usuni
ę
cia lub wymiany oryginalnego przewodu
zasilaj
ą
cego. Dozwolona jest tylko wymiana przewodu na
oryginalny, a wymiany ma dokona
ć
upowa
ż
niony personel z
INDESIT.
Typowe napi
ę
cie i
cz
ę
stotliwo
ść
sieci
Kabel elektryczny
Po
łą
czenie
przewodów
220-240V 1+N ~
50 Hz
:
ż
ó
ł
ty/zielony; N:
2 przewody
niebieskie razem L:
br
ą
zowy razem z
czarnym
Typowe napi
ę
cie i
cz
ę
stotliwo
ść
sieci
Kabel elektryczny
Po
łą
czenie przewodów
400V - 2+N ~ 50 Hz
220-240V 3 ~ 50Hz
400V 3-N~ 50Hz
:
ż
ó
ł
ty/zielony; N: 2
przewody niebieskie
razem L1: czarny
L2: br
ą
zowy
400V - 2+N ~ 50 Hz
:
ż
ó
ł
ty/zielony; N1:
niebieski
N2: niebieski
L1: czarny
L2: br
ą
zowy
Оглавление
- Installation
- Start-up and use
- Precautions and tips
- Care and maintenance
- Installation
- Mise en marche et utilisation
- Précautions et conseils
- Nettoyage et entretien
- Instalación
- Puesta en funcionamiento y uso
- Precauciones y consejos
- Mantenimiento y cuidados
- Instalação
- Início e utilização
- Precauções e conselhos
- Manutenção e cuidados
- Installation
- Inbetriebsetzung und Gebrauch
- Vorsichtsmaßregeln und Hinweise
- Reinigung und Pflege
- Installazione
- Avvio e utilizzo
- Precauzioni e consigli
- Manutenzione e cura
- Installatie
- Starten en gebruik
- Voorzorgsmaatregelen en advies
- Onderhoud en verzorging
- Instalacja
- Uruchomienie i u ż ytkowanie
- Zalecenia i ś rodki ostro ż no ś ci
- Konserwacja i utrzymanie
- Монтаж
- Включение и эксплуатация
- Предосторожности и рекомендации
- Техническоеобслуживани и уход

