Hotpoint-Ariston KIC 740 B IT: Instalación
Instalación: Hotpoint-Ariston KIC 740 B IT
23
ES
Instalación
!
Es importante conservar este manual para poder
consultarlo en todo momento. En el caso de venta, de cesión
o de mudanza, verifique que permanezca junto al aparato
para informar al nuevo propietario sobre su funcionamiento y
sobre las advertencias correspondientes.
!
Lea atentamente las instrucciones: contienen importante
información sobre la instalación, el uso y la seguridad.
Colocación
!
Los embalajes no son juguetes para niños y se deben
eliminar según las normas para la recolección diferenciada
de desechos (
ver Precauciones y consejos
).
!
La instalación se debe realizar siguiendo estas
instrucciones y por personal profesionalmente calificado.
Una instalación incorrecta puede producir daños a personas,
animales o cosas.
Empotramiento
Para garantizar un buen funcionamiento del aparato
es necesario que el mueble tenga las características
adecuadas:
• el plano de apoyo debe ser de material resistente al calor,
a una temperatura de aproximadamente 100ºC;
• si se desea instalar la encimera sobre un horno, el mismo
debe poseer un sistema de enfriamiento con ventilación
forzada;
• evite instalar la encimera sobre un lavavajillas: pero si
fuera necesario, interponga un elemento de separación
estanco entre los dos aparatos;
• según el tipo de encimera que se desea instalar (
ver las
fi guras
), el espacio disponible en el mueble debe tener las
siguientes dimensiones:
560 +/- 1
490 +/- 1
53
590
520
690
520
560 +/- 1
490 +/- 1
53
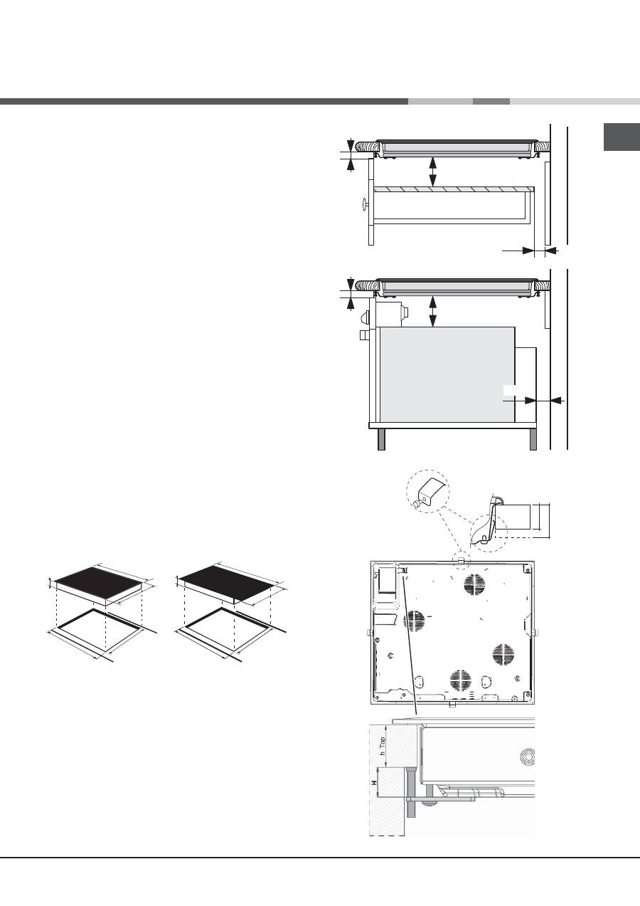
Aireación
Para permitir una adecuada aireación y para evitar
el sobrecalentamiento de las superficies que rodean al aparato,
la encimera se debe colocar:
• a una distancia mínima de 40 mm de la pared posterior o
de cualquier otra superficie vertical;
• de modo que se mantenga una distancia mínima de 20
mm entre el hueco para el empotramiento y el mueble que
se encuentra debajo.
• Los muebles situados a un costado, cuya altura supere la
PARTE DELANTERA
DE LA ENCIMERA
PLANO DE
APOYO
30
40
ENCIMERA
VOLCADA
5 mm
min. 20 mm
min. 20 mm
min. 40 mm
CAJÓN
5 mm
min. 40 mm
HORNO
VENTILADO
24
ES
de la superficie de trabajo, deben estar situados a 600 mm.,
como mínimo, del borde de la misma.
Fijación
La instalación del aparato se debe realizar
sobre una superficie de
apoyo perfectamente plana.
Las deformaciones que se podrían provocar por una mala
fijación, pueden alterar las características y las prestaciones de
la encimera.
La longitud del tornillo de regulación de los ganchos de fijación
se debe determinar antes de su montaje en base al espesor de la
superficie de apoyo:
• espesor de 30 mm: tornillo de 23 mm;
• espesor de 40 mm: tornillo de 13 mm.
Para realizar la fijación, el procedimiento es el siguiente:
1. Con los tornillos cortos sin punta, enrosque los 4 muelles de
centrado en los orificios ubicados en el centro de cada costado
de la encimera;
2. introduzca la encimera en el hueco del mueble, céntrela y
ejerza una adecuada presión sobre todo el perímetro para que
se adhiera perfectamente a la superficie de apoyo.
3. en las encimeras con perfiles laterales: después de haber
colocado la encimera en el mueble, introduzca los 4 ganchos
de fijación (cada uno con su perno) en el perímetro inferior de la
encimera enroscándolos con los tornillos largos con punta hasta
que el vidrio se adhiera a la superficie de apoyo.
!
Es indispensable que los tornillos de los muelles de centrado
permanezcan accesibles.
!
En conformidad con las normas de seguridad, una vez
empotrado el aparato, no se deben producir contactos con las
piezas eléctricas.
!
Todas las partes que garantizan la protección se deben fijar
de modo tal que no puedan ser quitadas sin la ayuda de una
herramienta.
Conexión eléctrica
!
La conexión eléctrica de la encimera y la de un horno
empotrado deben ser realizadas por separado, tanto por
razones de seguridad eléctrica como para facilitar las
operaciones de extracción del horno.
Conexión monofásica
La encimera posee un cable de alimentación eléctrica ya
conectado y preparado para la conexión monofásica. Realice la
conexión de los cables de acuerdo con la tabla y los dibujos que
se muestran a continuación:
Otros tipos de conexión
Si las características de la instalación eléctrica coinciden con
alguna de las siguientes:
Tensión tipo y frecuencia de la red
• 400V - 2+N ~ 50 Hz
• 220-240V 3 ~ 50 Hz
• 400V 3 - N ~ 50 Hz
• 400V - 2+2N ~ 50 Hz
Separe los cables y realice la conexión de acuerdo con la tabla
y los dibujos que se muestran a continuación:
Conexión del cable de alimentación eléctrica a la red
En el caso de conexión directa a la red, es necesario interponer
entre el aparato y la red, un interruptor omnipolar con apertura
mínima entre los contactos de 3 mm.
!
El instalador es responsable de la correcta conexión eléctrica
y del cumplimiento de las normas de seguridad.
Antes de efectuar la conexión verifique que:
• la toma tenga conexión a tierra y que sea conforme con la
ley;
• la toma sea capaz de soportar la carga máxima de potencia
de la máquina indicada en la placa de características que
se encuentra en el aparato;
• la tensión de alimentación eléctrica esté comprendida dentro
de los valores indicados en la placa de características;
• la toma sea compatible con el enchufe del aparato. Si no es
así, sustituya la toma o el enchufe; no utilice prolongaciones
ni conexiones múltiples.
!
Una vez instalado el aparato, el cable eléctrico y la toma de
corriente deben ser fácilmente accesibles.
!
El cable no debe sufrir pliegues ni compresiones.
!
El cable debe ser revisado periódicamente y sustituido sólo
por técnicos autorizados.
!
La empresa declina toda responsabilidad cuando estas
normas no sean respetadas.
!
No quitar ni sustituir por ninguna razón el cable de
alimentación. Si se sustituye o extrae caduca la garantía y la
marca CE. INDESIT no se asume la responsabilidad en caso
de accidentes o daños derivados de la sustitución o remoción
del cable de alimentación original. Se admite exclusivamente
la sustitución con un repuesto original y realizada por personal
autorizado por INDESIT.
Tensión tipo y
frecuencia de la red
Cable eléctrico
Conexión de los cables
220-240V 1+N ~
50 Hz
: amarillo/verde;
N: los 2 cables azules juntos
L: el marrón junto al negro
Tensión tipo y
ecuencia de la red
Cable eléctrico
Conexión de los cables
00V - 2+N ~ 50 Hz
220-240V 3 ~
50Hz
400V 3-N~ 50Hz
: amarillo/verde;N: los 2
cables azules juntosL1: negro
L2: marrón
400V - 2+2N ~
50 Hz
: amarillo/verde;N1: azul
N2: azul
L1: negro
L2: marrón
Оглавление
- Installation
- Start-up and use
- Precautions and tips
- Care and maintenance
- Installation
- Mise en marche et utilisation
- Précautions et conseils
- Nettoyage et entretien
- Instalación
- Puesta en funcionamiento y uso
- Precauciones y consejos
- Mantenimiento y cuidados
- Instalação
- Início e utilização
- Precauções e conselhos
- Manutenção e cuidados
- Installation
- Inbetriebsetzung und Gebrauch
- Vorsichtsmaßregeln und Hinweise
- Reinigung und Pflege
- Installazione
- Avvio e utilizzo
- Precauzioni e consigli
- Manutenzione e cura
- Installatie
- Starten en gebruik
- Voorzorgsmaatregelen en advies
- Onderhoud en verzorging
- Instalacja
- Uruchomienie i u ż ytkowanie
- Zalecenia i ś rodki ostro ż no ś ci
- Konserwacja i utrzymanie
- Монтаж
- Включение и эксплуатация
- Предосторожности и рекомендации
- Техническоеобслуживани и уход

