Xylem MIDIBOX SINGLEBOX PLUS DOUBLEBOX PLUS: DOMO 10VXT
DOMO 10VXT: Xylem MIDIBOX SINGLEBOX PLUS DOUBLEBOX PLUS
it
it
it
it ---- en
en
en
en ---- fr
fr
fr
fr ---- pt
pt
pt
pt ---- es
es
es
es ---- el
el
el
el ---- de
de
de
de ---- nl
nl
nl
nl ---- sv
sv
sv
sv ---- fi
fi
fi
fi ---- ru
ru
ru
ru ---- pl
pl
pl
pl –––– da
da
da
da ---- tr
tr
tr
tr
115
1
Standard, hvormed pumpestationen er i
overensstemmelse.
1
İstasyonun uygun olduğu standart
2
Pumpestationstype
2
İstasyon tipi
3
Elektropumpetype
3
Elektrikli pompa tipi
4
Kode for pumpestation
4
İstasyon kodu
5
Produktionsdato
5
Üretim tarihi
6
Serienummer
6
Seri numarası
11.4
11.4
11.4
11.4
Denominazione stazione
Denominazione stazione
Denominazione stazione
Denominazione stazione ---- Station denomination
Station denomination
Station denomination
Station denomination ---- Dénomination station
Dénomination station
Dénomination station
Dénomination station ---- Nome da estação
Nome da estação
Nome da estação
Nome da estação ---- Denominación de la estación
Denominación de la estación
Denominación de la estación
Denominación de la estación ----
Ονοµασία
σταθµού
-
Bezeichnung der Station
Bezeichnung der Station
Bezeichnung der Station
Bezeichnung der Station ---- Benaming van het stat
Benaming van het stat
Benaming van het stat
Benaming van het station
ion
ion
ion ---- Pumpstationens benämn
Pumpstationens benämn
Pumpstationens benämn
Pumpstationens benämning
ing
ing
ing ---- Nostoaseman
Nostoaseman
Nostoaseman
Nostoaseman
nimike
nimike
nimike
nimike ----
Наименование
станции
---- Nazwa stacji
Nazwa stacji
Nazwa stacji
Nazwa stacji ---- Betegnelse for pumpestation
Betegnelse for pumpestation
Betegnelse for pumpestation
Betegnelse for pumpestation ---- İstasyon adı
İstasyon adı
İstasyon adı
İstasyon adı
2
DOMO 10VXT
SBOXPLUS_M 0005_A _SC
Singlebox Plus
1
3
FP/BG
1 Tipo stazione
1 Station type
2 Tipo pompa
2 Pump type
3 Tipo tubazione
3 Pipe type
Raccorderia fissa (Midibox)
Flexible coupling (Midibox)
FP
Raccorderia fissa standard
FP
Standard fixed coupling
FP/BG
Raccorderia fissa con valvola di non ritorno e
rubinetto
FP/BG
Flexible coupling with non-return valve and
tap
SL
Kit slitta standard
SL
Standard slide kit
SL/BV
Kit slitta con valvola di non ritorno
SL/BV
Slide kit with non-return valve
1 Type station
1 Tipo de estação
2 Type pompe
2 Tipo de bomba
3 Type tuyauterie
3 Tipo de tubagem
Raccords fixes (Midibox)
Conexões fixas (Midibox)
FP
Raccords fixes standard
FP
Conexões fixas standard
FP/BG
Raccords fixes avec clapet anti-retour et
robinet
FP/BG
Conexões fixas com válvula anti-retorno e
torneira
SL
Kit glissière standard
SL
Kit corrediça standard
SL/BV
Kit glissière avec clapet anti-retour
SL/BV
Kit corrediça com válvula anti-retorno
1 Tipo de estación
1
Τύπος
σταθµού
2 Tipo de bomba
2
Τύπος
αντλίας
3 Tipo de tubería
3
Τύπος
σωλήνωσης
Empalmes fijos (Midibox)
Σταθερά
ρακόρ
(Midibox)
FP
Empalmes fijos estándar
FP
Σταθερά
ρακόρ
στάνταρ
FP/BG
Empalmes fijos con válvula de retención y
grifo
FP/BG
Σταθερά
ρακόρ
µε
ανεπίστροφη
βαλβίδα
και
στρόφιγγα
SL
Kit corredera estándar
SL
Κιτ
στάνταρ
ολισθητήρα
SL/BV
Kit corredera con válvula de retención
SL/BV
Κιτ
ολισθητήρα
µε
ανεπίστροφη
βαλβίδα
1 Stationstyp
1 Type station
2 Pumpentyp
2 Type pomp
3 Leitungstyp
3 Type leiding
Fixe Anschlüsse (Midibox)
Vaste verbindingen (Midibox)
FP
Fixe Standardanschlüsse
FP
Standaard vaste verbindingen
FP/BG
Fixe Anschlüsse mit Rückschlagventil und
Hahn
FP/BG
Vaste verbindingen met balkeerklep en kraan
SL
Standardschlittensatz
SL
Standaard sledeset
SL/BV
Schlittensatz mit Rückschlagventil
SL/BV
Sledeset met balkeerklep
1 Typ av pumpstation
1 Nostoaseman tyyppi
2 Typ av pump
2 Pumpun tyyppi
3 Typ av rör
3 Putken tyyppi
it
it
it
it ---- en
en
en
en ---- fr
fr
fr
fr ---- pt
pt
pt
pt ---- es
es
es
es ---- el
el
el
el ---- de
de
de
de ---- nl
nl
nl
nl ---- sv
sv
sv
sv ---- fi
fi
fi
fi ---- ru
ru
ru
ru ---- pl
pl
pl
pl –––– da
da
da
da ---- tr
tr
tr
tr
116
Fasta kopplingar (Midibox)
Kiinteät liittimet (Midibox)
FP
Fasta standardkopplingar
FP
Kiinteät vakioliittimet
FP/BG
Fasta kopplingar med backventil och kran
FP/BG
Kiinteät liittimet, takaiskuventtiili ja hana
SL
Standardslid
SL
Vakioluisti
SL/BV
Slid med backventil
SL/BV
Luisti ja takaiskuventtiili
1
Тип
станции
1
Typ stanowiska
2
Тип
насоса
2
Typ pompy
3
Тип
трубопровода
3
Typ rur
Фиксированные
патрубки
(Midibox)
Ł
ą
czniki rurowe stałe (Midibox)
FP
Стандартные
фиксированные
патрубки
FP
Ł
ą
cznika rurowe stałe standardowe
FP/BG
Фиксированные
патрубки
с
невозвратным
клапаном
и
краном
FP/BG
Ł
ą
czniki rurowe stałe z zaworem zwrotnym i
kurkiem
SL
Стандартный
комплект
тележки
SL
Zestaw standardowy wodzika
SL/BV
Комплект
тележки
с
невозвратным
клапаном
SL/BV
Zestaw wodzika z zaworem zwrotnym
1 Pumpestationstype
1 İstasyon tipi
2 Pumpetype
2 Pompa tipi
3 Rørtype
3 Boru tipi
Permanent tilslutning (Midibox)
Sabit rakorlar (Midibox)
FP
Permanent tilslutning (standard)
FP
Standart sabit rakorlar
FP/BG
Permanent tilslutning med bakventil og hane
FP/BG
Geri dönüşsüz valf ve musluklu sabit rakorlar
SL
Skydeventil (standard)
SL
Standart kızak kiti
SL/BV
Skydeventil med bakventil
SL/BV
Geri dönüşsüz valfli kızak kiti
11.5
11.5
11.5
11.5
Montaggio estensione coperchio
Montaggio estensione coperchio
Montaggio estensione coperchio
Montaggio estensione coperchio ---- Mounting th
Mounting th
Mounting th
Mounting the cover extension
e cover extension
e cover extension
e cover extension ---- Montage extension couvercle
Montage extension couvercle
Montage extension couvercle
Montage extension couvercle ----
Montagem da extensão da
Montagem da extensão da
Montagem da extensão da
Montagem da extensão da
tampa
tampa
tampa
tampa ---- Instalaci
Instalaci
Instalaci
Instalación de la extensión de la tapa
ón de la extensión de la tapa
ón de la extensión de la tapa
ón de la extensión de la tapa ----
Συναρµολόγηση
επέκτασης
καπακιού
----
Montage Deckelerweiterung
Montage Deckelerweiterung
Montage Deckelerweiterung
Montage Deckelerweiterung ----
Montage kapverlenging
Montage kapverlenging
Montage kapverlenging
Montage kapverlenging
----
Montering av förlängningsdel för lock
Montering av förlängningsdel för lock
Montering av förlängningsdel för lock
Montering av förlängningsdel för lock ---- Kannen
Kannen
Kannen
Kannen jatkeen asennus
jatkeen asennus
jatkeen asennus
jatkeen asennus
----
Монтаж
удлинения
крышки
----
Monta
ż
przedłu
ż
enia pokrywy
----
Montering af forlænger til dæksel
Montering af forlænger til dæksel
Montering af forlænger til dæksel
Montering af forlænger til dæksel ---- Kapağın uzatma bölümünün montajı
Kapağın uzatma bölümünün montajı
Kapağın uzatma bölümünün montajı
Kapağın uzatma bölümünün montajı
SBOX_PLUS_M 0003_A_SC
it
it
it
it ---- en
en
en
en ---- fr
fr
fr
fr ---- pt
pt
pt
pt ---- es
es
es
es ---- el
el
el
el ---- de
de
de
de ---- nl
nl
nl
nl ---- sv
sv
sv
sv ---- fi
fi
fi
fi ---- ru
ru
ru
ru ---- pl
pl
pl
pl –––– da
da
da
da ---- tr
tr
tr
tr
117
11.6
11.6
11.6
11.6
Esempio di installazione
Esempio di installazione
Esempio di installazione
Esempio di installazione ---- Installation example
Installation example
Installation example
Installation example ---- Exemple d’installation
Exemple d’installation
Exemple d’installation
Exemple d’installation ---- Exemplo de instalação
Exemplo de instalação
Exemplo de instalação
Exemplo de instalação ---- Ejemplo d
Ejemplo d
Ejemplo d
Ejemplo de instalación
e instalación
e instalación
e instalación ----
Παράδειγµα
εγκατάστασης
----
Installationsbeispiel
Installationsbeispiel
Installationsbeispiel
Installationsbeispiel ---- Installatievoorbeeld
Installatievoorbeeld
Installatievoorbeeld
Installatievoorbeeld
----
Installationsexempel
Installationsexempel
Installationsexempel
Installationsexempel ---- Asennusesimerkki
Asennusesimerkki
Asennusesimerkki
Asennusesimerkki
----
Пример
монтажа
----
Przykład monta
ż
u
---- Eksempel på installation
Eksempel på installation
Eksempel på installation
Eksempel på installation ---- Kurulum örneği
Kurulum örneği
Kurulum örneği
Kurulum örneği
MIDIBOX
MIDIBOX
MIDIBOX
MIDIBOX
it
it
it
it ---- en
en
en
en ---- fr
fr
fr
fr ---- pt
pt
pt
pt ---- es
es
es
es ---- el
el
el
el ---- de
de
de
de ---- nl
nl
nl
nl ---- sv
sv
sv
sv ---- fi
fi
fi
fi ---- ru
ru
ru
ru ---- pl
pl
pl
pl –––– da
da
da
da ---- tr
tr
tr
tr
118
it
it
it
it ---- en
en
en
en ---- fr
fr
fr
fr ---- pt
pt
pt
pt ---- es
es
es
es ---- el
el
el
el ---- de
de
de
de ---- nl
nl
nl
nl ---- sv
sv
sv
sv ---- fi
fi
fi
fi ---- ru
ru
ru
ru ---- pl
pl
pl
pl –––– da
da
da
da ---- tr
tr
tr
tr
119
SINGLE
SINGLE
SINGLE
SINGLEBOX
BOX
BOX
BOX PLUS / DO
PLUS / DO
PLUS / DO
PLUS / DOUBLEBOX PLUS
UBLEBOX PLUS
UBLEBOX PLUS
UBLEBOX PLUS
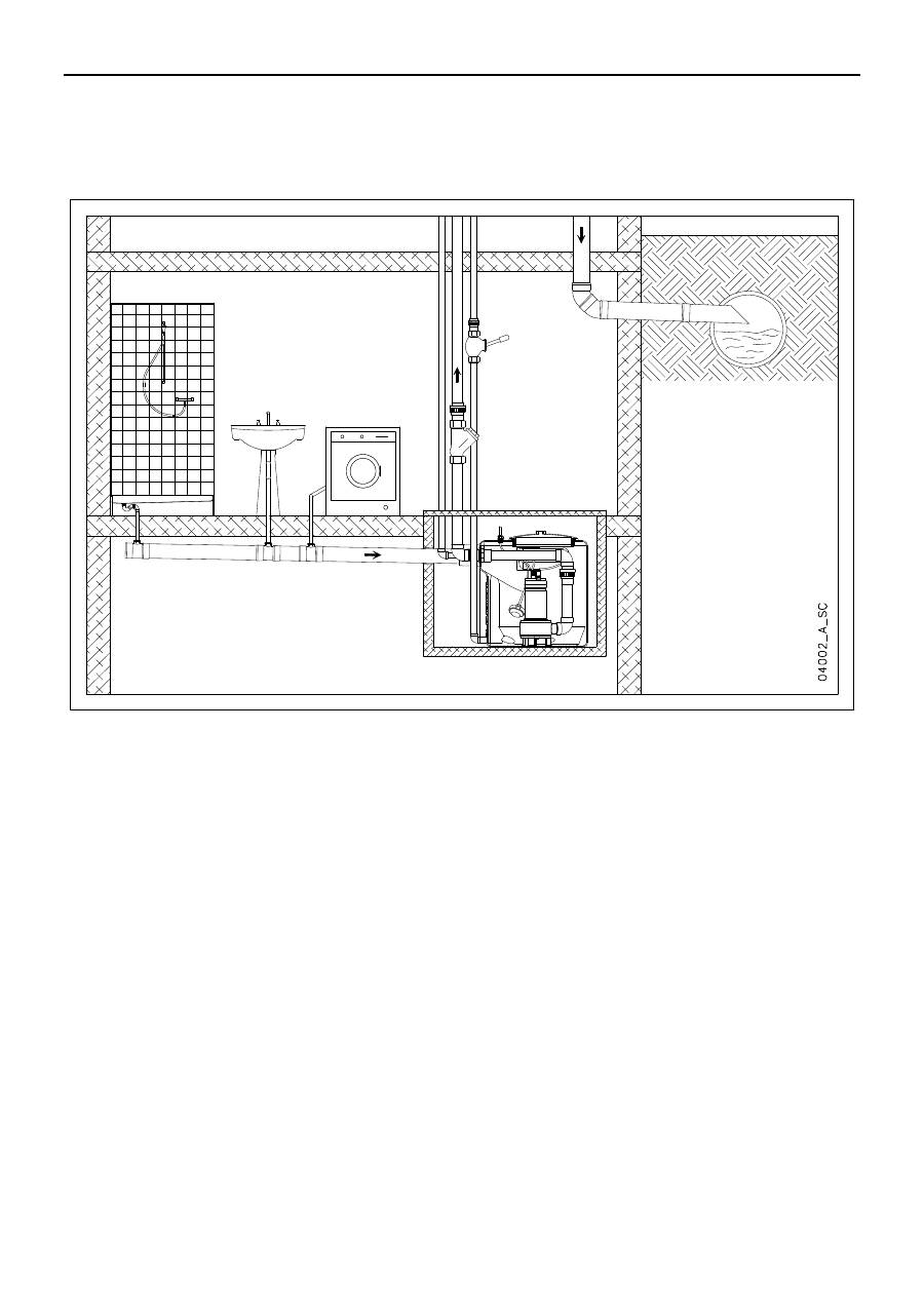
1 Stazione di sollevamento
1 Lifting station
2
Tubazione di ingresso con valvola di intercettazione,
giunti o tubi flessibili, supporti per le tubazioni (capitolo
6.1)
2
Inlet pipe with on-off valve, flexible joints or pipes,
supports for pipes (chapter 6.1)
3
Tubazione di uscita con valvola di intercettazione, valvola
di non ritorno, giunti o tubi flessibili, supporti per le
tubazioni
3
Outlet pipe with on-off valve, non-return valve, flexible
joints or pipes, supports for pipes
4 Sifone
4 Trap
5
Ventilazione con giunti o tubi flessibili, supporti per le
tubazioni
5 Vent with flexible joints or pipes, supports for pipes
6
Sistema di svuotamento di emergenza con pompa
manuale a diaframma, giunti o tubi flessibili, supporti
per le tubazioni
6
Emergency drain system with manual diaphragm pump,
flexible joints or pipes, supports for pipes
1 Station de relevage
1 Estação de elevação
2
Canalisation d’arrivée avec robinet d'arrêt, manchons de
raccordement ou tubes flexibles, supports pour les
canalisations (chapitre 6.1)
2
Tubo de entrada com válvula de intercepção, juntas ou
tubos flexíveis, suportes para os tubos (capítulo 6.1)
3
Canalisation de sortie avec robinet d'arrêt, clapet
antiretour, manchons de raccordement ou tubes
flexibles, supports pour les canalisations
3
Tubo de saída com válvula de intercepção, válvula anti-
retorno, juntas ou tubos flexíveis, suportes para os tubos
4 Siphon
4 Sifão
5
Ventilation avec manchons de raccordement ou tubes
flexibles, supports pour les canalisations
5
Ventilação com juntas ou tubos flexíveis, suportes para
os tubos
6
Système de vidange d’urgence avec pompe manuelle à
membrane, manchons de raccordement ou tubes
flexibles, supports pour les canalisations
6
Sistema de esvaziamento de emergência com bomba
manual de diafragma, juntas ou tubos flexíveis, suportes
para os tubos
1 Estación de elevación
1
Σταθµός
άντλησης
2 Tubería de entrada con válvula de cierre, juntas o tubos
2
Σωλήνωση
εισόδου
µε
βαλβίδα
ανάσχεσης
,
ενώσεις
ή
it
it
it
it ---- en
en
en
en ---- fr
fr
fr
fr ---- pt
pt
pt
pt ---- es
es
es
es ---- el
el
el
el ---- de
de
de
de ---- nl
nl
nl
nl ---- sv
sv
sv
sv ---- fi
fi
fi
fi ---- ru
ru
ru
ru ---- pl
pl
pl
pl –––– da
da
da
da ---- tr
tr
tr
tr
120
flexibles y soportes para las tuberías (capítulo 6.1)
εύκαµπτους
σωλήνες
,
φορείς
για
τις
σωληνώσεις
(
κεφάλαια
6.1)
3
Tubería de salida con válvula de cierre, válvula de
retención, juntas o tubos flexibles y soportes para las
tuberías
3
Σωλήνωση
εξόδου
µε
βαλβίδα
ανάσχεσης
,
ανεπίστροφη
βαλβίδα
,
ενώσεις
ή
εύκαµπτους
σωλήνες
,
φορείς
για
τις
σωληνώσεις
4 Sifón
4
Σιφώνιο
5
Ventilación con juntas o tubos flexibles y soportes para
las tuberías
5
Αερισµός
µε
ενώσεις
ή
εύκαµπτους
σωλήνες
,
φορεία
για
τις
σωληνώσεις
6
Sistema de vaciado de emergencia con bomba manual
de diafragma, juntas o tubos flexibles y soportes para las
tuberías
6
Σύστηµα
εκκένωσης
έκτακτης
ανάγκης
µε
χειραντλία
µε
διάφραγµα
,
ενώσεις
ή
εύκαµπτους
σωλήνες
,
φορείς
για
τις
σωληνώσεις
1 Abwasserhebeanlage
1 Hefstation
2
Zulaufleitung mit Sperrventil, Anschlüssen oder
Schläuchen, Rohrhalterungen (Kapitel 6.1)
2
Inlaatleiding met afsluiter, koppelingen of slangen,
steunen voor de leidingen (paragraaf 6.1)
3
Auslaufrohrleitung mit Sperrventil, Rückschlagventil,
Anschlüssen oder Schläuchen, Rohrhalterungen
3
Uitlaatleiding met afsluiter, terugslagklep, koppelingen
of slangen, steunen voor de leidingen
4 Siphon
4 Hevel
5
Entlüftung mit Anschlüssen und Schläuchen,
Rohrhalterungen
5
Ventilatie met koppelingen of slangen, steunen voor de
leidingen
6
Sistema di svuotamento di emergenza con pompa
manuale a diaframma, giunti o tubi flessibili, supporti
per le tubazioni
6
Systeem voor legen in geval van nood met
handmembraanpomp, koppelingen of slangen, steunen
voor de leidingen
1 Pumpstation
1 Nostoasema
2
Inloppsrör med avstängningsventil, böjliga kopplingar
eller slangar, stöd för rören (kapitel 6.1)
2
Syöttöputki, sulkuventtiili, joustoliitokset tai letkut,
putkien tuet (luvut 6.1)
3
Tryckrör med avstängningsventil, backventil, böjliga
kopplingar eller slangar, stöd för rören
3
Poistoputki, sulkuventtiili, takaiskuventtiili, joustoliitokset
tai letkut, putkien tuet
4 Vattenlås
4 Hajulukko
5
Avluftning med böjliga kopplingar eller slangar, stöd för
rören
5 Tuuletusputki, joustoliitokset tai letkut, putkien tuet
6
Nödtömningssystem med handpump med membran,
böjliga kopplingar eller slangar, stöd för rören
6
Hätätyhjennysjärjestelmä, käsikalvopumppu,
joustoliitokset tai letkut, putkien tuet
1
Насосная
станция
1
Przepompownia
2
Входная
труба
с
отсекающим
клапаном
,
соединениями
и
гибкими
шлангами
,
опорами
для
труб
(
главы
6.1)
2
Rura we
ś
ciowa z zaworem odcinaj
ą
cym, zł
ą
czki lub
w
ęż
e, wsporniki do rur (rozdziały 6.1)
3
Выходная
труба
с
отсекающим
клапаном
,
невозвратным
клапаном
,
соединениями
и
гибкими
шлангами
,
опорами
для
труб
3
Rura wy
ś
ciowa z zaworem odcinaj
ą
cym, zawór
zwrotny, ł
ą
czniki lub w
ęż
e, wsporniki do rur
4
Сифон
4
Syfon
5
Вентиляция
с
соединениями
и
гибкими
шлангами
,
опорами
для
труб
5
Wentylacja z ł
ą
cznikami lub w
ęż
ami, wsporniki do rur
6
Система
аварийного
слива
с
ручным
мембранным
насосом
,
соединениями
и
гибкими
шлангами
,
опорами
для
труб
6
Awaryjny system opró
ż
niania z pomp
ą
r
ę
czn
ą
przeponow
ą
, zł
ą
czki lub w
ęż
e, w sporniki do rur
1 Pumpestation
1 Atık su terfi istasyonu
2
Indløbsrør med afspærringsventil, fleksible samlinger
eller slanger samt støtter til slangerne (afsnit 6.1)
2
Kapama valfi, esnek bağlantı veya borular, boru
destekleri ile donatılmış giriş borusu (Bölüm 6.1)
3
Trykrør med afspærringsventil, bakventil, fleksible
samlinger eller slanger samt støtter til slangerne
3
Kapama valfi, geri dönüşsüz valf, esnek bağlantı veya
borular, boru destekleri ile donatılmış çıkış borusu
4 Vandlås
4 Sifon
5
Udluftningsrør med fleksible samlinger eller slanger samt
støtter til slangerne
5
Esnek bağlantı veya borular, boru destekleri ile
donatılmış havalandırma deliği
6
System til nødtømning med manuel membranpumpe,
fleksible samlinger eller slanger samt støtter til slangerne
6
Diyaframlı el pompası, esnek bağlantı veya borular, boru
destekleri ile donatılmış acil boşaltma sistemi
it
it
it
it ---- en
en
en
en ---- fr
fr
fr
fr ---- pt
pt
pt
pt ---- es
es
es
es ---- el
el
el
el ---- de
de
de
de ---- nl
nl
nl
nl ---- sv
sv
sv
sv ---- fi
fi
fi
fi ---- ru
ru
ru
ru ---- pl
pl
pl
pl –––– da
da
da
da ---- tr
tr
tr
tr
121
it
it
it
it ---- en
en
en
en ---- fr
fr
fr
fr ---- pt
pt
pt
pt ---- es
es
es
es ---- el
el
el
el ---- de
de
de
de ---- nl
nl
nl
nl ---- sv
sv
sv
sv ---- fi
fi
fi
fi ---- ru
ru
ru
ru ---- pl
pl
pl
pl –––– da
da
da
da ---- tr
tr
tr
tr
122
11.7
11.7
11.7
11.7
Schema
Schema
Schema
Schema ingombri
ingombri
ingombri
ingombri ---- Dimensions
Dimensions
Dimensions
Dimensions scheme
scheme
scheme
scheme ---- Schéma des encombrements
Schéma des encombrements
Schéma des encombrements
Schéma des encombrements
----
Esquema
Esquema
Esquema
Esquema das
das
das
das dimens
dimens
dimens
dimensõõõões
es
es
es m
m
m
mááááximas
ximas
ximas
ximas ---- Esquemas de
Esquemas de
Esquemas de
Esquemas de
dimensiones máximas
dimensiones máximas
dimensiones máximas
dimensiones máximas ----
Σχέδιο
διαστάσεων
όγκου
----
Bauabmessungen
Bauabmessungen
Bauabmessungen
Bauabmessungen ---- Maatschets
Maatschets
Maatschets
Maatschets
----
Layout
Layout
Layout
Layout----ritning med yttermått
ritning med yttermått
ritning med yttermått
ritning med yttermått ----
Mittakaavio
Mittakaavio
Mittakaavio
Mittakaavio
----
Схема
габаритных
размеров
----
Schemat gabarytowy
----
Skema over u
Skema over u
Skema over u
Skema over udvendige mål
dvendige mål
dvendige mål
dvendige mål ---- D
D
D
Dış
ış
ış
ış ebatlar
ebatlar
ebatlar
ebatlar
MIDIBOX
MIDIBOX
MIDIBOX
MIDIBOX
it
it
it
it ---- en
en
en
en ---- fr
fr
fr
fr ---- pt
pt
pt
pt ---- es
es
es
es ---- el
el
el
el ---- de
de
de
de ---- nl
nl
nl
nl ---- sv
sv
sv
sv ---- fi
fi
fi
fi ---- ru
ru
ru
ru ---- pl
pl
pl
pl –––– da
da
da
da ---- tr
tr
tr
tr
123
SINGLE
SINGLE
SINGLE
SINGLEBOX
BOX
BOX
BOX PLUS / DOUBLEBOX PLUS
PLUS / DOUBLEBOX PLUS
PLUS / DOUBLEBOX PLUS
PLUS / DOUBLEBOX PLUS
it
it
it
it ---- en
en
en
en ---- fr
fr
fr
fr ---- pt
pt
pt
pt ---- es
es
es
es ---- el
el
el
el ---- de
de
de
de ---- nl
nl
nl
nl ---- sv
sv
sv
sv ---- fi
fi
fi
fi ---- ru
ru
ru
ru ---- pl
pl
pl
pl –––– da
da
da
da ---- tr
tr
tr
tr
124
11.8
11.8
11.8
11.8
Minimo livello da garantire nel contenitore
Minimo livello da garantire nel contenitore
Minimo livello da garantire nel contenitore
Minimo livello da garantire nel contenitore ---- Minimum level of liquid in the basin
Minimum level of liquid in the basin
Minimum level of liquid in the basin
Minimum level of liquid in the basin ---- Niveau minimum à garantir dans le
Niveau minimum à garantir dans le
Niveau minimum à garantir dans le
Niveau minimum à garantir dans le
récipient
récipient
récipient
récipient ---- Nível mínimo que dev
Nível mínimo que dev
Nível mínimo que dev
Nível mínimo que deve ser garantido na estação
e ser garantido na estação
e ser garantido na estação
e ser garantido na estação ---- Nivel mí
Nivel mí
Nivel mí
Nivel mínimo
nimo
nimo
nimo que se debe
que se debe
que se debe
que se debe garanti
garanti
garanti
garantiza
za
za
zar
r
r
r eeeennnn la estación
la estación
la estación
la estación ----
Ελάχιστη
στάθµη
που
θα
πρέπει
να
διασφαλίζεται
στο
δοχείο
----
Mindestwasserfüllstand im Behälter
Mindestwasserfüllstand im Behälter
Mindestwasserfüllstand im Behälter
Mindestwasserfüllstand im Behälter ---- Minimum
Minimum
Minimum
Minimum niveau te
niveau te
niveau te
niveau te
waarborgen in het reservoir
waarborgen in het reservoir
waarborgen in het reservoir
waarborgen in het reservoir
----
Min. nivå i pumpstationen
Min. nivå i pumpstationen
Min. nivå i pumpstationen
Min. nivå i pumpstationen ---- N
N
N
Nostoaseman minimitaso
ostoaseman minimitaso
ostoaseman minimitaso
ostoaseman minimitaso
----
Минимальный
уровень
,
гарантируемый
в
резервуаре
----
Minimalny poziom do zagwarantowania w pojemniku
----
Min. niveau i
Min. niveau i
Min. niveau i
Min. niveau i
pumpestationen
pumpestationen
pumpestationen
pumpestationen ---- Kabın minimum sıvı seviyesi
Kabın minimum sıvı seviyesi
Kabın minimum sıvı seviyesi
Kabın minimum sıvı seviyesi
it
it
it
it ---- en
en
en
en ---- fr
fr
fr
fr ---- pt
pt
pt
pt ---- es
es
es
es ---- el
el
el
el ---- de
de
de
de ---- nl
nl
nl
nl ---- sv
sv
sv
sv ---- fi
fi
fi
fi ---- ru
ru
ru
ru ---- pl
pl
pl
pl –––– da
da
da
da ---- tr
tr
tr
tr
125
11.9
11.9
11.9
11.9
Marcatura CE
Marcatura CE
Marcatura CE
Marcatura CE ---- EC Marking
EC Marking
EC Marking
EC Marking ---- Marquage CE
Marquage CE
Marquage CE
Marquage CE ---- Marca CE
Marca CE
Marca CE
Marca CE ---- Marcação
Marcação
Marcação
Marcação CE
CE
CE
CE
----
Σήµανση
CE
CE
CE
CE ---- CE
CE
CE
CE----Kennzeichnung
Kennzeichnung
Kennzeichnung
Kennzeichnung ---- CE
CE
CE
CE markering
markering
markering
markering
----
CE
CE
CE
CE----märkning
märkning
märkning
märkning ---- CE
CE
CE
CE----merkki
merkki
merkki
merkki
----
Маркировка
ЕС
----
Znak CE
---- CE
CE
CE
CE----mærkning
mærkning
mærkning
mærkning ---- CE İşareti
CE İşareti
CE İşareti
CE İşareti
Lowara
Lowara
Lowara
Lowara
Via Lombardi 14, 36075 Montecchio Maggiore – VI – Italy
10
Lowara
Lowara
Lowara
Lowara
Via Lombardi 14, 36075 Montecchio Maggiore – VI – Italy
10
EN 12050
EN 12050
EN 12050
EN 12050----1111: Impianto di sollevamento di acque reflue
contenenti materiale fecale DN 63
EN 12050
EN 12050
EN 12050
EN 12050----2222: Impianto di sollevamento di acque reflue prive
di materiale fecale DN 40, DN 50
EN 12050
EN 12050
EN 12050
EN 12050----1111: Lifting station for wastewater containing faecal
matter DN 63
EN 12050
EN 12050
EN 12050
EN 12050----2222: Lifting station for wastewater not containing
faecal matter DN 40, DN 50
Efficacia sollevamento
Efficacia sollevamento
Efficacia sollevamento
Efficacia sollevamento: Vedere la curva della pompa
Lifting effectiveness
Lifting effectiveness
Lifting effectiveness
Lifting effectiveness: see pump curve
Livello rumorosità
Livello rumorosità
Livello rumorosità
Livello rumorosità: Livello di potenza sonora ponderato
secondo la scala A: 70 dB
Noise level
Noise level
Noise level
Noise level: A-weighted sound power level: 70 dB
Protezione contro la corrosione
Protezione contro la corrosione
Protezione contro la corrosione
Protezione contro la corrosione: Materiali utilizzati: Inox,
plastica
Corrosion protection
Corrosion protection
Corrosion protection
Corrosion protection: used materials: stailess steel, plastic
Lowara
Lowara
Lowara
Lowara
Via Lombardi 14, 36075 Montecchio Maggiore – VI – Italy
10
Lowara
Lowara
Lowara
Lowara
Via Lombardi 14, 36075 Montecchio Maggiore – VI – Italy
10
EN 12050
EN 12050
EN 12050
EN 12050----1111: Installation de pompage des eaux sales
contenant des matières fécales DN 63
EN 12050
EN 12050
EN 12050
EN 12050----2222: Installation de pompage des eaux sales ne
contenant pas de matières fécales DN 40, DN 50
EN 12050
EN 12050
EN 12050
EN 12050----1111: Instalação de elevação de águas residuais com
detritos fecais DN 63
EN 12050
EN 12050
EN 12050
EN 12050----2222: Instalação de elevação de águas residuais livres
de detritos fecais DN 40, DN 50
Efficacité levage
Efficacité levage
Efficacité levage
Efficacité levage : voir courbe de la pompe
Efi
Efi
Efi
Eficácia de elevação
cácia de elevação
cácia de elevação
cácia de elevação: Ver a curva da bomba
Niveau des émissions sonores
Niveau des émissions sonores
Niveau des émissions sonores
Niveau des émissions sonores : Niveau de puissance sonore
pondéré sur l’échelle A 70 dB
Nível de ruído
Nível de ruído
Nível de ruído
Nível de ruído: Nível de potência sonora ponderada segundo
a escala A: 70 dB
Protection contre la corrosion
Protection contre la corrosion
Protection contre la corrosion
Protection contre la corrosion:Matériaux utilisés: Inox,
matière plastique
Protecção contra a corrosão
Protecção contra a corrosão
Protecção contra a corrosão
Protecção contra a corrosão: Materiais utilizados: aço
inoxidável, plástico
Lowara
Lowara
Lowara
Lowara
Via Lombardi 14, 36075 Montecchio Maggiore – VI – Italy
10
Lowara
Lowara
Lowara
Lowara
Via Lombardi 14, 36075 Montecchio Maggiore – VI – Italy
10
EN 12
EN 12
EN 12
EN 12050
050
050
050----1111: Instalación de elevación de aguas residuales
que contienen material fecal DN 63
EN 12050
EN 12050
EN 12050
EN 12050----2222: Instalación de elevación de aguas residuales
que no contienen material fecal DN 40, DN 50
EN 12050-1
:
Εγκατάσταση
άντλησης
αποβλήτων
υδάτων
που
περιέχουν
κοπρώδες
υλικό
DN 63
EN 12050-2
:
Εγκατάσταση
άντλησης
αποβλήτων
υδάτων
χωρίς
κοπρώδες
υλικό
DN 40, DN 50
Eficacia de elevación
Eficacia de elevación
Eficacia de elevación
Eficacia de elevación: Véase la curva de la bomba
Αποτελεσµατικότητα
άντλησης
:
βλέπε
την
καµπύλη
της
αντλίας
Nivel de ruido
Nivel de ruido
Nivel de ruido
Nivel de ruido: Nivel de potencia acústica ponderado según
la escala A: 70 dB
Επίπεδο
θορυβότητας
:
επίπεδο
ηχητικής
ισχύος
σταθµισµένο
σύµφωνα
µε
την
κλίµακα
A: 70 dB
Protección contra la corrosión
Protección contra la corrosión
Protección contra la corrosión
Protección contra la corrosión: Materiales utilizados: acero
inoxidable y plástico
Προστασία
κατά
της
διάβρωσης
:
Χρησιµοποιούµενα
υλικά
: Inox (
ανοξείδωτο
),
πλαστικό
Lowara
Lowara
Lowara
Lowara
Via Lombardi 14, 36075 Montecchio Maggiore – VI – Italy
10
Lowara
Lowara
Lowara
Lowara
Via Lombardi 14, 36075 Montecchio Maggiore – VI – Italy
10
EN 12050
EN 12050
EN 12050
EN 12050----1:
1:
1:
1: Fäkalienhebeanlagen DN 63
EN 12050
EN 12050
EN 12050
EN 12050----2:
2:
2:
2: Abwasserhebeanlagen für fäkalienfreies
Abwasser DN 40, DN 50
EN 12050
EN 12050
EN 12050
EN 12050----1111: Hefstation van afvalwater dat fecaliën bevat DN
63
EN 12050
EN 12050
EN 12050
EN 12050----2222: hefstation van afvalwater dat geen fecaliën
it
it
it
it ---- en
en
en
en ---- fr
fr
fr
fr ---- pt
pt
pt
pt ---- es
es
es
es ---- el
el
el
el ---- de
de
de
de ---- nl
nl
nl
nl ---- sv
sv
sv
sv ---- fi
fi
fi
fi ---- ru
ru
ru
ru ---- pl
pl
pl
pl –––– da
da
da
da ---- tr
tr
tr
tr
126
bevat DN 40, DN 50
Hebewirkung:
Hebewirkung:
Hebewirkung:
Hebewirkung: Siehe Pumpenkennlinien
Hefefficiëntie
Hefefficiëntie
Hefefficiëntie
Hefefficiëntie: Zie de curve van de pomp
Geräuschpegel:
Geräuschpegel:
Geräuschpegel:
Geräuschpegel: A-Gewichteter Schalldruckpegel: 70 dB
Geluidsniveau
Geluidsniveau
Geluidsniveau
Geluidsniveau: A-Gewogen geluidsvermogenniveau: 70 dB
Korrosionsschutz:
Korrosionsschutz:
Korrosionsschutz:
Korrosionsschutz: Verwendete Materialien: Inox, Kunststoff
Bescherming tegen corrosie: Toegepaste materialen:
roestvast staal, plastic
Lowara
Lowara
Lowara
Lowara
Via Lombardi 14, IT-36075 Montecchio Maggiore VI, Italien
10
Lowara
Lowara
Lowara
Lowara
Via Lombardi 14, IT-36075 Montecchio Maggiore VI, Italia
10
EN 12050
EN 12050
EN 12050
EN 12050----1111:
Uppfordringsanordningar inom va-installationer -
Utföranden och provning - Del 1: Avlopp med fekalier
DN 63
EN 12050
EN 12050
EN 12050
EN 12050----2222:
Uppfordringsanordningar inom va-installationer -
Utföranden och provning - Del 2: Avlopp utan fekalier
DN 40,
DN 50
EN 12050
EN 12050
EN 12050
EN 12050----1111: Rakennusten ja tonttien laskuviemäröinnin
nostolaitteisto. Rakenne ja testausperiaatteet. Osa 1: Kiinteitä
aineita sisältävä jätevesi DN 63
EN 12050
EN 12050
EN 12050
EN 12050----2222: Rakennusten ja tonttien laskuviemäröinnin
nostolaitteisto. Rakenne ja testausperiaatteet. Osa 2: Ei
kiinteitä aineita sisältävä jätevesi DN 40, DN 50
Pumpkapacitet
Pumpkapacitet
Pumpkapacitet
Pumpkapacitet: Se pumpkurvan.
Nostoteho
Nostoteho
Nostoteho
Nostoteho: ks. pumpun käyrä
Bullernivå
Bullernivå
Bullernivå
Bullernivå: A-vägd ljudeffektsnivå: 70 dB
Melutaso
Melutaso
Melutaso
Melutaso: A-painotettu äänitehotaso: 70 dB
Korrosionsskydd
Korrosionsskydd
Korrosionsskydd
Korrosionsskydd: Använda material: Rostfritt stål, plast
Korroosiosuoja
Korroosiosuoja
Korroosiosuoja
Korroosiosuoja: käytetyt materiaalit: ruostumaton teräs,
muovi
Lowara
Lowara
Lowara
Lowara
Via Lombardi 14, 36075 Montecchio Maggiore – VI – Italy
10
Lowara
Lowara
Lowara
Lowara
Via Lombardi 14, 36075 Montecchio Maggiore – VI – Italy
10
EN
EN
EN
EN 12050
12050
12050
12050----1111:
насосная
установка
сточных
вод
,
содержащих
фекальные
массы
DN 63
EN
EN
EN
EN 12050
12050
12050
12050----2222:
насосная
установка
сточных
вод
,
не
содержащих
фекальные
массы
DN 40, DN 50
EN 12050-1
: Przepompownia do
ś
cieków zawieraj
ą
cych
fekalia DN 63
EN 12050-2
: Przepompownia do
ś
cieków pozbawionych
fekalii DN 40, DN 50
Эффективность
перекачивания
:
см
.
график
насоса
Skuteczno
ść
przepompowywania
: Patrz krzywa pompy
Уровень
шума
:
уровень
оцененного
звукового
давления
по
шкале
A: 70 dB
Poziom hałasu
: Poziom mocy akustycznej zrównowa
ż
ony
według skali A: 70 dB
Защита
от
коррозии
:
используемые
материалы
:
нержавеющая
сталь
,
пластик
Ochrona przed korozj
ą
: Zastosowane materiały: Inox,
plastik
Lowara
Lowara
Lowara
Lowara
Via Lombardi 14, IT-36075 Montecchio Maggiore VI, Italien
10
Lowara
Lowara
Lowara
Lowara
Via Lombardi 14, 36075 Montecchio Maggiore – VI – İtalya
10
EN 12050
EN 12050
EN 12050
EN 12050----1111: Pumpeanlæg for bygninger og parceller -
Principper for konstruktion og prøvning - Del 1: Pumpeanlæg
for fækalieholdigt spildevand DN 63
EN 12050
EN 12050
EN 12050
EN 12050----2222: Pumpeanlæg for bygninger og parceller -
Principper for konstruktion og prøvning - Del 2: Pumpeanlæg
for fækaliefrit spildevand DN 40, DN 50
EN 12050
EN 12050
EN 12050
EN 12050----1111: Dışkı ihtiva eden atık su terfi tesisleri DN 63
EN 12050
EN 12050
EN 12050
EN 12050----2222: Dışkı ihtiva etmeyen atık su terfi tesisleri DN 40,
DN 50
Pumpeeffektivitet:
Pumpeeffektivitet:
Pumpeeffektivitet:
Pumpeeffektivitet: Se pumpens kurve
Terfinin etkisi
Terfinin etkisi
Terfinin etkisi
Terfinin etkisi: bkz. pompa eğrisi
Støjniveau:
Støjniveau:
Støjniveau:
Støjniveau: A-vejet lydeffektniveau: 70 dB
G
G
G
Güüüürrrrüüüültltltltü
ü
ü
ü seviyesi
seviyesi
seviyesi
seviyesi: A: 70 dB skalasına göre ağırlıklı ses gücü
seviyesi
Korrosionsbeskyttelse:
Korrosionsbeskyttelse:
Korrosionsbeskyttelse:
Korrosionsbeskyttelse: Anvendte materialer: Rustfrit stål, plast
Korozyona
Korozyona
Korozyona
Korozyona kar
kar
kar
karşı
şı
şı
şı koruma
koruma
koruma
koruma: Kullanılan malzemeler: paslanmaz
çelik, plastik
Оглавление
- itititit AVVERTIMENTI PER LA SICUREZZA DELLE PERSONE E DELLE COSEAVVERTIMENTI PER LA SICUREZZA DELLE PERSONE E DELLE COSEAVVERTIMENTI PER LA SICUREZZA DELLE PERSONE E DELLE COSEAVVERTIMENTI PER LA SICUREZZA DELLE PERSONE E DELLE COSE
- fr frfr fr AVERTISSEMENTS POUR LA SÉCURITÉ DES PERSONNES ET DES BIENSAVERTISSEMENTS POUR LA SÉCURITÉ DES PERSONNES ET DES BIENSAVERTISSEMENTS POUR LA SÉCURITÉ DES PERSONNES ET DES BIENSAVERTISSEMENTS POUR LA SÉCURITÉ DES PERSONNES ET DES BIENS
- es eses es ADVERTENCIAS PARA LA SEGURADVERTENCIAS PARA LA SEGURADVERTENCIAS PARA LA SEGURADVERTENCIAS PARA LA SEGURIDAD DE LAS PERSONAS Y DE LAS COSAS IDAD DE LAS PERSONAS Y DE LAS COSASIDAD DE LAS PERSONAS Y DE LAS COSAS IDAD DE LAS PERSONAS Y DE LAS COSAS
- de dede de SICHERHEITSHINWEISE FÜR PERSONEN UND SACHENSICHERHEITSHINWEISE FÜR PERSONEN UND SACHENSICHERHEITSHINWEISE FÜR PERSONEN UND SACHENSICHERHEITSHINWEISE FÜR PERSONEN UND SACHEN
- sv svsv sv SÄKERHETSANVISNINGARSÄKERHETSANVISNINGARSÄKERHETSANVISNINGARSÄKERHETSANVISNINGAR
- ru ПРЕДУПРЕЖДЕНИЯ ПО БЕЗОПАСНОСТИ ДЛЯ ЛЮДЕЙ И ИМУЩЕСТВА
- da dada da SIKKERHEDSFORSKRIFTER FOR PERSONER OG TINGSIKKERHEDSFORSKRIFTER FOR PERSONER OG TINGSIKKERHEDSFORSKRIFTER FOR PERSONER OG TINGSIKKERHEDSFORSKRIFTER FOR PERSONER OG TING
- 1. Informazioni generaliInformazioni generaliInformazioni generaliInformazioni generali
- 4. TraspTraspTraspTrasporto e immagazzinamento orto e immagazzinamentoorto e immagazzinamentoorto e immagazzinamento
- 5. InstallazioneInstallazioneInstallazioneInstallazione
- ATTENZIONE
- 7. Manutenzione, assisManutenzione, assisManutenzione, assisManutenzione, assistenza e ricambi tenza e ricambitenza e ricambitenza e ricambi
- 8. Ricerca guasti Informazioni per l’utilizzatore e il manuRicerca guasti Informazioni per l’utilizzatore e il manuRicerca guasti Informazioni per l’utilizzatore e il manuRicerca guasti Informazioni per l’utilizzatore e il manutentore tentoretentore tentore
- 1. General informationGeneral informationGeneral informationGeneral information
- 4. Transport and storageTransport and storageTransport and storageTransport and storage
- 5. InstallationInstallationInstallationInstallation
- WARNING
- 7. Maintenance, service and spare partsMaintenance, service and spare partsMaintenance, service and spare partsMaintenance, service and spare parts
- 8. Troubleshooting Troubleshooting Troubleshooting Troubleshooting
- 1. Informations généralesInformations généralesInformations généralesInformations générales
- 4. TrTrTrTransport et stockage ansport et stockageansport et stockageansport et stockage
- 5. InstallationInstallationInstallationInstallation
- 6. Mise en serviceMise en serviceMise en serviceMise en service
- ATTENTION
- 7. Entretien, assistance et pièces de rechange Informations pour le préposé à la maintenanceEntretien, assistance et pièces de rechange Informations pour le préposé à la maintenanceEntretien, assistance et pièces de rechange Informations pour le préposé à la maintenanceEntretien, assistance et pièces de rechange Informations pour le préposé à la maintenance
- 8. Recherches de pannes Recherches de pannes Recherches de pannes Recherches de pannes Informations pour l’utilisateur et le préposé à la maintenance Informations pour l’utilisateur et le préposé à la maintenance Informations pour l’utilisateur et le préposé à la maintenance Informations pour l’utilisateur et le préposé à la maintenance
- 9. Mise au rebutMise au rebutMise au rebutMise au rebut Informations pour l’installateur et le préposé à la maintenance Informations pour l’installateur et le préposé à la maintenance Informations pour l’installateur et le préposé à la maintenance Informations pour l’installateur et le préposé à la maintenance
- 1. Informações geraisInformações geraisInformações geraisInformações gerais
- 4. Transporte e armazenagem Transporte e armazenagem Transporte e armazenagem Transporte e armazenagem
- 5. InstalaçãoInstalaçãoInstalaçãoInstalação
- ATENÇÃO
- 7. Manutenção, assistência, peças de reposição Informações para o encarregado da manutençãoManutenção, assistência, peças de reposição Informações para o encarregado da manutençãoManutenção, assistência, peças de reposição Informações para o encarregado da manutençãoManutenção, assistência, peças de reposição Informações para o encarregado da manutenção
- 8. Procura das avarias Informações para o utilizador e o encarregado daProcura das avarias Informações para o utilizador e o encarregado daProcura das avarias Informações para o utilizador e o encarregado daProcura das avarias Informações para o utilizador e o encarregado da manutenção manutenção manutenção manutenção
- 1. GeneralidadesGeneralidadesGeneralidadesGeneralidades
- 4. Transporte y almacenamientoTransporte y almacenamientoTransporte y almacenamientoTransporte y almacenamiento
- 5. InstalaciónInstalaciónInstalaciónInstalación
- ATENCIÓN
- 7. MantenimientoMantenimientoMantenimientoMantenimiento, asistencia, repuestos , asistencia, repuestos , asistencia, repuestos , asistencia, repuestos Información para el encargado del mantenimiento Información para el encargado del mantenimientoInformación para el encargado del mantenimiento Información para el encargado del mantenimiento
- 8. Posibles averías Posibles averías Posibles averías Posibles averías
- 1. Γενικά
- 4. Μεταφορά και αποθήκευση
- 5. Εγκατάσταση
- 6. Θέση σε λειτουργία
- ΠΡΟΣΟΧΗ
- 7. Συντήρηση , υποστήριξη , ανταλλακτικά
- 8. Αναζήτηση βλαβών
- 9. ∆ιάθεση
- 1. AllgemeinesAllgemeinesAllgemeinesAllgemeines
- 4. Transport und EinlagerungTransport und EinlagerungTransport und EinlagerungTransport und Einlagerung
- 5. AufstellungAufstellungAufstellungAufstellung
- 6. InbetriebnahmeInbetriebnahmeInbetriebnahmeInbetriebnahme
- ACHTUNG
- 7. Wartung, Service und ErsatzteileWartung, Service und ErsatzteileWartung, Service und ErsatzteileWartung, Service und Ersatzteile Informationen für das Wartungspersonal Informationen für das Wartungspersonal Informationen für das Wartungspersonal Informationen für das Wartungspersonal
- 9. Entsorgung Entsorgung Entsorgung Entsorgung Informationen für den Installateur und das Wartungspersonal Informationen für den Installateur und das Wartungspersonal Informationen für den Installateur und das Wartungspersonal Informationen für den Installateur und das Wartungspersonal
- 1. Algemene informatieAlgemene informatieAlgemene informatieAlgemene informatie
- 4. Transport en opslagTransport en opslagTransport en opslagTransport en opslag
- 5. InstallatieInstallatieInstallatieInstallatie
- 6. InwerkingstellingInwerkingstellingInwerkingstellingInwerkingstelling
- LET OP
- 7. Onderhoud, service en reserveonderdelenOnderhoud, service en reserveonderdelenOnderhoud, service en reserveonderdelenOnderhoud, service en reserveonderdelen
- 8. Lokaliseren van storingen Lokaliseren van storingen Lokaliseren van storingen Lokaliseren van storingen
- 9. Buiten bedrijf stellen Informatie voor de installateur en de oBuiten bedrijf stellen Informatie voor de installateur en de oBuiten bedrijf stellen Informatie voor de installateur en de oBuiten bedrijf stellen Informatie voor de installateur en de onderhoudsmonteur nderhoudsmonteurnderhoudsmonteurnderhoudsmonteur
- 1. Allmänna dataAllmänna dataAllmänna dataAllmänna data
- 4. Transport och förvaringTransport och förvaringTransport och förvaringTransport och förvaring
- 5. InstallationInstallationInstallationInstallation
- VARNING
- 7. Underhåll, service och reservdelarUnderhåll, service och reservdelarUnderhåll, service och reservdelarUnderhåll, service och reservdelar
- 9. Skrotning Skrotning Skrotning Skrotning
- 1. YleistäYleistäYleistäYleistä
- 4. Kuljetus ja varastointiKuljetus ja varastointiKuljetus ja varastointiKuljetus ja varastointi
- 6. KäyttöönottoKäyttöönottoKäyttöönottoKäyttöönotto
- 7. Huolto, asiakaspalvelu, varaosatHuolto, asiakaspalvelu, varaosatHuolto, asiakaspalvelu, varaosatHuolto, asiakaspalvelu, varaosat
- 7.1 7.17.1 7.1
- 9. Romutus Romutus Romutus Romutus
- 1. Общие сведения
- 4. Транспортировка и хранение
- 5. Установка
- ВНИМАНИЕ
- 7. Техобслуживание , сервис и запасные части
- 8. Поиск неисправностей
- 9. Вывод из эксплуатации
- 1. Informacje ogólne
- 4. Transport i magazynowanie Informacje dla pracowników zajmuj ą cych si ę transportem
- 5. Monta ż Informacje dla instalatora
- 6. Rozruch Informacje dla instalatora
- UWAGA
- 7. Konserwacja, serwis i cz ęś ci zamienne Informacje dla konserwatora
- 8. Rozwi ą zywanie problemów Informacje dla u ż ytkownika i konserwatora
- 9. Likwidacja Informacje dla u ż ytkownika i konserwatora
- 1. Generelle oplysningerGenerelle oplysningerGenerelle oplysningerGenerelle oplysninger
- 4. Transport og opbevaringTransport og opbevaringTransport og opbevaringTransport og opbevaring
- 5. InstallationInstallationInstallationInstallation Information til installatøren Information til installatøren Information til installatøren Information til installatøren
- ADVARSEL
- 7. Vedligeholdelse, assistance, reservedeleVedligeholdelse, assistance, reservedeleVedligeholdelse, assistance, reservedeleVedligeholdelse, assistance, reservedele
- 9. Bortskaffelse Bortskaffelse Bortskaffelse Bortskaffelse
- 1. Genel bilgilerGenel bilgilerGenel bilgilerGenel bilgiler
- 4. Taşıma ve depolamaTaşıma ve depolamaTaşıma ve depolamaTaşıma ve depolama
- 5. KurulumKurulumKurulumKurulum
- DİKKAT!
- 7. Bakım, servis hizmeti ve yedek parçalarBakım, servis hizmeti ve yedek parçalarBakım, servis hizmeti ve yedek parçalarBakım, servis hizmeti ve yedek parçalar
- 8. Arıza aramaArıza aramaArıza aramaArıza arama
- 11. Tabelle e disegni Tabelle e disegni Tabelle e disegni Tabelle e disegni ---- Tables and Drawings Tables and DrawingsTables and Drawings Tables and Drawings ---- Tableaux et dessins Tableaux et dessins Tableaux et dessins Tableaux et dessins ---- Tabelas e desenhos Tabelas e desenhosTabelas e desenhos Tabelas e desenhos ---- Tablas y dibujosTablas y dibujosTablas y dibujosTablas y dibujos ---- Πίνακες και σχέδια ---- Tabellen und Zeichnungen Tabellen und ZeichnungenTabellen und ZeichnungenTabellen und Zeichnungen ---- Tabellen en tekeningen Tabellen en tekeningenTabellen en tekeningen Tabellen en tekeningen ---- Tabeller och ritningarTabeller och ritningarTabeller och ritningarTabeller och ritningar ---- Taulukot ja kaaviot Taulukot ja kaaviotTaulukot ja kaaviotTaulukot ja kaaviot - Таблицы и рисунки ---- Tabele i rysunki Tabele i rysunki Tabele i rysunki Tabele i rysunki ---- Tabeller og tegninger Tabeller og tegningerTabeller og tegninger Tabeller og tegninger ---- Tablo ve çizimler Tablo ve çizimlerTablo ve çizimler Tablo ve çizimler
- DOMO 10VXT
- 12. Dichiarazione DichiarazioneDichiarazione Dichiarazione CE CECE CE di didi di conformit conformitconformitconformità à à à ---- EC ECECEC Declaration DeclarationDeclarationDeclaration of ofofof Conformity ConformityConformityConformity ---- D DDDééééclaration clarationclarationclaration CE CECE CE de dede de conformi conformiconformi conformitttté é é é –––– Declara DeclaraDeclaraDeclaraçã çãçã çãoooo CE CECE CE de dede de conformidade conformidadeconformidadeconformidade ---- Declaraci DeclaraciDeclaraciDeclaracióóóónnnn CE CECECE de dedede conformidad conformidadconformidadconformidad –––– ∆ήλωση
- ptptptpt Declaração CE de conformidade Declaração CE de conformidadeDeclaração CE de conformidade Declaração CE de conformidade TraduçTraduçTraduçTradução ãoãoão
- dededede EG EGEG EG----Konformitätserklärung KonformitätserklärungKonformitätserklärungKonformitätserklärung ÜbersetzungÜbersetzungÜbersetzungÜbersetzung
- fifififi EY EYEY EY----Vaatimustenmukaisuusvakuutus VaatimustenmukaisuusvakuutusVaatimustenmukaisuusvakuutusVaatimustenmukaisuusvakuutus KääKääKääKäänn nnnn nnöööössss
- dadadada EF EFEF EF----Overensstemmelseserklæring OverensstemmelseserklæringOverensstemmelseserklæringOverensstemmelseserklæring OversOversOversOversæ ææ ættelse ttelsettelse ttelse
- it Lowara si riserva il diritto di apportare modifiche senza obbligo di preavviso. en Lowara reserves the right to make modifications without prior notice. fr Lowara se réserve le droit d’apporter des modifications sans obligation de préavis. de Änderungen, auch ohne vorherige Ankündigung, sind LOWARA jederzeit vorbehalten. es Lowara se reserva el derecho de realizar modificaciones sin necesidad de aviso previo. pt A Lowara reserva-se o direito de proceder a alterações sem aviso prévio. nl Lowara behoudt zich het recht voor om zonder voorafgaand bericht wijzigingen aan te brengen. da Lowara forbeholder sig retten til at ændre specifikationerne uden meddelelse herom. no Lowara forbeholder seg retten til å utføre endringer uten forvarsel. sv Lowara förbehåller sig rätten att utföra ändringar utan förhandsmeddelande. fi Lowara pidättää itselleen oikeuden tehdä muutoksia ilman ennakkoilmoitusta. is Lowara áskilur sér rétt til að gera breytingar án fyrirvara. et Lowara jätab endale õiguse teha muudatusi eelnevalt ette teatamata lv Lowara patur ties ī bas veikt izmai ņ as bez iepriekš ē ja br ī din ā juma. lt „Lowara“ pasilieka teis ę atlikti pakeitimus be išankstinio į sp ė jimo. pl Lowara zastrzega sobie prawo do wprowadzenia zmian bez obowi ą zku wcze ś niejszego powiadomienia. cs Spole č nost Lowara si vyhrazuje právo na provedení zm ě n bez p ř edcházejícího upozorn ě ní. sk Spolo č nos ť Lowara si vyhradzuje právo na vykonanie zmien bez predchádzajúceho upozornenia. hu A Lowara fenntartja magának a jogot el ő zetes értesítés nélküli módosítások eszközlésére. ro Lowara î ş i rezerv ă dreptul de a face modific ă ri f ă r ă o în ş tiin ţ are prealabil ă . bg Фирмата Ловара си запазва правото да нанася промени без предупреждение sl Lowara si pridržuje pravico do vnašanja sprememb brez vsakršnega predhodnega obvestila. hr Lowara zadržava pravo promjene bez obveze prethodne najave. sr Lowara zadržava pravo promene bez obaveze prethodne najave. el Η Lowara διατηρεί το δικαίωµα να επιφέρει τροποποιήσεις χωρίς υποχρέωση προειδοποίησης tr Lowara ş irketi önceden haber vermeksizin de ğ i ş iklikler yapma hakkını saklı tutmaktadır ru Lowara оставляет за собой право вносить изменения без предварительного уведомления . uk Компанія Lowara залишає за собою право вносити зміни без попередження . ar ارا آ Lowara ُا ¡¢ ما¤¥ا نو¨¢ تª«¨¬ ءا®إ ¢ . Headquarters LOWARA S.R.L. UNIPERSONALE Via Vittorio Lombardi 14 36075 Montecchio Maggiore VI Italia Tel. (+39) 0444 707111 - Fax (+39) 0444 492166 e-mail: lowara.mkt@xyleminc.com web: www.lowara.com © 2011 Xylem, Inc

