Ridgid 3814 (E): Istruzioni operative
Istruzioni operative: Ridgid 3814 (E)
3801(E), 3802(E), 3811(E), 3812(E), 3813(E), 3814(E)
Ridge Tool Company
22
ATTENZIONE! Leggere con attenzione
queste istruzioni e l’opuscolo antinfortu-
nistico allegato prima di utilizzare queste
attrezzature. In caso di incertezza su qualsiasi
aspetto dell’uso di questo strumento, contattare
il proprio distributore RIDGID per ulteriori infor-
mazioni.
Se queste istruzioni non verranno comprese
e seguite integralmente ne potranno derivare
scosse elettriche, incendio e/o gravi lesioni
personali.
CONSERVARE IL PRESENTE MANUALE DI
ISTRUZIONI!
Montaggio
1. a. Curvatubi da 1 1/4”, 2” e 3”.
Appoggiare a terra il curvatubi con i suoi supporti e far scivolare
l’anello sopra il davanti del cilindro della pompa.
Inserire la forcella ad U attraverso i fori del blocco dell’anello del
curvatubi. A questo punto il cilindro della pompa e il curvatubi sono
fi
ssati nella posizione corretta.
1. b. Curvatubi da 4”.
- Appoggiare sul pavimento la base d’appoggio.
- Appoggiare la piastra inferiore sulla base d’appoggio.
- Piazzare il gruppo pompa sulla base d’appoggio, agganciando
la piastra inferiore alla pompa e
fi
ssare quest’ultima alla base
d’appoggio con due bulloni M10.
- Piazzare sulla piastra inferiore i due supporti d’angolo
(contromatrici) e, quando sia il caso, la matrice desiderata.
- Appoggiare la piastra superiore, agganciandola alla pompa, sui
due supporti d’angolo (contromatrici).
- Inserire i due perni fra le due piastre bloccando i due supporti
d’angolo (contromatrici).
MONTAGGIO DEL CURVATUBI DA 4”
Pompa da 4”
Piastra superiore
Supporto
d’angolo
con spine
di
fi
ssaggio
Piastra inferiore
Base d’appoggio
2. Montare sulla cima del pistone la matrice appropriata al diametro
del tubo da curvare. I supporti d’angolo devono essere messi tra le
due piastre o sulla piastra singola. Il
fi
ssaggio avviene con le relative
spine. I fori nella piastra consentono di posizionare i supporti d’angolo
in base al diametro esterno del tubo da piegare. Questi fori sono
marcati opportunamente. Bisogna assicurarsi che i supporti d’angolo
siano ben
fi
ssati fra le piastre o attraverso il curvatubi, per evitare
danni durante il funzionamento.
Curvatura
1. Il tappo riempimento è forato per lasciare passare l’aria. Ogni volta
che il curvatubi viene trasportato, questo tappo deve essere ben
chiuso, ma dev’essere allentato un po’ durante il funzionamento.
2. Prima di curvare, il tubo deve essere leggermente lubri
fi
cato. A
questo punto il tubo viene inserito tra i supporti d’angolo e la matrice.
La chiave di comando scarico del cilindro deve essere saldamente
serrata. La pompa entra in funzione azionando la leva dall’alto al
basso. Il pistone avanza curvando il tubo. Questa operazione deve
essere continuata
fi
ntanto che si raggiunge il grado di curvatura
desiderata, ma senza oltrepassare l’arco di curvatura della matrice.
Bisogna tenere presente che il tubo, appena curvato, tende
leggermente a riaprirsi in funzione della qualità del materiale. Questo
può essere determinato mediante l’esperienza diretta.
3. Quando il tubo ha raggiunto la curva desiderata, allentare la chiave di
comando scarico del cilindro ed il pistone si ritirerà automaticamente.
Sconnettere uno dei supporti d’angolo e il tubo potrà essere rimosso.
I modelli equipaggiati con una piastra del tipo ribaltabile o aperto
offrono il vantaggio che il tubo curvato viene rilasciato più facilmente
(particolarmente i pezzi lunghi o tubi con varie curve), risparmiando
così molto tempo.
4. Se una curva è superiore a quella desiderata, è possibile correggerla
con l’ausilio di un raddrizzatore. Bisogna capovolgere il pistone e il
tubo deve essere rovesciato contro i supporti d’angolo. Il raddrizzatore
viene montato sulla parte superiore del pistone, e la curva può
modi
fi
cata alla forma desiderata. Sul curvatubi da 1 1/4”, non si può
normalmente raddrizzare una curva di 90°. Questo vale anche per i
curvatubi da 3” per i tubi da 2 1/2” e da 3”, e per i curvatubi da 4” per i
tubi da 3” e 4”.
5. Solo per il modello da 3” e 4”.
Quando si devono curvare tubi da 2 1/2”, 3” o 4” con angolo di
curvatura superiore ai 75°, bisogna montare sul pistone un’opportuna
prolunga. La corsa del pistone non è suf
fi
ciente a piegare a 90° in
un’operazione unica.
6. Curvatubi elettroidraulici per tubi da 1 1/4”, 2”, 3”, 4”.
I curvatubi elettroidraulici sono equipaggiati con un motore monofase
a 115 V, 220 V, c.a. o con un motore trifase da 380 V. ll motore è
dotato di un interruttore di sicurezza. Quando il motore è in funzione,
il movimento del pistone è controllato dalla chiave di comando scarico
del cilindro che può essere sia aperta, che chiusa. Non occorre
spegnere il motore. L’apparecchio dispone anche d’una valvola di
sicurezza per la pressione. Questa valvola è tarata in fabbrica per
consentire di curvare senza dif
fi
coltà tubi a pareti spesse (tubi acqua).
La valvola di sicurezza si trova nell’alloggiamento della pompa e può
essere tarata solo con un manometro.
Curvatura di tubi sottili a 180°
Per queste operazioni, sono necessari dispositivi supplementari che sono
disponibili su richiesta.
Montaggio
1. Vedere montaggio del curvatubi.
2. La matrice (180°) della dimensione del tubo da piegare viene montata
sul pistone. Successivamente le contromatrici con 3 rulli vengono
posizionate e regolate tra o nella piastra inferiore. Le spine di
fi
ssaggio
dei supporti d’angolo devono essere inserite attraverso i fori a 1 1/4”
attraverso il blocco centrale; i rulli amovibili devono essere tolti e il
tubo da piegare deve essere fatto passare. Ora il tubo deve toccare il
rullo centrale da un lato e la contromatrice a 180° dall’altro lato. Ora è
possibile cominciare l’operazione di curvatura.
IT
3801(E), 3802(E), 3811(E), 3812(E), 3813(E), 3814(E)
Istruzioni operative
3801(E), 3802(E), 3811(E), 3812(E), 3813(E), 3814(E)
Ridge Tool Company
23
Curvatura
1. Vedere sotto il paragrafo curvature.
2. Qualora la curva superi i 90°, bisogna capovolgere il pistone,
rilasciando la chiave di scarico del cilindro. Regolare i rulli asportabili
e curvare
fi
no a 180°. Per togliere il tubo curvato, vedere il paragrafo
“Curvature”.
Manutenzione
Il curvatubi viene fornito con il serbatoio pieno d’olio. Tuttavia, bisogna
veri
fi
care regolarmente il livello dell’olio perché altrimenti la corsa del
pistone diventerà troppo corta. L’olio deve sempre trovarsi al livello della
base del tappo di riempimento. Qualora sia necessario aggiungere olio,
impiegare esclusivamente olio idraulico.
Avvertenza
1. Assicurarsi che i supporti d’angolo siano sempre posizionati
simmetricamente nei relativi fori, secondo la dimensione del tubo
da curvare. Qualora non venissero disposti correttamente, potrebbe
veri
fi
carsi un grave danneggiamento del pistone e dell’attrezzo.
2. Accertarsi anche che le spine di
fi
ssaggio dei supporti d’angolo siano
correttamente inserite nei fori inferiori e superiori delle piastre e
passino completamente
fi
no ad arrivare al curvatubi aperto.
3. Il pistone non deve mai essere azionato oltre la propria tacca limite.
Malfunzionamenti possibili e rimedi
I numeri tra parentesi si riferiscono alle macchine elettriche.
MALFUNZIONAMENTI CAUSA
PRESUNTA
RIMEDIO
1. Il pistone (33) non esce
suf
fi
cientemente.
a. Il tappo di riempimento (37) non è suf
fi
cientemente
allentato.
b. Il serbatoio d’olio non è suf
fi
cientemente riempito.
c. Lo scarico d’aria del tappo (37) è intasato.
a. Allentare il tappo (37) di circa 1 o 1 1/2 giro di vite.
Smontando la macchina, bisogna stare attenti che il
tappo sia ben avvitato.
b. Riempire il serbatoio d’olio
fi
nché l’olio non si troverà
al livello del tappo. Il pistone non deve essere fatto
uscire oltre la scanalatura segnata sul pistone.
c. Pulire lo scarico d’aria.
2. Il pistone (33) non si muove
assolutamente.
a. La chiave di comando scarico del cilindro (7) non è serrata
suf
fi
cientemente.
b. Sfera (32) non blocca quando si preme, può darsi che la
sede conica della sfera sia sporca.
c. Filtro (42) e/o tubo di riempimento olio è intasato.
a. Serrare la chiave di comando scarico del cilindro.
b1. Pulire il cono della sfera sotto la sfera (32).
Premere la sfera sul cono per inserirla più fortemente.
b2. Bisogna contattare il fornitore.
c. Togliere la spina di bloccaggio (34). Pulire il
fi
ltro e il
tubo riempimento olio.
3. La pressione del pistone
idraulico (33) è quasi nulla o
nulla.
a. La chiave di comando scarico del cilindro (7) non è serrata
suf
fi
cientemente.
b. Presenza di sporcizia tra cono e sfera (32) della chiave di
comando scarico del cilindro (7), l’olio ritorna nel serbatoio
olio.
c. Sfera (32) non blocca perché il cono è sporco.
d. La guarnizione sotto la vite di sicurezza (27) per la molla
tirante gocciola.
e. La guarnizione (40) gocciola.
f. La guarnizione (46) gocciola.
a. Serrare la chiave di comando scarico del cilindro.
b. Togliere la chiave di comando scarico del cilindro, (7)
l’anello del dado (8), la guarnizione (9), e gli anelli
inferiori (10). Pulire il cono della sfera (31). Vedere
2b1. (se necessario, contattare il fornitore).
c. Togliere la vite di sicurezza della molla tirante (27) e
tirare in fuori il pistone di 2 cm. Vedere 2b1.
d. Serrare questa vite e se necessario sostituire l’anello
del giunto (28).
e. Sostituire la guarnizione. Stare attenti che sia ben
bloccata. Per smontare il pistone, vedere 3c.
f. Sostituire la guarnizione.
4. Il manico della pompa (16)
non si rialza.
a. La molla di pressione (30) è danneggiata.
a. Sostituire la molla di pressione.
5. Il pistone (33) non ritorna
quando la chiave di comando
scarico del cilindro è aperta.
a. La molla tirante (29) è danneggiata.
b. Il pistone (33) è piegato. Questo succede solo quando i
supporti d’angolo sono disposti in modo asimmetrico.
a. Sostituire la molla tirante. Bisogna contattare il
fornitore.
b. Bisogna contattare il fornitore.
6. Olio fuoriesce dal pistone di
pressione (20).
a. La guarnizione dell’anello raschiaolio (41) gocciola.
a. Sostituire la guarnizione del raschiaolio.
Se necessario, sostituire anche la guarnizione (46).
3801(E), 3802(E), 3811(E), 3812(E), 3813(E), 3814(E)
Ridge Tool Company
24
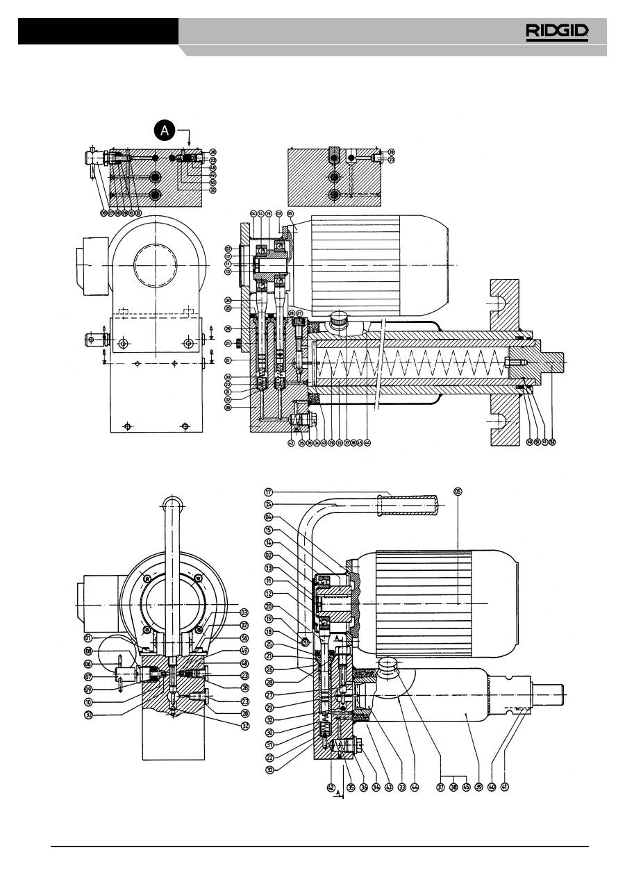
Pos. n°
Modello
3801/
3811
Q.TÀ
Modello
3802/
3812
Q.TÀ
Modello
3813
Q.TÀ
Modello
3814
Q.TÀ
Modello
3801 E
Q.TÀ
Modello
3802 E
3812 E
Q.TÀ
Modello
3813 E
Q.TÀ
Modello
3814 E
Q.TÀ
Pos. n°
Vite
01
21256
4
21256
4
21256
4
28256
4
01
Cappuccio di copertura
02
21266
1
21266
1
21266
1
21266
1
02
Vite
03
21276
4
21276
4
21276
4
21276
4
03
Custodia di spinta
04
21286
1
21286
1
21286
1
28736
1
04
Elettromotore
05
Ved. tabella 1 Ved. tabella 1 Ved. tabella
1 Ved. tabella 1
05
Spina della tacca per la
chiave di comando scarico
06
21126
1
21126
1
21126
1
21126
1
21126
1
21126
1
21126
1
21126
1
06
Chiave di comando scarico
07
21116
1
21116
1
21116
1
21116
1
21116
1
21116
1
21116
1
21116
1
07
Ghiera della chiave di
comando scarico
08
21106
1
21106
1
21106
1
21106
1
21106
1
21106
1
21106
1
21106
1
08
Guarnizione di gomma
09*
1
1
1
1
1
1
1
1
09
Anello inferiore di rame
10*
2
2
2
2
2
2
2
2
10
Vite
11
21376
1
21376
2
21376
2
21376
2
11
Anello di sicurezza
12
21386
1
21386
1
21386
1
21386
1 12
Controdado
13
21396
1
21396
1
21396
1
21396
1 13
Cuscinetto a sfera
14
21406
1
21406
1
21406
1
21406
1 14
Eccentrico
15
21416
1
21416
1
21416
1
28606
1 15
Leva manuale
16
20846
1
20846
1
20846
1
28726
1
16
Impugnatura
17*
1 1 1 1 1 1 1
17
Anello di sicurezza
18
21076
2
21076
2
21076
2
28746
2
21076
2
21076
2
21976
2
18
Spina della tacca
19
21066
1
21066
1
21066
1
28516
1
21066
1
21066
1
21066
1
19
Stantuffo di pressione
20
20866
1
20866
1
20866
1
28596
1
21466
1
21466
1
21466
1
21466
2 20
Sede dello stantuffo
di pressione
21
21476
1
21476
1
21476
1
21476
2 21
Spina della tacca diam. 4 x16 22
21486
1
21486
1
21486
1
21486
2 22
Tappo terminale G 1/4”
23
20926
1
20926
1
20926
1
20926
1
20926
1
20926
1
20926
1
20926
2 23
Giogo di supporto
24
21426
1
21426
1
21426
1
24
Guarnizione del raschiaolio
per il pistone di pressione
25*
1
1
1
1
1
1
1
2
25
O-Ring
26*
2
2 2
4
26
Vite di sicurezza
per molla tirante
27
20916
1
20916
1
20916
1
28636
1
21526
1
21526
1
21526
1
28866
2 27
Anello giunto PP 45 B
28*
2
2
2
2
3
3
3
4
28
Molla tirante da 1 1/4”
29
21166
1
21176
1
21176
1
28496
1
21166
1
21176
1
21176
1
28496
1 29
Molla di spinta
30
20896
1
20896
1
20896
1
28476
1
21536
1
21536
1
21536
1
21536
2 30
Sede conica della sfera
31
21546
1
21546
1
21546
1
21546
2 31
Sfera da 5/16”
32*
3
3
3
3
4
4
4
6
32
Pistone da 1 1/4”
33
21186
1
21196
1
21206
1
28586
1
21186
1
21196
1
21206
1
28586
1 33
Tappo G 1/2”
34
21026
1
21026
1
21126
1
21026
1
21026
1
21026
1
21026
1
21026
1 34
Molla di spinta per il
fi
ltro
35
21576
1
21576
1
21576
1
21576
1
21576
1
21576
1
21576
1
21576
1 35
Anello giunto PP 45 D
36*
1
1
1
1
1
1
1
1
36
Tappo di riempimento
37
20946
1
20946
1
20946
1
20946
1
20946
1
20946
1
20946
1
20946
1
37
Guarnizione di sughero
per tappo di riempimento
38*
1
1
1
1
1
1
1
1
38
Corpo pompa
39
1
1
1
1
1
1
1
1 39
Guarnizione da 1 1/4”
40*
20996
1
21006
1
21016
1
28466
1
20996
1
21006
1
21016
1
28466
1 40
Guarnizione del raschiaolio
41*
1
1
1
1
1
1
1
1
41
Filtro
42*
1
1 1 1 1 1 1 1
42
Spina per molla tirante
43
21136
1
21146
1
21156
1
28556
1
21136
1
21146
1
21156
1
28556
1 43
Disco
44
21246
1
21246
1
21246
1
21246
1
21246
1
21246
1
21246
1
21246
1 44
Liquido idraulico (2,5 l)
45
14061
1
14061
1
14061
1
14061
1
14061
1
14061
1
14061
1
14061 1 45
Guarnizione di pressione
46*
1
1
1
1
46
Spina per la guarnizione
di pressione
47
20886
1
20866
1
20866
1
20886
1
47
Tappo della valvola di sicurezza 48
28576
1
28576
1
28576
1
28576
1 48
Molla
49
28486
24
28486 24
28486
24
28486 24 49
Cono della sfera
50
28626
1
28626
1
28626
1
28626
1 50
O-Ring
51*
28426
1
28426
1 51
Tappo per pistone da 4”
52
28616
1
28616
1 52
Kit di tenuta
(comprende gli articoli con*)
21906
21916
21926
33226
21936
21946
21956
33236
Motore 110V 1Ø
28276
Condensatore 230 V = 40
μ
F 34306
Interruttore 110 V
57786
230 V 1Ø
21316
110 V = 110
μ
F 34316
230 V
1 Ø
57776
400 V 3 Ø 21306
400 V 3Ø
57766
3801(E), 3802(E), 3811(E), 3812(E), 3813(E), 3814(E)
Ridge Tool Company
25
3801(E), 3802(E), 3811(E), 3812(E), 3813(E), 3814(E)
Ridge Tool Company
26
Accessori
3802
3812
3813
Accessorio a 180°
22366
22346
22356
Ved. matrici
40 x 8 mm
Accessorio barra
22446
22436
22456
Ved. sotto per le matrici
Corsa
regolazione
3801 E / 3811 E2
3802 E / 12 E / 13 E
3814 E
220 V
360 V
115 V
26896
26906
35116
26916
26926
34916
29126
29116
35726
Raggio (mm)
60
70
80
90
100
110
120
130
40 x 8 mm
Matrici per barre
22466 22476 22486 22496 22506 22516 22526 22536
Matrici
Dimen -
sione
nomi -
nale
Esterno
Ø
mm
Matrici normali
Tubo caldaia
Curva a 180°
Raggio
Cat. N°
Raggio
Cat. N°
Raggio
Cat. N°
1/4
13,5
60 28286
130 22376
3/8
17,2
45 21806
18
18
60 27816
20
20
70 27826
1/2
21,3
50 21816 110 22236 130 22386
22
22
80 27836
25
25
115 22116
3/4” 26,9 65 21826 137 22246 130
22396
28
28
70 35066
30
30
140 22126
32
32
140 22136
1
33,7 100 21836
190 22256 130 22406
35
35
100
35076
38
38
170
22146
40
40
125
35086
42
42
125
35096
1 1/4”
42,4
130
21846
220
22266
130
22416
44,5
44,5
190
22156
1 1/2
48,3
160
21856
220
22166
140
22426
50
50
140
35106
51
51
220
22176
57
57
250
22186
2
60,3
220
21866
270
22196
190
28766
63,5
63,5
270
22206
70
70
315
22216
2 1/2
76,1
320
21876
420
22226
3
88,9
380
21886
4
114,3
600
28756
PARTICOLARE DELLA MAX.
PRESSIONE VALVOLA
POMPE ELETTROIDRAULICHE
PRESSIONE MAX. 420 ATO
Оглавление
- Operating Instructions
- Bedienungsanleitung
- Instructions d’utilisation
- Gebruiksaanwijzing
- Istruzioni operative
- Instrucciones de uso
- Instruções de Funcionamento
- Driftsinstruktioner
- Betjeningsvejledning
- Brukerveiledning
- Käyttöohjeet
- Upute za rukovanje
- Instrukcja obs ł ugi
- Instruc ţ iuni de exploatare
- Návod k obsluze
- Használati útmutató
- Οδηγίες λειτουργίας
- Инструкция по эксплуатации

