Ridgid 3814 (E): Gebruiksaanwijzing
Gebruiksaanwijzing: Ridgid 3814 (E)
3801(E), 3802(E), 3811(E), 3812(E), 3813(E), 3814(E)
Ridge Tool Company
17
WAARSCHUWING! Lees deze instructies
en het bijbehorende veiligheidsboekje
zorgvuldig alvorens deze apparatuur te
gebruiken. Als u twijfelt over een gebruiksaspect
van deze machine, neem dan contact op met uw
RIDGID-verdeler voor bijkomende informatie.
Het niet begrijpen en naleven van alle instructies
kan resulteren in elektrische schokken, brand
en/of ernstige letsels.
BEWAAR DEZE INSTRUCTIES!
Monteren
1. a. 1 1/4”-, 2”- en 3”-machines.
Plaats het buigframe met zijn steunen op de vloer en schuif de ring
over de voorkant van de pompcilinder.
Steek de U-beugel door de gaten in het ringblok van het buigframe.
De pompcilinder en het pijpbuigframe zijn nu in de correcte positie
bevestigd.
1. b. 4”-machine.
- Leg de U-balk op de vloer.
- Breng de onderste vleugel aan op de grondbalk.
- Plaats de buigpomp op de U-balk, haak de onderste vleugel in de
pomp en zet de pomp achteraan vast met twee M10-bouten.
- Plaats de hoekmallen, en indien van toepassing de buigmal die u
zult gebruiken, op de onderste vleugel.
- Plaats de bovenste vleugel op de hoekmallen en haak hem vast in
de pomp.
- Steek de bevestigingspennen door de vleugels en de hoekmallen.
MONTEREN VAN DE 4”-MACHINE
4”-pomp
Bovenste vleugel
Hoekmallen met
hoekmalpennen
Onderste vleugel
U-balk
2. Monteer een buigmal naargelang van de diameter van de te buigen
pijp op de bovenkant van de plunjer. De hoekmallen moeten tussen
of op het buigframe worden aangebracht. Ze worden bevestigd
met behulp van bevestigingspennen. De openingen in het frame
maken het mogelijk de hoekmallen in te stellen volgens de gewenste
buitendiameters. De gaten werden dienovereenkomstig gemarkeerd.
Vergewis u ervan dat de bevestigingspennen voor hoekmallen naar
behoren door beide vleugels of door het buigframe steken, om schade
te voorkomen.
Buigen
1. De vuldop werd doorboord om lucht te laten ontsnappen. Wanneer de
buigmachine wordt vervoerd, moet deze vuldop goed gesloten zijn.
Tijdens het gebruik moet hij een beetje open zijn.
2. Alvorens te buigen moet de pijp lichtjes met vet worden ingesmeerd.
Vervolgens wordt de pijp tussen de hoekmallen en de buigmal
geschoven. De ontlastspindel moet stevig worden aangedraaid. De
pomp wordt in werking gesteld door de hendel op en neer te bewegen.
De plunjer beweegt naar buiten en de pijp wordt gebogen. Dit buigen
kan worden voortgezet tot de gewenste hoek is bereikt, maar niet
verder dan de ronding van de buigmal. Er moet rekening mee worden
gehouden dat de pijp een beetje kan terugveren, afhankelijk van de
kwaliteit van de pijp. Dat moet proefondervindelijk worden vastgesteld.
3. Zodra de bocht de juiste vorm heeft, wordt de ontlastspindel
losgedraaid, waardoor de plunjer automatisch terugloopt. Eén van de
hoekmallen wordt losgekoppeld en de pijp kan worden verwijderd. Bij
de modellen met open buigframe is het verwijderen van de gebogen
pijp gemakkelijker; vooral bij lange werkstukken en wanneer een pijp
meerdere bochten bevat, betekent dit een aanzienlijke tijdsbesparing.
4. Een te ver doorgebogen bocht kan worden teruggebogen d.m.v. de
strekmal. Nadat de plunjer teruggelopen is, wordt de buis omgekeerd
tegen de hoekmallen gelegd. De op de plunjer geplaatste strekmal kan
de bocht nu zover als gewenst terugduwen. Op de 1 1/4”-buigmachine
kan een bocht van 90° normaal niet worden gecorrigeerd. Hetzelfde
geldt bij de 3”-buigmachine voor de 2 1/2”- en 3”-pijpen; en de
4”-buigmachine voor 3”- en 4”-pijpen.
5. Uitsluitend voor 3”- en 4”-model.
Bij het buigen van 2 1/2”- en 3”-pijpen moet er een verlengstuk op de
plunjer worden gezet wanneer de pijp meer dan 75° werd gebogen.
De slag van de plunjer volstaat niet om een 90°-bocht in één operatie
uit te voeren.
6. Elektro-hydraulische 1 1/4”-, 2”-, 3”- en 4”-pijpbuigmachines.
De elektro-hydraulische pijpbuigmachines zijn uitgerust met een
éénfasige 115V, 220V, AC-motor of een 380V-driefasenmotor. De
motor heeft een speciale motorbeveiligingsschakelaar. Eenmaal
de motor ingeschakeld, wordt de heen- en weerbeweging van de
plunjer geregeld door een ontlastspindel, die kan worden geopend
of gesloten. De motor hoeft dus niet te worden uitgeschakeld. De
machine is ook uitgerust met een overdrukventiel. Dit overdrukventiel
werd in zo ingesteld dat dikwandige pijp (stoompijp) zonder probleem
kan worden gebogen. Het overdrukventiel bevindt zich in het
pomphuis en kan alleen met behulp van een manometer worden
ingesteld.
Buigen van haarspeldbochten van 180°
Hiervoor zijn speciale hulpstukken nodig, die op verzoek kunnen worden
geleverd.
Monteren
1. Zie onder montage buigmachine.
2. De buigmal (180°) die overeenkomt met de maat van de te buigen
pijp wordt op de plunjer geplaatst. Vervolgens worden de platen
(reserveframes) met 3 rollen (diabolo’s) tussen of in het buigframe
afgesteld. De bevestigingspennen voor hoekmallen moeten in de
1 1/4”-gaten door de centrale vergrendeling worden gestoken; de
afneembare rol moet worden verwijderd en de te buigen pijp moet
doorlopen. De pijp moet nu met één zijde tegen de middelste rol
liggen en met de andere tegen de 180°-buigmal. Het buigen kan nu
beginnen.
NL
3801(E), 3802(E), 3811(E), 3812(E), 3813(E), 3814(E)
Gebruiksaanwijzing
3801(E), 3802(E), 3811(E), 3812(E), 3813(E), 3814(E)
Ridge Tool Company
18
Buigen
1. Zie onder buigen.
2. Als de bocht meer dan 90° is, moet de plunjer worden omgekeerd door
de ontlastspindel los te draaien. Stel de afneembare rollen in en buig tot
180°. Zie “Buigen” voor het verwijderen van de gebogen pijp.
Onderhoud
De buigmachine wordt met een gevuld oliereservoir geleverd. Het oliepeil
moet echter regelmatig worden gecontroleerd omdat de slag van de plunjer
anders te kan zal worden. Het oliepeil moet altijd gelijkkomen met de
onderkant van de vuldop. Gebruik uitsluitend hydraulische olie om bij te
vullen.
Voorzichtig
1. Zorg ervoor dat de hoekmallen altijd symmetrisch in de gaten worden
geplaatst, naargelang van de maat van de te buigen pijp. Als ze niet
correct worden aangebracht, is het mogelijk dat de plunjer in plaats
van de pijp wordt gebogen, waardoor de machine ernstig beschadigd
wordt.
2. Zorg er ook voor dat de bevestigingspennen voor de hoekmallen
correct door de gaten in de bovenste en onderste vleugel van het
buigframe steken, en er helemaal door op het open buigframe.
3. De plunjer mag niet tot voorbij de merkstreep naar buiten worden
bewogen.
Storingen die zich kunnen voordoen en hoe ze kunnen worden opgeheven.
Nummers tussen haakjes verwijzen naar elektrische machines.
STORING
VERMOEDELIJKE OORZAAK
HOE TE VERHELPEN
1. De plunjer (33) kan niet ver genoeg
uitgepompt worden.
a. Vuldop (37) is niet ver genoeg losgedraaid.
b. Het oliereservoir bevat niet voldoende olie.
c. Luchtopening in vuldop (37) is verstopt.
a. Draai vuldop (37) ongeveer 1 tot 1 1/2 slag los.
Zorg ervoor dat de dop bij het vervoeren van de
buigmachine stevig aangedraaid is.
b. Vul het oliereservoir tot de onderkant van de vuldop.
De plunjer mag niet verder uitgepompt worden dan
de merkstreep op de plunjer.
c. Reinig de luchtopening
2. De plunjer (33) beweegt helemaal
niet naar buiten.
a. De ontlastspindel (7) is niet voldoende dichtgedraaid.
b. De aanzuigkogel (32) sluit bij de persende slag niet
af; er zit mogelijk vuil op de kogelzitting.
c. Filter (42) en/of olietoevoerkanaal is verstopt.
a. Draai ontlastspindel vaster aan.
b1. Kogelzitting onder kogel (32) reinigen.
Klop de kogel tenslotte op de zitting voor een betere
passing.
b2. Neem contact op met leverancier.
c. Verwijder de borgpen (34). Reinig de
fi
lter en het
olietoevoerkanaal.
3. De plunjer (33) geeft weinig druk of
helemaal geen druk.
a. De ontlastspindel (7) werd niet voldoende
aangedraaid.
b. Wegens vuil tussen zitting en kogel (32) van
de ontlastspindel (7) lekt er olie terug naar het
oliereservoir.
c. Kogel (32) sluit niet goed af wegens vuile zitting.
d. Pakking onder veiligheidsschroef voor trekveer (27)
is lek.
e. Pakking (40) is lek.
f. Perspakking (46) is lek.
a. Draai ontlastspindel vaster aan.
b. Demonteer de ontlastingspindel (7), de ringmoer (8),
de pakking (9) en de onderringen (10). Reinig de
zitting voor kogel (31). Zie 2b1. (Neem indien nodig
contact op met de leverancier).
c. Demonteer de veiligheidsschroef voor de trekveer
(27) en trek de plunjer ongeveer 2 cm naar buiten.
Zie 2b1.
d. Draai deze bout aan en vervang de afdichtring (28)
indien nodig.
e. Vervang pakking. Zorg ervoor dat ze correct afsluit.
Voor het demonteren van de plunjer, zie 3c.
f. Vervang
pakking.
4. De pomphendel (16) komt niet meer
omhoog.
a. Drukveer (30) is beschadigd.
a. Vervang drukveer.
5. Plunjer (33) loopt niet terug
wanneer ontlastspindel wordt
losgedraaid.
a. Trekveer (29) is beschadigd.
b. Plunjer (33) is gebogen. Dit kan slechts gebeuren
wegens asymmetrisch geplaatste hoekmallen.
a. Vervang trekveer. Neem contact op met leverancier.
b. Neem contact op met leverancier.
6. Er lekt olie langs persplunjer (20).
a. Manchetring (41) is lek.
a. Vervang manchetring. Vervang indien nodig ook
pakking (46).
3801(E), 3802(E), 3811(E), 3812(E), 3813(E), 3814(E)
Ridge Tool Company
19
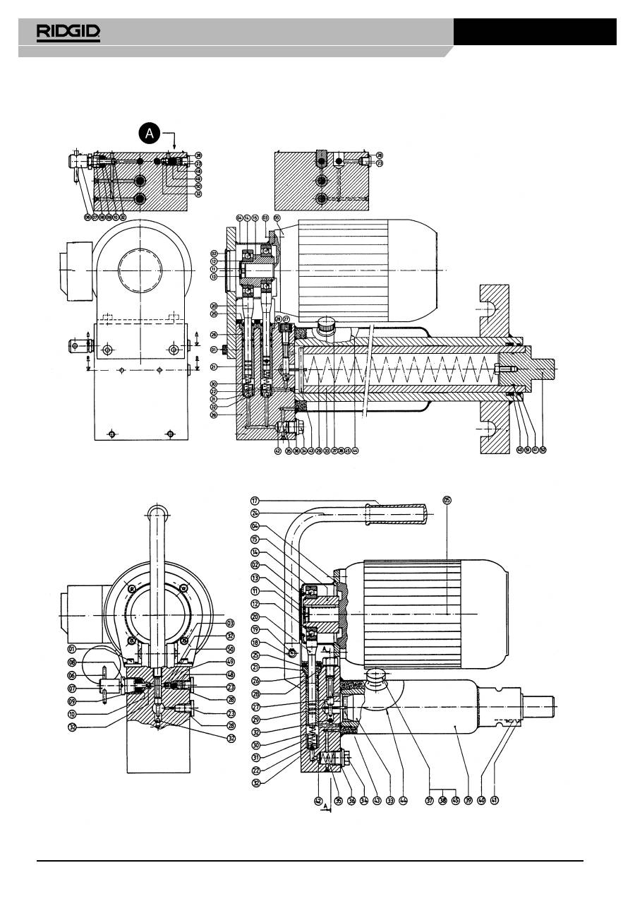
Pos. nr
.
Model
3801/
3811
Hoev.
Model
3802/
3812
Hoev.
Model
3813
Hoev.
Model
3814
Hoev.
Model
3801 E
Hoev.
Model
3802 E
3812 E
Hoev.
Model
3813 E
Hoev.
Model
3814 E
Hoev.
Pos. nr
.
Schroef
01
21256
4
21256
4
21256
4
28256
4
01
Afdekkap
02
21266
1
21266
1
21266
1
21266
1
02
Schroef
03
21276
4
21276
4
21276
4
21276
4
03
Aandrijfhuis
04
21286
1
21286
1
21286
1
28736
1
04
Elektromotor
05
Zie tabel
1
Zie tabel
1
Zie tabel
1
Zie tabel
1
05
Kerfpen
voor
ontlastspindel
06 21126 1 21126 1 21126 1 21126 1 21126 1 21126 1 21126 1 21126 1 06
Ontlastspindel
07 21116 1 21116 1 21116 1 21116 1 21116 1 21116 1 21116 1 21116 1 07
Ringmoer
voor
ontlastspindel
08 21106 1 21106 1 21106 1 21106 1 21106 1 21106 1 21106 1 21106 1 08
Rubberen
pakking
09*
1 1 1 1 1 1 1 1
09
Koperen
onderring
10*
2 2 2 2 2 2 2 2
10
Schroef
11
21376
1
21376
2
21376
2
21376
2
11
Borgring
12
21386
1
21386
1
21386
1
21386
1 12
Borgmoer
13
21396
1
21396
1
21396
1
21396
1 13
Kogellager
14
21406
1
21406
1
21406
1
21406
1 14
Krukas
15
21416
1
21416
1
21416
1
28606
1 15
Handhefboom
16
20846
1
20846
1
20846
1
28726
1
16
Hendel
17*
1 1 1 1 1 1 1
17
Borgring
18
21076
2
21076
2
21076
2
28746
2
21076
2
21076
2
21976
2
18
Kerfpen
19
21066
1
21066
1
21066
1
28516
1
21066
1
21066
1
21066
1
19
Persplunjer
20
20866
1
20866
1
20866
1
28596
1
21466
1
21466
1
21466
1
21466
2 20
Persplunjerhuis
21
21476
1
21476
1
21476
1
21476
2 21
Kerfpen diam. 4 x16
22
21486
1
21486
1
21486
1
21486
2 22
Afsluitstop G 1/4”
23
20926
1
20926
1
20926
1
20926
1
20926
1
20926
1
20926
1
20926
2 23
Draagjuk
24
21426
1
21426
1
21426
1
24
Manchetring
voor
persplunjer
25*
1 1 1 1 1 1 1 2
25
O-ring
26*
2 2 2 4
26
Veiligheidsschroef voor trekveer 27
20916
1
20916
1
20916
1
28636
1
21526
1
21526
1
21526
1
28866
2 27
Afdichtring
PP
45
B
28*
2 2 2 2 3 3 3 4
28
Trekveer 1 1/4”
29
21166
1
21176
1
21176
1
28496
1
21166
1
21176
1
21176
1
28496
1 29
Drukveer
30
20896
1
20896
1
20896
1
28476
1
21536
1
21536
1
21536
1
21536
2 30
Kogelzitting
31
21546
1
21546
1
21546
1
21546
2 31
Kogel
5/16”
32*
3 3 3 3 4 4 4 6
32
Plunjer 1 1/4”
33
21186
1
21196
1
21206
1
28586
1
21186
1
21196
1
21206
1
28586
1 33
Plug G 1/2”
34
21026
1
21026
1
21126
1
21026
1
21026
1
21026
1
21026
1
21026
1 34
Drukveer voor
fi
lter
35
21576
1
21576
1
21576
1
21576
1
21576
1
21576
1
21576
1
21576
1 35
Afdichtring
PP
45
D
36*
1 1 1 1 1 1 1 1
36
Vuldop
37
20946
1
20946
1
20946
1
20946
1
20946
1
20946
1
20946
1
20946
1
37
Kurkpakking
voor
vuldop
38*
1 1 1 1 1 1 1 1
38
Pomphuis
39
1
1
1
1
1
1
1
1 39
Pakking 1 1/4”
40* 20996
1
21006
1
21016
1
28466
1
20996
1
21006
1
21016
1
28466
1 40
Manchetring
41*
1 1 1 1 1 1
1 1
41
Filter
42*
1
1 1 1 1 1 1 1
42
Pen voor trekveer
43
21136
1
21146
1
21156
1
28556
1
21136
1
21146
1
21156
1
28556
1 43
Schijf
44
21246
1
21246
1
21246
1
21246
1
21246
1
21246
1
21246
1
21246
1 44
Hydraulische olie (2,5 l)
45
14061
1
14061
1
14061
1
14061
1
14061
1
14061
1
14061
1
14061
1 45
Perspakking
46*
1
1
1
1
46
Pen voor perspakking
47
20886
1
20866
1
20866
1
20886
1
47
Plug voor veiligheidsklep
48
28576
1
28576
1
28576
1
28576
1 48
Veer
49
28486
24
28486
24
28486
24
28486
24 49
Kogelzitting
50
28626
1
28626
1
28626
1
28626
1 50
O-ring
51*
28426
1
28426
1
51
Plug voor plunjer 4”
52
28616
1
28616
1 52
Dichtingskits (includes items with*)
21906
21916
21926
33226
21936
21946
21956
33236
Motor 110V 1Ø
28276
Condensator 230V = 40
μ
F
34306
Schakelaar 110V
57786
230V 1Ø
21316
110V = 110
μ
F
34316
230V
1Ø
57776
400V 3Ø
21306
400V
3Ø
57766
3801(E), 3802(E), 3811(E), 3812(E), 3813(E), 3814(E)
Ridge Tool Company
20
3801(E), 3802(E), 3811(E), 3812(E), 3813(E), 3814(E)
Ridge Tool Company
21
Toebehoren
3802
3812
3813
180° hulpstuk
22366
22346
22356
Zie buigmallen
40 x 8 mm
Staafhulpstuk
22446
22436
22456
Zie hieronder voor mallen
Slag
instelling
3801 E / 3811 E2
3802 E / 12 E / 13 E
3814 E
220 V
360 V
115 V
26896
26906
35116
26916
26926
34916
29126
29116
35726
Straal (mm)
60
70
80
90
100
110
120
130
40 x 8 mm
Staafmallen
22466 22476 22486 22496 22506 22516 22526 22536
Buigmallen
Nominale
maat
Buiten
Ø
mm
Standaardmallen
Boilerbuis
180°-bochten
Straal
Cat. nr.
Straal
Cat. nr.
Straal
Cat. nr.
1/4
13,5
60 28286
130 22376
3/8
17,2
45 21806
18
18
60 27816
20
20
70 27826
1/2
21,3
50 21816 110 22236 130 22386
22
22
80 27836
25
25
115 22116
3/4” 26,9 65 21826 137 22246 130
22396
28
28
70 35066
30
30
140 22126
32
32
140 22136
1
33,7 100 21836
190 22256 130 22406
35
35
100
35076
38
38
170
22146
40
40
125
35086
42
42
125
35096
1 1/4”
42,4
130
21846
220
22266
130
22416
44,5
44,5
190
22156
1 1/2
48,3
160
21856
220
22166
140
22426
50
50
140
35106
51
51
220
22176
57
57
250
22186
2
60,3
220
21866
270
22196
190
28766
63,5
63,5
270
22206
70
70
315
22216
2 1/2
76,1
320
21876
420
22226
3
88,9
380
21886
4
114,3
600
28756
DETAIL VAN MAXIMUMDRUKVENTIEL
ELEKTRO-HYDRAULISCHE POMPEN
MAXIMUMDRUK 420 ATO
Оглавление
- Operating Instructions
- Bedienungsanleitung
- Instructions d’utilisation
- Gebruiksaanwijzing
- Istruzioni operative
- Instrucciones de uso
- Instruções de Funcionamento
- Driftsinstruktioner
- Betjeningsvejledning
- Brukerveiledning
- Käyttöohjeet
- Upute za rukovanje
- Instrukcja obs ł ugi
- Instruc ţ iuni de exploatare
- Návod k obsluze
- Használati útmutató
- Οδηγίες λειτουργίας
- Инструкция по эксплуатации

