Ridgid 3814 (E): Upute za rukovanje
Upute za rukovanje: Ridgid 3814 (E)
3801(E), 3802(E), 3811(E), 3812(E), 3813(E), 3814(E)
Ridge Tool Company
58
OPREZ! Prije korištenja ove opreme
pro
č
itajte pomno ove upute i prate
ć
u
brošuru o sigurnosti. Ako niste sigurni
u vezi bilo kojeg vida korištenja ovoga alata,
zatražite više podataka od Vašeg RIDGID
zastupnika.
Ne uspijete li razumjeti i slijediti upute može do
ć
i
do elektri
č
nog udara, požara i/ili teške tjelesne
ozljede.
Č
UVAJTE OVE UPUTE!
Sklapanje ure
đ
aja
1. a. 1 1/4”, 2” i 3”.
Postavite okvir za savijanje s osloncima na pod i prebacite prsten
preko prednjeg dijela cilindra pumpe.
Utaknite U-element u rupe na prstenastom bloku okvira za savijanje.
Cilindar pumpe i okvir za savijanje cijevi su sada u pravilnom položaju.
1. b. Stroj za 4”.
- Postavite
nosa
č
na pod.
- Postavite donju plo
č
u s rupama na nosa
č
.
- Postavite pumpu za savijanje na nosa
č
, zakva
č
ite donju plo
č
u s
rupama za pumpu i pri
č
vrstite stražnji dio pumpe pomo
ć
u dva vijka
M10.
- Postavite
bo
č
ne podupira
č
e i, ukoliko je dostupan, kalup za
savijanje, na donju plo
č
u s rupama.
- Postavite gornju plo
č
u s rupama na bo
č
ne podupira
č
e i zakva
č
ite
ju za pumpu.
- Umetnite osovinice za
fi
ksiranje kroz plo
č
e s rupama i bo
č
ne
podupira
č
e.
SKLAPANJE STROJA OD 4”
Pumpa za 4”
Gornja plo
č
a
s rupama
Bo
č
ni podupira
č
s osovinicama
za
fi
ksiranje
Donja plo
č
a
s rupama
Nosa
č
stroja
2. Na vrh cilindra pumpe postavite element za oblikovanje, sukladno
promjeru cijevi koju želite savijati. Bo
č
ni podupira
č
i moraju biti
postavljeni unutar ili na okvir za savijanje. U
č
vrš
ć
uju se pomo
ć
u
osovinica za
fi
ksiranje. Rupe u okviru omogu
ć
uju postavljanje bo
č
nih
podupira
č
a na željeni vanjski promjer luka. Rupe su tako i ozna
č
ene.
Osovinice
za
fi
ksiranje bo
č
nih nosa
č
a moraju biti pravilno umetnute u
rupe na gornjoj i donjoj plo
č
i ili u okvir za savijanje kako bi se izbjegla
ošte
ć
enja.
Savijanje
1.
Č
ep za punjenje je probušen radi ispuštanja zraka. U transportu
stroja za savijanje,
č
ep mora biti
č
vrsto za
č
epljen, ali pri radu ga treba
lagano otpustiti.
2. Prije po
č
etka savijanja, cijev treba lagano namastiti. Zatim cijev treba
umetnuti izme
đ
u bo
č
nih podupira
č
a i kalupa. Vreteno za otpuštanje
mora biti
č
vrsto pritegnuto. Pumpa se pokre
ć
e pomicanjem ru
č
ke gore
i dolje. Klip izlazi i cijev se savija. Savijanje treba nastaviti sve dok se
ne postigne željeni luk savijanja, ali ne više od luka kalupa. Treba uzeti
u obzir da
ć
e se cijev, ovisno o njenoj kvaliteti, malo ispraviti nakon
popuštanja pritiska. To treba utvrditi iskustvom.
3.
Č
im cijev poprimi željeni oblik, otpustite vreteno i klip
ć
e se sam od
sebe vratiti. Rastavite jedan od bo
č
nih podupira
č
a i cijev se može
izvaditi. Modeli koji imaju otvoreni okvir imaju prednost jer se cijev
lakše vadi iz okvira, posebice duga
č
ke cijevi s više lukova,
č
ime se
štedi na vremenu.
4. Ako se cijev previše savije, to je mogu
ć
e ispraviti pomo
ć
u ispravlja
č
a
cijevi. Klip treba okrenuti na suprotnu stranu, a cijev prevrnuti preko
bo
č
nih podupira
č
a. Ispravlja
č
cijevi postavite na vrh klipa i potisnite
cijev natrag u željeni oblik. Na stroju za savijanje od 1 1/4” obi
č
no nije
mogu
ć
e ispraviti savijanje pod 90°. To vrijedi i za savija
č
od 3” kod
cijevi od 2 1/2” i 3” i za savija
č
od 4” kod cijevi od 3” i 4”.
5. Samo za modele od 3” i 4”.
Pri savijanju cijevi od 2 1/2”, 3” i 4” preko 75°, na klip treba postaviti
nastavak klipa. Hod klipa nije dovoljan da savije cijev pod 90° u
jednom koraku.
6. Elektrohidrauli
č
ni savija
č
i cijevi od 1 1/4”, 2”, 3” i 4”.
Elektrohidrauli
č
ni savija
č
i cijevi su opremljeni jednofaznim motorima
od 115 V, 220 V, AC ili 3-faznim motorom od 380 V. Motor ima
posebnu sigurnosnu sklopku. Dok je motor u pogonu, klipom se
upravlja pomo
ć
u ru
č
ice vretena za otpuštanje koje rukovaoc može
zategnuti ili otpustiti. Motor se ne mora isklju
č
ivati. Stroj je tako
đ
er
opremljen i sigurnosnim tla
č
nim ventilom. Ventil je tvorni
č
ki podešen
tako da se bez poteško
ć
a mogu savijati cijevi debelih stijenki (cijevi
za paru). Sigurnosni ventil se nalazi na ku
ć
ištu pumpe i mogu
ć
e ga je
podešavati samo pomo
ć
u manometra.
Savijanje elemenata pod 180°
Za ovakvo savijanje je potrebna dodatna oprema koja je dostupna na
zahtjev.
Sklapanje ure
đ
aja
1. Pogledajte odlomak o sklapanju stroja za savijanje.
2. Na cilindar pumpe postavite element za oblikovanje (180°), prema
promjeru cijevi koji želite savijati. Zatim postavite plo
č
e (pomo
ć
ne
okvire) s 3 valjka (diabola) izme
đ
u ili iznad okvira. Osovinice za
fi
ksiranje bo
č
nih podupira
č
a moraju biti stavljene u rupe od 1 1/4” kroz
središnji element, uklonite odvojivi valjak i umetnite cijev koju želite
saviti. Cijev mora jednom stranom dodirivati središnji valjak, a drugom
element za oblikovanje od 180°. Savijanje sada može zapo
č
eti.
Savijanje
1. Pogledajte odlomak o savijanju.
2. Ukoliko želite savijanje preko 90°, obrnite cilindar tako da odvrnite
vreteno za otpuštanje. Podesite prilagodljive valjke (diabole) kako
biste mogli savijati do 180°. Za uklanjanje savijene cijevi, pogledajte
odlomak «Savijanje».
HR
3801(E), 3802(E), 3811(E), 3812(E), 3813(E), 3814(E)
Upute za rukovanje
3801(E), 3802(E), 3811(E), 3812(E), 3813(E), 3814(E)
Ridge Tool Company
59
Održavanje
Uz stroj za savijanje dostavljamo i punu kanticu strojnog ulja. Me
đ
utim,
razinu ulja treba redovito provjeravati jer bi u suprotnom hod klipa mogao
postati prekratak. Razina ulja mora uvijek biti u ravnini donjeg ruba
č
epa za
punjenje. Ako dodajete ulje, koristite samo hidrauli
č
ko ulje.
Oprez
1. Bo
č
ni podupira
č
i moraju biti simetri
č
no utaknuti u rupe, u skladu
s promjerom cijevi koju želite saviti. Ako podupira
č
i nisu pravilno
postavljeni, može do
ć
i do savijanja klipa umjesto cijevi, odnosno
teškog ošte
ć
enja stroja.
2. Osim toga, osovinice za
fi
ksiranje bo
č
nih podupira
č
a treba pravilno
umetnuti u rupe na gornjoj i donjoj plo
č
i okvira i kroz
č
itav otvoreni
okvir za savijanje.
3. Klip se ne smije istisnuti prema van dalje od utora oznake.
Mogu
ć
i kvarovi i savjeti za otklanjanje
Brojke u zagradama se odnose na elektri
č
ne strojeve.
KVAR
MOGU
Ć
I UZROK
KAKO OTKLONITI KVAR
1. Hod klipa (33) nije dovoljno dug.
a.
Č
ep za punjenje (37) nije dovoljno otpušten.
b. Koli
č
ina ulja u spremniku je premala.
c. Ventil za zrak na
č
epu za punjene (37) je za
č
epljen.
a. Odvrnite
č
ep za punjenje (37) za približno 1 ili ½
okreta.
Pri prenošenju stroja pazite da
č
ep za punjenje bude
č
vrsto zavrnut.
b. Nalijte ulje u spremnik do razine donjeg ruba
č
epa.
Klip ne smije iza
ć
i van dalje od utora oznake na klipu.
c. O
č
istite otvor ventila za zrak.
2. Klip (33) se uop
ć
e ne može
pomaknuti.
a. Vreteno za otpuštanje (7) nije dovoljno pritegnuto.
b. Kugla (32) ne zatvara otvor; mogu
ć
e je da se
nakupila ne
č
isto
ć
a.
c. Filtar (42) i/ili kanal za dovod ulja su za
č
epljeni.
a. Pritegnite vreteno za otpuštanje.
b1. O
č
istite stožasto sjedište za kuglu od ne
č
isto
ć
a (32).
Zatim udarite lagano kuglu da za tijesni dosjed.
b2. Obratite se dobavlja
č
u.
c. Uklonite
č
ep (34). O
č
istite
fi
ltar i kanal za dovod ulja.
3. Klip (33) ima slab ili nikakav
pritisak.
a. Vreteno za otpuštanje (7) nije pritegnuto.
b. Zbog ne
č
isto
ć
e izme
đ
u stožastog ležišta i kugle (32)
vretena za otpuštanje (7), ulje curi natrag u spremnik.
c. Kugla (32) ne zatvara stožasto ležište zbog
ne
č
isto
ć
e.
d. Brtva sigurnosnog vijka za povratnu oprugu (27)
propušta.
e. Brtva (40) propušta.
f. Brtva (46) propušta.
a. Pritegnite vreteno za otpuštanje.
b. Uklonite vreteno za otpuštanje (7), prstenastu maticu
(8), brtva (9) i donje prstenove (10). O
č
istite stožasto
ležište kugle (31). Pogledajte stavku 2b1. (Po potrebi
se obratite dobavlja
č
u).
c. Uklonite sigurnosni vijak povratne opruge (27) i
izvucite klip oko 2 cm (1”). Pogledajte stavku 2b1.
d. Zategnite taj vijak i po potrebi zamijenite spojni prsten
(28).
e. Zamijenite brtvu. Pazite da bude ispravno uglavljen.
Za skidanje klipa pogledajte stavku 3c.
f. Zamijenite
brtvu.
4. Ru
č
ka pumpe (16) se ne može
ponovo di
ć
i.
a. Tla
č
na opruga (30) je ošte
ć
ena.
a. Zamijenite tla
č
nu oprugu.
5. Klip (33) se ne vra
ć
a kada se
otpusti vreteno.
a. Povratna opruga (29) je ošte
ć
ena.
b. Klip (33) je savijen. To se može dogoditi samo
u slu
č
aju da su bo
č
ni podupira
č
i bili postavljeni
nesimetri
č
no.
a. Zamijenite povratnu oprugu. Obratite se dobavlja
č
u.
b. Obratite se dobavlja
č
u.
6. Iz cilindra za tla
č
enje (20) curi ulje. a. Podloška kliza
č
a (41) propušta.
a. Zamijenite kliznu brtvu. Po potrebi zamijenite tako
đ
er
brtvu (46).
3801(E), 3802(E), 3811(E), 3812(E), 3813(E), 3814(E)
Ridge Tool Company
60
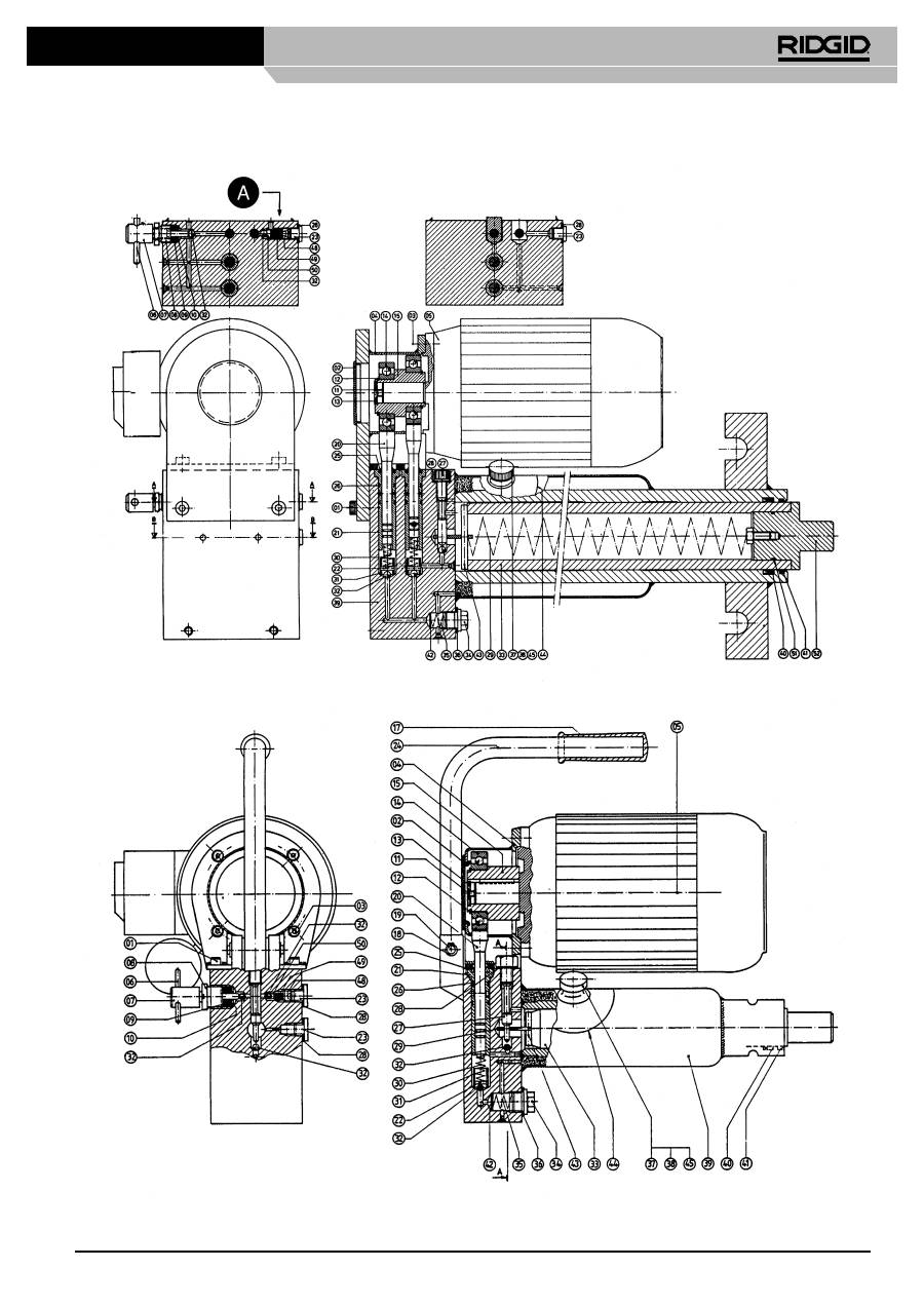
br
. Pol.
Model
3801/
3811
KOL.
Model
3802/
3812
KOL.
Model
3813
KOL.
Model
3814
KOL.
Model
3801 E
KOL.
Model
3802 E
3812 E
KOL.
Model
3813 E
KOL.
Model
3814 E
KOL.
br
. Pol.
Vijak
01
21256
4
21256
4
21256
4
28256
4
01
Zaštitni
č
ep
02
21266 1 21266 1 21266 1 21266 1
02
Vijak
03
21276
4
21276
4
21276
4
21276
4
03
Pogonsko ku
ć
ište
04
21286
1
21286
1
21286
1
28736
1
04
Elektromotor
05
Vidi tablicu 1 Vidi tablicu 1 Vidi tablicu 1 Vidi tablicu 1
05
Ru
č
ica
vretena
za
otpuštanje
06 21126 1 21126 1 21126 1 21126 1 21126 1 21126 1 21126 1 21126 1 06
Vreteno
za
otpuštanje
07 21116 1 21116 1 21116 1 21116 1 21116 1 21116 1 21116 1 21116 1 07
Osovinska
matica
vretena. 08 21106 1 21106 1 21106 1 21106 1 21106 1 21106 1 21106 1 21106 1 08
Gumena
brtva
09*
1 1 1 1 1 1 1 1
09
Donji
bakreni
prsten
10*
2 2 2 2 2 2 2 2
10
Vijak
11
21376
1
21376
2
21376
2
21376
2
11
Sigurnosni prsten
12
21386
1
21386
1
21386
1
21386
1 12
Protu-matica
13
21396
1
21396
1
21396
1
21396
1 13
Kugli
č
ni ležaj
14
21406
1
21406
1
21406
1
21406
1 14
Ekscentar
15
21416
1
21416
1
21416
1
28606
1 15
Ru
č
na poluga
16
20846
1
20846
1
20846
1
28726
1
16
Ru
č
ka
17*
1 1 1 1 1 1 1
17
Sigurnosni prsten
18
21076
2
21076
2
21076
2
28746
2
21076
2
21076
2
21976
2
18
Trn ru
č
ke
19
21066
1
21066
1
21066
1
28516
1
21066
1
21066
1
21066
1
19
Tla
č
na brtva
20* 20866
1
20866
1
20866
1
28596
1
21466
1
21466
1
21466
1
21466
2 20
Ku
ć
ište cilindra
21
21476
1
21476
1
21476
1
21476
2 21
Promjer trna 4 x16
22
21486
1
21486
1
21486
1
21486
2 22
Č
ep priklju
č
ka G 1/4”
23
20926
1
20926
1
20926
1
20926
1
20926
1
20926
1
20926
1
20926
2 23
Ru
č
ka za nošenje
24
21426
1
21426
1
21426
1
24
Brtva za hidrauli
č
ni
cilindar
25*
1 1 1 1 1 1 1 2
25
O-prsten
26*
2 2 2 4
26
Sigurnosni vijak
povratne opruge
27
20916
1
20916
1
20916
1
28636
1
21526
1
21526
1
21526
1
28866
2 27
Spojni prsten PP 45 B
28*
2
2
2
2
3
3
3
4
28
Povratna opruga 1 1/4”
29
21166
1
21176
1
21176
1
28496
1
21166
1
21176
1
21176
1
28496
1 29
Tla
č
na opruga
30
20896
1
20896
1
20896
1
28476
1
21536
1
21536
1
21536
1
21536
2 30
Kugli
č
ni stožac
31
21546
1
21546
1
21546
1
21546
2 31
Kugla
5/16”
32*
3 3 3 3 4 4 4 6
32
Klip 1 1/4”
33
21186
1
21196
1
21206
1
28586
1
21186
1
21196
1
21206
1
28586
1 33
Č
ep G 1/2”
34
21026
1
21026
1
21126
1
21026
1
21026
1
21026
1
21026
1
21026
1 34
Tla
č
na opruga
fi
ltra
35
21576
1
21576
1
21576
1
21576
1
21576
1
21576
1
21576
1
21576
1 35
Spojni prsten PP 45 D
36*
1
1
1
1
1
1
1
1
36
Č
ep za punjenje
37
20946
1
20946
1
20946
1
20946
1
20946
1
20946
1
20946
1
20946
1
37
Plutana brtva
č
epa
za
punjenje
38*
1 1 1 1 1 1 1 1
38
Ku
ć
ište pumpe
39
1
1
1
1
1
1
1
1 39
Brtva 1 1/4”
40* 20996
1
21006
1
21016
1
28466
1
20996
1
21006
1
21016
1
28466
1 40
Klizna
brtva
41*
1 1 1 1 1 1
1 1
41
Filtar
42*
1
1 1 1 1 1 1 1
42
Trn povratne opruge
43
21136
1
21146
1
21156
1
28556
1
21136
1
21146
1
21156
1
28556
1 43
Disk
44
21246
1
21246
1
21246
1
21246
1
21246
1
21246
1
21246
1
21246
1 44
Hidrauli
č
ka teku
ć
ina (2,5 l)
45
14061
1
14061
1
14061
1
14061
1
14061
1
14061
1
14061
1
14061
1 45
Tla
č
na brtva
46*
1
1
1
1
46
Trn tla
č
ne brtve
47
20886
1
20866
1
20866
1
20886
1
47
Č
ep sigurnosnog ventila
48
28576
1
28576
1
28576
1
28576
1 48
Opruga
49
28486
24
28486
24
28486
24
28486
24 49
Kugli
č
ni stožac
50
28626
1
28626
1
28626
1
28626
1 50
O-prsten
51*
28426
1
28426
1 51
Č
ep klipa 4”
52
28616
1
28616
1 52
Pribor za brtvljenje
(stavke s oznakom*)
21906
21916
21926
33226
21936
21946
21956
33236
Motor 110V 1Ø
28276
Kondenzator 230V = 40
μ
F
34306
Sklopka 110V
57786
230V 1Ø
21316
110V = 110
μ
F
34316
230V
1Ø 57776
400V 3Ø
21306
400V
3Ø
57766
3801(E), 3802(E), 3811(E), 3812(E), 3813(E), 3814(E)
Ridge Tool Company
61
3801(E), 3802(E), 3811(E), 3812(E), 3813(E), 3814(E)
Ridge Tool Company
62
Pribor
3802
3812
3813
Nastavak za 180°
22366
22346
22356
Pogledajte odlomak o
elementima za oblik savijanja
40 x 8 mm
Nastavak za polugu
22446
22436
22456
Pogledajte dolje navedene kalupe
Podešavanje
hoda
3801 E / 3811 E2
3802 E / 12 E / 13 E
3814-E
220 V
360 V
115 V
26896
26906
35116
26916
26926
34916
29126
29116
35726
Polumjer (mm)
60
70
80
90
100
110
120
130
40 x 8 mm
Kalupi za šipke
22466 22476 22486 22496 22506 22516 22526 22536
Kalupi za savijanje
Nominalna
veli
č
ina
Vanjski
Ø
mm
Standardni kalupi
Cijev bojlera
Savijanje za
180 stup.
Polumjer
Kat. br.
Polumjer
Kat. br.
Polumjer
Kat. br.
1/4 13,5 60
28286 130
22376
3/8
17,2 45 21806
18
18
60 27816
20
20
70 27826
1/2
21,3 50 21816 110 22236 130 22386
22
22
80 27836
25
25
115 22116
3/4” 26,9 65 21826 137 22246 130
22396
28
28
70 35066
30
30
140 22126
32
32
140 22136
1
33,7 100 21836
190 22256 130 22406
35
35
100
35076
38
38
170
22146
40
40
125
35086
42
42
125
35096
1 1/4”
42,4
130
21846
220
22266
130
22416
44,5
44,5
190
22156
1 1/2
48,3
160
21856
220
22166
140
22426
50
50
140
35106
51
51
220
22176
57
57
250
22186
2
60,3
220
21866
270
22196
190
28766
63,5
63,5
270
22206
70
70
315
22216
2 1/2
76,1
320
21876
420
22226
3
88,9
380
21886
4
114,3
600
28756
DETALJ VENTILA
ZA ODUŠAK MAKSIMALNOG TLAKA
ELEKTRO-HIDRAULI
Č
NIH PUMPI
MAKSIMALAN TLAK 420 ATM
Оглавление
- Operating Instructions
- Bedienungsanleitung
- Instructions d’utilisation
- Gebruiksaanwijzing
- Istruzioni operative
- Instrucciones de uso
- Instruções de Funcionamento
- Driftsinstruktioner
- Betjeningsvejledning
- Brukerveiledning
- Käyttöohjeet
- Upute za rukovanje
- Instrukcja obs ł ugi
- Instruc ţ iuni de exploatare
- Návod k obsluze
- Használati útmutató
- Οδηγίες λειτουργίας
- Инструкция по эксплуатации

