Ridgid 3814 (E): Bedienungsanleitung
Bedienungsanleitung: Ridgid 3814 (E)
3801(E), 3802(E), 3811(E), 3812(E), 3813(E), 3814(E)
Ridge Tool Company
6
WARNUNG! Lesen Sie diese Anwei-
sungen und die begleitende Sicherheits-
broschüre sorgfältig, bevor Sie dieses
Gerät benutzen. Bei Unklarheiten wenden Sie
sich bitte an Ihre RIDGID Vertriebsstelle, die Sie
näher informiert.
Unkenntnis und Nichtbefolgung der Anweisungen
können zu elektrischen Schlägen, Feuer und/
oder schweren Verletzungen führen.
BEWAHREN SIE DIESE ANWEISUNGEN AUF!
Montage
1. a. 1 1/4”, 2” und 3” Maschinen.
Den Biegerahmen mit Stützen auf den Boden stellen und den Ring
vorne über den Pumpenzylinder schieben.
Den U-Bügel durch die Öffnungen im Ringblock am Biegerahmen
einsetzen. Pumpenzylinder und Rohrbiegerahmen sind jetzt korrekt
befestigt.
1. b. 4” Maschine.
- Die Grundschiene auf den Boden legen.
- Den unteren Flügel auf die Grundschiene legen.
- Die Biegepumpe auf die Grundschiene legen, den unteren Flügel
in die Pumpe einhaken und die Pumpe an der Rückseite mit zwei
M10 Schrauben befestigen.
- Die Eckstützen und das Biegesegment, das Sie benutzen wollen,
auf den unteren Flügel legen.
- Den oberen Flügel auf die Eckstützen legen und in der Pumpe
einhaken.
- Die Fixierstifte durch die Flügel und die Eckstützen stecken.
MONTAGE DER 4” MASCHINE
4” Pumpe
Oberer Flügel
Eckstütze
mit Fixierstiften
Unterer Flügel
Grundschiene
2. Ein Biegesegment, das dem Durchmesser des zu biegenden Rohrs
entspricht, am Kolbenkopf anbringen. Die Eckstützen müssen
zwischen oder auf dem Biegerahmen angebracht werden. Sie
werden mittels der Fixierstifte befestigt. Die Öffnungen im Rahmen
ermöglichen das Einstellen der Eckstützen auf die gewünschten
Außendurchmesser. Die Öffnungen sind entsprechend markiert.
Vergewissern, dass die Fixierstifte für die Eckstützen korrekt durch
beide Flügel oder durch den Biegerahmen geführt sind, um Schäden
zu vermeiden.
Biegen
1. Der Fülldeckel ist zwecks Entlüftung durchstochen. Beim Transport
der Biegemaschine muss dieser Deckel fest verschlossen sein und
während der Benutzung ein wenig gelöst werden.
2. Vor dem Biegen sollte das Rohr leicht gefettet werden. Das Rohr
wird zwischen Eckstützen und Biegesegment geschoben. Die
Entlastungsspindel muss fest angezogen werden. Durch Auf- und
Abbewegen des Griffs wird die Pumpe betätigt. Der Kolbenkopf
bewegt sich heraus und das Rohr wird gebogen. Der Biegevorgang
sollte fortgesetzt werden, bis die gewünschte Krümmung erreicht
ist, jedoch nicht weiter als bis zur Krümmung des Biegesegments.
Abhängig von der Qualität federt das Rohr ein wenig zurück.Dies
muss durch Experimentieren ermittelt werden.
3. Sobald das Rohr die gewünschte Form erreicht hat,
Entlastungsspindel lösen, der Kolben zieht sich dann automatisch
zurück. Eine der Eckstützen lösen, dann lässt sich das Rohr entfernen.
Die mit offenem Rahmen ausgestatteten Modelle haben den Vorteil,
dass sich das gebogene Rohr leichter entfernen lässt, insbesondere
bei langen Rohrstücken mit mehreren Biegungen spart man dadurch
viel Zeit.
4. Wenn ein Rohr zu weit gebogen wurde, lässt sich dies mit der
Richtvorrichtung wieder korrigieren. Der Kolben muss zurückgezogen
und das Rohr gegen die Eckstützen gedreht werden. Die
Richtvorrichtung wird oben auf dem Kolben angebracht und die
Biegung kann in die gewünschte Form zurückgedrückt werden. Mit der
1 1/4” Biegemaschine lässt sich eine Krümmung von 90°
normalerweise nicht korrigieren. Dies gilt auch bei der 3” Maschine für
2 1/2” und 3”, sowie bei der 4” Maschine für 3” und 4” Rohre.
5. Nur für 3” und 4” Modell.
Beim Biegen von 2 1/2”, 3” und 4” Rohre sollte eine Verlängerung am
Kolben angebracht werden, wenn das Rohr weiter als 75° gebogen
wurde. Der Kolbenweg reicht nicht aus, um eine 90°-Krümmung in
einem Arbeitsgang zu biegen.
6. 1 1/4”, 2”, 3”, 4” elektrohydraulische Rohrbiegemaschinen.
Die elektrohydraulischen Rohrbiegemaschinen sind mit einem
einphasigen 115 V, 220 V Wechselstrom- oder einem 380 V
Dreiphasenmotor ausgestattet. Der Motor verfügt über einen
speziellen Sicherheitsschalter. Bei laufendem Motor wird die
Kolbenbewegung durch eine Entlastungsspindel gesteuert, die
geöffnet oder geschlossen werden kann. Der Motor muss nicht
ausgeschaltet werden. Darüber hinaus ist die Maschine auch mit
einem Drucksicherheitsventil versehen. Dieses Ventil wird im Werk so
eingestellt, dass dickwandige Rohre (3” Dampfrohre) ohne Probleme
gebogen werden können. Das Drucksicherheitsventil be
fi
ndet sich im
Pumpengehäuse und kann ausschließlich anhand eines Manometers
eingestellt werden.
Haarnadelbiegungen von 180°
Hierfür ist Sonderzubehör erforderlich, das auf Anfrage lieferbar ist.
Montage
1. Siehe Montage Rohrbiegemaschinen.
2. Das Biegesegment (180°) wird entsprechend der Rohrgröße am
Kolben befestigt. Nun werden die Platten (Ersatzrahmen) mit 3 Rollen
(Doppelkegel) zwischen oder im Rahmen eingestellt. Die Fixierstifte
für die Eckstück müssen in die 1 1/4” Öffnungen im Zentralverschluss
gesteckt werden; der abnehmbare Doppelkegel muss entfernt und das
zu biegende Rohr durchgeschoben werden. Das Rohr muss nun den
mittleren Doppelkegel mit einer Seite und das 180°-Biegesegment mit
der anderen Seite berühren. Der Biegevorgang kann nun beginnen.
DE
3801(E), 3802(E), 3811(E), 3812(E), 3813(E), 3814(E)
Bedienungsanleitung
3801(E), 3802(E), 3811(E), 3812(E), 3813(E), 3814(E)
Ridge Tool Company
7
Biegen
1. Siehe unter Biegen.
2. Bei einer Krümmung von mehr als 90° muss der Kolben durch
Lösen der Entlastungsspindel umgedreht werden. Die abnehmbaren
Doppelkegel entfernen und eine Biegung um bis zu 180° vornehmen.
Entfernen des gebogenen Rohrs siehe Biegen.
Wartung
Die Biegevorrichtung wird mit gefülltem Ölbehälter geliefert. Der Ölstand
muss jedoch regelmäßig kontrolliert werden, da andernfalls der Kolbenhub
zu kurz wird. Der Ölstand muss immer dem unteren Rand des Fülldeckels
entsprechen. Wenn Öl nachgefüllt werden muss, nur Hydrauliköl
verwenden.
Achtung
1. Es ist darauf zu achten, dass die Eckstützen, entsprechend der
Größe des zu biegenden Rohrs, stets symmetrisch in die Öffnungen
eingesetzt werden. Wenn sie nicht korrekt platziert sind, kann der
Kolben statt des Rohrs verbogen werden, sodass die Maschine
schwer beschädigt wird.
2. Außerdem muss darauf geachtet werden, dass die Fixierstifte für die
Eckstützen korrekt durch die Öffnungen im oberen und unteren Flügel
des Biegerahmens und vollständig durch den offenen Biegerahmen
gesteckt werden.
3. Der Kolben darf nicht über die Markierungskerbe hinaus nach außen
bewegt werden.
Mögliche Fehler und wie man sie beheben kann
Die Nummern in Klammern beziehen sich auf die elektrischen Maschinen.
STÖRUNG MÖGLICHE
URSACHE
ABHILFE
1. Der Kolben (33) bewegt sich
nicht weit genug nach vorne.
a. Fülldeckel (37) ist nicht ausreichend geöffnet.
b. Der Ölbehälter ist nicht voll genug.
c. Entlüftungsöffnung im Fülldeckel (37) ist verschlossen.
a. Fülldeckel (37) um 1 oder 1 1/2 Umdrehungen öffnen.
Beim Transport der Maschine darauf achten, dass der
Fülldeckel wieder fest verschlossen wird.
b. Öl nachfüllen bis der Füllstand den unteren Rand
des Fülldeckels erreicht. Den Kolben nicht über die
Markierungskerbe auf dem Kolben herauspumpen.
c. Entlüftungsöffnung reinigen.
2. Der Kolben (33) bewegt sich
überhaupt nicht nach vorne.
a. Die Entlastungsspindel (7) ist nicht genügend
zugedreht.
b. Kugel (32) schließt nicht unter Druck; Kugelkonus
eventuell verschmutzt.
c. Filter (42) und/oder Ölleitung verstopft.
a. Entlastungsspindel anziehen.
b1. Kugelkonus unter Kugel (32) reinigen.
Für festeren Sitz eventuell auf Kugel an Konus klopfen.
b2. Bitte wenden Sie sich an den Händler.
c. Sicherungsstift (34) entfernen. Filter und Ölleitung
reinigen.
3. Der Kolben (33) übt nur
geringen bzw. gar keinen Druck
aus.
a. Die Entlastungsspindel (7) ist nicht zugedreht.
b. Wegen Schmutz zwischen Konus und Kugel (32)
der Entlastungsspindel (7) läuft Öl in den Ölbehälter
zurück.
c. Kugel (32) schließt nicht wegen verschmutztem Konus.
d. Dichtung unter Sicherheitsschraube für Zugfeder 9 (27)
leckt.
e. Dichtung (40) leckt.
f. Druckdichtung (46) leckt.
a. Entlastungsspindel anziehen.
b. Entlastungsspindel (7), Ringmutter (8), Dichtung (9)
und untere Ringe (10) lösen. Konus für Kugel (31)
reinigen. Siehe 2b1. (Bei Bedarf wenden Sie sich bitte
an den Händler).
c. Sicherheitsschraube für Zugfeder (27) lösen und
Kolben etwa 2 cm (1”) herausziehen. Siehe 2b1.
d. Diese Schraube anziehen und nötigenfalls
Dichtungsring (28) ersetzen.
e. Dichtung ersetzen. Auf korrekte Befestigung achten.
Lösen siehe 3c.
f. Dichtung
ersetzen.
4. Pumpengriff (16) bewegt sich
nicht mehr nach oben.
a. Druckfeder (30) ist beschädigt.
a. Druckfeder ersetzen.
5. Kolben (33) bewegt sich
nicht mehr zurück, wenn die
Entlastungsspindel gelöst wird.
a. Zugfeder (29) ist beschädigt.
b. Kolben (33) ist verbogen. Dies kann nur geschehen,
wenn die Eckstützen nicht symmetrisch platziert
wurden.
a. Zugfeder ersetzen. Bitte wenden Sie sich an den
Händler.
b. Bitte wenden Sie sich an den Händler.
6. Öl tritt aus Kolben (20) aus.
a. Ölabstreifdichtung (41) leckt.
a. Ölabstreifdichtung ersetzen. Auch Dichtung (46) muss
ersetzt werden.
3801(E), 3802(E), 3811(E), 3812(E), 3813(E), 3814(E)
Ridge Tool Company
8
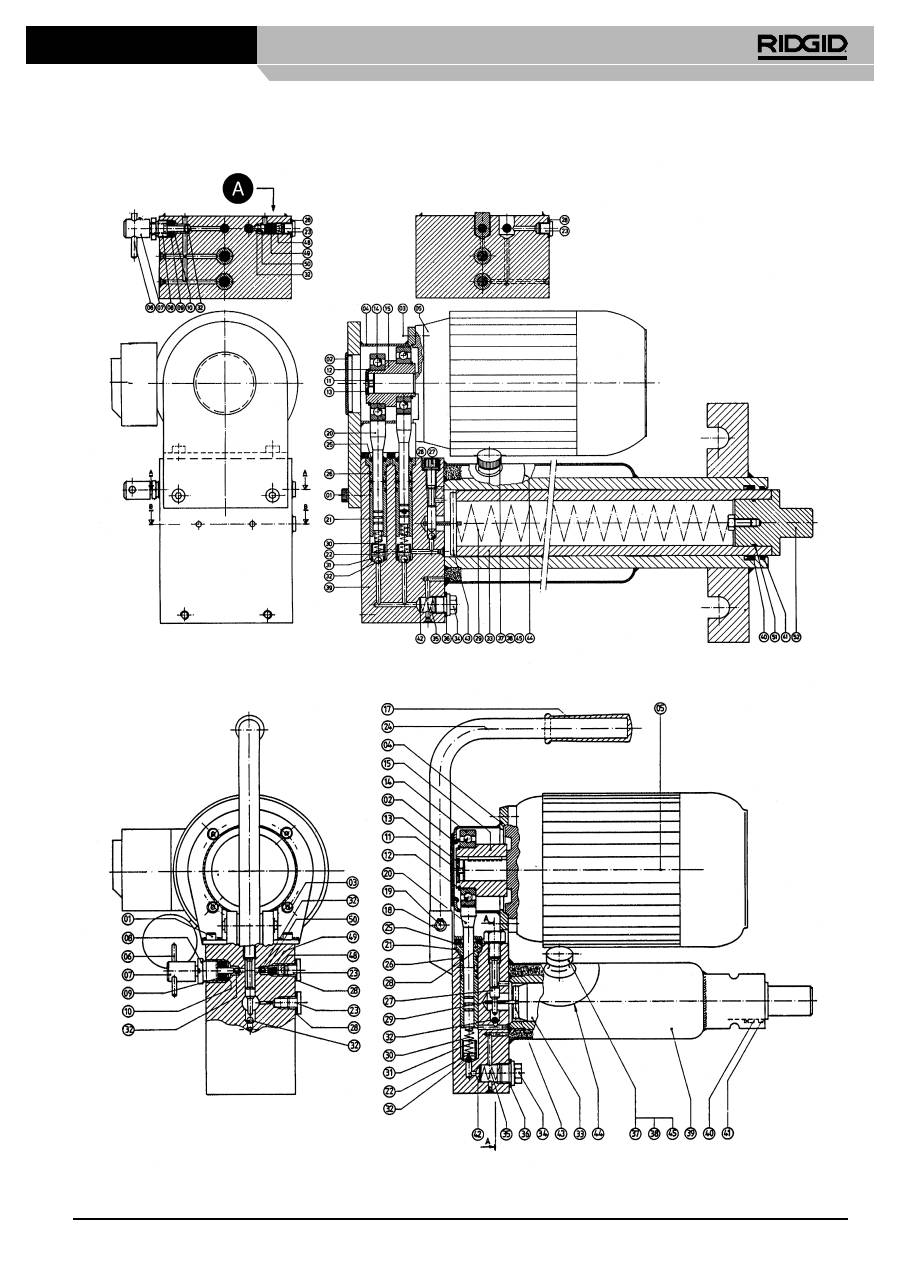
Pos. Nr
.
Modell
3801/
3811
STCK.
Modell
3802/
3812
STCK.
Modell
3813
STCK.
Modell
3814
STCK.
Modell
3801 E
STCK.
Modell
3802 E
3812 E
STCK.
Modell
3813 E
STCK.
Modell
3814 E
STCK.
Pos. Nr
.
Schraube
01
21256 4 21256 4 21256 4 28256 4 01
Deckel
02
21266
1
21266
1
21266
1
21266
1
02
Schraube
03
21276
4
21276
4
21276
4
21276
4
03
Antriebsgehäuse
04
21286 1 21286 1 21286 1 28736 1 04
Elektromotor
05
Siehe
1
Siehe
1
Siehe
1
Siehe
1
05
Tabelle Tabelle Tabelle Tabelle
Raststift für Entlastungsspindel 06
21126
1
21126
1
21126
1
21126
1
21126
1
21126
1
21126
1
21126
1
06
Entlastungsspindel
07 21116 1 21116 1 21116 1 21116 1 21116 1 21116 1 21116 1 21116 1 07
Ringmutter für
Entlastungsspindel
08 21106 1 21106 1 21106 1 21106 1 21106 1 21106 1 21106 1 21106 1 08
Gummidichtung
09*
1 1 1 1
1 1 1 1
09
Unterer
Kupferring
10*
2 2 2 2
2 2 2 2
10
Schraube
11
21376
1
21376
2
21376
2
21376
2
11
Sicherheitsring
12
21386
1
21386
1
21386
1
21386
1 12
Kontermutter
13
21396
1
21396
1
21396
1
21396
1 13
Kugellager
14
21406
1
21406
1
21406
1
21406
1 14
Exzenter
15
21416
1
21416
1
21416
1
28606
1 15
Hebel
16
20846
1
20846
1
20846
1
28726
1
16
Handgriff
17*
1 1 1 1
1 1 1
17
Sicherheitsring
18
21076
2
21076
2
21076
2
28746
2
21076
2
21076
2
21976
2
18
Raststift
19
21066
1
21066
1
21066
1
28516
1
21066
1
21066
1
21066
1
19
Presskolben
20
20866
1
20866
1
20866
1
28596
1
21466
1
21466
1
21466
1
21466
2 20
Presskolbengehäuse
21
21476
1
21476
1
21476
1
21476
2 21
Raststift Durchmesser 4 x16 22
21486
1
21486
1
21486
1
21486
2 22
Verschlussstopfen G 1/4”
23
20926
1
20926
1
20926
1
20926
1
20926
1
20926
1
20926
1
20926
2 23
Tragebügel
24
21426
1
21426
1
21426
1
24
Abstreifdichtung
für
Presskolben
25*
1 1 1 1
1 1 1 2
25
O-Ring
26*
2 2 2 4
26
Sicherheitsschraube für
Zugfeder
27
20916
1
20916
1
20916
1
28636
1
21526
1
21526
1
21526
1
28866
2 27
Dichtungsring PP 45 B
28*
2
2
2
2
3
3
3
4
28
Zugfeder 1 1/4”
29
21166
1
21176
1
21176
1
28496
1
21166
1
21176
1
21176
1
28496
1 29
Druckfeder
30
20896
1
20896
1
20896
1
28476
1
21536
1
21536
1
21536
1
21536
2 30
Kugelkonus
31
21546
1
21546
1
21546
1
21546
2 31
Kugel
5/16”
32*
3 3 3 3
4 4 4 6
32
Kolben 1 1/4”
33
21186
1
21196
1
21206
1
28586
1
21186
1
21196
1
21206
1
28586
1 33
Stopfen G 1/2”
34
21026
1
21026
1
21126
1
21026
1
21026
1
21026
1
21026
1
21026
1 34
Druckfeder für Filter
35
21576
1
21576
1
21576
1
21576
1
21576
1
21576
1
21576
1
21576
1 35
Dichtungsring PP 45 D
36*
1
1
1
1
1
1
1
1
36
Fülldeckel
37
20946
1
20946
1
20946
1
20946
1
20946
1
20946
1
20946
1
20946
1
37
Korkdichtung
für
Fülldeckel
38* 1 1 1 1
1 1 1 1
38
Pumpengehäuse
39
1
1
1
1
1
1
1
1 39
Dichtung 1 1/4”
40*
20996
1
21006
1
21016
1
28466
1
20996
1
21006
1
21016
1
28466
1 40
Abstreifdichtung
41*
1 1 1 1
1 1
1 1
41
Filter
42*
1
1 1 1
1 1 1 1
42
Stift für Zugfeder
43
21136
1
21146
1
21156
1
28556
1
21136
1
21146
1
21156
1
28556
1 43
Scheibe
44
21246
1
21246
1
21246
1
21246
1
21246
1
21246
1
21246
1
21246
1 44
Hydraulik
fl
üssigkeit (2,5 l)
45
14061
1
14061
1
14061
1
14061
1
14061
1
14061
1
14061
1
14061
1 45
Druckdichtung
46*
1
1
1
1
46
Stift für Druckdichtung
47
20886
1
20866
1
20866
1
20886
1
47
Stopfen für Sicherheitsventil
48
28576
1
28576
1
28576
1
28576
1 48
Feder
49
28486
24
28486
24
28486
24
28486
24 49
Kugelkonus
50
28626
1
28626
1
28626
1
28626
1 50
O-Ring
51*
28426
1
28426
1 51
Stopfen für Kolben 4”
52
28616
1
28616
1 52
Dichtungssätze (enthält Artikel mit*)
21906
21916
21926
33226
21936
21946
21956
33236
Motor 110V 1Ø
28276
Kondensator 230V = 40
μ
F
34306
Schalter 110V
57786
230V 1Ø
21316
110V = 110
μ
F
34316
230V
1Ø
57776
400V 3Ø
21306
400V
3Ø
57766
3801(E), 3802(E), 3811(E), 3812(E), 3813(E), 3814(E)
Ridge Tool Company
9
3801(E), 3802(E), 3811(E), 3812(E), 3813(E), 3814(E)
Ridge Tool Company
10
Zubehör
3802
3812
3813
180° Zusatz
22366
22346
22356
Siehe Biegesegmente
40 x 8 mm
Stangenzusatz
22446
22436
22456
Biegesegmente siehe unten
Hub-
einstellung
3801 E / 3811 E2
3802 E / 12 E / 13 E
3814 E
220 V
360 V
115 V
26896
26906
35116
26916
26926
34916
29126
29116
35726
Radius (mm)
60
70
80
90
100
110
120
130
40 x 8 mm
Stangenformer
22466 22476 22486 22496 22506 22516 22526 22536
Biegesegmente
Nenn -
größe
Außen
Ø
mm
Standard -
biegesegmente
Kesselrohr
180 Grad
Krümmungen
Radius Bestell- Nr. Radius Bestell- Nr. Radius Bestell- Nr.
1/4 13,5 60
28286
130 22376
3/8
17,2
45 21806
18
18
60 27816
20
20
70 27826
1/2
21,3
50 21816 110 22236 130 22386
22
22
80 27836
25
25
115 22116
3/4” 26,9 65 21826 137 22246 130
22396
28
28
70 35066
30
30
140 22126
32
32
140 22136
1
33,7 100 21836
190 22256 130 22406
35
35
100
35076
38
38
170
22146
40
40
125
35086
42
42
125
35096
1 1/4”
42,4
130
21846
220
22266
130
22416
44,5
44,5
190
22156
1 1/2
48,3
160
21856
220
22166
140
22426
50
50
140
35106
51
51
220
22176
57
57
250
22186
2
60,3
220
21866
270
22196
190
28766
63,5
63,5
270
22206
70
70
315
22216
2 1/2
76,1
320
21876
420
22226
3
88,9
380
21886
4
114,3
600
28756
DETAIL VON HÖCHST-
DRUCKVENTIL
ELEKTROHYDRAULISCHE PUMPEN
HÖCHSTDRUCK 420 ATO
Оглавление
- Operating Instructions
- Bedienungsanleitung
- Instructions d’utilisation
- Gebruiksaanwijzing
- Istruzioni operative
- Instrucciones de uso
- Instruções de Funcionamento
- Driftsinstruktioner
- Betjeningsvejledning
- Brukerveiledning
- Käyttöohjeet
- Upute za rukovanje
- Instrukcja obs ł ugi
- Instruc ţ iuni de exploatare
- Návod k obsluze
- Használati útmutató
- Οδηγίες λειτουργίας
- Инструкция по эксплуатации

