Ridgid 3814 (E): Brukerveiledning
Brukerveiledning: Ridgid 3814 (E)
3801(E), 3802(E), 3811(E), 3812(E), 3813(E), 3814(E)
Ridge Tool Company
48
ADVARSEL! Les disse instruksjonene
og sikkerhetsbrosjyren som følger med
nøye før du bruker dette utstyret. Hvis du
er usikker på noen aspekter ved bruken av dette
verktøyet, kan du kontakte RIDGID-forhandleren
for å få
fl
ere opplysninger.
Feil bruk av utstyret kan føre til elektrisk støt,
brann og/eller alvorlige personskader.
TA VARE PÅ DISSE INSTRUKSJONENE!
Montering
1. a. 1 1/4”, 2” og 3” maskiner.
Plasser bøyerammen med støtter på gulvet og smett ringen over
forsiden på pumpesylinderen.
Plasser U-braketten gjennom hullene i ringblokken på bøyerammen.
Pumpesylinderen og rørbøyningsrammen er nå festet i rett posisjon.
1. b. 4” maskin.
- Plasser grunnbjelken på gulvet.
- Plasser den nederste vingen på grunnbjelken.
- Plasser bøyepumpen på grunnbjelken, hekt den nederste vingen til
pumpen og sikre pumpen bak med to M10-bolter.
- Plasser hjørnestøttene og eventuelt bøyeutformeren du skal bruke
på den nederste vingen.
- Plasser øverste ving på hjørnestøttene og hekt den til pumpen.
- Før inn festeboltene gjennom vingene og hjørnestøttene.
MONTERING AV 4” MASKIN
4” pumpe
Øverste vinge
Hjørnestøtte
med festebolter
Nederste vinge
Grunnbjelke
2. Monter en bøyeutformer i henhold til diameteren på røret som skal
bøyes på toppen av bukken. Hjørnestøttene må være plassert mellom
eller på bøyerammen. De festes ved hjelp av festeboltene. Hullene
i rammen gjør det mulig å justere hjørnestøttene til ønsket ytre
diameter. Hullene er merket i samsvar med dette. Sikre at festeboltene
for hjørnestøttene er riktig montert gjennom begge vingene eller
gjennom bøyerammen for å hindre skade.
Bøying
1. Det er hull i påfyllingslokket for at luft skal slippe ut. Når bøyemaskinen
transporteres, må dette påfyllingslokket være godt lukket, men løsnet
litt når maskinen er i bruk.
2. Før bøyning må røret smøres litt. Røret føres så mellom
hjørnestøttene og bøyeutformeren. Avlastingsspindelen må være
godt lukket. Pumpen settes i drift ved at håndtaket beveges opp og
ned. Bukken kjøres frem, og røret blir bøyd. Bøyeoperasjonen må
fortsettes til ønsket kurve er oppnådd, men ikke lenger enn kurven til
bøyeutformeren. Husk at røret vil springe litt tilbake avhengig av rørets
kvalitet. Dette lærer du gjennom erfaring.
3. Så snart røret har fått den form det skal ha, løsnes
avlastingsspindelen, og bukken trekkes automatisk tilbake. Koble fra
en av hjørnestøttene, og røret kan fjernes. Modellene som er utstyrt
med en åpen ramme, har den fordelen at det bøyde røret lettere kan
fjernes, særlig lange rørstykker med
fl
ere bøyninger, og dermed sparer
man mye tid.
4. Hvis en bøyning er bøyd for langt, kan dette korrigeres ved hjelp av
utretteren. Bukken må reverseres, og røret snus mot hjørnestøttene.
Utretteren plasseres på toppen av bukken, og bøyningen kan nå
skyves tilbake til ønsket form. På 1 1/4” bøyemaskinen kan en bøyning
på 90° normalt ikke korrigeres. Dette gjelder også 3” maskinen for 2
1/2” og 3” rør, for 4” maskinen for 3” og 4” rør.
5. Kun for 3” og 4” modell.
Når du bøyer 2 1/2”, 3” og 4” rør, bør du bruke et forlengelsesstempel
på bukken når røret har vært bøyd utover 75°. Bukkens slaglengde er
ikke stor nok til å lage en 90° bøyning i en operasjon.
6. 1 1/4”, 2”, 3”, 4” elektrohydrauliske rørbøyemaskiner.
De elektrohydrauliske rørbøyemaskinene er utstyrt med en enfaset
vekselstrømsmotor på 115 V eller 220 V, eller en 3-fasemotor på
380 V. Motoren har en spesiell sikkerhetsbryter. Når motoren går,
kontrolleres bukkens bevegelse ved hjelp av en avlastingsspindel som
kan være enten åpen eller lukket. Motoren behøver ikke å slås av.
Maskinen har også en trykksikkerhetsventil. Denne er fabrikkinnstilt,
slik at tunge veggrør (damprør) kan bøyes uten problemer.
Trykksikkerhetsventilen be
fi
nner seg i pumpehuset og kan bare stilles
inn ved hjelp av et manometer.
Bøying av hårnålsformer på 180°
Til dette kreves det tilbehør som kan leveres på anmodning.
Montering
1. Se under montering av bøyemaskin.
2. Bøyeutformeren (180°) i samsvar med størrelsen på røret som
skal bøyes, plasseres på bukken. Deretter justeres platene
(reserverammene) med 3 ruller (djevlespill) mellom eller inne i
rammen. Festepunktene for hjørnestøttene må settes i hullene 1 1/4”
gjennom senterlåsen. Det utskiftbare djevlespillet må fjernes, og røret
som skal bøyes, kjøres gjennom. Røret skal nå berøre djevlespillet
i midten med en side og bøyeformen på 180° med den andre siden.
Bøyingen kan nå starte.
Bøying
1. Se under bøying.
2. Hvis bøyingen er på mer enn 90°, må bukken reverseres ved at du
løsner på avlastingsspindelen. Juster de utskiftbare djevlespillene og
bøy opptil 180°. Se Bøying for
fi
nne ut hvordan du fjerner det bøyde
røret.
NO
3801(E), 3802(E), 3811(E), 3812(E), 3813(E), 3814(E)
Brukerveiledning
3801(E), 3802(E), 3811(E), 3812(E), 3813(E), 3814(E)
Ridge Tool Company
49
Vedlikehold
Bøyingen leveres med en fylt oljebeholder. Oljenivået må imidlertid
kontrolleres regelmessig, da bukkens slaglengde ellers vil bli for kort. Oljen
må alltid være på nivå med bunnen av påfyllingslokket. Hvis det må fylles
på olje, må du bare bruke hydraulikkolje.
Forsiktig
1. Sikre at hjørnestøtter alltid justeres symmetrisk i hullene i samsvar
med størrelsen på røret som skal bøyes. Hvis det ikke blir riktig
plassert, kan bukken istedenfor røret bli bøyd, og maskinen kan bli
alvorlig skadet.
2. Vær også nøye med at festeboltene for hjørnestøttene er kommet
skikkelig gjennom hullene i øverste og nederste ving på bøyerammen,
og helt rundt på den åpne bøyerammen.
3. Bukken må ikke
fl
yttes ut forbi rillemerket.
Feil som kan opptre, og hvordan de kan korrigeres
Tall i parenteser viser til elektriske maskiner.
FEIL
MULIG ÅRSAK
KORRIGERING
1. Bukken (33) vil ikke
fl
ytte seg
langt nok ut.
a. Fyllhetten (37) er ikke løsnet tilstrekkelig.
b. Oljebeholderen er ikke full nok.
c. Luftehullet i påfyllingslokket (37) er blokkert.
a. Løsne påfyllingslokket (37) med 1 eller 1 1/2 omdreining.
Når du fjerner maskinen, må du være nøye med at
påfyllingslokket er godt lukket.
b. Fyll på oljebeholderen til oljen er på nivå med bunnen av
påfyllingslokket. Bukken må ikke pumpes ut forbi rillemerket
på bukken.
c. Rengjør luftehullet.
2. Bukken (33) vil ikke
fl
ytte seg ut
i det hele tatt.
a. Avlastingsspindelen (7) er ikke trukket godt nok
til.
b. Kulen (32) går ikke i lås når du trykker. Muligens
smuss på kulens konus.
c. Filteret (42) og/eller oljetilførselskanalen er
tilstoppet.
a. Trekk til avlastingsspindelen.
b1. Rengjør kulens konus under kulen (32).
Til slutt slår du kulen på konusen for at den skal sitte tettere.
b2. Kontakt leverandøren.
c. Fjern låsepinnen (34). Rengjør
fi
lteret og oljetilførselskanalen.
3. Bukken (33) utøver bare lite
trykk, eller ikke noe i det hele
tatt.
a. Avlastingsspindelen (7) er ikke trukket godt nok
til.
b. På grunn av smuss mellom konus og kule (32)
på avlastingsspindelen (7) lekker det olje tilbake
til oljebeholderen.
c. Kulen (32) går ikke i lås fordi konusen er
tilsmusset.
d. Pakningen under sikkerhetsskruen for trekkfjær
(27) lekker.
e. Pakningen (40) lekker.
f. Trykkpakningen (46) lekker.
a. Trekk til avlastingsspindelen.
b. Løsne avlastingsspindelen (7), ringmutteren (8), pakningen (9)
og bunnringene (10). Rengjør konusen for kulen (31). Se 2b1.
(Kontakt leverandøren om nødvendig).
c. Løsne sikkerhetsskruen for trekkfjæren (27) og trekk ut
bukken ca. 2 cm (1”). Se 2b1.
d. Trekk til denne skruen og skift om nødvendig tetningsringen
(28).
e. Skift pakningen. Pass på at den er skikkelig låst. Når det
gjelder løsning av bukken, se 3c.
f. Skift
pakningen.
4. Pumpehåndtaket (16) vil ikke
komme opp igjen.
a. Trykkfjæren (30) er skadet.
a. Skift trykkfjæren.
5. Bukken (33) vil ikke gå tilbake
når avlastingsspindelen blir
løsnet.
a. Trekkfjæren (29) er skadet.
b. Bukken (33) er bøyd. Dette kan bare skje hvis
hjørnestøttene er usymmetrisk plassert.
a. Skift trekkfjæren. Kontakt leverandøren.
b. Kontakt leverandøren.
6. Det lekker olje fra trykkbukken
(20).
a. Skraperpakningen (41) lekker.
a. Skift skraperpakningen. Skift også om nødvendig pakning
(46).
3801(E), 3802(E), 3811(E), 3812(E), 3813(E), 3814(E)
Ridge Tool Company
50
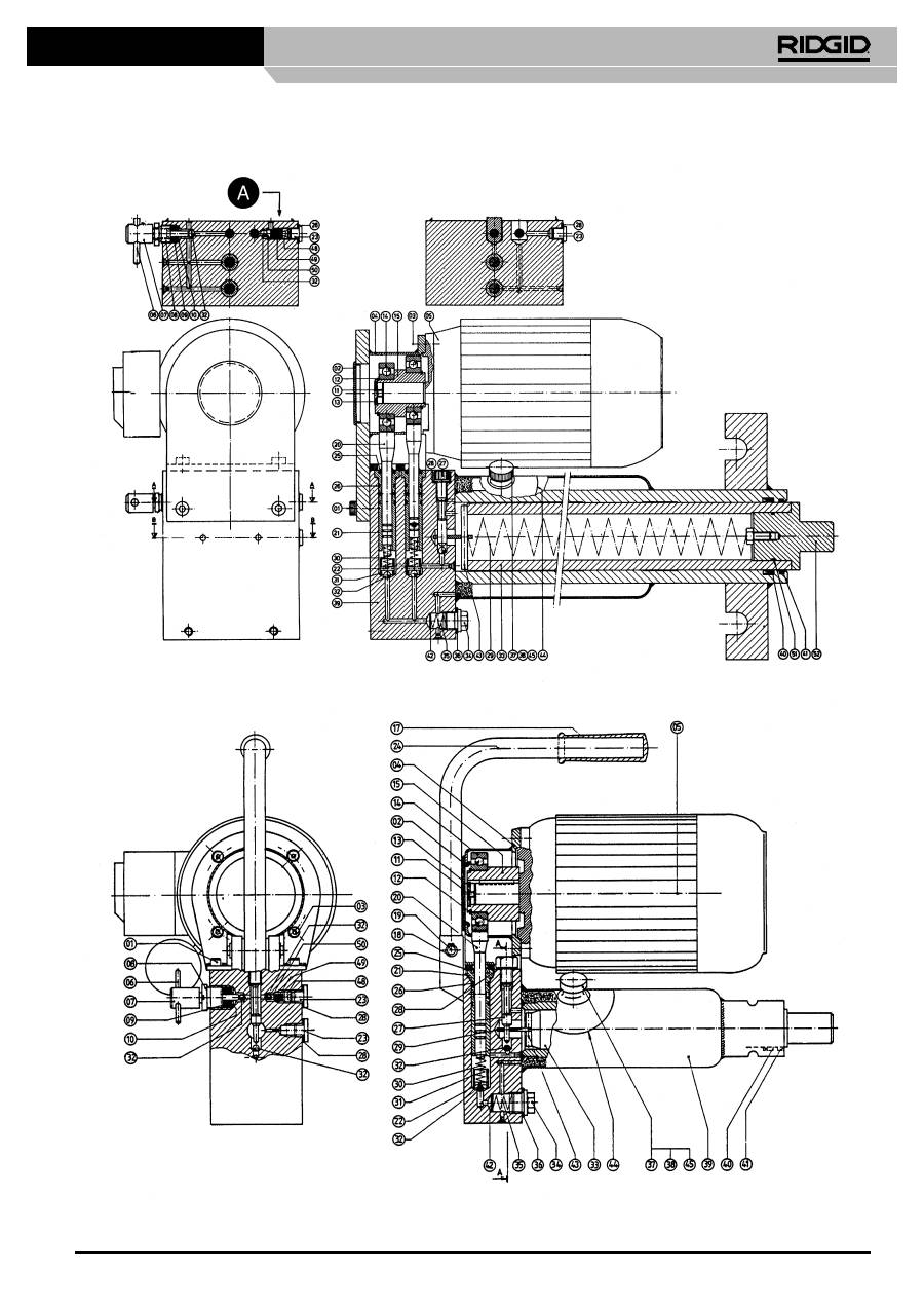
Pos. nr
.
Modell
3801/
3811
KVNT
Modell
3802/
3812
KVNT
Modell
3813
KVNT
Modell
3814
KVNT
Modell
3801 E
KVNT
Modell
3802 E
3812 E
KVNT
Modell
3813 E
KVNT
Modell
3814 E
KVNT
Pos. nr
.
Skrue
01
21256 4 21256 4 21256 4 28256 4 01
Dekklokk
02
21266 1 21266 1 21266 1 21266 1 02
Skrue
03
21276
4 21276 4 21276 4 21276 4 03
Drivkasse
04
21286 1 21286 1 21286 1 28736 1 04
Elektromotor
05
Se tabell
1
Se tabell
1
Se tabell
1
Se tabell
1
05
Innskjæringsbolt for
avlastingsspindel
06 21126 1 21126 1 21126 1 21126 1 21126 1 21126 1 21126 1 21126 1 06
Avlastingsspindel
07 21116 1 21116 1 21116 1 21116 1 21116 1 21116 1 21116 1 21116 1 07
Ringmutter
for
avlastingsspindel
08 21106 1 21106 1 21106 1 21106 1 21106 1 21106 1 21106 1 21106 1 08
Gummipakning
09*
1 1 1 1 1 1 1 1
09
Kobberbunnring
10*
2 2 2 2 2 2 2 2
10
Skrue
11
21376
1
21376
2
21376
2
21376
2
11
Sikkerhetsring
12
21386
1
21386
1
21386
1
21386
1 12
Låsemutter
13
21396
1
21396
1
21396
1
21396
1 13
Kulelager
14
21406
1
21406
1
21406
1
21406
1 14
Eksentrisk
15
21416
1
21416
1
21416
1
28606
1 15
Håndspak
16
20846
1
20846
1
20846
1
28726
1
16
Håndtak
17*
1 1 1 1 1 1 1
17
Sikkerhetsring
18
21076
2
21076
2
21076
2
28746
2
21076
2
21076
2
21976
2
18
Innskjæringsbolt
19
21066
1
21066
1
21066
1
28516
1
21066
1
21066
1
21066
1
19
Trykkbukk
20
20866
1
20866
1
20866
1
28596
1
21466
1
21466
1
21466
1
21466
2 20
Trykkbukkhus
21
21476
1
21476
1
21476
1
21476
2 21
Innskjæringsboltens dia 4 x16 22
21486
1
21486
1
21486
1
21486
2 22
Tilkoplingsklemme G 1/4”
23
20926
1
20926
1
20926
1
20926
1
20926
1
20926
1
20926
1
20926
2 23
Bæreåk
24
21426
1
21426
1
21426
1
24
Skraperpakning
for
trykkbukk
25*
1 1 1 1 1 1 1 2
25
O-ring
26*
2 2 2 4
26
Sikkerhetsskrue for trekkfjær 27
20916
1
20916
1
20916
1
28636
1
21526
1
21526
1
21526
1
28866
2 27
Tetningsring
PP
45
B
28*
2 2 2 2 3 3 3 4
28
Trekkfjær 1 1/4”
29
21166
1
21176
1
21176
1
28496
1
21166
1
21176
1
21176
1
28496
1 29
Trykkfjær
30
20896
1
20896
1
20896
1
28476
1
21536
1
21536
1
21536
1
21536
2 30
Kulens konus
31
21546
1
21546
1
21546
1
21546
2 31
Kule
5/16”
32*
3 3 3 3 4 4 4 6
32
Bukk 1 1/4”
33
21186
1
21196
1
21206
1
28586
1
21186
1
21196
1
21206
1
28586
1 33
Plugg G 1/2”
34
21026
1
21026
1
21126
1
21026
1
21026
1
21026
1
21026
1
21026
1 34
Trykkfjær for
fi
lter
35
21576
1
21576
1
21576
1
21576
1
21576
1
21576
1
21576
1
21576
1 35
Tetningsring
PP
45
D
36*
1 1 1 1 1 1 1 1
36
Påfyllingslokk
37
20946
1
20946
1
20946
1
20946
1
20946
1
20946
1
20946
1
20946
1
37
Korkpakning
for
påfyllingslokk
38*
1 1 1 1 1 1 1 1
38
Pumpehus
39
1
1
1
1
1
1
1
1 39
Pakning 1 1/4”
40* 20996
1
21006
1
21016
1
28466
1
20996
1
21006
1
21016
1
28466
1 40
Skraperpakning
41*
1 1 1 1 1 1
1 1
41
Filter
42*
1
1 1 1 1 1 1 1
42
Bolt for trekkfjær
43
21136
1
21146
1
21156
1
28556
1
21136
1
21146
1
21156
1
28556
1 43
Skive
44
21246
1
21246
1
21246
1
21246
1
21246
1
21246
1
21246
1
21246
1 44
Hydraulikkvæske (2,5 l)
45
14061
1
14061
1
14061
1
14061
1
14061
1
14061
1
14061
1
14061
1 45
Trykkpakning
46*
1
1
1
1
46
Bolt for trykkpakning
47
20886
1
20866
1
20866
1
20886
1
47
Plugg for sikkerhetsventil
48
28576
1
28576
1
28576
1
28576
1 48
Fjær
49
28486
24
28486
24
28486
24
28486
24 49
Kulekonus
50
28626
1
28626
1
28626
1
28626
1 50
O-ring
51*
28426
1
28426
1 51
Plugg for bukk 4”
52
28616
1
28616
1 52
Tetningssett (omfatter artikler med*)
21906
21916
21926
33226
21936
21946
21956
33236
Motor 110V 1Ø
28276
Kondensator 230 V = 40
μ
F
34306
Bryter
110 V
57786
230 V 1Ø
21316
110 V = 110
μ
F 34316
230 V
1Ø
57776
400 V 3Ø
21306
400 V
3Ø
57766
3801(E), 3802(E), 3811(E), 3812(E), 3813(E), 3814(E)
Ridge Tool Company
51
3801(E), 3802(E), 3811(E), 3812(E), 3813(E), 3814(E)
Ridge Tool Company
52
Tilbehør
3802
3812
3813
180° Tilbehør
22366
22346
22356
Se bøyeutformere
40 x 8 mm
Stangfeste
22446
22436
22456
Se nedenfor for utformere
Slaglengde
justering
3801 E / 3811 E2
3802 E / 12 E / 13 E
3814 E
220 V
360 V
115 V
26896
26906
35116
26916
26926
34916
29126
29116
35726
Radius (mm)
60
70
80
90
100
110
120
130
40 x 8 mm
Stangutformere
22466 22476 22486 22496 22506 22516 22526 22536
Bøyeutformere
Nominell
størrelse
Ø
utside
mm
Standard utformere
Kjelerør
180 graders bøyninger
Radius
Kat. nr.
Radius
Kat. nr.
Radius
Kat. nr.
1/4
13,5
60 28286
130
22376
3/8
17,2
45 21806
18
18
60 27816
20
20
70 27826
1/2
21,3
50 21816 110 22236 130
22386
22
22
80 27836
25
25
115 22116
3/4”
26,9
65 21826 137 22246 130
22396
28
28
70 35066
30
30
140 22126
32
32
140 22136
1
33,7 100 21836
190 22256 130
22406
35
35
100
35076
38
38
170
22146
40
40
125
35086
42
42
125
35096
1 1/4”
42,4
130
21846
220
22266
130
22416
44,5
44,5
190
22156
1 1/2
48,3
160
21856
220
22166
140
22426
50
50
140
35106
51
51
220
22176
57
57
250
22186
2
60,3
220
21866
270
22196
190
28766
63,5
63,5
270
22206
70
70
315
22216
2 1/2
76,1
320
21876
420
22226
3
88,9
380
21886
4
114,3
600
28756
DETALJ AV MAKSIMAL-
TRYKKSVENTIL
ELEKTROHYDRAULISKE PUMPER
MAKSIMALTRYKK 420 ATO
Оглавление
- Operating Instructions
- Bedienungsanleitung
- Instructions d’utilisation
- Gebruiksaanwijzing
- Istruzioni operative
- Instrucciones de uso
- Instruções de Funcionamento
- Driftsinstruktioner
- Betjeningsvejledning
- Brukerveiledning
- Käyttöohjeet
- Upute za rukovanje
- Instrukcja obs ł ugi
- Instruc ţ iuni de exploatare
- Návod k obsluze
- Használati útmutató
- Οδηγίες λειτουργίας
- Инструкция по эксплуатации

