Hach-Lange POLYMETRON 9611 sc Installation – страница 18
Инструкция к Hach-Lange POLYMETRON 9611 sc Installation

Slika 12 Priklop na napajanje
Povezava dvojnega monitorja
analizator lahko povežete z zunanjo kontrolno enoto sc. Zunanjo
kontrolno enoto sc in priključek za dvojni monitor analizatorja povežite s
kablom Hach 6789400. Glejte Pregled priključkov na strani 339.
Povezava dodatnih naprav
Namestite kable za izhodne ali vhodne naprave, kot prikazuje Slika 13.
Za povezavo uporabite žico prave velikosti. Glejte Specifikacije
na strani 329. Za informacije o konfiguraciji naprave glejte priročnik za
uporabo.
Slovenski 341

Slika 13 Povezava naprave
Povezava z releji
N E V A R N O S T
Nevarnost smrti zaradi električnega toka. Ne pomešajte nizke in visoke
napetosti. Vse relejne povezave morajo imeti visokonapetostni
izmenični tok ali nizkonapetostni enosmerni tok.
P R E V I D N O
Nevarnost požara. Bremena na relejih morajo biti upornostna. Tok
vedno omejite na releje z zunanjo varovalko ali odklopnim stikalom.
Upoštevajte nazivne vrednosti relejev, navedene v poglavju
Specifikacije.
P R E V I D N O
Nevarnost izpostavljenosti kemikalijam. Upoštevajte varnostne
predpise v laboratoriju in nosite vso osebno zaščitno opremo, primerno
za delo s kemikalijami, ki jih trenutno uporabljate. Za varnostne
protokole glejte veljaven varnostni list (MSDS/SDS).
O P O M B A
Ne priporočamo, da uporabite vodnik s presekom manj kot 18 AWG.
V analizator so vgrajeni releji za alarme glede koncentracije vzorca (2 x),
opozorilo sistema analizatorja in zaustavitev sistema analizatorja. Za
povezavo naprave glejte Pregled priključkov na strani 339 (NO =
normally open – normalno odprt, COM = common – skupni, NC =
normally closed – normalno zaprt).
Povezava z izhodi 4–20 mA
Za izhodne povezave 4–20 mA uporabite oklopljeno sukano parico.
Zaščito priključite pri zapisovalniku ali pri analizatorju. Zaščite ne
priključite na obeh koncih kabla! Zaradi uporabe neoklopljene parice
lahko pride do radiofrekvečnih emisij ali višjih ravni občutljivosti, kot so
dovoljene.
Za povezavo naprave glejte Pregled priključkov na strani 339. Za
tehnične podatke o napeljavi kablov in bremenski impedanci glejte
Specifikacije na strani 329.
342
Slovenski

Napotek: 4–20 mA izhodov ni mogoče uporabljati za napajanje dvožičnega
Slika 14 Izolirani digitalni vhod tipa TTL
oddajnika (tokovna zanka).
Povezava z digitalnimi vhodi
Analizator lahko sprejema digitalni signal iz zunanje naprave, kot je
merilnik pretoka, za zaustavitev meritev, če se prekine pretok. Vsak
vhod se uporablja za omogočanje/onemogočanje ustreznega kanala za
vzorec.
Vsak digitalni vhod je mogoče konfigurirati kot izolirani digitalni vhod tipa
TTL ali kot rele/vhod tipa odprti kolektor. Glejte Slika 14. Mostički so
privzeto nastavljeni za izolirani digitalni vhod tipa TTL. Za povezavo
naprave glejte Pregled priključkov na strani 339.
1 Mostiček (12 x) 3 Izolirani digitalni vhod tipa TTL
2 Priključki za digitalni vhod 4 Rele/vhod tipa odprti kolektor
Namestitev dodatnih modulov
Dodajate lahko module za dodatne izhode, releje ali komunikacijske
možnosti. Glejte dokumentacijo, priloženo modulu.
Slovenski
343

Namestitev posod analizatorja
Namestitev mešalne palčke
Mešalna palčka je priložena kompletu za namestitev. Pred namestitvijo
P R E V I D N O
odstranite pokrov za lijak, lijak in pokrov za kolorimeter. Glejte Slika 16.
Namestite mešalno palčko in celico za vzorce kolorimetra, kot je
Nevarnost izpostavljenosti kemikalijam. Upoštevajte varnostne
prikazano v ilustriranih korakih. Glejte Slika 17.
predpise v laboratoriju in nosite vso osebno zaščitno opremo, primerno
za delo s kemikalijami, ki jih trenutno uporabljate. Za varnostne
Slika 16 Odstranitev pokrova kolorimetra in lijaka
protokole glejte veljaven varnostni list (MSDS/SDS).
Glejte Slika 15 za namestitev posod analizator. Vse posode je treba
pravilno prepoznati in jih zapreti s pravilnim pokrovčkom.
Slika 15 Namestitev posod analizatorja
344 Slovenski

Slika 17 Namestitev mešalne palčke
Priprava za uporabo
Fizična namestitev je zdaj zaključena Za nastavitev analizatorja za prvo
uporabo glejte priročnik za uporabo.
Slovenski 345

Sadržaj
Tablica 1 Opće specifikacije (nastavak)
Specifikacije Pojedinosti
Specifikacije na stranici 346
Maksimalna visina 2000 m (6560 ft)
stranica 347
Izlazi od 4-20 mA Četiri; impedancija opterećenja: maksimalno 600 Ω
Ugradnja na stranici 350
Povezivanje: žica 22 do 16 AWG, preporučuje se 22 do
20 AWG, omotana dvostruka uvijena žica
Specifikacije
Izlazi releja alarma Četiri; vrsta: SPDT releji bez napajanja, svaki nazivno
na 5 A otpora, 240 VAC maksimalno
Specifikacije se mogu promijeniti bez prethodne najave.
Veza: žica 18 do 16 AWG, preporučuje se upletena
Tablica 1 Opće specifikacije
žica od 18 AWG
Specifikacije Pojedinosti
Digitalni ulazi Četiri; povezivanje: žica 22 do 16 AWG, preporučuje se
upletena žica od 22 do 20 AWG (izoliran ulazni
Dimenzije (Š x D x V) 452 x 360 x 804 mm (17.8 x 14.2 x 31.7 inča)
istosmjerni napon ili kontaktni ulaz kućišta otvoreni
kolektor / relej)
Kućište Stupanj zaštite: NEMA 4x/IP65
Materijal: PC/ABS kućište, PC vrata, PC šarke i kvake,
Osigurači Ulazna struja – AC: T 1,6 A, 250 VAC; DC: T 6,3 A,
316 SST hardver
250 VAC
Samo za uporabu u zatvorenom prostoru. Držite
Izlazna struja – AC: T 5,0 A, 250 VAC; DC: T 1,6 A,
podalje od izravnog sunčevog svjetla.
250 VAC
Izlazi releja alarma: T 5,0 A, 250 V
Težina 20 kg (45 lb) bez reagensa i standarda, 36,3 kg (80 lb)
s reagensima
Spojnice Cjevčica uzorka i zaobilazni odvod uzorka: 6 mm OD
spojnica za plastične cijevi koja radi na principu "pritisni
Montiranje Na zid, ploču ili stol
za povezivanje"
Klasa zaštite I
Ulaz pročistača zraka: 6 mm OD spojnica za plastične
cijevi koja radi na principu "pritisni za povezivanje"
Razina zagađivanja /
2/II
kategorija instalacija
Kemijski odvod i odvod kućišta: 11 mm (7/16 in.) ID
spojnica za plastične cijevi koja se navlači
Potrošnja struje AC: 100-240 VAC, 50/60 Hz
Tlak uzorka, brzina
Tlak: 2-87 psi za unaprijed postavljeni regulator tlaka
Instrument: 0,5 A nominalno, 2,6 A maksimalno
protoka i temperatura
Brzina protoka: 55-300 mL/minuta
Veza: žica 18 do 16 AWG, preporučuje se upletena
žica od 18 AWG
Temperatura: 5 do 50 °C (41 do 122 °F)
Radna temperatura 5 do 45 °C (41 do 113 °F)
Broj tokova uzorka 1, 2 ili 4; programibilni slijed
Vlaga pri radu 5 do 95% bez kondenzacije
Pročistač zraka
0,425 m
3
/sat (15 scfh
1
), kvaliteta zraka instrumenta
(dodatno)
Temperatura za
-20 do 60 °C (-4 do 140 °F)
pohranu
Certifikati ETL certificirano za standarde UL i CSA, CE oznaka
346 Hrvatski

1
standardnih kubičnih stopa po satu
Tablica 2 Specifikacije mjera
Sigurnosne informacije
Specifikacije Pojedinosti
O B A V I J E S T
Izvor svjetlosti LED (svjetleća dioda) klase 1M s vršnom
valnom duljinom od 480 nm (model LR) ili
Proizvođač nije odgovoran za štetu zbog nepravilne primjene ili nepravilne
880 nm (model HR)
uporabe ovog proizvoda uključujući, bez ograničenja, izravnu, slučajnu i
posljedičnu štetu i odriče se odgovornosti za takvu štetu u punom opsegu
Raspon mjerenja 4-3000 µg/L kao PO
4
(model LR);
dopuštenom prema primjenjivom zakonu. Korisnik ima isključivu odgovornost za
200-50,000 µg/L kao PO
4
(model HR)
utvrđivanje kritičnih rizika primjene i za postavljanje odgovarajućih mehanizama
1
za zaštitu postupaka tijekom mogućeg kvara opreme.
Preciznost
Model LR: ±4 µg/L ili ±4% (veća vrijednost)
Model HR: ±500 µg/L ili ±5% (veća vrijednost)
Prije raspakiravanja, postavljanja ili korištenja opreme pročitajte cijeli
ovaj korisnički priručnik. Poštujte sva upozorenja na opasnost i oprez.
Preciznost//Ponovljivost Model LR: ±1%, model HR ±500 µg/L ili ±5%
Nepoštivanje ove upute može dovesti do tjelesnih ozljeda operatera ili
(veća vrijednost)
oštećenja na opremi.
Vrijeme odziva Uobičajeno 10 minuta pri 25 °C (77 °F), mijenja
Uvjerite se da zaštita koja se nalazi uz ovu opremu nije oštećena. Ne
se s temperaturom
koristite i ne instalirajte ovu opremu na bilo koji način koji nije naveden u
Vrijeme stabilizacije Nakon početnog pokretanja ili godišnjeg
ovom priručniku.
održavanja: 5 ciklusa mjerenja
Nakon stanja mirovanja: 1 ciklus mjerenja
Upotreba upozorenja
Nakon kalibracije: 0 ciklusa mjerenja
O P A S N O S T
Vrijeme kalibracije Kalibracija nagiba: 10 minuta
Označava potencijalno ili neposredno opasnu situaciju koja će, ako se ne
Kalibracija nule: 10 minuta
izbjegne, dovesti do smrti ili ozbiljnih ozljeda.
Ograničenje minimalnog
Model LR: 4 µg/L, model HR: 200 µg/L
U P O Z O R E N J E
otkrivanja
Označava potencijalno ili neposredno opasnu situaciju koja će, ako se ne
Uporaba reagensa Uporaba: 2 L svakog reagensa svakih 90 dana
izbjegne, dovesti do smrti ili ozbiljnih ozljeda.
u vremenskom ciklusu od 15 minuta
Spremnik: 2 L, PETE s polipropilenskim
O P R E Z
čepovima
Označava potencijalno opasnu situaciju koja će dovesti do manjih ili umjerenih
ozljeda.
Standardna uporaba Uporaba: 2 L standarda za svakih
10 kalibracija
O B A V I J E S T
Spremnik: 2 L, PETE s polipropilenskim
čepovima
Označava situaciju koja, ako se ne izbjegne će dovesti do oštećenja instrumenta.
Informacije koje je potrebno posebno istaknuti.
1
Preciznost se temelji na uporabi samo reagensa koje dostavlja tvrtka Hach.
Hrvatski 347

Naljepnice za upozorenje na oprez
Ovaj simbol naznačuje prisutnost jako korozivne ili druge opasne tvari
i opasnost od kemijske ozljede. Samo osoblje kvalificirano i obučeno
Pročitajte sve naljepnice i oznake na instrumentu. Ako se ne poštuju,
za rad s kemikalijama može rukovati s kemikalijama ili održavati
može doći do tjelesnih ozljeda ili oštećenja instrumenta. Simbol, ako se
sustave koji sadrže kemikalije koje su sastavni dio opreme.
nalazi na instrumentu, bit će uključen u upozorenje za opasnost ili oprez
Napomena: Za vraćanje opreme u recikliranje obratite se proizvođaču opreme ili
u priručniku.
dobavljaču koji će vas obavijestiti o povratu opreme kojoj je istekao vijek trajanja,
odlaganju električkih dodataka i sve dodatne opreme.
Ovo je sigurnosni simbol upozorenja. Kako biste izbjegli potencijalne
Električna oprema označena ovim simbolom ne smije se odlagati u
ozljede poštujte sve sigurnosne poruke koje slijede ovaj simbol. Ako
europskim javnim odlagalištima nakon 12. kolovoza 2005. Sukladno
se nalazi na uređaju, pogledajte korisnički priručnik za rad ili
europskim lokalnim i nacionalnim propisima (EU direktiva
sigurnosne informacije.
2002/96/EC), korisnici električne opreme u Europi sada moraju staru
Ovaj simbol upozorava da je potrebno koristiti zaštitu za oči.
ili isteklu opremu vratiti proizvođaču koji će je odložiti bez naknade.
Certifikati
Kanadska odredba o opremi koja uzrokuje smetnje, IECS-003, klasa
Ovaj simbol naznačuje opasnost od kemikalija i ukazuje da samo
A:
osobe koje su kvalificirane i obučene za rad s kemikalijama smiju
rukovati kemikalijama ili izvoditi radove održavanja na sustavima za
Izvješća s testiranja nalaze se kod proizvođača.
prijenos kemikalija koji su povezani s opremom.
Ovo digitalno pomagalo klase A udovoljava svim zahtjevima Kanadskog
zakona o opremi koja uzrokuje smetnje.
Ovaj simbol naznačuje da postoji opasnost od električnog i/ili strujnog
udara.
Cet appareil numérique de classe A répond à toutes les exigences de la
réglementation canadienne sur les équipements provoquant des
interférences.
Simbol upućuje na to da označena stavka može biti vruća i s njom bi
FCC dio 15, ograničenja klase "A"
se trebalo oprezno rukovati.
Izvješća s testiranja nalaze se kod proizvođača. Uređaj je sukladan s
dijelom 15 FCC pravila. Rad uređaja mora ispunjavati sljedeće uvjete:
Ovaj simbol naznačuje opasnost od požara.
1. oprema ne smije uzrokovati štetne smetnje.
2. Oprema mora prihvatiti svaku primljenu smetnju, uključujući smetnju
koja može uzrokovati neželjen rad.
Zbog promjena ili prilagodbi ovog uređaja koje nije odobrila stranka
nadležna za sukladnost korisnik bi mogao izgubiti pravo korištenja
opreme. Ova je oprema testirana i u sukladnosti je s ograničenjima za
digitalne uređaje klase A, koja su u skladu s dijelom 15 FCC pravila. Ta
ograničenja su osmišljena da bi se zajamčila razmjerna zaštita od štetnih
smetnji kada se oprema koristi u poslovnom okruženju. Ova oprema
proizvodi, koristi i odašilje energiju radio frekvencije, te može prouzročiti
smetnje u radio komunikaciji ako se ne instalira i koristi prema
348
Hrvatski

korisničkom priručniku. Koristite li ovu opremu u naseljenim područjima
Slika 1 Prikaz proizvoda
ona može prouzročiti smetnje, a korisnik će sam snositi odgovornost
uklanjanja smetnji o vlastitom trošku. Sljedeće tehnike mogu se koristiti
kao bi se smanjili problemi uzrokovani smetnjama:
1. Isključite opremu iz izvora napajanja kako biste provjerili je li ili nije
uzrok smetnji.
2. Ako je oprema uključena u istu utičnicu kao i uređaj kod kojeg se
javljaju smetnje, uključite opremu u drugu utičnicu.
3. Odmaknite opremu od uređaja kod kojeg se javljaju smetnje.
4. Promijenite položaj antene uređaja kod kojeg se javljaju smetnje.
5. Isprobajte kombinacije gore navedenih rješenja.
Prikaz proizvoda
O P A S N O S T
Kemijska ili biološka opasnost. Koristi li se ovaj instrument za praćenje
postupka liječenja i/ili sustava kemijskog punjenja za koji postoje
zakonska ograničenja i zahtjevi nadzora povezani s javnim
zdravstvom, javnom sigurnosti, proizvodnjom ili obradom hrane ili pića,
odgovornost je korisnika ovog instrumenta da poznaje i pridržava se
primjenjivih propisa i ima dovoljno odgovarajućih mehanizama za
sukladnost s primjenjivim propisima u slučaju kvara instrumenta.
Analizator mjeri visok ili nizak raspon koncentracije fosfata u vodi za
napajanje i industrijskoj vodi. U mjerenju visokog raspona fosfata koristi
se metoda s molibdovanadatom. U mjerenju niskog raspona fosfata
1 Gornja i donja vrata 5 Zaslon i tipkovnica 9 Ploča analitike
mjeri se niski raspon ortofosfata i koristi se metoda s askorbinskom
2 Poklopac lijevka 6 Utor za SD karticu 10 Ladica bočice
*
kiselinom. Obje su metode preuzete iz standardnih metoda.
reagensa
Pogledajte Slika 1 za prikaz analizator. Vrata se jednostavno mogu
3 Lijevak ulaza za
7 Strujni prekidač 11 Poklopac
ukloniti za bolji pristup. Pogledajte Slika 2.
ručno prikupljanje
kolorimetra
uzorka
4 Svjetlo indikatora
8 LED dioda napajanja
12 Ventil za ručno
statusa
(uključeno =
prikupljanje uzorka
analizator je uključen)
*
Standard Methods for the Examination of Water and Wastewater (Standardne metode ispitivanja vode i otpadnih voda), 21. izdanje, 2005.,
Centennial Edition, APHA, AWWA, WEF. Nizak raspon: 4-153, 4500-P E. Metoda askorbinske kiseline. Visok raspon: 4-151, 4500-P C.
Kolorimetrijska metoda vanadij-molibden-fosforne kiseline.
Hrvatski 349

Slika 2 Uklanjanje vrata
U P O Z O R E N J E
Opasnost od ozljede. Instrumenti ili dijelovi su teški. Za postavljanje i
pomicanje koristite pomoć.
U P O Z O R E N J E
Opasnost od ozljede. Objekt je težak. Za siguran rad instrument mora
biti sigurno pričvršćen na zid, stol ili pod.
Analizator postavite u zatvorenom prostoru u području bez opasnosti.
Upute potražite u dokumentaciji isporučenoj uz hardver za montiranje.
Cijevi
O P A S N O S T
Opasnost od požara. Proizvod nije namijenjen korištenju sa zapaljivim
tekućinama.
O B A V I J E S T
Ne postavljajte reagens dok postavljanje cijevi nije dovršeno.
Ugradnja
Provjerite koristite li odgovarajuću veličinu cijevi.
U P O Z O R E N J E
Priključci pristupa cijevima
Višestruka opasnost. Zadatke opisane u ovom odjeljku priručnika
Povezivanje cijevi izvršite preko priključka pristupa cijevima. Pogledajte
treba obavljati isključivo kvalificirano osoblje.
prikaz Slika 3 ili Slika 4. Za održavanje klase kućišta, provjerite jesu li
utikači postavljeni u priključke cijevi koje se ne koriste.
Koristite li vanjski pročistač zraka, za uklanjanje filtra ventilatora i
Mehaničko instaliranje
zamjenu s čepom pogledajte upute isporučene s kompletom pročistača
zraka. Upute o omogućavanju pročišćavanja zraka potražite u priručniku
O P A S N O S T
za rad. Broj dijela kompleta pročistača zraka pogledajte u priručniku za
održavanje i rješavanje problema.
Opasnost od ozljeda ili smrti. Osigurajte da zidni nosač može držati
4 puta veću težinu od opreme.
350
Hrvatski

Slika 3 Priključci za jedan ili dva toka uzorka
Slika 4 Priključci za četiri toka uzorka
1 Nije korišteno 5 Zaobilazni odvod
9 Ulaz za uzorak 1
uzorka 2
2 Zaobilazni odvod
6 Zaobilazni odvod
10 Ulaz za uzorak 2
1 Ventil odvoda - držite
4 Ulaz pročistača zraka
7 Odvod kućišta za
uzorka 4
uzorka 1
otvorenim
(dodatno)
prolijevanje ili
istjecanje
3 Zaobilazni odvod
7 Kemijski odvod 11 Ulaz za uzorak 3
uzorka 3
2 Nije korišteno 5 Zaobilazni odvod
8 Ulaz za uzorak 1
uzorka 1
4 Ulaz pročistača zraka
8 Odvod kućišta za
12 Ulaz za uzorak 4
(dodatno)
prolijevanje ili
3 Samo za analizatore
6 Kemijski odvod 9 Samo za analizatore
istjecanje
s dva toka uzorka:
s dva toka uzorka:
zaobilazni odvod
ulaz uzorka 2
Postavljanje cjevčica uzorka i odvoda
uzorka 2
O P R E Z
Opasnost od eksplozije. Koristite isključivo regulator koji je isporučio
proizvođač.
O P R E Z
Opasnost od izlaganja kemikalijama. Kemikalije i otpad odlažite
sukladno lokalnim, regionalnim i državnim propisima.
Hrvatski 351

O B A V I J E S T
Slika 5 Cjevčice uzorka i odvoda
Ne spajajte cjevčice odvoda na druge cjevčice jer bi moglo doći do protutlaka i
oštećenja analizator. Provjerite jesu li cjevčice odvoda otvorene prema zraku.
O B A V I J E S T
Kako biste spriječili protutlak i oštećenje analizator, provjerite je li analizator na
višem položaju od korištenog odvoda postrojenja te ima li cjevčica odvoda stalan
nagib prema dolje.
O B A V I J E S T
Regulator tlaka postavljen je na fiksni tlak i ne može se mijenjati.
Koristite dostavljene cijevi (6 mm), Y cjedilo s filtrom i regulator tlaka za
postavljanje odvoda i uzorka na analizator. Pogledajte Slika 5. Cjevčice
uzorka koje idu u priključke za pristup cijevima moraju biti promjera
6 mm. Cijevi od 1/4 in. mogu se koristiti za cjevčicu uzorka do ventila/y
cjedila, ali ne u priključcima za pristup cijevi analizatora.
1 Ulaz uzorka (jedan
4 Regulator tlaka koji
7 Odvod kućišta
tok)
se ne može podesiti
(postavljeno na 4 psi
za zaštitu analizatora)
2 Zaporni ventil 5 Zaobilazni odvod
uzorka
3 Y cjedilo s filtrom 6 Kemijski odvod
Smjernice za korištenje cijevi za izuzimanje uzorka
Za najbolju izvedbu instrumenta odaberite prikladnu, reprezentativnu
točku uzorkovanja. Uzorak mora biti reprezentativan za cijeli sustav.
Kako biste spriječili neujednačena očitanja:
352
Hrvatski

• Uzorke izuzmite s lokacija koje su dostatno udaljene od točaka
Protok zaobilazne cjevčice možete podesiti kada je analizatorisključen.
kemijskih dodataka u struji koja se obrađuje.
Podesite brzinu protoka zaobilazne cjevčice uzorka pomoću ventila za
• Pobrinite se da su uzorci ravnomjerno promiješani.
kontrolu protoka kako je prikazano na Slika 7 ili Slika 8. Raspon brzine
protoka uzorka potražite pod Specifikacije na stranici 346. Koristite
• Provjerite jesu li sve kemijske reakcije dovršene.
vanjski mjerač za mjerenje brzine protoka zaobilazne cjevčice uzorka.
Priključivanje toka uzorka
Povećajte brzinu protoka zaobilazne cjevčice uzorka kada je procesni
tok daleko od analizator za brži odgovor na promjene u procesnom toku.
Postavite svaku cjevčicu uzorka u središte veće procesne cijevi kako
biste smetnje zračnih mjehurića ili sedimenta s dna sveli na najmanju
Slika 7 Podešavanje brzine protoka zaobilazne cjevčice - jedan
moguću mjeru. Slika 6 prikazuje primjere dobrog i lošeg postavljanja.
tok
Neka cjevčice uzoraka budu što kraće kako bi se spriječilo akumuliranje
sedimenta s dna. Sediment može apsorbirati neke analite iz uzorka i
uzrokovati niska očitanja. Sediment kasnije može otpustiti analit i
prouzročiti visoka očitanja. Ova izmjena sa sedimentom može uzrokovati
i odgodu odgovora kada se koncentracija analita u uzorku povećava ili
smanjuje.
Slika 6 Metode uzorkovanja
1 Zrak 2 Protok uzorka
Postavljanje brzine protoka zaobilazne cjevčice
O B A V I J E S T
Nemojte olabaviti vijak za više od 4 okreta za višestruki tok.
Hrvatski 353

Slika 8 Podešavanje brzine protoka zaobilazne cjevčice - više
O P A S N O S T
tokova
Opasnost od strujnog udara. Napajanje izmjeničnom strujom ne
priključujte izravno na instrument napajan istosmjernom strujom.
O P A S N O S T
Opasnost od strujnog udara. Ako se ova oprema koristi na otvorenom
ili na potencijalno mokrim lokacijama, za priključivanje uređaja na
napajanje mora se koristiti zemljospojni prekidač.
O P A S N O S T
Opasnost od strujnog udara. Potrebno je zaštitno uzemljenje (PE).
O P A S N O S T
Opasnost od strujnog udara. Koristite samo spojnice koje imaju
oznaku posebnog ekološkog kućišta. Pridržavajte se zahtjeva iz
odjeljka Specifikacije.
U P O Z O R E N J E
Opasnost od strujnog udara. Vanjska priključena oprema mora imati
primjenjive standardne ocjene za sigurnost.
U P O Z O R E N J E
Električna instalacija
Opasnost od udara električne struje i požara. Za montažu vodova
potrebno je lokalno isključivanje struje.
O P A S N O S T
Opasnost od strujnog udara. Koristite visoki napon (veći od 30 V RMS
i 42,2 V vršni ili 60 V istosmjerne struje) ili niski napon (manji od 30 V
U P O Z O R E N J E
RMS i 42,2 V vršni ili 60 V istosmjerne struje). Nemojte kombinirati
visoki napon s niskim naponom.
Opasnost od udara električne struje i požara. Jasno označite lokalno
isključivanje struje u svrhu montaže vodova.
O P A S N O S T
Opasnost od strujnog udara. Prije priključivanja strujnih kabela uvijek
isključite napajanje uređaja.
354 Hrvatski

U P O Z O R E N J E
Uklanjanje poklopca za pristup
Skinite poklopac za pristup kako biste priključili terminale ožičenja.
Opasnost od udara električne struje i požara. Za uređaj priključen
kabelom, pobrinite se da uređaj montirate tako da se kabel lako može
Pogledajte Slika 10.
iskopčati iz utičnice.
Slika 10 Uklanjanje poklopca za pristup
O B A V I J E S T
Pobrinite se da je oprema priključena na uređaj sukladno lokalnim, regionalnim i
državnim zahtjevima.
Uklanjanje čepova pristupa
Kabele i cjevovod postavite u električne pristupne priključke. Pogledajte
Slika 9. Uklonite gumene brtvene čepove tako da ih gurnete iz
unutrašnjosti kućišta kako bi se otključali i zatim ih u potpunosti uklonite
povlačenjem prema van. Prema potrebi uklonite čepove s ploče za
električni pristup pomoću čekića i odvijača. Kako biste održali klasu
kućišta, stavite poklopac na sve priključke koji se ne koriste.
Slika 9 Ulazi za pristup električnoj struji
Pregled priključaka ožičenja
Slika 11 prikazuje sve moguće priključke ožičenja. Pobrinite se da
koristite veličinu žice koja je specificirana za priključivanje
(pogledajteSpecifikacije na stranici 346).
1 Ulaz napajanja (samo kabel
3 Komunikacijski i mrežni moduli (8x)
napajanja), bez uzemljenja.
Nemojte koristiti za cjevovod.
2 Komunikacijski i mrežni moduli (3x) 4 Ulaz ili izlaz napajanja (cjevovod ili
kabel napajanja), uzemljenje,
komunikacijski i mrežni moduli (8x)
Hrvatski
355

Slika 11 Priključci na glavnoj ploči sklopa
Priključivanje napajanja
U P O Z O R E N J E
Opasnost od strujnog udara. Na uzemljenju upotrijebite žicu s
prstenastim završetkom.
U P O Z O R E N J E
Opasnost od udara električne struje i požara. Pobrinite se da su isporučeni kabel
i utikač sukladni odgovarajućim državnim standardima.
U P O Z O R E N J E
Opasnost od strujnog udara. Uzemljenje mora imati vezu s niskom
impedancom, manje od 0,1 oma. Priključeni žičani vodič mora imati
istu nazivnu struju kao i glavni vodič izmjenične struje.
O B A V I J E S T
Instrument se koristi samo za jednofazni priključak.
Postavljanje kabela: Proizvođač preporučuje uporabu dodatnog kabela
i brtve. Popis zamjenskih dijelova potražite u priručniku za održavanje.
Za kabel korisnika potrebna su tri električna vodiča veličine 18, a kabel
mora biti kraći od 3 metra (10 stopa). Koristite brtvenu kabelsku
uvodnicu za održavanje ekoloških karakteristika instrumenta. Pogledajte
Specifikacije na stranici 346. Za priključivanje napajanja na uređaj
1 Priključivanje
4 Digitalni ulazi 7 Izlaz napajanja
pogledajte Tablica 3 ili Tablica 4 i Slika 12.
dvostrukog monitora
2 Priključivanje
5 Ulaz napajanja 8 LED dioda izlaza
pametne sonde
napajanja (uključeno
= napajanje
analizatora je
uključeno)
3 Izlazi od 4-20 mA 6 LED dioda napajanja i
9 Releji
prekidač (uključeno =
analizator je uključen)
356 Hrvatski

Tablica 3 Podaci o ožičenju za izmjeničnu struju (samo modeli s
Slika 12 Napajanje
izmjeničnim napajanjem)
Terminal Opis Boja – Sjeverna
Boja – EU
Amerika
1 Uzemljenje (PE) Zelena Zelena s žutim
trakama
2 Neutralna (N) Bijela Plava
3 Pod naponom (L1) Crna Smeđa
Tablica 4 Podaci o ožičenju za izmjenično napajanje (samo
izmjenično napajani modeli)
Terminal Opis Boja – Sjeverna
Boja – EU
Amerika
1 Uzemljenje (PE) Zelena Zelena sa žutom
prugom
2 24 V DC, povratni (–) Crna Crna
3 24 V DC (+) Crvena Crvena
Hrvatski 357

Priključivanje dvostrukog monitora
Slika 13 Priključivanje uređaja
Vanjski sc upravljač može se priključiti na analizator. Hach kabel
6789400 priključite na vanjski sc upravljač i priključak dvostrukog
monitora na analizatoru. Pogledajte Pregled priključaka ožičenja
na stranici 355.
Priključivanje dodatnih uređaja
Kabele za izlazne ili ulazne uređaje postavite kako je prikazano na
Slika 13. Pobrinite se da koristite veličinu žice koja je specificirana za
priključivanje. Pogledajte Specifikacije na stranici 346. Za konfiguriranje
uređaja pogledajte priručnik za rad.
358 Hrvatski

Priključivanje na releje
Napomena: Izlazi od 4-20 mA ne mogu se koristiti za 2-žične prijenosnike
(napajane kroz petlju signala).
O P A S N O S T
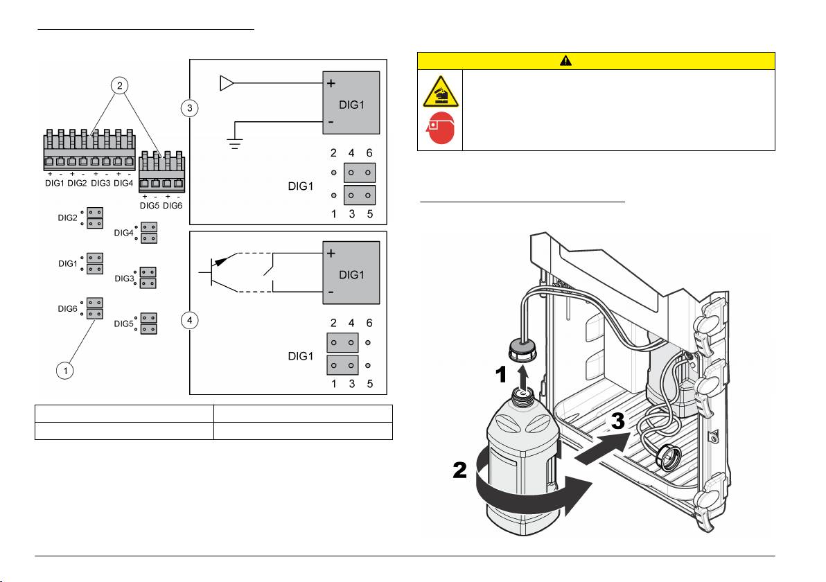
Priključivanje na digitalne ulaze
Opasnost od strujnog udara. Ne miješajte visoki i niski napon. Svi releji
moraju biti ili visokonaponske izmjenične struje i niskonaponske
Analizator može primiti digitalni signal iz vanjskog uređaja poput mjerača
jednosmjerne struje.
protoka radi zaustavljanja mjerenja kada se zaustavi protok. Svaki
diskretni ulaz koristi se za omogućavanje/onemogućavanje
O P R E Z
odgovarajućeg kanala uzorka.
Svaki digitalni ulaz može se konfigurirati kao izolirani digitalni ulaz vrste
Opasnost od požara. Opterećenja releja moraju biti otporna. Uvijek
ograničite struju na relej s vanjskim osiguračem ili prekidačem.
TTL ili kao ulaz vrste relej/otvoreni kolektor. Pogledajte Slika 14. Prema
Pridržavajte se oznaka releja iz odjeljka Specifikacije.
zadanim postavkama, kratkospojnici su postavljeni za digitalni ulaz vrste
izolirani TTL. Za priključivanje uređaja pogledajte odjeljak Pregled
O P R E Z
priključaka ožičenja na stranici 355.
Opasnost od izlaganja kemikalijama. Poštujte laboratorijske
sigurnosne propise i opremite se svom odgovarajućom osobnom
zaštitnom opremom s obzirom na kemikalije kojima ćete rukovati.
Sigurnosne protokole potražite na trenutno važećim sigurnosno
tehničkim listovima materijala (MSDS/SDS).
O B A V I J E S T
Ne preporuča se obujam žice manji od 18 AWG.
analizator sadrži releje za alarme koncentracije uzorka (2x), upozorenje
sustava analizatora i isključivanje sustava analizatora. Pogledajte
odjeljak Pregled priključaka ožičenja na stranici 355 za priključivanje
uređaja (NO = normalno otvoreno, COM = uobičajeno, NC = normalno
zatvoreno)
Priključivanje na izlaze od 4-20 mA
Koristite žicu s oklopljenom uvijenom paricom za priključke izlaza od
4-20 mA. Zaštitu priključite na kraj snimača ili na kraj analizatora. Zaštitu
nemojte povezivati na obje strane kabela. Korištenje nezaštićenog
kabela može dovesti do emisije radio frekvencija ili razina smetnji može
postati viša no što je to dozvoljeno.
Za priključivanje uređaja pogledajte odjeljak Pregled priključaka ožičenja
na stranici 355. Za specifikacije o ožičenju i mjerenju impedancije
pogledajte odjeljak Specifikacije na stranici 346.
Hrvatski 359

Slika 14 Digitalni ulaz vrste izolirani TTL
Postavljanje boca analizatora
O P R E Z
Opasnost od izlaganja kemikalijama. Poštujte laboratorijske
sigurnosne propise i opremite se svom odgovarajućom osobnom
zaštitnom opremom s obzirom na kemikalije kojima ćete rukovati.
Sigurnosne protokole potražite na trenutno važećim sigurnosno
tehničkim listovima materijala (MSDS/SDS).
Pogledajte prikaz Slika 15 za postavljanje boca analizator. Identificirajte
sve boce i stavite primjenjivi čep na primjenjivu bocu.
Slika 15 Postavljanje boce analizatora
1 Kratkospojnik (12x) 3 Digitalni ulaz vrste izolirani TTL
2 Priključci digitalnog ulaza 4 Ulaz vrste relej/otvoreni kolektor
Postavljanje dodatnih modula
Moduli se mogu dodati za dodatne opcije izlaza, releja ili komunikacije.
Upute potražite u dokumentaciji isporučenoj uz modul.
360 Hrvatski

