Hach-Lange High Output Airblast System (HOAB) – страница 2
Инструкция к Hach-Lange High Output Airblast System (HOAB)

Abbildung 1 Produktkomponenten
1 Gehäuse 8 Sicherungsscheibe
2 Spannungsbarriere (sc100) 9 Sechskantschraubbolzen mit Schlitz
3 Schraube zum Niederhalten der Barriere 10 Sechskantmutter
4 Spannungsbarriere (sc200) 11 Halterung
5 Aufhänger, Wandmontage 12 Halterung
6 Senkschraube mit Schlitz 13 Durchgehende Stützstrebe
7 Flachkopfschraube mit Schlitz
Installation
G E F A H R
Mehrere Gefahren. Nur qualifiziertes Personal sollte die in diesem Kapitel des Dokuments
beschriebenen Aufgaben durchführen.
Deutsch 21

Montage des Geräts
H I N W E I S
Wenn das Gerät in einem Bereich mit direkter Sonneneinstrahlung installiert wird, kann die Betriebstemperatur
den angegebenen Höchstwert überschreiten. In dem Fall startet der Kompressor nicht. Das Gerät ist an einem
Standort innerhalb oder außerhalb eines Gebäudes zu installieren, der nicht dem direkten Sonnenlicht ausgesetzt
ist.
1. Installieren Sie das Gerät in der Nähe des installierten Sensors (Abbildung 5). Die
Zuluftschläuche sollten höchstens 7.6 m (25 Fuß) lang sein. Dadurch erreichen Sie eine
gleichbleibende Kapazität des Systems, und die Reaktionszeit für die Luftführung bleibt erhalten.
2. Montieren Sie das Gerät an einem Ort, an dem die Umgebungstemperatur innerhalb der
Temperaturgrenzen des Geräts bleibt. Siehe Technische Daten auf Seite 18.
3. Verwenden Sie die für die Anwendung geeignete Montagemethode, und bringen Sie die
Beschlagteile an (Abbildung 3 und Abbildung 4).
4. Installieren Sie das Gerät an einem Standort und in einer Position, wo es zum
Abschalten/Abklemmen gut zugänglich ist.
5. Verbinden Sie das Gerät mit einem Steuergerät (Abbildung 5). Informationen zum Verbinden des
Sensors finden Sie in der Dokumentation zum Sensor.
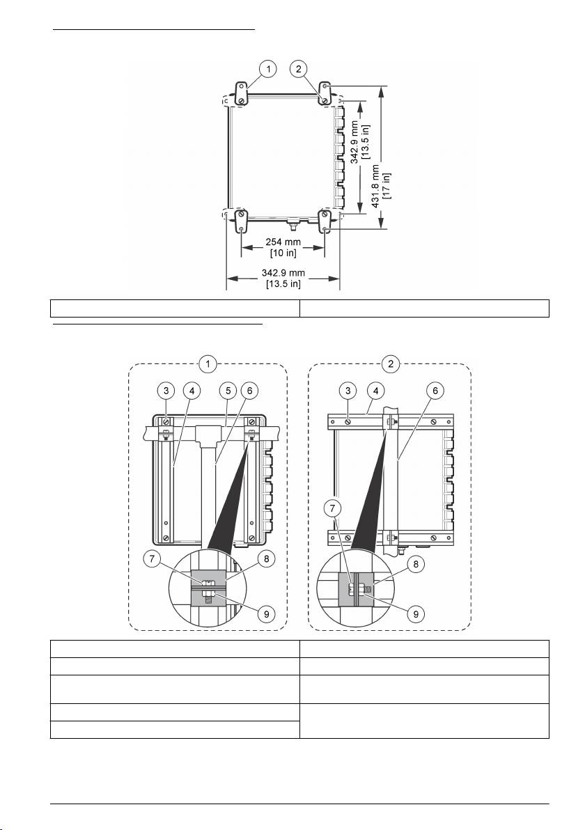
Abbildung 2 Gehäuseabmessungen
22 Deutsch

Abbildung 3 Wandmontage-Option
1 Aufhänger, Wandmontage (4x) 2 Senkschraube mit Schlitz (4x)
Abbildung 4 Rohrmontage-Optionen
1 Horizontale Rohrmontage-Option 6 Rohr, vertikal
2 Vertikale Rohrmontage-Option 7 Sechskantschraubbolzen mit Schlitz (4x)
3 Flachkopfschraube mit Schlitz (4x),
8 Halterungen für 1½- bzw. 2 Zoll-Rohr (4x)
Sicherungsscheibe (4x)
4 Durchgehende Stützstrebe (2 Stück) 9 Sechskantmutter (4x)
5 Rohr, horizontal
Deutsch 23

Abbildung 5 Typische Montagekonfiguration
1 Netztrennschalter 5 Zuluftschlauch
2 Steuergerät 6 Stangenmontage
3 Sensorkabel 7 Luftstromadapter
4 Hochleistungs-Blasluftsystem
Elektrische Anschlüsse
G E F A H R
Lebensgefahr durch Stromschlag. Trennen Sie das Gerät immer von der Spannungsversorgung, bevor
Sie elektrische Anschlüsse herstellen.
G E F A H R
Lebensgefahr durch Stromschlag. Es ist eine Schutzerdung erforderlich.
Verwenden Sie stets Drähte und Verdrahtungsmethoden, die den örtlichen und nationalen
elektrischen Normen entsprechen bzw. diese übertreffen. Verwenden Sie starre
Elektroinstallationsrohre, wasserfeste flexible Kabelrohre oder flexible Kabel für elektrische
Anschlüsse, die von den örtlichen elektrischen Normen zugelassen sind.
Ein Netzkabel von weniger als 3 Meter (10 Fuß) Länge kann verwendet werden, wenn:
• alle örtlichen und nationalen elektrischen Normen eingehalten werden
•
es drei 18-Gauge-Leiter aufweist (einschließlich einer Erdungsleitung)
• es eine abdichtende Zugentlastung aufweist, um die Schutzart NEMA beizubehalten
Für den Netzanschluss ist in jedem Fall der Standard-Dreileiteranschluss zu verwenden. Die
Leitungsenden sind mit Kabelschuhen zu versehen und wie in Abbildung 6 auf Seite 27 und
Abbildung 7 auf Seite 28 gezeigt anzuschließen.
Achten Sie darauf, dass es sich bei den Strom- und Erdungsversorgungsleitungen um Drähte mit
18 bis 12 AWG (1,0 bis 4,0 mm²) und einer Isolierung handelt, die für angelegte Spannungen
24 Deutsch

geeignet ist. Verwenden Sie nur Drähte mit einem Leitungsquerschnitt von mindestens 18 AWG
(1,0 mm²).
Wenn die Versorgungsleitungen sich in einem Kabelführungsrohr oder einem flexiblen Kabelkanal
befinden, müssen sie mit einer vom Anwender bereitgestellten, zweckbestimmten lokalen
Trenneinrichtung verbunden sein. Die zweckbestimmte lokale Trenneinrichtung muss:
• sich in der Nähe der installierten Ausrüstung befinden
•
alle örtlichen elektrischen Normen erfüllen
• als Unterbrechungsvorrichtung für das Gerät identifiziert werden
Ein Beispiel für eine empfohlene lokale Trenneinrichtung finden Sie in Abbildung 5 auf Seite 24.
Durch eine Verbindung des Kabelführungsrohrs mit dem Gerätegehäuse wird nicht automatisch eine
Erdung erreicht. Achten Sie darauf, dass das metallische Elektroninstallationsrohr geerdet ist.
Um Schäden an Gehäusedichtungen zu verhindern, müssen bei Ausrüstungsgegenständen, die an
vertikalen oder horizontalen Rohren angebracht sind, wasserfeste flexible Kabelrohre oder flexible
Kabel verwendet werden, die für den Standort ausgelegt sind.
Verdrahtungsanleitung
Führen Sie die Drähte bis zur Isolierung in die Anschlussstellen ein, sodass kein blanker Draht mehr
sichtbar ist. Ziehen Sie nach der Installation sachte an jedem Draht, um sich zu vergewissern, dass
er sicher sitzt.
Verwenden Sie NEMA/IP-zertifizierte Kabelführungs-Anschlussstücke oder Zugentlastungen, um die
Schutzart zu erhalten.
Bei der Verdrahtung des Steuergeräts werden 22 bis 18 AWG-Drähte verwendet (0,32 bis
0,82 mm²). Verwenden Sie keine Drähte mit weniger als 22 AWG (0,32 mm²).
Installieren Sie die Spannungsbarriere des sc-Steuergeräts, wenn die 24 Vrms-
Steuerstromverdrahtung des Geräts angeschlossen ist. Siehe Installieren der Spannungsbarriere
auf Seite 30.
Verwenden Sie im sc-Steuergerät entweder nur Hochspannung oder nur Niederspannung. Wenn das
sc-Steuergerät zusammen mit diesem Gerät verwendet wird, verwenden Sie im Anschlussraum des
sc-Steuergeräts hinter der Spannungsbarriere ausschließlich Niederspannung (weniger als 30 Vrms
oder 60 V DC).
Einzelheiten zu Relaisanschlüssen finden Sie in der Anleitung zum Steuergerät, und Einzelheiten zu
Anschlüssen finden Sie in Abbildung 6 auf Seite 27 und Abbildung 7 auf Seite 28. Die
verbleibenden Absperrungen und Abdeckungen sind entsprechend den Anweisungen in der
Steuergeräte-Bedienungsanleitung zu installieren.
Anschließen der Drähte an das Steuergerät
G E F A H R
Lebensgefahr durch Stromschlag. Trennen Sie jegliche Stromzufuhr von dem Instrument und den
Relaisverbindungen, bevor Sie mit dieser Wartungsaufgabe beginnen.
1. Achten Sie darauf, dass das Steuergerät vom Netz getrennt ist.
2. Öffnen Sie das Steuergerät. Siehe Installieren der Spannungsbarriere auf Seite 30
.
3. Verbinden Sie den Draht vom COM-Relais (common; gemeinsam) des Geräts mit dem COM-
Relais des Steuergeräts.
4. Verbinden Sie den Draht vom Relais N/O (Schließer) mit dem Relais N/O des Steuergeräts.
5. Stellen Sie die restlichen Verdrahtungen her. Siehe Anschließen der Drähte am Gerät
auf Seite 26.
6. Die Netzleitungen müssen sich auf der rechten Seite der Abstandsisolation befinden.
Deutsch 25

7. Installieren Sie die Spannungsbarriere des Steuergeräts. Siehe Installieren der
Spannungsbarriere auf Seite 30.
8. Schließen Sie die Gehäuseabdeckung. Ziehen Sie die Schrauben der Abdeckung fest, um das
Gehäuse abzudichten. Die Gehäuseabdeckung muss installiert sein, um die Gehäuseschutzart
zu erhalten.
Anschließen der Drähte am Gerät
G E F A H R
Lebensgefahr durch Stromschlag. Trennen Sie das Gerät immer von der Spannungsversorgung, bevor
Sie elektrische Anschlüsse herstellen.
Siehe Tabelle 1, Abbildung 6, Abbildung 7 und Abbildung 8.
1. Lösen Sie die drei Schrauben der durchsichtigen Abdeckung und entfernen Sie diese.
2. Verbinden Sie den Draht vom COM-Relais des Geräts mit dem COM-Relais des Steuergeräts.
3. Verbinden Sie den Draht vom Relais N/O (Schließer) mit dem Relais N/O des Steuergeräts.
4. Verbinden Sie den Erdungsleiter mit dem Anschluss mit dem Erdungssymbol.
5. Verbinden Sie den Null-Leiter mit dem Anschluss NEUT.
6. Verbinden Sie den Phasenleiter mit dem Anschluss PHASE.
7. Bringen Sie die durchsichtige Abdeckung wieder an.
8. Schließen Sie die Gehäuseabdeckung. Ziehen Sie die Schrauben der Abdeckung fest, um die
Gehäuseschutzart zu erhalten. Achten Sie auf gute Abdichtung.
9. Schalten Sie das Gerät und das Steuergerät ein.
Tabelle 1 Drähte für Stromanschluss
Beschreibung Farbcode der Kabel – Nordamerika Farbcode der Kabel – Europa
Leitung (PHASE) Schwarz Braun
Neutral (NEUT) Weiß Blau
Schutzerde (Erdungssymbol) Grün grün-gelb
26 Deutsch

Abbildung 6 Schaltplan für 115 V
Deutsch 27

Abbildung 7 Schaltplan für 230 V
28 Deutsch

Abbildung 8 Verdrahtung mit lokalem Trennschalter
1 Beschriftung, Verdrahtung 6 Zugentlastung/Kabelführungsrohr (Netz)
2 Schutzabdeckung 7 Zugentlastung/Kabelführungsrohr
(Relaisverdrahtung)
3 Sicherungen (3x) 8 Zuluft
4 Netzanschlussklemmen 9 Relais N/O
5 Relais-Anschlussklemmen 10 Relais COM
Deutsch 29

Installieren der Spannungsbarriere
Siehe die folgenden bebilderten Schritte.
30 Deutsch

Anschließen des Luftzufuhrschlauchs und des Sensors
Bringen Sie den Luftzufuhrschlauch an dem Anschlussstutzen unten am Gerätegehäuse an
(Abbildung 8 auf Seite 29, Position 8). Weitere Informationen zur Sensorinstallation finden Sie in der
Dokumentation zum Druckluftadapter, zum Schlauchsatz und zum Sensor.
Inbetriebnahme
H I N W E I S
Der thermische Schutzschalter kann öffnen, wenn der EIN-Zyklus der Pumpe 60 Sekunden überschreitet oder der
AUS-Zyklus der Pumpe 15 Minuten unterschreitet. Die für das Gerät angegebene Einschaltdauer darf nicht
überschritten werden.
1. Schalten Sie das Steuergerät ein.
2. Wählen Sie im Menü „System Setup“ (Systemeinrichtung) den Menüpunkt „Relays“ (Relais) aus.
Legen Sie für die Dauer 60 Sekunden oder weniger fest. Stellen Sie für das Intervall 15 Minuten
oder länger ein. Weitere Informationen finden Sie im Benutzerhandbuch des Steuergeräts.
3. Schalten Sie das Steuergerät aus.
4. Schalten Sie nach der Installation das Gerät ein.
5. Schalten Sie das Steuergerät ein.
Wartung
G E F A H R
Mehrere Gefahren. Nur qualifiziertes Personal sollte die in diesem Kapitel des Dokuments
beschriebenen Aufgaben durchführen.
Reinigen des Gehäuses
H I N W E I S
Verwenden Sie niemals Lösungsmittel zum Reinigen des Gehäuses.
1. Wischen Sie die Außenseite bei geschlossenem Gehäuse mit einem feuchten Lappen ab.
2. Der Lufteinlass am Kompressor ist regelmäßig zu überprüfen, um eine Verstopfung
auszuschließen. Durch einen verstopften Lufteinlass kann die Lebensdauer des Kompressors
verringert und die Sensorreinigungsleistung herabgesetzt werden.
Auswechseln der Sicherungen
G E F A H R
Lebensgefahr durch Stromschlag. Trennen Sie jegliche Stromzufuhr von dem Instrument und der
Steuerung, bevor Sie mit dieser Wartungsaufgabe beginnen.
G E F A H R
Brandgefahr. Ersetzen Sie Sicherungen mit dem gleichem Typ und Nennstrom.
1. Trennen Sie jeglichen Strom vom Gerät und vom Steuergerät.
2. Lösen Sie die Schrauben von der vorderen Abdeckung und öffnen Sie diese.
3. Entfernen Sie die drei Schrauben von der durchsichtigen Abdeckung und entfernen Sie diese
(Abbildung 9).
Deutsch 31

4. Untersuchen Sie die Sicherungen. Tauschen Sie durchgebrannte Sicherungen gegen neue
Sicherungen aus. In den Technische Daten auf Seite 18 finden Sie weitere Informationen
bezüglich der Anforderungen an Sicherungen.
5. Befestigen Sie die durchsichtige Abdeckung wieder mit den drei Schrauben.
Abbildung 9 Austausch von Sicherungen
1 Schutzabdeckung 3 Sicherung Eingang (2 Stück)
2 Netzschalter 4 Sicherung des Steuergerät-Relais
Fehlerbehebung
Problem Mögliche Ursache Lösung
Der Kompressor ist in Betrieb,
Die Luftschläuche sind
Untersuchen Sie die Luftschläuche auf Knicke
aber es kommt keine Luft aus
eingeklemmt oder
und/oder eingeklemmte Bereiche. Reparieren oder
dem Gerät.
beschädigt.
ersetzen Sie die Luftschläuche bei Bedarf.
Die Luftschläuche sind
Untersuchen Sie die Luftschläuche auf
verstopft.
Verstopfungen. Reinigen oder ersetzen Sie die
Luftschläuche bei Bedarf.
Der Kompressor funktioniert
Eine Sicherung ist
Untersuchen Sie die Verdrahtung, um zu sehen,
nicht.
durchgebrannt.
ob das Problem dort liegt. Falls nicht, ersetzen Sie
alle defekten Sicherungen. Siehe Auswechseln der
Sicherungen auf Seite 31.
Der Kompressor arbeitet nicht
Es gibt ein Problem mit
Achten Sie darauf, dass das Steuergerät richtig
planmäßig.
dem Steuergerät.
programmiert ist. Achten Sie darauf, dass das
Steuergerät richtig funktioniert.
Ersatzteile
Hinweis: Produkt- und Artikelnummern können für einige Verkaufsgebiete abweichen. Wenden Sie sich an den
zuständigen Distributor oder schlagen Sie die Kontaktinformationen auf der Webseite des Unternehmens nach.
Beschreibung Bestellnr.
Sicherung, 5 A, 250 V träge (230 V-Modell) 4693800
Sicherung, 8 A, 250 V träge (115 V-Modell) 6172000
32 Deutsch

Beschreibung Bestellnr.
Sicherung, 0,25 A, 250 V träge (115/230 V-Modelle) 5966073
Montagesatz (einschließlich Profilschienen, Schrauben, Unterlegscheiben,
6864900
Beschriftung, Schellen)
Luftstromschlauch-Montagesatz (mit Schnellverschluss, Kabelbindern, Rohren,
9257800
Schlauchschelle, Kabel)
Luftstrom-Beschlagteilesatz (mit Kabelbinder, Schlauchpaket, Scheibenkopfsatz,
9257700
Endkappe, Kabel)
Deutsch 33

Sommario
Dati tecnici a pagina 34 Manutenzione a pagina 47
Informazioni generali a pagina 34 Risoluzione dei problemi a pagina 48
Installazione a pagina 37 Parti di ricambio a pagina 48
Avvio a pagina 47
Dati tecnici
I dati tecnici sono soggetti a modifica senza preavviso.
Dato tecnico Dettagli
Dimensioni (L x P x A) 351,6 x 186,9 x 409,7 mm (13,84 x 7,36 x 16,13 poll.)
Peso 11,2 kg (24,7 lb)
Pressione di uscita dell'aria
Modello 115 V: 3,10 bar (45 psi)
(sull'uscita del compressore)
Modello 230 V: 2,76 bar (40 psi)
3
Portata aria in uscita
Modello 115 V: 2,14 m
/ora (1,26 cfm)
(sull'uscita del compressore)
3
Modello 230 V: 1,77 m
/ora (1,04 cfm)
Ciclo di funzionamento max. pompa 60 secondi ogni 15 minuti
Requisiti di esercizio Da –20 a 50°C (da –4 a 122°F), 95% umidità relativa, senza condensa
Requisiti di stoccaggio Da –20 a 70°C (da –4a 158°F), 95% umidità relativa, senza condensa
Alloggiamento NEMA 4X/IP66 non metallico
Requisiti di alimentazione Modello 115 V: 115 VCA, 50/60 Hz, 7,5/4,5 A
Modello 230 V: 230 VCA, 50 Hz, 2,5 A
Fusibile di ingresso Modello 115 V: T, 8 A, 250 V
Modello 230 V: T, 5 A, 250 V
Fusibile del relè del controller T, 0,25 A, 250 V (tutti i modelli)
Grado di inquinamento 2
Categoria di installazione II
Classe di protezione I
Altitudine Max 2000 m (6560 piedi)
Dimensioni del compressore (L x P x A) 37 x 32 x 20 cm (14,5 x 12,5 x 7,8 poll.)
Peso del compressore 10,7 kg (23,5 lb)
Certificazioni UL, CSA, cETLus, CE
Garanzia 1 anno (EU: 2 anni)
Informazioni generali
In nessun caso, il produttore potrà essere ritenuto responsabile in caso di danni diretti, indiretti,
particolari, causali o consequenziali per qualsiasi difetto o omissione relativa al presente manuale. Il
produttore si riserva il diritto di apportare eventuali modifiche al presente manuale e ai prodotti ivi
descritti in qualsiasi momento senza alcuna notifica o obbligo. Le edizioni riviste sono presenti nel
sito Web del produttore.
34 Italiano

Informazioni sulla sicurezza
A V V I S O
Il produttore non sarà da ritenersi responsabile in caso di danni causati dall'applicazione errata o dall'uso errato di
questo prodotto inclusi, a puro titolo esemplificativo e non limitativo, i danni incidentali e consequenziali; inoltre
declina qualsiasi responsabilità per tali danni entro i limiti previsti dalle leggi vigenti. La responsabilità relativa
all'identificazione dei rischi critici dell'applicazione e all'installazione di meccanismi appropriati per proteggere le
attività in caso di eventuale malfunzionamento dell'apparecchiatura compete unicamente all'utilizzatore.
Prima di disimballare, installare o utilizzare l’apparecchio, si prega di leggere l’intero manuale. Si
raccomanda di leggere con attenzione e rispettare le istruzioni riguardanti possibili pericoli o note
cautelative. La non osservanza di tali indicazioni potrebbe comportare lesioni gravi dell'operatore o
danni all'apparecchio.
Assicurarsi che la protezione fornita da questa apparecchiatura non sia danneggiata. Non utilizzare o
installare questa apparecchiatura in modo diverso da quanto specificato nel presente manuale.
Utilizzo dei segnali di pericolo
P E R I C O L O
Indica una situazione di pericolo potenziale o imminente che, se non evitata, potrebbe causare lesioni gravi o la
morte.
A V V E R T E N Z A
Indica una situazione di pericolo potenziale o imminente che, se non evitata, potrebbe comportare lesioni gravi,
anche mortali.
A T T E N Z I O N E
Indica una situazione di pericolo potenziale che potrebbe comportare lesioni lievi o moderate.
A V V I S O
Indica una situazione che, se non evitata, può danneggiare lo strumento. Informazioni che richiedono particolare
attenzione da parte dell'utente.
Etichette precauzionali
Leggere tutte le etichette presenti sullo strumento. La mancata osservanza delle stesse può causare
lesioni personali o danni allo strumento. Un simbolo sullo strumento è indicato nel manuale
unitamente a una frase di avvertenza.
Tale simbolo, se apposto sullo strumento, fa riferimento al manuale delle istruzioni per il
funzionamento e/o informazioni sulla sicurezza.
Apparecchiature elettriche con apposto questo simbolo non possono essere smaltite in impianti di
smaltimento pubblici europei dopo il 12 agosto 2005. In conformità ai regolamenti europei locali e
nazionali (a norma della direttiva UE 2002/96/CE), gli utenti dovranno restituire le apparecchiature
vecchie o non più utilizzabili al produttore, il quale è tenuto a provvedere allo smaltimento gratuito.
Nota: Per la restituzione al fine del riciclaggio, si prega di contattare il produttore dell’apparecchio o il fornitore, che
dovranno indicare come restituire l’apparecchio usato.
Questo simbolo indica un rischio di scosse elettriche e/o elettrocuzione.
Questo simbolo indica la necessità di indossare occhiali protettivi.
Italiano 35

Questo simbolo indica che l'elemento contrassegnato richiede una connessione a terra di protezione.
Se lo strumento non dispone di spina di messa a terra, effettuare un collegamento di terra sul
terminale del conduttore di protezione.
Tale simbolo, se apposto sul prodotto, indica la posizione di un fusibile o di un dispositivo di
limitazione della corrente.
Certificazioni
Canadian Radio Interference-Causing Equipment Regulation, IECS-003, Class A:
Le registrazioni dei test di supporto sono disponibili presso il produttore.
Questo apparecchio digitale di Classe A soddisfa tutti i requisiti di cui agli Ordinamenti canadesi sulle
apparecchiature causanti interferenze.
Questo apparecchio digitale di Classe A soddisfa tutti i requisiti di cui agli Ordinamenti canadesi sulle
apparecchiature causanti interferenze.
FCC Parte 15, Limiti Classe "A"
Le registrazioni dei testi di supporto sono disponibili presso il produttore. Il presente dispositivo è
conforme alla Parte 15 della normativa FCC. Il funzionamento è subordinato alle seguenti condizioni:
1. L'apparecchio potrebbe non causare interferenze dannose.
2. L'apparecchio deve tollerare tutte le interferenze subite, comprese quelle causate da
funzionamenti inopportuni.
Modifiche o cambiamenti eseguiti sull’unità senza previa approvazione da parte dell'ente
responsabile della conformità potrebbero annullare il diritto di utilizzare l'apparecchio. Questo
apparecchio è stato testato ed è conforme con i limiti per un dispositivo digitale di Classe A, secondo
la Parte 15 delle normative FCC. I suddetti limiti sono stati fissati in modo da garantire una
protezione adeguata nei confronti di interferenze nocive se si utilizza l’apparecchiatura in applicazioni
commerciali. L’apparecchiatura produce, utilizza e può irradiare energia a radiofrequenza e, se non
installata e utilizzata in accordo a quanto riportato nel manuale delle istruzioni, potrebbe causare
interferenze nocive per le radiocomunicazioni. L'utilizzo di questa apparecchiatura in una zona
residenziale può provocare interferenze dannose; in tal caso, l'utente dovrà eliminare l'interferenza a
proprie spese. Per ridurre i problemi di interferenza, è possibile utilizzare le seguenti tecniche:
1. Scollegare l'apparecchio dalla sua fonte di potenza per verificare che sia la fonte dell’interferenza
o meno.
2. Se l'apparecchio è collegato alla stessa uscita del dispositivo in cui si verifica l'interferenza,
collegare l'apparecchio ad un'uscita differente.
3. Spostare l'apparecchio lontano dal dispositivo che riceve l'interferenza.
4. Posizionare nuovamente l’antenna di ricezione dell’apparecchio che riceve le interferenze.
5. Provare una combinazione dei suggerimenti sopra riportati.
Descrizione del prodotto
Questo sistema di pulizia viene utilizzato in processi in cui il sensore può sporcarsi. Questo
strumento pulisce automaticamente la superficie del sensore e rimuove melma e altre forme di
crescita biologica. Installare questo strumento in un ambiente chiuso o all'aperto, non esposto alla
luce diretta del sole.
Componenti del prodotto
Accertarsi che tutti i componenti siano stati ricevuti. Fare riferimento alla Figura 1. In caso di
componenti mancanti o danneggiati, contattare immediatamente il produttore o il rappresentante.
36 Italiano

Figura 1 Componenti del prodotto
1 Alloggiamento 8 Rondella di bloccaggio
2 Barriera di tensione (sc100) 9 Bullone, testa esagonale, a intaglio
3 Viti, fissaggio barriera di protezione 10 Dado, esagonale
4 Barriera di tensione (sc200) 11 Staffa
5 Placche, montaggio a parete 12 Staffa
6 Viti, testa piatta, a intaglio 13 Supporto Uni
7 Viti, testa bombata, a intaglio
Installazione
P E R I C O L O
Pericoli multipli. Gli interventi descritti in questa sezione del documento devono essere eseguiti solo da
personale qualificato.
Montaggio dello strumento
A V V I S O
Se lo strumento viene installato in un ambiente esposto alla luce diretta del sole, la temperatura di funzionamento
potrebbe superare il limite specificato e impedire l'avviamento del compressore. Installare lo strumento in un
ambiente chiuso o all'aperto, non esposto alla luce diretta del sole.
1. Installare lo strumento in prossimità del sensore installato (Figura 5). Non estendere le tubazioni
di erogazione dell'aria oltre i 7,6 m (25 piedi). Ciò consente di mantenere intatta la capacità del
sistema e di non ridurre il tempo di risposta per l'erogazione dell'aria.
2. Montare lo strumento in un sito in cui la temperatura ambiente non superi i limiti di temperatura
dello strumento. Fare riferimento alle Dati tecnici a pagina 34.
Italiano
37

3. Utilizzare il metodo di montaggio specifico per l'applicazione e collegare la bulloneria (Figura 3 e
Figura 4).
4. Installare il dispositivo in un ambiente e in una posizione che consenta un facile accesso
all'interruttore di disconnessione.
5. Collegare lo strumento a un controller (Figura 5). Per informazioni sul collegamento del sensore,
fare riferimento alla documentazione del sensore.
Figura 2 Dimensioni dell'alloggiamento
38 Italiano

Figura 3 Opzione montaggio a parete
1 Placche, montaggio a parete (4x) 2 Viti, testa piatta, a intaglio (4x)
Figura 4 Opzioni di montaggio su tubo
1 Opzione di montaggio su tubo orizzontale 6 Tubo, verticale
2 Opzione di montaggio su tubo verticale 7 Bullone, testa esagonale, a intaglio (4x)
3 Viti, testa bombata, a intaglio (4x), rondella di
8 Staffe per tubo da 1½ o da 2 pollici (4x)
bloccaggio (4x)
4 Supporto Uni (2x) 9 Dado, esagonale (4x)
5 Tubo, orizzontale
Italiano 39

Figura 5 Configurazione tipica di montaggio
1 Interruttore di disconnessione dell'alimentazione 5 Tubo di erogazione dell'aria
2 Controller 6 Montaggio su palo
3 Cavo del sensore 7 Adattatore del soffiatore d'aria
4 Soffiatore d'aria a elevata potenza
Collegamenti elettrici
P E R I C O L O
Pericolo di folgorazione. Quando si eseguono collegamenti elettrici, scollegare sempre l'alimentazione
dello strumento.
P E R I C O L O
Pericolo di folgorazione. È necessario predisporre la messa a terra.
Utilizzare sempre cavi e procedure di cablaggio conformi o superiori alle normative elettriche locali,
statali e nazionali. Utilizzare un condotto rigido, flessibile e impermeabile o un cavo flessibile per
connessioni elettriche conformi alle normative elettriche locali.
Un cavo di alimentazione inferiore a 3 metri (10 piedi) di lunghezza, può essere utilizzato se:
• È conforme a tutte le normative elettriche locali, statali e nazionali
•
Ha tre conduttori calibro 18 (incluso un file di terra di sicurezza)
• Ha un pressacavo sigillato per mantenere la classificazione ambientale NEMA
Per l'alimentazione utilizzare sempre un collegamento standard a tre fili. Applicare dei capocorda alle
estremità dei fili e collegare i fili come mostrato nella Figura 6 a pagina 43 e nella Figura 7
a pagina 44.
Accertarsi che il calibro dei fili di alimentazione e di messa a terra di sicurezza sia tra 18 e 12 AWG
(da 1,0 a 4,0 mm²) con isolamento adeguato alle tensioni applicate. Non utilizzare fili di dimensioni
inferiori a 18 AWG (1,0 mm²).
40 Italiano

