Hach-Lange High Output Airblast System (HOAB) – страница 6
Инструкция к Hach-Lange High Output Airblast System (HOAB)

Obr. 1 Součásti výrobku
1 Kryt 8 Pružná podložka
2 Napěťová bariéra (sc100) 9 Šroub s šestihrannou hlavou s drážkou
3 Šroub pro upevnění bariéry 10 Matice šestihranná
4 Napěťová bariéra (sc200) 11 Držák
5 Poutko pro montáž na stěnu 12 Držák
6 Šroub s plochou hlavou s drážkou 13 Výztuha Uni
7 Šroub s oblou hlavou s drážkou
Instalace
N E B E Z P E Č Í
Různá nebezpečí. Práce uvedené v tomto oddíle dokumentu smí provádět pouze dostatečně
kvalifikovaný personál.
Montáž přístroje
U P O Z O R N Ě N Í
Je-li přístroj instalován na přímé sluneční světlo, může se provozní teplota zvýšit na specifikovaný limit
a kompresor se nezapne. Přístroj instalujte ve vnitřním nebo venkovním prostředí, kde není vystaven přímému
slunečnímu záření.
1. Přístroj instalujte vedle instalovaného senzoru (Obr. 5). Hadičku přívodu vzduchu neprodlužujte
více, než na 7,6 m (25 stop). Tím zajistíte stejnou kapacitu systému a nezvýší se reakční doba
pro přívod vzduchu.
2. Přístroj instalujte na místo, kde okolní teplota nepřekročí teplotní limity přístroje. Viz Technické
údaje na straně 98.
Čeština 101

3. Použijte vhodnou metodu montáže pro aplikaci a připojte hardware (Obr. 3 a Obr. 4).
4. Instalujte zařízení v místech a polohách, které umožňují snadný přístup pro odpojení zařízení.
5. Připojte přístroj ke kontroléru (Obr. 5). Informace o připojení senzoru najdete v dokumentaci
přiložené k senzoru.
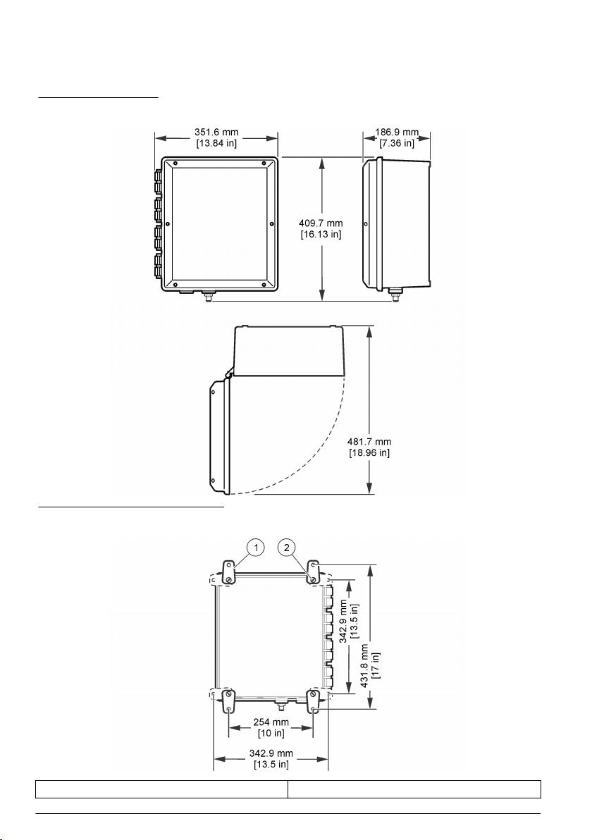
Obr. 2 Rozměry krytu
Obr. 3 Možnost montáže na stěnu
1 Poutko pro montáž na stěnu (4x) 2 Šroub s plochou hlavou s drážkou (4x)
102 Čeština

Obr. 4 Možnosti montáže na potrubí
1 Možnost montáže na horizontální potrubí 6 Vertikální potrubí
2 Možnost montáže na vertikální potrubí 7 Šroub s šestihrannou hlavou s drážkou (4x)
3 Šroub s oblou hlavou s drážkou (4x), pružná
8 Podpěra pro 1½/ nebo 2" trubku (4x)
podložka (4x)
4 Univerzální podpěra (2x) 9 Matice šestihranná (4x)
5 Horizontální potrubí
Čeština 103

Obr. 5 Typická konfigurace montáže kompresoru
1 Odpojovač napájení 5 Hadička pro přívod vzduchu
2 Kontrolér 6 Montážní stojan
3 Kabel senzoru 7 Adaptér pro vhánění vzduchu
4 Systém pro vhánění vzduchu s velkým výstupním
výkonem
Elektrické přípojky
N E B E Z P E Č Í
Nebezpečí poranění elektrickým proudem. Před jakýmikoli pracemi na elektrickém zapojení odpojte
přístroj od zdroje napájení.
N E B E Z P E Č Í
Nebezpečí poranění elektrickým proudem. Připojení k ochrannému zemnění (PE) je povinné.
Používejte vždy kabely a způsoby zapojení, které splňují minimálně lokální a národní
elektrotechnické normy. Používejte pevné vedení, voděodolné flexibilní vedení nebo flexibilní kabel
pro elektrická připojení, jak dovolují lokální elektrotechnické normy.
Napájecí kabel kratší než 3 metry (10 stop) může být použit, pokud:
• vyhovují všem lokálním a národním elektrotechnickým normám,
•
má tři vodiče o průřezu 1,0 mm² (včetně bezpečnostního zemnicího vodiče),
• má těsnicí průchodky vyhovující normě odolnosti proti vlivům prostředí NEMA.
U napájecího kabelu vždy používejte standardní třívodičové připojení. Na konce vodičů připojte
kabelové dutinky a vodiče připojte dle pokynů na Obr. 6 na straně 107 a Obr. 7 na straně 108.
Ujistěte se, že domovní přípojka napájení a uzemnění má vodiče 18 až 12 AWG (1,0 až 4,0 mm²)
s izolací relevantní pro přivedené napětí. Nepoužívejte vodiče o menším průřezu než 1,0 mm²
(18 AWG).
104 Čeština

Je-li domovní přípojka uvnitř vedení nebo flexibilního vedení, musí být připojena k uživatelskému
jednoúčelovému místnímu odpojovacímu zařízení. Jednoúčelové místní odpojovací zařízení musí:
• být poblíž instalovaného přístroje,
•
splňovat místní elektrotechnické normy,
• být identifikováno jako odpojovací zařízení pro přístroj.
Viz Obr. 5 na straně 104 jako příklad instalace doporučeného místního rozpojovacího zařízení.
Vodičové propojení okruhu ke krytu přístroje nezajišťuje automaticky uzemnění. Zkontrolujte,
že elektrické kovové vedení je uzemněné.
Aby nedošlo k poškození těsnění krytu, musí vybavení připevněné k vertikální nebo horizontální tyči
používat voděodolné flexibilní vedení nebo flexibilní kabel stanovený pro toto umístění.
Pravidla zapojení
Vložte vodiče do konektorů tak, aby izolace vedla až ke konektoru a nebyl vidět holý drát.
Po instalaci za každý vodič lehce zatáhněte, abyste si ověřili, že pevně drží.
Použijte rozbočovače vedení nebo kabelové průchodky, aby byla zajištěna odolnost proti vlivům
prostředí.
Zapojení kontroléru používá vodiče o průřezu 0,32 až 0,82 mm². Nepoužívejte vodiče o menším
průřezu než 0,32 mm².
Instalujte napěťovou bariéru kontroléru, jakmile je k přístroji připojeno kontrolní vedení 24 Vrms. Viz
Instalace napěťové bariéry na straně 110.
V kontroléru sc nepoužívejte i vysoké i nízké napětí. Je-li kontrolér používán s tímto přístrojem,
používejte v úseku vedení kontroléru sc za napěťovou bariérou pouze nízké napětí (méně než
30 Vrms nebo 60 VDC)
Podrobnosti připojení viz návod k použití kontroléru pro připojení relé a Obr. 6 na straně 107
a Obr. 7 na straně 108. Při instalaci všech zbývajících bariér a krytů postupujte podle pokynů
v návodu k použití kontroléru.
Připojte vodiče ke kontroléru
N E B E Z P E Č Í
Nebezpečí poranění elektrickým proudem. Před započetím údržby odpojte napájení přístroje
a reléových připojení.
1. Zkontrolujte, že je napájení kontroléru vypnuto.
2. Otevřete kontrolér. Viz Instalace napěťové bariéry na straně 110.
3. Připojte vodič relé přístroje COM (common - běžný) k relé kontroléru COM.
4. Připojte vodič relé přístroje N/O (normally open - normálně otevřené) k relé kontroléru N/O.
5. Proveďte zapojení ostatních vodičů. Viz Připojte vodiče k přístroji na straně 105.
6. Zkontrolujte, že je napájení vedeno po pravé straně sloupku.
7. Nainstalujte zábranu na ochranu kontroléru proti vysokému napětí. Viz Instalace napěťové
bariéry na straně
110.
8. Zavřete dvířka krytu. Utěsněte kryt utažením jeho šroubů. Dvířka krytu musí být instalována, aby
byl zajištěn rozsah odolnosti proti vlivům prostředí.
Připojte vodiče k přístroji
N E B E Z P E Č Í
Nebezpečí poranění elektrickým proudem. Před jakýmikoli pracemi na elektrickém zapojení odpojte
přístroj od zdroje napájení.
Viz Tabulka 1, Obr. 6, Obr. 7 a
Obr. 8.
Čeština 105

1. Odšroubujte tři šrouby z ochranného víka a odstraňte jej.
2. Připojte vodič relé kontroléru COM (common - běžný) k relé přístroje COM.
3. Připojte vodič relé kontroléru N/O (normally open - normálně otevřené) k relé přístroje N/O.
4. Připojte vodič uzemnění ke svorce se symbolem uzemnění.
5. Připojte neutrální vodič ke svorce NEUT.
6. Připojte fázový vodič ke svorce PHASE.
7. Nasaďte ochranné víko.
8. Zavřete dvířka krytu. Utáhněte šrouby dvířek, aby byl udržen rozsah odolnosti proti vlivům
prostředí. Zkontrolujte, zda je těsnění v pořádku.
9. Zatlačte na přístroj a kontrolér.
Tabulka 1 Zapojení napájení
Popis svorkovnice Barevný kód vodiče - Severní
Barevný kód vodiče - Evropa
Amerika
Linka (PHASE) Černá Hnědá
Neutrální vodič (NEUT) Bílá Modrá
Ochranné uzemnění (symbol uzemnění) Zelená Zelená se žlutým proužkem
106 Čeština

Obr. 6 Schéma zapojení pro 115 V
Čeština 107

Obr. 7 Schéma zapojení pro 230 V
108 Čeština

Obr. 8 Zapojení s lokálním odpojením
1 Štítek, zapojení 6 Pružná průchodka / vedení (vedení stř. proudu)
2 Ochranný kryt 7 Uvolnění napětí/vedení (zapojení relé)
3 Pojistky (3x) 8 Přívod vzduchu
4 Blok terminálu napájení 9 Relé N/O
5 Blok terminálu relé 10 Relé COM
Čeština 109

Instalace napěťové bariéry
Viz následující vyobrazené kroky.
110 Čeština

Připojte hadičku pro přívod vzduchu a senzor.
Připojte hadičku pro přívod vzduchu k fitinku ve spodní části krytu přístroje (Obr. 8 na straně 109,
položka 8). Při instalaci senzoru postupujte podle dokumentace přiložené k adaptéru vhánění
vzduchu, soupravě hadiček a senzoru, kde najdete více informací.
Spuštění
U P O Z O R N Ě N Í
Teplotní koncový spínač se otevře, pokud je cyklus čerpadla ON více než 60 sekund nebo cyklus čerpadla OFF
je méně než 15 minut. Nepřekračujte zatěžovací cyklus uvedený pro tento přístroj.
1. Zapněte napájení kontroléru.
2. V nabídce nastavení systému vyberte Relays (Relé). Nastavte dobu na 60 sekund nebo méně.
Interval nastavte na 15 minut nebo delší. Více informací viz návod pro uživatele kontroléru.
3. Vypněte napájení kontroléru.
4. Po instalaci zapněte napájení přístroje.
5. Zapněte napájení kontroléru.
Údržba
N E B E Z P E Č Í
Různá nebezpečí. Práce uvedené v tomto oddíle dokumentu smí provádět pouze dostatečně
kvalifikovaný personál.
Čištění krytu
U P O Z O R N Ě N Í
Na čištění krytu nikdy nepoužívejte rozpouštědla.
1. Když je kryt pevně zavřený, otřete vnější povrch vlhkým hadříkem.
2. Pravidelně kontrolujte přívod vzduchu na kompresoru a ujistěte se, že port není ucpaný. Ucpaný
přívod vzduchu by mohl snížit životnost kompresoru a znehodnotit čisticí funkci snímače.
Výměna pojistek
N E B E Z P E Č Í
Nebezpečí poranění elektrickým proudem. Před zahájením tohoto kroku údržby odpojte veškeré
napájení od přístroje a kontroléru.
N E B E Z P E Č Í
Nebezpečí požáru. Používejte náhradní pojistky stejného typu a se stejnou proudovou charakteristikou.
1. Odpojte jakékoli napájení od přístroje a kontroléru.
2. Uvolněte šrouby na předním krytu a otevřete jej.
3. Vyjměte tři šrouby z ochranného víka a odstraňte jej (Obr. 9).
4. Zkontrolujte pojistky. Vyměňte všechny otevřené pojistky za nové. Viz Technické údaje
na straně 98
, kde jsou uvedeny požadavky na pojistky.
5. Nasaďte ochranné víko se třemi šrouby.
Čeština 111

Obr. 9 Výměna pojistek
1 Ochranný kryt 3 Vstupní pojistka (2x)
2 Vypínač 4 Pojistka relé kontroléru
Řešení problémů
Problém Možná příčina Řešení
Kompresor pracuje, ale
Vzduchové hadičky jsou
Prohlédněte vzduchové hadičky, zda nejsou přelomené
z přístroje nevychází
překroucené nebo
nebo zpřehýbané. Opravte nebo vyměňte vzduchové
žádný vzduch.
poškozené.
hadičky, je-li to potřeba.
Vzduchová hadička
Zkontrolujte vzduchovou hadičku, zda není ucpaná.
je ucpaná.
Vyčistěte nebo vyměňte vzduchové hadičky, je-li
to potřeba.
Kompresor nepracuje. Pojistka je otevřená. Prohlédněte zapojení, jestli zde není problém. Pokud
ne, vyměňte všechny vadné pojistky. Viz Výměna
pojistek na straně 111.
Kompresor nepracuje
Je zde problém
Zkontrolujte, zda je kontrolér správně naprogramován.
podle plánu.
kontroléru.
Zkontrolujte, zda kontrolér pracuje správně.
Náhradní díly
Poznámka: Čísla produktů a položek se mohou v různých regionech prodeje lišit. Pokud potřebujete kontaktní
infomace, obraťte se na příslušného dodavatele nebo se podívejte na webové stránky společnosti.
Popis Položka č.
Pojistka, 5 A, 250 V pomalá (model 230 V) 4693800
Pojistka, 8 A, 250 V pomalá (model 115 V) 6172000
Pojistka, 0,25 A, 250 V pomalá (modely 115/230 V) 5966073
Montážní sada (obsahuje montážní kanály, šrouby, podložky, štítek, svorky) 6864900
112 Čeština

Popis Položka č.
Montážní sada hadiček pro vhánění vzduchu (obsahuje rychlospojky, svazky kabelů,
9257800
hadičky, svorky na hadice, kabel)
Sada komponentů hardwaru pro vhánění vzduchu (obsahuje svazek kabelů, sestavu
9257700
hadice, sestavu s nákružkem, koncové víčko, kabel)
Čeština 113

Inhoudsopgave
Specificaties op pagina 114 Onderhoud op pagina 127
Algemene informatie op pagina 114 Problemen oplossen op pagina 128
Installatie op pagina 117 Reservedelen op pagina 128
Opstarten op pagina 127
Specificaties
Specificaties kunnen zonder kennisgeving vooraf worden gewijzigd.
Specificatie Details
Afmetingen (B x D x H) 351,6 x 186,9 x 409,7 mm (13,84 x 7,36 x 16,13 inch)
Gewicht 11,2 kg (24,7 lb)
Geleverde luchtdruk
115V-model: 3,10 bar (45 psi)
(aan de compressoruitlaat)
230V-model: 2,76 bar (40 psi)
3
Geleverde luchtstroom
115V-model: 2,14 m
/uur (1,26 cfm)
(aan de compressoruitlaat)
3
230V-model: 1,77 m
/uur (1,04 cfm)
Maximale bedrijfscyclus van de pomp 60 seconden om de 15 minuten
Omgevingscondities -20 tot 50 °C (-4 tot 122 °F), 95% relatieve vochtigheid, niet-
condenserend
Opslageisen -20 tot 70 °C (-4 tot 158 °F), 95% relatieve vochtigheid, niet-
condenserend
Behuizing NEMA 4X/IP66 niet-metalliek
Vereiste spanning 115V-model: 115 V AC, 50/60 Hz, 7,5/4,5 A
230V-model: 230 V AC, 50 Hz, 2,5 A
Ingangszekering 115V-model: T, 8 A, 250 V
230V-model: T, 5 A, 250 V
Controller-relaiszekering T, 0,25 A, 250 V (alle modellen)
Vervuilingsgraad 2
Installatiecategorie II
Beschermingsklasse I
Hoogte 2000 m (6560 ft) maximaal
Compressorafmetingen (B x D x H) 37 x 32 x 20 cm (14,5 x 12,5 x 7,8 inch)
Compressorgewicht 10,7 kg (23,5 lb)
Certificeringen UL, CSA, cETLus, CE
Garantie 1 jaar (EU: 2 jaar)
Algemene informatie
De fabrikant kan onder geen enkele omstandigheid aansprakelijk worden gesteld voor directe,
indirecte, speciale, incidentele of continue schade die als gevolg van enig defect of onvolledigheid in
deze handleiding is ontstaan. De fabrikant behoudt het recht om op elk moment, zonder verdere
114 Nederlands

melding of verplichtingen, in deze handleiding en de producten die daarin worden beschreven,
wijzigingen door te voeren. Gewijzigde versies zijn beschikbaar op de website van de fabrikant.
Veiligheidsinformatie
L E T O P
De fabrikant is niet verantwoordelijk voor enige schade door onjuist toepassen of onjuist gebruik van dit product
met inbegrip van, zonder beperking, directe, incidentele en gevolgschade, en vrijwaart zich volledig voor
dergelijke schade voor zover dit wettelijk is toegestaan. Uitsluitend de gebruiker is verantwoordelijk voor het
identificeren van kritische toepassingsrisico's en het installeren van de juiste mechanismen om processen te
beschermen bij een mogelijk onjuist functioneren van apparatuur.
Lees deze handleiding voor het uitpakken, installeren of gebruiken van het instrument. Let op alle
waarschuwingen. Wanneer u dit niet doet, kan dit leiden tot ernstig persoonlijk letsel of schade aan
het instrument.
Controleer voor gebruik of het instrument niet beschadigd is. Het instrument mag op geen andere
wijze gebruikt worden dan als in deze handleiding beschreven.
Gebruik van gevareninformatie
G E V A A R
Duidt een potentiële of dreigende gevaarlijke situatie aan die (indien niet vermeden) zal leiden tot ernstig of
dodelijk letsel.
W A A R S C H U W I N G
Geeft een potentieel of op handen zijnde gevaarlijke situatie aan die, als deze niet wordt vermeden, kan leiden tot
dood of ernstig letsel.
V O O R Z I C H T I G
Geeft een mogelijk gevaarlijke situatie aan die kan resulteren in minder ernstig letsel of lichte verwondingen.
L E T O P
Duidt een situatie aan die (indien niet wordt voorkomen) kan resulteren in beschadiging van het apparaat.
Informatie die speciaal moet worden benadrukt.
Waarschuwingsetiketten
Lees alle labels en etiketten die op het instrument zijn bevestigd. Het niet naleven van deze
waarschuwingen kan leiden tot letsel of beschadiging van het instrument. In de handleiding wordt
door middel van een veiligheidsvoorschrift uitleg gegeven over een symbool op het instrument.
Dit symbool, indien op het instrument aangegeven, verwijst naar de handleiding voor bediening en/of
veiligheidsinformatie.
Het is sinds 12 augustus 2005 niet meer toegestaan elektrische apparatuur, voorzien van dit symbool,
af te voeren via Europese openbare afvalverwerkingsystemen. In overeenstemming met Europese
lokale en nationale voorschriften (EU-richtlijn 2002/96/EG) dienen Europese gebruikers van
elektrische apparaten hun oude of versleten apparatuur naar de fabrikant te retourneren voor
kosteloze verwerking.
Opmerking: Als u wilt retourneren voor recycling, dient u contact op te nemen met de fabrikant of leverancier van het
apparaat om instructies te krijgen over het op de juiste wijze retourneren van versleten apparatuur, elektrische
accessoires en alle hulpmiddelen.
Dit symbool geeft aan dat er een risico op een elektrische schok en/of elektrocutie bestaat.
Dit symbool geeft aan dat u een veiligheidsbril moet dragen.
Nederlands 115

Dit symbool geeft aan dat het instrument op een geaard stopcontact dient te worden aangesloten. Als
het instrument zonder aardingsstekker met snoer wordt geleverd, moet het instrument worden geaard
op de aansluiting voor de veiligheidsaarddraad.
Dit symbool, indien aanwezig op het product, geeft de locatie van een zekering of stroombegrenzer
aan.
Certificering
IECS-003 certificering ten aanzien van radio-inteferentie, Klasse A:
Aanvullende informatie en testresultaten zijn via de fabrikant verkrijgbaar.
Dit Klasse A instrument voldoet aan alle eisen van de Canadese norm IECS-003.
Cet appareil numérique de classe A répond à toutes les exigences de la réglementation canadienne
sur les équipements provoquant des interférences.
FCC deel 15, Klasse "A" bepalingen
Aanvullende informatie en testresultaten zijn via de fabrikant verkrijgbaar. Dit instrument voldoet aan
Deel 15 van de FCC-voorschriften. Het gebruik van dit instrument is aan de volgende voorwaarden
onderworpen:
1. Het instrument mag geen schadelijke storingen veroorzaken.
2. Het instrument moet elke willekeurige ontvangen storing accepteren, inclusief storingen die
mogelijk een ongewenste invloed kunnen hebben.
Door veranderingen of aanpassingen aan dit toestel die niet uitdrukkelijk zijn goedgekeurd door de
partij verantwoordelijk voor certificering, kan de certificering van dit instrument, komen te vervallen.
Dit apparaat is getest en voldoet aan de normen voor een elektrisch instrument van Klasse A,
volgens Deel 15 van de FCC-voorschriften. Deze voorwaarden zijn opgesteld dat ze een goede
bescherming bieden tegen hinderlijke storingen wanneer het instrument in een bedrijfsgerelateerde
toepassing wordt gebruikt. Dit instrument produceert, gebruikt en kan radiogolven uitstralen.
Wanneer het niet geïnstalleerd en gebruikt wordt volgens de handleiding, hinderlijke storing voor
radiocommunicatie veroorzaken. Werking van het instrument in een huiselijke omgeving zal
waarschijnlijk zorgen voor hinderlijke storing, in welk geval de gebruiker de storing dient te
verhelpen. Om storingen op te lossen kan het volgende geprobeerd worden:
1. Ontkoppel het instrument van zijn stroombron om te controleren of deze stroombron al dan niet
de storing veroorzaakt.
2. Als het instrument op hetzelfde stopcontact is aangesloten als het apparaat dat storing
ondervindt, dient u het apparaat op een ander stopcontact aan te sluiten.
3. Plaats het apparaat weg van het apparaat waarop de storing van toepassing is.
4. Verplaats de ontvangstantenne voor het apparaat dat de storing ontvangt.
5. Probeer verschillende combinaties van de hierbovengenoemde suggesties.
Productoverzicht
Dit reinigingssysteem wordt gebruikt in procestoepassingen waarbij de sensor vuil kan worden. Dit
instrument reinigt automatisch het sensoroppervlak en verwijdert slijm en andere biologische
aangroei. Dit instrument is geschikt voor binnen- of buitenopstelling en mag niet aan direct zonlicht
worden blootgesteld.
Productcomponenten
Controleer of alle componenten zijn ontvangen. Raadpleeg Afbeelding 1. Neem onmiddellijk contact
op met de fabrikant of een verkoopvertegenwoordiger in geval van ontbrekende of beschadigde
onderdelen.
116 Nederlands

Afbeelding 1 Productcomponenten
1 Behuizing 8 Borgring
2 Spanningsbarrière (sc100) 9 Zeskantbout met zaaggleuf
3 Schroef, vastzetten van barrière 10 Zeskantmoer
4 Spanningsbarrière (sc200) 11 Beugel
5 Lipje, wandmontage 12 Beugel
6 Schroef met platte kop en zaaggleuf 13 Universele steun
7 Pancilinderschroef met zaaggleuf
Installatie
G E V A A R
Diverse gevaren. Alleen bevoegd personeel mag de in dit deel van het document beschreven taken
uitvoeren.
Bevestiging van het instrument
L E T O P
Als het instrument in direct zonlicht wordt geplaatst, kan de bedrijfstemperatuur boven de opgegeven limiet stijgen
en zal de compressor niet starten. Het instrument is geschikt voor binnen- of buitenopstelling en mag niet aan
direct zonlicht worden blootgesteld.
1. Plaats het instrument in de buurt van de geïnstalleerde sensor (Afbeelding 5). Maak de
luchttoevoerleiding niet langer dan 7,6 m (25 ft). Hierdoor blijft de capaciteit van het systeem
hetzelfde en wordt de responstijd voor de luchttoevoer niet verminderd.
2. Monteer het instrument op een plaats waar de omgevingstemperatuur de temperatuurlimieten
van het instrument niet overschrijdt. Raadpleeg Specificaties op pagina 114.
Nederlands 117

3. Volg de montagemethode die geschikt is voor de toepassing en breng de bevestigingsmiddelen
(Afbeelding 3 en Afbeelding 4) aan.
4. Installeer het apparaat op een op een zodanige plaats en in een zodanige positie dat de
scheidingsschakelaar goed bereikbaar is.
5. Sluit het instrument aan op een controller (Afbeelding 5). Raadpleeg de sensordocumentatie voor
informatie over de sensoraansluiting.
Afbeelding 2 Afmetingen van de behuizing
118 Nederlands

Afbeelding 3 Wandmontageoptie
1 Lipje, wandmontage (4x) 2 Schroef met platte kop en zaaggleuf (4x)
Afbeelding 4 Montageopties voor de buis
1 Horizontale montageoptie voor de buis 6 Buis, verticaal
2 Verticale montageoptie voor de buis 7 Zeskantbout met zaaggleuf (4x)
3 Pancilinderschroef met zaaggleuf (4x) en borgring
8 Steun voor 1½- of 2-inch leiding (4x)
(4x)
4 Universele steun (2x) 9 Zeskantmoer (4x)
5 Buis, horizontaal
Nederlands 119

Afbeelding 5 Typische installatieconfiguratie
1 Scheidingsschakelaar 5 Luchttoevoerslang
2 Controller 6 Buismontage
3 Sensorkabel 7 Airblast-adapter
4 High Output Air Blast-reinigingssysteem
Elektrische aansluitingen
G E V A A R
Elektrocutiegevaar. Koppel altijd het instrument los van de netvoeding voordat u elektrische
aansluitingen tot stand brengt.
G E V A A R
Elektrocutiegevaar. Een verbinding met beschermende aarding is vereist.
Gebruik altijd kabels en bedradingswijzen die ten minste voldoen aan lokale, provinciale en nationale
elektrische voorschriften. Gebruik harde buizen, waterdichte flexibele buizen of flexibele kabels voor
elektrische aansluitingen overeenkomstig de lokale elektrische voorschriften.
Er mag een voedingskabel met een lengte van minder dan 3 meter (10 ft) worden gebruikt indien aan
de volgende voorwaarden wordt voldaan:
• Er wordt voldaan aan alle lokale, provinciale en nationale elektrische voorschriften
•
De kabel heeft drie 18-gauge geleiders (waaronder een veiligheidsaarddraad)
• De kabel heeft een trekontlasting met afdichting om de NEMA-milieuklasse te behouden.
Gebruik altijd de standaard driedraadsaansluiting voor de netvoeding. Breng altijd kabelschoenen op
de draaduiteinden aan en sluit de bedrading aan zoals afgebeeld in Afbeelding 6 op pagina 123 en
Afbeelding 7 op pagina 124.
120 Nederlands

