Hach-Lange CLT10 sc – страница 8
Инструкция к Hach-Lange CLT10 sc

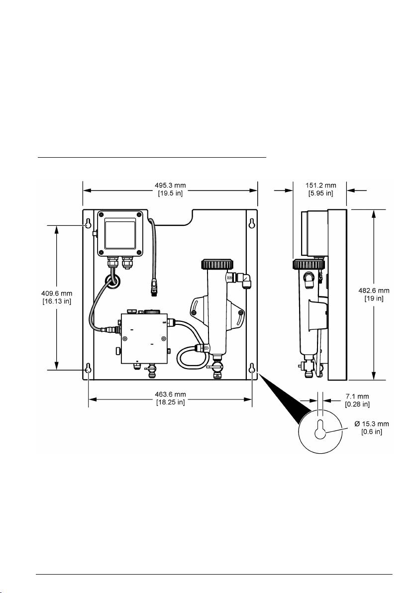
Mekanisk installation
Monter panelet
Figur 5 viser målene for monteringen. Se figuren, og følg trinnene, når panelet monteres.
1. Fastgør skruebeslagene til monteringsoverflade. Monter på vægbeslag, eller anvend murankre.
Sørg for, at der er nok plads mellem hver skrue og monteringsoverflade, så panelet kan være i
mellem.
2. Skub panelets monteringshuller hen over hovedet på monteringsskruerne, og lad panelet glide
ned, indtil toppen af monteringshullerne hviler på resten af skruen.
3. Fastspænd hver skrue for at fæstne panelet til monteringsoverflade.
4. Installer klor- og pH-sensorerne (option) i flowcellerne. Se brugervejledningen til sensoren for
oplysninger om, hvordan sensorerne installeres.
Figur 5 Dimenstioner på panel til analyse af reagensfrit klor
Dansk 141

Elektrisk installation
Tænd for strømmen til panelet
A D V A R S E L
Risiko for livsfarligt elektrisk stød. Sørg altid for at slå strømmen til instrumentet fra, når du tilslutter
strømførende elementer.
Controlleren leverer strøm til sensorerne og til den digitale gateway.
1. Sluk for controllerens strømtilførsel.
2. Slut pH-sensorens kabler (option) til gateway'en. Se brugervejledningen til sensoren for
oplysninger om, hvordan sensorer installeres i flowceller, eller hvordan sensoren tilsluttes
gateway'en.
3. Slut klorsensoren til gateway'en Se brugervejledningen til sensoren for oplysninger om, hvordan
sensoren tilsluttes gateway'en.
BEMÆRK: Når panelet sendes, er kablet til klorsensoren tapet fast til panelets front i nærheden af sensorens
tilslutningssted.
4. Slut controlleren til gateway'en med tilslutningskablet på 1 m, som leveres sammen med panelet.
Rørarbejde
Plomber panelet
Kontroller, at størrelsesspecifikationerne for alle panelets slanger og fittings følges. Diameteren skal
forøges i flowretningen, når vand løber igennem systemet for at forhindre, at der opbygges modtryk.
Figur 1 på side 137 viser en oversigt over forbindelserne i rørarbejdet.
1. Slut slanger til prøvefittings indgang og udgang.
2. Sørg for, at rengøringsåbningen på klor-flowcellen er lukket.
3. Sørg for, at rengøringsåbningen på pH-flowcellen er lukket.
4. Åbn flowventilen på prøveledningen, og lad vandet bevæge sig igennem systemet.
5. Kontroller, at der ikke er nogle lækager fra slangerne, ventilfittings eller flowcellerne.
6. Luftbobler kan minimeres ved at vippe pH-flowcellen mellem 0º og 30º som vist i Figur 6.
142
Dansk

Figur 6 Vippet pH-flowcelle
Betjening
Brugernavigering
Se styringsdokumentationen for beskrivelse af tastatur og navigeringsinformation.
Systemkonfiguration
Konfiguration og kalibrering af sensorer gøres via controlleren. Se brugervejledningen til sensoren for
oplysninger om, hvordan du konfigurerer eller kalibrerer sensoren.
Der skal være sluttet en sc-controller til gateway'en
1. Vælg Sensor Setup (Sensor indstilling) fra hovedmenuen på controlleren.
CGW-indstillingsmenuen (Chlorine Gateway) (Klor-gateway) vises.
2. Vælg Configure (Konfigurer), og tilpas indtastningerne. Bekræft hver indtastning for at gemme
dem, og vend tilbage til menuen Configure (Konfigurer).
Funktion Beskrivelse
Redigér navn Rediger navnet på sensor
Vælg Parameter (Parameter) - Chlorine (Total
Vælg de parametre, der skal konfigureres. Konfiguration
or Free) (Klor - total eller frit), pH (valgfri),
af de valgte parametre kræves yderligere trin. Se
Temperature (Temperatur) (valgfri)
brugervejledningen til sensoren for flere oplysninger.
Nulstil standarder - Bekræft for at udføre
Nulstiller alle indstillinger til fabrikkens standardværdierne.
nulstillingen.
Dansk 143

Systemstart
Kontroller, at al mekanisk og elektrisk arbejde samt rørarbejde er blevet udført, inden der åbnes for
flow i systemet.
1. Tænd for strømmen til controlleren.
Når der tændes for strømmen til controlleren for første gang, vises Language (sprog), Date
Format (Datoformat) og Date/Time (Dato/klokkeslæt) på displayets skærm i denne rækkefølge.
2. Indstil sprog, dato og klokkeslæt på controlleren, hvis det ikke allerede er gjort. Se
brugervejledningen til controlleren for flere oplysninger om, hvordan du angiver disse indstillinger.
Controlleren søger efter tilsluttede enheder.
3. Kontroller, at rengøringsåbningen og stikprøveåbningen er lukkede. Åbn derefter ON/OFF-
ventilen på prøveledningen for at starte vandflowet i systemet.
Klor- og pH-flowcellerne fyldes med vand.
4. Kontroller, at LED-indikatoren på flowsensoren lyser. Hvis LED-indikatoren ikke lyser, skal
flowsensoren justeres, så flowet forøges.
LED-indikatoren på flowsensoren lyser, når flowet er tilstrækkeligt til, at sensoren fungerer
optimalt. Hvis flowet er for højt, lyser LED-indikatoren sandsynligvis ikke. Sørg for, at svømmeren
er tilnærmelsesvis justeret ind efter mærket for justering af svømmer.
5. Kontroller, om der er lækager eller blokeringer i slangerne og i flowcellerne. Luk for flowet til
panelet, hvis der opdages nogen problemer, og udfør de nødvendige reparationer.
6. Når der er tilstrækkeligt flow i systemet, skal evt. advarsler på controllerens display slettes ved at
følge de foreslåede handlinger.
7. Tryk på tasten HOME (START).
Hovedskærmen for målinger vises, og måleværdierne for klor, temperatur og pH (hvis en pH-
sensor er tilsluttet) vises.
Vedligeholdelse
F A R E
Flere farer. Kun kvalificeret personale må udføre de opgaver, som er beskrevet i dette afsnit i
dokumentet.
Udskiftning af slanger
Udskift slangerne mindst én gang om året. Udskift skrøbelige, revnede og utætte slanger med det
samme. Udskift gamle, misfarvede, tilstoppede og beskadigede slanger med slanger, der har samme
diameter og er af samme type (Teflon
®
eller PVDF-slanger).
Rengøring af en sensors flowcelle
Rengør en flowcelle efter behov for at fjerne aflejringer. Rengør en flowcelle, hvis den bliver meget
kontamineret. Udskift en flowcelle, hvis den bliver beskadiget, misfarvet eller ugennemsigtig. Det er
ikke nødvendigt at fjerne en flowcelle fra panelet for at rengøre den.
BEMÆRK: Anvend aldrig rengøringsmidler eller tensider til at rengøre en klor-flowcelle.
1. Luk for flow til panelet.
2. Fjern klorsensoren, og placer den i en beholder, der er fyldt med en prøve af det klorbehandlede
vand.
BEMÆRK: Frakobl ikke sensoren fra strømmen. Hvis strømtilførslen til klorsensoren frakobles, skal den
konditioneres og kalibreres før brug.
BEMÆRK: Hvis sensoren fjernes fra en flowcelle, mens sensorkablet er tilkoblet, ændres sensorens
udgangssignal. Se brugervejledningen til controlleren for flere oplysninger.
3. Skyl flowcellen med vand, og skrub den med en blød børste for at fjerne aflejringer.
4. Skyl flowcellen med vand.
144
Dansk

5. Hvis flowcellen ikke er tilstrækkelig ren, kan den lægges i blød i 10 til 15 minutter i en 1:3-
blanding af 3 - 5 % brintoverilteopløsning og eddike.
6. Skyl flowcellen med vand.
7. Monter sensoren i flowcellen, og luk op for prøvetilførslen.
Udskiftning af flowsensor
Under normale omstændigheder er det ikke nødvendigt med regelmæssig vedligeholdelse eller
udskiftning af flowsensoren. Hvis LED-flowindikatoren imidlertid ikke lyser, når niveauet er på eller
over mærket for justering af svømmer, og der tændes for strømmen, skal sensoren muligvis
udskiftes. For at udskifte flow-sensoren skal de følgende trin udføres.
BEMÆRK: Det er ikke nødvendigt at fjerne klorsensoren, aftappe flowcellen eller slukke for strømmen til
controlleren for at udskifte flowsensoren.
Dansk 145

146 Dansk

Udskiftning af flowreguleringsventil
Dansk 147

Fejlsøgning
Hændelseslog
Controlleren leverer en hændelseslog for hver sensor. Hændelsesloggen lagrer hændelser, der
forekommer på enhederne, såsom udførte kalibreringer, ændrede kalibreringsvalg osv. En liste over
mulige hændelser vises nedenfor. Hændelsesloggen kan udlæses i CSV-format. Se controllerens
brugervejledning for oplysninger om, hvordan du downloader disse logs.
Tabel 1 Hændelseslog
Hændelse Beskrivelse
Power On Strømmen blev tilsluttet.
Flash-fejl Den eksterne flash fejlede eller er beskadiget.
1pointpHCalibration_Start Start på 1-punkts-prøvekalibrering til pH
1pointpHCalibration_End Afslutning på 1-punkts-prøvekalibrering til pH
2pointpHCalibration_Start Start på 2-punkts-prøvekalibrering til pH
2pointpHCalibration_End Afslutning på 2-punkts-prøvekalibrering til pH
1pointBufferpHCalibration_Start Start på 1-punkts-bufferkalibrering til pH
1pointBufferpHCalibration_End Afslutning på 1-punkts-bufferkalibrering til pH
2pointBufferpHCalibration_Start Start på 2-punkts-bufferkalibrering til pH
2pointBufferpHCalibration_End Afslutning på 2-punkts-bufferkalibrering til pH
TempCalibration_Start Start på temperaturkalibrering
TempCalibration_End Afslutning af temperaturkalibrering
1pointChemZeroCL2_Start Start på 1-punkts kemisk nul-kalibrering for klor
1pointChemZeroCL2_End Afslutning på 1-punkts kemisk nul-kalibrering for klor
1pointElecZeroCL2_Start Start på 1-punkts elektrisk nul-kalibrering for klor
1pointElecZeroCL2_End Afslutning på 1-punkts elektrisk nul-kalibrering for klor
1pointProcessConc_Start Start på 1-punkts proceskoncentration for klor
1pointProcessConc _End Afslutning på 1-punkts proceskoncentration for klor
2pointChemCL2_Start Start på 2-punkts kemisk kalibrering for klor
2pointChemCL2_End Afslutning på 2-punkts kemisk kalibrering for klor
2pointElecCL2_Start Start på 2-punkts elektrisk kalibrering for klor
2pointElecCL2_End Afslutning på 2-punkts elektrisk kalibrering for klor
CL2CalSetDefault Klorkalibreringen er nulstillet.
pHCalSetDefault pH-kalibreringsdata er nulstillet.
TempCalSetDefault Temperaturkalibreringsdata er nulstillet.
AllCalSetDefault Alle sensorkalibreringsdata er nulstillet.
CL2CalOptionChanged Klorkalibreringsvalget er ændret.
pHCalOptionChanged pH-kalibreringsvalget er ændret.
TempCalOptionChanged Temperaturkalibreringsvalget er ændret.
SensorConfChanged Sensorkonfigurationen er ændret.
148 Dansk

Tabel 1 Hændelseslog (fortsat)
Hændelse Beskrivelse
ResetCL2CalHist CL2-kalibreringshistorikken er nulstillet.
ResetpH CalHist pH-kalibreringshistorikken er nulstillet.
ResetTemp CalHist Temperaturkalibreringshistorikken er nulstillet.
ResetAllSensorsCalHist Al sensorkalibreringshistorik er nulstillet.
ResetCL2Sensor CL2-kalibreringsdata (sensordage, kalibreringshistorik og kalibreringsdata) er
nulstillet.
ResetpHSensor pH-kalibreringsdata (sensordage, kalibreringshistorik og kalibreringsdata) er
nulstillet.
ResetTempSensor Temperaturkalibreringsdata (sensordage, kalibreringshistorik og
kalibreringsdata) er nulstillet.
ResetAllSensors Alle sensorkalibreringsdata (sensordage, kalibreringshistorik og
kalibreringsdata) er nulstillet.
Flow-registrering Tilstanden af nærhedssensoren er ændret (tilstrækkeligt eller ikke tilstrækkeligt
flow).
Fejlliste
Der kan opstå fejl af forskellige årsager. Sensormålingen blinker på skærmen. Alle udgange
fastholdes, når det er specificeret i controllermenuen. Tryk på tasten MENU, og vælg Sensor Diag
(Sensordiagnostik), Error List (Fejlliste) for at vise sensorfejl. En liste over mulige fejl vises nedenfor.
Tabel 2 Fejlliste til sensoren
Fejl Beskrivelse Løsning
CL CAL REQD (KLORKALIBREING
En klor- og/eller pH-
Kalibrer klor- og/eller pH-sensoren.
PÅKRÆVET)
kalibrering er påkrævet.
Klor- og/eller pH-målingerne
er ændret nok til, at en Cal
Watch-alarm er opstået. Se
vejledningen til klorsensoren
for flere oplysninger.
CL MAINT REQD
Klorsensoren skal
Udfør vedligeholdelse af sensoren,
(KLORSENSORVEDLIGEHOLDELSE
vedligeholdes.
og gentag derefter kalibreringen,
PÅKRÆVET)
eller udskift sensoren. Se
Hældningen er mindre end
vejledningen til klorsensoren for
30 % eller mere end 300 %
flere oplysninger.
af standardværdien.
Standardhældningen er
100 mV/ppm (100 %).
CL MAINT REQD
Klorsensoren skal
Udfør vedligeholdelse af sensoren,
(KLORSENSORVEDLIGEHOLDELSE
vedligeholdes.
og gentag derefter kalibreringen,
PÅKRÆVET)
eller udskift sensoren. Se
Offset er for højt (mere end
vejledningen til klorsensoren for
±50 mV).
flere oplysninger.
PH TOO LOW (PH FOR LAV) pH-værdien er mindre end
Kalibrer eller udskift pH-sensoren.
0 pH.
PH TOO HIGH (PH FOR HØJ) pH-værdien er mere end
14 pH.
Dansk 149

Tabel 2 Fejlliste til sensoren (fortsat)
Fejl Beskrivelse Løsning
PH SLOPE FAIL (FEJL I PH-HÆLDNING) Hældningen er uden for
Rengør pH-sensoren, og gentag
området -45 til -65 mV/pH.
derefter kalibreringen med en ny
buffer eller prøve, eller udskift
sensoren.
PH OFFSET FAIL (FEJL I PH-OFFEST) Offset er uden for ±60 mV. Rengør pH-sensoren, og gentag
derefter kalibreringen med en ny
buffer eller prøve, eller udskift
sensoren.
PH OFFSET FAIL (FEJL I PH-OFFEST) Offset er uden for ±60 mV. Rengør pH-sensoren, og udskift
saltbroen og
standardcelleopløsningen. Gentag
derefter kalibreringen med en ny
buffer eller prøve, eller udskift
sensoren.
TEMP TOO LOW (TEMPERATUR FOR
Temperaturen er lavere end
Kalibrer temperaturen, eller udskift
LAV)
0 °C.
pH-sensoren.
TEMP TOO HIGH (TEMPERATUR FOR
Temperaturen er højere end
HØJ)
100 °C.
TEMP FAIL (FEJL VED TEMPERATUR) Offset er højere end 5,0 °C
Kalibrér temperaturen, eller udskift
eller lavere end -5,0 °C.
pH-sensoren.
NO FLOW (INTET FLOW) Flow-niveauet er for lavt. Øg flowet.
Advarselsliste
En advarsel påvirker ikke driften af menuer, relæ og stikkontakter. Et advarselsikon blinker, og der
vises en besked nederst på måleskærmbilledet. Tryk på tasten MENU, og vælg Sensor Diag
(Sensordiagnose), Warning List (Advarselsliste) for at vise sensoradvarslerne. En liste over mulige
advarsler vises nedenfor.
Tabel 3 Advarselsliste til sensoren
Advarsel Beskrivelse Opløsning
CL CAL RECD (KLORKALIBRERING
En klor- og/eller pH-kalibrering
Kalibrer klor- og/eller pH-
ANBEFALES)
anbefales.
sensoren.
Klor- og/eller pH-målingen er ændret
så meget, at en Cal Watch-advarsel
(Kalibreringsvagt) går i gang. Se
brugervejledningerne til sensorerne for
flere oplysninger.
CL CAL RECD (KLORKALIBRERING
En klorkalibrering anbefales.
Kalibrer klorsensoren.
ANBEFALES)
Klorkalibreringsdata er ikke
tilgængelige (sensor med
standardkalibreringsdata).
PH CAL RECD (PH-KALIBRERING
En pH-kalibrering anbefales.
Kalibrer pH-sensoren.
ANBEFALES)
pH-kalibreringsdata er ikke
tilgængelige (sensor med
standardkalibreringsdata).
TEMP CAL RECD
En temperaturkalibrering anbefales.
Kalibrer temperaturen.
(TEMPERATURKALIBRERING
Temperaturkalibreringsdata er ikke
ANBEFALES)
tilgængelige (sensor med
standardkalibreringsdata).
150 Dansk

Tabel 3 Advarselsliste til sensoren (fortsat)
Advarsel Beskrivelse Opløsning
CL CAL TO DO (KLORKALIBRERING
Værdien Sensor Days (Sensordage)
Kalibrer klorsensoren.
SKAL UDFØRES)
for klorsensoren er større end værdien
Cal Reminder
(Kalibreingspåmindelse).
PH CAL TO DO (PH-KALIBRERING
Værdien Sensor Days (Sensordage)
Kalibrer pH-sensoren.
SKAL UDFØRES)
for pH-sensoren er større end værdien
Cal Reminder
(Kalibreingspåmindelse).
TEMP CAL TO DO
Værdien Sensor Days (Sensordage)
Kalibrer temperaturen.
(TEMPERATURKALIBRERING SKAL
for temperatursensoren er større end
UDFØRES)
værdien Cal Reminder
(Kalibreingspåmindelse).
CL MAINT RECD
Det anbefales, at klorsensoren
Udfør vedligeholdelse af
(KLORVEDLIGEHOLDELSE
vedligeholdes.
sensoren, og gentag derefter
ANBEFALES)
kalibreringen, eller udskift
Hældningen er 30 til 45 % af
sensoren.
standarden, eller hældningen er 250 til
300 % af standarden.
Standardhældningen er 100 mV/ppm
(100 %).
CL MAINT RECD
Det anbefales, at klorsensoren
Udfør vedligeholdelse af
(KLORVEDLIGEHOLDELSE
vedligeholdes.
sensoren, og gentag derefter
ANBEFALES)
kalibreringen, eller udskift
Offset er -50 mV til 45 mV, eller offset
sensoren.
er 45 mV til 50 mV.
PH MAINT RECD (PH-
Det anbefales, at pH-sensoren
Rengør pH-sensoren, og
VEDLIGEHOLDELSE ANBEFALES)
vedligeholdes.
gentag derefter kalibreringen
med en ny buffer eller prøve,
Hældningen er uden for området -50 til
eller udskift sensoren.
-61 mV/pH.
PH MAINT RECD (PH-
Det anbefales, at pH-sensoren
Rengør sensoren, og gentag
VEDLIGEHOLDELSE ANBEFALES)
vedligeholdes.
så kalibreringen, eller udskift
sensoren.
Offset er uden for ±45 mV, men inden
for ±60 mV.
PH MAINT RECD (PH-
Det anbefales, at pH-sensoren
Rengør sensoren, og udskift
VEDLIGEHOLDELSE ANBEFALES)
vedligeholdes.
saltbroen og
standardcelleopløsningen, og
Offset er uden for ±45 mV, men inden
gentag derefter kalibreringen,
for ±60 mV.
eller udskift sensoren.
T MAINT RECD
Temperaturoffset er uden for ±3 °C,
Kalibrer temperaturen.
(TEMPERATURVEDLIGEHOLDE
men inden for ±5 °C.
ANBEFALES)
Reservedele og tilbehør
A D V A R S E L
Fare for personskade. Anvendelse af ikke-godkendte dele kan medføre personskade, beskadigelse af
instrumentet eller fejlfunktion af udstyret. Reservedelene i dette afsnit er godkent af producenten.
BEMÆRK: Produkt- og varenumre kan variere i visse salgsregioner. Kontakt den relevante distributør, eller se
virksomhedens webside for kontaktinformation.
Dansk
151

Dele
Beskrivelse Varenr.
Kabel, port til controller, 1 m 6122400
Kabelsamling, 4 ben, afskærmet, flowsensor, 2 m 9160900
Kabelsamling, 5 ben, afskærmet, M12, klorsensor, 1 m 9160300
Engelsk:
9159200 (1/4")
Beslag, indløbsport til klor-flowcelle
Metrisk:
9196400 (6 mm)
Engelsk:
9159300 (3/8")
Beslag, hurtig montering, udløbsport til klor-flowcelle eller indløbsport til pH-flowcelle
Metrisk:
9196500 (10 mm)
Engelsk:
9196900 (1/2")
Beslag, vinkel, udløbsport til pH-flowcelle
Metrisk:
9197000 (12 mm)
Flyder, flowsensor 9159100
Engelsk 9198400
Flydecellesamling, klor
Metrisk: 9198500
Engelsk 9180200
Flydecellesamling, pH-kombination
Metrisk: 9180400
Flydecellesamling, pHD
Engelsk 9180100
inkl. forseglingsmuffe
Metrisk: 9180300
Kun flowcellelegeme (pH) 9159700
Flydecelleblok, klor 9158900
Flowstyreventil 9159000
Flowstyreventilsæt 9198600
Flowsensor 9160800
Gateway, digital 9180500
Låsering, klor-flowcelle 9196200
Låsering, pH-flowcelle 60F2032-001
O-ring, flow-styreventil (2x) (#2-108, Viton) 9159600
O-ring, pH-flowcelle (#2-228, Viton) 5H1223
O-ring, forseglingsmuffe, klor-flowcelle ( #2-123, Viton) 9196300
O-ring, splitring (M25 x 2.5) 9181800
Stik, klor-flowcelle, 1/2" 9159500
Skrue, klor-flowcelle (2x) (10-32 x 1.75 Lg stjerneskruehoved) 4422200
Skrue, pH-flowcelle (2x) (10-32 x 5 Lg stjerneskruehoved) 561211
Forseglingslak, pH-flowcelle 9198000
Forseglingsmuffe, klor-flowcelle 9196100
Forseglingsmuffe, pH-kombinationssensor, 3/4" 9159800
152 Dansk

Reservedele og tilbehør (fortsat)
Beskrivelse Varenr.
Forseglingsmuffe, pHD-flowcelle, 1" 60F2021-001
Splitring, klor-flowcelle 9181700
Rør, prøvestrømning, 1/4" x 2 m 4743800
Rør, prøvestrømning, 3/8" x 18" 9198100
Rør, affaldsstrømning, 1/2" x 2 m 9198200
Ventil, stikprøveport 9005300
Ventil, hurtig montering, renseport 6166300
Tilbehør
Beskrivelse Varenr.
Syredannelsessæt LZY051
Trykregulator til prøvekonditioneringssæt 9159900
Dansk 153

Inhoudsopgave
Specificaties op pagina 154 Onderhoud op pagina 163
Algemene informatie op pagina 154 Problemen oplossen op pagina 167
Installatie op pagina 159 Reservedelen en accessoires op pagina 170
Bediening op pagina 162
Specificaties
Specificaties kunnen zonder kennisgeving vooraf worden gewijzigd.
Specificatie Detail
Componentomschrijving Amperometrisch reagensvrij
chloorbewakingsanalyserpaneel, met chloor-,
doorstroom-, optionele pH-combinatie- of pHD-sensor,
doorstroomcellen, sc-controller en digitale gateway
Bedrijfstemperatuur 0 tot 45 °C (0 tot 113 °F)
Opslagtemperatuur (alleen paneel) –20 tot 60 °C (–4 tot 149 °F)
Vereiste spanning 12 VDC ± 10%, 100 mA maximaal (geleverd door sc-
controller)
Paneelafmetingen (L x B x H) 48,3 x 49,5 x 15,1 cm (19 x 19,5 x 5,95 inch) met op
het paneel bevestigde componenten
Gewicht Circa 5,4 kg (alleen paneel en op het paneel
gemonteerde componenten)
Debiet Bereik: 30–50 liter/uur
Optimaal: 40 liter/uur (10,5 gallon/uur)
Controllerplatform sc-controllermodellen
Algemene informatie
De fabrikant kan onder geen enkele omstandigheid aansprakelijk worden gesteld voor directe,
indirecte, speciale, incidentele of continue schade die als gevolg van enig defect of onvolledigheid in
deze handleiding is ontstaan. De fabrikant behoudt het recht om op elk moment, zonder verdere
melding of verplichtingen, in deze handleiding en de producten die daarin worden beschreven,
wijzigingen door te voeren. Gewijzigde versies zijn beschikbaar op de website van de fabrikant.
Veiligheidsinformatie
L E T O P
De fabrikant is niet verantwoordelijk voor enige schade door onjuist toepassen of onjuist gebruik van dit product
met inbegrip van, zonder beperking, directe, incidentele en gevolgschade, en vrijwaart zich volledig voor
dergelijke schade voor zover dit wettelijk is toegestaan. Uitsluitend de gebruiker is verantwoordelijk voor het
identificeren van kritische toepassingsrisico's en het installeren van de juiste mechanismen om processen te
beschermen bij een mogelijk onjuist functioneren van apparatuur.
Lees deze handleiding voor het uitpakken, installeren of gebruiken van het instrument. Let op alle
waarschuwingen. Wanneer u dit niet doet, kan dit leiden tot ernstig persoonlijk letsel of schade aan
het instrument.
Controleer voor gebruik of het instrument niet beschadigd is. Het instrument mag op geen andere
wijze gebruikt worden dan als in deze handleiding beschreven.
154
Nederlands

Gebruik van gevareninformatie
G E V A A R
Geeft een potentieel gevaarlijke of dreigende situatie aan die, als deze niet kan worden voorkomen, kan
resulteren in dodelijk of ernstig letsel.
W A A R S C H U W I N G
Geeft een potentieel of op handen zijnde gevaarlijke situatie aan, die als deze niet wordt vermeden, kan leiden tot
dood of ernstig letsel.
V O O R Z I C H T I G
Geeft een mogelijk gevaarlijke situatie aan die kan resulteren in minder ernstig letsel of lichte verwondingen.
L E T O P
Duidt een situatie aan die (indien niet wordt voorkomen) kan resulteren in beschadiging van het apparaat.
Informatie die speciaal moet worden benadrukt.
Waarschuwingsetiketten
Lees alle labels en etiketten die op het instrument zijn bevestigd. Het niet naleven van deze
waarschuwingen kan leiden tot letsel of beschadiging van het instrument. In de handleiding wordt
door middel van een veiligheidsvoorschrift uitleg gegeven over een symbool op het instrument.
Dit symbool, indien op het instrument aangegeven, verwijst naar de handleiding voor bediening en/of
veiligheidsinformatie.
Het is sinds 12 augustus 2005 niet meer toegestaan elektrische apparatuur, voorzien van dit symbool,
af te voeren via Europese openbare afvalverwerkingssystemen. Conform de Europese, lokale en
nationale voorschriften (EU-richtlijn 2002/96/EC), zijn gebruikers van elektrische apparatuur verplicht
oude of versleten apparaten te retourneren aan de producent, waarbij de gebruiker geen kosten in
rekening mogen worden gebracht.
Opmerking: Neem voor instructies over het retour sturen of de juiste verwerking van oude of versleten apparatuur en
accessoires, contact op met de producent of leverancier van de apparatuur.
Productoverzicht
Dit product is voornamelijk bedoeld voor gebruik in toepassingen voor drinkwatersystemen.
Toepassingen met afvalwater en industriële toepassingen moeten vóór installatie door de fabrikant
worden gecontroleerd op hun geschiktheid.
De reagensvrije chlooranalyser bewaakt de resterende concentratie vrij of totaal chloor in water, en
is het meest betrouwbaar bij resterende chloorconcentraties hoger dan 0,1 ppm (mg/l). De
combinatie van een sc-controller met een chloorsensor met drie elektroden, optionele pH-sensor en
een doorstroomsensor biedt de beste bewakingsfunctie. Beide sensoren meten de
monstertemperatuur. De pH-sensor stuurt de temperatuurmeting naar het display van de controller.
De chloorsensor maakt intern gebruik van de temperatuurmeting en verstuurt deze meting niet naar
het display van de controller. Een drukregelaarset, zuureenheid en reinigingsset zijn als accessoires
leverbaar.
De chloor- en pH-sensoren bevinden zich in op een paneel bevestigde, in serie verbonden
doorstroomcellen. De doorstroomcellen behouden het contact tussen de sensor en het monster en
zorgen ervoor dat de sensoren niet uitdrogen als het systeem buiten werking is.
Afbeelding 1Afbeelding 2Afbeelding 3geven een overzicht weer van het systeem en de
doorstroomcellen.
Iedere sensor is via de gateway op het paneel op de controller aangesloten. De gateway zet analoge
signalen van de sensoren om in digitale signalen voor de controller. De controller zet de digitale
signalen om naar chloor-, pH- en temperatuurmeetwaarden en geeft deze weer op het display. De
controller voedt de sensoren en de digitale gateway.
Nederlands
155

De controller kan worden geconfigureerd om een alarmtoestand of waarschuwing te genereren als
de meetwaarden boven of onder bepaalde waarden komen. Raadpleeg de gebruikshandleiding van
de controller voor meer informatie over de controlleralarmen.
Opmerking: Raadpleeg de gebruikshandleidingen van de sensoren voor informatie over hoe de sensoren moeten
worden opgeslagen als het systeem niet in gebruik is.
Er zijn twee analyserconfiguraties beschikbaar: een optie voor momentaan monster (zonder pH-
sensor) en een optie voor pH. De optie voor momentaan monster omvat het montagepaneel, de
chloorsensor en -doorstroomcel, een pH-doorstroomcel zonder sensor, een doorstroomsensor, de
digitale gateway en de controller. de pH-optie bevat al deze componenten plus een pH-sensor.
Een flowventiel regelt de monsterstroming. We raden een constant debiet van 30-50 liter/uur aan
voor de correcte werking van de sensor. Het optimale debiet is 40 liter/uur. Een LED op de
doorstroomsensor geeft aan of het debiet van het monster voldoende is. Als de LED niet brandt,
moet het debiet worden aangepast totdat de LED wel brandt. Het precieze debiet is niet belangrijk
zolang de LED brandt, maar de stroming moet wel constant binnen de specificaties blijven.
Afbeelding 1 Systeemoverzicht
1 Controller 7 Monster in
2 Gateway 8 Uitschakelventiel (van de klant)
3 Chloorsensorkabel 9 Chloordoorstroomcel
4 pH-sensor (optioneel) 10 Doorstroomsensorkabel
5 Monsteraftappunt 11 Chloorsensor
6 pH-doorstroomcel
156 Nederlands

Afbeelding 2 Overzicht chloordoorstroomcel
1 Doorstroomsensor 8 Fitting voor monster uit
• Engels: speedfit-fitting 3/8 inch OD-leiding
• Metrisch: speedfit-fitting 10 mm OD-leiding
2 Plug, 1/8 inch NPTF 9 Uitlijningsmarkering chloorsensor
3 Uitlijningsmarkering vlotter 10 Ventiel reinigingspoort, 1/4 inch OD-leiding
4 Plug, 1/2 inch NPTF 11 Inlaat doorstroomcel
• Engels: speedfit-fitting 1/4 inch OD-leiding
• Metrisch: speedfit-fitting 6 mm OD-leiding
5 Borgring 12 Doorstroomcel
6 Afdichtingsnaaf 13 Flowregelventiel
7 O-ring 14 Vlotter
Nederlands 157

Afbeelding 3 Overzicht pH-doorstroomcel
1 Borgring 4 Fitting voor monster uit
Engels: speedfit kniestuk 1/2 inch OD
Metrisch: speedfit kniestuk 12 mm OD
2 Blinde afdichting 5 Afsluiter voor momentaan monster
3 O-ring 6 Inlaat doorstroomcel
• Engels: speedfit-fitting 3/8 inch OD
• Metrisch: speedfit-fitting, 10 mm OD
Onderdelen
Controleer of alle componenten zijn ontvangen. Raadpleeg Afbeelding 1 op pagina 156. Neem
onmiddellijk contact op met de fabrikant of een verkoopvertegenwoordiger in geval van ontbrekende
of beschadigde onderdelen.
158
Nederlands

Afbeelding 4 Analyserpaneel voor reagensvrij chloor
1 Systeempaneel 3 Slang, 12 mm (½ inch)
2 Aansluitkabel voor aansluiting van de gateway op
4 Chloorsensor
de controller, 1 m (3,3 ft)
Installatie
Installatieoverwegingen
• Voer eerst de mechanische installatie uit, vervolgens de elektrische installatie en installeer tot slot
het leidingwerk.
• Alle connectoren zijn ontworpen om alleen handvast te worden aangehaald.
• Het paneel is ontworpen voor wand- of rekmontage. Monteer of plaats het paneel op een
toegankelijke locatie.
• Plaats het paneel niet naast een warmtebron.
• Plaats het paneel niet in een omgeving waar frequente trillingen voorkomen.
• Plaats het paneel niet in direct zonlicht.
• Installeer het paneel binnen of in een omkasting.
• Voorkom condensvorming op het paneel en componenten van het paneel, in het bijzonder de
doorstroomcel, de sensor en het aansluitpunt van de sensor en kabel.
• Gebruik Teflon
®
of PVDF lineaire polyethyleen leidingen met lage dichtheid als
monstertoevoerleiding en maak de leidingen zo kort mogelijk om de vertragingstijd zo veel
mogelijk te beperken.
• De monsterdruk moet voldoende zijn om de watertoevoer naar de sensoren continu te houden.
Zolang de doorstroming voldoende is, blijft een LED-indicator op de doorstroomsensor branden.
• Houd het debiet zo constant mogelijk voor de beste werking van de sensoren.
Richtlijnen voor monsterleidingen
Selecteer een goed, representatief monsternamepunt voor de beste prestaties van het instrument.
Het monster moet representatief zijn voor het hele systeem.
Om onregelmatige metingen te voorkomen:
• Neem monsters van locaties die zich op voldoende afstand bevinden van punten waar chemische
stoffen aan de processtroom worden toegevoegd.
• Zorg ervoor dat de monsters voldoende worden gemengd.
Nederlands
159

• Zorg ervoor dat alle chemische reacties uitgewerkt zijn.
Mechanische installatie
Het paneel bevestigen
Afbeelding 5 toont de montageafmetingen. Zie de afbeelding en volg de stappen voor bevestiging
van het paneel.
1. Breng de bevestigingsschroeven aan op het montageoppervlak. Aan muurstijlen bevestigen of
muurpluggen gebruiken. Laat genoeg ruimte over tussen de kop van elke schroef en het
montageoppervlak, zodat het paneel hier tussen past.
2. Schuif de montagegaten van het paneel over de koppen van de bevestigingsschroeven en laat
het paneel naar beneden glijden totdat de bovenzijde van elk montagegat op de schroef rust.
3. Haal elke schroef aan om het paneel vast te zetten aan het montageoppervlak.
4. Breng de chloor- en pH-sensor (optioneel) aan in de doorstroomcellen. Raadpleeg de
gebruikshandleiding van de sensor voor informatie over het aanbrengen van de sensoren.
Afbeelding 5 Afmetingen van analyserpaneel voor reagensvrij chloor
160 Nederlands

