Hach-Lange CLT10 sc – страница 11
Инструкция к Hach-Lange CLT10 sc

Systemstart
Se till att alla mekaniska och elektriska uppgifter samt rörarbeten har utförts på rätt sätt innan flödet
genom systemet startas.
1. Slå på strömmen till styrenheten.
När strömmen slås på första gången visar styrenheten skärmbilderna för språk, datumformat och
datum/tid i ordningsföljd.
2. Ange språk, datum och tid i styrenheten om det inte redan är gjort. I användarhandboken till
styrenheten finns mer information om hur alternativen ställs in.
Styrenheten söker efter anslutna enheter.
3. Se till att rengöringsporten och gripprovsporten är stängda och öppna sedan PÅ-/AV-ventilen på
provlinjen för att starta vattenflödet genom systemet.
Klor- och pH-flödescellerna fylls med vatten.
4. Se till att flödesgivarens lysdiod lyser. Om lysdioden inte lyser justerar du flödesreglerventilen för
att öka flödet.
Flödesgivarens lysdiod lyser när flödet är tillräckligt för bra givarfunktion. Om flödet är för högt
kanske lysdioden inte lyser. Se till att flottören är ungefärligt inriktad mot
flödesinriktningsmarkeringen.
5. Kontrollera om det förekommer läckor eller blockeringar i ledningar och flödesceller. Stäng av
flödet till panelen om du upptäcker problem och utför de reparationer som krävs.
6. När flödet i systemet är tillräckligt rensar du eventuella varningar som visas på styrenheten
genom att utföra de föreslagna åtgärderna.
7. Tryck på knappen HOME (startsida).
Huvudskärmbilden för mätning visas med mätvärden för klor, temperatur och pH (om en pH-
givare har anslutits).
Underhåll
F A R A
Flera risker. Endast kvalificerad personal får utföra de moment som beskrivs i den här delen av
dokumentet.
Ledningsbyte
Byt ledningarna minst en gång om året. Byt sköra, spruckna eller läckande ledningar omedelbart. Byt
gamla, missfärgade, förorenade eller skadade ledningar mot ledningar av samma diameter och typ
(Teflon
®
- eller PVDF-ledningar).
Rengöra en givares flödescell
Rengör en flödescell vid behov för att avlägsna avlagringar. Rengör en flödescell om den blir starkt
förorenad. Byt en flödescell om den blir skadad, missfärgad eller inte transparent. Du behöver inte ta
bort en flödescell från panelen för att rengöra den.
Observera: Använd aldrig rengöringsmedel eller ytaktiva ämnen vid rengöring av en klorflödescell.
1. Stoppa källflödet till panelen.
2. Ta bort klorgivaren och lägg den i en behållare som fyllts med ett klorerat vattenprov.
Observera: Koppla inte bort givaren från strömtillförseln. Om strömtillförseln kopplas bort måste givaren
konditioneras och kalibreras före användning.
Observera: Borttagning av en givare från en flödescell med ansluten givarkabel orsakar att givarens
signalutmatning ändras. I användarhandboken till styrenheten finns mer information.
3. Skölj flödescellen med vatten och skrubba flödescellen med en mjuk borste för att avlägsna
avlagringar.
4. Skölj flödescellen med vatten.
Svenska
201

5. Om flödescellen inte är tillräckligt ren låter du den ligga i en 1:3-blandning av 3-5 %
vätesuperoxidlösning och ättika.
6. Skölj flödescellen med vatten.
7. Sätt tillbaka givaren i flödescellen och starta provflödet.
Byta flödesgivaren
Under normala förhållanden krävs inget regelbundet underhåll eller utbyte av flödesgivaren. Om
LED-flödesindikatorn inte lyser när flottören är vid eller ovanför flottörinriktningsmarkeringen och
strömmatning sker kan dock givaren behöva bytas. Byt ut flödesgivaren med hjälp av de illustrerade
anvisningarna nedan.
Observera: Du behöver inte ta bort klorgivaren, tömma flödescellen eller stänga av strömmen till styrenheten vid
byte av flödesgivaren.
202 Svenska

Svenska 203

Byta flödesreglerventilen
204 Svenska

Felsökning
Händelselogg
Instrumentet framställer en händelselogg för varje givare. I händelseloggen lagras olika händelser
som inträffar i enheterna, t.ex. genomförda kalibreringar, ändrade kalibreringsalternativ, osv. En lista
över tänkbara händelser visas nedan. Händelseloggen kan läsas ut i ett CSV-format. Anvisningar om
nedladdning av loggarna finns i användarhandboken till styrenheten.
Tabell 1 Händelselogg
Händelse Beskrivning
Strömmen på Strömmen slogs på.
Flash Failure Det är fel på den externa blixten eller den är skadad..
1pointpHCalibration_Start Start av enpunkts provkalibrering för pH
1pointpHCalibration_End Avslutad enpunkts provkalibrering för pH
2pointpHCalibration_Start Start av tvåpunkts provkalibrering för pH
2pointpHCalibration_End Avslutad tvåpunkts provkalibrering för pH
1pointBufferpHCalibration_Start Start av enpunkts buffertkalibrering för pH
1pointBufferpHCalibration_End Avslutad enpunkts buffertkalibrering för pH
2pointBufferpHCalibration_Start Start av tvåpunkts buffertkalibrering för pH
2pointBufferpHCalibration_End Avslutad tvåpunkts buffertkalibrering för pH
TempCalibration_Start Start av temperaturkalibrering
TempCalibration_End Avslutad temperaturkalibrering
1pointChemZeroCL2_Start Start av enpunkts kemisk nollkalibrering för klor
1pointChemZeroCL2_End Avslutad enpunkts kemisk nollkalibrering för klor
1pointElecZeroCL2_Start Start av enpunkts elektrisk nollkalibrering för klor
1pointElecZeroCL2_End Avslutad enpunkts elektrisk nollkalibrering för klor
1pointProcessConc_Start Start av enpunkts processkoncentration för klor
1pointProcessConc _End Avslutad enpunkts processkoncentration för klor
2pointChemCL2_Start Start av tvåpunkts kemisk kalibrering för klor
2pointChemCL2_End Avslutad tvåpunkts kemisk kalibrering för klor
2pointElecCL2_Start Start av tvåpunkts elektrisk kalibrering för klor
2pointElecCL2_End Avslutad tvåpunkts elektrisk kalibrering för klor
CL2CalSetDefault Klorkalibreringen återställdes till standard.
pHCalSetDefault pH-kalibreringsdata återställdes till standard.
TempCalSetDefault Temperaturkalibreringsdata återställdes till standard.
AllCalSetDefault Alla givarkalibreringsdata återställdes till standard.
CL2CalOptionChanged Alternativet för klorkalibrering ändrades.
pHCalOptionChanged Alternativet för pH-kalibrering ändrades.
TempCalOptionChanged Alternativet för temperaturkalibrering ändrades.
SensorConfChanged Givarkonfigurationen ändrades.
Svenska 205

Tabell 1 Händelselogg (fortsättning)
Händelse Beskrivning
ResetCL2CalHist CL2-kalibreringshistoriken återställdes.
ResetpH CalHist pH-kalibreringshistoriken återställdes.
ResetTemp CalHist Historiken över temperaturkalibrering återställdes.
ResetAllSensorsCalHist All givarkalibreringshistorik återställdes.
ResetCL2Sensor CL2-kalibreringsdata (antal givardagar, kalibreringshistorik och
kalibreringsdata) återställdes till standard.
ResetpHSensor pH-kalibreringsdata (antal givardagar, kalibreringshistorik och kalibreringsdata)
återställdes till standard.
ResetTempSensor Temperaturkalibreringsdata (antal givardagar, kalibreringshistorik och
kalibreringsdata) återställdes till standard.
ResetAllSensors Alla givarkalibreringsdata (antal givardagar, kalibreringshistorik och
kalibreringsdata) återställdes till standard.
Flow Detection Närhetsgivarens status har ändrats (tillräckligt eller inte tillräckligt flöde).
Fellista
Fel kan uppstå av olika anledningar. Givarens mätvärde blinkar på displayen. Alla utgångar låses när
det specificeras i instrumentets meny. Visa givarfel genom att trycka på knappen MENU och välja
Sensor Diag, Error List (Sensordiag., Fellista). En lista över tänkbara fel visas nedan.
Tabell 2 Fellista för givaren
Fel Beskrivning Åtgärd
CL CAL REQD (Klor,
En klorkalibrering och/eller pH-
Kalibrera klorgivaren och/eller pH-
kalibrering krävs)
kalibrering krävs.
elektroden.
Klor- och/eller pH-mätningen har
förändrats tillräckligt mycket för att
orsaka varningslarmet Cal Watch. I
användarhandboken till klorgivaren
finns mer information.
CL MAINT REQD (Klor,
Underhåll av klorgivaren krävs..
Utför givarunderhåll och upprepa sedan
underhåll krävs)
kalibreringen eller byt givaren. I
Lutningen är mindre än 30 % eller mer
användarhandboken till klorgivaren finns
än 300 % av standardvärdet.
mer information.
Standardlutningen är 100 mV/ppm
(100 %)
CL MAINT REQD (Klor,
Underhåll av klorgivaren krävs..
Utför givarunderhåll och upprepa sedan
underhåll krävs)
kalibreringen eller byt givaren. I
Förskjutningen är för hög (mer än
användarhandboken till klorgivaren finns
±50 mV).
mer information.
PH TOO LOW (pH för lågt) pH-värdet är lägre än 0 pH. Kalibrera eller byt pH-givaren.
PH TOO HIGH (pH för
pH-värdet är högre än 14 pH.
högt)
PH SLOPE FAIL (pH,
Lutningen är utanför intervallet på
Rengör pH-elektroden och upprepa
lutningsfel)
-45 till -65 mV/pH.
sedan kalibreringen med ny buffert eller
prov eller byt elektroden.
PH OFFSET FAIL (pH,
Förskjutningen är utanför ±60 mV. Rengör pH-givaren och upprepa sedan
förskjutningsfel)
kalibreringen med ny buffert eller prov
eller byt givaren.
206 Svenska

Tabell 2 Fellista för givaren (fortsättning)
Fel Beskrivning Åtgärd
PH OFFSET FAIL (pH,
Förskjutningen är utanför ±60 mV. Rengör pH-givaren, byt saltbryggan och
förskjutningsfel)
elektrolyten. Upprepa därefter
kalibreringen med ny buffert eller nytt
prov eller byt ut elektroden.
TEMP TOO LOW (Temp.
Temperaturen är lägre än 0 °C. Kalibrera temperaturen eller byt pH-
för låg)
elektroden.
TEMP TOO HIGH (Temp.
Temperaturen är högre än 100 °C.
för hög)
TEMP FAIL (Temp.fel) Förskjutningen är högre än 5,0 °C eller
Kalibrera temperaturen eller byt pH-
lägre än -5,0 °C.
elektroden.
NO FLOW (Inget flöde) Flödesnivån är för låg. Öka flödet.
Lista över varningar
En varning påverkar inte menyernas, reläernas eller utgångarnas funktion. En varningsikon blinkar
och ett meddelande visas längst ner på displayen för mätning. Visa givarvarningar genom att trycka
på knappen MENU och välja Sensor Diag, Warning List (Givardiag., Varningslista). En lista över
tänkbara varningar visas nedan.
Tabell 3 Varningslista för givaren
Varning Beskrivning Åtgärd
CL CAL RECD (Klorkalibering
En klorkalibrering och/eller pH-kalibrering
Kalibrera klorgivaren och/eller
rek.)
rekommenderas.
pH-elektroden.
Klor- och/eller pH-mätningen har ändrats
tillräckligt mycket för att orsaka ett Cal Watch-
varningslarm (Kal.bevakn.). I
användarhandböckerna till givarna finns mer
information.
CL CAL RECD (Klorkalibering
En klorkalibrering rekommenderas.
Kalibrera klorgivaren.
rek.)
Inga klorkalibreringsdata finns (givare med
standarddata för kalibrering).
PH CAL RECD (pH-kalibrering
En pH-kalibrering rekommenderas.
Kalibrera pH-elektroden.
rek.)
Inga pH-kalibreringsdata finns (givare med
standarddata för kalibrering).
TEMP CAL RECD
En temperaturkalibrering rekommenderas.
Kalibrera temperaturen.
(Temperaturkalibrering rek.)
Inga kalibreringsdata för temperatur finns
(givare med standarddata för kalibrering).
CL CAL TO DO (Klorkalibrering,
Värdet för Sensor Days (Givardagar) för
Kalibrera klorgivaren.
att göra)
klorgivaren är högre än värdet för Cal
Reminder (Kal.påminnelse).
PH CAL TO DO (pH-kalibrering,
Värdet för Sensor Days (Givardagar) för pH-
Kalibrera pH-elektroden.
att göra)
givaren är högre än värdet för Cal Reminder
(Kal.påminnelse).
TEMP CAL TO DO
Värdet för Sensor Days (Givardagar) för
Kalibrera temperaturen.
(Temperaturkalibrering, att göra)
temperaturgivaren är högre än värdet för Cal
Reminder (Kal.påminnelse).
Svenska 207

Tabell 3 Varningslista för givaren (fortsättning)
Varning Beskrivning Åtgärd
CL MAINT RECD (Klor,
Underhåll av klorgivaren rekommenderas.
Utför givarunderhåll och
underhåll, rek.)
upprepa sedan kalibreringen
Lutningen är 30 till 45 % av standardvärdet
eller byt givaren.
eller lutningen är 250 till 300 % av
standardvärdet.
Standardlutningen är 100 mV/ppm (100 %)
CL MAINT RECD (Klor,
Underhåll av klorgivaren rekommenderas.
Utför givarunderhåll och
underhåll, rek.)
upprepa sedan kalibreringen
Förskjutningen är -50 mV till 45 mV eller
eller byt givaren.
förskjutningen är 45 mV till 50 mV.
PH MAINT RECD (pH, underhåll
Underhåll av pH-elektroden rekommenderas.
Rengör pH-elektroden och
rek.)
upprepa sedan kalibreringen
Lutningen är utanför intervallet på -50 till
med ny buffert eller prov eller
-61 mV/pH.
byt elektrod.
PH MAINT RECD (pH, underhåll
Underhåll av pH-elektroden rekommenderas.
Rengör givaren och upprepa
rek.)
kalibreringen eller byt ut
Förskjutningen är utanför ±45 mV men inom
givaren.
±60 mV.
PH MAINT RECD (pH, underhåll
Underhåll av pH-elektroden rekommenderas.
Rengör pH-elektroden, byt
rek.)
saltbryggan och
Förskjutningen är utanför ±45 mV men inom
standardcellösningen och
±60 mV.
upprepa därefter kalibreringen
eller byt elektroden.
T MAINT RECD (Temperatur,
Temperaturförskjutningen är utanför ±3 °C
Kalibrera temperaturen.
underhåll rek.)
men inom ±5 °C.
Reservdelar och tillbehör
V A R N I N G
Risk för personskada. Användning av ej godkända delar kan leda till personskador eller skador på
instrumentet eller till att utrustningen inte fungerar som den ska. Reservdelar i det här avsnittet är
godkända av tillverkaren.
Observera: Produkt- och artikelnummer kan variera i olika försäljningsregioner. Kontakta lämplig återförsäljare eller
se företagets webbsida för att få kontaktinformation.
Delar
Beskrivning Produktnr.
Kabel, gateway till styrenhet, 1 m 6122400
Kabelenhet, 4 stift, skärmad, flödesgivare, 2 m 9160900
Kabelenhet, 5 stift, skärmad, M12, klorgivare, 1 m 9160300
Engelsk:
9159200 (1/4 tum)
Koppling, inloppsport för klorflödescell
Metrisk:
9196400 (6 mm)
Engelsk:
9159300 (3/8 tum)
Snabbkoppling, utloppsport för klorflödescell eller inloppsport för pH-flödescell
Metrisk:
9196500 (10 mm)
208 Svenska

Reservdelar och tillbehör (fortsättning)
Beskrivning Produktnr.
Engelsk:
9196900 (1/2 tum)
Koppling, vinklad, utloppsport för pH-flödescell
Metrisk:
9197000 (12 mm)
Flottör, flödesgivare 9159100
Engelsk: 9198400
Flödescellenhet, klor
Metrisk: 9198500
Engelsk: 9180200
Flödescellenhet, pH-kombination
Metrisk: 9180400
Flödescellenhet, pHD
Engelsk: 9180100
med tätning
Metrisk: 9180300
Endast flödescellstomme (pH) 9159700
Flödescellblock, klor 9158900
Flödesreglerventil 9159000
Flödesreglerventilsats 9198600
Flödesgivare 9160800
Gateway, digital 9180500
Låsring, klorflödescell 9196200
Låsring, pH-flödescell 60F2032-001
O-ring, flödesreglerventil (2x) (nr 2-108, Viton) 9159600
O-ring, pH-flödescell (nr 2-228, Viton) 5H1223
O-ring, tätning, klorflödescell (nr 2-123, Viton) 9196300
O-ring, delad ring (M25 x 2,5) 9181800
Plugg, klorflödescell, 1/2 tum 9159500
Skruv, klorflödescell (2x) (10-32 x 1,75 Lg Phillps, koniskt huvud) 4422200
Skruv, pH-flödescell (2x) (10-32 x 0,5 Lg Phillps, koniskt huvud) 561211
Täckplugg, pH-flödescell 9198000
Tätning, klorflödescell 9196100
Tätning, pH-kombinationsgivere, 3/4 tum 9159800
Tätning, pHD-flödescell, 1 tum 60F2021-001
Delad ring, klorflödescell 9181700
Ledning, provflöde, 1/4 tum x 2 m 4743800
Ledning, provflöde, 3/8 tim x 18 tum 9198100
Ledning, avloppsflöde, 1/2 tum x 2 m 9198200
Ventil, gripprovsport 9005300
Ventil, snabbkoppling, rengöringsport 6166300
Svenska 209

Tillbehör
Beskrivning Produktnr.
Surgöringssats LZY051
Sats med tryckregulator för provkonditionering 9159900
210 Svenska

Съдържание
Спецификации на страница 211 Поддръжка на страница 220
Обща информация на страница 211 Отстраняване на повреди на страница 224
Инсталиране на страница 216 Резервни части и аксесоари на страница 228
Операция на страница 219
Спецификации
Спецификациите могат да се променят без уведомяване.
Спецификация Детайл
Описание на компонентите Амперометричен панел за мониториране на хлор
без реагент с хлор сензор, сензор за изтичане,
допълнителен pH комбиниран или pHD сензор,
проточни клетки, sc контролер и цифров шлюз
Работна на температура от 0 до 45°C (от 0 до 113°F)
Температура на съхранение (само панела) От -20 до 60° C (от -4 до 149° F)
Изисквания към захранването 12 VDC ± 10%, максимално 100 mA (осигурено от sc
контролер)
Размери на панела (Д x Ш x В) 48.3 X 49.5 X 15.1 см (19 X 19.5 X 5.95 инча) с
компоненти, монтирани на панела
Тегло Приблизително 5,4 кг (само панела и празните
компоненти, монтирани на него)
Скорост на течение Обхват: 30 - 50 л/час (7,9 - 13,2 галона/час)
Оптимално: 40 л/час (10,5 галона/час)
Платформа на контролер модели със sc контролер
Обща информация
При никакви обстоятелства производителят няма да носи отговорност за преки, непреки,
специални, инцидентни или последващи щети, които са резултат от дефект или пропуск в това
ръководство. Производителят си запазва правото да прави промени в това ръководство и в
описаните в него продукти във всеки момент и без предупреждение или поемане на
задължения. Коригираните издания можете да намерите на уебсайта на производителя.
Информация за безопасността
З а б е л е ж к а
Производителят не носи отговорност за никакви повреди, възникнали в резултат на погрешно приложение
или използване на този продукт, включително, без ограничения, преки, случайни или възникнали
впоследствие щети, и се отхвърля всяка отговорност към такива щети в пълната позволена степен от
действащото законодателство. Потребителят носи пълна отговорност за установяване на критични за
приложението рискове и монтаж на подходящите механизми за подсигуряване на процесите по време на
възможна неизправност на оборудването.
Моля, внимателно прочетете ръководството преди разопаковане, инсталиране и експлоатация
на оборудването. Обръщайте внимание на всички твърдения за опасност и предпазливост.
Пренебрегването им може да има за резултат сериозни наранявания на оператора или
повреда на оборудването.
(Уверете се, че защитата, осигурена от това оборудване, не е занижена. Не го използвайте и
не го монтирайте по начин, различен от определения в това ръководство.
български
211

Използване на информация за опасностите
О П А С Н О С Т
Показва наличие на потенциална или непосредствена опасна ситуация, която ако не бъде избегната, ще
предизвика смъртоносно или сериозно нараняване.
П Р Е Д У П Р Е Ж Д Е Н И Е
Указва потенциално или непосредствено опасна ситуация, която, ако не бъде избегната, може да доведе
до смърт или сериозно нараняване.
В Н И М А Н И Е
Показва наличие на потенциално опасна ситуация, която може да предизвика леко или средно
нараняване.
З а б е л е ж к а
Показва ситуация, която ако не бъде избегната, може да предизвика повреда на инструмента.
Информация, която изисква специално изтъкване.
Предпазни надписи
Прочетете всички надписи и маркировки, прикрепени към инструмента. Неспазването им може
да доведе до физическо нараняване или повреда на инструмента. Символът върху
инструмента е описан в ръководството с препоръка за повишено внимание.
Ако е отбелязан върху инструмента, настоящият символ означава, че е необходимо да се
направи справка с ръководството за работа и/или информацията за безопасност.
След 12 август 2005 г. електрическо оборудване, маркирано с този символ, не може да бъде
изхвърляно в обществените сметища в Европа. В съответствие с Европейските местни и
национални разпоредби (Директива 2002/98/ЕО на ЕС) европейските потребители на
електрическо оборудване трябва да връщат старото или употребено оборудване на
производителя за унищожаване без заплащане на такса от потребителя.
Забележка: За връщане за рециклиране, моля, свържете се с производителя или доставчика на
оборудването за инструкции как да върнете употребеното оборудване, неговите аксесоари, доставени от
производителя, и всички допълнителни компоненти, за да бъдат правилно унищожени.
Общ преглед на продукта
Този продукт е предназначен основно за употреба в комуналното водоснабдяване. За да бъде
приложимо за производителя, преди монтажа на това устройство е необходимо да се
установи местонахождението на отпадниводи и индустриални приложения.
Анализаторът на хлор без реагенти следи концентрацията на несъдържащ или общ остатъчен
хлор във водата и е най-надежден, когато остатъчната концентрация на хлор е по-висока от
0,1 ppm (mg/L). Комбинацията от контролер по sc модел с хлор сензор с три електрода,
допълнителен pH сензор и сензор за изтичане осигуряват възможно най-добрата система за
мониторинг. И двата сензора измерват пробна температура. pH сензорът пренася измерената
стойност на температурата на дисплея на контролера. Хлор сензорът прилага измерената си
температура вътрешно и не пренася измерената стойност на дисплея на контролера. Като
допълнителни принадлежности се предоставят комплект с регулатор на налягането и
почистващ комплект.
Хлор сензорът и сензорът за pH стоят в монтирани в панел, серийно насочени проточни
клетки. Проточните клетки поддържат контакта сензор-проба и подпомагат за изсушаването на
сензорите, когато системата не функционира. Фигура 1, Фигура 2, Фигура 3 показва общ
преглед на системите и проточните клетки.
Всеки сензор се свързва с контролера чрез шлюз, монтиран на панела. Шлюзът преобразува
аналоговите сигнали от сензора в цифрови сигнали, използвани от контролера. Контролерът
преобразува цифровите сигнали в измерени стойности на хлор, pH и температура и ги
извежда на дисплея. Контролерът подава захранване към сензорите и цифровия шлюз.
212
български

Контролерът може да се конфигурира така, че да активира алармено състояние или
предупреждение, ако измерените стойности преминат над или паднат под указаните
стойности. За информация относно аларми на контролера, направете справка с
ръководството за потребителя на контролера.
Забележка: За информация относно начина на съхранение на сензорите, когато системата не
функционира, разгледайте ръководствата на потребителя към сензора.
Предлагат се две конфигурации на анализиращото устройство: опция за вземане на проба
чрез загребване и pH опция (без pH опция). Към опцията за вземане на проба чрез загребване
се предоставят монтажния панел, хлор сензора и проточна клетка, проточна клетка за рН без
сензор, сензор за изтичане, цифров шлюз и контролер. Към рН опцията се предоставят
посочените елементи плюс рН сензор.
Шибърът за регулиране на разхода регулира пробния поток. За правилното фукциониране на
сензора се препоръчва постоянна скорост на течение от 30 - 50 L/h. Оптималната скорост на
течение е 40 L/hour. Единичен светодиод, поставен на сензора за изтичане, показва дали
скоростта на пробно течение е достатъчна. Ако светодиодът не е включен, скоростта на
течение трябва да се пренастрои, докато той светне. Точната скорост на течение не е важна
при условие, че светодиодът е включен, но в така установените спецификации течението
трябва да остане постоянно.
Фигура 1 Преглед на системата
1 Контролер 7 Вътрешна проба
2 Шлюз 8 Клапан, спирателен (осигурено от потребителя)
3 Кабел на хлор сензор 9 Проточна хлор клетка
4 pH сензор (по избор) 10 Кабел на сензора за изтичане
5 Тръба за източване на пробата 11 Хлор сензор
6 Проточна pH клетка
български 213

Фигура 2 Общ преглед на проточна хлор клетка
1 Сензор за изтичане 8 Фитинг на външна проба
• Bulgarian: фитинг за настройка на скоростта -
3/8 инча OD тръба
• Метричен: фитинг за настройка на скоростта -
10 мм OD тръба
2 Щепсел, 1/8 инча NPTF 9 Обозначение за подравняване на хлор сензор
3 Обозначение за флотационно подравняване 10 Клапан, отвор за почистване, 1/4 инча OD
тръба
4 Щепсел, 1/2 инча NPTF 11 Вход на проточна клетка
• Bulgarian: фитинг за настройка на скоростта -
1/4 инча OD тръба
• Метричен: фитинг за настройка на скоростта
- 6 мм OD тръба
5 Фиксиращ пръстен 12 Проточна клетка
6 Спойваща втулка 13 Шибър за регулиране на разхода
7 O-пръстен 14 Флотационен
214 български

Фигура 3 Общ преглед на проточна pH клетка
1 Фиксиращ пръстен 4 Фитинг на външна проба
Bulgarian: колянов фитинг за настройка на
скоростта - 1/2 инча OD
Метричен: колянов фитинг за настройка на
скоростта - 12 мм OD
2 Херметизираща заготовка 5 Отвор за вземане на проба чрез загребване
3 O-пръстен 6 Вход на проточна клетка
• Bulgarian: фитинг за настройка на скоростта -
3/8 инча OD
• Метричен: фитинг за настройка на скоростта -
10 мм OD
Компоненти на продукта
Проверете дали всички компоненти са получени. Вижте Фигура 1 на страница 213. Ако някои
от компонентите липсват или са повредени, се свържете незабавно с производителя или с
търговски представител.
български
215

Фигура 4 Панел за хлорен анализ без реагент
1 Системен панел 3 Тръба, 12 мм (½ инча)
2 Кабелът на конектора за свързване на шлюза с
4 Хлор сензор
контролера, 1 м (3,3 фута)
Инсталиране
Съображения относно монтажа
• Най-напред изпълнете действията, свързани с механичния монтаж, след това
електрическите стъпки на монтажа и на последно място водопроводните дейности.
• Всички фитинги са предназначени да се затягат само на ръка.
• Панелът е предназначен за поставяне на стена или конзола. Окачете или позиционирайте
панела на достъпно място.
• Не поставяйте панела до топлинен източник.
• Не окачвайте панела на място с очестени вибрации.
• Не окачвайте панела на пряка слънчева светлина.
• Монтирайте панела на закрито или в оградена зона.
• Предотвратете натрупването на конденз по панела и компонентите на панела, особено в
поточната клетка, датчика и мястото, в което се свързват датчика и кабела.
• Използвайте Teflon
®
или PVDF линейни полиетиленови тръби с ниска плътност за
захранващия тръбопровод за вземане на проби и поддържайте дължината на тръбите
възможно най-малка, за да сведете до минимум времето на закъснение.
• Налягането при вземане на проби трябва да е достатъчно за поддържане на непрекъснато
захранване на сензорите с вода. LED индокатор върху сензора за изтичане ще свети
дотогава, докато потокът е достатъчен.
• За да осигурите най-добро функциониране на сензора, поддържайте скоростта на изтичане
възможно най-постоянна.
Указания за пробна линия
За оптимални характеристики на инструментите избирайте добра, надеждна точка за вземане
на проби. Пробата трябва да е представителна за цялата система.
За да предотвартите погрешните измервания:
216
български

• Вземайте пробите от места, които се намират на достатъчно разстояние от точки, в които се
добавят химически вещества към обработваното течение.
• Проверете дали пробите са добре смесени.
• Проверявайте дали всички химически реакции са изпълнени.
Механично монтиране
Окачете панела
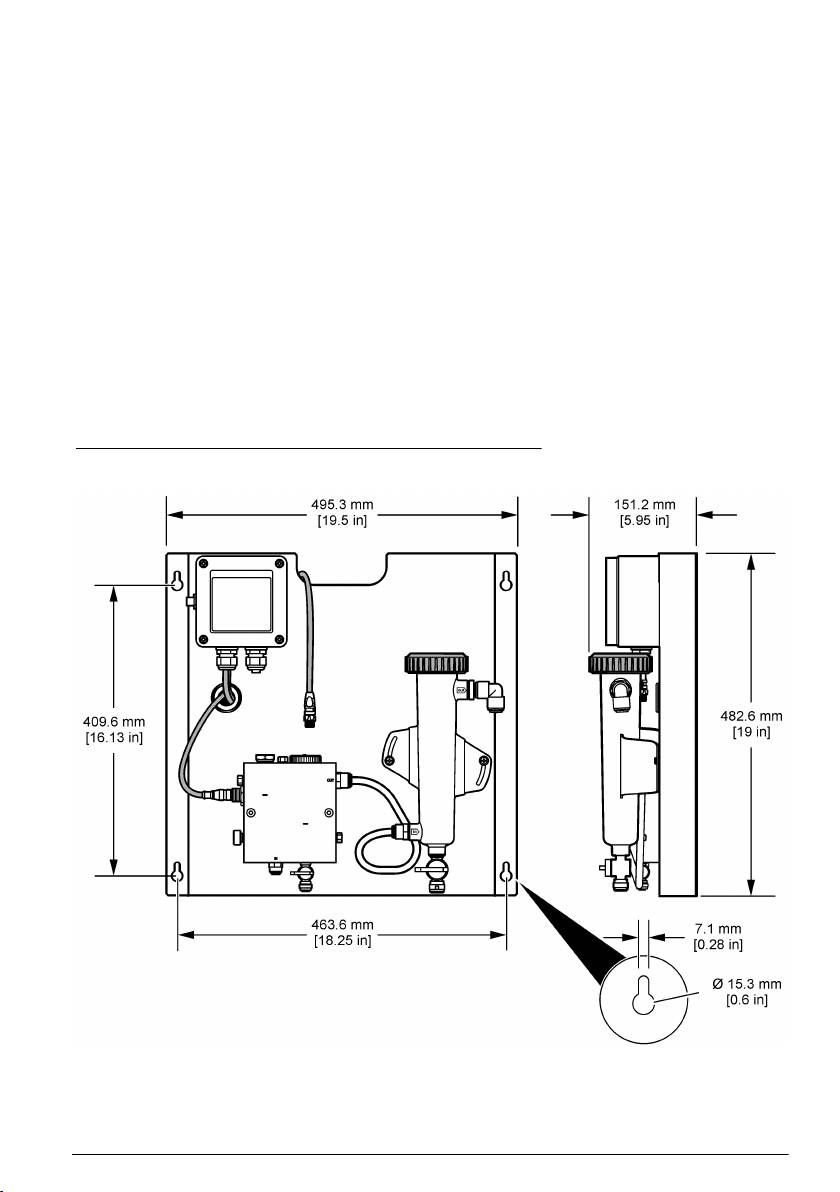
Фигура 5 посочва размерите на окачване. Разгледайте фигурата и следвайте стъпките, за да
окачите панела.
1. Поставете крепежните болтове на окачващата повърхност. Окачете на стенните щифтове
или използвайте анкерни болтове. Оставете достатъчно разстояние между главата на
всеки винт и окачващата повърхност, така че панелът да застане плътно между тях.
2. Плъзнете монтажните отвори на панела над главите на крепежните болтове и позволете
на панела да се плъзне надолу, докато върхът на всеки монтажен отвор застане върху
корпуса на болта.
3. Затегнете всеки болт, за да закрепите панела към монтажната повърхност.
4. Монтирайте хлор сензора и сензора за pH (по избор) в поточните камери. За информация
относно монтажа на сензорите, разгледайте ръководството на потребителя.
Фигура 5 Размери на панел за хлорен анализ без реагент
български 217

Електрически монтаж
Окабелете панела
П Р Е Д У П Р Е Ж Д Е Н И Е
Опасност от електрически удар. Винаги изключвайте захранването на инструмент, когато
извършвате електрическо свързване.
Контролерът доставя захранване до сензорите и цифровия шлюз.
1. Отстранете мощността от контролера.
2. Свържете кабелите на pH сензора (по избор) с шлюза. За информация относно начина на
инсталиране на проточните клетки или как да свържете сензора с шлюза, разгледайте
ръководството на потребителя към сензора.
3. Свържете хлор сензора с шлюза. За информация относно начина на свързване на сензора
с шлюза, разгледайте ръководството на потребителя към сензора.
Забележка: При доставката на панела хлор сензорът е залепен отпред на панела, близо до
мястото на свързване на сензора.
4. Свържете контролера с шлюза с кабела на конектора с дължина 1 м, доставен заедно с
панела.
Водопроводни дейности
Поставете панела вертикално
Непременно съблюдавайте спецификациите за размера на всички тръби и фитинги на панела.
За да се предотврати насловане или обратно налягане, пътят на течението трябва да се
увеличава в диаметър, докато водата тече през системата. Фигура 1 на страница 213
представя общ преглед на водопроводните връзки.
1. Монтирайте тръбите върху пробните входни и изходни фитинги.
2. Проверете дали почистващият отвор на проточната хлор клетка е затворен.
3. Проверете дали отворът за вземане на проба чрез загребване на проточната pH клетка е
затворен.
4. Отворете проточния клапан при пробния канал и оставете водата да преминава през
системата.
5. Проверете дали от някоя тръба, фитингите на клапаните или проточните клетки няма
течове.
6. За да сведете до минимум въздушните мехурчета, проточната pH клетка може да се
наклони под ъгъл между 0º и 30º, както е показано на Фигура 6.
218
български

Фигура 6 накланяне на проточната pH клетка
Операция
Навигация на потребителя
Вижте документацията за контролера за описание на клавиатурата и информация относно
навигацията
Конфигуриране на системата
Конфигурирането и калибрирането на сензора се извършват от потребителския интерфейс на
контролера. За допълнителна информация относно начина за конфигуриране на сензор,
разгледайте ръководството на потребителя към сензора.
Контролер с модел sc трябва да е свързан с шлюза.
1. От главното меню на контролера изберете "Sensor Setup" (Настройка на сензор).
Извежда се менюто за настройка на хлорния шлюз (CGW).
2. Изберете "Configure" (Конфигуриране) и персонализирайте записите. Потвърдете всеки
запис, за да се запишат промените, и се върнете обратно в меню "Configure"
(Конфигуриране).
Опция Описание
Редактиране на име Редактирайте името на сензора
български 219

Опция Описание
Изберете "Parameter—Chlorine" (Параметър -
Изберете параметрите, които искате да
хлор) (общ или свободен), pH (по избор),
конфигурирате. Конфигурирането на избрания
"Temperature" (Температура) (по избор)
параметър изисква допълнителни стъпки. За
допълнителна информация разгледайте
ръководството на потребителя към сензора.
За да нулирате настройките, нулирайте
Нулирайте всички настройки до фабричните им
"Defaults—Confirm" (По подразбиране -
стойности.
потвърди).
Стартиране на системата
Преди да пуснете течение през системата се уверете, че всички механични, електрически и
водопроводни стъпки са правилно изпълнени.
1. Включете захранването на контролера.
При първото си включване на дисплея на контролера се извеждат екрани за езика,
формата на датата и дата/час.
2. Настройте езика, датата и часа на контролера, ако не е направено предварително. За
допълнителна информация как да направите това, разгледайте ръководството на
потребителя към контролера.
Контролерът провежда търсене на свързани устройства.
3. Уверете се, че почистващия отвор и отворът за вземане на проба чрез загребване са
затворени, след което отворете клапана ON/OFF (ВКЛ./ИЗКЛ.) върху канала за вземане на
проби, за да пуснете водата да тече през системата.
Проточните хлор и pH клетки ще се напълнят с вода.
4. Уверете се, че LED индикаторът на сензора за изтичане е включен. Ако LED индикаторът
не е включен, настройте регулиращия вентил на течението, за да ускорите потока.
LED индикаторът на сензора за изтичане ще се включи, когато течението стане достатъчно
силно, за да се осигури правилното функциониране на сензора. Ако потокът е прекалено
силен, LED индикаторът може да не е включен. Проверете дали поплавъкът е правилно
подравнен с обозначението за подравняване на течението.
5. Проверете тръбите и проточните клетки за наличие на течове или запушвания. Ако
установите наличие на някакви проблеми, спрете притока към панела и извършете
необходимите ремонтни дейности.
6. Когато системата вече е снабдена с необходимото течение, изтрийте всички
предупреждения, които са се появили на дисплея на контролера, като извършите
необходимите операции.
7. Натиснете клавиша HOME (НАЧАЛО).
Появява се основния екран на измерването и показва измерените стойности на хлора,
температурата и pH (ако има включен pH сензор).
Поддръжка
О П А С Н О С Т
Множествена опасност. Задачите, описани в този раздел на ръководството, трябва да се
извършват само от квалифициран персонал.
Смяна на тръби
Сменяйте тръбите поне веднъж годишно. Незабавно сменете тръбата, ако е крехка, по нея
има пукнатини или течове. Сменете тръбата, ако е остаряла, обезцветена, замърсена или
повредена, с тръба със същия диаметър и от същия тип(Teflon
®
или PVDF).
220
български

