Hach-Lange POLYMETRON 9610 sc SiO2 Installation – страница 21
Инструкция к Hach-Lange POLYMETRON 9610 sc SiO2 Installation

H O I A T U S
Juurdepääsukatte eemaldamine
Juhtmeklemmide ühendamiseks eemaldage juurdepääsukate. Vt
Elektrilöögi- ja süttimisoht. Toitejuhtmega mõõtevahendi kasutamisel
Joonis 11.
peab toitejuhe olema vooluvõrgust lihtsasti eemaldatav.
Joonis 11 Juurdepääsukatte eemaldamine
T E A D E
Veenduge, et kõik seadmed on ühendatud mõõtevahendiga vastavalt kohalikele,
regionaalsete ja riiklikele nõuetele.
Juurdepääsukorkide eemaldamine
Juhtige isoleerkanalis olevad juhtmed läbi juurdepääsuava. Vt Joonis 10.
Kummitihendiga korkide vabastamiseks lükake korke korpuse seest
väljapoole, seejärel eemaldage need väljastpoolt tõmmates. Eemaldage
vastavate elektriühenduste katted haamri ja kruvikeerajaga joonisel
Joonis 14 leheküljel
404 kujutatud viisil. Korpuse kaitseklassi säilimiseks
peavad kõik kasutamata pesad olema kaetud.
Joonis 10 Elektriühendused
Juhtmeühenduste ülevaade
Joonis 12 näitab kõiki võimalikke juhtmeühendusi. Kasutage õige
läbimõõduga juhet (vt Tehnilised andmed leheküljel
391).
1 Toide sisse (ainult toitejuhe), ilma
3 Andmevahetuse ja võrgumoodulid
maanduseta Ärge kasutage
(8 tk)
juhtmekanaliga.
2 Andmevahetuse ja võrgumoodulid
4 Toide sisse või välja (juhtmekanal
(3 tk)
või toitejuhe), maandus,
andmevahetuse ja võrgumoodulid
(8 tk)
eesti keel 401

Joonis 12 Peamise trükkplaadi ühendused
Toiteallikaga ühendamine
H O I A T U S
Elektrilöögi oht. Kasutage peamise kaitsemaandusühenduse puhul
rõngasklemmi.
H O I A T U S
Elektrilöögi ja süttimise oht. Veenduge, et kaasasolev juhe ja mittelukustuv pistik
vastavad riigitähise alusel kehtivatele nõuetele.
H O I A T U S
Elektrilöögi oht. Veenduge, et kaitsemaanduse elektrijuht kasutab
madala takistusega (vähem kui 0,1 oomi) ühendust. Ühendatud
traatjuht peab kasutama sama nimivoolu mis vahelduvvooluvõrgu
elektrijuht.
T E A D E
Kõnealust mõõtevahendit kasutatakse vaid ühefaasilise toitega.
Juhtme paigaldamine: tootja soovitab kasutada tihendatud
ühenduspunktiga valikulist juhet. Varuosade loendi leiate
hooldusjuhendist. Kliendipoolse juhtme kasutamisel peab see sisaldama
kolme 1,02 mm läbimõõduga elektrijuhti ning juhtme enda pikkus ei tohi
ületada kolme meetrit (10 jalga). Mõõtevahendi keskkonnanõuetele
vastavuseks paigaldage tihendiga tõmbetõkis. Vt Tehnilised andmed
1 Kaksikmonitori
4 Digitaalsisendid 7 Toide välja
leheküljel 391. Mõõtevahendi ühendamiseks toiteallikaga vt Tabel 3 või
ühendus
Tabel 4 ja Joonis 13.
2 Mõõtepea ühendus 5 Toide sisse 8 Toite märgutuli (põleb
= toide on
analüsaatoriga
ühendatud)
3 4–20 mA väljundid 6 Toitelüliti ja märgutuli
9 Releed
(põleb = analüsaator
töötab)
402 eesti keel

Tabel 3 Vahelduvvoolu toitejuhtmete ühendamise teave (ainult
Joonis 13 Toite ühendamine
vahelduvvoolutoitega mudelitel)
Klemm Kirjeldus Värvus – Põhja-
Värvus – EL
Ameerika
1 Kaitsemaanduse (PE)
Roheline Kollase triibuga
maandusklemm
roheline
2 Neutraalne (N) Valge Sinine
3 Faas (L1) Must Pruun
Tabel 4 Alalisvoolujuhtmete ühendamise teave (ainult
alalisvoolutoitega mudelitel)
Klemm Kirjeldus Värvus – Põhja-
Värvus – EL
Ameerika
1 Kaitsemaanduse (PE)
Roheline Kollase triibuga
klemm
roheline
2 24 V alalisvoolu
Must Must
miinusklemm (–)
3 24 V alalisvool (+) Punane Punane
eesti keel 403

Kaksikmonitori ühendamine
Joonis 14 Seadme ühendused
analüsaator
saab ühendada välise sc-kontrolleri. Ühendage Hachi
kaabel 6789400 välise sc-kontrolleriga ja analüsaatori kaksikmonitori
pessa. Vt Juhtmeühenduste ülevaade leheküljel 401.
Valikuliste seadmete ühendamine
Ühendage väljund- või sisendseadmete kaablid; vt Joonis 14. Kasutage
seadmetele vastava jämedusega juhet. Vt Tehnilised andmed
leheküljel 391. Seadme konfigureerimiseks vt kasutusjuhendit.
404 eesti keel

Ühendamine releedega
Ühendamine digitaalsisenditega
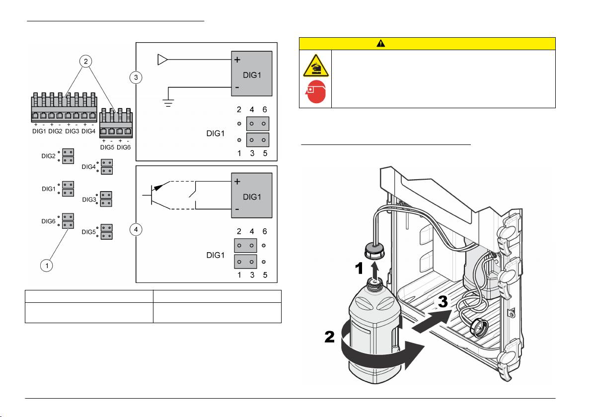
Analüsaator saab võtta vastu välisseadmest edastatud digitaalsignaali
O H T
(nt vooluhulgamõõtja signaal analüüsimise peatamiseks vedelikuvoolu
Elektrilöögi oht. Ärge ühendage kõrge- ja madalpinget. Veenduge, et
katkemise korral). Eraldatud sisendeid kasutatakse vastava sidekanali
relee ühendused kasutavad kõik kõrgepingelist vahelduvvoolu või
sisse-/väljalülitamiseks.
madalapingelist alalisvoolu.
Igat digitaalsisendit saab seadistada isoleeritud TTL-tüüpi digisisendina
või relee-/avatud kollektori tüüpi sisendina kasutamiseks. Vt Joonis 15.
E T T E V A A T U S T
Vaikimisi on sillused seadistatud isoleeritud TTL-tüüpi digitaalsisendi
Tuleoht. Relee peab olema aktiivkoormusel. Piirake vool releedele alati
jaoks. Seadme ühendamiseks vt Juhtmeühenduste ülevaade
välise sulavkaitsme või kaitselüliti abil. Järgige tehniliste andmete
leheküljel
401.
jaotises toodud releereitinguid.
E T T E V A A T U S T
Kemikaalidega kokkupuute oht. Järgige labori ohutusprotseduure ja
kasutage käideldavatele kemikaalidele vastavat kaitsevarustust.
Ohutuseeskirjad leiate käesolevatelt ohutuskaartidelt (MSDS/SDS).
T E A D E
Soovitav juhtmemõõt on jämedam kui 18 AWG.
analüsaator on releed proovi kontsentratsiooni alarmidele (2 tk),
analüsaatorisüsteemi hoiatusele ja analüsaatorisüsteemi väljalülitusele.
Seadme ühendamiseks vt Juhtmeühenduste ülevaade leheküljel 401
(NO = avakontakt, COM = ühisklemm, NC = sulgekontakt).
Ühendamine 4–20 mA väljunditega
4–20 mA väljunditega ühendamiseks kasutage varjestatud keerdpaariga
kaablit. Paigaldage varjestus salvesti või analüsaatori juhtmeotsa külge.
Ärge ühendage varjestust kaabli mõlemas otsas. Varjestamata kaabli
kasutamise tulemuseks võivad olla raadiosageduse emissioon või
lubatust kõrgem häiringutundlikkus.
Seadme ühendamiseks vt Juhtmeühenduste ülevaade leheküljel 401.
Juhtmete ja koormustakistuse tehniliste andmete kontrollimiseks vt
Tehnilised andmed leheküljel 391.
Märkus. 4-20 mA väljundeid ei saa kasutada kahe juhtmega (vooluahel) saatja
toitmiseks.
eesti keel 405

Joonis 15 Isoleeritud TTL-tüüpi digitaalsisend
Analüsaatorianumate paigaldamine
E T T E V A A T U S T
Kemikaalidega kokkupuute oht. Järgige labori ohutusprotseduure ja
kasutage käideldavatele kemikaalidele vastavat kaitsevarustust.
Ohutuseeskirjad leiate käesolevatelt ohutuskaartidelt (MSDS/SDS).
analüsaator paigaldamiseks vt Joonis 16. Tuvastage kõik anumad ja
paigaldage neile õige kork.
Joonis 16 Analüsaatorianuma paigaldamine
1 Sillus (12 tk) 3 Isoleeritud TTL-tüüpi digitaalsisend
2 Digitaalse sisendi ühendused 4 Relee-/avatud kollektori tüüpi
sisend
Lisamoodulite paigaldamine
Mooduleid saab lisada täiendavate väljundite, releede või sidevahendite
kasutamiseks. Vt mooduliga koos tarnitud dokumentatsiooni.
406 eesti keel

Magnetsegisti paigaldamine
Joonis 18 Magnetsegisti paigaldamine
Magnetsegisti kuulub paigalduskomplekti. Enne paigaldust tuleb
eemaldada lehtri kate, lehter ja kolorimeetri kate. Vt Joonis 17.
Paigaldage magnetsegisti kolorimeetri proovianumasse joonisel
näidatud viisil. Vt Joonis 18.
Joonis 17 Kolorimeetri katte ja lehtri eemaldamine
Ettevalmistused kasutamiseks
Seadme füüsiline paigaldus on nüüdseks lõpule viidud. Analüsaatori
esmakasutuseelseks seadistamiseks vt selle kasutusjuhendit.
eesti keel 407



HACH COMPANY World Headquarters
HACH LANGE GMBH
HACH LANGE Sàrl
P.O. Box 389, Loveland, CO 80539-0389 U.S.A.
Willstätterstraße 11
6, route de Compois
Tel. (970) 669-3050
D-40549 Düsseldorf, Germany
1222 Vésenaz
(800) 227-4224 (U.S.A. only)
Tel. +49 (0) 2 11 52 88-320
SWITZERLAND
Fax (970) 669-2932
Fax +49 (0) 2 11 52 88-210
Tel. +41 22 594 6400
orders@hach.com
info@hach-lange.de
Fax +41 22 594 6499
www.hach.com
www.hach-lange.de
©
Hach Company/Hach Lange GmbH, 2013. All rights reserved. Printed in Germany.

