Karcher HDS 12/14-4 ST Eco – page 3
Manual for Karcher HDS 12/14-4 ST Eco
-
1
Lire ce manuel d'utilisation original avant la première
utilisation de votre appareil, le respecter et le conser-
ver pour une utilisation ultérieure ou pour le futur propriétaire.
–
Avant la première mise en service, vous devez impérative-
ment avoir lu les consignes de sécurité N° 5.956-309 !
–
Contactez immédiatement le revendeur en cas d'avarie de
transport.
Instructions relatives aux ingrédients (REACH)
Les informations actuelles relatives aux ingrédients se trouvent
sous :
www.kaercher.com/REACH
Danger
Pour un danger immédiat qui peut avoir pour conséquence la
mort ou des blessures corporelles graves.
몇
Avertissement
Pour une situation potentiellement dangereuse qui peut avoir
pour conséquence des blessures corporelles graves ou la mort.
Attention
Pour une situation potentiellement dangereuse qui peut avoir
pour conséquence des blessures légères ou des dommages ma-
tériels.
Une utilisation incorrecte des jets haute pression peut
présenter des dangers. Le jet ne doit pas être dirigé
sur des personnes, animaux, installations électriques
actives ni sur l'appareil lui-même.
–
Respecter les dispositions légales nationales respectives
pour les jets de liquide.
–
Respecter les dispositions légales nationales respectives
pour la prévention des accidents. Les jets de liquides doivent
être contrôlés régulièrement et le résultat du contrôle consi-
gné par écrit.
–
Le dispositif de chauffage de l'appareil est une installation de
combustion. Les installations d'allumage doivent être contrô-
lées régulièrement en concordance avec les dispositions lé-
gales nationales respectives.
–
Pour le fonctionnement de l'installation dans des pièces il doit
exister une évacuation des gazes résiduaires (Tuyau de gaz
fumé sans interrompeur d'aspiration). En plus il doit avoir une
alimentation d'air frais suffisante.
–
Selon les dispositions nationales en vigueur, ce nettoyeur
haute pression doit être mis en service la première fois par
une personne compétente en cas d'utilisation profession-
nelle. KÄRCHER a déjà exécuté et documenté cette première
mise en service pour vous. La documentation à ce sujet vous
sera remise par le biais de votre Partenaire KÄRCHER sur
demande. Veuillez maintenir le numéro de pièce et le numéro
d'usine de l'appareil prêt en cas demande pour la documen-
tation.
–
Nous attirons votre attention sur le fait que l'appareil doit être
contrôlé régulièrement par une personne compétente selon
les dispositions nationales en vigueur. Adressez-vous pour
cela à votre partenaire KÄRCHER.
–
Respecter les consignes de sécurité fournies avec les déter-
gents utilisés (par exemple sur l'étiquette de l'emballage).
Table des matières
Protection de l’environnement
FR . . 1
Symboles utilisés dans le mode d'emploi
FR . . 1
Symboles sur l'appareil . . . .
FR . . 1
Consignes de sécurité générales
FR . . 1
Utilisation conforme. . . . . . .
FR . . 2
Fonction . . . . . . . . . . . . . . .
FR . . 2
Dispositifs de sécurité . . . . .
FR . . 2
Éléments de l'appareil. . . . .
FR . . 3
Mise en service . . . . . . . . . .
FR . . 4
Utilisation. . . . . . . . . . . . . . .
FR . . 4
Mise hors service . . . . . . . .
FR . . 6
Remisage . . . . . . . . . . . . . .
FR . . 6
Entreposage . . . . . . . . . . . .
FR . . 6
Transport. . . . . . . . . . . . . . .
FR . . 6
Caractéristiques techniques
FR . . 7
Entretien et maintenance . .
FR . . 9
Assistance en cas de panne
FR . 11
Accessoires. . . . . . . . . . . . .
FR . 13
Montage de l'installation . . .
FR . 14
Déclaration de conformité CE
FR . 18
Garantie . . . . . . . . . . . . . . .
FR . 18
Service après-vente . . . . . .
FR . 19
Essais périodiques . . . . . . .
FR . 20
Protection de l’environnement
Les matériaux constitutifs de l’emballage sont recy-
clables. Ne pas jeter les emballages dans les ordures
ménagères, mais les remettre à un système de recy-
clage.
Les appareils usés contiennent des matériaux pré-
cieux recyclables lesquels doivent être apportés à un
système de recyclage. Il est interdit de jeter les batte-
ries, l'huile et les substances similaires dans l'environ-
nement. Pour cette raison, utiliser des systèmes de
collecte adéquats afin d'éliminer les appareils hors
d'usage.
Ne jetez pas l'huile moteur, le fuel, le diesel ou l'essence dans
la nature. Protéger le sol et évacuer l'huile usée de façon favo-
rable à l'environnement.
Les détergents de Kärcher se mélangent bien (ASF (Office fé-
déral des routes et des digues)). Cela signifie que le fonctionne-
ment d'un déshuileur n'est pas gêné. Dans le chapitre
"Accessoires", vous trouverez une liste de détergents recom-
mandés.
Symboles utilisés dans le mode d'emploi
Symboles sur l'appareil
Risque de brûlure ! Avertissement de groupe-
ments chauds.
Consignes de sécurité générales
41
FR
-
2
Avant l'installation de l'appareil, il est conseillé de s'accorder
avec le ramoneur maître local.
Respecter à l'installation les instructions du droit de construction,
du droit d'industrie et de la protection d'immission. Nous attirons
l'attention sur les instructions, les directives et les normes ci-des-
sous mentionnées:
–
L'appareil doit uniquement être installé dans le respect des di-
rectives nationales respectives par une entreprise spéciali-
sée.
–
Lors de l'installation électrique, les respectives instructions
nationales du législateur doivent être respectées.
–
Seul des monteurs du SAV Kärcher formés sont habilités à
procéder aux réglages, travaux d'entretien et réparations sur
le brûleur.
–
Lors de la planification d'une cheminée, les directives locales
en vigueur doivent être respectées.
Le poste de travail se trouve à la pupitre de commande. Autres
postes de travail se trouvent, selon la construction de l'installa-
tion, aux appareils d'accessoires (dispsositif de nettoyage), qui
sont brancher aux fontaineries.
–
Pour se protéger contre les éclaboussures ou les poussières,
porter le cas échéant des vêtements et des lunettes de pro-
tection.
L'appareil sert pour enlever des salissures de surfaces à l'aide
d'un jet d'eau. L'appareil est utilisé surtout pour le nettoyage de
machines, véhicules et façades.
Danger
Risque de blessure ! En cas d'utilisation dans l'enceinte d'une
station service ou dans d'autres zones à risque, respecter les
consignes de sécurité correspondantes.
–
L'eau froide arrive par le serpentin refroidisseur du moteur et
le réservoir flottant au côté d'aspiration de la pompe à haute
pression. L'adoucisseur est rempli dans le réservoir flottant.
La pompe extrait l'eau et le détergent aspiré par le chauffe-
eau à chauffage instantané. La teneur en détergent dans
l'eau peut être réglée par un doseur. Le chauffe-eau à chauf-
fage instantané est chauffé avec un brûleur.
–
La sortie à haute pression est branchée à un réseau à haute
pression existant dans le bâtiment. Le branchement de la poi-
gnée-pistolet au flexible à haute pression s'effectue à la fon-
tainerie de ce réseau.
Les dispositifs de sécurité ont pour but de protéger l'utilisateur.
Par conséquent, ils ne doivent en aucun cas être désactivés ou
transformés.
La protection contre manque d'eau évite la mise en marche de la
pompe à haute pression en cas de manque d'eau.
La protection contre manque d'eau évite la surchauffe du brûler
en cas de manque d'eau. Le brûleur se met uniquement en
marche en cas d'alimentation d'eau suffisante.
Le pressostat arrête l'appareil en cas de dépassement de la pres-
sion de travail. Le réglage ne peut être modifié.
En cas de défaut du pressostat, la soupape de sécurité s'ouvre.
Cette soupape est règle par l'usine et plombée. Le réglage ne
peut être modifié.
En cas de manque de combustible ou de défaut du brûleur, la
surveillance de feux arrête le brûleur. Le voyant de contrôle dé-
faut de brûleur (E) s'allume.
L'interrupteur de la protection contre les surcharges de courant
est déclenché lorsque le moteur du brûleur est bloqué. Le moteur
de la pompe à haute pression est équipé avec un disjoncteur-pro-
tecteur et un disjoncteur d'enroulement.
Le thermostat de gaz résiduaire se déclenche si la température
des gaz d'échappement dépasse 300 °C. L'appareil est mis hors
service.
Après l'arrêt de l'appareil par la poignée-pistolet, une électrova-
lve qui se trouve dans le système à haute pression s'ouvre après
le temps de la disponibilité opérationnelle, aussitôt la pression di-
minue.
Instructions, directives et règles
Postes de travail
Équipement personel de protection
Porter un protecteur d'oreille pour éviter des
troubles auditifs, en cas d'un nettoyage plus
bruyant.
Utilisation conforme
Ne pas évacuer les eaux usées contenant de l'huile minérale
dans la terre, les dispositifs pour eaux usées ou les canalisa-
tions. Dès lors, effectuer le nettoyage du moteur ou du bas de
caisse uniquement aux postes de lavage appropriés et équipés
d'un séparateur d'huile.
Fonction
Dispositifs de sécurité
Protection contre manque d'eau du réservoir flottant
Protection contre manque d'eau au bloc de sécurité
Pressostat
Soupape de sûreté
Surveillance de feux
Protection contre les surcharges de courant
Thermostat de gaz résiduaire
Élimination de la pression du système à haute
pression
42
FR
-
3
Figure 1
1 Brûleur
2 Manomètre
3 Alimentation d'eau propre avec filtre
4 Sortie à haute pression
5 Tuyautage à combustible Marche en avant
6 Tuyautage à combustible Marche en arrière
7 Flexible d'aspiration de détergent I
8 Flexible d'aspiration de détergent II (option)
9 Réservoir à adoucisseur
10 Alimentation électrique
11 Réservoir flottant
12 Pupitre de commande
Figure 2
A Interrupteur principal
B Thermostat
C Vanne de dosage pour détergents I
D Vanne de dosage pour détergent II (option)
E Voyant de contrôle Défaut de brûleur
F Témoin de contrôle d’état de service
G Voyant de contrôle Surchauffe du moteur
H Voyant de contrôle Protection contre la calcification
I
Bouchon - Touche de deverrouillage du moteur du brûleur
Éléments de l'appareil
6
5
7
8
3
4
9
11
10
1
12
2
Zone de commande
43
FR
-
4
몇
Danger
Risque de blessure ! L'appareil, les conduites d'alimentation, les
flexibles haute pression et les raccords ne doivent présenter au-
cun défaut. Ne pas utiliser l'appareil si son état n'est pas irrépro-
chable.
–
Pour les données de raccordement, se référer à la section
Caractéristiques techniques et à la plaque signalétique.
–
Le raccordement électrique doit être effectué par un électri-
cien et doit correspondre à la CEI 60364-1.
L’utilisateur doit faire preuve d'un usage conforme de l'appareil.
Il doit prendre en considération les données locales et lors du
maniement de l’appareil, il doit prendre garde aux tierces per-
sonnes, et en particulier aux enfants.
Ne jamais laisser l’appareil sans surveillance lorsqu’il est en
marche.
Danger
–
Risque de brûlure provoquée par l'eau chaude ! Ne jamais
pointer le jet d'eau vers des personnes ou des animaux.
–
Risque de brûlure provoquée par les pièces chaudes de l'ins-
tallation! En cas de fonctionnement à l'eau chaude, ne pas
toucher des conduites et des flexibles non-isolées. Tenir la
lance uniquement aux cuvettes de poignée. Ne pas toucher à
la buse d'évacuation du chauffe-eau à chauffage instantané.
–
Risque d'intoxication ou de corrosion par le détergent! Res-
pecter les consignes mentionner sur les détergents. Les per-
sonnes non-autorisées ne doivent par utilisées ce détergent.
Danger
Danger de mort par choc électrique! Ne pas pointer le jet d'eau
vers les dispositifs suivantes:
–
Des appareil et des installations électriques,
–
cette installation même,
–
toutes les pièces sous tension qui se trouvent dans la poste
de travail.
Le jet d'eau qui sort de la lance provoque une réaction à la lance.
La lance pliée provoque une force vers le haut.
Danger
–
Risque de blessure ! La réaction à la lance peut vous désé-
quilibrée. Et peut vous faire tomber. La lance peut giglée de
l'eau en air et peut blessée des personnes. Se placer en un
lieu sûr et maintenir fermement la poignée-pistolet. Ne jamais
fixer le levier de la poignée-pistolet.
–
Ne jamais diriger le jet sur soi-même ni sur d’autres per-
sonnes dans le but de nettoyer les vêtements ou les chaus-
sures.
–
Risque de blessure par pièces qui s'envolent! Des morceaux
ou des objet qui s'envolent peuvent blessés des personnes
ou des animaux. Ne jamais pointer le jet d'eau vers des objets
fragiles ou qui sont pas fixés.
–
Risque d'accident par suit de dommage! Nettoyer des pneus
et des valves à une distance minimale de 30 cm.
몇
Avertissement
Dangers présentés par des substances nocives à la santé! Ne
pas passer les suivantes matériaux au jet, afin que peuvent sou-
lèvés des substances nocives à la santé:
–
Matériaux qui contiennent d'amiante,
–
des matériaux qui contiennent probablement des substances
nocives à la santé.
Danger
–
Risque de blessure par le jet d'eau eventuellement chaud!
Uniquement des flexibles à haute pression originaux de Kär-
cher sont adaptés de la meilleure façon possible à l'installa-
tion. En cas d'utilisation d'autres flexibles, on ne prend pas la
garantie.
–
Risque de santé par le détergent! En ajoutant le détergent,
l'eau qui sort de l'appareil n'a pas la qualité d'eau potable.
–
Risque de trouble auditif par les travaux aux pièces qui font
trop de bruit. Dans ce cas, porter un casque de protection
acoustique.
Danger
Risque de blessure par le jet d'eau eventuellement chaud!
Danger
Vérifier avant chaque utilisation que le flexible haute-pression
n'est pas endommagé. Un flexible haute pression endommagé
doit immédiatement être remplacé.
Contrôler le flexible à haute pression, les conduites, les com-
mandes et la lance avant chaque utilisation s'il sont endom-
magés.
Vérifier si le raccord express pour tuyau flexible est bien fixé
et s'il est étanche.
Attention
Risque de dommage par marche à sec.
Contrôler le niveau du réservoir de détergent et en cas de be-
soin remplir.
Contrôler le niveau de l'adoucisseur et au besoin la remplir.
Tourner l'interrupteur d'appareil (A) sur "0".
Couper l'alimentation en eau.
Actionner la poignée-pistolet jusqu'à ce que l'appareil soit
hors pression.
Mise en service
Raccordement électrique
Utilisation
Consignes de sécurité
!
Établir la disponibilité opérationnelle
Désactivation d'urgence
44
FR
-
5
Tournant le clapet du réglage du débit au sens des aiguilles
d'une montre, la pression de service et la quantité de charge
augmentent.
Tournant le clapet du réglage de la quantité en sens inverse
des aiguilles d'une montre, la pression de service et le débit
diminuent.
En tournant le régulateur d'eau vers la droite, le débit et la
pression du travail augmentent.
En tournant le régulateur d'eau vers la gauche, le débit et la
pression du travail diminuent.
Ouvrir l'alimentation d'eau.
Symbole "Marche moteur"
Tirer le levier de la poignée-pistolet et tourner l'interrupteur de
l'appareil (A) sur "1" (Marche moteur).
Le voyant de contrôle de la disponibilité opérationnelle (F) af-
fiche la disponibilité opérationnelle.
Danger
Risque de brûlure !
Attention
Le fonctionnement à l'eau chaude sans combustible provoque le
dommage de la pompe de combustible. S'assurer avant de
mettre le fonctionnement à l'eau chaude en service, qu'il y a du
combustible.
En cas de besoin, le brûleure peut être aussi mis en service.
Symbole "Marche brûleur"
Mettre l'interrupteur d'appareil (A) sur "Marche brûleur".
Régler la température souhaitée d'eau au régulateur de tem-
pérature (B). La température maximale est de 98 °C.
Danger
Risque de brûlure ! Lorsque les températures de service sont su-
périeures à 98 °C, la pression de service ne doit en aucun cas dé-
passer 3,2 MPa (32 bars).
Pour pouvoir passer du fonctionnement chaude au fonctionne-
ment à vapeur, l'appareil doit refroidir, puis s'arrêter. Le passage
doit être effectué come suite:
Substituer la buse à haute pression par une buse à va-
peur (accessoire).
Régler la température à 150 °C.
Régler la soupape de réglage à la pompe à haute pression
sur la quantité d'eau minimale (tourner en sens inverse des
aiguilles d'une montre).
Régler la soupape de réglage à la pompe à haute pression
sur la quantité d'eau maximale (tourner dans le sens des ai-
guilles d'une montre).
Régler le régulateur de la quantité d'eau au pistolet de com-
pression facile sur la quantité d'eau minimale, en tournant à
la gauche.
–
Si pendant le fonctionnement le levier de la poignée-pistolet
est lâchée, l'appareil s'arrête.
–
Lorsque le pistolet est de nouveau ouvert pendant le temps
de disponibilité opérationnelle réglé (2...8 minutes), l'appareil
se met automatiquement de nouveau en service.
–
Si le temps de disponibilité opérationnelle est dépassé, l'en-
clenchement de sécurité arrête le pompe et le brûleur. Le
voyant de contrôle de la disponibilité opérationnelle (F)
s'éteint.
–
Pour une nouvelle mise en service, tourner l'interrupteur de
l'appareil sur la position "0" et ensuite démarrer de nouveau.
Si l'appareil est commandé par une télécommande, la nou-
velle mise en service peut être effectuée par la touche corres-
pondante de la télécommande.
–
Des pneus de véhicules doivent être uniquement nettoyés
avec l'injecteur de jet plat (25°) et à une distance minimale de
30 cm. Les pneus peuvent jamais être nettoyés avec le jet bâ-
ton.
Pour toutes les autres fonctions, il y a le choix entre les injecteurs
suivantes:
Régler la pression de service et le débit
Réglages de l'appareil
Réglage au pistolet de compression facile (option)
Utilisation avec de l'eau froide
Utilisation avec de l'eau chaude
R
Utilisation avec de la vapeur
N° de réf.
Type
4.766-023
HDS 9/14
4.766-024
HDS 12/14
Sans pistolet de compression facile
Avec pistolet de compression facile (option)
Disponibilité opérationnelle
Sélection de l'injecteur
45
FR
-
6
En cas de plus de 20 m de conduite ou plus de 2 x 10 m de
flexible à haute pression NW 8, vous devez utiliser les injecteurs
suivantes:
–
Les détergents facilitent les travaux de nettoyage. Ils sont api-
rés d'un réservoir externe de détergent.
–
Dans l'équipement de base, l'appareil est équipé avec un do-
seur (C). Un deuxième dispositif de dosage (doseur D) est
disponible comme accessoire spéciale. Avec celui-ci on peut
aspiré deux détergents différentes.
–
La quantité de dosage est réglée aux doseurs de détergent
(C ou D) à la pupitre de commande. La valeur réglée corres-
ponde à la teneur de détergent en pour cent.
–
L'échelle extérieure est valable en cas d'utilisation de dé-
tergent non-dilué (100 % CHEM).
–
L'échelle intérieure est valable en cas d'utilisation de dé-
tergent non-dilué 1+3 (25 % CHEM +75 % d'eau).
Le tableau suivant mentionne la consommation de détergent
pour les valeurs indiquées dans l'échelle extérieure:
La quantité exacte de dosage dépend de:
–
la viscosité du détergent
–
de l'hauteur d'aspiration
–
la résistance à l'écoulement de la conduite à haute pression
Si un dosage exact est nécessaire, la quantité de détergent aspi-
rée doit être mesurée (p.ex. par l'aspiration d'un gobelet à mesu-
rer).
Remarque :
Vous trouverez les recommandations de détergent
au chapitre « Accessoires ».
Attention
Un fonctionnement sans adoucisseur peut entartré le chauffe-
eau à chauffage instantané.
Lorsque le réservoir d'adoucisseur est vide, le voyant de contrôle
de la protection contre la calcification (H) clignote.
Figure 1 - pos. 9
Remplir le réservoir d'adoucisseur avec liquide d'adoucisseur
RM 110 (2.780-001).
Danger
Risque de brûlure provoquée par l'eau chaude ! Après l'utilisation
de l'appareil avec de l'eau chaude ou de la vapeur, ce dernier doit
être actionné, pistolet ouvert, au minimum deux minutes avec de
l'eau froide afin de le faire refroidir.
Au fonctionnement d'eau chaude, régler le régulateur de tem-
pérature (B) sur la température plus bas.
Utiliser l'appareil au moins 30 secondes sans détergent.
Tourner l'interrupteur d'appareil (A) sur "0".
Couper l'alimentation en eau.
Actionner la poignée-pistolet jusqu'à ce que l'appareil soit
hors pression.
Assurer la poignée-pistolet avec le cran de sécurité contre
une ouverture involontaire.
En cas de périodes d'arrêt plus longues ou si un stockage hors
gel n'est pas possible, les mesures suivantes doivent être effec-
tuées (cf. chapitre "Entretien et maintenance", partie "Protection
antigel"):
Purger l'eau.
Rincer l'appareil au moyen de produit antigel.
Couper l'interrupteur principal et le bloquer ou débrancher la
fiche Cekon.
Attention
Risque de blessure et d'endommagement ! Prendre en compte le
poids de l'appareil à l'entreposage.
Attention
Risque de blessure et d'endommagement ! Respecter le poids
de l'appareil lors du transport.
Sécuriser l'appareil contre les glissements ou les bascule-
ments selon les directives en vigueur lors du transport dans
des véhicules.
Salissure
Buse
Angle de
projec-
tion
Réfé-
rence
6.415
Pression
[MPa]
Réaction
à la lance
[N]
HDS 9/14
fort
00060
0°
-257
14
44
moyen
25060
25°
-295
léger
40060
40°
-301
HDS 12/14
fort
00080
0°
-150
14
55
moyen
25080
25°
-152
léger
40080
40°
-153
Salissure
Buse
Angle de
projec-
tion
Réfé-
rence
6.415
Pression
[MPa]
Réaction
à la lance
[N]
HDS 9/14
fort
0075
0°
-419
10
37
moyen
2575
25°
-421
léger
4075
40°
-422
HDS 12/14
fort
0010
0°
-082
10
46
moyen
2510
25°
-252
léger
4010
40°
-253
Dosage de détergent
HDS 9/14
Position
0,5
1
5
Quantité du détergent [l/h]
14...15 22...24
50
Concentration de détergent [%]
1,5
2,5
5
HDS 12/14
Position
0,5
1
5
Quantité du détergent [l/h]
10...13 23...27
60
Concentration de détergent [%]
1
2
5
Remplir adoucisseur
Mise hors service
Après utilisation avec un détergent
Mise hors service de l'appareil
Remisage
Entreposage
Transport
46
FR
-
7
Caractéristiques techniques
HDS 9/14
HDS 12/14
HDS 12/14
1.698-900
1.699-919
1.699-920
Performances
Pression de service de l'eau (avec buse standard)
MPa (bar)
14 (140)
14 (140)
14 (140)
Pression de service max. du fonctionnement à vapeur (avec
buse vapeur)
MPa (bar)
3,2 (32)
3,2 (32)
3,2 (32)
N° de pièce de la buse vapeur
--
4.766-023
4.766-024
4.766-024
Pression maximale de marche (clapet de sécurité)
MPa (bar)
18,5 (185)
18,5 (185)
18,5 (185)
Débit de l'eau (réglable de amnière continue)
l/h (l/min)
500-930
(8,3-15,5)
600-1200
(10-20)
600-1200
(10-20)
Débit du fonctionnement à vapeur
l/h (l/min)
470 (7,8)
600 (10)
600 (10)
Aspiration de détergent (réglable de manière continue)
l/h (l/min)
0-50 (0-0,8)
0-60 (0-1)
0-60 (0-1)
Arrivée d'eau
Débit d'alimentation (min.)
l/h (l/min)
1100 (18,3)
1300 (21,7)
1300 (21,7)
Pression d'alimentation (min.)
MPa (bar)
0,1 (1)
0,1 (1)
0,1 (1)
Pression d'alimentation (max.)
MPa (bar)
0,6 (6)
0,6 (6)
0,6 (6)
Branchement électrique
Type de courant
--
3N~
3N~
3N~
Fréquence
Hz
50
50
50
Tension
V
400
400
230
Puissance de raccordement
kW
6,4
7,5
8,2
Protection électrique (à action retardée)
A
16
20
32
Type de protection
--
IPX5
IPX5
IPX5
Classe de protection
--
I
I
I
Impédance du circuit maximale admissible
Ohms
(0,381+j 0,238)
--
--
Alimentation électrique
mm
2
5 x 2,5
5 x 2,5
5 x 4
Température
Température d'alimentation (max.)
°C
30
30
30
Température maximale de travail de l'eau chaude
°C
98
98
98
Température maximale de travail du fonctionnement à va-
peur
°C
155
155
155
Augmentation de température au débit maximale d'eau
°C
56±2
54±2
54±2
Capacité de chauffage en brut
kW
68
85
85
Consommation de combustible
kg/h
5,8
7,1
7,1
Aspiration de chéminée
kPa
0,01-0,04
0,01-0,04
0,01-0,04
Plaine charge du débit-masse de gaz résiduaire
kg/h
124
155
155
Dimensions et poids
Longueur
mm
1124
1124
1124
Largeur
mm
558
558
558
Hauteur
mm
687
699
699
Poids de fonctionnement typique
kg
164,4
178,8
178,8
Valeurs déterminées selon EN 60355-2-79
Émission sonore
Niveau de pression sonore L
pA
dB(A)
74
76
76
Incertitude K
pA
dB(A)
1
1
1
Valeur de vibrations bras-main
Poignée-pistolet
m/s
2
2,2
2,3
2,3
Lance
m/s
2
1,8
2,1
2,1
Incertitude K
m/s
2
1,0
1,0
1,0
47
FR
-
8
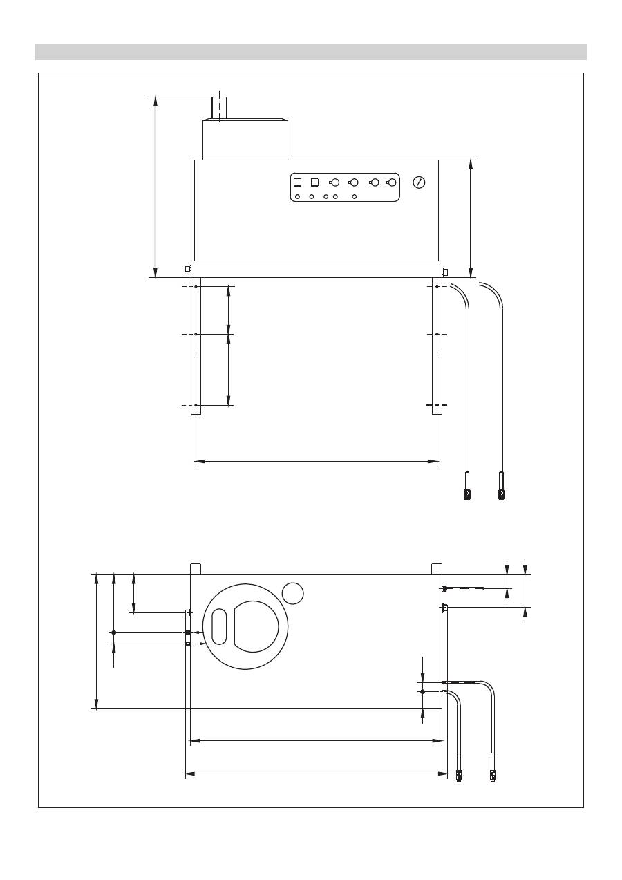
Feuille de mesure
6
8
7
/ 6
9
9
505
558
1124
246
158
1060
47
141
61
77
46
200
300
1018±2
48
FR
-
9
Danger
Risque de blessure ! Avant toute opération de maintenance et de
réparation, couper l'interrupteur principal ou débrancher la fiche
Cekon.
Entretien et maintenance
Plan de maintenance
Période
Action
Sous-groupe concerné
Réalisation
Par qui
1 fois par jour
Contrôler la poi-
gnée-pistolet
Poignée-pistolet
Vérifier, si la poignée-pistolet ferme hermétique-
ment. Contrôler la fonction de la protection
contre l'utilisation involontaire. Substituer la poi-
gnée-pistolet défectueuse.
Opérateur
Contrôler les
flexibles à haute
pression
les conduites de sortie, les
flexibles à l'appareil de travail
Examiner les fexibles, s'ils sont endommagés.
Substituer immédiatement les flexibles endom-
magés. Risque d'accident !
Opérateur
Vérifier le câble
de raccord avec
fiche réseau
Raccord électrique avec fiche /
prise
Vérifier si le câble raccord avec la fiche réseau
sont en bon état. Un câble d’alimentation endom-
magé doit immédiatement être remplacé par le
service après-vente ou un électricien agréé.
Opérateur
Hebdomadaire-
ment ou après 40
heures de service
Contrôler le ni-
veau d'huile
Réservoir d'huile à la pompe
Lorsque l'huile est laiteux, il doit être changé.
Opérateur
Contrôler le ni-
veau d'huile
Réservoir d'huile à la pompe
Contrôler le niveau d'huile de la pompe. En cas
de besoin, remplir l'huile (N° de commande
6.288-016).
Opérateur
Nettoyer le tamis Filtre dans l'entrée d'eau
Cf. chapitre "Nettoyer les tamis".
Opérateur
1 fois par mois ou
après 200 heures
de fonctionne-
ment
Nettoyer et
contrôler les
grilles
Les grilles dans le couvercle du
chauffe-eau à chauffage ins-
tantané
Dévisser la conduite de combustible, démonter
le corps de l'électrode et nettoyer les électrodes.
Contrôler le réglage de l'électrode selon l'es-
quisse sur la page suivante et en cas de besoin
régler.
Opératuer
avec instruc-
tion
Contrôler la
pompe
Pompe haute pression
Examiner la pompe s'elle est étanche. En cas de
plus de 3 gouttes par minute, appeler le service
après-vente.
Opérateur
contrôler s'il y a
des dépôts inté-
rieures
toute l'installation
Mettre l'installation en service avec la lance sans
l'injecteur à haute pression. Si la pression de ser-
vice augmente au manomètre de l'appareil au-
dessous de 3 MPa, c'est que l'installation doit
être entartrée. Cela est aussi valable, lorsqu'au
fonctionnement sans conduite à haute pression
(l'eau s'écoule livrement à la sortie à haute pres-
sion) la pression de service augmente plus que
0,7-1 MPa.
Opérateur
avec instruc-
tion pour la
calcification
Nettoyer le tamis Le tamis du dispositif de sécuri-
té en cas de manque d'eau
Cf. chapitre "Nettoyer les tamis".
Opérateur
2 fois par ans ou
après 1000
heures de service
Vidange d'huile Pompe haute pression
Vidanger l'huile. Remplir 1 l de nouveau huile (N°
de commande 6.288-016). Contrôler le niveau
au réservoir d'huile.
Opérateur
contrôler, net-
toyer
toute l'installation
Contrôle visuel de l'installation, contrôler les ra-
cordements à haute pression s'ils sont étanches,
contrôler l'étanchéité de la soupapde de dé-
charge, contrôler le flexible à haute pression,
contrôler le chauffe-eau à accumulation à pres-
sion, nettoyer/changer le filtre de combustible,
éliminer la suie/détartrer la serpente de chauf-
fage, nettoyer/changer les grilles, nettoyer/chan-
ger la busette du brûleur, régler le brûleur.
Service
après-vente
une fois par ans
Contrôle de sé-
curité
toute l'installation
Effectuer le contrôle de sécurité conformément
aux dispositions légales nationales pour les pro-
pulseurs de liquides.
Expert
Réitérant au plus
tard tous les 5 ans
Contrôle de
pression
toute l'installation
Procéder à un contrôle de la pression selon les
prescriptions du constructeur.
Expert
49
FR
-
10
Un contrat de maintenance pour l'appareil peut être conclu avec
le bureau des ventes compétent de Kärcher.
Figure 1 - pos. 3
Couper l'alimentation en eau.
Dévisser le tuyau d'alimentation d'eau de l'appareil.
Tirer le tamis avec un tourneur de vis du raccord.
Nettoyer le tamis
Monter de nouveau en ordre inverse.
Retirer le revêtement en tôle.
Dévisser la pièce d'angle du bloc de sécurité.
Visser la vis M8x30 dans le tamis.
Retirer la vis et le tamis avec une pince.
Nettoyer le tamis
Monter de nouveau en ordre inverse.
Les grilles doivent être réglées selon les indications suivantes:
En cas des dépôts dans les conduites la résistance à l'écoule-
ment augmente, afin que le pressostat peut être déclenché.
Danger
Risque d'explosion due aux gaz inflammables ! Au détartrage il
est interdit de fumer. Veiller à ce qu'il y a une bonne ventilation.
Danger
Risque de brûlure par acide! Porter des lunettes et des gants de
protection.
Utiliser pour l'élimination uniquement des solvants éprouvés se-
lon les règlements légales avec signe d'homologation.
–
Le RM 100 (N° de commande 6.287-008) dissoudre de la
pierre calcaire, des composés faciles de pierre calcaire et des
résidus de lessive.
–
Le RM 101 (N° de commande 6.287-013) dissoudre des dé-
pôts qui le RM 100 ne peut pas dissoudre.
Remplir un réservoir de 20 litres avec 15 l d'eau.
Ajouter un litre de solvant.
Brancher le flexible d'eau directement à la tête de pompe et
mettre le bout livre dans le réservoir.
Mettre la lance branchée sans injecteur dans le réservoir.
Ouvrir la poignée-pistolet et fermer de nouveau pendant le
détartrage.
Tourner l'interrupteur de l'appareil sur "Marche brûleur" jus-
qu'à environ 40 °C.
Arrêter l'appareil et ne pas toucher pendant 20 minutes. La
poignée-pistolet doit être ouverte.
Ensuite vider l'appareil.
Remarque :
À titre de protection contre la corrosion et de neutra-
lisation des résidus d'acide, nous recommandons ensuite de
pomper une solution alcalinen (p.ex. produit de nettoyage RM
81) à l'aide du réservoir de détergent.
L'appareil doit être installé dans des pièces protégées contre le
gel. En cas de risque de gelée, p.ex. en cas d’installation dans un
local ouvert, l'appareil doit être vidé et doit être rincer avec un
produit antigel.
Dévisser le tuyau d'alimentation en eau et le flexible haute
pression.
Faire tourner l'appareil au max. 1 minute jusqu'à ce que la
pompe et les conduites soient entièrement vides.
Dévisser la conduite d'alimentation située au fond de la chau-
dière et faire fonctionner le serpentin chauffant à vide.
Remarque :
Respecter les consignes d'utilisation du fabricant du
produit antigel.
Remplir le réservoir flottant jusqu'au haut de produit antigel
d'usage.
Placer le dispositif récepteur sous la sortie à haute pression.
Mettre l'appareil en service et laisser marcher jusqu'à la pro-
tection contre manque d'eau du réservoir flottant, celle-ci dé-
marre et arrête l'appareil.
Cette opération permet en outre de bénéficier d'une certaine pro-
tection anticorrosion.
Contrat de maintenance
Nettoyer les tamis
Filtre dans l'entrée d'eau
Le tamis du dispositif de sécurité en cas de manque d'eau
Réglage des électrodes
A
B
C
a
HDS 9/14
4,5±0,5
3,5±0,5
3+0,5
60°
HDS 12/14
3,5±0,5
3,5±0,5
3+0,5
60°
2.
1.
A
B
C
a
Détartrage
Réalisation
Protection antigel
Purger l'eau.
Rincer l'appareil au moyen de produit antigel
50
FR
-
11
Danger
Risque de blessure ! Avant toute opération de maintenance et de
réparation, couper l'interrupteur principal ou débrancher la fiche
Cekon.
*
Remarque
Arrêter et mettre en marche l'installation pour déverrouiller la
panne du brûleur.
**
Assistance en cas de panne
Panne
Eventuelle cause
Remède
Par qui
L'appareil ne fonctionne pas,
le voyant de contrôle de la
disponibilité opérationnelle
(F) ne s'allume pas
L'appareil n'est pas brancher à la
tension.
Contrôler le réseau électrique.
Électricien
L'enclenchement de sécurité fonc-
tionne.
Arrêter brièvement l'appareil à l'interrupteur
de l'appareil, ensuite mettre l'appareil de
nouveau en service.
Opérateur
Le fusible dans le circuit de com-
mande (F3) est sauté. Il ya un fu-
sible dans le transformateur de
commande (T2).
Mettre un nouveau fusible, en cas qu'il saute
de nouveau à cause de surcharge, éliminer
le fusible.
Service après-vente
Le pressostat HP (haute pression)
ou BP (basse pression) est en
panne.
Contrôler le pressostat.
Service après-vente
Le module du timer (A1) est en
panne.
Contrôler les raccords, en cas de besoin
échanger.
Service après-vente
Le thermostat de gaz résiduaire
(B8) s'est déclenché.
Faire refroidir l'installation. Déverrouiller le
thermostat de gaz résiduaire (B8). Éliminer la
cause du défaut.
Service après-vente
+ le voyant de contrôle du
surchauffage du moteur (G)
s'allume
Le détecteur thérmique (WS) dans
le moteur ou l'interrupteur de pro-
tection de surintensité (F1) était
déclenché.
Éliminer la cause de la surcharge.
Service après-vente
La protection contre manque d'eau
dans le réservoir flottant a réagit.
Éliminer la manque d'eau.
Opérateur
Le brûleur ne s'allume pas ou
la flamme s'éteint au cours
du service
Réglage de la température (B) sur
une valeur trop faible
Remonter le thermostat.
Opérateur
L'interrupteur de l'appareil n'est
pas positionné sur le brûleur.
Mettre le brûleur en marche.
Opérateur
La protection contre manque d'eau
du bloc de sécurité était arrêtée.
Assurer une sufissante alimentation d'eau.
Contrôler l'étachéité de l'appareil.
Opérateur
Le voyant de contrôle défaut
de brûleur (E) s'allume *
Réservoir à combustible vide.
Remplissage du combustible.
Opérateur
Le filtre de combustible est bou-
ché.
Nettoyer le filtre de combustible. Pour cela
dévisser le filtre de combustible, nettoyer et
visser de nouveau.
Opérateur
Cellules photoélectriques du
contrôleur de flamme mal orien-
tées ou défectueuses.
Vérifier le positionnement des cellules pho-
toélectriques. **
Opérateur
Il n'y a aucune étincelle d'allumage
(visible par la vitre de surveillance
sur le couvercle du brûleur).
Contrôler la distance des électrodes du
transformateur d'allumage et du câble d'allu-
mage. Corriger la distance ou échanger les
pièces défectueuses. Si nécessaire nettoyer.
Service après-vente
Le moteur du brûleur est bloqué.
Éliminer la blocage. Éliminer le bouchon (I) à
la pupitre de commande et déverrouiller l'in-
terrupteur protecteur de sur intensité. Mettre
le bouchon de nouveau.
Service après-vente
Défaut au niveau de la pompe à
combustible ou de l'électrovanne à
combustible.
Contrôler et remplacer les pièces défec-
tueuses.
Opérateur
51
FR
-
12
Panne
Eventuelle cause
Remède
Par qui
le voyant de contrôle de la
protection de détartrage (H)
s'allume
Utiliser adoucisseur.
Remplir adoucisseur.
Opérateur
Insuffissante ou aucune ex-
traction de détergent
Doseur sur position "0".
Ajustement de la vanne de dosage pour dé-
tergents.
Opérateur
Le filtre de détergent est bouché ou
le réservoir est vide.
Nettoyer respectivement remplir.
Opérateur
Les flexibles, le doseur ou la élec-
trovalve de détergent sont non-
étanches ou bouchés.
Contrôler, nettoyer.
Opérateur
L'électronique ou la électrovalve
est en panne.
Échanger
Service après-vente
L'appareil ne monte pas en
pression complète
Rincer la busette.
Substituer la busette.
Opérateur
Le réservoir de détergent est vide. Remplir détergent.
Opérateur
Ne pas suffisante d'eau.
Veiller à ce qu'il y a une alimentation sufis-
sante d'eau.
Opérateur
Le tamis à l'entrée d'eau est bou-
ché.
Contrôler, démonter le tamis et nettoyer.
Opérateur
Le doseur de détergent est non-
étanche.
Contrôler et boucher.
Opérateur
Les flexibles de détergent sont
non-étanche.
Échanger
Opérateur
La soupape flottante coince.
Contrôler le fonctionnement.
Opérateur
La soupape de sécurité est non-
étanche.
Contrôler le réglage, en cas de besoin mon-
ter un nouveau joint.
Service après-vente
Le doseur de quantité est non-
étanche ou est réglé trop bas.
Contrôler les pièces de soupape, en cas de
dommage échanger et en cas de salissure
nettoyer.
Service après-vente
La électrovalve pour l'élimination
de la pression est en panne.
Écahnger l'électrovalve.
Service après-vente
La pompe à haute pression
frappe, le manomètre pivote
très fort
L'amortisseur de pivotage est en
panne.
Échanger l'amortisseur de pivotage.
Service après-vente
La pompe à eau n'aspire pas suf-
fissament d'air.
Contrôler le système d'aspiration et éliminer
la non-étanchéité.
Opérateur
Lorsque la poignée-pistolet
est ouverte, l'appareil ne
cesse de se mettre sous et
hors tension
Buse de la lance bouchée.
Contrôler, nettoyer.
Opérateur
L’appareil est entartré.
Cf. chapitre "Calcification".
Opérateur
La position de fonctionnement du
surintensiteur s'avait déréglé.
Laisser régler de nouveau le surintensiteur. Service après-vente
Le tamis du dispositif de sécurité
en cas de manque d'eau est bou-
ché.
Contrôler, démonter le tamis et nettoyer.
Opérateur
L'appareil ne s'arrêt pas
lorsque la poignée-pistolet
est fermée
La pompe n'est pas purgée com-
plètement.
Positionner l'interrupteur de l'appareil sur "0"
et tirer la poignée-pistolet jusqu'à il ne coule
plus de liquide de la buse. Mettre ensuite en
marche l’appareil. Répéter cette procédure
jusqu'à la pression complète de service voulu
est attendue.
Opérateur
La soupape de sécurité respective-
ment le joint de la soupape de sé-
curité sont défectueuses.
Substituer la soupape de sécurité respective-
ment le joint.
Service après-vente
52
FR
-
13
Les détergents facilitent les travaux de nettoyage. Une sélection
de détergents est présentée dans le tableau. Avant d'utilser le
détergent, lire attentivement les consignes sur l'emballage.
* = seulement pour breve utilisation, méthode de deux pas, rincer
avec eau claire
** = ASF = bien séparable
*** = le Foam-Star 2000 est fait pour le prérinçage
Accessoires
Produit détergent
Champ d'application
Salissure, façon d'application
Produit détergent
Valeur pH (environ)
solution de 1 % dans
l'eau de distribution
Exploitation de véhicule,
stations de services, ac-
conage, parcs de véhi-
cules
Poussière, saleté de la rue, fluide
pétrolier (sur des bouteilles la-
quées)
RM 55 ASF **
8
RM 22/80-Poudre ASF
12/10
RM 81 ASF
9
RM 803 ASF
10
RM 806 ASF
11
Conservation de véhicule
RM 42 Cire froide pour le nettoyeur à haute
pression
8
RM 820-Cire chaude ASF
7
RM 821-Cire de pulverisation ASF
6
RM 824-Super-Cire perlière ASF
7
RM 44 nettoyeur de gel pour les jantes
9
Industrie transformatrice
des métaux
Des huiles, graisses, poussière et
saletés similaires
RM 22-Poudre ASF
12
RM 55 ASF
8
RM 81 ASF
9
RM 803 ASF
10
RM 806 ASF
12
RM 31 ASF (forte saleté)
12
RM 39-liquide (avec protection contre corro-
sion)
9
Exploitations de denrée
alimentaire
Légères jusqu'à moyennes sale-
tés, graisses/huiles, grandes sur-
faces
RM 55 ASF
8
RM 81 ASF
9
RM 882 mousse de gel OSC
12
RM 58 ASF (détergent à mousse)
9
RM 31 ASF *
12
Résine fumée
RM 33 *
13
Nettoyage et désinfection
RM 732
9
la désinfection
RM 735
7...8
Calcaire, dépôts minérales
RM 25 ASF *
2
RM 59 ASF (nettoyage à mousse)
2
Secteur sanitaire ***
Calcaire, pierre d'urine, savons
etc.
RM 25 ASF * (nettoyage de base)
2
RM 59 ASF (nettoyage à mousse)
2
RM 68 ASF
5
53
FR
-
14
–
Le dispositif de chauffage de l'appareil est une installation de
combustion. Á l'installation les règlements régionales va-
lables sont à respecter.
–
Utiliser uniquement des chéminée/conduites de gaz rési-
duaire éprouvées
Danger
Risque de brûlure ! Ce symbole doit être fixé à chaque lieus de
réception.
Les règlements de le stockage de liquides inflammables doivent
être respectés à l'installation un réservoir à combustible dans la
pièce où est installé l'installation (à vendre au Carls Heymanns
Verlag, Cologne, www.heymanns.com).
Faire attention au diagramme situe en bas à la pose du tuyau-
tage à combustible.
Il est prévu un système de 2 conducteurs, marche en avant et
marche en arrière.
–
Prépression maximale de fuel: 0,05 MPa (0,5 bars)
–
Dépression maximale entre le filtre de fuel et la pompe: 0,04
MPa (0,4 bars)
Longueur du flexible d'aspiration en m
Hauteur d'aspiration en m
Probable longueur du flexible d'aspiration en cas des tuyaux
avec NW 8
–
Chaque appareil doit être connecté à conduit d’évacuation
séparé.
–
Le conduit d’évacuation des gaz brûlés doit être effectué en
conséquence des instructions locales et en accord avec un
installateur compétent.
Nous recommandons le montage d'un interrompeur d'aspiration
entre l'installation et la cheminée.
Remarque
Pour atteindre les valeurs de combustion prescrites, l'aspiration
de la cheminée mentionnée dans les Données techniques doit
être respectée.
–
Avant le montage, vérifier la résistance du mur. Le matériel
de fixation ci-joint est approprié pour béton. Utiliser pour les
murs de briques et de béton-gaz des chevilles et des vis ap-
propriées, p.ex. tirant d'ancrage injecté (image de forage cf.
feuille de mesure).
–
Figure 3 - Pos. 19 et 23
L'appareil ne doit être branché obstinément avec le réseau de
la conduite d'eau ou de la conduite à haute pression. Les
flexibles de connexion doivent être montés absolument.
–
Figure 3 - A
Entre le réseau de la conduite d'eau et la tuyauterie de rac-
cordement il est prévu un robinet d'arrêt.
Lors du montage des conduites haute pression, respecter les rè-
glementations nationales correspondantes en vigueur.
–
La différence de pression dans le tuyautage doit être sous 1,5
MPa.
–
Le tuyautage complet doit être éprouvé avec 28 MPa.
–
L'isolation du tuyautage doit être résistante à la température
jusqu'à 155 °C.
Figure 3 - pos. 20
Le réservoir doit être installé, afin que le niveau inférieure de dé-
tergent doit se situé pas plus de 1,5 m sous le fond de l'appareil
et le niveau supérieure ne pas au-dessous du fond d'appareil.
Figure 3 - B et Pos. 19
Raccorder l'entrée d'eau avec un flexible appropré d'eau au
réseau de distribution d'eau.
–
La capacité de l'alimentation d'eau doit être au moins de
1 300 l en au moins de 0,1 MPa.
–
La tempérautre doit se situé sous le 30 °C.
Attention
L'impédance de réseau maximale admissible au niveau du point
de raccordement ne doit en aucun cas être dépassée (voir Ca-
ractéristiques techniques). En cas de doute concernant l'impé-
dance de réseau présente sur votre point de raccordement,
veuillez vous adresser à l'entreprise responsable de votre ali-
mentation énergétique.
Remarque :
Les procédures de mises en marche peuvent
conduire à des baisses de tension de courte durée. Si le circuit
électrique n'est pas approprié, d'autres appareils peuvent subir
des endommagements.
–
Pour les données de raccordement, se référer à la section
Caractéristiques techniques et à la plaque signalétique.
–
Le raccordement électrique doit être effectué par un électri-
cien et doit correspondre à la CEI 60364-1.
Montage de l'installation
Uniquement pour le personnel spécialisé et auto-
risée!
Généralités
En cas de tempéra-
ture de travail au-des-
sus de 100 °C,
remplacer la buse à
haute pression par
une buse à vapeur.
Réservoir à combustible
Conduites à combustible
!
Tuyau de gaz fumé
Montage au mur
Montage des conduitess à haute pression
Installer le réservoir de détergent
Alimentation en eau
Branchement électrique
54
FR
-
15
–
Des pièces sous tension, des câbles et l'appareil qui se
trouven dans le poste de travail doivent être dans en état im-
pécable.
Pour éviter des accidents électriques nous recommandons d’uti-
liser des prises de courant avec un interrupteur de protection
contre les courants de fuite placé en amont (courant de déclen-
chement nominal maximal de 30 mA).
Etablir le raccordement électrique.
Pour arrêter le nettoyeur à haute pression stationnaire, un inter-
rupteur principal (Figure 3 - pos.6) doit être fixé à un endroit non
dangereux et facilement accessible.
L'étendue d'ouverture de contact du commutateur principal doit
faire au moins 3 mm.
Monter la prise de Cekon au câble de jonction de l'appareil.
Mettre la prise de Cekon dans la prise.
Pour mettre le nettoyeur à haute pression stationnaire hors ser-
vice, la prise de Cekon doit être bien accessible pour la sépara-
tion de réseau.
Avant la première utilisation couper la pointe de la couvercle
du réservoir d'huile sur la pompe à eau.
Danger
Risque d'explosion ! N'utiliser que du carburant diesel ou du fuel
léger. Il est interdit d'utiliser des combustibles non appropriés,
tels que l'essence.
Remplir le réservoir à combustible.
Attention
Le fonctionnement à l'eau chaude sans combustible provoque le
dommage de la pompe de combustible. S'assurer avant de
mettre le fonctionnement à l'eau chaude en service, qu'il y a du
combustible.
Figure 3 - pos. 14
Connecter le flexible à haute pression au piognée-pistolet et
à la sortie à haute pression de l'appareil ou au réseau du
flexible à haute pression.
Fixer le nez de buse (b) avec l'écrou-raccord (a) à la lance (d).
Faire attention que le joint (c) est bien placer dans l'encoche.
Enlever le ressort (c) du support du couvercle (b) du réservoir
d'adoucisseur (a).
Remplir le réservoir avec l'adoucisseur de Kärcher RM 110
(N° de commande 2.780-001).
Danger
Tension électrique dangereuse! Seul un électricien spécialisé est
habilité à effectuer ce réglage.
Déterminer la dureté de l'eau locale :
–
En contactant le distributeur local,
–
avec un appareil pour essai de dureté (N° de commande
6.768-004).
Retirer le capot d'appareil.
Ouvrir le boîtier de commande du panneau de l'exploitant.
Régler le potenciomètre rotatif (a) selon la dureté d'eau. Le
réglage correcte est mentionné dans le tableau.
Exemple :
Pour une dureté d'eau de 15 °dH, régler au potenciomètre rotatif
la valeur d'échelle 6. Le temps de pause est alors de 31 se-
condes, c'est-à-dire que toutes les 31 secondes, l'électrovanne
s'ouvre brièvement.
Raccord électrique solidement monté
Raccord électrique avec fiche / prise
Première mise en service
Mesures avant la mise en service
a
b
c
d
Protection contre le détartrage
Dureté d'eau (°dH)
5
10
15
20
25
Échelle au potenciomètre
rotatif
8
7
6
5
4,5
Temps d'arrêt (sécondes)
50
40
31
22
16
b
c
a
a
55
FR
-
16
Le réglage du temps de la disponibilité opérationnelle résulte sur
la platine plus grande à la côté latérale gauche d'armoire électro-
nique.
Le temps de la disponibilité opérationnelle est réglé par l'usine au
minimum de 2 minutes et peut être augmenté jusqu'à 8 minutes
maximum.
Modifier le temps de la disponibilité opérationnelle
8 7 6 5 4 3 2 1
S2
min.
max.
56
FR
-
17
Figure 3
Matériel d'installation
1 2 3 4 5 6 7 8 9 10 12 13
21 20 19 18 17 16 15 14
11b 11a
11d
11c
A
B 19a
24
11a
23
22
11b
1060 (1124)
~1050
600
Pos. Matériel d'installation
N° de réf.
1
Boulonnage d'angle
6.386-356
2
Courbe de tuyau de gaz fumé 90°
7.234-605
Courbe de tuyau de gaz fumé 45°
7.234-604
3
Tuyau de gaz fumé
7.234-603
4
Interrompeur d'aspiration du tuyau de gaz
fumé HDS 9/14-4
4.656-080
Interrompeur d'aspiration du tuyau de gaz
fumé HDS 12/14-4
4.656-079
5
Isolation thérmique
6.286-114
6
Interrupteur principal
6.631-455
7
Lot de tuyautage, acier zingué
2.420-004
Lot de tuyautage, acier inoxidable
2.420-006
8
Lot de pièces de la télécommande
2.744-008
9
Lot des pièces de la touche d'arrêt
d'urgence
2.744-002
10
Boulonnage de T
6.386-269
11a
Bouche de raccordement, laiton
2.638-180
Buche de raccordement, acier inoxidable 2.638-181
11b
Robinet d'arrêt NW8, acier zingué
4.580-144
Robinet d'arrêt NW 8, acier inoxidable
4.580-163
11c
Pièce firme de transmission rapide
6.463-025
11d
Pièce lâchée de transmission rapide
6.463-023
Pos. Matériel d'installation
N° de réf.
12
Porte-tuyau
2.042-001
13
Dévidoir
2.637-238
14
Tuyau à haute pression 10 m
6.388-083
15
Poignée-pistolet de compression facile
4.775-463
Régulateur rotatif HDS 9/14-4
4.775-470
Régulateur rotatif HDS 12/14-4
4.775-471
16
Support de lance
2.042-002
17
Lance
4.760-550
18
Nez de la buse HDS 9/14-4
2.883-402
Nez de la buse HDS 12/14-4
2.883-406
19
Tuyau à eau
4.440-282
19a
Électrovalve de l'alimentation d'eau
4.743-011
20
Réservoir de détergent, 60 l
5.070-078
21
Réservoir de fuel de 600 l
6.392-050
22
Lot de pièces de la console de mur
2.053-005
Lot de pièces du châssis du fond
2.210-008
23
Flexible haute pression
6.389-028
24
Collier de tuyau
6.373-374
57
FR
-
18
Nous certifions par la présente que la machine spécifiée ci-après
répond de par sa conception et son type de construction ainsi
que de par la version que nous avons mise sur le marché aux
prescriptions fondamentales stipulées en matière de sécurité et
d’hygiène par les directives européennes en vigueur. Toute mo-
dification apportée à la machine sans notre accord rend cette dé-
claration invalide.
5.957-054
Les soussignés agissent sur ordre et sur procuration de la Direc-
tion commerciale.
Responsable de la documentation:
S. Reiser
Alfred Kärcher GmbH Co. KG
Alfred-Kärcher-Str. 28 - 40
71364 Winnenden (Germany)
Téléphone : +49 7195 14-0
Télécopieur : +49 7195 14-2212
Winnenden, 2014/02/01
Dans chaque pays, les conditions de garantie en vigueur sont
celles publiées par notre société de distribution responsable.
Nous éliminons gratuitement d’éventuelles pannes sur l’appareil
au cours de la durée de la garantie, dans la mesure où une erreur
de matériau ou de fabrication en sont la cause.
Déclaration de conformité CE
Produit:
Nettoyeur haute pression
avec niveau de vapeur
Type:
1.698-xxx
Type:
1.699-xxx
Directives européennes en vigueur :
97/23/CE
2006/42/CE (+2009/127/CE)
2004/108/CE
Catégorie du groupement
II
Procédé de conformité
Module H
Serpentin de réchauffage
Teste de conformité Module H
Soupape de sûreté
Teste de conformité Art. 3 al. 3
bloc de commande
Teste de conformité Module H
des conduits divers
Teste de conformité Art. 3 al. 3
Normes harmonisées appliquées :
EN 55014–1: 2006+A1: 2009+A2: 2011
EN 55014–2: 1997+A1: 2001+A2: 2008
EN 60335–1
EN 60335–2–79
EN 61000–3–2: 2006+A1: 2009+A2: 2009
HDS 12/14:
EN 61000–3–3: 2008
HDS 9/14:
EN 61000–3–11: 2000
Spécifications appliquées:
AD 2000 en référence
TRD 801 en référence
Nom du service désigné:
pour 97/23/EG
TÜV Rheinland Industrie Service GmbH
Am Grauen Stein
51105 Köln
N° d'identification 0035
CEO
Head of Approbation
Garantie
58
FR
-
19
Service après-vente
Type de station :
N° de fabrication :
Date de mise en service :
Contrôle effectué le :
Résultat :
Signature
Contrôle effectué le :
Résultat :
Signature
Contrôle effectué le :
Résultat :
Signature
Contrôle effectué le :
Résultat :
Signature
59
FR
-
20
Indication:
Les recommandations d'intervalles de contrôle des
exigences nationales respectives du pays d'exploitation doivent
être respectées.
Essais périodiques
Contrôle effectué par :
Contrôle extérieure
Contrôle intérieure
contrôle de la stabilité
Nom
Signature du spécialiste/
Date
Signature du spécialiste/
Date
Signature du spécialiste/
Date
Nom
Signature du spécialiste/
Date
Signature du spécialiste/
Date
Signature du spécialiste/
Date
Nom
Signature du spécialiste/
Date
Signature du spécialiste/
Date
Signature du spécialiste/
Date
Nom
Signature du spécialiste/
Date
Signature du spécialiste/
Date
Signature du spécialiste/
Date
Nom
Signature du spécialiste/
Date
Signature du spécialiste/
Date
Signature du spécialiste/
Date
Nom
Signature du spécialiste/
Date
Signature du spécialiste/
Date
Signature du spécialiste/
Date
Nom
Signature du spécialiste/
Date
Signature du spécialiste/
Date
Signature du spécialiste/
Date
Nom
Signature du spécialiste/
Date
Signature du spécialiste/
Date
Signature du spécialiste/
Date
Nom
Signature du spécialiste/
Date
Signature du spécialiste/
Date
Signature du spécialiste/
Date
Nom
Signature du spécialiste/
Date
Signature du spécialiste/
Date
Signature du spécialiste/
Date
Nom
Signature du spécialiste/
Date
Signature du spécialiste/
Date
Signature du spécialiste/
Date
60
FR




