Karcher HDS 12/14-4 ST Eco: !
!: Karcher HDS 12/14-4 ST Eco
-
14
–
Laitteen kuumennusyksikkö on kaasupoltinlaite. Laitteiston
asennuksessa on noudatettava paikallisia määräyksiä.
–
Käytä vain hyväksyttyä palokaasujen poisto- ja savutorvi-
asennusta.
Vaara
Palovammojen vaara! Jokainen liitäntäpiste on merkittävä tällä
symbolilla.
Lämmitysöljysäiliön sijoittamisessa laitteiston asennustilaan on
noudatettava palavien nesteiden varastointia koskevia määräyk-
siä (saatavista kustantajalta: Carl Heymanns Verlag, Köln,
www.heymans.com).
Polttoaineputkiston vetäminen on tehtävä alla olevan kaavion
mukaisesti.
Tarvitaan 2-putkinen järjestelmä, meno- ja paluuvirtaus.
–
Polttoöljyn maks. esipaine: 0,05 MPa (0,5 baaria)
–
Maks. alipaine polttoainesuodattimen ja pumpun välillä: 0,04
MPa (0,4 baaria)
Imuputken pituus metreinä
Imukorkeus metreinä
Imuputken sallittu pituus NW 8 -putkilla
–
Jokainen laite on liitettävä omaan savutorveensa.
–
Palokaasujen poisto on toteutettava paikallisten määräysten
ja pelastuslaitoksen ohjeiden mukaisesti.
Suosittelemme sulkupellin asentamista laitteiston ja savupiipun
väliin.
Ohje
Jotta edellä annetut palamisarvot voidaan saavuttaa, on savutor-
veen saatava teknisissä tiedoissa ilmoitettu veto.
–
Varmista ennen asennusta, että seinän kantavuus riittää. Mu-
kana toimitetut kiinnitystarvikkeet ovat betoniseinälle asen-
nusta varten. Kevytsoraharkko-, tiili- ja kaasubetoniseiniin on
käytettävä vastaavia asianmukaisia kiinnitystarvikkeita (ks.
mittalehden porauskaavio).
–
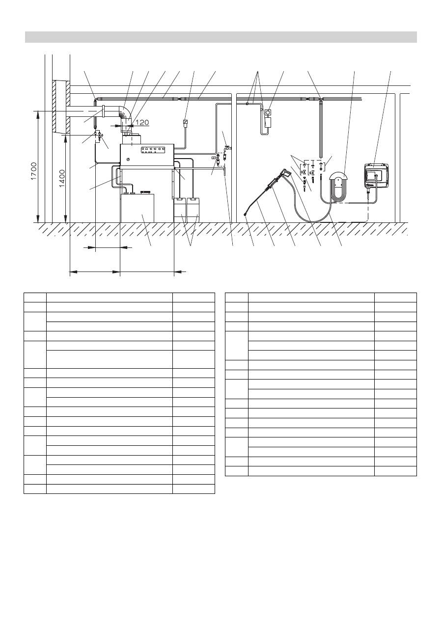
Kuva 3 - kohdat 19 ja 23
Laitetta ei saa yhdistää vesijohtoputkiin ja korkeapaineletkui-
hin jäykästi asennettuna. Väliin on ehdottomasti asennettava
yhdysletkut.
–
Kuva 3 - A
Vesijohtoverkon ja yhdysletkun väliin on asennettava sulku-
venttiili.
Korkeapainejohdotusten asennustöissä on noudatettava kansal-
lisia lakisääteisiä määräyksiä.
–
Putkiston painehäviön pitää jäädä alle 1,5 MPa.
–
Varmis putkijohto on koeponnistettava 28 MPa -paineella.
–
Putkiston eristyksen on kestettävä lämpötila 155 °C.
Kuva 3 - Kohta 20
Säiliöt on sijoitettava niin, että pesunesteen pinta alimmillaan on
korkeintaan 1,5 m laitteiston pohjaa alempana. Nesteen pinta
ylimmillään ei saa olla laitteiston pohjaa korkeammalla.
Kuva 3 - B ja kohta 19
Liitä tulovesipuoli vesijohtoverkkoon sopivalla letkulla.
–
Vesijohtoverkon tehon pitää olla vähintään 1300 l/h ja pai-
neen 0,1 MPa.
–
Veden lämpötilan pitää olla alle 30 °C.
Varo
Sähköliitännän suurinta sallittua verkkovastusta ei saa ylittää
(katso tekniset tiedot). Jos ilmenee epäselvyyksiä koskien verk-
koliitäntäsi käytettävissä olevaa verkkovastusta, ota yhteys ener-
giansyöttöyhtiöösi.
Huomautus:
Virtapiikki laitetta käynnistettäessä aiheuttaa lyhyt-
aikaisen jännitteen alenemisen. Joissakin tilanteissa jännitteen
aleneminen saattaa vaikuttaa myös muihin laitteisiin ja niiden
käyttöön.
–
Katso liitäntäarvot teknisistä tiedoista ja tyyppikilvestä.
–
Sähköliitännät on suoritettava sähköasentajan toimesta ja nii-
den on oltava IEC 60364-1:n mukaisia.
–
Sähköä johtavat osat, kaapelit ja työalueella olevat laitteet on
suojattava niin, ettei vesisuihku pääse niihin.
Sähkötapaturmien välttämiseksi suosittelemme käyttämään pis-
torasioita, joissa on esikytketyt virhevirran turvakytkimet (maks.
30 mA nimellislaukaisuvirran voimakkuus).
Tee sähköliitännät.
Jotta kiinteä korkeapainepesuri voidaan kytkeä pois päältä, vaa-
rattomaan ja helppopääsyiseen paikkaan on asennettava lukitta-
va pääkytkin (kuva 3 - kohta 6).
Pääkatkaisimen kosketusvälin pitää olla vähintään 3 mm.
Asenna moninapa-pistotulppa laitteen liitoskaapeliin.
Pistä Cekon-pistoke pistorasiaan.
Kiinteästi asennetun pesurin irrottamiseksi sähköverkosta on
moninapa-pistotulppa asennettava paikkaan, johon on helppo
pääsy.
Laitteiston asennus
Vain valtuutettu ammattihenkilöstö!
Yleistä
Jos työlämpötila on
korkeampi kuin
100 °C, vaihda kor-
keapainesuutin höy-
rysuuttimeksi.
Lämmitysöljysäiliö
Polttoaineputket
Savukaasuputki
!
Asennus seinälle
Korkeapaineletkujen asennus
Pesuainesäiliöiden sijoitus
Veden otto
Sähköliitäntä
Kiinteästi asennettavat sähköliitännät
Sähköliitäntä pistokkeella/pistorasialla
209
FI
-
15
Ennen ensimmäitä käyttöä, leikkaa vesipumpun päällä ole-
van öljysäiliön tulpan kärki irti.
Vaara
Räjähdysvaara! Käytä ainoastaan dieselpolttoöljyä tai kevyttä
polttoöljyä. Älä käytä sopimatonta polttoainetta, kuten esimerkik-
si bensiiniä.
Täytä polttoainesäiliö.
Varo
Käyttö kuuma vesi -tilassa ilman polttoainetta rikkoo polttoaine-
pumpun. Varmista polttoaineen syöttö, ennen kuin käytät laitetta
kuuma vesi -tilassa.
Kuva 3 - Kohta 14
Yhdistä korkeapaineletku suihkuputkeen ja käsikahvaan. Lii-
tä letku laitteen tai putkiston paineveden ulosottoon.
Kiinnitä suuttimen suukappale (b) hattumutterilla (a) suihku-
putkeen (d). Huomaa, että tiivisterengas (c) on tasaisesti
urassa.
Poista jousi (c) vedenpehmennysainesäiliön (a) tulpan kau-
luksesta (b).
Täytä säiliö Kärcher-vedenpehmennysnesteellä RM 110 (tila-
usnumero 2.780-001).
Vaara
Vaarallinen sähköjännite! Säädön saa suorittaa vain sähköalan
ammattilainen.
Paikallisen vedenkovuuden selvittäminen:
–
Selvitä paikalliselta vesijohtolaitokselta veden kovuus tai
–
mittaa vedenkovuuden mittauslaitteella (tilausnumero 6.768-
004).
Irrota laitekupu.
Avaa käyttöpaneelin kytkentärasia.
Säädä kiertopotentiometri (a) veden kovuuden mukaisesti.
Taulukosta saat oikeat säätöarvot.
Esimerkki:
Jos veden kovuus on 15 °dH, säädä kiertopotentiometri asteikon
arvolle 6. Tällöin taukoajaksi tulee 31 sekuntia. Se tarkoittaa, että
magneettiventtiili aukeaa lyhyesti joka 31. sekunti.
Käyttövalmiusajan säätö tehdään sähkökytkentäkaapin vasem-
malla seinällä olevalla suuremmalla piirilevyllä.
Käyttövalmiusaika on tehtaalla asetettu minimiin, 2 minuuttia.
Voit nostaa sitä maksimiin, 8 minuuttiin, saakka.
Ensimmäinen käyttöönotto
Toimenpiteet ennen käyttöönottoa
Kalkkiutumisen esto
a
b
c
d
b
c
a
Vedenkovuus (°dH)
5
10
15
20
25
Kiertopotentiometrin asteik-
ko
8
7
6
5
4,5
Taukoaika (sekuntia)
50
40
31
22
16
Käyttövalmiusajan säätö uudelleen
a
8 7 6 5 4 3 2 1
S2
min.
max.
210
FI
-
16
Kuva 3
Asennettavat osat
1 2 3 4 5 6 7 8 9 10 12 13
21 20 19 18 17 16 15 14
11b 11a
11d
11c
A
B 19a
24
11a
23
22
11b
1060 (1124)
~1050
600
Kohta Asennettavat osat
Tilausnro
1
Kulmaliitin
6.386-356
2
Savukaasuputken kulmapala 90°
7.234-605
Savukaasuputken kulmapala 45°
7.234-604
3
Savukaasuputki
7.234-603
4
Savupelti savukaasuputkeen HDS 9/14-4 4.656-080
Savupelti savukaasuputkeen
HDS 12/14-4
4.656-079
5
Lämpöeriste
6.286-114
6
Pääkatkaisin
6.631-455
7
Putkisarja, sinkittyä terästä
2.420-004
Putkisarja, ruostumatonta terästä
2.420-006
8
Kauko-ohjaus, osat
2.744-008
9
Hätä-Seis -kytkin, osat
2.744-002
10
T-kulmaliitin
6.386-269
11a
Liitosmuhvi, messinkiä
2.638-180
Liitosmuhvi, ruostumatonta terästä
2.638-181
11b
Sulkuventtiili NW 8, sinkittyä terästä
4.580-144
Sulkuventtiili NW 8, ruostumatonta terästä 4.580-163
11c
Pikaliitin, kiinteä osa
6.463-025
11d
Pikaliitin, irto-osa
6.463-023
Kohta Asennettavat osat
Tilausnro
12
Letkunpidin
2.042-001
13
Letkurumpu
2.637-238
14
Korkeapaineletku 10 m
6.388-083
15
Käsikahva, Easy Press
4.775-463
Kiertosäädin HDS 9/14-4
4.775-470
Kiertosäädin HDS 12/14-4
4.775-471
16
Suihkuputken pidin
2.042-002
17
Suihkuputki
4.760-550
18
Suutinsuukappale HDS 9/14-4
2.883-402
Suutin HDS 12/14-4
2.883-406
19
Vesiletku
4.440-282
19a
Magneettiventtiili, syöttövesi
4.743-011
20
Pesuainesäiliö, 60 l
5.070-078
21
Polttoainesäiliö 600 l
6.392-050
22
Seinäkannatimet, osat
2.053-005
Kehikko lattialle, osat
2.210-008
23
Korkeapaineletku
6.389-028
24
Putkisinkilä
6.373-374
211
FI
-
17
Vakuutamme, että alla mainitut tuotteet vastaavat suunnittelul-
taan ja rakenteeltaan sekä valmistustavaltaan EU-direktiivien
asianomaisia turvallisuus- ja terveysvaatimuksia. Jos tuottee-
seen/tuotteisiin tehdään muutoksia, joista ei ole sovittu kanssam-
me, tämä vakuutus ei ole enää voimassa.
5.957-054
Allekirjoittaneet toimivat yrityksen johton puolesta ja sen valtuut-
tamina.
Dokumentointivaltuutettu:
S. Reiser
Alfred Kärcher GmbH & Co. KG
Alfred-Kärcher-Str. 28 - 40
71364 Winnenden (Germany)
Puh.: +49 7195 14-0
Faksi: +49 7195 14-2212
Winnenden, 2014/02/01
Kussakin maassa ovat voimassa valtuuttamamme myyntiorgani-
saation julkaisemat takuuehdot. Materiaali- ja valmistusvirheistä
mahdollisesti aiheutuvat virheet laitteessa korjaamme takuuaika-
na maksutta.
EU-standardinmukaisuustodistus
Tuote:
Korkeapainepesuri, jossa
höyryletku
Tyyppi:
1.698-xxx
Tyyppi:
1.699-xxx
Yksiselitteiset EU-direktiivit
97/23/EY
2006/42/EY (+2009/127/EY)
2004/108/EY
Rakenneryhmän luokka
II
Yhdenmukaisuusmenettely
Moduuli H
Kuumennuskierukka
Yhdenmukaisuusarvio moduuli H
Turvaventtiili
Yhdenmukaisuusarvio pykälä 3, kohta 3
Ohjauslohko
Yhdenmukaisuusarvio moduuli H
sekalaisetputkijohdot
Yhdenmukaisuusarvio pykälä 3, kohta 3
Sovelletut harmonisoidut standardit
EN 55014–1: 2006+A1: 2009+A2: 2011
EN 55014–2: 1997+A1: 2001+A2: 2008
EN 60335–1
EN 60335–2–79
EN 61000–3–2: 2006+A1: 2009+A2: 2009
HDS 12/14:
EN 61000–3–3: 2008
HDS 9/14:
EN 61000–3–11: 2000
Käytetyt spesifikaatiot:
AD 2000 mukailtuna
TRD 801 mukailtuna
Mainitun paikan nimi:
97/23/EG:tä varten
TÜV Rheinland Industrie Service GmbH
Am Grauen Stein
51105 Köln
Tunnusnumero 0035
CEO
Head of Approbation
Takuu
212
FI
-
18
Asiakaspalvelu
Laitteistotyyppi:
Valmistenro:
Käyttöönottopäiväys:
Tarkastuspäiväys:
Tulos:
Allekirjoitus
Tarkastuspäiväys:
Tulos:
Allekirjoitus
Tarkastuspäiväys:
Tulos:
Allekirjoitus
Tarkastuspäiväys:
Tulos:
Allekirjoitus
213
FI
-
19
Huomautus:
Tarkastusten aikavälien on oltava kussakin maas-
sa voimassa olevien kansallisten vaatimusten mukaiset.
Toistuvat tarkastukset
Tarkastuksen suorittaja:
Ulkoinen tarkastus
Sisäinen tarkastus
Lujuustarkastus
Nimi
Pätevän henkilön allekir-
joitus/päiväys
Pätevän henkilön allekir-
joitus/päiväys
Pätevän henkilön allekir-
joitus/päiväys
Nimi
Pätevän henkilön allekir-
joitus/päiväys
Pätevän henkilön allekir-
joitus/päiväys
Pätevän henkilön allekir-
joitus/päiväys
Nimi
Pätevän henkilön allekir-
joitus/päiväys
Pätevän henkilön allekir-
joitus/päiväys
Pätevän henkilön allekir-
joitus/päiväys
Nimi
Pätevän henkilön allekir-
joitus/päiväys
Pätevän henkilön allekir-
joitus/päiväys
Pätevän henkilön allekir-
joitus/päiväys
Nimi
Pätevän henkilön allekir-
joitus/päiväys
Pätevän henkilön allekir-
joitus/päiväys
Pätevän henkilön allekir-
joitus/päiväys
Nimi
Pätevän henkilön allekir-
joitus/päiväys
Pätevän henkilön allekir-
joitus/päiväys
Pätevän henkilön allekir-
joitus/päiväys
Nimi
Pätevän henkilön allekir-
joitus/päiväys
Pätevän henkilön allekir-
joitus/päiväys
Pätevän henkilön allekir-
joitus/päiväys
Nimi
Pätevän henkilön allekir-
joitus/päiväys
Pätevän henkilön allekir-
joitus/päiväys
Pätevän henkilön allekir-
joitus/päiväys
Nimi
Pätevän henkilön allekir-
joitus/päiväys
Pätevän henkilön allekir-
joitus/päiväys
Pätevän henkilön allekir-
joitus/päiväys
Nimi
Pätevän henkilön allekir-
joitus/päiväys
Pätevän henkilön allekir-
joitus/päiväys
Pätevän henkilön allekir-
joitus/päiväys
Nimi
Pätevän henkilön allekir-
joitus/päiväys
Pätevän henkilön allekir-
joitus/päiväys
Pätevän henkilön allekir-
joitus/päiväys
214
FI
-
1
Πριν
χρησιμοποιήσετε
τη
συσκευή
σας
για
πρώτη
φο
-
ρά
,
διαβάστε
αυτές
τις
πρωτότυπες
οδηγίες
χρήσης
,
ενεργήστε
σύμφωνα
με
αυτές
και
κρατήστε
τις
για
μελλοντική
χρήση
ή
για
τον
επόμενο
ιδιοκτήτη
.
–
Πριν
από
την
πρώτη
χρήση
διαβάστε
οπωσδήποτε
τις
υπο
-
δείξεις
ασφαλείας
αρ
. 5.956-309!
–
Σε
περίπτωση
βλαβών
κατά
τη
μεταφορά
ειδοποιήστε
αμέ
-
σως
τον
αντιπρόσωπό
σας
.
Υποδείξεις
για
τα
συστατικά
(REACH)
Ενημερωμένες
πληροφορίες
για
τα
συστατικά
μπορείτε
να
βρείτε
στη
διεύθυνση
:
www.kaercher.com/REACH
Κίνδυνος
Για
άμεσα
επαπειλούμενο
κίνδυνο
,
ο
οποίος
μπορεί
να
οδηγήσει
σε
σοβαρό
τραυματισμό
ή
θάνατο
.
몇
Προειδοποίηση
Για
ενδεχόμενη
επικίνδυνη
κατάσταση
,
η
οποία
μπορεί
να
οδηγή
-
σει
σε
σοβαρό
τραυματισμό
ή
θάνατο
.
Προσοχή
Για
ενδεχόμενη
επικίνδυνη
κατάσταση
,
η
οποία
μπορεί
να
οδηγή
-
σει
σε
ελαφρό
τραυματισμό
ή
υλικές
βλάβες
.
Ο
ψεκασμός
με
υψηλή
πίεση
μπορεί
να
αποδειχτεί
επι
-
κίνδυνος
σε
περίπτωση
μη
προσήκουσας
χρήσης
.
Η
δέσμη
δεν
πρέπει
να
κατευθύνεται
πάνω
σε
άτομα
,
ζώα
,
ενεργοποιημένο
ηλεκτρικό
εξοπλισμό
ή
στην
ίδια
τη
συ
-
σκευή
.
–
Δώστε
προσοχή
στις
εκάστοτε
προδιαγραφές
της
εθνικής
νο
-
μοθεσίας
σχετικά
με
τις
εκπομπές
υγρών
.
–
Δώστε
προσοχή
στις
εκάστοτε
διατάξεις
της
εθνικής
νομοθε
-
σίας
σχετικά
με
την
αποτροπή
ατυχημάτων
Οι
συσκευές
εκ
-
πομπής
υγρών
θα
πρέπει
να
υποβάλλονται
σε
έλεγχο
σε
τακτικά
διαστήματα
και
τα
αποτελέσματα
του
ελέγχου
θα
πρέ
-
πει
να
καταγράφονται
και
να
φυλάσσονται
.
–
Η
διάταξη
θέρμανσης
της
συσκευής
είναι
μια
μονάδα
καύσης
.
Οι
μονάδες
καύσης
θα
πρέπει
να
υποβάλλονται
τακτικά
σε
έλεγχο
,
σύμφωνα
με
τις
εκάστοτε
προδιαγραφές
της
εθνικής
νομοθεσίας
.
–
Κατά
τη
λειτουργία
της
εγκατάστασης
σε
κλειστούς
χώρους
να
προβλέπεται
η
ακίνδυνη
αποβολή
των
καυσαερίων
(
σω
-
λήνας
καυσαερίων
χωρίς
διακοπή
έλξης
).
Περαιτέρω
,
να
υπάρχει
επαρκής
προσαγωγή
καθαρού
αέρα
.
–
Σύμφωνα
με
τις
ισχύουσες
εθνικές
διατάξεις
,
αυτή
η
συσκευή
καθαρισμού
υψηλής
πίεσης
πρέπει
να
τεθεί
για
πρώτη
φορά
σε
επαγγελματική
λειτουργία
από
ένα
εξουσιοδοτημένο
άτο
-
μο
.
Η
K
Δ
RCHER
έχει
ήδη
εκτελέσει
και
τεκμηριώσει
αυτή
την
πρώτη
ενεργοποίηση
για
σας
.
Μπορείτε
να
απευθυνθείτε
στον
τοπικό
συνεργάτη
της
K
Δ
RCHER
για
τα
σχετικά
έγγρα
-
φα
τεκμηρίωσης
.
Εάν
ζητήσετε
τα
έγγραφα
τεκμηρίωσης
,
έχε
-
τε
εύκαιρους
τους
αριθμούς
των
εξαρτημάτων
και
τον
αριθμό
εργοστασίου
της
συσκευής
.
–
Σας
εφιστούμε
την
προσοχή
στο
γεγονός
,
ότι
σύμφωνα
με
τις
ισχύουσες
εθνικές
διατάξεις
η
συσκευή
πρέπει
να
ελέγχεται
κατά
καιρούς
από
ένα
εξουσιοδοτημένο
άτομο
.
Απευθυνθείτε
σχετικά
στον
τοπικό
συνεργάτη
της
K
Δ
RCHER.
–
Λάβετε
υπόψη
τις
υποδείξεις
ασφαλείας
που
συνοδεύουν
τα
απορρυπαντικά
που
χρησιμοποιείτε
(
κατά
κανόνα
στην
ετικέ
-
τα
συσκευασίας
).
Πίνακας
περιεχομένων
Προστασία
περιβάλλοντος
.
EL . . 1
Σύμβολα
στο
εγχειρίδιο
οδηγιών
EL . . 1
Σύμβολα
στη
συσκευή
. . . . .
EL . . 1
Γενικές
οδηγίες
ασφαλείας
.
EL . . 1
Χρήση
σύμφωνα
με
τους
κανονισμούς
EL . . 2
Λειτουργία
. . . . . . . . . . . . . .
EL . . 2
Διατάξεις
ασφαλείας
. . . . . .
EL . . 2
Στοιχεία
συσκευής
. . . . . . . .
EL . . 3
Έναρξη
λειτουργίας
. . . . . . .
EL . . 4
Χειρισμός
. . . . . . . . . . . . . .
EL . . 4
Απενεργοποίηση
. . . . . . . . .
EL . . 7
Διακοπή
της
λειτουργίας
. . .
EL . . 7
Αποθήκευση
. . . . . . . . . . . .
EL . . 7
Μεταφορά
. . . . . . . . . . . . . .
EL . . 7
Τεχνικά
χαρακτηριστικά
. . . .
EL . . 8
Φροντίδα
και
συντήρηση
. . .
EL . 10
Αντιμετώπιση
βλαβών
. . . . .
EL . 12
Εξαρτήματα
. . . . . . . . . . . . .
EL . 14
Εγκατάσταση
μονάδας
. . . .
EL . 15
Δήλωση
Συμμόρφωσης
των
Ε
.
Κ
.
EL . 19
Εγγύηση
. . . . . . . . . . . . . . .
EL . 19
Υπηρεσία
εξυπηρέτησης
πελατών
EL . 20
Επαναλαμβανόμενοι
έλεγχοι
EL . 21
Προστασία
περιβάλλοντος
Τα
υλικά
συσκευασίας
είναι
ανακυκλώσιμα
.
Μην
πε
-
τάτε
τις
συσκευασίες
στα
οικιακά
απορρίμματα
,
αλλά
σε
ειδικό
σύστημα
επαναχρησιμοποίησης
.
Οι
παλιές
συσκευές
περιέχουν
ανακυκλώσιμα
υλικά
,
τα
οποία
θα
πρέπει
να
μεταφέρονται
σε
σύστημα
επα
-
ναχρησιμοποίησης
.
Οι
μπαταρίες
,
τα
λάδια
και
παρό
-
μοια
υλικά
δεν
επιτρέπεται
να
καταλήγουν
στο
περιβάλλον
.
Για
το
λόγο
αυτόν
η
διάθεση
παλιών
συ
-
σκευών
πρέπει
να
γίνεται
σε
κατάλληλα
συστήματα
συλλογής
.
Το
μηχανέλαιο
,
το
πετρέλαιο
θέρμανσης
,
το
καύσιμο
ντίζελ
και
η
βενζίνη
δεν
πρέπει
να
καταλήγουν
στο
περιβάλλον
.
Προστα
-
τέψτε
το
έδαφος
και
αποσύρετε
παλιά
λάδια
με
οικολογικό
τρό
-
πο
.
Τα
απορρυπαντικά
της
Kärcher
διαθέτουν
ιδιότητες
διαχωρι
-
σμού
(ASF).
Αυτό
σημαίνει
ότι
δεν
εμποδίζουν
τη
λειτουργία
ενός
διαχωριστή
λαδιού
.
Στο
κεφάλαιο
"
Πρόσθετα
εξαρτήματα
"
περιλαμβάνεται
μια
λίστα
με
τα
συνιστώμενα
απορρυπαντικά
.
Σύμβολα
στο
εγχειρίδιο
οδηγιών
Σύμβολα
στη
συσκευή
Κίνδυνος
εγκαυμάτων
!
Προειδοποίηση
για
καυ
-
τά
δομικά
στοιχεία
.
Γενικές
οδηγίες
ασφαλείας
215
EL
-
2
Πριν
την
εγκατάσταση
της
συσκευής
,
πρέπει
να
έρθετε
σε
συνεν
-
νόηση
με
τον
υπεύθυνο
καθαρισμού
καμινάδων
της
περιοχής
σας
.
Κατά
την
εγκατάσταση
λάβετε
υπόψη
τους
οικοδομικούς
και
εμπορικούς
κανονισμούς
,
καθώς
και
τους
κανονισμούς
προστα
-
σίας
από
εκπομπές
.
Εφιστούμε
την
προσοχή
στους
ακόλουθους
κανονισμούς
,
οδηγίες
και
νόρμες
:
–
Η
συσκευή
πρέπει
να
εγκαθίσταται
μόνον
από
εξειδικευμένη
εταιρεία
και
σύμφωνα
με
τους
εκάστοτε
εθνικούς
κανονι
-
σμούς
.
–
Κατά
την
ηλεκτρική
εγκατάσταση
,
να
λαμβάνονται
υπόψη
οι
εκάστοτε
εθνικοί
κανονισμοί
του
νομοθέτη
.
–
Οι
ρυθμίσεις
,
οι
εργασίες
συντήρησης
και
οι
επιδιορθώσεις
του
καυστήρα
μπορούν
να
εκτελούνται
μόνον
από
εκπαιδευ
-
μένους
τεχνικούς
εγκατάστασης
της
υπηρεσίας
εξυπηρέτη
-
σης
πελατών
της
Kärcher.
–
Κατά
τη
σχεδίαση
μιας
καμινάδας
,
να
τηρούνται
οι
ισχύουσες
τοπικές
οδηγίες
.
Η
θέση
εργασίας
βρίσκεται
στο
χώρο
χειρισμού
.
Περαιτέρω
θέ
-
σεις
εργασίας
βρίσκονται
αναλόγως
της
διάταξης
της
μονάδας
στα
πρόσθετα
μηχανήματα
(
διατάξεις
ψεκασμού
),
τα
οποία
συν
-
δέονται
με
τα
σημεία
βυσμάτωσης
.
–
Για
να
προστατευθείτε
από
τις
πιτσιλιές
του
νερού
ή
από
τους
ρύπους
,
φοράτε
προστατευτική
στολή
και
γυαλιά
.
Η
συσκευή
χρησιμοποιείται
για
την
απομάκρυνση
ρύπων
από
επιφάνειες
μέσω
της
ελεύθερης
εκτόξευσης
δέσμης
νερού
.
Χρη
-
σιμοποιείται
ιδιαίτερα
για
τον
καθαρισμό
μηχανημάτων
,
οχημά
-
των
και
προσόψεων
.
Κίνδυνος
Κίνδυνος
τραυματισμού
!
Σε
περίπτωση
λειτουργίας
σε
πρατήρια
βενζίνης
ή
άλλους
επικίνδυνους
χώρους
,
να
τηρούνται
οι
ανάλο
-
γες
προδιαγραφές
ασφαλείας
.
–
Το
κρύο
νερό
μεταφέρεται
μέσω
του
σπειροειδούς
ψυκτικού
στοιχείου
κινητήρα
και
του
δοχείου
με
πλωτήρα
στην
πλευρά
αναρρόφησης
της
αντλίας
υψηλής
πίεσης
.
Στο
δοχείο
με
πλωτήρα
προστίθεται
αποσκληρυντικό
.
Η
αντλία
προωθεί
το
νερό
και
το
αναρροφούμενο
απορρυπαντικό
μέσα
από
τον
θερμαντήρα
διαρκούς
λειτουργίας
.
Το
ποσοστό
απορρυπα
-
ντικού
στο
νερό
μπορεί
να
ρυθμιστεί
μέσω
μιας
δοσομετρικής
βαλβίδας
.
Ο
θερμαντήρας
διαρκούς
λειτουργίας
θερμαίνεται
με
καυστήρα
.
–
Η
έξοδος
υψηλής
πίεσης
συνδέεται
με
το
υπάρχουν
δίκτυο
υψηλής
πίεσης
του
κτιρίου
.
Στα
σημεία
βυσμάτωσης
του
δι
-
κτύου
γίνεται
η
σύνδεση
του
πιστολέτου
χειρός
με
έναν
ελα
-
στικό
σωλήνα
υψηλής
πίεσης
.
Τα
συστήματα
ασφαλείας
χρησιμεύουν
για
την
προστασία
του
χρήστη
και
δεν
επιτρέπεται
να
τεθούν
εκτός
λειτουργίας
ή
να
αγνοηθεί
η
λειτουργία
τους
.
Η
ασφάλεια
έλλειψης
νερού
εμποδίζει
την
ενεργοποίηση
της
αντλίας
υψηλής
πίεσης
σε
περίπτωση
έλλειψης
νερού
.
Η
ασφάλεια
έλλειψης
νερού
αποτρέπει
την
υπερθέρμανση
του
καυστήρα
σε
περίπτωση
έλλειψης
νερού
.
Ο
καυστήρας
λειτουρ
-
γεί
μόνον
όταν
υπάρχει
επαρκής
τροφοδοσία
νερού
.
Ο
διακόπτης
πίεσης
απενεργοποιεί
τη
συσκευή
σε
περίπτωση
υπέρβασης
της
πίεσης
εργασίας
.
Η
ρύθμιση
δεν
πρέπει
να
αλλάξει
.
Σε
περίπτωση
βλάβης
του
διακόπτη
πίεσης
,
ανοίγει
η
βαλβίδα
ασφαλείας
.
Η
βαλβίδα
αυτή
ρυθμίζεται
και
μολυβδοσφραγίζεται
στο
εργοστάσιο
.
Η
ρύθμιση
δεν
πρέπει
να
αλλάξει
.
Σε
περίπτωση
έλλειψης
καυσίμού
ή
βλάβης
στον
καυστήρα
,
ο
μηχανισμός
παρακολούθησης
φλόγας
απενεργοποιεί
την
καυ
-
στήρα
.
Η
ενδεικτική
λυχνία
βλάβης
στον
καυστήρα
(
Ε
)
ανάβει
.
Εάν
ο
κινητήρας
του
καυστήρα
μπλοκάρει
,
ενεργοποιείται
ο
δια
-
κόπτης
προστασίας
από
υπερένταση
.
Ο
κινητήρας
της
αντλίας
υψηλής
πίεσης
διαθέτει
διακόπτη
προστασίας
κινητήρα
και
δια
-
κόπτη
προστασίας
περιέλιξης
για
ασφάλεια
.
Ο
θερμοστάτης
απαερίων
ενεργοποιείται
,
όταν
η
θερμοκρασία
των
απαερίων
υπερβεί
τους
300 °C.
Η
συσκευή
απενεργοποιεί
-
ται
.
Μετά
την
απενεργοποίηση
της
συσκευής
μέσω
του
πιστολέτου
χειρός
,
μετά
την
πάροδο
του
χρόνου
ετοιμότητας
προς
εργασίας
ανοίγει
μια
ηλεκτρομαγνητική
βαλβίδα
,
η
οποία
είναι
προσαρτη
-
μένη
στο
σύστημα
υψηλής
πίεσης
,
και
μειώνει
την
πίεση
.
Κανονισμοί
,
οδηγίες
και
κανόνες
Θέσεις
εργασίας
Προσωπικός
προστατευτικός
εξοπλισμός
Κατά
τον
καθαρισμό
τμημάτων
υψηλής
ηχητικής
έντασης
,
φοράτε
ωτοασπίδες
για
την
πρόληψη
ακουστικών
βλαβών
.
Χρήση
σύμφωνα
με
τους
κανονισμούς
Λύματα
που
περιέχουν
ορυκτέλαια
δεν
επιτρέπεται
να
καταλή
-
γουν
στο
υπέδαφος
,
στα
ύδατα
ή
στο
σύστημα
αποχέτευσης
.
Συνεπώς
το
πλύσιμο
κινητήρων
ή
της
κάτω
πλευράς
οχημάτων
επιτρέπεται
μόνο
σε
κατάλληλους
χώρους
που
διαθέτουν
δια
-
χωριστή
λαδιών
.
Λειτουργία
Διατάξεις
ασφαλείας
Ασφάλεια
έλλειψης
νερού
στο
δοχείο
με
πλωτήρα
Ασφάλεια
έλλειψης
νερού
του
μπλοκ
ασφαλείας
Διακόπτης
Βαλβίδα
ασφάλειας
Παρακολούθηση
φλόγας
Προστασία
από
υπερένταση
Θερμοστάτης
καυσαερίων
Εκτόνωση
πίεσης
του
συστήματος
υψηλής
πίεσης
216
EL
-
3
Εικόνα
1
1
Καυστήρας
2
Μανόμετρο
3
Προσαγωγή
φρέσκου
νερού
με
σήτα
4
Έξοδος
υψηλής
πίεσης
5
Αγωγός
καυσίμων
προαγωγής
6
Αγωγός
καυσίμων
αναρροής
7
Ελαστικός
σωλήνας
αναρρόφησης
απορρυπαντικού
Ι
8
Ελαστικός
σωλήνας
αναρρόφησης
απορρυπαντικού
ΙΙ
(
προ
-
αιρετικός
)
9
Δοχείο
αποσκληρυντικού
10
Καλώδιο
ρεύματος
11
Δοχείο
με
πλωτήρα
12
Πεδίο
χειρισμού
Εικόνα
2
A
Διακόπτης
συσκευής
B
Ρυθμιστής
θερμοκρασίας
C
Δοσομετρική
βαλβίδα
απορρυπαντικού
Ι
D
Δοσομετρική
βαλβίδα
απορρυπαντικού
ΙΙ
(
προαιρετική
)
E
Ενδεικτική
λυχνία
βλάβης
στον
καυστήρα
F
Ενδεικτική
λυχνία
λειτουργικής
ετοιμότητας
G
Ενδεικτική
λυχνία
υπερθέρμανσης
κινητήρα
H
Ενδεικτική
λυχνία
προστασίας
από
άλατα
I
Εμπλοκή
-
πλήκτρο
απασφάλισης
κινητήρα
καυστήρα
Στοιχεία
συσκευής
6
5
7
8
3
4
9
11
10
1
12
2
Πεδίο
χειρισμού
217
EL
-
4
몇
Κίνδυνος
Κίνδυνος
τραυματισμού
!
Η
συσκευή
,
οι
αγωγοί
προσαγωγής
,
το
λάστιχο
υψηλής
πίεσης
και
οι
συνδέσεις
πρέπει
να
είναι
σε
άψογη
κατάσταση
.
Σε
περίπτωση
που
δεν
βρίσκονται
σε
άψογη
κατά
-
σταση
,
η
συσκευή
δεν
επιτρέπεται
να
χρησιμοποιηθεί
.
–
Σχετικά
με
τις
τιμές
σύνδεσης
βλέπε
Τεχνικά
χαρακτηριστικά
και
Πινακίδα
τύπου
.
–
Η
ηλεκτρική
σύνδεση
πρέπει
να
γίνει
από
ηλεκτρολόγο
και
να
ανταποκρίνεται
στο
IEC 60364-1.
Ο
χρήστης
πρέπει
να
χρησιμοποιεί
τη
συσκευή
σύμφωνα
με
τις
προδιαγραφές
.
Πρέπει
να
έχει
υπόψη
τις
τοπικές
συνθήκες
και
κατά
την
εργασία
με
τη
συσκευή
πρέπει
να
προσέχει
τα
άτομα
που
βρίσκονται
κοντά
της
.
Μην
αφήνετε
τη
συσκευή
ποτέ
χωρίς
επίβλεψη
,
εφόσον
βρίσκεται
σε
λειτουργία
.
Κίνδυνος
–
Κίνδυνος
εγκαυμάτων
από
καυτό
νερό
!
Μην
στρέφετε
τη
δέ
-
σμη
νερού
προς
ανθρώπους
ή
ζώα
.
–
Κίνδυνος
εγκαυμάτων
από
καυτά
τμήματα
της
μονάδας
!
Κατά
τη
λειτουργία
με
καυτό
νερό
,
μην
αγγίζετε
τους
μη
μονωμέ
-
νους
αγωγούς
και
ελαστικούς
σωλήνες
.
Κρατάτε
το
σωλήνα
δέσμης
μόνον
από
τις
λαβές
.
Μην
αγγίζετε
το
στόμιο
καυσαε
-
ρίων
του
θερμαντήρα
συνεχούς
λειτουργίας
.
–
Κίνδυνος
δηλητηρίασης
ή
εγκαυμάτων
από
την
επαφή
με
το
απορρυπαντικό
!
Τηρείτε
τις
υποδείξεις
επάνω
στο
απορρυ
-
παντικό
.
Διατηρείτε
το
απορρυπαντικό
σε
σημείο
,
όπου
είναι
απρόσιτο
σε
μη
εξουσιοδοτημένα
άτομα
.
Κίνδυνος
Θανάσιμος
κίνδυνος
λόγω
ηλεκτροπληξίας
!
Μην
στρέφετε
τη
δέ
-
σμη
νερού
προς
τις
ακόλουθες
εγκαταστάσεις
:
–
Ηλεκτρικές
συσκευές
και
μονάδες
,
–
την
ίδια
τη
μονάδα
,
–
όλα
τα
ηλεκτροφόρα
εξαρτήματα
στο
χώρο
εργασίας
.
Κατά
την
έξοδο
της
δέσμης
νερού
από
το
σωλήνα
εκτόξευσης
παράγεται
ανάκρουση
.
Όταν
ο
σωλήνας
εκτόξευσης
είναι
διπλω
-
μένος
,
δημιουργείται
δύναμη
ώθησης
προς
τα
επάνω
.
Κίνδυνος
–
Κίνδυνος
τραυματισμού
!
Η
ανάκρουση
του
σωλήνα
δέσμης
νερού
μπορεί
να
σας
κάνει
να
χάσετε
την
ισορροπία
σας
.
Εν
-
δέχεται
να
πέσετε
κάτω
.
Ο
σωλήνας
δέσμης
νερού
μπορεί
να
στραφεί
προς
κάθε
κατεύθυνση
και
να
τραυματίσει
άλλα
άτο
-
μα
.
Αναζητήστε
ένα
ασφαλές
σημείο
στήριξης
και
κρατήστε
σταθερά
το
πιστολέτο
.
Μην
ασφαλίζετε
ποτέ
το
μοχλό
του
πι
-
στολέτου
χειρός
.
–
Μην
στρέφετε
τη
δέσμη
πάνω
σε
άλλους
ή
σε
εσάς
τους
ίδι
-
ους
,
για
να
καθαρίσετε
ρούχα
ή
παπούτσια
.
–
Κίνδυνος
τραυματισμού
λόγω
διαφυγόντων
τμημάτων
!
Τυχόν
διαφυγόντα
θραύσματα
ή
αντικείμενα
μπορούν
να
προκαλέ
-
σουν
τραυματισμούς
σε
άτομα
ή
ζώα
.
Μην
στρέφετε
ποτέ
τη
δέσμη
νερού
προς
εύθραυστα
ή
κινητά
αντικείμενα
.
–
Κίνδυνος
ατυχήματος
συνεπεία
βλάβης
!
Καθαρίζετε
ελαστικά
και
βαλβίδες
από
ελάχιστη
απόσταση
30 cm.
몇
Προειδοποίηση
Κίνδυνος
λόγω
επικίνδυνων
για
την
υγεία
υλικών
!
Μην
ψεκάζετε
τα
ακόλουθα
υλικά
,
καθώς
μπορούν
να
εκπέμψουν
επικίνδυνες
για
την
υγεία
ουσίες
:
–
Υλικά
που
περιέχουν
αμίαντο
,
–
Υλικά
που
ενδεχομένως
περιέχουν
επικίνδυνες
για
την
υγεία
ουσίες
.
Κίνδυνος
–
Κίνδυνος
τραυματισμού
λόγω
της
εξερχόμενης
δέσμης
καυ
-
τού
νερού
.
Μόνον
οι
γνήσιοι
ελαστικοί
σωλήνες
υψηλής
πίε
-
σης
της
Kärcher
είναι
ιδανικοί
για
την
εγκατάσταση
.
Δεν
φέρουμε
ευθύνη
σε
περίπτωση
χρήσης
άλλων
ελαστικών
σω
-
λήνων
.
–
Κίνδυνος
για
την
υγεία
από
το
απορρυπαντικό
!
Λόγω
της
εν
-
δεχόμενης
ανάμειξης
με
απορρυπαντικό
,
το
νερό
που
εξέρχε
-
ται
από
τη
συσκευή
δεν
είναι
πόσιμο
.
–
Κίνδυνος
ακουστικής
βλάβης
σε
εργασίες
με
τμήματα
τα
οποία
παράγουν
υψηλά
επίπεδα
θορύβου
!
Στην
περίπτωση
αυτή
φοράτε
ωτοασπίδες
.
Κίνδυνος
Κίνδυνος
τραυματισμού
λόγω
της
εξερχόμενης
δέσμης
καυτού
νε
-
ρού
!
Κίνδυνος
Πριν
από
κάθε
λειτουργία
,
ελέγχετε
τον
εύκαμπτο
σωλήνα
υψη
-
λής
πίεσης
για
ζημιές
.
Αντικαθιστάτε
άμεσα
τον
εύκαμπτο
σωλήνα
υψηλής
πίεσης
που
παρουσιάζει
βλάβες
.
Πριν
από
κάθε
χρήση
,
ελέγχετε
τον
σωλήνα
υψηλής
πίεσης
,
τις
σωληνώσεις
,
τον
εξοπλισμό
και
τον
σωλήνα
δέσμης
για
ενδεχόμενες
βλάβες
.
Ελέγξτε
την
καλή
εφαρμογή
και
τη
στεγανότητα
του
ελαστικού
σωλήνα
αναρρόφησης
.
Προσοχή
Κίνδυνος
βλάβης
λόγω
ξηρής
λειτουργίας
.
Ελέγξτε
τη
στάθμη
πλήρωσης
του
δοχείου
απορρυπαντικού
και
συμπληρώστε
,
εάν
απαιτείται
.
Ελέγξτε
τη
στάθμη
του
υγρού
αποσκληρυντικού
και
συμπλη
-
ρώστε
,
εάν
απαιτείται
.
Ρυθμίστε
το
διακόπτη
της
συσκευής
(
Α
)
στη
θέση
“0“.
Κλείστε
την
προσαγωγή
νερού
.
Ενεργοποιήστε
το
πιστολέτο
χειρός
,
έως
ότου
διαπιστώσετε
ότι
η
συσκευή
δεν
βρίσκεται
υπό
πίεση
.
Έναρξη
λειτουργίας
Ηλεκτρολογικές
συνδέσεις
Χειρισμός
Υποδείξεις
ασφαλείας
!
Θέστε
τη
συσκευή
σε
ετοιμότητα
Απενεργοποίηση
σε
περίπτωση
εκτάκτου
ανάγκης
218
EL
-
5
Περιστρέψτε
την
βαλβίδα
ρύθμισης
ποσότητας
προς
τα
δεξιά
,
για
να
αυξήσετε
την
πίεση
εργασίας
και
την
μεταφερόμενη
ποσότητα
.
Περιστρέψτε
την
βαλβίδα
ρύθμισης
ποσότητας
προς
τα
αρι
-
στερά
,
για
να
μειώσετε
την
πίεση
εργασίας
και
την
μεταφερό
-
μενη
ποσότητα
.
Η
περιστροφή
του
ρυθμιστή
ποσότητας
νερού
προς
τα
δεξιά
παρέχει
μεγαλύτερη
ποσότητα
και
αυξημένη
πίεση
εργασίας
.
Η
περιστροφή
του
ρυθμιστή
ποσότητας
νερού
προς
τα
αρι
-
στερά
παρέχει
μικρότερη
ποσότητα
και
μειωμένη
πίεση
εργα
-
σίας
.
Ανοίξτε
την
προσαγωγή
νερού
.
Σύμβολο
"
Κινητήρας
ενεργός
"
Τραβήξτε
το
μοχλό
του
πιστολέτου
χειρός
και
ρυθμίστε
το
δι
-
ακόπτη
της
συσκευής
(
Α
)
στη
θέση
„1“ (
κινητήρας
ενεργός
).
Η
ενδεικτική
λυχνία
ετοιμότητας
λειτουργίας
(
ΣΤ
)
εμφανίζει
την
ετοιμότητα
λειτουργίας
.
Κίνδυνος
Κίνδυνος
εγκαυμάτων
!
Προσοχή
Η
λειτουργία
με
καυτό
νερό
χωρίς
καύσιμα
προκαλεί
βλάβη
στην
αντλία
καυσίμων
.
Πριν
τη
λειτουργία
με
καυτό
νερό
,
εξασφαλίστε
την
τροφοδοσία
με
καύσιμα
.
Ο
καυστήρας
μπορεί
να
ενεργοποιηθεί
,
εάν
είναι
απαραίτητο
.
Σύμβολο
"
Καυστήρας
ενεργός
"
Ρυθμίστε
το
διακόπτη
της
συσκευής
(
Α
)
στη
θέση
"
Καυστή
-
ρας
ενεργός
".
Ρυθμίστε
την
επιθυμητή
θερμοκρασία
νερού
στον
ελεγκτή
θερμοκρασίας
(
Β
).
Η
μέγιστη
θερμοκρασία
είναι
98 °C.
Κίνδυνος
Κίνδυνος
εγκαυμάτων
!
Σε
θερμοκρασίες
λειτουργίας
άνω
των
98 °C
η
πίεση
λειτουργίας
δεν
πρέπει
να
υπερβεί
τα
3,2 MPa (32 bar).
Για
την
μεταβολή
της
λειτουργίας
από
καυτό
νερό
σε
ατμό
,
η
συ
-
σκευή
πρέπει
να
κρυώσει
και
να
απενεργοποιηθεί
.
Η
αλλαγή
εξαρτημάτων
διεξάγεται
ως
εξής
:
Αντικαταστήστε
το
ακροφύσιο
υψηλής
πίεσης
με
το
ακροφύσιο
ατμού
(
πρόσθετο
εξάρτημα
)
Ρυθμίστε
τον
ελεγκτή
θερμοκρασίας
στους
150 °C.
Ρυθμίστε
τη
βαλβίδα
ρύθμισης
ποσότητας
στην
αντλία
υψη
-
λής
πίεσης
στην
ελάχιστη
ποσότητα
νερού
(
περιστρέψτε
προς
τα
αριστερά
).
Ρυθμίστε
τη
βαλβίδα
ρύθμισης
ποσότητας
στην
αντλία
υψη
-
λής
πίεσης
στη
μέγιστη
ποσότητα
νερού
(
περιστρέψτε
προς
τα
δεξιά
).
Ρυθμίστε
τον
ρυθμιστή
ποσότητας
νερού
του
πιστολέτου
Easypress
στην
ελάχιστη
ποσότητα
νερού
με
περιστροφή
προς
τα
αριστερά
.
–
Εάν
κατά
τη
διάρκεια
της
λειτουργίας
αφήσετε
το
μοχλό
του
πιστολέτου
,
η
συσκευή
θα
απενεργοποιηθεί
.
–
Κατά
το
νέο
άνοιγμα
του
πιστολέτου
εντός
του
ρυθμιζόμενου
χρόνου
ετοιμότητας
λειτουργίας
(2...8
λεπτά
),
η
συσκευή
επανενεργοποιείται
αυτόματα
.
–
Εάν
υπάρξει
υπέρβαση
του
χρόνου
ετοιμότητας
λειτουργίας
,
ο
χρονοδιακόπτης
ασφαλείας
απενεργοποιεί
την
αντλία
και
τον
καυστήρα
.
Η
ενδεικτική
λυχνία
ετοιμότητας
λειτουργίας
(
ΣΤ
)
σβήνει
.
–
Για
επανενεργοποίηση
της
συσκευής
,
ρυθμίστε
το
διακόπτη
της
συσκευής
στη
θέση
„0“
και
ενεργοποιήστε
τον
ξανά
.
Εάν
η
συσκευή
λειτουργεί
με
τηλεχειριστήριο
,
η
επανενεργοποίη
-
ση
μπορεί
να
εκτελεστεί
από
τον
αντίστοιχο
διακόπτη
του
τη
-
λεχειριστηρίου
.
Ρύθμιση
πίεσης
εργασίας
και
ποσότητας
μεταφοράς
Ρύθμιση
στη
συσκευή
Ρυθμίσεις
στο
πιστολέτο
Easypress (
προαιρετικό
)
Λειτουργία
με
κρύο
νερό
R
Λειτουργία
με
καυτό
νερό
Λειτουργία
με
ατμό
Κωδ
.
παραγγελίας
T
ύπος
4.766-023
HDS 9/14
4.766-024
HDS 12/14
Χωρίς
πιστολέτο
Easypress
Με
πιστολέτο
Easypress (
προαιρετικό
)
Ετοιμότητα
λειτουργίας
219
EL
-
6
–
Τα
ελαστικά
αυτοκινήτων
πρέπει
να
καθαρίζονται
μόνον
με
ακροφύσιο
επίπεδης
δέσμης
νερού
(25°)
τηρώντας
μία
από
-
σταση
τουλάχιστον
30 cm.
Με
τη
στρογγυλή
δέσμη
δεν
μπο
-
ρούν
σε
καμία
περίπτωση
να
καθαρίζονται
ελαστικά
.
Για
όλες
τις
άλλες
εργασίες
είναι
διαθέσιμα
τα
ακόλουθα
ακροφύ
-
σια
:
Για
σωλήνες
μεγαλύτερους
από
20 m
ή
ελαστικούς
σωλήνες
υψηλής
πίεσης
μεγαλύτερους
από
2 x 10 m NW 8,
να
χρησιμο
-
ποιούνται
τα
ακόλουθα
ακροφύσια
:
–
Τα
απορρυπαντικά
διευκολύνουν
την
εργασία
καθαρισμού
.
Αναρροφώνται
από
μια
εξωτερική
δεξαμενή
απορρυπαντι
-
κού
.
–
Η
βασική
έκδοση
της
συσκευής
είναι
εξοπλισμένη
με
δοσομε
-
τρική
βαλβίδα
(
Γ
).
Μια
δεύτερη
διάταξη
δοσολόγησης
(
δοσο
-
μετρική
βαλβίδα
Δ
)
είναι
διαθέσιμη
ως
πρόσθετο
εξάρτημα
.
Επίσης
,
υπάρχει
η
δυνατότητα
αναρρόφησης
δύο
διαφορετι
-
κών
απορρυπαντικών
.
–
Η
ποσότητα
δοσολογίας
ρυθμίζεται
στις
δοσομετρικές
βαλβί
-
δες
απορρυπαντικού
(
Γ
ή
Δ
)
του
πίνακα
ελέγχου
.
Η
επιλεγμέ
-
νη
τιμή
αντιστοιχεί
στο
ποσοστό
απορρυπαντικού
επί
τοις
εκατό
.
–
Η
εξωτερική
κλίμακα
ισχύει
για
χρήση
μη
αραιωμένου
απορ
-
ρυπαντικού
(100 % CHEM).
–
Η
εσωτερική
κλίμακα
ισχύει
για
χρήση
προαραιωμένου
απορ
-
ρυπαντικού
1+3 (25 % CHEM + 75 %
νερό
).
Ο
ακόλουθος
πίνακας
αναγράφει
την
κατανάλωση
απορρυπαντι
-
κού
για
τις
τιμές
της
εξωτερικής
κλίμακας
:
Η
ακριβής
δοσολογία
εξαρτάται
από
:
–
Το
ιξώδες
του
απορρυπαντικού
–
Το
ύψος
αναρρόφησης
–
Την
αντίστασης
ροής
του
αγωγού
υψηλής
πίεσης
Εάν
απαιτείται
ακριβής
δοσολογία
,
θα
πρέπει
να
μετράτε
την
αναρροφώμενη
ποσότητα
απορρυπαντικού
(
π
.
χ
.
με
αναρρόφη
-
ση
από
ογκομετρικό
δοχείο
).
Υπόδειξη
:
Συστάσεις
σχετικά
με
το
απορρυπαντικό
θα
βρείτε
στο
κεφάλαιο
"
Πρόσθετα
εξαρτήματα
".
Προσοχή
Κατά
τη
λειτουργία
χωρίς
αποσκληρυντικό
,
είναι
δυνατό
να
δημι
-
ουργηθούν
ιζήματα
στο
θερμαντήρα
διαρκούς
λειτουργίας
.
Σε
περίπτωση
κενού
δοχείου
αποσκληρυντικού
,
αναβοσβήνει
η
ενδεικτική
λυχνία
προστασίας
από
άλατα
(
Η
).
Εικόνα
1 -
Θέση
9
Συμπληρώστε
υγρό
RM 110 (2.780-001)
στο
δοχείο
απο
-
σκληρυντικού
.
Επιλογή
ακροφυσίων
Ρύποι
Ακροφύ
-
σιο
Γωνία
ψεκα
-
σμού
Κωδ
.
εξαρτη
-
μάτων
6.415
Πίεση
[MPa]
Ανάκρου
-
ση
[N]
HDS 9/14
δυνατό
00060
0°
-257
14
44
μεσαία
25060
25°
-295
ελαφρύ
40060
40°
-301
HDS 12/14
δυνατό
00080
0°
-150
14
55
μεσαία
25080
25°
-152
ελαφρύ
40080
40°
-153
Ρύποι
Ακροφύ
-
σιο
Γωνία
ψεκα
-
σμού
Κωδ
.
εξαρτη
-
μάτων
6.415
Πίεση
[MPa]
Ανάκρου
-
ση
[N]
HDS 9/14
δυνατό
0075
0°
-419
10
37
μεσαία
2575
25°
-421
ελαφρύ
4075
40°
-422
HDS 12/14
δυνατό
0010
0°
-082
10
46
μεσαία
2510
25°
-252
ελαφρύ
4010
40°
-253
Δοσολογία
απορρυπαντικού
HDS 9/14
Θέση
0,5
1
5
Ποσότητα
απορρυπαντικού
[l/h]
14...15 22...24
50
Συμπύκνωση
απορρυπαντικού
[%]
1,5
2,5
5
HDS 12/14
Θέση
0,5
1
5
Ποσότητα
απορρυπαντικού
[l/h]
10...13 23...27
60
Συμπύκνωση
απορρυπαντικού
[%]
1
2
5
Πλήρωση
με
αποσκληρυντικό
220
EL
-
7
Κίνδυνος
Κίνδυνος
εγκαυμάτων
λόγω
του
καυτού
νερού
!
Ύστερα
από
τη
λειτουργία
με
καυτό
νερό
ή
ατμό
,
η
συσκευή
πρέπει
να
λειτουργή
-
σει
για
τουλάχιστον
δύο
λεπτά
με
κρύο
νερό
και
ανοιχτό
πιστολέτο
για
να
κρυώσει
.
Σε
περίπτωση
λειτουργίας
με
καυτό
νερό
,
ρυθμίστε
τον
ελε
-
γκτή
θερμοκρασίας
(
Β
)
στη
ελάχιστη
θερμοκρασία
.
Χρησιμοποιήστε
τη
συσκευή
για
τουλάχιστον
30
δευτερόλε
-
πτα
χωρίς
απορρυπαντικό
.
Ρυθμίστε
το
διακόπτη
της
συσκευής
(
Α
)
στη
θέση
“0“.
Κλείστε
την
προσαγωγή
νερού
.
Ενεργοποιήστε
το
πιστολέτο
χειρός
,
έως
ότου
διαπιστώσετε
ότι
η
συσκευή
δεν
βρίσκεται
υπό
πίεση
.
Ασφαλίστε
τη
σκανδάλη
του
πιστολέτου
με
το
κούμπωμα
,
ώστε
να
μην
ανοίξει
κατά
λάθος
.
Σε
περίπτωση
μακροχρόνιων
παύσεων
ή
όταν
δεν
είναι
δυνατή
η
αποθήκευση
σε
χώρο
προστατευμένο
από
παγετούς
,
εκτελέ
-
στε
τα
ακόλουθα
μέτρα
(
βλ
.
κεφάλαιο
"
Φροντίδα
και
συντήρηση
"
παράγραφος
"
Αντιπαγετική
προστασία
").
Αδειάζετε
το
νερό
.
Ξεπλύνετε
τη
συσκευή
με
αντιπηκτικό
.
Απενεργοποιήστε
και
ασφαλίστε
το
γενικό
διακόπτη
ή
το
βύ
-
σμα
Cekon.
Προσοχή
Κίνδυνος
τραυματισμού
και
βλάβης
!
Κατά
την
αποθήκευση
λάβετε
υπόψη
το
βάρος
της
συσκευής
.
Προσοχή
Κίνδυνος
τραυματισμού
και
βλάβης
!
Κατά
τη
μεταφορά
λάβετε
υπόψη
το
βάρος
της
συσκευής
.
Κατά
τη
μεταφορά
με
οχήματα
,
ασφαλίστε
τη
συσκευή
έναντι
ενδεχόμενης
ολίσθησης
και
ανατροπής
,
σύμφωνα
με
τις
εκά
-
στοτε
ισχύουσες
κατευθυντήριες
οδηγίες
.
Απενεργοποίηση
Μετά
τη
λειτουργία
με
απορρυπαντικό
Απενεργοποίηση
της
συσκευής
Διακοπή
της
λειτουργίας
Αποθήκευση
Μεταφορά
221
EL
-
8
Τεχνικά
χαρακτηριστικά
HDS 9/14
HDS 12/14
HDS 12/14
1.698-900
1.699-919
1.699-920
Επιδόσεις
Πίεση
εργασίας
νερού
(
με
στάνταρ
ακροφύσιο
)
MPa (bar)
14 (140)
14 (140)
14 (140)
Μέγ
.
πίεση
εργασίας
σε
λειτουργία
με
ατμό
(
με
ακροφύσιο
ατμού
)
MPa (bar)
3,2 (32)
3,2 (32)
3,2 (32)
Κωδ
.
ανταλλ
.
ακροφύσιο
ατμού
--
4.766-023
4.766-024
4.766-024
Μέγ
.
υπερπίεση
λειτουργίας
(
βαλβίδα
ασφαλείας
)
MPa (bar)
18,5 (185)
18,5 (185)
18,5 (185)
Ποσότητα
προώθησης
νερού
(
αδιαβάθμητη
ρύθμιση
)
l/h (l/min)
500-930
(8,3-15,5)
600-1200
(10-20)
600-1200
(10-20)
Παροχή
σε
λειτουργία
με
ατμό
l/h (l/min)
470 (7,8)
600 (10)
600 (10)
Αναρρόφηση
απορρυπαντικού
(
αδιαβάθμητη
ρύθμιση
)
l/h (l/min)
0-50 (0-0,8)
0-60 (0-1)
0-60 (0-1)
Σύνδεση
νερού
Ποσότητα
προσαγωγής
(
ελάχ
.)
l/h (l/min)
1100 (18,3)
1300 (21,7)
1300 (21,7)
Πίεση
προσαγωγής
(
ελάχ
.)
MPa (bar)
0,1 (1)
0,1 (1)
0,1 (1)
Πίεση
προσαγωγής
(
μέγ
.)
MPa (bar)
0,6 (6)
0,6 (6)
0,6 (6)
Ηλεκτρική
σύνδεση
Ρεύμα
--
3N~
3N~
3N~
Συχνότητα
Hz
50
50
50
Τάση
V
400
400
230
Ισχύς
σύνδεσης
kW
6,4
7,5
8,2
Ηλεκτρική
ασφάλεια
(
αδρανής
)
A
16
20
32
Είδος
προστασίας
--
IPX5
IPX5
IPX5
Κατηγορία
προστασίας
--
I
I
I
Μέγιστη
επιτρεπόμενη
αντίσταση
δικτύου
Ohm
(0,381+j 0,238)
--
--
Καλώδιο
ρεύματος
mm
2
5 x 2,5
5 x 2,5
5 x 4
Θερμοκρασία
Θερμοκρασία
προσαγωγής
(
μέγ
.)
°C
30
30
30
Μέγ
.
θερμοκρασία
εργασίας
καυτού
νερού
°C
98
98
98
Μέγ
.
θερμοκρασία
εργασίας
με
ατμό
°C
155
155
155
Αύξηση
θερμοκρασίας
σε
μέγιστη
παροχή
νερού
°C
56±2
54±2
54±2
Θερμαντική
ισχύς
μεικτή
kW
68
85
85
Κατανάλωση
καυσίμων
kg/h
5,8
7,1
7,1
Άντληση
καμινάδας
kPa
0,01-0,04
0,01-0,04
0,01-0,04
Ρεύμα
καυσαερίων
-
πλήρες
φορτίο
kg/h
124
155
155
Διαστάσεις
και
βάρη
Μήκος
mm
1124
1124
1124
Πλάτος
mm
558
558
558
Ύψος
mm
687
699
699
Τυπικό
βάρος
λειτουργίας
kg
164,4
178,8
178,8
Μετρούμενες
τιμές
κατά
EN 60355-2-79
Εκπεμπόμενος
θόρυβος
Επιτρεπόμενη
στάθμη
ηχητικής
ισχύος
L
pA
dB(A)
74
76
76
Αβεβαιότητα
K
pA
dB(A)
1
1
1
Κραδασμοί
στο
χέρι
/
στο
βραχίονα
Πιστολέτο
χειρός
m/s
2
2,2
2,3
2,3
σωλήνας
εκτόξευσης
m/s
2
1,8
2,1
2,1
Αβεβαιότητα
K
m/s
2
1,0
1,0
1,0
222
EL
-
9
Φύλλο
διαστάσεων
6
8
7
/ 6
9
9
505
558
1124
246
158
1060
47
141
61
77
46
200
300
1018±2
223
EL
-
10
Κίνδυνος
Κίνδυνος
τραυματισμού
!
Πριν
από
όλες
τις
εργασίες
συντήρησης
και
επισκευής
σβήστε
το
γενικό
διακόπτη
ή
αποσυνδέστε
το
βύ
-
σμα
Cekon.
Φροντίδα
και
συντήρηση
Πρόγραμμα
συντήρησης
Χρονική
στιγμή
Ενέργεια
σχετικό
συγκρότημα
Εκτέλεση
Ποιος
ημερησίως
Έλεγχος
του
πι
-
στολέτου
χειρός
Πιστολέτο
χειρός
Ελέγξτε
εάν
το
πιστολέτο
χειρός
κλείνει
αεροστε
-
γώς
.
Ελέγξτε
τη
λειτουργία
της
ασφάλειας
έναντι
ακούσιας
ενεργοποίησης
.
Αντικαταστήστε
το
ελαττωματικό
πιστολέτο
χειρός
.
Χειριστής
Έλεγχος
του
σω
-
λήνα
υψηλής
πί
-
εσης
Αγωγοί
εξόδου
,
ελαστικοί
σω
-
λήνες
προς
τη
συσκευή
εργασί
-
ας
Εξετάστε
τους
ελαστικούς
σωλήνες
για
βλάβες
.
Αντικαταστήστε
αμέσως
τους
ελαττωματικούς
ελαστικούς
σωλήνες
.
Κίνδυνος
ατυχήματος
!
Χειριστής
Έλεγχος
του
αγωγού
σύνδε
-
σης
με
βύσμα
τροφοδοσίας
Ηλεκτρική
σύνδεση
με
βύσμα
/
πρίζα
Ελέγξτε
τον
αγωγό
σύνδεσης
με
βύσμα
τροφο
-
δοσίας
για
βλάβες
.
Αναθέστε
αμέσως
στην
εξου
-
σιοδοτημένη
υπηρεσία
εξυπηρέτησης
πελατών
/
σε
εξειδικευμένο
ηλεκτρολόγο
την
αντικατάστα
-
ση
του
χαλασμένου
αγωγού
σύνδεσης
.
Χειριστής
εβδομαδιαίως
ή
έπειτα
από
40
ώρες
λειτουργίας
Έλεγχος
στάθ
-
μης
λαδιού
Δοχείο
λαδιού
στην
αντλία
Εάν
το
λάδι
έχει
γαλακτώδη
υφή
,
πρέπει
να
αντι
-
κατασταθεί
.
Χειριστής
Έλεγχος
στάθ
-
μης
λαδιού
Δοχείο
λαδιού
στην
αντλία
Ελέγξτε
τη
στάθμη
λαδιού
της
αντλίας
.
Εάν
απαι
-
τείται
,
συμπληρώστε
λάδι
(
κωδ
.
παραγγελίας
6.288-016).
Χειριστής
Καθαρισμός
της
σήτας
Φίλτρο
στην
είσοδο
νερού
Βλέπε
παράγραφος
"
Καθαρισμός
της
σήτας
".
Χειριστής
μηνιαίως
ή
μετά
από
200
ώρες
λει
-
τουργίας
Καθαρισμός
και
έλεγχος
των
ηλε
-
κτροδίων
ανά
-
φλεξης
Ηλεκτρόδια
ανάφλεξης
στο
κα
-
πάκι
του
θερμαντήρα
διαρκούς
λειτουργίας
Ξεβιδώστε
τον
αγωγό
καυσίμου
,
αφαιρέστε
την
υποδοχή
ηλεκτροδίων
και
καθαρίστε
τα
ηλεκτρό
-
δια
.
Ελέγξτε
τη
ρύθμιση
των
ηλεκτροδίων
σύμ
-
φωνα
με
το
σχεδιάγραμμα
της
επόμενης
σελίδας
και
ρυθμίστε
το
κατά
περίπτωση
.
Εκπαιδευμέ
-
νος
χειριστής
Έλεγχος
της
αντλίας
Αντλία
υψηλής
πίεσης
Εξετάστε
την
αντλία
για
διαρροές
.
Καλέστε
την
υπηρεσία
εξυπηρέτησης
πελατών
,
εάν
η
διαρ
-
ροή
υπερβαίνει
τις
3
σταγόνες
ανά
λεπτό
.
Χειριστής
έλεγχος
εσωτε
-
ρικών
ιζημάτων
συνολική
εγκατάσταση
Ενεργοποιήστε
την
εγκατάσταση
με
σωλήνα
ψε
-
κασμού
χωρίς
το
ακροφύσιο
υψηλής
πίεσης
.
Εάν
η
πίεση
λειτουργίας
αυξηθεί
στο
μανόμετρο
της
συσκευής
πάνω
από
τα
3 MPa,
πρέπει
να
εκτελεστεί
αφαλάτωση
στην
εγκατάσταση
.
Το
ίδιο
ισχύει
και
εάν
διαπιστωθεί
πίεση
λειτουργίας
άνω
των
0,7–1 MPa
κατά
τη
λειτουργία
χωρίς
αγωγό
υψηλής
πίεσης
(
το
νερό
ρέει
ελεύθερα
από
την
έξοδο
υψηλής
πίεσης
).
Χειριστής
με
οδηγίες
για
την
αφαλά
-
τωση
Καθαρισμός
της
σήτας
Σήτα
της
ασφάλειας
έλλειψης
νερού
Βλέπε
παράγραφος
"
Καθαρισμός
της
σήτας
".
Χειριστής
ανά
εξάμηνο
ή
έπειτα
από
1000
ώρες
λειτουργίας
Αλλαγή
λαδιού
Αντλία
υψηλής
πίεσης
Αφαιρέστε
το
λάδι
.
Γεμίστε
με
1 l
καινούριο
λάδι
(
κωδ
.
παραγγελίας
6.288-016).
Ελέγξτε
τη
στάθ
-
μη
πλήρωσης
στο
δοχείο
λαδιού
.
Χειριστής
ελέγξτε
,
καθαρί
-
στε
συνολική
εγκατάσταση
Οπτικός
έλεγχος
της
εγκατάστασης
,
ελέγξτε
τις
συνδέσεις
υψηλής
πίεσης
για
διαρροές
,
ελέγξτε
τη
βαλβίδα
υπερχείλισης
για
διαρροές
,
ελέγξτε
τον
ελαστικό
σωλήνα
υψηλής
πίεσης
,
ελέγξτε
το
συλλέκτη
πίεσης
,
καθαρίστε
/
αντικαταστήστε
το
φίλτρο
καυσίμων
,
αποσκωριώστε
/
αφαλατώστε
την
θερμαντική
αντίσταση
,
καθαρίστε
/
αντικατα
-
στήστε
το
ηλεκτρόδιο
ανάφλεξης
,
καθαρίστε
/
αντικαταστήστε
το
ακροφύσιο
του
καυστήρα
,
ρυθμίστε
τον
καυστήρα
.
Υπηρεσία
εξυπηρέτη
-
σης
πελατών
ετησίως
Έλεγχος
ασφα
-
λείας
συνολική
εγκατάσταση
Εκτελέστε
έλεγχο
ασφαλείας
σύμφωνα
με
τους
εκάστοτε
εθνικούς
κανονισμούς
του
νομοθέτη
για
ψεκαστήρες
υγρών
.
Εμπειρογνώ
-
μων
επαναλαμβανόμε
-
να
τουλάχιστον
ανά
5
έτη
Έλεγχος
πίεσης συνολική
εγκατάσταση
Εκτελέστε
δοκιμή
πίεσης
σύμφωνα
με
τις
οδηγί
-
ες
του
κατασκευαστή
.
Εμπειρογνώ
-
μων
224
EL
-
11
Μπορείτε
να
συνάψετε
ένα
συμβόλαιο
συντήρησης
για
τη
συ
-
σκευή
με
το
αρμόδιο
γραφείο
πωλήσεων
της
εταιρείας
Kärcher.
Εικόνα
1 -
Θέση
3
Κλείστε
την
προσαγωγή
νερού
.
Ξεβιδώστε
τον
ελαστικό
σωλήνα
προσαγωγής
νερού
από
το
μηχάνημα
.
Τραβήξτε
προς
τα
έξω
τη
σήτα
από
τη
σύνδεση
με
ένα
κατσα
-
βίδι
.
Καθαρισμός
της
σήτας
Συναρμολογήστε
με
την
αντίστροφη
σειρά
.
Αφαιρέστε
τα
ελάσματα
επένδυσης
.
Ξεβιδώστε
τη
γωνία
από
το
μπλοκ
ασφαλείας
.
Σφίξτε
τον
κοχλία
M8x30
στη
σήτα
.
Αφαιρέστε
τον
κοχλία
και
τη
σήτα
με
μια
πένσα
.
Καθαρισμός
της
σήτας
Συναρμολογήστε
με
την
αντίστροφη
σειρά
.
Τα
ηλεκτρόδια
ανάφλεξης
πρέπει
να
ρυθμιστούν
σύμφωνα
με
τα
ακόλουθα
στοιχεία
:
Σε
περίπτωση
ύπαρξης
ιζημάτων
μέσα
στους
σωλήνες
,
η
αντί
-
σταση
ροής
αυξάνεται
και
είναι
δυνατό
να
ενεργοποιηθεί
ο
διακό
-
πτης
πίεσης
.
Κίνδυνος
Κίνδυνος
έκρηξης
λόγω
εύφλεκτων
αερίων
!
Το
κάπνισμα
απαγο
-
ρεύεται
κατά
την
αφαλάτωση
.
Φροντίστε
για
τον
καλό
εξαερισμό
.
Κίνδυνος
Κίνδυνος
εγκαυμάτων
από
οξέα
!
Φοράτε
προστατευτικά
γυαλιά
και
γάντια
.
Για
την
αφαίρεση
να
χρησιμοποιούνται
μόνον
ελεγμένα
διαλυτικά
λεβητόλιθου
με
σήμανση
ελέγχου
σύμφωνα
με
τη
μονοθεσία
.
–
Το
RM 100 (
κωδ
.
παραγγελίας
6.287-008)
διαλύει
τον
ασβε
-
στόλιθο
και
τις
απλές
ασβεστολιθικές
ενώσεις
ή
τα
υπολείμ
-
ματα
του
απορρυπαντικού
.
–
Το
RM 101 (
κωδ
.
παραγγελίας
6.287-013)
διαλύει
τα
ιζήματα
που
δεν
διαλύονται
με
το
RM 100.
Γεμίστε
ένα
δοχείο
20
λίτρων
με
15 l
νερό
.
Προσθέστε
ένα
λίτρο
διαλυτικού
λεβητολίθου
.
Συνδέστε
τον
ελαστικό
σωλήνα
νερού
απευθείας
στην
κεφα
-
λή
της
αντλία
και
αφήστε
το
ελεύθερο
άκρο
να
κρέμεται
μέσα
στο
δοχείο
.
Εισάγετε
στο
δοχείο
το
συνδεδεμένο
σωλήνα
ρίψης
χωρίς
το
ακροφύσιο
.
Ανοίξτε
το
πιστολέτο
χειρός
και
μην
το
ξανακλείνετε
κατά
τη
διαδικασία
αφαλάτωσης
.
Ρυθμίστε
το
διακόπτη
της
συσκευής
στη
θέση
„
Καυστήρας
ενεργός
“
έως
ότου
επιτευχθεί
θερμοκρασία
40 °C.
Απενεργοποιήστε
το
μηχάνημα
και
αφήστε
το
20
λεπτά
.
Το
πιστολέτο
χειρός
πρέπει
να
παραμείνει
ανοικτό
.
Τέλος
,
αδειάστε
το
μηχάνημα
με
την
αντλία
.
Υπόδειξη
:
Στη
συνέχεια
,
για
προστασία
από
τη
διάβρωση
και
εξουδετέρωση
των
όξινων
υπολειμμάτων
,
συνιστούμε
την
τρο
-
φοδοσία
της
συσκευής
με
ένα
αλκαλικό
διάλυμα
(
π
.
χ
. RM 81)
μέσω
της
αντλίας
και
του
δοχείου
απορρυπαντικού
.
Η
συσκευή
πρέπει
να
τοποθετείται
μόνον
σε
χώρους
που
διαθέ
-
τουν
αντιπαγετική
προστασία
.
Σε
περίπτωση
κινδύνου
παγετού
,
π
.
χ
.
σε
εγκαταστάσεις
εξωτερικών
χώρων
,
η
συσκευή
πρέπει
να
αδειάσει
και
να
ξεπλυθεί
με
αντιψυκτικό
υγρό
.
Ξεβιδώστε
τον
εύκαμπτο
σωλήνα
τροφοδοσίας
νερού
και
τον
εύκαμπτο
σωλήνα
υψηλής
πίεσης
.
Αφήστε
τη
συσκευή
να
λειτουργήσει
το
πολύ
για
1
λεπτό
μέ
-
χρι
να
αδειάσουν
η
αντλία
και
οι
σωληνώσεις
.
Ξεβιδώστε
τον
αγωγό
τροφοδοσίας
στον
πυθμένα
του
λέβητα
και
περιμένετε
να
αδειάσει
η
θερμαντική
αντίσταση
.
Υπόδειξη
:
Λάβετε
υπόψη
τους
κανόνες
χειρισμού
του
κατασκευ
-
αστή
του
αντιψυκτικού
.
Γεμίστε
ως
επάνω
το
δοχείο
με
πλωτήρα
με
ένα
αντιψυκτικό
ευρείας
κυκλοφορίας
.
Τοποθετήστε
το
αναρτώμενο
δοχείο
πάνω
από
την
έξοδο
υψηλής
πίεσης
.
Ενεργοποιήστε
τη
συσκευή
και
αφήστε
την
να
λειτουργήσει
,
έως
ότου
τεθεί
σε
λειτουργία
η
ασφάλεια
έλλειψης
νερού
του
δοχείου
με
πλωτήρα
και
η
συσκευή
απενεργοποιηθεί
.
Έτσι
επιτυγχάνεται
επίσης
και
κάποια
αντιδιαβρωτική
προστα
-
σία
.
Σύμβαση
συντήρησης
Καθαρισμός
των
σητών
Σήτα
στην
είσοδο
νερού
Σήτα
της
ασφάλειας
έλλειψης
νερού
Ρύθμιση
ηλεκτροδίων
A
B
C
a
HDS 9/14
4,5±0,5
3,5±0,5
3+0,5
60°
HDS 12/14
3,5±0,5
3,5±0,5
3+0,5
60°
2.
1.
A
B
C
a
Αφαλάτωση
Εκτέλεση
Αντιπαγετική
προστασία
Αδειάστε
το
νερό
Ξεπλύνετε
τη
συσκευή
με
αντιπηκτικό
μέσο
225
EL
-
12
Κίνδυνος
Κίνδυνος
τραυματισμού
!
Πριν
από
όλες
τις
εργασίες
συντήρησης
και
επισκευής
σβήστε
το
γενικό
διακόπτη
ή
αποσυνδέστε
το
βύ
-
σμα
Cekon.
*
Υπόδειξη
Απενεργοποιήστε
και
ενεργοποιήστε
την
εγκατάσταση
,
για
να
απασφαλίσετε
τη
βλάβη
στον
καυστήρα
.
**
Αντιμετώπιση
βλαβών
Βλάβη
Πιθανό
αίτιο
Αντιμετώπιση
Ποιος
Η
συσκευή
δεν
λειτουργεί
,
η
ενδεικτική
λυχνία
ετοιμότητας
λειτουργίας
(
ΣΤ
)
δεν
ανάβει
Στη
συσκευή
δεν
υπάρχει
τάση
τροφοδοσίας
.
Ελέγξτε
το
ηλεκτρικό
δίκτυο
.
Ηλεκτρολόγος
Χρονοδιακόπτης
ασφαλείας
σε
λει
-
τουργία
.
Απενεργοποιήστε
και
ενεργοποιήστε
αμέ
-
σως
τη
συσκευή
από
το
διακόπτη
της
συ
-
σκευής
.
Χειριστής
Καμένη
ασφάλεια
στο
κύκλωμα
ελέγχου
(F3).
Η
ασφάλεια
περιέχε
-
ται
στο
μετασχηματιστή
ελέγχου
(
Τ
2).
Τοποθετήστε
μια
νέα
ασφάλεια
,
αντιμετωπί
-
στε
το
αίτιο
της
υπερφόρτωσης
,
εάν
το
συμ
-
βάν
επαναληφθεί
.
Υπηρεσία
εξυπηρέ
-
τησης
πελατών
Διακόπτης
πίεσης
ΥΠ
(
υψηλής
πίε
-
σης
)
ή
ΧΠ
(
χαμηλής
πίεσης
)
ελατ
-
τωματικός
.
Ελέγξτε
το
διακόπτη
πίεσης
.
Υπηρεσία
εξυπηρέ
-
τησης
πελατών
Μονάδα
χρονοδιακόπτη
(
Α
1)
ελατ
-
τωματική
.
Ελέγξτε
τις
συνδέσεις
και
αντικαταστήστε
τις
,
εάν
είναι
απαραίτητο
.
Υπηρεσία
εξυπηρέ
-
τησης
πελατών
Ενεργοποιήθηκε
ο
θερμοστάτης
απαερίων
(B8).
Αφήστε
τη
μονάδα
να
κρυώσει
.
Απασφαλίστε
το
θερμοστάτη
απαερίων
(B8).
Αντιμετωπί
-
στε
το
αίτιο
της
δυσλειτουργίας
.
Υπηρεσία
εξυπηρέ
-
τησης
πελατών
Ανάβει
η
ενδεικτική
λυχνία
+
υπερθέρμανσης
κινητήρα
(
Ζ
)
Ο
θερμοστάτης
(WS)
του
κινητήρα
ή
ο
διακόπτης
προστασίας
από
υπερένταση
(F1)
έχουν
ενεργοποι
-
ηθεί
.
Αντιμετωπίστε
τα
αίτια
της
υπερφόρτωσης
.
Υπηρεσία
εξυπηρέ
-
τησης
πελατών
Ενεργοποιήθηκε
η
ασφάλεια
έλλει
-
ψης
νερού
στο
δοχείο
με
πλωτήρα
.
Αντιμετωπίστε
την
έλλειψη
νερού
.
Χειριστής
Ο
καυστήρας
δεν
ενεργοποι
-
είται
ή
η
φλόγα
σβήνει
στη
δι
-
άρκεια
της
λειτουργίας
.
Ο
ελεγκτής
θερμοκρασίας
(
Β
)
έχει
ρυθμιστεί
πολύ
χαμηλά
Ρυθμίστε
τον
ελεγκτή
θερμοκρασίας
σε
υψη
-
λότερη
τιμή
.
Χειριστής
Ο
διακόπτης
της
συσκευής
δεν
βρί
-
σκεται
στη
θέση
καυστήρα
.
Ενεργοποιήστε
τον
καυστήρα
.
Χειριστής
Η
ασφάλεια
έλλειψης
νερού
του
μπλοκ
ασφαλείας
απενεργοποιή
-
θηκε
.
Εξασφαλίστε
την
επαρκή
τροφοδοσία
νερού
.
Ελέγξτε
τη
στεγανότητα
της
συσκευής
.
Χειριστής
Η
ενδεικτική
λυχνία
βλάβης
στον
καυστήρα
(
Ε
)
ανάβει
*
Το
δοχείο
καυσίμων
είναι
άδειο
.
Γεμίστε
με
καύσιμο
Χειριστής
Το
φίλτρο
καυσίμων
είναι
βουλω
-
μένο
.
Καθαρίστε
το
φίλτρο
καυσίμων
.
Για
το
σκοπό
αυτό
περιστρέψτε
και
αφαιρέστε
το
φίλτρο
,
καθαρίστε
το
και
τοποθετήστε
το
στη
θέση
του
.
Χειριστής
Το
φωτοκύτταρο
παρακολούθη
-
σης
φλόγας
είναι
εσφαλμένα
τοπο
-
θετημένο
ή
ελαττωματικό
.
Ελέγξτε
τη
σωστή
θέση
του
φωτοκύτταρου
.
**
Χειριστής
Δεν
υπάρχει
σπίθα
(
διαπιστώνεται
μέσα
από
τον
υαλοδείκτη
του
κα
-
πακιού
του
καυστήρα
).
Ελέγξτε
την
απόσταση
των
ηλεκτροδίων
του
μετασχηματιστή
ανάφλεξης
και
το
καλώδιο
ανάφλεξης
.
Διορθώστε
την
απόσταση
ή
αντι
-
καταστήστε
τα
ελαττωματικά
εξαρτήματα
.
Καθαρίστε
τα
,
εάν
είναι
απαραίτητο
.
Υπηρεσία
εξυπηρέ
-
τησης
πελατών
Ο
κινητήρας
του
καυστήρα
είναι
μπλοκαρισμένος
.
Αντιμετωπίστε
την
εμπλοκή
.
Απομακρύνετε
την
τάπα
(
Ι
)
από
τον
πίνακα
ελέγχου
και
απα
-
σφαλίστε
το
διακόπτη
προστασίας
από
υπε
-
ρένταση
.
Τοποθετήστε
την
τάπα
στη
θέση
της
.
Υπηρεσία
εξυπηρέ
-
τησης
πελατών
Βλάβη
στην
αντλία
καυσίμων
ή
στην
σωληνοειδή
βαλβίδα
καυσί
-
μων
.
Ελέγξτε
τα
εξαρτήματα
και
αντικαταστήστε
τα
ελαττωματικά
εξαρτήματα
.
Χειριστής
226
EL
-
13
Βλάβη
Πιθανό
αίτιο
Αντιμετώπιση
Ποιος
Ανάβει
η
ενδεικτική
λυχνία
προστασίας
από
άλατα
(
Η
)
Το
αποσκληρυντικό
καταναλώθηκε
.
Συμπληρώστε
αποσκληρυντικό
.
Χειριστής
Ανεπαρκής
ή
καθόλου
παρο
-
χή
απορρυπαντικού
Δοσομετρική
βαλβίδα
στη
θέση
"0".
Ρυθμίστε
τη
δοσομετρική
βαλβίδα
απορρυ
-
παντικού
.
Χειριστής
Βουλωμένο
φίλτρο
απορρυπαντι
-
κού
ή
κενή
δεξαμενή
.
Καθαρίστε
και
/
ή
γεμίστε
.
Χειριστής
Διαρροή
ή
εμπλοκή
στους
ελαστι
-
κούς
σωλήνες
αναρρόφησης
απορρυπαντικού
,
δοσομετρικής
βαλβίδας
ή
ηλεκτρομαγνητικής
βαλβίδας
.
Ελέγξτε
,
καθαρίστε
.
Χειριστής
Βλάβη
στο
ηλεκτρονικό
σύστημα
ή
στην
ηλεκτρομαγνητική
βαλβίδα
.
Αντικατάσταση
Υπηρεσία
εξυπηρέ
-
τησης
πελατών
Η
συσκευή
δεν
αναπτύσσει
πλήρη
πίεση
Το
ακροφύσιο
έχει
φύγει
από
τη
θέση
του
.
Αντικαταστήστε
το
ακροφύσιο
.
Χειριστής
Το
δοχείο
απορρυπαντικού
είναι
άδειο
.
Συμπληρώστε
απορρυπαντικό
.
Χειριστής
Το
νερό
δεν
επαρκεί
.
Φροντίστε
για
την
επαρκή
τροφοδοσία
νε
-
ρού
.
Χειριστής
Βουλωμένη
σήτα
στην
είσοδο
νε
-
ρού
.
Ελέγξτε
,
αποσυναρμολογήστε
και
καθαρίστε
τη
σήτα
.
Χειριστής
Μη
στεγανή
δοσομετρική
βαλβίδα
απορρυπαντικού
.
Ελέγξτε
και
στεγανοποιήστε
.
Χειριστής
Μη
στεγανοί
ελαστικοί
σωλήνες
απορρυπαντικού
.
Αντικατάσταση
Χειριστής
Εμπλοκή
στη
βαλβίδα
πλωτήρα
.
Ελέγξτε
την
απρόσκοπτη
κίνηση
.
Χειριστής
Διαρροή
στη
βαλβίδα
ασφαλείας
.
Ελέγξτε
τη
ρύθμιση
και
τοποθετήστε
νέα
μό
-
νωση
,
εάν
είναι
απαραίτητο
.
Υπηρεσία
εξυπηρέ
-
τησης
πελατών
Μη
στεγανή
βαλβίδα
ρύθμισης
πο
-
σότητας
ή
πολύ
χαμηλή
ρύθμιση
.
Ελέγξτε
τα
εξαρτήματα
της
βαλβίδας
,
αντικα
-
ταστήστε
τα
σε
περίπτωση
βλάβης
ή
καθαρί
-
στε
τα
σε
περίπτωση
ρύπανσης
.
Υπηρεσία
εξυπηρέ
-
τησης
πελατών
Βλάβη
στην
ηλεκτρομαγνητική
βαλβίδα
εκτόνωσης
πίεσης
.
Αντικαταστήστε
την
ηλεκτρομαγνητική
βαλβί
-
δα
.
Υπηρεσία
εξυπηρέ
-
τησης
πελατών
Η
αντλία
υψηλής
πίεσης
χτυ
-
πάει
,
το
μανόμετρο
δονείται
έντονα
Ελαττωματικός
αποσβεστήρας
κραδασμών
.
Αντικαταστήστε
τον
αποσβεστήρα
κραδα
-
σμών
.
Υπηρεσία
εξυπηρέ
-
τησης
πελατών
Η
αντλία
νερού
αναρροφά
ελάχι
-
στο
αέρα
.
Ελέγξτε
το
σύστημα
αναρρόφησης
και
αντι
-
μετωπίστε
τις
διαρροές
.
Χειριστής
Η
συσκευή
ενεργοποιείται
και
απενεργοποιείται
συνε
-
χώς
με
ανοιχτό
το
πιστολέτο
χειρός
Εμπλοκή
του
ακροφυσίου
του
σω
-
λήνα
ψεκασμού
.
Ελέγξτε
,
καθαρίστε
.
Χειριστής
Η
συσκευή
έχει
άλατα
.
Βλέπε
παράγραφος
"
Αφαλάτωση
".
Χειριστής
Το
σημείο
ενεργοποίησης
του
υπερχειλιστή
έχει
μετακινηθεί
.
Ρυθμίστε
ξανά
τον
υπερχειλιστή
.
Υπηρεσία
εξυπηρέ
-
τησης
πελατών
Βουλωμένο
φίλτρο
της
ασφάλειας
έλλειψης
νερού
.
Ελέγξτε
,
αποσυναρμολογήστε
και
καθαρίστε
τη
σήτα
.
Χειριστής
Η
συσκευή
δεν
απενεργοποι
-
είται
όταν
το
πιστολέτο
χει
-
ρός
είναι
κλειστό
.
Η
αντλία
δεν
είναι
πλήρως
εξαερω
-
μένη
.
Ρυθμίστε
το
διακόπτη
της
συσκευής
στη
θέση
"0"
και
τραβήξτε
το
πιστολέτο
χειρός
,
έως
ότου
να
σταματήσει
η
διαρροή
υγρού
από
το
ακροφύσιο
.
Ενεργοποιήστε
ξανά
τη
συσκευή
.
Επαναλάβετε
αυτή
τη
διαδικασία
,
έως
ότου
επιτευχθεί
πλήρως
η
πίεση
λει
-
τουργίας
.
Χειριστής
Βλάβη
στη
βαλβίδα
ασφαλείας
και
/
ή
στη
μόνωση
της
βαλβίδας
ασφα
-
λείας
.
Αντικαταστήστε
τη
βαλβίδα
ασφαλείας
και
/
ή
τη
μόνωση
.
Υπηρεσία
εξυπηρέ
-
τησης
πελατών
227
EL
-
14
Τα
απορρυπαντικά
διευκολύνουν
τις
εργασίες
καθαρισμού
.
Στον
πίνακα
περιλαμβάνεται
μια
επιλογή
απορρυπαντικών
.
Πριν
την
χρήση
των
απορρυπαντικών
,
να
λαμβάνονται
οπωσδήποτε
υπό
-
ψη
οι
υποδείξεις
τις
συσκευασίας
.
* =
μόνον
για
σύντομη
χρήση
,
μέθοδος
δύο
βημάτων
,
απομά
-
κρυνση
με
καθαρό
νερό
** = ASF =
με
ιδιότητες
διαχωρισμού
*** =
για
την
πρόπλυση
ενδείκνυται
το
Foam-Star 2000
Εξαρτήματα
Απορρυπαντικό
Πεδίο
εφαρμογής
Ρύποι
,
τύπος
εφαρμογής
Απορρυπαντικό
Τιμή
pH (
περ
.)
διάλυ
-
μα
1 %
σε
νερό
βρύ
-
σης
Επιχειρήσεις
οχημάτων
,
βενζινάδικα
,
μεταφορι
-
κές
εταιρείες
,
πάρκα
κυ
-
κλοφορίας
Σκόνη
,
οδικοί
ρύποι
,
μεταλλικά
έλαια
(
σε
λακαρισμένες
επιφάνειες
)
RM 55 ASF **
8
Σκόνη
RM 22/80 ASF
12/10
RM 81 ASF
9
RM 803 ASF
10
RM 806 ASF
11
Συντήρηση
οχήματος
RM 42
Ψυχρό
κερί
για
συσκευή
καθαρισμού
υψηλής
πίεσης
8
RM 820
Καυτό
κερί
ASF
7
RM 821
Ψεκαζόμενο
κερί
ASF
6
RM 824-
Περλέ
κερί
Super ASF
7
RM 44
Καθαριστικό
φτερών
σε
τζελ
9
Βιομηχανία
κατεργασίας
μετάλλου
Έλαια
,
λίπη
,
σκόνη
και
παρόμοιοι
ρύποι
RM 22
Σκόνη
ASF
12
RM 55 ASF
8
RM 81 ASF
9
RM 803 ASF
10
RM 806 ASF
12
RM 31 ASF (
επίμονοι
ρύποι
)
12
RM 39
υγρό
(
με
προστασία
από
τη
διάβρωση
)
9
Επιχειρήσεις
κατεργασί
-
ας
τροφίμων
Ελαφρά
έως
μέτρια
ρύπανση
,
λίπη
/
έλαια
,
μεγάλες
επιφάνειες
RM 55 ASF
8
RM 81 ASF
9
RM 882
Αφρός
τζελ
OSC
12
RM 58 ASF (
αφρώδες
καθαριστικό
)
9
RM 31 ASF *
12
Ρητίνη
καπνού
RM 33 *
13
Καθαρισμός
και
απολύμανση
RM 732
9
Απολύμανση
RM 735
7...8
Άλατα
,
μεταλλικά
ιζήματα
RM 25 ASF *
2
RM 59 ASF (
αφρώδες
καθαριστικό
)
2
Χώροι
υγιεινής
***
Άλατα
,
ούρα
,
σαπούνια
κτλ
.
RM 25 ASF * (
Βασικός
καθαρισμός
)
2
RM 59 ASF (
αφρώδες
καθαριστικό
)
2
RM 68 ASF
5
228
EL




