Hach-Lange CLF10 sc – страница 7
Инструкция к Hach-Lange CLF10 sc

Obr. 4 Panel analyzátoru chlóru bez reagencií
1 Panel systému 3 Hadička, 12 mm (½ in.)
2 Kabel s konektorem pro připojení přenosové brány
4 Snímač chlóru
ke kontroléru 1 m (3.3 ft)
Instalace
Předpoklady instalace
• Nejprve proveďte úlohy mechanické instalace, potom úlohy elektrické instalace a nakonec
nainstalujte potrubní vedení.
• Všechny armatury se utahují pouze rukou.
• Panel je určen pro montáž na zeď nebo rám. Nainstalujte nebo umístěte panel na snadno
přístupném místě.
• Dbejte na to, aby se panel nenacházel v blízkosti zdroje tepla.
• Neinstalujte panel v prostředí s velkým množstvím vibrací
• Neinstalujte panel na přímém slunečním světle.
• Panel instalujte uvnitř nebo v uzavřeném prostředí.
• Zabraňte kondenzaci na panelu a komponentech panelu, obzvláště na průtokové cele, snímači
a připojení snímače a kabelu.
• Přívodní vedení vzorku vytvořte z hadiček PE, PVDF nebo Teflon
®
. Vedení by mělo být
co nejkratší, aby nedocházelo k časovému posunu.
• Tlak vzorku musí být dostatečně velký pro zajištění plynulého toku vody ke snímačům. Indikátor
LED na snímači průtoku se rozsvítí, jakmile je průtok dostatečný.
• Pro optimální funkci snímače udržujte co nejplynulejší průtok.
Pokyny pro přívodní hadičku vzorku
Pro co nejlepší funkci přístroje zvolte bod odběru vzorku, který bude dostatečně kvalitní
a reprezentativní. Vzorek musí být reprezentativní v celém systému.
Prevence chybných měření:
• Odebírejte vzorky v bodech, které jsou dostatečně vzdálené od bodů, kde se do procesního
proudu přidávají chemické látky.
• Zajistěte, aby vzorky byly dostatečně promíchány.
Čeština
121

• Dbejte, aby proběhlo úplné dokončení chemických reakcí.
Mechanická instalace
Nainstalujte panel
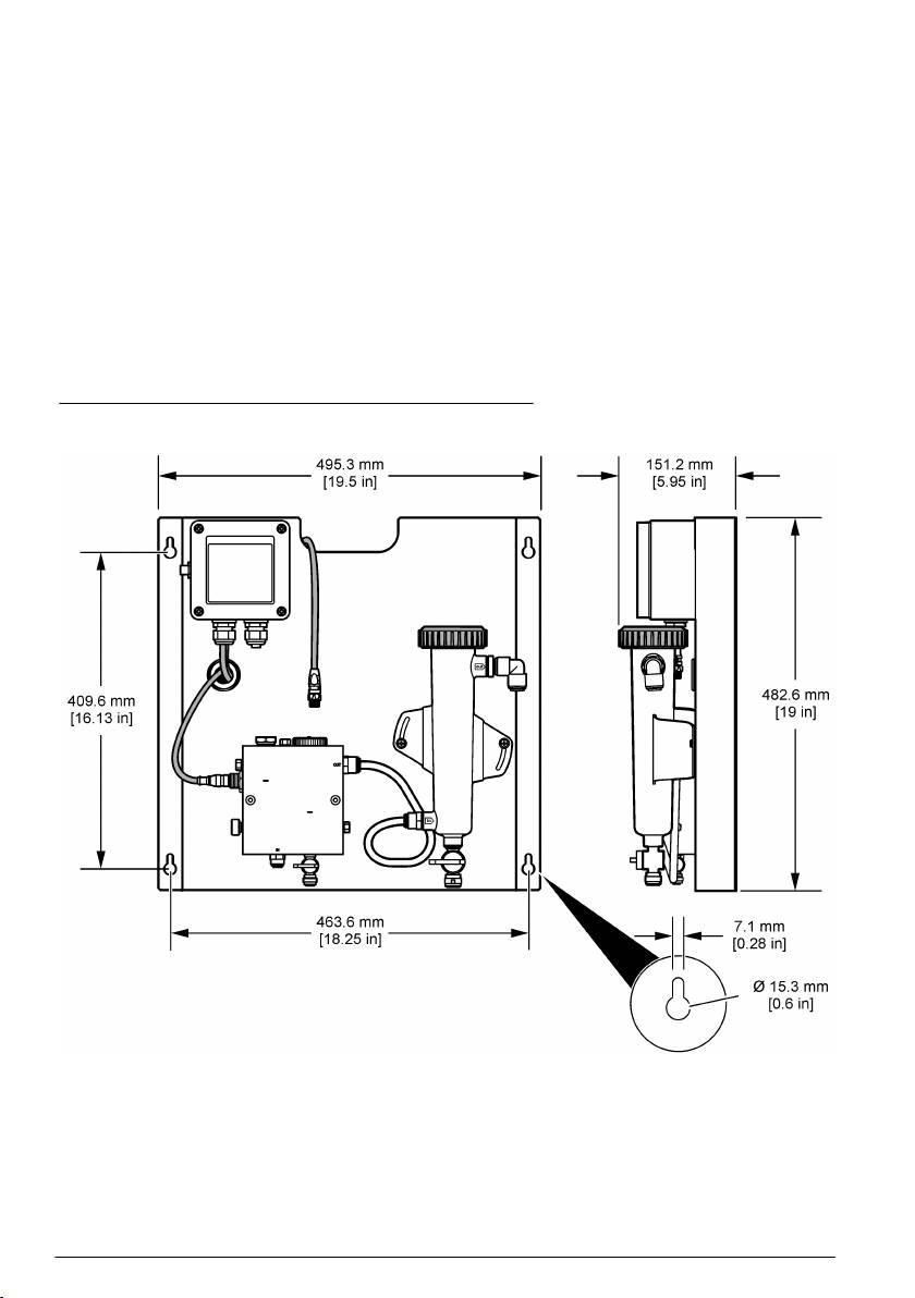
Obr. 5 zobrazuje instalační rozměry. Při instalaci panelu postupujte podle obrázku a jednotlivých
kroků.
1. Na instalační plochu připevněte instalační šrouby. Instalujte na nástěnné šrouby nebo použijte
nástěnné konzole. Ponechejte dostatek místa mezi hlavou každého šroubu a instalační plochou,
aby bylo možné panel vložit do meziprostoru.
2. Posuňte instalační otvory panelu přes hlavičky instalačních šroubů a posuňte panel, až se vršek
každého instalačního otvoru zarazí o tělo šroubu.
3. Utažením všech šroubů zajistěte panel na instalační ploše.
4. Nainstalujte snímač chlóru a snímač pH (volitelný) do průtočných kyvet. Více informací o instalaci
snímačů viz uživatelská příručka snímače.
Obr. 5 Rozměry panelu analyzátoru chlóru bez reagencií
122 Čeština

Elektrická instalace
Připojte vodiče panelu
V A R O V Á N Í
Nebezpečí poranění el. proudem. Před elektrickými instalacemi přístroj odpojte od elektrické sítě.
Kontrolér napájí snímače i digitální gateway.
1. Odpojte napájení kontroléru.
2. Připojte vodiče snímače pH (volitelný) ke gateway. Více informací o instalaci snímačů v průtočné
kyvetě nebo o připojení snímače ke gateway viz uživatelská příručka snímače.
3. Připojte snímač chlóru ke gateway. Více informací o připojení snímače ke gateway viz
uživatelská příručka snímače.
Poznámka: Při dodání panelu je kabel snímače chlóru připevněn páskou k přední části panelu blízko přípojky
snímače.
4. Připojte kontrolér ke gateway pomocí 1m spojovacího kabelu dodaného s panelem.
Potrubí
Zapojte potrubní vedení panelu
Dbejte na rozměrové specifikace všech trubek a armatur panelu. Průtoková dráha musí mít při
průtoku vody systémem vzrůstající průměr, aby se zamezilo vytváření zpětného tlaku. Obr. 1
na straně 118 obsahuje přehled trubicových přípojek.
1. Připojte potrubní vedení k armaturám vstupu a výstupu vzorku.
2. Dbejte, aby byl čisticí port na průtočné kyvetě měření chlóru uzavřený.
3. Dbejte, aby byl port bodového vzorku na průtočné kyvetě měření pH uzavřený.
4. Otevřete průtokový ventil na vedení vzorku a nechte vodu protékat systémem.
5. Dbejte, aby nedocházelo k únikům z potrubního vedení, ventilových armatur nebo průtočných
kyvet.
6. Tvorbu bublinek můžete minimalizovat nakloněním průtočné kyvety měření pH v úhlu 0° až 30°,
viz Obr. 6.
Čeština
123

Obr. 6 Naklonění průtočné kyvety měření pH
Provoz
Navigace uživatele
Další informace o popisu klávesnice a navigaci naleznete v dokumentaci k řadiči.
Konfigurace systému
Konfigurace snímače a kalibrace se provádějí prostřednictvím uživatelského rozhraní kontroléru.
Více informací o konfiguraci nebo kalibraci snímače viz uživatelská příručka snímače.
Model kontroléru sc musí být připojen k přenosové bráně.
1. V hlavní nabídce kontroléru zvolte Sensor Setup (Nastavení snímače).
Zobrazí se nabídka Chlorine Gateway (CGW) Setup (Nastavení gateway chlóru).
2. Zvolte položku Configure (Konfigurovat) a upravte zadání. Potvrďte každé zadání, aby se uložily
změny, a vraťte se zpět do nabídky Configure (Konfigurovat).
Volba Popis
Upravit název Umožňuje upravit název snímače
124 Čeština

Volba Popis
Můžete zvolit položku Parameter (Parametr) —
Umožňuje výběr parametru, který se bude
Chlorine (Total or Free) (Chlór, Celkový nebo Volný),
konfigurovat. Konfigurace vybraného parametru
pH (pH, volitelná), Temperature (Teplota, (volitelná)
vyžaduje další kroky. Více informací viz
uživatelská příručka snímače.
Chcete-li nastavit původní hodnoty, zvolte Reset
Resetuje konfiguraci na výchozí hodnoty
Defaults—Confirm (Vrátit na výchozí hodnoty-
výrobce.
Potvrdit).
Spuštění systému
Před spuštěním průtoku systémem ověřte správné provedení instalace mechanických a elektrických
částí a potrubních vedení.
1. Zaveďte proud do kontroléru
Při prvním zapnutí zobrazí kontrolér postupně obrazovku Language (Jazyk), Date Format
(Formát data) a Date/Time (Datum a čas).
2. Nastavte jazyk, datum a čas v kontroléru, pokud ještě nejsou nastavené. Více informací
o nastavení těchto voleb viz uživatelská příručka kontroléru.
Kontrolér skenuje připojená zařízení.
3. Ověřte, že čisticí port a port bodového vzorku jsou uzavřené, potom otevřete ventil
otevření/zavření na vedení vzorku, aby se spustil průtok vody systémem.
Průtočné kyvety měření chlóru a pH se naplní vodou.
4. Dbejte, aby dioda LED snímače průtoku svítila. Pokud dioda LED nesvítí, nastavte ventil řízení
průtoku na vyšší průtok.
Dioda LED snímače průtoku se rozsvítí, jakmile je průtok dostatečný pro řádnou funkci snímače.
Je-li průtok příliš vysoký, nebude dioda LED svítit. Dbejte, aby byl plovák přibližně zarovnaný
se zarovnávací značkou plováku.
5. Zkontrolujte místa úniku nebo ucpání v potrubním vedení a průtočných kyvetách. V případě
zjištěných problémů uzavřete tok vody do panelu a proveďte nezbytné opravy.
6. Má-li systém dostatečný průtok, vymažte všechna varování zobrazená na kontroléru provedením
doporučených operací.
7. Stiskněte klávesu HOME (Domů).
Zobrazí se hlavní obrazovka měření a zobrazí se naměřené hodnoty chlóru, teploty a pH (je-li
připojen snímač pH).
Údržba
N E B E Z P E Č Í
Různá nebezpečí. Práce uvedené v tomto oddíle dokumentu smí provádět pouze dostatečně
kvalifikovaný personál.
Výměna potrubního vedení
Vyměňujte potrubní vedení alespoň jednou ročně. Polámané, popraskané nebo netěsné potrubní
vedení vyměňte okamžitě. Staré, vybledlé, zanesené nebo poškození potrubní vedení vyměňte
za potrubní vedení stejného průměru a typu (potrubní vedení Teflon
®
nebo PVDF).
Vyčistěte průtočnou kyvetu snímače
Vyčistěte průtočnou kyvetu tak, aby se odstranily usazeniny. Je-li průtočná kyveta silně znečištěná,
vyčistěte ji. Vyměňte průtočnou kyvetu, jakmile se poškodí, změní barvu nebo přestane být
průhledná. Před čištěním není nutné průtočnou kyvetu vyjímat z panelu.
Poznámka: Na čištění průtočné kyvety měření chlóru nepoužívejte saponáty ani surfaktanty.
1. Uzavřete zdrojový tok směrem do panelu.
Čeština
125

2. Vyjměte snímač chlóru a vložte snímač do nádoby naplněné vzorkem chlórované vody.
Poznámka: Neodpojujte snímač od napájení. Pokud odpojíte snímač chlóru od napájení, snímač je nutné před
použitím aklimatizovat a zkalibrovat.
Poznámka: Odpojení snímače od průtočné kyvety, je-li připojen kabel snímače, vyvolá změnu signálních
výstupů snímače. Více informací viz příručka kontroléru.
3. Vypláchněte průtočnou kyvetu vodou a vydrhněte průtočnou kyvetu měkkým štětinovým
kartáčem, aby se odstranily usazeniny.
4. Vypláchněte průtočnou kyvetu vodou.
5. Není-li průtočná kyveta dostatečně čistá, ponořte průtočnou kyvetu na 10 až 15 minut do směsi
3-5% roztoku peroxidu vodíku a octa (poměr 1:3).
6. Vypláchněte průtočnou kyvetu vodou.
7. Nainstalujte snímač do průtočné kyvety a nechte protékat vzorek.
Vyměňte snímač průtoku
Za normálních podmínek snímač průtoku nevyžaduje pravidelnou údržbu ani výměnu. Pokud se však
indikátor průtoku LED nerozsvítí, i když je plovák na zarovnávací značce plováku nebo nad ní
a současně je zapnuté napájení, bude pravděpodobně nutné vyměnit snímač. Při výměně snímače
postupujte podle kroků znázorněných níže.
Poznámka: Při výměně snímače průtoku není nutné provádět demontáž snímače chlóru, vypouštět průtočnou
kyvetu ani vypínat kontrolér.
126 Čeština

Čeština 127

Vyměňte sestavu ventilu regulátoru průtoku
128 Čeština

Poruchy, jejich příčiny a odstraňování
Protokol událostí
Kontrolér loguje události pro každý snímač. Protokol událostí zaznamenává nejrůznější jevy
a události, jež proběhly nebo byly provedeny v přístrojích, např. provedená kalibrace, změna voleb
kalibrace atd. Níže je uveden seznam možných událostí. Záznam události lze číst ve formátu CSV.
Pokyny ke stahování protokolů najdete v uživatelské příručce kontroléru.
Tabulka 1 Protokol událostí
Událost Popis
Power On (Přívod el. proudu ZAP) Napětí bylo zapnuto.
Chyba flash Selhal flash disk nebo je poškozen.
1pointpHCalibration_Start Začátek jednobodové kalibrace vzorku pro pH
1pointpHCalibration_End Konec jednobodové kalibrace vzorku pro pH
2pointpHCalibration_Start Začátek dvoubodové kalibrace vzorku pro pH
2pointpHCalibration_End Konec dvoubodové kalibrace vzorku pro pH
1pointBufferpHCalibration_Start Začátek jednobodové kalibrace pufru pro pH
1pointBufferpHCalibration_End Konec jednobodové kalibrace pufru pro pH
2pointBufferpHCalibration_Start Začátek dvoubodové kalibrace pufru pro pH
2pointBufferpHCalibration_End Konec dvoubodové kalibrace pufru pro pH
TempCalibration_Start Začátek teplotní kalibrace
TempCalibration_End Konec teplotní kalibrace
1pointChemZeroCL2_Start Začátek jednobodové chemické kalibrace nulové hodnoty pro chlór
1pointChemZeroCL2_End Konec jednobodové chemické kalibrace nulové hodnoty pro chlór
1pointElecZeroCL2_Start Začátek jednobodové elektrické kalibrace nulové hodnoty pro chlór
1pointElecZeroCL2_End Konec jednobodové elektrické kalibrace nulové hodnoty pro chlór
1pointProcessConc_Start Začátek jednobodové koncentrace pro chlór
1pointProcessConc _End Konec jednobodové koncentrace pro chlór
2pointChemCL2_Start Začátek dvoubodové chemické kalibrace nulové hodnoty pro chlór
2pointChemCL2_End Konec dvoubodové chemické kalibrace nulové hodnoty pro chlór
2pointElecCL2_Start Začátek dvoubodové elektrické kalibrace nulové hodnoty pro chlór
2pointElecCL2_End Konec dvoubodové elektrické kalibrace nulové hodnoty pro chlór
CL2CalSetDefault Kalibrace chlóru byla nastavena na výchozí hodnoty.
pHCalSetDefault Kalibrační data pH byla nastavena na výchozí hodnoty.
TempCalSetDefault Kalibrační data teploty byla nastavena na výchozí hodnoty.
AllCalSetDefault Všechna kalibrační data snímače byla nastavena na výchozí hodnoty.
CL2CalOptionChanged Byla změněna volba kalibrace chlóru.
pHCalOptionChanged Byla změněna volba kalibrace pH.
TempCalOptionChanged Byla změněna volba kalibrace teploty.
SensorConfChanged Byla změněna konfigurace snímače.
Čeština 129

Tabulka 1 Protokol událostí (pokračování)
Událost Popis
ResetCL2CalHist Byla resetována historie kalibrace CL2.
ResetpH CalHist Byla resetována historie kalibrace pH.
ResetTemp CalHist Byla resetována historie kalibrace teploty.
ResetAllSensorsCalHist Byla resetována celá historie kalibrace snímače.
ResetCL2Sensor Kalibrační data CL2 (počet dní snímače, historie kalibrace a data kalibrace)
byla nastavena na výchozí hodnoty.
ResetpHSensor Kalibrační data pH (počet dní snímače, historie kalibrace a data kalibrace)
byla nastavena na výchozí hodnoty.
ResetTempSensor Kalibrační data teploty (počet dní snímače, historie kalibrace a data
kalibrace) byla nastavena na výchozí hodnoty.
ResetAllSensors Všechna kalibrační data snímače (počet dní snímače, historie kalibrace
a data kalibrace) byla nastavena na výchozí hodnoty.
Detekce průtoku Byl změněn stav proximitního snímače (dostatečný nebo nedostatečný
průtok).
Seznam chyb
Z mnoha různých příčin může dojít k chybám. Hodnoty ze snímače blikají na na obrazovce měření.
Všechny výstupy jsou uchovány, pokud je tak specifikováno v nabídce řadiče. Pokud chcete zobrazit
chyby snímače, stiskněte klávesu MENU a zvolte možnost Sensor Diag (Diagnostika snímače), Error
List (Seznam chyb). Níže je uveden seznam možných chyb.
Tabulka 2 Seznam chyb snímače
Porucha Popis Řešení
CL CAL REQD
Je vyžadována kalibrace chlóru a/nebo
Proveďte kalibraci snímače chlóru
(Vyžadována kalibrace)
kalibrace pH.
a/nebo snímače pH.
Měření chlóru a/nebo měření
pH se změnilo natolik, že vyvolalo alarm
Cal Watch (Hlídač kalibrace). Více
informací naleznete v příručce snímače
chlóru.
CL MAINT REQD
Je vyžadována údržba snímače chlóru.
Proveďte údržbu snímače a potom
(Vyžadována údržba)
zopakujte kalibraci, případně vyměňte
Sklon je méně než 30 % nebo více než
snímač. Více informací naleznete
300 % výchozího sklonu.
v příručce snímače chlóru.
Výchozí sklon je 100 mV/ppm (100 %).
CL MAINT REQD
Je vyžadována údržba snímače chlóru.
Proveďte údržbu snímače a potom
(Vyžadována údržba)
zopakujte kalibraci, případně vyměňte
Odchylka je příliš vysoká (více než
snímač. Více informací naleznete
±50 mV).
v příručce snímače chlóru.
PH TOO LOW (Nízké pH) Hodnota pH je menší než 0 pH. Zkalibrujte nebo vyměňte snímač pH.
PH TOO HIGH (Vysoké
Hodnota pH je větší než 14 pH.
pH)
PH SLOPE FAIL (Selhání
Sklon je mimo rozsah -45 až -65 mV/pH. Vyčistěte snímač pH, potom zopakujte
sklonu)
kalibraci s novým pufrem nebo vzorkem,
případně vyměňte snímač.
PH OFFSET FAIL (Selhání
Odchylka je mimo rozsah ±60 mV. Vyčistěte snímač pH a potom zopakujte
odchylky pH)
kalibraci s novým pufrem nebo vzorkem,
případně vyměňte snímač.
130 Čeština

Tabulka 2 Seznam chyb snímače (pokračování)
Porucha Popis Řešení
PH OFFSET FAIL (Selhání
Odchylka je mimo rozsah ±60 mV. Vyčistěte snímač pH a vyměňte roztok
odchylky pH)
pro solný můstek a standardní celu
a potom zopakujte kalibraci s novým
pufrem nebo vzorkem, případně
vyměňte snímač.
TEMP TOO LOW (Příliš
Teplota je nižší než 0 °C. Zkalibrujte teplotu nebo vyměňte
nízká teplota)
snímač pH.
TEMP TOO HIGH (Teplota
Teplota je vyšší než 100 °C.
příliš vysoká)
TEMP FAIL (Selhání
Odchylka je vyšší než 5,0 °C nebo nižší
Zkalibrujte teplotu nebo vyměňte
teploty)
než -5,0 °C.
snímač pH.
NO FLOW (Není průtok) Úroveň průtoku je příliš nízká. Zvyšte průtok.
SEZNAM VAROVÁNÍ
Varování neovlivní provoz nabídek, vysílání a výstupů. Ikona varování zabliká a v dolní části
obrazovky měření se zobrazí zpráva. Pokud chcete zobrazit varování snímače, stiskněte klávesu
MENU a zvolte možnost Sensor Diag (Diagnostika snímače), Warning List (Seznam varování). Níže
je uveden událostí možných varování.
Tabulka 3 Seznam varování pro snímač
Varování Popis Řešení
CL CAL RECD
Je doporučena kalibrace chlóru a/nebo kalibrace pH.
Proveďte kalibraci
(Doporučená kalibrace
snímače chlóru a/nebo
Měření chlóru a/nebo měření pH se změnilo natolik,
chlóru)
snímače pH.
že vyvolalo alarm varování Cal Watch (Hlídač
kalibrace). Více informací viz uživatelská příručky
snímačů.
CL CAL RECD
Je doporučena kalibrace chlóru.
Zkalibrujte snímač chlóru.
(Doporučená kalibrace
Data kalibrace chlóru nejsou k dispozici (snímač
chlóru)
s výchozími daty kalibrace).
PH CAL RECD
Je doporučena kalibrace pH.
Zkalibrujte snímač pH.
(Doporučená kalibrace pH)
Data kalibrace pH nejsou k dispozici (snímač
s výchozími daty kalibrace).
TEMP CAL RECD
Je doporučena kalibrace teploty.
Zkalibrujte teplotu.
(Doporučená kalibrace
Data kalibrace teploty nejsou k dispozici (snímač
teploty)
s výchozími daty kalibrace).
CL CAL TO DO (Provést
Hodnota Sensor Days (Počet dní snímače) pro
Zkalibrujte snímač chlóru.
kalibraci chlóru)
snímač chlóru je větší než hodnota Cal Reminder
(Připomenutí kalibrace).
PH CAL TO DO (Provést
Hodnota Sensor Days (Počet dní snímače) pro
Zkalibrujte snímač pH.
kalibraci pH)
snímač pH je větší než hodnota Cal Reminder
(Připomenutí kalibrace).
TEMP CAL TO DO (Provést
Hodnota Sensor Days (Počet dní snímače) pro
Zkalibrujte teplotu.
kalibraci teploty)
snímač teploty je větší než hodnota Cal Reminder
(Připomenutí kalibrace).
CL MAINT RECD
Je doporučena údržba snímače chlóru.
Proveďte údržbu snímače
(Doporučená údržba chlóru)
a potom zopakujte
Sklon je 30 až 45 % výchozího sklonu nebo je sklon
kalibraci, případně
250 až 300 % výchozího sklonu.
vyměňte snímač.
Výchozí sklon je 100 mV/ppm (100 %).
Čeština 131

Tabulka 3 Seznam varování pro snímač (pokračování)
Varování Popis Řešení
CL MAINT RECD
Je doporučena údržba snímače chlóru.
Proveďte údržbu snímače
(Doporučená údržba chlóru)
a potom zopakujte
Odchylka je -50 mV až 45 mV nebo je odchylka
kalibraci, případně
45 mV až 50 mV.
vyměňte snímač.
PH MAINT RECD
Je doporučena údržba snímače pH.
Vyčistěte snímač pH,
(Doporučená údržba pH)
potom zopakujte kalibraci
Sklon je mimo rozsah -50 až -61 mV/pH.
s novým pufrem nebo
vzorkem, případně
vyměňte snímač.
PH MAINT RECD
Je doporučena údržba snímače pH.
Vyčistěte snímač a poté
(Doporučená údržba pH)
zopakujte kalibraci nebo
Odchylka je větší než ±45 mV avšak menší než
vyměňte snímač.
±60 mV.
PH MAINT RECD
Je doporučena údržba snímače pH.
Vyčistěte snímač
(Doporučená údržba pH)
a vyměňte roztok pro solný
Odchylka je větší než ±45 mV avšak menší než
můstek a standardní
±60 mV.
roztok pro kyvetu a potom
zopakujte kalibraci,
případně vyměňte snímač
T MAINT RECD
Odchylka teploty je větší než ±3 °C avšak menší než
Zkalibrujte teplotu.
(Doporučená údržba
±5 °C.
teploty)
Náhradní díly a příslušenství
V A R O V Á N Í
Nebezpečí poranění osob. Použití neschválených součástí může způsobit poranění osob, poškození
nebo nesprávné fungování přístroje či vybavení. Náhradní díly v tomto oddíle jsou schváleny
výrobcem.
Poznámka: Čísla produktů a položek se mohou v různých regionech prodeje lišit. Pokud potřebujete kontaktní
infomace, obraťte se na příslušného dodavatele nebo se podívejte na webové stránky společnosti.
Díly
Popis Položka č.
Kabel, brána k regulátoru, 1 m 6122400
Sestava kabelu, 4 kolíky, stíněný, snímač průtoku, 2 m 9160900
Sestava kabelu, 5 kolíků, stíněný, M12, snímač chlóru, 1 m 9160300
Anglický systém:
9159200 (1/4")
Armatura, vstupní port pro průtočnou kyvetu měření chlóru
Metrický:
9196400 (6 mm)
Anglický systém:
Armatura, rychloúchytka, výstupní port pro průtočnou kyvetu měření chlóru nebo
9159300 (3/8")
vstupní port pro průtočnou kyvetu měření pH
Metrický systém:
9196500 (10 mm)
Angličtina:
9196900 (1/2")
Armatura, koleno, výstupní port pro průtočnou kyvetu měření pH
Metrický systém:
9197000 (12 mm)
Plovák, snímač průtoku 9159100
132 Čeština

Náhradní díly a příslušenství (pokračování)
Popis Položka č.
Anglický systém:
9198400
Sestava průtočné kyvety, chlórová
Metrický systém:
9198500
Anglický systém:
9180200
Sestava průtokové kyvety, kombinace pH
Metrický systém:
9180400
Anglický systém:
Sestava průtočné kyvety, pHD
9180100
obsahuje těsnicí náboj
Metrický systém:
9180300
Pouze těleso průtočné kyvety (pH) 9159700
Blok průtočné kyvety, chlórová 9158900
Průtokový ovládací ventil 9159000
Průtokový ovládací ventil, sada 9198600
Snímač průtoku 9160800
Přenosová brána, digitální 9180500
Pojistný kroužek, průtočná kyveta měření chlóru 9196200
Pojistný kroužek, průtočná kyveta měření pH 60F2032-001
O-kroužek, chlórová průtočná kyveta (2x) (č. 2-108, Viton) 9159600
O-kroužek, průtočná kyveta měření pH (č. 2-228, Viton) 5H1223
O-kroužek, těsnicí náboj, průtočná kyveta měření chlóru (č. 2-123, Viton) 9196300
O-kroužek, dělený kroužek (M25 x 2,5) 9181800
Záslepka, průtočná kyveta měření chlóru, 1/2" 9159500
Šroub, průtočná kyveta měření chlóru (2x) (10-32 x 1.75 Lg Phillps plochá hlava) 4422200
Šroub, průtočná kyveta měření pH (2x) (10-32 x 5 Lg Phillps plochá hlava) 561211
Těsnicí slepý kus, O-průtočná kyveta měření pH 9198000
Těsnicí náboj, průtočná kyveta měření chlóru 9196100
Těsnicí náboj, kombinovaný snímač pH, 3/4" 9159800
Těsnicí náboj, průtočná kyveta měření pHD, 1" 60F2021-001
Dělený kroužek, průtočná kyveta měření chlóru 9181700
Vedení, proud se vzorkem, 1/4" x 2 m 4743800
Vedení, proud se vzorkem, 3/8" x 18 palců 9198100
Vedení, proud odpadu, 1/2" x 2 m 9198200
Ventil, port bodového vzorku 9005300
Ventil, rychloúchytka, čisticí port 6166300
Čeština 133

Příslušenství
Popis Položka č.
Okyselovací sada LZY051
Sada tlakového regulátoru pro úpravu vzorku 9159900
134 Čeština

Indholdsfortegnelse
Specifikationer på side 135 Vedligeholdelse på side 144
Generelle oplysninger på side 135 Fejlsøgning på side 148
Installation på side 140 Reservedele og tilbehør på side 151
Betjening på side 143
Specifikationer
Specifikationerne kan ændres uden varsel.
Specifikation Yderligere oplysninger
Komponentbeskrivelse Amperometrisk panel til analyse af overvågning af
reagensfrit klor, flow, valgfri pH-kombination eller pHD-
sensor, flowceller, sc-controller og digital gateway.
Driftstemperatur 0 til 45°C (0 til 113°F)
Opbevaringstemperatur (kun panel) –20 til 60 °C (–4 til 149 °F)
Strømkrav 12 VDC ± 10%, 100 mA maksimum (leveres af sc
controller)
Panelets mål (L x B x D) 48,3 x 49,5 x 15,1 cm (19 x 19,5 x 5,95 in.) med
komponenter monteret på panel
Vægt Ca. 5,4 kg (12 lb) (kun panel og komponenter til
montering i tomt panel)
Flowhastighed Område: 30-50 l/time (7,9-13,2 gal/time)
Optimal: 40 L/t (10,5 gal/t)
Controller-platform sc-controller-modeller
Generelle oplysninger
Producenten kan under ingen omstændigheder holdes ansvarlig for direkte, indirekte, specielle,
hændelige eller følgeskader der opstår på baggrund af en defekt eller udeladelse i denne vejledning.
Producenten forbeholder sig ret til når som helst at foretage ændringer i denne manual og de
beskrevne produkter uden varsel eller forpligtelser. Reviderede udgaver kan findes på producentens
webside.
Oplysninger vedr. sikkerhed
B E M Æ R K N I N G
Producenten er ikke ansvarlig for eventuelle skader på grund af forkert anvendelse eller misbrug af dette produkt,
herunder uden begrænsning direkte skader, hændelige skader eller følgeskader, og fraskriver sig ansvaret for
sådanne skader i det fulde omfang, som tillades ifølge gældende lov. Kun brugeren er ansvarlig for at identificere
alvorlige risici ved anvendelsen og installere relevante mekanismer til beskyttelse af processerne i forbindelse
med en eventuel fejl på udstyret.
Læs hele manualen, inden udpakning, installation eller betjening af dette udstyr. Overhold alle
farehenvisninger og advarsler. Undladelse heraf kan medføre, at brugeren kommer alvorligt til skade
eller beskadigelse af apparatet.
Kontroller, at den beskyttelse, som dette udstyr giver, ikke forringes. Du må ikke bruge eller installere
dette udstyr på nogen anden måde end den, der er angivet i denne manual.
Dansk
135

Brug af sikkerhedsoplysninger
F A R E
Angiver en eventuel eller overhængende farlig situation, der vil medføre dødsfald eller alvorlige kvæstelser, hvis
den ikke undgås.
A D V A R S E L
Angiver en potentiel eller umiddelbart farlig situation, som kan resultere i død eller alvorlig tilskadekomst, hvis den
ikke undgås.
F O R S I G T I G
Indikerer en potentiel farlig situation, der kan resultere i mindre eller moderat tilskadekomst.
B E M Æ R K N I N G
Angiver en situation, der kan medføre skade på instrumentet, hvis ikke den undgås. Oplysninger, der er særligt
vigtige.
Sikkerhedsmærkater
Læs alle skilte og mærkater, som er placeret på apparatet. Der kan opstå person- eller
instrumentskade, hvis forholdsreglerne ikke respekteres. I håndbogen refereres der til et symbol på
instrumentet med en forholdsregelerklæring.
Hvis dette symbol findes på instrumentet, henviser det til instruktionsmanualen vedrørende drifts-
og/eller sikkerhedsoplysninger.
Elektrisk udstyr markeret med dette symbol må ikke bortskaffes i det offentlige europæiske
renovationssystem efter den 12. august 2005. I overensstemmelse med europæiske lokale og
nationale forordninger (EU-direktiv 2002/98/EF) skal brugere af elektrisk udstyr nu returnere gammelt
eller udtjent udstyr til producenten til bortskaffelse. Dette koster ikke brugeren noget.
BEMÆRK: Kontakt udstyrsproducenten eller -leverandøren og få vejledning vedrørende aflevering af udtjent udstyr,
producentleveret elektrisk tilbehør og alle andre genstande til genbrug eller korrekt bortskaffelse.
Produktoversigt
Dette produkt er primært beregnet til anvendelse i kommunalt drikkevand. Spildevand og industriel
anvendelse skal identificeres som værende egnet af producenten før installation.
Den reagensfrie kloranalysator overvåger koncentrationen af fri eller samlet restklor i vand og er
yderst pålidelig ved restklorkoncentrationer på mere end 0,1 ppm (mg/l). Denne kombination af en
sc-model controller med en klorsensor med tre elektroder, valgfri pH-sensor og en flowsensor giver
den bedste overvågningsfunktion. Begge sensorer aflæser prøvetemperaturer. pH-sensoren sender
temperaturaflæsningen til controllerens display. Klorsensoren bruger temperaturmålingen internt og
sender ikke målingen til controllerens display. Som tilbehør fås et trykregulatorsæt og et sæt til
forsuring og rengøring.
Klor- og pH-sensorerne findes i flowceller, der er fastgjorte i panelet og serieforbundet. Flowcellerne
opretholder kontakten mellem sensor og prøve og hjælper med at forhindre, at sensorerne tørrer ud,
når system ikke er i brug. Figur 1, Figur 2, Figur 3 viser oversigter over systemet og flowcellerne.
Hver sensor er forbundet til controlleren via en gateway, der er monteret på panelet. Gateway'en
konverterer analoge signaler fra sensorerne til digitale signaler, som anvendes af controlleren.
Controlleren konverterer digitale signaler til klor-, pH- og temperaturmåleværdier og viser målingen
på displayet. Controlleren leverer strøm til sensorerne og til den digitale gateway.
Controlleren kan konfigureres til at afgive en alarm eller advarsel, hvis måleværdierne overstiger eller
falder under en specificeret værdi. Se brugervejledningen til controlleren for oplysninger om
controller-alarmer.
BEMÆRK: Se brugervejledningerne til sensorerne for oplysninger om, hvordan sensorerne opbevares, når
systemet ikke er i brug.
136
Dansk

To analysatorkonfigurationer er tilgængelige: en Stikprøve (uden pH-sensor) og en pH. Stikprøven
omfatter monteringspanelet, klor-sensoren og -flowcellen, en pH-flowcelle uden sensor, en
flowsensor, den digitale gateway og controlleren. pH-muligheden omfatter disse elementer samt en
pH-sensor.
En flowreguleringsventil regulerer prøveflowet. Det anbefales at opretholde en konstant
flowhastighed på 30-50 L/t for at sikre korrekt betjening af sensoren. Den optimale hastighed er
40 L/t. En enkelt LED-indikator på flowsensoren viser, hvis prøveflowet er tilstrækkeligt. Hvis LED-
indikatoren ikke lyser, skal flowhastigheden justeres, indtil den lyser. Den præcise flowhastighed er
ikke vigtig, så længe LED-indikatoren lyser, men flowet skal være konstant inden for
specifikationerne.
Figur 1 Systemoversigt
1 Controller 7 Prøve ind
2 Gateway 8 Ventil, stophane (leveres af kunden)
3 Kabel til klorsensor 9 Klor-flowcelle
4 pH-sensor (option) 10 Kabel til flowsensor
5 Dræn 11 Klorsensor
6 pH-flowcelle
Dansk 137

Figur 2 Oversigt over klor-flowcelle
1 Flowsensor 8 Prøve udgangs fiitting
• Engelsk: Speedfit lynkobling - 3/8" rør (udvendig
dia.)
• Metrisk: Speedfit lynkobling - 10 mm rør
(udvendig dia.)
2 Prop, 1/8'' NPTF 9 Mærke for justering af klorsensor
3 Mærke for justering af svømmer 10 Ventil, rengøringsåbning, 1/4'' OD-rør
4 Prop, 1/2'' NPTF 11 Flowcelleindgang
• Engelsk: Speedfit lynkobling - 1/4'' (udvendig
dia.)
• Metrisk: Speedfit lynkobling - 6 mm (udvendig
dia.)
5 Låsering 12 Flow-celle
6 Tætningsmuffe 13 Flowreguleringsventil
7 O-ring 14 Svømmer
138 Dansk

Figur 3 Oversigt over pH-flowcelle
1 Låsering 4 Prøve udgangs fiitting
Engelsk: Speedfit lynkobling - 1/2" vinkelfitting
(udvendig dia.)
Metrisk: Speedfit lynkobling - 12 mm vinkelfitting
(udvendig dia.)
2 Tætningsring 5 Gateway til stikprøve
3 O-ring 6 Flowcelleindgang
• Engelsk: Speedfit lynkobling - 3/8" rør (udvendig
dia.)
• Metrisk: Speedfit lynkobling - 10 mm rør
(udvendig dia.)
Produktkomponenter
Sørg for, at alle komponenter er modtaget. Se Figur 1 på side 137. Kontakt producenten eller en
forhandler med det samme, hvis dele mangler eller er beskadigede.
Dansk
139

Figur 4 Panel til analyse af reagensfrit klor
1 Systempanel 3 Rørføring, 12 mm (½ in.)
2 Tilslutningskabel til tilslutning af gateway til
4 Klorsensor
controlleren, 1 m (3,3 ft)
Installation
Installeringshensyn
• Udfør først de mekaniske installeringer, dernæst de elektriske installeringer og til sidst rørarbejdet.
• Alle fittings er beregnet til kun at blive tilspændt med håndkraft.
• Panelet er beregnet til at blive monteret på en væg eller et beslag. Monter eller placer panelet et
letfremkommeligt sted.
• Placer ikke panelet tæt på en varmekilde.
• Placer ikke panelet et sted, hvor der ofte forekommer vibrationer.
• Placer ikke panelet i direkte sollys.
• Monter panelet indendørs eller i et vejrbestadigt kabinet.
• Forebyg ansamling af kondens på panelet og panelkomponenterne, særligt flow-cellen og ved
samlingen mellem sensor og kabel.
• Anvend slanger af typen Teflon
®
eller PVDF lineær LD-polyethylen til prøvetilførselsledningen, og
hold slangerne så korte som muligt for at minimere tidsforsinkelsen.
• Prøvetrykket skal være tilsltrækkeligt til at holde en konstant vandforsyning til sensorerne. En
LED-indikator på flowsensoren lyser, så længe flowet er tilstrækkeligt.
• Oprethold et så konstant flow som muligt for at sikre den bedste betjening af sensoren.
Retningslinjer for prøveledning
Vælg et godt, repræsentativt prøvested for den bedste instrumentydelse. Prøven skal være
repræsentativ for hele systemet.
For at undgå uregelmæssige aflæsninger:
• Udtag prøver fra steder, der er tilstrækkeligt langt væk fra steder, hvor kemiske stoffer tilsættes
processtrømmen.
• Sørg for, at prøverne er blandet tilstrækkeligt.
• Sørg for, at alle kemiske reaktioner er fuldførte.
140
Dansk

