Hach-Lange CLF10 sc – страница 2
Инструкция к Hach-Lange CLF10 sc

Inhaltsverzeichnis
Technische Daten auf Seite 21 Wartung auf Seite 30
Allgemeine Informationen auf Seite 21 Fehlersuche und Behebung auf Seite 34
Inbetriebnahme auf Seite 26 Ersatzteile und Zubehör auf Seite 37
Betrieb auf Seite 29
Technische Daten
Änderungen vorbehalten.
Technische Daten Detail
Beschreibung der Komponenten Amperometrisches, reagenzienfreies Chlor-
Analysepanel mit Chlor- und Durchflusssensor,
optionalem pH-Kombi- oder pHD-Sensor sowie
Durchflusszellen, SC-Controller und Digital-Gateway
Betriebstemperatur 0 bis 45 °C (0 bis 113 °F)
Lagertemperatur (nur Panel) -20 bis 60 °C (-4 bis 149 °F)
Stromversorgung 12 VDC ± 10 %, max. 100 mA (Speisung erfolgt durch
SC-Controller)
Panel Abmessungen (L x B x T) 48.3 x 49.5 x 15.1 cm (19 x 19.5 x 5.95 Zoll) mit
Konsolenkomponenten
Gewicht Ca. 5,5 kg (nur Konsole und leere
Konsolenkomponenten)
Durchflussrate Bereich: 30-50 l/h
Optimum: 40 Liter/h
Controller-Plattform SC-Controller-Modelle
Allgemeine Informationen
Der Hersteller ist nicht verantwortlich für direkte, indirekte, versehentliche oder Folgeschäden, die
aus Fehlern oder Unterlassungen in diesem Handbuch entstanden. Der Hersteller behält sich
jederzeit und ohne vorherige Ankündigung oder Verpflichtung das Recht auf Verbesserungen an
diesem Handbuch und den hierin beschriebenen Produkten vor. Überarbeitete Ausgaben der
Bedienungsanleitung sind auf der Hersteller-Webseite erhältlich.
Sicherheitshinweise
H I N W E I S
Der Hersteller ist nicht für Schäden verantwortlich, die durch Fehlanwendung oder Missbrauch dieses Produkts
entstehen, einschließlich, aber ohne Beschränkung auf direkte, zufällige oder Folgeschäden, und lehnt jegliche
Haftung im gesetzlich zulässigen Umfang ab. Der Benutzer ist selbst dafür verantwortlich, schwerwiegende
Anwendungsrisiken zu erkennen und erforderliche Maßnahmen durchzuführen, um die Prozesse im Fall von
möglichen Gerätefehlern zu schützen.
Bitte lesen Sie dieses Handbuch komplett durch, bevor Sie dieses Gerät auspacken, aufstellen oder
bedienen. Beachten Sie alle Gefahren- und Warnhinweise. Nichtbeachtung kann zu schweren
Verletzungen des Bedieners oder Schäden am Gerät führen.
Stellen Sie sicher, dass die durch dieses Messgerät bereitgestellte Sicherheit nicht beeinträchtigt
wird. Verwenden bzw. installieren Sie das Messsystem nur wie in diesem Handbuch beschrieben.
Deutsch
21

Bedeutung von Gefahrenhinweisen
G E F A H R
Kennzeichnet eine mögliche oder drohende Gefahrensituation, die, wenn sie nicht vermieden wird, zum Tod oder
zu schweren Verletzungen führt.
W A R N U N G
Kennzeichnet eine mögliche oder drohende Gefahrensituation, die, wenn sie nicht vermieden wird, zum Tod oder
zu schweren Verletzungen führen kann.
V O R S I C H T
Kennzeichnet eine mögliche Gefahrensituation, die zu geringeren oder moderaten Verletzungen führen kann.
H I N W E I S
Kennzeichnet eine Situation, die, wenn sie nicht vermieden wird, das Gerät beschädigen kann. Informationen, die
besonders beachtet werden müssen.
Warnhinweise
Lesen Sie alle am Gerät angebrachten Aufkleber und Hinweise. Nichtbeachtung kann Verletzungen
oder Beschädigungen des Geräts zur Folge haben. Im Handbuch werden auf die am Gerät
angebrachten Symbole in Form von Warnhinweisen verwiesen.
Dieses Symbol am Gerät weist auf Betriebs- und/oder Sicherheitsinformationen im Handbuch hin.
Elektrogeräte, die mit diesem Symbol gekennzeichnet sind, dürfen ab 12. August 2005 nicht in
öffentlichen europäischen Abfallsystemen entsorgt werden. Benutzer von Elektrogeräten müssen in
Europa in Einklang mit lokalen und nationalen europäischen Regelungen (EU-Richtlinie 2002/98/EG)
Altgeräte kostenfrei dem Hersteller zur Entsorgung zurückgeben.
Hinweis: Für die Rückgabe von Altgeräten, Zubehör und Zusatzausstattungen für eine Entsorgung/Recycling wenden
Sie sich bitte an den Gerätehersteller oder Lieferanten, der Ihnen genaue Anweisungen dazu geben wird.
Produktübersicht
Dieses Produkt ist hauptsächlich für die Verwendung mit kommunalem Trinkwasser vorgesehen.
Anwendungen im Bereich Abwasser und Industrie bedürfen vor der Installation der Genehmigung
des Herstellers.
Der reagienzienfreie Chloranalysator überwacht die Konzentration von ungebundenem Chlor oder
Gesamtchlor im Wasser und arbeitet bei Restchlorkonzentrationen über 0,1 ppm (mg/l) extrem
zuverlässig. Die Kombination aus einem SC-Controller, einem Chlorsensor mit drei Elektroden,
einem optionalen pH-Sensor und einem Durchflusssensor ermöglicht eine optimale
Überwachungsfunktion. Beide Sensoren messen die Probentemperatur. Der pH-Sensor überträgt
den gemessenen Temperaturwert an das Display des Controllers. Der Chlorsensor verwendet seine
Temperaturmessung intern und überträgt den Messwert nicht an das Controller-Display. Als Zubehör
sind ein Druckreglersatz sowie ein Ansäuerungs- und ein Reinigungssatz erhältlich.
Die Chlor- und pH-Sensoren befinden sich in Durchflusszellen, die auf das Panel in Reihe montiert
sind. Die Durchflusszellen wahren den Kontakt zwischen Sensor und Probe und verhindern, dass die
Sensoren austrocknen, wenn das System nicht im Betrieb ist. Abbildung 1, Abbildung 2, Abbildung 3
zeigen einen Überblick über das System und deren Durchflusszellen.
Jeder Sensor ist über ein Gateway, das auf dem Panel montiert ist, mit dem Controller verbunden.
Das Gateway konvertiert Analogsignale von den Sensoren in digitale Signale, die vom Controller
verwendet werden. Der Controller konvertiert die digitalen Signale in Chlor-, pH- und
Temperaturmesswerte und zeigt diese Werte auf dem Display an. Der Controller dient als
Stromquelle für die Sensoren und das Digital-Gateway.
22
Deutsch

Der Controller kann so konfiguriert werden, dass eine Alarmbedingung oder ein Warnhinweis
generiert wird, wenn Messwerte über oder unter dem definierten Grenzwert liegen. Informationen zu
Controller-Alarmen finden Sie im Benutzerhandbuch des Controllers.
Hinweis: Informationen zum Aufbewahren der Sensoren, während das System nicht im Betrieb ist, finden Sie im
Benutzerhandbuch zu den Sensoren.
Es stehen zwei Analysekonfigurationen zur Wahl: eine Einzelmessungsoption (ohne pH-Sensor) und
eine pH-Option. Die Einzelmessungsoption umfasst das Panel, den Chlorsensor samt
Durchflusszelle, eine pH-Durchflusszelle ohne Sensor, einen Durchflusssensor, das Digital-Gateway
und den Controller. Die pH-Option umfasst die oben aufgeführten Komponenten sowie einen pH-
Sensor.
Der Probendurchfluss wird durch ein Durchflussregelventil gesteuert. Für den korrekten
Sensorbetrieb wird eine konstante Durchflussrate von 30 bis 50 Litern/h empfohlen. Die optimale
Durchflussrate beträgt 40 Liter/h. Eine LED auf dem Durchflusssensor zeigt an, ob der
Probendurchfluss ausreicht. Wenn die LED nicht leuchtet, muss die Durchflussrate justiert werden,
bis die LED aufleuchtet. Die genaue Durchflussrate ist nicht wichtig, solange die LED leuchtet, doch
der Durchfluss muss innerhalb der Spezifikationen konstant sein.
Abbildung 1 Systemübersicht
1 Controller 7 Probenzulauf
2 Gateway 8 Absperrventil (kundenseitig bereitzustellen)
3 Kabel des Chlorsensors 9 Chlor-Durchflusszelle
4 pH-Sensor (optional) 10 Durchflusssensorkabel
5 Probenablauf 11 Chlorsensor
6 pH-Durchflusszelle
Deutsch 23

Abbildung 2 Übersicht der Chlor-Durchflusszelle
1 Durchflusssensor 8 Probenauslass-Verschraubung
• Zöllig: Schnellverschluss-Verschraubung 3/8 Zoll
AD
• Metrisch: Schnellverschluss-Verschraubung
10 mm AD
2 Verschluss, 1/8 Zoll NPTF 9 Chlorsensor-Ausrichtungsmarke
3 Schwimmerausrichtungsmarke 10 Ventil, Reinigungsöffnung, 1/4 Zoll AD
4 Verschluss, 1/2 Zoll NPTF 11 Zulauf Durchflusszelle
• Zöllig: Schnellverschluss-Verschraubung
1/4 Zoll AD
• Metrisch: Schnellverschluss-Verschraubung
6 mm AD
5 Verschlussring 12 Durchflusszelle
6 Dichtungsnabe 13 Durchflussregelventil
7 O-Ring 14 Schwimmer
24 Deutsch

Abbildung 3 Übersicht der pH-Durchflusszelle
1 Verschlussring 4 Probenauslass-Verschraubung
Zöllig: Schnellverschluss-Winkelverschraubung
1/2 Zoll AD
Metrisch: Schnellverschluss-Winkelverschraubung
12 mm AD
2 Dichtring 5 Probennahmeanschluss
3 O-Ring 6 Zulauf Durchflusszelle
• Zöllig: Schnellverschluss-Verschraubung 3/8 Zoll
AD
• Metrisch: Schnellverschluss-Verschraubung
10 mm AD
Produktkomponenten
Stellen Sie sicher, dass Sie alle Teile erhalten haben. Siehe Abbildung 1 auf Seite 23. Wenn
irgendwelche Komponenten fehlen oder beschädigt sind, kontaktieren Sie bitte den Hersteller oder
Verkäufer.
Deutsch
25

Abbildung 4 Reagenzienfreies Chlor-Analysepanel
1 Panel 3 Schlauch, 12 mm (½ Zoll)
2 Anschlusskabel zum Anschließen des Gateways an
4 Chlorsensor
den Controller, 1 m
Inbetriebnahme
Installationshinweise
• Führen Sie zunächst die mechanische Montage, anschließend die elektrische Installation und
abschließend die Montage der Schläuche durch.
• Alle Verschraubungen sind so ausgelegt, dass sie lediglich von Hand festgezogen werden
müssen.
• Das Panel kann an der Wand oder in einem Gestell montiert werden. Montieren Sie das Panel an
einem leicht zugänglichen Ort.
• Montieren Sie das Panel nicht in der Nähe von Wärmequellen.
• Montieren Sie das Panel nicht in einer Umgebung, in der es häufig Erschütterungen ausgesetzt
ist.
• Montieren Sie die Konsole nicht an einem Ort, an dem sie direktem Sonnenlicht ausgesetzt ist.
• Installieren Sie die Konsole in einem geschlossenen Raum oder in einer von der Umwelt isolierten
Kammer.
• Vermeiden Sie Kondenswasser auf der Konsole und auf Konsolenkomponenten, insbesondere auf
Durchflussküvette, Sensor sowie den Anschlusspunkten von Sensor und Kabel.
• Verwenden Sie einen Schlauch aus Teflon
®
oder Polyvinylidenfluorid (PVDF) bzw. linearem
Polyethylen niederer Dichte als Versorgungsleitung für die Proben. Halten Sie diesen Schlauch so
kurz wie möglich, um Zeitverzögerungen zu minimieren.
• Zur Gewährleistung einer kontinuierlichen Wasserversorgung der Sensoren muss der
Probendruck ausreichend hoch sein. Solange ein ausreichend starker Probenfluss vorhanden ist,
leuchtet die entsprechende LED-Anzeige auf dem Durchflusssensor auf.
• Um einen optimalen Sensorbetrieb zu gewährleisten, sollte die Durchflussrate so konstant wie
möglich gehalten werden.
Richtlinien für die Probenahme
Um beste Geräteleistung zu erzielen, wählen Sie einen guten, repräsentativen Probenahmepunkt.
Die Probe muss für das gesamte System repräsentativ sein.
26
Deutsch

So vermeiden Sie fehlerhafte Messungen:
• Entnehmen Sie Proben nur an Stellen, die sich in ausreichender Entfernung zu Punkten befinden,
an denen dem System chemische Zusätze hinzugefügt werden.
• Vergewissern Sie sich, dass die Proben ausreichend durchmischt sind.
• Vergewissern Sie sich, dass alle chemischen Reaktionen abgeschlossen sind.
Mechanische Montage
Montieren des Panel
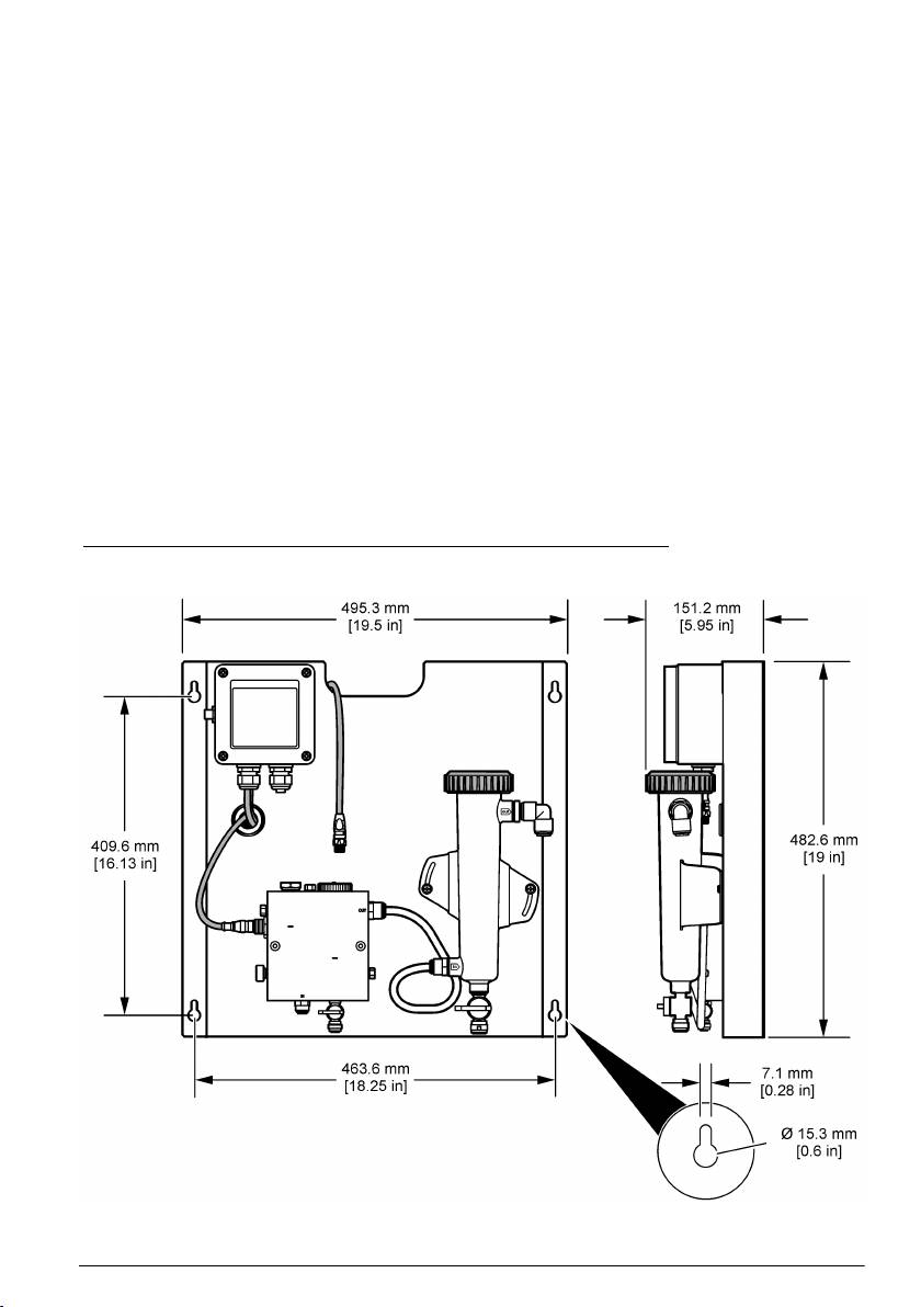
Abbildung 5 zeigt die Abmessungen für die Montage. Beachten Sie diese Abbildung, während Sie
die zur Montage des Panel erforderlichen Schritte durchführen.
1. Bringen Sie Montageschrauben an der Montagefläche an. Verwenden Sie Dübel (bei
Massivwänden) bzw. schrauben Sie die Schrauben direkt in die Wandelemente (bei
Ständerwänden). Lassen Sie zwischen den Schraubenköpfen und der Montagefläche genügend
Zwischenraum für das Panel.
2. Hängen Sie das Panel durch die entsprechenden Bohrungen an die Montageschrauben und
lassen Sie das Panel ein wenig absinken, sodass die Oberkante jeder Montagebohrung jeweils
auf einer Schraube aufsitzt.
3. Ziehen Sie die Schrauben fest, um das Panel an der Montagefläche zu befestigen.
4. Bringen Sie den Chlor- und pH-Sensor (optional) in den Durchflusszellen an. Informationen zum
Anbringen der Sensoren finden Sie im Sensor-Benutzerhandbuch.
Abbildung 5 Abmessungen des reagenzienfreien Chlor-Analysepanel
Deutsch 27

Elektrische Installation
Verkabelung des Panel
W A R N U N G
Potenzielle Stromschlaggefahr. Stellen Sie stets die Spannungsversorgung am Gerät ab, wenn
elektrische Anschlüsse durchgeführt werden.
Der Controller versorgt die Sensoren und das Digital-Gateway mit Strom.
1. Trennen Sie die Spannung vom Controller.
2. Schließen Sie die Kabel des pH-Sensors (optional) an das Gateway an. Informationen zum
Einbauen von Sensoren in die Durchflusszellen oder zum Anschließen des Sensors an das
Gateway finden Sie im Benutzerhandbuch des Sensors.
3. Schließen Sie den Chlorsensor an das Gateway an. Informationen zum Anschließen des Sensors
an das Gateway finden Sie im Benutzerhandbuch des Sensors.
Hinweis: Vor dem Versand des Panel wird das Chlor-Sensorkabel mit Klebeband neben der Sensorverbindung
an der Vorderseite des Geräts gesichert.
4. Schließen Sie den Controller über das 1 m lange Verbindungskabel, das im Lieferumfang des
Panel enthalten ist, an das Gateway an.
Montage der Schläuche
Montieren der Schlauchleitungen an das Panel
Beachten Sie bei allen Schlauchleitungen und Verschraubungen des Panel die korrekten
Maßangaben. Auf dem Weg durch das System muss der Durchmesser der Leitungen allmählich
größer werden, damit sich kein Gegendruck aufbauen kann. Abbildung 1 auf Seite 23 zeigt eine
Übersicht über die Anschlüsse der Schlauchleitungen.
1. Bringen Sie den Schlauch an den Verschraubungen für den Probenzulauf und Probenablauf an.
2. Achten Sie darauf, dass die Reinigungsöffnung der Chlor-Durchflusszelle geschlossen ist.
3. Achten Sie darauf, dass die Einzelmessungsöffnung der pH-Durchflusszelle geschlossen ist.
4. Öffnen Sie das Durchflussventil an der Probenleitung und lassen Sie Wasser durch das System
fließen.
5. Vergewissern Sie sich, dass keine Leckagen am Schlauch, an den Ventilverschraubungen oder
den Durchflusszellen auftreten.
6. Um die Bildung von Luftblasen zu minimieren, kann die pH-Durchflusszelle im Bereich zwischen
0º und 30º gekippt werden (siehe Abbildung 6).
28
Deutsch

Abbildung 6 Kippen der pH-Durchflusszelle
Betrieb
Benutzernavigation
Eine Beschreibung der Bedienung und Menüführung entnehmen Sie bitte der Controller-
Dokumentation.
Systemkonfiguration
Systemkonfiguration und Kalibrierung erfolgen über die Benutzeroberfläche des Controllers.
Informationen zum Konfigurieren oder Kalibrieren eines Sensors finden Sie im Benutzerhandbuch
des Sensors.
Ein sc-Modell-Controller muss an das Gateway angeschlossen werden.
1. Wählen Sie im Hauptmenü des Controllers die Option „Sensor Setup“ (Sensoreinstellung).
Das Menü „Chlorine Gateway (CGW) Setup“ (Chlor-Gateway einrichten) wird angezeigt.
2. Wählen Sie „Configure“ (Konfigurieren) und passen Sie die Einträge an. Bestätigen Sie die
einzelnen Einträge, um die Änderungen zu speichern, und kehren Sie zum Menü „Configure“
zurück.
Optionen Beschreibung
Name Messort Bearbeitet den Sensornamen.
Deutsch 29

Optionen Beschreibung
Select Parameter – Chlorine (Total or Free), pH
Wählt den zu konfigurierenden Parameter aus.
(optional), Temperature (optional) (Parameter wählen
Zum Konfigurieren des ausgewählten Parameters
– Chlor (gesamt oder frei), pH (optional), Temperatur
sind weitere Schritte erforderlich. Weitere
(optional))
Informationen finden Sie im Benutzerhandbuch
des Sensors.
Reset Defaults – Confirm to do the reset
Setzt alle Einstellungen wieder auf ihre
(Standardwerte wiederherstellen – Bestätigen, um
Standardwerte zurück.
Standardwerte wiederherzustellen)
Inbetriebnahme des Systems
Vergewissern Sie sich, dass alle mechanischen und elektrischen Aufgaben richtig durchgeführt
wurden und alle Schläuche korrekt angeschlossen sind, bevor Sie Wasser durch das System
hindurchfließen lassen.
1. Verbinden Sie den Controller mit der Stromversorgung.
Beim erstmaligen Einschalten des Controllers werden nacheinander mehrere Bildschirme
angezeigt, auf denen Sprache, Datumsformat sowie Datum und Uhrzeit angezeigt werden.
2. Legen Sie die Sprache fest und geben Sie Datum und Uhrzeit ein, falls dies nicht bereits
durchgeführt wurde. Weitere Informationen zum Einstellen dieser Optionen finden Sie im
Benutzerhandbuch des Controllers.
Der Controller sucht nach angeschlossenen Geräten.
3. Vergewissern Sie sich, dass der Reinigungs- und der Einzelmessungsanschluss geschlossen
sind. Öffnen Sie anschließend das Absperrventil in der Probenleitung, um den Wasserfluss durch
das System zu starten.
Die Chlor- und pH-Durchflusszellen füllen sich mit Wasser.
4. Vergewissern Sie sich, dass die Durchflusssensor-LED leuchtet. Wenn die LED nicht leuchtet,
justieren Sie das Durchflussregelventil, um einen stärkeren Durchfluss zu erzielen.
Die Durchflusssensor-LED leuchtet, solange der Durchfluss für einen ordnungsgemäßen Betrieb
der Sensoren ausreicht. Bei zu hohem Durchfluss leuchtet die LED möglicherweise nicht.
Vergewissern Sie sich, dass sich der Schwimmer in etwa an der Ausrichtungsmarke befindet.
5. Prüfen Sie Schläuche und Durchflusszellen auf Leckagen und Verstopfungen. Sperren Sie den
Fluss zum Panel ab, wenn Sie ein Problem erkennen, und nehmen Sie die erforderlichen
Reparaturen vor.
6. Wenn ein genügend starker Durchfluss durch das System vorhanden ist, setzen Sie die auf dem
Controller-Display angezeigten Warnungen zurück, indem Sie die vorgeschlagenen Maßnahmen
durchführen.
7. Drücken Sie die Taste HOME.
Der Haupt-Messbildschirm wird angezeigt. Auf diesem Bildschirm werden die Messwerte für
Chlor, Temperatur und pH (bei Anschluss eines pH-Sensors) angezeigt.
Wartung
G E F A H R
Mehrere Gefahren. Nur qualifiziertes Personal sollte die in diesem Kapitel des Dokuments
beschriebenen Aufgaben durchführen.
Austausch der Verschlauchung
Tauschen Sie die Schläuche mindestens einmal jährlich aus. Ersetzen Sie spröde, rissige oder
undichte Schläuche sofort. Ersetzen Sie alte, verfärbte, verunreinigte oder beschädigte Schläuche
durch Schläuche desselben Durchmessers und Typs (Teflon
®
oder PVDF).
30
Deutsch

Reinigen einer Sensor-Durchflusszelle
Reinigen Sie Durchflusszellen bei Bedarf, um Ablagerungen zu entfernen. Reinigen Sie
Durchflusszellen, die stark verschmutzt sind. Ersetzen Sie Durchflusszellen, wenn sie beschädigt
oder trübe werden oder sich verfärben. Durchflusszellen brauchen zum Reinigen nicht vom Panel
entfernt zu werden.
Hinweis: Chlor-Durchflusszellen dürfen nicht mit Tensiden oder anderen Reinigungsmitteln gereinigt werden.
1. Unterbrechen Sie den Zufluss zum Panel.
2. Entfernen Sie den Chlorsensor, und legen Sie den Sensor in einen Behälter, der mit einer Probe
des chlorierten Wassers gefüllt ist.
Hinweis: Trennen Sie den Sensor nicht von der Stromversorgung. Wenn die Stromversorgung vom
Chlorsensor entfernt wird, muss der Sensor vor der Verwendung aufbereitet und kalibriert werden.
Hinweis: Wird ein Sensor mit verbundenem Sensorkabel aus einer Durchflusszelle entfernt, so bewirkt dies
eine Änderung der Signalausgänge des Sensors. Weitere Informationen finden Sie im Benutzerhandbuch des
Controllers.
3. Spülen Sie die Durchflusszelle mit Wasser und beseitigen Sie Ablagerungen in der
Durchflusszelle mit einer weichen Bürste.
4. Spülen Sie die Durchflusszelle mit Wasser.
5. Wenn die Durchflusszelle noch nicht sauber genug ist, lassen Sie sie 10 bis 15 Minuten lang in
einer 1:3-Mischung aus 3 bis 5 %iger Wasserstoffperoxidlösung und Essig einweichen.
6. Spülen Sie die Durchflusszelle mit Wasser.
7. Installieren Sie den Sensor in der Durchflusszelle und starten Sie den Probendurchfluss.
Austauschen des Durchflusssensors
Unter normalen Bedingungen benötigt der Durchflusssensor keine regelmäßige Wartung und muss
auch nicht regelmäßig ausgetauscht werden. Wenn die LED-Durchflussanzeige jedoch nicht
aufleuchtet, obwohl sich der Schwimmer an oder über der Ausrichtungsmarke befindet und die
Stromversorgung eingeschaltet ist, muss der Sensor möglicherweise ausgetauscht werden. Zum
Ersetzen des Durchlusssensors führen Sie die folgenden illustrierten Schritte durch.
Hinweis: Zum Austauschen des Durchflusssensors ist es nicht erforderlich, den Chlorsensor zu entfernen, die
Durchflusszelle zu entleeren oder den Controller herunterzufahren.
Deutsch
31

32 Deutsch

Austausch der Durchflussregelventil-Baugruppe
Deutsch 33

Fehlersuche und Behebung
Ereignisprotokoll
Der Controller erstellt ein Ereignisprotokoll für jeden Sensor. Im Ereignisprotokoll wird eine Vielzahl
von Ereignissen gespeichert, die in den Geräten auftreten, so z. B. durchgeführte Kalibrierungen,
geänderte Kalibrierungseinstellungen usw. Nachfolgend finden Sie eine Liste der möglichen
Ereignisse. Das Ereignisprotokoll kann im CSV-Format exportiert werden. Informationen zum
Herunterladen der Protokolle finden Sie im Benutzerhandbuch des Controllers.
Tabelle 1 Ereignisprotokoll
Ereignis Beschreibung
Einschalten Die Stromversorgung wurde eingeschaltet.
Flash Failure (Flash-Fehler) Der externe Flash-Speicher ist ausgefallen oder beschädigt..
1pointpHCalibration_Start Beginn der 1-Punkt-Probenkalibrierung für pH.
1pointpHCalibration_End Ende der 1-Punkt-Probenkalibrierung für pH.
2pointpHCalibration_Start Beginn der 2-Punkt-Probenkalibrierung für pH.
2pointpHCalibration_End Ende der 2-Punkt-Probenkalibrierung für pH.
1pointBufferpHCalibration_Start Beginn der 1-Punkt-Pufferkalibrierung für pH.
1pointBufferpHCalibration_End Ende der 1-Punkt-Pufferkalibrierung für pH.
2pointBufferpHCalibration_Start Beginn der 2-Punkt-Pufferkalibrierung für pH.
2pointBufferpHCalibration_End Ende der 2-Punkt-Pufferkalibrierung für pH.
TempCalibration_Start Beginn der Temperaturkalibrierung.
TempCalibration_End Ende der Temperaturkalibrierung.
1pointChemZeroCL2_Start Beginn des chemischen 1-Punkt-Nullabgleichs für Chlor.
1pointChemZeroCL2_End Ende des chemischen 1-Punkt-Nullabgleichs für Chlor.
1pointElecZeroCL2_Start Beginn des elektrischen 1-Punkt-Nullabgleichs für Chlor.
1pointElecZeroCL2_End Ende des elektrischen 1-Punkt-Nullabgleichs für Chlor.
1pointProcessConc_Start Beginn der 1-Punkt-Prozesskonzentration für Chlor.
1pointProcessConc _End Ende der 1-Punkt-Prozesskonzentration für Chlor.
2pointChemCL2_Start Beginn der chemischen 2-Punkt-Kalibrierung für Chlor.
2pointChemCL2_End Ende der chemischen 2-Punkt-Kalibrierung für Chlor.
2pointElecCL2_Start Beginn der elektrischen 2-Punkt-Kalibrierung für Chlor.
2pointElecCL2_End Ende der elektrischen 2-Punkt-Kalibrierung für Chlor.
CL2CalSetDefault Die Chlorkalibrierung wurde auf den Standardwert zurückgesetzt..
pHCalSetDefault Die pH-Kalibrierungsdaten wurden auf die Standardwerte zurückgesetzt..
TempCalSetDefault Die Temperaturkalibrierungsdaten wurden auf die Standardwerte
zurückgesetzt..
AllCalSetDefault Alle Sensorkalibrierungsdaten wurden auf die Standardwerte zurückgesetzt..
CL2CalOptionChanged Die Kalibrierungsoption für Chlor wurde geändert..
pHCalOptionChanged Die Kalibrierungsoption für pH wurde geändert..
TempCalOptionChanged Die Temperaturkalibrierungsoption wurde geändert..
34 Deutsch

Tabelle 1 Ereignisprotokoll (fortgesetzt)
Ereignis Beschreibung
SensorConfChanged Die Sensorkonfiguration wurde geändert..
ResetCL2CalHist Die Cl2-Kalibrierhistorie wurde zurückgesetzt..
ResetpH CalHist Die pH-Kalibrierhistorie wurde zurückgesetzt..
ResetTemp CalHist Die Temperaturkalibrierhistorie wurde zurückgesetzt..
ResetAllSensorsCalHist Die gesamte Sensorkalibrierhistorie wurde zurückgesetzt..
ResetCL2Sensor Die Cl2-Kalibrierdaten (Sensortage, Kalibrierhistorie und Kalibrierdaten)
wurden auf ihre Standardwerte zurückgesetzt..
ResetpHSensor Die pH-Kalibrierdaten (Sensortage, Kalibrierhistorie und Kalibrierdaten) wurden
auf ihre Standardwerte zurückgesetzt..
ResetTempSensor Die Temperaturkalibrierdaten (Sensortage, Kalibrierhistorie und Kalibrierdaten)
wurden auf ihre Standardwerte zurückgesetzt..
ResetAllSensors Alle Sensorkalibrierdaten (Sensortage, Kalibrierhistorie und Kalibrierdaten)
wurden auf ihre Standardwerte zurückgesetzt..
Durchflusserkennung Der Status des Näherungssensors wurde geändert (ausreichender oder nicht
ausreichender Fluss)..
Fehlerliste
Fehler können aus verschiedenen Gründen auftreten. Der Sensorwert im Messbildschirm blinkt.
Wenn dies im Controller-Menü eingerichtet ist, werden alle Ausgänge gehalten. Zur Anzeige der
Sensorfehler drücken Sie die Taste MENU (Menü) und wählen „Sensor Diag“ (Sensordiagnose),
„Error List“ (Fehler). Nachfolgend finden Sie eine Liste der möglichen Fehlermeldungen.
Tabelle 2 Liste möglicher Sensorfehler
Fehler Beschreibung Lösung
CL CAL REQD (Cl-
Eine Chlor- und/oder pH-
Kalibrieren Sie den Chlor- und/oder pH-Sensor.
Kalibrierung
Kalibrierung ist erforderlich..
erforderlich)
Die Chlor- und/oder pH-Messung hat
sich so stark verändert, dass ein
Kalibrierungsalarm ausgelöst wurde.
Weitere Informationen finden Sie im
Handbuch zum Chlorsensor.
CL MAINT REQD (Cl-
Der Chlorsensor muss gewartet
Warten Sie den Sensor und wiederholen Sie
Wartung erforderlich)
werden..
dann die Kalibrierung, oder ersetzen Sie den
Sensor. Weitere Informationen finden Sie im
Die Steilheit beträgt weniger als
Handbuch zum Chlorsensor.
30 % oder mehr als 300 % des
Standardwertes..
Die Standardsteilheit beträgt
100 mV/ppm (100 %).
CL MAINT REQD (Cl-
Der Chlorsensor muss gewartet
Warten Sie den Sensor und wiederholen Sie
Wartung erforderlich)
werden..
dann die Kalibrierung, oder ersetzen Sie den
Sensor. Weitere Informationen finden Sie im
Der Offset-Wert ist zu hoch (mehr
Handbuch zum Chlorsensor.
als ±50 mV)..
PH TOO LOW (pH zu
Der pH-Wert liegt unter 0.. Kalibrieren Sie den pH-Sensor oder ersetzen Sie
tief)
ihn.
PH TOO HIGH (pH zu
Der pH-Wert liegt über 14..
hoch)
Deutsch 35

Tabelle 2 Liste möglicher Sensorfehler (fortgesetzt)
Fehler Beschreibung Lösung
PH SLOPE FAIL
Die Steilheit liegt außerhalb des
Reinigen Sie den pH-Sensor und wiederholen
(Fehler pH-Steilheit)
Bereichs -45 bis -65 mV/pH..
Sie dann die Kalibrierung mit einem frischen
Puffer oder einer frischen Probe, oder ersetzen
Sie den Sensor.
PH OFFSET FAIL
Der Offset-Wert liegt außerhalb des
Reinigen Sie den pH-Sensor und wiederholen
(Fehler pH-Offset)
Bereichs ±60 mV..
Sie dann die Kalibrierung mit einem frischen
Puffer oder einer frischen Probe, oder ersetzen
Sie den Sensor.
PH OFFSET FAIL
Der Offset-Wert liegt außerhalb des
Reinigen Sie den pH-Sensor, und ersetzen Sie
(Fehler pH-Offset)
Bereichs ±60 mV..
die Salzbrücke und die Standardküvettenlösung.
Wiederholen Sie die Kalibrierung mit einem
frischen Puffer oder einer frischen Probe, oder
ersetzen Sie den Sensor.
TEMP TOO LOW
Die Temperatur beträgt weniger als
Kalibrieren Sie die Temperatur oder ersetzen Sie
(Temperatur zu tief)
0 °C..
den pH-Sensor.
TEMP TOO HIGH
Die Temperatur beträgt mehr als
(Temperatur zu hoch)
100 °C..
TEMP FAIL (Fehler
Der Offset-Wert ist größer als 5,0 °C
Kalibrieren Sie die Temperatur oder ersetzen Sie
Temperatur)
oder kleiner als -5,0 °C..
den pH-Sensor.
NO FLOW (Kein
Der Durchfluss ist zu gering.. Erhöhen Sie den Durchfluss.
Durchfluss)
Warnungen
Eine Warnung hat keine Auswirkungen auf Menüs, Relais und Ausgänge. Ein Warnsymbol blinkt.
Zudem wird unten in der Messanzeige eine Meldung angezeigt. Zur Anzeige der Sensorwarnungen
drücken Sie die Taste MENU (Menü). Wählen Sie dann „Sensor Diag“ (Sensordiagnose), „Warning
List“ (Warnungen). Nachfolgend finden Sie eine Liste der möglichen Warnhinweise.
Tabelle 3 Liste möglicher Sensorwarnungen
Warnung Beschreibung Lösung
CL CAL RECD (Cl-
Eine Chlor- und/oder pH-Kalibrierung wird
Kalibrieren Sie den Chlor-
Kalibrierung empfohlen)
empfohlen..
und/oder pH-Sensor.
Die Chlor- und/oder pH-Messung hat sich so
stark verändert, dass eine
Kalibrierüberwachungswarnung ausgelöst
wurde. Weitere Informationen finden Sie in
den Benutzerhandbüchern der Sensoren.
CL CAL RECD (Cl-
Eine Chlor-Kalibrierung wird empfohlen..
Kalibrieren Sie den Chlorsensor.
Kalibrierung empfohlen)
Es sind keine Chlor-Kalibrierdaten verfügbar
(Sensor mit Standardkalibrierungsdaten).
PH CAL RECD (pH-
Eine pH-Kalibrierung wird empfohlen..
Kalibrieren Sie den pH-Sensor.
Kalibrierung empfohlen)
Es sind keine pH-Kalibrierdaten verfügbar
(Sensor mit Standardkalibrierungsdaten).
TEMP CAL RECD
Eine Temperaturkalibrierung wird empfohlen..
Kalibrieren Sie die Temperatur.
(Temperaturkalibrierung
Es sind keine Temperaturkalibrierdaten
empfohlen)
verfügbar (Sensor mit
Standardkalibrierungsdaten).
CL CAL TO DO (Cl-
Der Wert für „Sensor Days“ (Sensortage) für
Kalibrieren Sie den Chlorsensor.
Kalibrierung fällig)
den Chlorsensor ist größer als der Wert für
„Cal Reminder“ (Kalibriererinnerung)..
36 Deutsch

Tabelle 3 Liste möglicher Sensorwarnungen (fortgesetzt)
Warnung Beschreibung Lösung
PH CAL TO DO (pH-
Der Wert für „Sensor Days“ (Sensortage) für
Kalibrieren Sie den pH-Sensor.
Kalibrierung fällig)
den pH-Sensor ist größer als der Wert für
„Cal Reminder“ (Kalibriererinnerung)..
TEMP CAL TO DO
Der Wert für „Sensor Days“ (Sensortage) für
Kalibrieren Sie die Temperatur.
(Temperaturkalibrierung
den Temperatursensor ist größer als der Wert
fällig)
für „Cal Reminder“ (Kalibriererinnerung)..
CL MAINT RECD (Cl-
Eine Wartung des Chlorsensors wird
Warten Sie den Sensor und
Wartung empfohlen)
empfohlen..
wiederholen Sie dann die
Kalibrierung, oder ersetzen Sie
Die Steilheit beträgt 30 bis 45 % des
den Sensor.
Standardwertes bzw. 250 bis 300 % des
Standardwertes.
Die Standardsteilheit beträgt 100 mV/ppm
(100 %).
CL MAINT RECD (Cl-
Eine Wartung des Chlorsensors wird
Warten Sie den Sensor und
Wartung empfohlen)
empfohlen..
wiederholen Sie dann die
Kalibrierung, oder ersetzen Sie
Der Offset-Wert beträgt -50 mV bis 45 mV
den Sensor.
oder 45 mV bis 50 mV.
PH MAINT RECD (pH-
Eine Wartung des pH-Sensors wird
Reinigen Sie den pH-Sensor und
Wartung empfohlen)
empfohlen..
wiederholen Sie dann die
Kalibrierung mit einem frischen
Die Steilheit liegt außerhalb des Bereichs
Puffer oder einer frischen Probe,
-50 bis -61 mV/pH..
oder ersetzen Sie den Sensor.
PH MAINT RECD (pH-
Eine Wartung des pH-Sensors wird
Reinigen Sie den Sensor und
Wartung empfohlen)
empfohlen..
wiederholen Sie dann die
Kalibrierung oder tauschen Sie
Der Offset-Wert liegt außerhalb von ±45 mV,
den Sensor aus.
doch innerhalb von ±60 mV..
PH MAINT RECD (pH-
Eine Wartung des pH-Sensors wird
Reinigen Sie den pH-Sensor und
Wartung empfohlen)
empfohlen..
ersetzen Sie die Salzbrücke und
die Standardküvettenlösung.
Der Offset-Wert liegt außerhalb von ±45 mV,
Wiederholen Sie dann die
doch innerhalb von ±60 mV..
Kalibrierung oder ersetzen Sie
den Sensor.
T MAINT RECD
Der Temperatur-Offset-Wert liegt außerhalb
Kalibrieren Sie die Temperatur.
(Temperaturwartung
von ±3 °C, doch innerhalb von ±5 °C..
empfohlen)
Ersatzteile und Zubehör
W A R N U N G
Verletzungsgefahr. Die Verwendung nicht zugelassener Teile kann zur Verletzung von Personen, zu
Schäden am Messgerät oder zu Fehlfunktionen der Ausrüstung führen. Die Ersatzteile in diesem
Abschnitt sind vom Hersteller zugelassen.
Hinweis: Produkt- und Artikelnummern können für einige Verkaufsgebiete abweichen. Wenden Sie sich an den
zuständigen Distributor oder schlagen Sie die Kontaktinformationen auf der Webseite des Unternehmens nach.
Teile
Beschreibung Bestellnr.
Kabel, Gateway an Controller, 1 m 6122400
Kabelbaugruppe, 4-polig, geschirmt, Durchflusssensor, 2 m 9160900
Deutsch 37

Ersatzteile und Zubehör (fortgesetzt)
Beschreibung Bestellnr.
Kabelbaugruppe, 5-polig, geschirmt, M12, Chlorsensor, 1 m 9160300
Zöllig:
9159200 (1/4 Zoll)
Verschraubung, Einlass für Chlor-Durchflusszelle
Metrisch:
9196400 (6 mm)
Zöllig:
Verschraubung, Schnellkupplung, Ablauföffnung für Chlor-Durchflusszelle oder
9159300 (3/8 Zoll)
Zulauföffnung für pH-Durchflusszelle
Metrisch:
9196500 (10 mm)
Zöllig:
9196900 (1/2 Zoll)
Verschraubung, Winkelstück, Ablauföffnung für pH-Durchflusszelle
Metrisch:
9197000 (12 mm)
Schwimmer, Durchflusssensor 9159100
Zöllig: 9198400
Durchflusszellen-Baugruppe, Chlor
Metrisch: 9198500
Zöllig: 9180200
Durchflusszellen-Baugruppe, pH-Kombination
Metrisch: 9180400
Durchflusszellen-Baugruppe, pHD
Zöllig: 9180100
Einschl. Dichtungsring
Metrisch: 9180300
Durchflusszelle, nur Gehäuse (pH) 9159700
Durchflusszellenblock, Chlor 9158900
Durchflussregelventil 9159000
Durchflussregelventil-Satz 9198600
Durchflusssensor 9160800
Gateway, digital 9180500
Verschlussring, Chlor-Durchflusszelle 9196200
Verschlussring, pH-Durchflusszelle 60F2032-001
O-Ring, Durchflussregelventil (x2) (#2-108, Viton) 9159600
O-Ring, pH-Durchflusszelle (#2-228, Viton) 5H1223
O-Ring, Dichtungsnabe, Chlor-Durchflusszelle (#2-123, Viton) 9196300
O-Ring, Spaltring (M25 x 2,5) 9181800
Verschluss, Chlor-Durchflusszelle, 1/2 Zoll 9159500
Schraube, Chlor-Durchflusszelle (x2) (10-32 x 1,75, große Kreuzschlitz-
4422200
Flachschraube)
Schraube, pH-Durchflusszelle (x2) (10-32 x 0,5, große Kreuzschlitz-Flachschraube) 561211
Dichtungseinsatz, pH-Durchflusszelle 9198000
Dichtungsnabe, Chlor-Durchflusszelle 9196100
Dichtungsnabe, pH-Kombi-Sensor, 3/4 Zoll 9159800
Dichtungsnabe, pHD-Durchflusszelle, 1 Zoll 60F2021-001
38 Deutsch

Ersatzteile und Zubehör (fortgesetzt)
Beschreibung Bestellnr.
Spaltring, Chlor-Durchflusszelle 9181700
Schlauch, Probenstrom, 1/4 Zoll x 2 m 4743800
Schlauch, Probenstrom, 3/8 Zoll x 18 Zoll 9198100
Schlauch, Ablauf, 1/2 Zoll x 2 m 9198200
Ventil, Einzelmessungsanschluss 9005300
Ventil, Schnellkupplung, Reinigungsanschluss 6166300
Zubehör
Beschreibung Bestellnr.
Säuerungssatz LZY051
Druckregler, Probenaufbereitungssatz 9159900
Deutsch 39

Sommario
Specifiche a pagina 40 Manutenzione a pagina 49
Informazioni generali a pagina 40 Individuazione ed eliminazione dei guasti a pagina 53
Installazione a pagina 45 Parti di ricambio e accessori a pagina 56
Funzionamento a pagina 48
Specifiche
I dati tecnici sono soggetti a modifica senza preavviso.
Dati tecnici Dettagli
Descrizione dei componenti Pannello analizzatore amperometrico per cloro senza
reagenti, con sensore di cloro, sensore di flusso,
sensore opzionale per pH (pHD), celle a flusso,
controller sc e gateway digitale
Temperatura di funzionamento Da 0 a 45 °C (da 0 a 113 °F)
Temperatura di stoccaggio (solo pannello) Da -20 a 60 °C (da -4 a 149 °F)
Requisiti di potenza 12 V CC ± 10%, 100 mA max. (fornita dal controller sc)
Dimensioni pannello (L x A x P) 48.3 x 49.5 x 15.1 cm (19 x 19.5 x 5.95 poll.) con
componenti del pannello installati
Peso Circa 5,4 kg (12 lb) (solo pannello e componenti
montati sul pannello)
Portata 30–50 L/ora (7,9–13,2 gal/ora)
Ottimale: 40 L/h (10,5 gal/h)
Piattaforma controller Modelli controller sc
Informazioni generali
In nessun caso, il produttore potrà essere ritenuto responsabile in caso di danni diretti, indiretti,
particolari, causali o consequenziali per qualsiasi difetto o omissione relativa al presente manuale. Il
produttore si riserva il diritto di apportare eventuali modifiche al presente manuale e ai prodotti ivi
descritti in qualsiasi momento senza alcuna notifica o obbligo. Le edizioni riviste sono presenti nel
sito Web del produttore.
Informazioni sulla sicurezza
A V V I S O
Il produttore non può essere ritenuto responsabile di danni causati dal cattivo uso di questo prodotto, inclusi,
senza limitazioni, danni diretti, accidentali e consequenziali e declina la responsabilità di tali danni nella massima
misura permessa dalla legge. La responsabilità relativa all'identificazione dei rischi critici dell'applicazione e
all'installazione di meccanismi appropriati per proteggere i processi in caso di eventuale malfunzionamento
dell'apparecchiatura compete unicamente all'utilizzatore.
Prima di disimballare, installare o utilizzare l’apparecchio, si prega di leggere l’intero manuale. Si
raccomanda di leggere con attenzione e rispettare le istruzioni riguardanti possibili pericoli o note
cautelative. La non osservanza di tali indicazioni potrebbe comportare lesioni gravi dell'operatore o
danni all'apparecchio.
Assicurarsi che la protezione fornita da questa apparecchiatura non sia danneggiata. Non utilizzare o
installare questa apparecchiatura in modo diverso da quanto specificato nel presente manuale.
40
Italiano

