Hach-Lange POLYMETRON 9610 sc SiO2 Operations – страница 16
Инструкция к Hach-Lange POLYMETRON 9610 sc SiO2 Operations

Подключение к реле
Для подключения устройства обратитесь к Схема соединений
на стр. 297
. Обратитесь к Технические характеристики на стр. 286,
О П А С Н О С Т Ь
чтобы получить характеристики сопротивления нагрузки и разводки
Опасность поражения электрическим током. Не прокладывать
кабелей.
вместе высоковольтные и низковольтные провода. Убедитесь, что
Примечание: Выходы 4-20 мА не могут использоваться для подачи
все релейные соединения рассчитаны на работу при высоком
питания на 2-проводной (с питанием от контура) преобразователь.
напряжении переменного тока или все соединения могут работать
при низком напряжении постоянного тока.
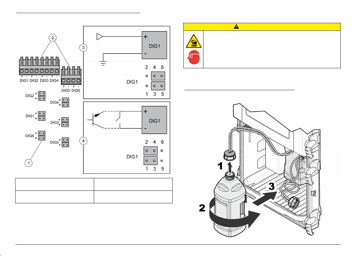
Подключение к цифровым входам
Анализатор может получать цифровой сигнал от внешнего
О С Т О Р О Ж Н О
устройства, например, расходометра, чтобы останавливать
Опасность возникновения пожара. Нагрузка реле должна быть
измерения при остановке потока. Каждый дискретный ввод
резистивной. Ток через реле должен обязательно ограничиваться
используется для включения/отключения соответствующего канала
внешним предохранителем или размыкателем. Учитывайте
проб.
номиналы реле из раздела "Технические характеристики".
Каждый цифровой вход можно настроить как изолированный
О С Т О Р О Ж Н О
цифровой ТТЛ вход или как вход типа реле/открытый коллектор.
См. Рисунок 15. По умолчанию перемычки установлены для
Опасность воздействия химических реагентов. Необходимо
изолированного цифрового ТТЛ входа. Для подключения
соблюдать правила техники безопасности и использовать
индивидуальные средства защиты, соответствующие
устройства обратитесь к Схема соединений на стр. 297.
используемым химикатам. При составлении протоколов по
технике безопасности воспользуйтесь действующими паспортами
безопасности / паспортами безопасности материалов
(MSDS/SDS).
У В Е Д О М Л Е Н И Е
Не рекомендуется использовать провод диаметром менее 18 AWG.
В анализатор установлены реле для сигнала оповещения о
концентрации пробы (
2x), системного оповещения анализатора и
отключения системы анализатора. Для подключения устройства см.
Схема соединений на стр. 297 (NO = нормально открытый, COM =
общий, NC = нормально закрытый).
Подключение к выходам на 4–20 мА
Для подключения выходов 4–20 мА используйте экранированную
витую пару. Подключите экран к записывающему устройству или к
анализатору. Не подключайте экран с обоих концов кабеля. При
использовании неэкранированного кабеля может испускаться
радиочастотное излучение или уровень восприимчивости может
оказаться выше допустимого.
Русский 301

Рисунок 15 Изолированный цифровой ТТЛ вход..
Установка бутылок анализатора
О С Т О Р О Ж Н О
Опасность воздействия химических реагентов. Необходимо
соблюдать правила техники безопасности и использовать
индивидуальные средства защиты, соответствующие
используемым химикатам. При составлении протоколов по
технике безопасности воспользуйтесь действующими паспортами
безопасности / паспортами безопасности материалов
(MSDS/SDS).
Для установки бутылок в Рисунок 16анализатор
анализатор.
Определите все бутылки и закройте каждую соответствующим
колпачком.
Рисунок 16 Установка бутылки анализатора
1 Перемычка (12 шт.) 3 Изолированный цифровой ТТЛ
вход.
2 Разъемы цифрового входа 4 Вход типа реле/открытого
коллектора
Установка дополнительных модулей
Модули можно добавлять для создания дополнительных выходов,
реле или вариантов подключения. Подробнее см. в документации,
поставляемой вместе с модулем.
302 Русский

Установка магнитной мешалки
Рисунок 18 Установка магнитной мешалки
В набор установки входит магнитная мешалка. Перед установкой
снимите крышку вентиляционной трубы, саму трубу и крышку
колориметра. См. Рисунок 17. Установите магнитную мешалку в
кювету колориметра как показано в иллюстрированной инструкции.
См. Рисунок 18.
Рисунок 17 Снятие крышки колориметра и вентиляционной
трубы
Подготовка к использованию
Установка на месте закончена. Для настройки анализатора перед
первым использованием обратитесь к инструкции по эксплуатации.
Русский 303

İçindekiler
Tablo 1 Genel özellikler (devamı)
Teknik Özellik Ayrıntılar
Teknik Özellikler sayfa 304
Maksimum yükseklik 2000 m (6560 fit)
Genel Bilgiler sayfa 305
4-20 mA çıkışlar Dört adet; yük empedansı: maksimum 600 Ω
Kurulum sayfa 308
Bağlantı: 22 ila 16 AWG kablo, 22 ila 20 AWG
önerilir, bükümlü çift blendajlı kablo
Teknik Özellikler
Alarm röle çıkışları Dört adet; tip: güç verilmeyen SPDT röleleri, her biri
5 A dirençli, maksimum 240 VAC
Teknik özellikler, önceden bildirilmeksizin değiştirilebilir.
Bağlantı: 18 ila 16 AWG kablo, 18 AWG bükümlü
Tablo 1 Genel özellikler
kablo önerilir
Teknik Özellik Ayrıntılar
Dijital girişler Dört adet; bağlantı: 22 ila 16 AWG kablo, 22 ila
20 AWG bükümlü kablo (ayrı DC voltaj girişi veya
Boyutlar (G x D x Y) 452 x 360 x 804 mm (17,8 x 14,2 x 31,7 inç)
açık kolektör/röle teması muhafaza girişi) önerilir
Muhafaza Derece: NEMA 4x/IP65
Sigortalar Giriş gücü—AC: T 1,6 A, 250 VAC; DC: T 6,3 A,
Malzeme: PC/ABS kasa, PC kapak, PC menteşeler
250 VAC
ve mandallar, 316 SST donanım
Çıkış gücü—AC: T 5,0 A, 250 VAC; DC: T 1,6 A,
Yalnızca iç mekanda kullanım içindir. Doğrudan gün
250 VAC
ışığından uzak tutun.
Alarm röle çıkışları: T 5,0 A, 250 V
Ağırlık Reaktifler ve standartlar olmadan 20 kg (45 lb),
Bağlantı parçaları Numune hattı ve numune baypas tahliyesi: plastik
reaktiflerle birlikte 36,3 kg (80 lb)
hortumlar için iterek takılan 6 mm dış çaplı bağlantı
parçası
Montaj Duvar, panel veya masa
Hava purjörü hava girişi: plastik hortumlar için iterek
Koruma sınıfı I
takılan 6 mm dış çaplı bağlantı parçası
Kirlilik derecesi/tesisat
2/II
Kimyasal ve tahliye kapları: yumuşak plastik
kategorisi
hortumlar için kayarak takılan 11 mm (7/16 inç) iç
çaplı bağlantı parçası
Güç gereksinimleri AC: 100-240 VAC, 50/60 Hz
Numune basıncı, akış
Basınç: ön ayarlı basınç regülatörüne 2-87 psi
Cihaz: 0,5 A nominal, 2,6 A maksimum
hızı ve sıcaklık
Akış hızı: 55-300 mL/dakika
Bağlantı: 18 ila 16 AWG kablo, 18 AWG bükümlü
kablo önerilir
Sıcaklık: 5 ila 50°C (41 ila 122°F)
Çalışma sıcaklığı 5 ila 45°C (41 ila 113°F)
Numune akışı sayısı 1, 2, 4 veya 6; programlanabilir sıra
Çalışma nem oranı %5 ila %95 yoğuşmasız
Hava purjörü (isteğe
0,425 m
3
/saat (15 scfh
1
), kaliteli cihaz havası
bağlı)
Depolama sıcaklığı –20 ila 60°C (–4 ila 140°F)
Sertifikalar UL ve CSA standartları onaylı ETL, CE işaretli
304 Türkçe

1
standart fit küp/saat
açıkladığı ürünlerde, önceden haber vermeden ya da herhangi bir
zorunluluğa sahip olmadan değişiklik yapma hakkını saklı tutmaktadır.
Tablo 2 Ölçüm teknik özellikleri
Güncellenmiş basımlara, üreticinin web sitesinden ulaşılabilir.
Teknik Özellik Ayrıntılar
Güvenlik bilgileri
Işık kaynağı 1M Sınıfı LED (ışık yayan diyot), 810 nm pik dalga
boyu
B İ L G İ
Üretici, doğrudan, arızi ve sonuç olarak ortaya çıkan zararlar dahil olacak ancak
Ölçüm aralığı 0,5-5000 µg/L, SiO
2
bunlarla sınırlı olmayacak şekilde bu ürünün hatalı uygulanması veya
Doğruluk
1
0-500 µg/L: %±1 veya ±1 µg/L (hangi değer daha
kullanılmasından kaynaklanan hiçbir zarardan sorumlu değildir ve yürürlükteki
büyükse), 500-5000 µg/L: %±5
yasaların izin verdiği ölçüde bu tür zararları reddeder. Kritik uygulama risklerini
tanımlamak ve olası bir cihaz arızasında prosesleri koruyabilmek için uygun
Kesinlik/Tekrar Edilebilirlik ±0,5 ppb veya %±1 (hangi değer daha büyükse)
mekanizmaların bulunmasını sağlamak yalnızca kullanıcının sorumluluğundadır.
Tepki süresi 25°C'de (77°F) genellikle 9,5 dakika, sıcaklığa göre
Bu cihazı paketinden çıkarmadan, kurmadan veya çalıştırmadan önce
değişir
lütfen bu kılavuzun tümünü okuyun. Tehlikeler ve uyarılarla ilgili tüm
ifadeleri dikkate alın. Aksi halde, kullanıcının ciddi şekilde yaralanması
Stabilizasyon süresi İlk çalıştırmadan veya yıllık bakımdan sonra:
ya da ekipmanın hasar görmesi söz konusu olabilir.
5 ölçüm döngüsü
Beklemeden sonra: 1 ölçüm döngüsü
Bu cihazın korumasının bozulmadığından emin olun. Cihazı bu
kılavuzda belirtilenden başka bir şekilde kullanmayın veya kurmayın.
Kalibrasyondan sonra: 0 ölçüm döngüsü
Kalibrasyon süresi Eğim kalibrasyonu: 10 dakika
Tehlikeyle ilgili bilgilerin kullanılması
Sıfır kalibrasyonu: 10 dakika
T E H L İ K E
En düşük algılama limiti 0,5 µg/L
Olması muhtemel veya yakın bir zamanda olmasından korkulan, engellenmediği
Reaktif kullanımı Kullanım: 15 dakikalık döngü süresi ile her 90 günde
takdirde ölüm veya ciddi yaralanmaya neden olacak tehlikeli bir durumu belirtir.
bir her reaktiften 2 L
Konteyner: 2 L, polipropilen kapaklı PETE
U Y A R I
Önlenmemesi durumunda ciddi yaralanmalar veya ölümle sonuçlanabilecek
Standart kullanımı Kullanım: Her 10 kalibrasyonda bir 2 L standart
potansiyel veya yakın bir zamanda meydana gelmesi beklenen tehlikeli
Konteyner: 2 L, polipropilen kapaklı PETE
durumların mevcut olduğunu gösterir.
1
Doğruluk, yalnızca Hach tarafından temin edilen reaktiflerin kullanımına
D İ K K A T
dayanmaktadır.
Daha küçük veya orta derecede yaralanmalarla sonuçlanabilecek potansiyel bir
tehlikeli durumu gösterir.
Genel Bilgiler
B İ L G İ
Hiçbir durumda üretici, bu kılavuzdaki herhangi bir hata ya da eksiklikten
Engellenmediği takdirde cihazda hasara neden olabilecek bir durumu belirtir.
kaynaklanan doğrudan, dolaylı, özel, tesadüfi ya da sonuçta meydana
Özel olarak vurgulanması gereken bilgiler.
gelen hasarlardan sorumlu olmayacaktır. Üretici, bu kılavuzda ve
Türkçe 305

Önlem etiketleri
Bu simge, güçlü aşındırıcı veya diğer tehlikeli maddelerin varlığını ve
kimyasal maddelerden zarar görme tehlikesi olduğunu gösterir.
Cihazın üzerindeki tüm etiketleri okuyun. Talimatlara uyulmadığı takdirde
Sadece kimyasal maddeler konusunda yetkin ve eğitim görmüş kişiler
yaralanma ya da cihazda hasar meydana gelebilir. Cihazın üzerinde
bu maddelerle ilgili işlem yapabilir veya ekipmanla ilgili kimyasal
bulunan semboller, kılavuzda tehlike veya dikkat ifadesiyle yer alır.
dağıtım sistemlerinde bakım işlemleri gerçekleştirebilir.
Not: Geri dönüşüm için iade etmeden önce lütfen kullanım süresi dolmuş
Bu, güvenlik uyarı sembolüdür. Olası yaralanmaları önlemek için bu
cihazın, üretici tarafından verilen elektrikli aksesuarların ve tüm yardımcı
sembolü izleyen tüm güvenlik mesajlarına uyun. Aygıt üzerinde ise,
bileşenlerin uygun şekilde bertaraf edilebilmesi için nasıl iade edilmesi gerektiği
çalıştırma veya güvenlik bilgileri için kullanım kılavuzuna başvurun.
konusunda gerekli talimatları almak üzere üretici veya tedarikçi ile irtibata
geçiniz.
Bu simge koruyucu gözlük giyilmesi gerektiğini belirtir.
Bu simgeyi taşıyan elektrikli cihazlar, 12 Ağustos 2005 tarihinden
sonra Avrupa evsel atık toplama sistemlerine atılamaz. Avrupa'daki
yerel ve ulusal yönetmeliklere (2002/96/EC sayılı AB Direktifi) göre
Avrupa’daki elektrikli cihaz kullanıcıları, eski veya kullanım süresi
dolmuş cihazları bertaraf edilmesi için herhangi bir ücret ödemeden
üreticiye göndermelidir.
Bu simge kimyasal maddelerden zarar görme tehlikesi olduğunu
gösterir ve yalnızca uzman ve kimyasal maddelerle çalışmak üzere
eğitilmiş kimselerin kimyasal maddelerle çalışması ya da ekipmanın
Belgelendirme
kimyasal salım sistemi üzerinde bakım çalışması yapması gerektiğini
belirtir.
Kanada Radyo Girişimine Neden Olan Cihaz Yönetmeliği, IECS-003,
Bu sembol, elektrik çarpması ve/veya elektrik çarpması sonucu ölüm
A Sınıfı:
riskinin bulunduğunu gösterir.
Destekleyen test kayıtları, üreticide bulunmaktadır.
Bu A Sınıfı dijital cihaz, Kanada Girişime Neden Olan Cihaz
Yönetmeliğinin tüm şartlarını karşılamaktadır.
Bu simge işaretli parçanın sıcak olabileceğini ve parçaya dokunurken
Cet appareil numérique de classe A répond à toutes les exigences de la
dikkatli olunması gerektiğini işaret eder.
réglementation canadienne sur les équipements provoquant des
interférences.
Bu sembol, yangın riski bulunduğunu gösterir.
FCC PART 15, "A" Sınıfı Limitleri
Destekleyen test kayıtları, üreticide bulunmaktadır. Bu cihaz, FCC
Kurallarının Bölüm 15'ine uygundur. Çalıştırma için aşağıdaki koşullar
için geçerlidir:
1. Cihaz, zararlı girişime neden olmaz.
2. Bu cihaz, istenmeyen işleyişe yol açabilecek parazit de dahil olmak
üzere, alınan her türlü paraziti kabul edecektir.
Bu cihaz üzerinde, uyumluluktan sorumlu tarafın açıkça onaylamadığı
her türlü değişiklik, kullanıcının cihazı çalıştırma yetkisini geçersiz
kılacaktır. Bu cihaz, test edilmiş ve FCC kuralları, Bölüm 15 uyarınca A
Sınıfı bir dijital cihaz limitlerini karşıladığı tespit edilmiştir. Bu limitler,
306 Türkçe

ekipmanın bir işyeri ortamında çalıştırılması durumunda zararlı
Şekil 1 Ürüne genel bakış
parazitlere karşı uygun koruma sağlayacak şekilde tasarlanmıştır. Bu
cihaz, telsiz frekansı enerjisi üretir, kullanır ve yayabilir ve kullanım
kılavuzuna uygun olarak kurulmazsa ve kullanılmazsa telsiz iletişimlerine
zararlı parazitlere neden olabilir. Bu cihazın bir konut alanında
kullanılması zararlı parazitlere neden olabilir. Böyle bir durumda
kullanıcının masrafları kendisine ait olmak üzere bu parazitleri
düzeltmesi gerekecektir. Parazit sorunlarını azaltmak için aşağıdaki
teknikler kullanılabilir:
1. Parazitin kaynağı olup olmadığını öğrenmek için bu ekipmanın güç
kaynağı bağlantısını kesin.
2. Eğer cihaz, parazit sorunu yaşayan cihazla aynı prize bağlıysa,
cihazı farklı bir prize takın.
3. Cihazı parazit alan cihazdan uzaklaştırın.
4. Cihazın parazite neden olduğu cihazın alıcı antenini başka bir yere
taşıyın.
5. Yukarıda sıralanan önlemleri birlikte uygulamayı deneyin.
Ürüne genel bakış
T E H L İ K E
Kimyasal veya biyolojik tehlikeler. Bu cihaz, kamu sağlığı, kamu
güvenliği, yiyecek ve içecek üretimi veya işlemesi ile ilgili yasal
sınırlamaların ve takip gereksinimlerinin söz konusu olduğu bir arıtma
işlemi ve/veya kimyasal besleme sistemini izlemek için kullanılıyorsa,
1 Üst ve alt kapaklar 5 Ekran ve tuş takımı 9 Analitik paneli
yürürlükteki tüm yönetmelikler hakkında bilgi sahibi olmak ve bunlara
uymak ve cihazın arızalanması durumunda yürürlükteki yönetmeliklere
2 Huni kapağı 6 SD kart yuvası 10 Reaktif şişesi tepsisi
uyum için ilgili alanda yeterli ve uygun mekanizmaların bulunmasını
3 Rasgele numune giriş
7 Güç düğmesi 11 Kolorimetre kapağı
sağlamak bu cihazın kullanıcısının sorumluluğundadır.
hunisi
Analiz cihazı, santral suları ve endüstriyel sularda bulunan silis
4 Durum gösterge ışığı 8 Güç LED'i
12 Rasgele numune
konsantrasyonunu ölçer. Kimyasal analiz, Standart Yöntemlerden
(açık=analiz cihazı
valfi
*
uyarlanmış olan Heteropoli Mavi (molibden) Yöntemini kullanır.
açık)
analiz cihazı
genel bakış için bkz. Şekil 1. Daha rahat erişim sağlamak
için kapaklar kolayca çıkarılabilir. Bkz. Şekil 2.
*
Standard Methods for the Examination of Water and Wastewater, 21. Basım, 2005, Centennial Edition, APHA, AWWA, WEF, sf. 4–167, 4500-
SiO
2
D.
Türkçe 307

Şekil 2 Kapak çıkarma
U Y A R I
Yaralanma tehlikesi. Cihazlar veya bileşenler ağırdır. Kurarken veya
taşırken yardım alın.
U Y A R I
Yaralanma tehlikesi. Cihaz ağırdır. Cihazın emniyetli çalışması için,
cihazın bir duvara, masaya veya zemine güvenli bir şekilde
yerleştirildiğinden emin olun.
Analiz cihazını iç mekanda, tehlikesiz ortama kurun. Montaj donanımı ile
birlikte verilen belgelere başvurun.
Su tesisatı
T E H L İ K E
Yangın tehlikesi. Bu ürün yanıcı sıvılarla kullanılamaz.
B İ L G İ
Tüm tesisat tamamlanana kadar reaktifleri yüklemeyin.
Kurulum
Belirtilen hortum boyutunu kullandığınızdan emin olun.
T E H L İ K E
Erişim portları tesisatı
Birden fazla tehlike. Belgenin bu bölümünde açıklanan görevleri
Tesisat bağlantılarını tesisat erişim portlarından yapın. Bkz. Şekil 3,
yalnızca yetkili personel gerçekleştirmelidir.
Şekil 4
veya Şekil 5. Muhafaza derecesini korumak için tapaların
kullanılmayan tesisat portlarına takıldığından emin olun.
Harici bir hava purjörü kullanıyorsanız, fan filtresini çıkarmak ve yerine
Mekanik kurulum
tapa takmak için hava purjörü kiti ile birlikte gelen talimatlara başvurun.
Hava purjörünü etkinleştirme ile ilgili talimatlar için kullanım kılavuzuna
T E H L İ K E
başvurun. Hava purjörü kitinin parça numarası için bakım ve sorun
giderme kılavuzuna başvurun.
Yaralanma veya ölüm riski. Duvar montajının aygıt ağırlığının 4 katına
kadar taşıyabildiğinden emin olun.
308 Türkçe

Şekil 3 Bir veya iki numune akışı için portlar
Şekil 4 Dört numune akışı için portlar
1 Kullanılmıyor 5 Numune 2 baypas
9 Numune 1 girişi
tahliyesi
2 Numune 4 baypas
6 Numune 1 baypas
10 Numune 2 girişi
1 Tahliye ağzı-açık
4 Hava purjörü girişi
7 Dökülmeler veya
tahliyesi
tahliyesi
tutun
(isteğe bağlı)
sızıntılar için tahliye
kabı
3 Numune 3 baypas
7 Kimyasal tahliyesi 11 Numune 3 girişi
tahliyesi
2 Kullanılmıyor 5 Numune 1 baypas
8 Numune 1 girişi
tahliyesi
4 Hava purjörü girişi
8 Dökülmeler veya
12 Numune 4 girişi
(isteğe bağlı)
sızıntılar için tahliye
3 Yalnızca iki numune
6 Kimyasal tahliyesi 9 Yalnızca iki numune
kabı
akışlı analiz
akışlı analiz
cihazları: Numune
cihazları: Numune
2 baypas tahliyesi
2 girişi
Türkçe 309

Şekil 5 Altı numune akışı için portlar
B İ L G İ
Tahliye hatlarını diğer hatlara bağlamayın, aksi halde analiz cihazı karşı basınç
ve hasar oluşabilir. Tahliye hatlarının hava aldığından emin olun.
B İ L G İ
analiz cihazı karşı basınç ve hasar oluşmasını önlemek için analiz cihazının
tesiste kullanılan tahliyelerden yüksekte olduğundan ve tahliye hattının sabit bir
şekilde aşağı doğru eğimli olduğundan emin olun.
B İ L G İ
Basınç regülatörü sabit bir basınca ayarlanmıştır ve değiştirilemez.
Tahliye ve numune-analiz cihazı tesisatını kurmak için temin edilen
hortumu (6 mm), filtreli Y süzgecini ve basınç regülatörünü kullanın. Bkz.
Şekil 6. Tesisatın erişim portlarına giden numune hattı hortumu 6 mm
olmalıdır. 1/4 inç'lik hortum valfe/y süzgecine giden numune hattı için
1 Numune 6 baypas
6 Numune 2 baypas
11 Numune 2 girişi
kullanılabilir fakat analiz cihazının tesisat erişim portlarına giden hat için
tahliyesi
tahliyesi
kullanılamaz.
2 Numune 5 baypas
7 Numune 1 baypas
12 Hava purjörü girişi
tahliyesi
tahliyesi
(isteğe bağlı)
3 Numune 4 baypas
8 Kimyasal tahliyesi 13 Numune 3 girişi
tahliyesi
4 Numune 6 girişi 9 Dökülmeler veya
14 Numune 4 girişi
sızıntılar için tahliye
kabı
5 Numune 3 baypas
10 Numune 1 girişi 15 Numune 5 girişi
tahliyesi
Numune ve tahliye hattı tesisatı
D İ K K A T
Patlama tehlikesi. Yalnızca üretici tarafından temin edilen regülatörü
kullanın.
D İ K K A T
Kimyasal maddelere maruz kalma tehlikesi. Kimyasal maddeleri ve
atıkları, yerel, bölgesel ve ulusal yönetmeliklere uygun şekilde atın.
310 Türkçe

Şekil 6 Numune ve tahliye hatları
• Kimyasal katkı noktalarının proses yoluna yeterince uzak olduğu
yerlerden numune alın.
•
Numunenin yeteri kadar karışmış olduğundan emin olun.
• Kimyasal tepkimelerin tümünün tam olduğundan emin olun.
Numune akış bağlantısı
Hava kabarcıklarının ve dipteki tortuların sebep olduğu enterferansı en
az düzeye indirmek için her bir numune hattını daha büyük bir proses
borusunun merkezine kurun. Şekil 7, iyi ve kötü kurulum örneklerini
göstermektedir.
Dipte tortu birikmesini önlemek için numune hatlarının mümkün
olduğunca kısa olmasını sağlayın. Tortu, numunedeki analitin bir kısmını
absorbe edip düşük değerlere sebep olabilir. Tortu, daha sonra analiti
serbest bırakıp yüksek değerlere sebep olabilir. Tortunun yol açtığı bu
değişim, numunedeki analit konsantrasyonu arttığında veya azaldığında
tepkinin geç alınmasına neden olur.
Şekil 7 Numune alma yöntemleri
1 Numune girişi (tek
4 Ayarlanamaz basınç
7 Tahliye kabı
akış)
regülatörü (analiz
cihazını korumak için
4 psi'ye ayarlı)
2 Kapatma valfi 5 Numune baypas
tahliyesi
3 Filtreli Y süzgeci 6 Kimyasal tahliyesi
1 Hava 2 Numune akışı
Numune hattı yönergeleri
En iyi cihaz performansı için iyi bir temsil edici numuneleme noktası
seçin. Numune tüm sistemi temsil edici olmalıdır.
Değişken değerleri önlemek için:
Türkçe 311

Baypas akış hızının ayarlanması
Şekil 9 Baypas akışı hızı ayarı - çok akış
B İ L G İ
Çoklu akış için vidayı 4 dönüşten fazla gevşetmeyin.
Baypas akışı, analiz cihazı kapatma modundayken ayarlanabilir. Şekil 8
veya Şekil 9'da gösterildiği gibi numune baypas hattının akış hızını akış
valfiyle ayarlayın. Numune akış hızı aralığı için bkz. Teknik Özellikler
sayfa 304. Numune baypas hattının akış hızını ölçmek için harici bir
ölçüm cihazı kullanın. Proses akışındaki değişikliklere daha hızlı tepki
verebilmesi için proses akışı
analiz cihazı uzakta olduğunda, numune
baypas hattının akış hızını artırın.
Şekil 8 Baypas akışı hızı ayarı - bir akış
Elektriksel kurulum
T E H L İ K E
Elektrik çarpması nedeniyle ölüm tehlikesi. Yüksek voltaj (30 V RMS
ve 42,2 V PİK veya 60 V DC'den büyük) veya düşük voltaj (30 V RMS
ve 42,2 V PİK veya 60 V DC'den küçük) kullanın. Yüksek ve düşük
voltaj kombinasyonu kullanmayın.
T E H L İ K E
Elektrik çarpması nedeniyle ölüm tehlikesi. Elektrik bağlantısı
yapmadan önce cihaza giden elektriği mutlaka kesin.
312 Türkçe

T E H L İ K E
U Y A R I
Elektrik çarpması ve yangın tehlikeleri. Kablo bağlantılı bir cihaz için,
Elektrik çarpması nedeniyle ölüm tehlikesi. DC güçle çalışan bir cihaza
cihazı kablonun prizden kolayca çıkarılabileceği bir yere
AC gücü doğrudan bağlamayın.
kurduğunuzdan emin olun.
T E H L İ K E
B İ L G İ
Elektrik çarpması nedeniyle ölüm tehlikesi. Bu cihaz dış mekanlarda ya
Ekipmanın cihaza yerel, bölgesel ve ulusal koşulları karşılayacak şekilde
da ıslak olabilecek yerlerde kullanılıyorsa, cihazı ana elektrik
bağlandığından emin olun.
kaynağına bağlamak için bir Topraklama Arızası Devre Şalteri
(GFCI/GFI) kullanılmalıdır.
Erişim tapalarının çıkarılması
Kabloları ve kablo hortumlarını elektrik erişim portları içinden yerleştirin.
T E H L İ K E
Bkz. Şekil 10. Contanın kilidini açmak için kauçuk sızdırmazlık tapalarını
muhafazanın içinden dışarı doğru iterek çıkarın ve ardından dışarıdan
Elektrik çarpması nedeniyle ölüm tehlikesi. Koruyucu Topraklama (PE)
çekerek tamamen çıkarın. Şekil 14 sayfa 317
'te gösterildiği gibi bir çekiç
bağlantısı gereklidir.
ve tornavida yardımıyla itme pimlerini elektrik erişim plakasından
gerektiği gibi çıkarın. Muhafaza derecesini korumak için kullanılmayan
T E H L İ K E
tüm portların üzerini kapatın.
Elektrik çarpması nedeniyle ölüm tehlikesi. Yalnızca teknik özelliklerde
belirtilen çevresel muhafaza değerine uygun bağlantıları kullanın.
Teknik Özellikler bölümündeki gereksinimlere uyun.
U Y A R I
Elektrik çarpma tehlikesi. Harici olarak takılı aygıtların uygun ülke
güvenliği standart değerlendirmesi bulunmalıdır.
U Y A R I
Elektrik çarpması ve yangın tehlikeleri. İletim hattı kurulumu için yerel
bağlantının kesilmesi gerekir.
U Y A R I
Elektrik çarpması ve yangın tehlikeleri. İletim hattının kurulumu için
yerel bağlantı kesmeyi açıkça tanımladığınızdan emin olun.
Türkçe 313

Şekil 10 Elektrik erişim portları
Erişim kapağını çıkarma
Kablo terminallerini bağlamak için erişim kapağını çıkarın. Bkz. Şekil 11.
Şekil 11 Erişim kapağının çıkarılması
1 Güç girişi (yalnızca güç kablosu),
3 İletişim ve ağ modülleri (8x)
topraklama plakası yok. Kablo
hortumu için kullanmayın.
2 İletişim ve ağ modülleri (3x) 4 Güç girişi veya çıkışı (kablo
hortumu veya güç kablosu),
topraklama plakası, iletişim ve ağ
modülleri (8x)
Kablolama bağlantılarına genel bakış
Şekil 12
mümkün olan tüm kablolama bağlantılarını göstermektedir.
Bağlantı için belirtilen kablo ölçüsünü kullandığınızdan emin olun (bkz.
Teknik Özellikler sayfa 304).
314 Türkçe

Şekil 12 Ana devre kartı üzerindeki bağlantılar
U Y A R I
Elektrik çarpması ve yangın tehlikeleri. Temin edilen kablonun ve kilitlenmeyen
fişin ilgili ülke yasalarına uygun olduğundan emin olun.
U Y A R I
Elektrik çarpması nedeniyle ölüm tehlikesi. Koruyucu topraklama
iletkeninin 0,1 ohm'dan düşük bir empedans bağlantısına sahip
olduğundan emin olun. Bağlantısı yapılan telli iletkenin, AC şebeke
hattı ile aynı akım değerine sahip olması gerekir.
B İ L G İ
Cihaz yalnızca tek fazlı bağlantı için kullanılır.
Kablo kurulumu: Üretici, isteğe bağlı olarak kablo ve sızdırmazlık
halkası kullanılmasını önermektedir. Yedek parça listesi için bakım
kılavuzuna başvurun. Müşteri tarafından sağlanan kablolar için üç adet
18 awg iletken gereklidir ve kablonun 3 metreden (10 fit) kısa olması
gerekir. Cihazın evresel sınıflandırmasını korumak için conta tipi bir
kablo rakoru kullanın. Bkz. Teknik Özellikler sayfa 304. Cihazın güç
bağlantısını yapmak için bkz. Tablo 3 veya Tablo 4
ve Şekil 13.
1 İkili monitör bağlantısı 4 Dijital girişler 7 Güç çıkışı
2 Akıllı prob bağlantısı 5 Güç girişi 8 Güç çıkışı LED'i
(açık=güç analiz
cihazına bağlı)
3 4-20 mA çıkışlar 6 Güç anahtarı ve LED
9 Röleler
(açık=analiz cihazı
açık)
Güç bağlantısı
U Y A R I
Elektrik çarpması nedeniyle ölüm tehlikesi. Ana koruyucu toprak
bağlantısında sıkıştırmalı halka tipi terminal kullanın.
Türkçe 315

Tablo 3 AC kablolama bilgileri (yalnızca AC modelleri)
Şekil 13 Güç bağlantısı
Terminal Açıklama Renk—Kuzey
Renk—AB
Amerika
1 Koruyucu Topraklama
Yeşil Sarı şeritli yeşil
(PE)
2 Nötr (N) Beyaz Mavi
3 Canlı (L1) Siyah Kahverengi
Tablo 4 DC kablolama bilgisi (Sadece DC modeller)
Terminal Açıklama Renk—Kuzey
Renk—AB
Amerika
1 Koruyucu Topraklama
Yeşil Sarı şeritli yeşil
(PE)
2 24 VDC dönüş (–) Siyah Siyah
3 24 VDC (+) Kırmızı Kırmızı
316 Türkçe

İkili monitör bağlantısı
Şekil 14 Cihaz bağlantısı
Harici bir sc kontrolörü
analiz cihazı bağlanabilir. Harici sc kontrolörüne
ve analiz cihazının ikili monitör bağlantısına 6789400 Hach kablosu
bağlayın. Bkz. Kablolama bağlantılarına genel bakış sayfa 314.
İsteğe bağlı cihazların bağlantısı
Şekil 14'te gösterildiği gibi çıkış ve giriş cihazlarının kablolarını takın.
Bağlantı için belirtilmiş olan kablo ölçüsünü kullandığınızdan emin olun.
Bkz. Teknik Özellikler sayfa 304. Cihazı yapılandırmak için kullanım
kılavuzuna başvurun.
Türkçe 317

Rölelerin bağlantısı
Dijital girişlerin bağlantısı
Analiz cihazı, akış durduğunda ölçümleri de durdurmak için akış ölçer
T E H L İ K E
gibi harici bir cihazdan dijital sinyal alabilir. Her bir farklı giriş, karşılık
Elektrik çarpması nedeniyle ölüm tehlikesi. Alçak ve yüksek voltajı
gelen numune kanalını etkinleştirmek/devre dışı bırakmak için kullanılır.
birlikte kullanmayın. Röle bağlantınlarının tümünün yüksek voltaj AC
Her bir dijital giriş, ayrı bir TTL tip dijital giriş veya röle/açık kolektör tipi
ya da alçak voltaj DC olduğundan emin olun.
giriş olarak yapılandırılabilir. Bkz. Şekil 15. Atlama telleri varsayılan
olarak ayrı TTL tip dijital giriş için ayarlanmıştır. Cihazı bağlamak için
D İ K K A T
bkz. Kablolama bağlantılarına genel bakış sayfa 314.
Yangın tehlikesi. Röle yükleri, dirençli olmalıdır. Rölelere giden akımı
daima bir harici sigorta veya kesiciyle sınırlayın. Teknik Özellikler
bölümündeki röle değerlerine uyun.
D İ K K A T
Kimyasal maddelere maruz kalma tehlikesi. Laboratuvar güvenlik
talimatlarına uyun ve kullanılan kimyasallara uygun kişisel koruma
ekipmanının tamamını kullanın. Güvenlik protokolleri için mevcut
güvenlik bilgi formlarına (MSDS) bakın.
B İ L G İ
18 AWG'den düşük kablo derecesinin kullanılması önerilmemektedir.
analiz cihazı, numune konsantrasyonu alarmları (2x), analiz cihazı
sistemi uyarısı ve analiz cihazı sistemi kapatma için röleler içerir. Bir
cihazı bağlamak için (NO= normalde açık, COM=ortak, NC=normalde
kapalı) bkz. Kablolama bağlantılarına genel bakış sayfa 314.
4-20 mA çıkışları bağlama
4-20 mA çıkış bağlantıları için bükümlü çift blendajlı kablo kullanın.
Blendajı kaydedici ucuna veya analiz cihazı ucuna bağlayın. Blendajı
kablonun iki ucuna birden bağlamayın. Blendajlı olmayan kablo
kullanılması, radyo frekansı emisyonuna veya izin verilenden daha
yüksek hassasiyet seviyelerine neden olabilir.
Cihazı bağlamak için bkz. Kablolama bağlantılarına genel bakış
sayfa 314. Kablolama ve yük empedansı teknik özellikleri için bkz.
Teknik Özellikler sayfa 304.
Not: 4-20 mA çıkışlar 2 telli (devreden güç alan) vericiye elektrik sağlamak için
kullanılamaz.
318 Türkçe

Şekil 15 Ayrı TTL tip dijital giriş
Analiz cihazı şişelerinin yüklenmesi
D İ K K A T
Kimyasal maddelere maruz kalma tehlikesi. Laboratuvar güvenlik
talimatlarına uyun ve kullanılan kimyasallara uygun kişisel koruma
ekipmanının tamamını kullanın. Güvenlik protokolleri için mevcut
güvenlik bilgi formlarına (MSDS) bakın.
analiz cihazı şişelerini yüklemek için bkz. Şekil 16. Tüm şişeleri
tanımladığınızdan ve uygun kapağı uygun şişeye taktığınızdan emin
olun.
Şekil 16 Analiz cihazı şişesinin yüklenmesi
1 Atlama teli (12x) 3 Ayrı TTL tip dijital giriş
2 Dijital giriş konektörleri 4 Röle/Açık kolektör tipi giriş
Ek modüllerin kurulması
Ek çıkış, röle veya iletişim seçenekleri için modüller eklenebilir. Modül ile
birlikte verilen belgelere bakın.
Türkçe 319

Karıştırma çubuğunun takılması
Şekil 18 Karıştırma çubuğunun takılması
Kurulum kitinin içinde bir karıştırma çubuğu bulunmaktadır. Kurulumdan
önce, huni kapağını, huniyi ve kolorimetre kapağını çıkarın. Bkz.
Şekil 17. Resimli adımlarda gösterildiği gibi karıştırma çubuğunu
kolorimetrenin numune hücresine yerleştirin. Bkz. Şekil 18.
Şekil 17 Kolorimetre kapağı ve huninin çıkarılması
Kullanıma hazırlık
Fiziksel kurulum tamamlanmıştır. Analiz cihazını ilk kullanıma
hazırlamak için kullanım kılavuzuna başvurun.
320 Türkçe

