Indesit VRA 640 X: Монтаж
Монтаж: Indesit VRA 640 X
70
RS
Монтаж
!
Важно
сохранить
данное
руководство
для
его
последующих
консультации
.
В
случае
продажи
,
передачи
изделия
или
при
переезде
на
новое
место
жительства
необходимо
проверить
,
чтобы
руководство
оставалось
вместе
с
изделием
,
для
того
чтобы
его
новыи
владелец
мог
ознакомиться
с
правилами
эксплуатации
и
с
соответствующими
предупреждениями
.
!
Внимательно
прочитаите
инструкции
:
в
них
содержатся
важные
сведения
о
монтаже
изделия
,
его
эксплуатации
и
безопасности
.
Расположение
!
Не
разрешаите
детям
играть
с
упаковочными
материалами
.
Упаковка
должна
быть
уничтожена
в
соответствии
с
правилами
сбора
мусора
(
см
.
Предосторожности
и
рекомендации
).
!
Монтаж
изделия
производится
в
соответствии
с
данными
инструкциями
квалифицированными
специалистами
.
Неправильный
монтаж
изделия
может
стать
причиной
повреждения
имущества
и
причинить
ущерб
людям
и
домашним
животным
.
Встроенный
монтаж
Для
обеспечения
исправного
функционирования
встраиваемого
изделия
кухонный
модуль
должен
иметь
соответствующие
характеристики
:
•
поверхность
кухонного
топа
должна
быть
из
материала
,
устойчивого
к
температуре
примерно
100°C;
•
если
варочная
панель
устанавливается
над
духовым
шкафом
,
он
должен
быть
оснащен
системой
охлаждения
с
принудительной
вентиляцией
.
•
не
рекомендуется
устанавливать
варочную
панель
над
посудомоечными
машинами
:
при
необходимости
установите
между
варочной
панелью
и
посудомоечной
машиной
герметичную
разделительную
вставку
;
•
в
зависимости
от
модели
варочной
панели
,
которую
вы
устанавливаете
(
см
.
схемы
)
,
размеры
ниши
в
кухонном
модуле
должны
быть
следующими
:
560 +/- 1
490 +/- 1
48
590
520
560 +/- 1
490 +/- 1
48
574
504
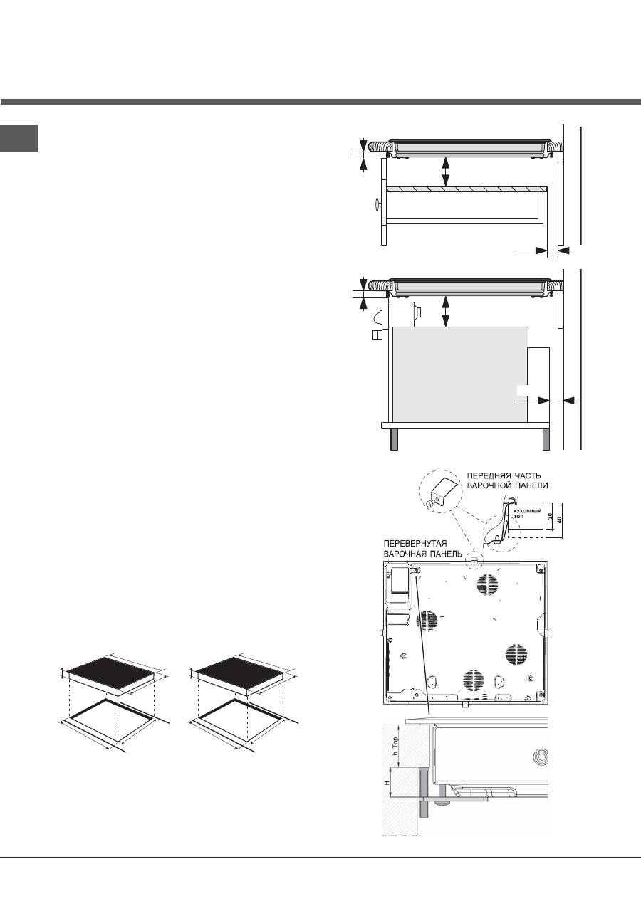
Вентиляция
Для
обеспечения
надлежащей
вентиляции
и
во
избежание
перегрева
прилегающих
поверхностеи
варочная
панель
должна
быть
установлена
:
•
на
минимальном
расстоянии
40
мм
от
задней
стенки
;
5 mm
min. 20 mm
min. 20 mm
min. 40 mm
Ящик
5 mm
min. 40 mm
Вентилируемая
71
RS
•
между
проемом
под
варочную
панель
и
расположенным
снизу
кухонным
элементом
должно
быть
расстояние
не
менее
20
мм
.
•
Кухонные
элементы
,
расположенные
рядом
с
кухонной
плитой
,
высота
которых
превышает
уровень
варочной
панели
,
должны
находиться
на
расстояние
не
менее
600
мм
от
края
варочной
панели
.
Крепление
Изделие
должно
быть
установлено
на
идеально
ровнои
поверхности
.
Возможные
деформации
,
вызванные
неправильным
креплением
,
могут
привести
к
изменениям
характеристик
и
эксплуатационных
качеств
варочнои
панели
.
Длина
регуляционного
винта
крепежных
крюков
регулируется
перед
началом
монтажа
по
толщине
кухонного
топа
:
•
толщина
30
мм
:
длина
винта
17,5
мм
;
•
толщина
40
мм
:
длина
винта
7,5
мм
;
Порядок
крепления
изделия
:
1.
При
помощи
коротких
тупых
шурупов
привинтите
4
центровочные
пружины
в
отверстиях
,
расположенных
по
бокам
варочнои
панели
;
2.
Вставьте
варочную
панель
в
проем
в
кухонном
модуле
,
выровняите
и
слегка
нажмите
в
центр
вплодь
до
идеального
прилегания
варочнои
панели
к
поверхности
кухонного
топа
.
3.
для
варочных
панелеи
с
боковыми
профилями
:
вставив
варочную
панели
в
нишу
кухонного
модуля
,
вставьте
4
крепежных
крюка
(
каждыи
со
своим
штифтом
)
по
нижнему
периметру
варочнои
панели
,
закручивая
их
длинными
острыми
болтами
до
тех
пор
,
пока
стекло
не
будет
плотно
прилегать
к
кухонному
топу
.
!
Важно
,
чтобы
шурупы
центровочных
пружин
оставались
доступными
.
!
В
соответствии
с
правилами
безопасности
после
установки
изделия
в
кухонныи
модуль
должна
быть
исключена
возможность
касания
к
электрическими
частями
.
!
Все
защитные
элементы
должны
быть
закреплены
таким
образом
,
чтобы
их
можно
было
снять
только
при
помощи
специального
инструмента
.
Электрическое
подключение
!
Электрическое
подключение
варочнои
панели
и
возможного
встраиваемого
духового
шкафа
должно
выполняться
раздельно
по
причинам
безопасности
,
а
так
же
для
легкого
съема
духового
шкафа
.
Клеммная
колодка
В
нижнеи
части
изделие
оснащено
колодкои
для
подсоединения
разных
видов
электропитания
(
рисунок
приводится
для
примера
и
может
не
соответствовать
модели
вашего
изделия
).
Монофазное
соединение
Варочная
панель
оснащена
сетевым
кабелем
,
рассчитанным
на
монофазное
электропитание
.
Подсоедините
провода
в
соответствии
с
таблицеи
и
приведенным
ниже
схемам
:
Типовое
напряжение
и частота сети
Электрический провод
Подсоединение
проводов
230-240V 1+N ~
220-240V 1+N ~
50/60 Hz
:
желто-зеленый
;
N
:
2 синий провода
вместе на
L
:
коричневый
вместе с черным
Другие
типы
соединений
Если
электропроводка
соответствует
однои
из
следующих
характеристик
:
Типовое
напряжение
и
частота
сети
• 400
В
- 2+N ~ 50/60
Гц
• 220-240
В
3 ~ 50/60
Гц
• 230-240B 3 ~ 50/60 Hz
• 400
В
- 2+2N ~ 50/60
Гц
Разделите
провода
и
подсоедините
проводники
в
соответствии
с
таблицеи
и
приведенным
ниже
схемам
:
Типовое
напряжение
и частота сети
Электрический провод
Подсоединение
проводов
400V - 2+N ~
50/60 Hz
230-240V 3 ~
220-240V 3 ~
50/60 Hz
:
желто-зеленый
;
N
:
2 синий провода
вместе на
L1
:
черный
L2
:
коричневый
400V - 2+2N ~
50/60 Hz
:
желто-зеленый
;
N1
:
синий
N2
:
синий
L1
:
черный
L2
:
коричневый
Если
электропроводка
соответствует
однои
из
следующих
характеристик
:
Типовое
напряжение
и
частота
сети
• 400
В
3 - N ~ 50/60
Гц
выполните
следующее
:
!
Возможныи
прилагающиися
сетевои
кабель
нельзя
использовать
для
такого
типа
монтажа
.
72
RS
1.
Используите
надлежащии
сетевои
кабель
типа
H05RR-F
или
с
большим
значением
,
надлежащего
размера
(
сечение
кабеля
: 25
мм
).
2.
При
помощи
отвертки
поднимите
язычки
крышки
клеммнои
колодки
и
откроите
ее
(
см
.
изображение
клеммнои
колодки
).
3.
Отвинтите
прижимнои
винт
провода
и
винты
зажимов
,
соответствующих
типу
необходимого
соединения
,
затем
установите
соединительные
перемычки
согласно
таблице
и
приведенным
ниже
схемам
.
4.
Расположите
проводники
согласно
таблице
и
приведенным
ниже
схемам
и
подсоедините
их
,
до
упора
закрутив
все
винты
зажимов
.
Типовое напряжение
и частота сети
Электропитание
Зажимная коробка
400V 3-N ~
50/60 Hz
Трехфазный 400
5.
Зафиксируите
сетевои
кабель
в
специальном
кабельном
сальнике
и
закроите
крышку
.
Трехфазное
400
Подсоединение
сетевого
кабеля
изделия
к
сети
электропитания
В
случае
прямого
подключения
изделия
к
сети
необходимо
установить
между
изделием
и
электрическои
сетью
многополярныи
разъединитель
с
минимальным
расстоянием
между
контактами
3
мм
.
!
Электромонтер
несет
ответственность
за
правильное
подключение
изделия
к
электрическои
сети
и
за
соблюдение
правил
безопасности
.
Перед
осуществлением
электрического
подсоединения
необходимо
проверить
следующее
:
•
сетевая
розетка
должна
быть
соединена
с
заземлением
и
соответствовать
нормативам
;
•
сетевая
розетка
должна
быть
расчитана
на
максимальную
потребляемую
мощность
изделия
,
указанную
на
паспортнои
табличке
с
техническими
характеристиками
;
•
напряжение
и
частота
тока
сети
должны
соответствовать
электрическим
данным
изделия
;
•
сетевая
розетка
должна
быть
совместима
со
штепсельнои
вилкои
изделия
.
В
противном
случае
замените
розетку
или
вилку
;
не
используите
удлинители
или
троиники
.
!
Изделие
должно
быть
установлено
таким
образом
,
чтобы
сетевои
кабель
и
сетевая
розетка
были
легко
доступны
.
!
Сетевои
кабель
изделия
не
должен
быть
согнут
или
сжат
.
!
Регулярно
проверяите
состояние
сетевого
кабеля
и
при
необходимости
поручаите
его
замену
только
уполномоченным
техникам
.
!
Производитель
не
несет
ответственности
за
последствия
несоблюдения
перечисленных
выше
требовании
.
!
Категорически
запрещается
отсоединять
и
не
заменять
сетевой
кабель
.
В
случае
отсоединения
или
замены
сетевого
кабеля
гарантия
на
изделие
аннулируется
,
равно
как
и
маркировка
ЕС
.
Компания
INDESIT
снимает
с
себя
всякую
ответственность
за
несчастные
случаи
или
ущерб
,
вызванный
отсоединением
или
заменой
оригинального
сетевого
кабеля
.
Допускается
замена
только
на
оригинальный
сетевой
кабель
,
выполняемая
техником
,
уполномоченным
Компанией
INDESIT.
1
2
3
5
4
Расширяющиеся
варочные
зоны
В
некоторых
моделях
имеются
расширяющиеся
варочные
зоны
.
Они
могут
быть
разнои
формы
и
различного
радиуса
расширения
(
двоиная
или
троиная
варочная
зона
).
Ниже
приводится
описание
соответствующих
управлении
,
имеющихся
только
в
моделях
,
оснащенных
этими
функциями
.
Круглая
расширяющаяся
варочная
зона
•
Кнопка
ВКЛЮЧЕНИЕ
ДВОИНОИ
ВАРОЧНОИ
ЗОНЫ
служит
для
включения
двоинои
конфорки
(
см
.
Включение
и
эксплуатация
).
•
Индикатор
ДВОИНАЯ
ВАРОЧНАЯ
ЗОНА
ВКЛЮЧЕНА
:
показывает
,
что
двоиная
варочная
зона
включена
.
•
Кнопка
ВКЛЮЧЕНИЕ
ТРОИНОИ
ВАРОЧНОИ
ЗОНЫ
служит
для
включения
троинои
конфорки
(
см
.
Включение
и
эксплуатация
).
•
Индикатор
ТРОИНАЯ
ВАРОЧНАЯ
ЗОНА
ВКЛЮЧЕНА
:
показывает
,
что
троиная
варочная
зона
включена
.
Table of contents
- Installation
- Start-up and use
- Precautions and tips
- Care and maintenance
- Installation
- Mise en marche et utilisation
- Précautions et conseils
- Nettoyage et entretien
- Instalación
- Puesta en funcionamiento y uso
- Precauciones y consejos
- Mantenimiento y cuidados
- Instalação
- Início e utilização
- Precauções e conselhos
- Manutenção e cuidados
- Installation
- Inbetriebsetzung und Gebrauch
- Vorsichtsmaßregeln und Hinweise
- Reinigung und Pflege
- Installazione
- Avvio e utilizzo
- Precauzioni e consigli
- Manutenzione e cura
- Installatie
- Starten en gebruik
- Voorzorgsmaatregelen en advies
- Onderhoud en verzorging
- Instalacja
- Uruchomienie i u ż ytkowanie
- Zalecenia i ś rodki ostro ż no ś ci
- Konserwacja i utrzymanie
- Монтаж
- Включение и эксплуатация
- Предосторожности и рекомендации
- Техническоеобслуживани и уход





