Indesit VRA 640 X: Installation
Installation: Indesit VRA 640 X
14
FR
Installation
!
Conserver ce mode d’emploi pour pouvoir le
consulter à tout moment. En cas de vente, de
cession ou de déménagement, veiller à ce qu’il
suive l’appareil pour informer le nouveau propriétaire
sur son fonctionnement et lui fournir les conseils
correspondants.
!
Lire attentivement les instructions : elles contiennent
des conseils importants sur l’installation, l’utilisation et
la sécurité de cet appareil.
Positionnement
!
Les emballages ne sont pas des jouets pour
enfants, il faut les mettre au rebut en respectant la
réglementation sur le tri sélectif des déchets (
voir
Précautions et conseils
).
!
L’installation doit être effectuée par un professionnel
du secteur conformément aux instructions du fabricant.
Une mauvaise installation peut causer des dommages
à des personnes, des animaux ou des biens.
Encastrement
Pour garantir le bon fonctionnement de l’appareil, il
faut que le meuble possède des caractéristiques bien
précises :
• le matériau du plan d’appui doit pouvoir résister à
une température d’environ 100°C;
• en cas d’installation de la table de cuisson au-
dessus d’un four, il faut que ce dernier soit équipé
d’un dispositif de refroidissement par ventilation
forcée ;
• éviter d’installer la table de cuisson au-dessus d’un
lave-vaisselle : si c’est le cas, prévoir une séparation
étanche entre les deux appareils ;
• selon la table de cuisson à installer (
voir fi gures
),
la découpe du meuble doit avoir les dimensions
suivantes :
560 +/- 1
490 +/- 1
48
590
520
560 +/- 1
490 +/- 1
48
574
504
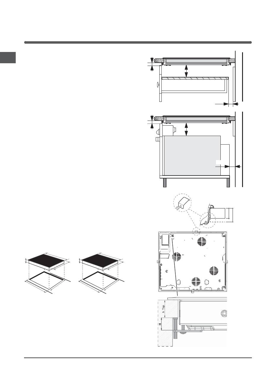
Aération
Pour permettre une bonne aération et pour éviter toute
surchauffe des surfaces autour de l’appareil, la table de
cuisson doit être positionnée :
• à au moins 40 mm de distance du mur arrière;
• de manière à ce qu’il reste au moins 20 mm de
distance entre la découpe d’encastrement et le
meuble en dessous.
• Les meubles jouxtant la table, dont la hauteur
5 mm
min. 20 mm
min. 20 mm
min. 40 mm
TIROIR
5 mm
min. 40 mm
CHALEUR
TOURNANTE
CÔTÉ AVANT DE LA
TABLE DE CUISSON
PLAN DE
TRAVAIL
30
40
TABLE DE CUISSON
RETOURNÉE
15
FR
dépasse celle du plan de cuisson, doivent être
placés à au moins 600 mm du bord du plan.
Fixation
Il est impératif d’assurer
l’encastrement de l’appareil sur
un plan d’appui parfaitement plat.
Les déformations provoquées par une mauvaise
fixation risquent d’altérer les caractéristiques de la
table de cuisson ainsi que ses performances.
La longueur de la vis de réglage des crochets de
fixation doit être réglée avant leur montage
selon
l’épaisseur du plan d’appui :
• épaisseur 30 mm : vis 17,5 mm;
• épaisseur 40 mm : vis 7,5 mm
Pour sa fixation, procéder comme suit :
1. Se servir des vis courtes sans pointe pour visser
les 4 ressorts de centrage dans les trous prévus sur
chaque côté de la table, en leur milieu;
2. insérer la table de cuisson dans la découpe prévue,
bien au centre et bien appuyer tout autour du cadre
pour que la table adhère parfaitement au plan d’appui.
3. pour les tables avec profils latéraux : après avoir
encastré la table de cuisson dans la découpe, insérer
les 4 crochets de fixation (chacun avec son goujon) sur
le périmètre inférieur de la table de cuisson et visser
avec les vis longues à pointe jusqu’à ce que le verre
adhère bien au plan d’appui.
!
Il faut absolument que les vis des ressorts de
centrage soient accessibles.
!
Conformément aux normes de sécurité, après
encastrement de l’appareil, il ne doit plus y avoir
possibilité de contact avec les parties électrifiées.
!
Toutes les parties qui servent de protection doivent
être fixées de manière à ne pouvoir être enlevées
qu’avec l’aide d’un outil.
Raccordement électrique
!
Le branchement électrique de la table de cuisson
et celui d’un éventuel four à encastrer doivent être
effectués séparément, pour des raisons de sécurité
électrique et pour pouvoir démonter plus facilement le
four en cas de besoin.
Bornier
L’appareil est équipé, sur le dessous, d’un boîtier
de raccordement à plusieurs types d’alimentation
électrique (la figure n’est qu’indicative, elle peut ne pas
correspondre au modèle acheté).
Raccordement monophasé
La table est fournie déjà
équipée d’un cordon
d’alimentation prévu pour
raccordement monophasé.
Procéder au raccordement des
fils en suivant les indications du
tableau et des dessins suivants
:
Tension type et
fréquence réseau
Cordon électrique
Raccordement fils
230-240V 1+N ~
220-240V 1+N ~
50/60 Hz
: jaune/vert;
N
: les 2 fils bleus ensemble
L
: le marron avec le noir
Autres types de branchement
Si l’installation électrique correspond à une des
caractéristiques suivantes :
Tension type et fréquence réseau
• 400V - 2+N ~ 50/60 Hz
• 220-240V 3 ~ 50/60 Hz
• 230-240V 3 ~ 50/60 Hz
• 400V - 2+2N ~ 50/60 Hz
Séparer les câbles et procéder au raccordement des
fils en suivant les indications du tableau et des dessins
suivants :
Tension type et
fréquence réseau
Cordon électrique
Raccordement fils
400V - 2+N ~
50/60 Hz
230-240V 3 ~
220-240V 3 ~
50/60 Hz
: jaune/vert;
N
: les 2 fils bleus
ensemble
L1
: noir
L2
: marron
400V - 2+2N ~
50/60 Hz
: jaune/vert;
N1
: bleu
N2
: bleu
L1
: noir
L2
: marron
Si l’installation électrique correspond à une des
caractéristiques suivantes :
Tension type et fréquence réseau
• 400V 3 - N ~ 50/60 Hz
procéder comme suit :
!
Le câble éventuellement fourni n’est pas prévu pour
ces types d’installation.
1. Utiliser un câble d’alimentation approprié, type
H05RR-F ou supérieur, aux dimensions adéquates
(section câble : 25 mm).
2. Faire levier à l’aide d’un tournevis sur les languettes
du couvercle du bornier pour l’ouvrir (
voir fi gure
Bornier
).
3. Dévisser la vis du serre-câble et les vis des bornes
correspondant au type de raccordement nécessaire
TABLE DE CUISSON
RETOURNEE
16
FR
et positionner les cavaliers de raccordement
conformément aux indications du tableau et des
figures ci-dessous.
4. Positionner les fils conformément aux indications
du tableau et des figures ci-dessous et procéder au
raccordement en serrant à fond toutes les vis des
bornes.
Tension type et
fréquence réseau
Raccordements électriques
Bornier
400V 3-N ~
50/60 Hz
Triphasé 400
5. Fixer le câble d’alimentation dans le serre-câble
correspondant et fermer le couvercle.
Triphasé 400
Cavalier
Neutre
Terre
Phase
Phase
Phase
1
2
3
5
4
Branchement du câble d’alimentation au réseau
électrique
En cas de raccordement direct au réseau, il faut
intercaler entre l’appareil et le réseau un interrupteur
à coupure omnipolaire ayant au moins 3 mm
d’écartement entre les contacts.
!
L’installateur est responsable du bon raccordement
électrique de l’appareil et du respect des normes de
sécurité.
Avant de procéder au branchement, s’assurer que :
• la prise est bien munie d’une terre conforme à la loi;
• la prise est bien apte à supporter la puissance
maximale de l’appareil, indiquée sur la plaque
signalétique de l’appareil ;
• la tension d’alimentation est bien comprise entre les
valeurs indiquées sur la plaque signalétique;
• la prise est bien compatible avec la fiche de
l’appareil. Si ce n’est pas le cas, remplacer la prise
ou la fiche, ne pas utiliser de rallonges ni de prises
multiples.
!
Après installation de l’appareil, le câble électrique et
la prise de courant doivent être facilement accessibles
!
Le câble ne doit être ni plié ni excessivement écrasé.
!
Le câble doit être contrôlé périodiquement et ne peut
être remplacé que par un technicien agréé.
!
Nous déclinons toute responsabilité en cas de non
respect des normes énumérées ci-dessus.
!
Ne retirer ou ne remplacer en aucun cas le câble
d’alimentation. Toute opération d’enlèvement ou de
remplacement annule automatiquement la garantie
et la marque CE INDESIT décline toute responsabilité
en cas d’accidents ou de dommages dérivants
de l’enlèvement ou du remplacement du câble
d’alimentation original. Seul le remplacement effectué
par un technicien agréé INDESIT utilisant une pièce
détachée originale est autorisé.
Foyers extensibles
Certains modèles sont équipés de foyers extensibles.
Ces derniers peuvent avoir soit une forme circulaire et
s’étendre pour former des foyers doubles ou triples.
Illustration des commandes présentes sur les modèles
équipés de ces options.
Foyer extensible circulaire
• Touche
ALLUMAGE FOYER DOUBLE
pour activer
le foyer double (
voir Mise en marche et Utilisation
).
• Voyant
FOYER DOUBLE ALLUMÉ
: il signale
l’allumage du foyer double.
• Touche
ALLUMAGE FOYER TRIPLE
pour activer le
foyer triple (
voir Mise en marche et Utilisation
).
• Voyant
FOYER TRIPLE ALLUMÉ
: il signale
l’allumage du foyer triple.
Voyant
FOYER
DOUBLE
ALLUMÉ
Touche
ALLUMAGE
FOYER DOUBLE
Voyant
FOYER
TRIPLE ALLUMÉ
Touche
ALLUMAGE
FOYER TRIPLE
Table of contents
- Installation
- Start-up and use
- Precautions and tips
- Care and maintenance
- Installation
- Mise en marche et utilisation
- Précautions et conseils
- Nettoyage et entretien
- Instalación
- Puesta en funcionamiento y uso
- Precauciones y consejos
- Mantenimiento y cuidados
- Instalação
- Início e utilização
- Precauções e conselhos
- Manutenção e cuidados
- Installation
- Inbetriebsetzung und Gebrauch
- Vorsichtsmaßregeln und Hinweise
- Reinigung und Pflege
- Installazione
- Avvio e utilizzo
- Precauzioni e consigli
- Manutenzione e cura
- Installatie
- Starten en gebruik
- Voorzorgsmaatregelen en advies
- Onderhoud en verzorging
- Instalacja
- Uruchomienie i u ż ytkowanie
- Zalecenia i ś rodki ostro ż no ś ci
- Konserwacja i utrzymanie
- Монтаж
- Включение и эксплуатация
- Предосторожности и рекомендации
- Техническоеобслуживани и уход





