Indesit VRA 640 X: Instalación
Instalación: Indesit VRA 640 X
22
ES
Instalación
!
Es importante conservar este manual para poder
consultarlo en todo momento. En el caso de venta,
de cesión o de mudanza, verifique que permanezca
junto al aparato para informar al nuevo propietario
sobre su funcionamiento y sobre las advertencias
correspondientes.
!
Lea atentamente las instrucciones: contienen
importante información sobre la instalación, el uso y la
seguridad.
Colocación
!
Los embalajes no son juguetes para niños y se
deben eliminar según las normas para la recolección
diferenciada de desechos (
ver Precauciones y consejos
).
!
La instalación se debe realizar siguiendo estas
instrucciones y por personal profesionalmente
calificado. Una instalación incorrecta puede producir
daños a personas, animales o cosas.
Empotramiento
Para garantizar un buen funcionamiento del aparato
es necesario que el mueble tenga las características
adecuadas:
• el plano de apoyo debe ser de material resistente
al calor, a una temperatura de aproximadamente
100ºC;
• si se desea instalar la encimera sobre un horno, el
mismo debe poseer un sistema de enfriamiento con
ventilación forzada;
• evite instalar la encimera sobre un lavavajillas:
pero si fuera necesario, interponga un elemento de
separación estanco entre los dos aparatos;
• según el tipo de encimera que se desea instalar (
ver
las fi guras
), el espacio disponible en el mueble debe
tener las siguientes dimensiones:
560 +/- 1
490 +/- 1
48
590
520
560 +/- 1
490 +/- 1
48
574
504
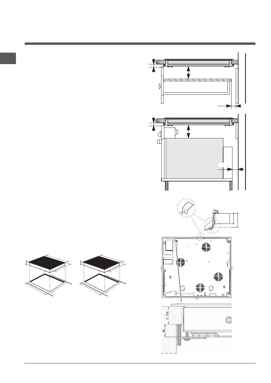
Aireación
Para permitir una adecuada aireación y para evitar
el sobrecalentamiento de las superficies que rodean al
aparato, la encimera se debe colocar:
• a una distancia mínima de 40 mm de la pared
posterior;
• de modo que se mantenga una distancia mínima de
20 mm entre el hueco para el empotramiento y el
mueble que se encuentra debajo.
• Los muebles situados a un costado, cuya altura
PARTE DELANTERA
DE LA ENCIMERA
PLANO DE
APOYO
30
40
ENCIMERA
VOLCADA
5 mm
min. 20 mm
min. 20 mm
min. 40 mm
CAJÓN
5 mm
min. 40 mm
HORNO
VENTILADO
23
ES
supere la de la superficie de trabajo, deben estar
situados a 600 mm., como mínimo, del borde de la
misma.
Fijación
La instalación del aparato se debe realizar
sobre una
superficie de apoyo perfectamente plana.
Las deformaciones que se podrían provocar por una
mala fijación, pueden alterar las características y las
prestaciones de la encimera.
La longitud del tornillo de regulación de los ganchos
de fijación se debe determinar antes de su montaje en
base al espesor de la superficie de apoyo:
• espesor de 30 mm: tornillo de 17,5 mm;
• espesor de 40 mm: tornillo de 7,5 mm.
Para realizar la fijación, el procedimiento es el
siguiente:
1. Con los tornillos cortos sin punta, enrosque los 4
muelles de centrado en los orificios ubicados en el
centro de cada costado de la encimera;
2. introduzca la encimera en el hueco del mueble,
céntrela y ejerza una adecuada presión sobre todo
el perímetro para que se adhiera perfectamente a la
superficie de apoyo.
3. en las encimeras con perfiles laterales: después de
haber colocado la encimera en el mueble, introduzca
los 4 ganchos de fijación (cada uno con su perno) en
el perímetro inferior de la encimera enroscándolos con
los tornillos largos con punta hasta que el vidrio se
adhiera a la superficie de apoyo.
!
Es indispensable que los tornillos de los muelles de
centrado permanezcan accesibles.
!
En conformidad con las normas de seguridad, una
vez empotrado el aparato, no se deben producir
contactos con las piezas eléctricas.
!
Todas las partes que garantizan la protección se
deben fijar de modo tal que no puedan ser quitadas
sin la ayuda de una herramienta.
Conexión eléctrica
!
La conexión eléctrica de la encimera y la de un horno
empotrado deben ser realizadas por separado, tanto
por razones de seguridad eléctrica como para facilitar
las operaciones de extracción del horno.
Tablero de bornes
El aparato posee, en su parte inferior, una caja para su
conexión a diferentes tipos de alimentación eléctrica
(la imagen es sólo indicativa y puede no corresponder
al modelo adquirido).
Conexión monofásica
La encimera posee un cable
de alimentación eléctrica ya
conectado y preparado para la
conexión monofásica. Realice
la conexión de los cables de
acuerdo con la tabla y los
dibujos que se muestran a
continuación:
Tensión tipo y
frecuencia de la red
Cable eléctrico
Conexión de los cables
230-240V 1+N ~
220-240V 1+N ~
50/60 Hz
: amarillo/verde;
N: los 2 cables azules juntos
L: el marrón junto al negro
Otros tipos de conexión
Si las características de la instalación eléctrica
coinciden con alguna de las siguientes:
Tensión tipo y frecuencia de la red
• 400V - 2+N ~ 50/60 Hz
• 220-240V 3 ~ 50/60 Hz
• 230-240V 3 ~ 50/60 Hz
• 400V - 2+2N ~ 50/60 Hz
Separe los cables y realice la conexión de acuerdo
con la tabla y los dibujos que se muestran a
continuación:
Tensión tipo y
frecuencia de la red
Cable eléctrico
Conexión de los cables
400V - 2+N ~
50/60 Hz
230-240V 3 ~
220-240V 3 ~
50/60 Hz
: amarillo/verde;
N
: los 2 cables azules
juntos
L1
: negro
L2
: marrón
400V - 2+2N ~
50/60 Hz
: amarillo/verde;
N1
: azul
N2
: azul
L1
: negro
L2
: marrón
Si las características de la instalación eléctrica
coinciden con alguna de las siguientes:
Tensión tipo y frecuencia de la red
• 400V 3 - N ~ 50/60 Hz
proceda de la siguiente manera:
!
El cable suministrado con el aparato no se puede
utilizar para estos tipos de instalación.
1. Utilice un cable de alimentación apropiado, tipo
H05RR-F o de valor superior y de dimensiones
adecuadas (sección del cable: 25 mm).
2. Utilizando un destornillador, haga palanca en las
lengüetas de la tapa del tablero de bornes y ábrala
(
ver la imagen Tablero de bornes
).
3. Desenrosque el tornillo de la mordaza de terminal
de cable y los tornillos de los bornes correspondientes
al tipo de conexión necesaria y coloque los puentes de
ENCIMERA
VOLCADA
24
ES
conexión de acuerdo con la tabla y los dibujos que se
muestran a continuación.
4. Coloque los cables de acuerdo con la tabla y los
dibujos que se muestran a continuación y realice la
conexión apretando a fondo todos los tornillos de los
bornes.
Tensión tipo y
frecuencia de la red
Conexiones eléctricas
Tablero de bornes
400V 3-N ~
50/60 Hz
Trifásico 400
5. Fije el cable de alimentación en el correspondiente
sujetacable y cierre la tapa.
Trifásica
400
Conexión del cable de alimentación eléctrica a la
red
En el caso de conexión directa a la red, es necesario
interponer entre el aparato y la red, un interruptor
omnipolar con apertura mínima entre los contactos de
3 mm.
!
El instalador es responsable de la correcta conexión
eléctrica y del cumplimiento de las normas de
seguridad.
Antes de efectuar la conexión verifique que:
• la toma tenga conexión a tierra y que sea conforme
con la ley;
• la toma sea capaz de soportar la carga máxima de
potencia de la máquina indicada en la placa de
características que se encuentra en el aparato;
• la tensión de alimentación eléctrica esté
comprendida dentro de los valores indicados en la
placa de características;
• la toma sea compatible con el enchufe del aparato.
Si no es así, sustituya la toma o el enchufe; no utilice
prolongaciones ni conexiones múltiples.
!
Una vez instalado el aparato, el cable eléctrico y la
toma de corriente deben ser fácilmente accesibles.
!
El cable no debe sufrir pliegues ni compresiones.
!
El cable debe ser revisado periódicamente y
sustituido sólo por técnicos autorizados.
!
La empresa declina toda responsabilidad cuando
estas normas no sean respetadas.
!
No quitar ni sustituir por ninguna razón el cable
de alimentación. Si se sustituye o extrae caduca
la garantía y la marca CE. INDESIT no se asume la
responsabilidad en caso de accidentes o daños
derivados de la sustitución o remoción del cable de
alimentación original. Se admite exclusivamente la
sustitución con un repuesto original y realizada por
personal autorizado por INDESIT.
Fase
Fase
Fase
Neutro
Tierra
1
2
3
5
4
Puente
Zonas de cocción extensibles
Algunos modelos poseen placas extensibles.
Dichas placas pueden tener distinta forma y distinta
extensibilidad (placa doble o triple). Se muestran a
continuación los mandos correspondientes, presentes
sólo en los modelos que poseen estas opciones.
Placa extensible circular
• Botón
ENCENDIDO DE LA PLACA DOBLE
para
activar la placa doble (
ver Puesta en funcionamiento
y uso
).
• Piloto
PLACA DOBLE ENCENDIDA
: indica el
encendido de la placa doble.
• Botón
ENCENDIDO DE LA PLACA TRIPLE
para
activar la placa triple (
ver Puesta en funcionamiento y
uso
).
• Piloto
PLACA TRIPLE ENCENDIDA
: indica el
encendido de la placa triple.
Piloto
PLACA
DOBLE
ENCENDIDA
Botón
ENCENDIDO
DE PLACA DOBLE
Piloto
PLACA
TRIPLE
ENCENDIDA
Botón
ENCENDIDO
DE PLACA
TRIPLE
Table of contents
- Installation
- Start-up and use
- Precautions and tips
- Care and maintenance
- Installation
- Mise en marche et utilisation
- Précautions et conseils
- Nettoyage et entretien
- Instalación
- Puesta en funcionamiento y uso
- Precauciones y consejos
- Mantenimiento y cuidados
- Instalação
- Início e utilização
- Precauções e conselhos
- Manutenção e cuidados
- Installation
- Inbetriebsetzung und Gebrauch
- Vorsichtsmaßregeln und Hinweise
- Reinigung und Pflege
- Installazione
- Avvio e utilizzo
- Precauzioni e consigli
- Manutenzione e cura
- Installatie
- Starten en gebruik
- Voorzorgsmaatregelen en advies
- Onderhoud en verzorging
- Instalacja
- Uruchomienie i u ż ytkowanie
- Zalecenia i ś rodki ostro ż no ś ci
- Konserwacja i utrzymanie
- Монтаж
- Включение и эксплуатация
- Предосторожности и рекомендации
- Техническоеобслуживани и уход





