Indesit VRA640XS: instruction
Class: Kitchen Appliances
Type:
Manual for Indesit VRA640XS
English
GB
Operating Instructions
HOB
Contents
Operating Instructions,1
WARNING,2
Description of the appliance-Control Panel,7
Installation,11
Start-up and use,14
Precautions and tips,17
Care and maintenance,18
Technical description of the models,18
FR
Français
Mode d’emploi
TABLE DE CUISSON
Sommaire
Mode d’emploi,1
ATTENTION,2
Description de l’appareil-Tableau de bord, 7
Installation,19
Mise en marche et utilisation,22
Précautions et conseils, 25
Nettoyage et entretien,26
Description technique des modèles,26
Español
ES
Manual de instrucciones
ENCIMERA
Sumario
Manual de instrucciones,1
ATENCIÓN,2
Descripción del aparato-Panel de control,7
Instalación,27
Puesta en funcionamiento y uso,30
Precauciones y consejos,33
Mantenimiento y cuidados,34
Descripción técnica de los modelos,34
Instruções para a utilização
PLANO
Índice
Instruções para a utilização,1
ATENÇÃO,2
Descrição do aparelho-Painel de comandos,7
Instalação, 35
Início e utilização, 38
Precauções e conselhos,41
Manutenção e cuidados,42
Descrição técnica dos modelos,42
PT
Português
DE
Bedienungsanleitung
KOCHFELD
Inhaltsverzeichnis
Bedienungsanleitung,1
ZUR BEACHTUNG,2
Beschreibung des Gerätes- Bedienfeld,7
Installation,
43
Inbetriebsetzung und Gebrauch,46
Vorsichtsmaßregeln und Hinweise, 49
Reinigung und Pflege, 50
Technische Beschreibung der Modelle, 50
NL
PL
RS
Italiano
IT
Istruzioni per l’uso
PIANO COTTURA
Sommario
Istruzioni per l’uso,1
ATTENZIONE,2
Descrizione dell’apparecchio- Pannello di controllo,7
Installazione, 51
Avvio e utilizzo,54
Precauzioni e consigli,57
Manutenzione e cura,58
Descrizione tecnica dei modelli,58
Deutsch
Nederland
Gebruiksaanwijzing
KOOKPLAAT
Inhoud
Gebruiksaanwijzing,1
PAS OP,2
Beschrijving van het apparaat-Bedieningspaneel,7
Installatie, 59
Starten en gebruik, 62
Voorzorgsmaatregelen en advies,65
Onderhoud en verzorging,66
Technische beschrijving van de modellen,66
Polski
Instrukcja obs
á
ugi
P
à
YTA GRZEJNA
Spis tre
Ğ
ci
Instrukcja obs
á
ugi,1
UWAGA,2
Opis urz
ą
dzenia-Panel sterowania,7
Instalacja,67
Uruchomienie i u
Ī
ytkowanie,70
Zalecenia i
Ğ
rodki ostro
Ī
no
Ğ
ci,73
Konserwacja i utrzymanie,74
Opis Techniczny,74
Ɉɩɢɫɚɧɢɟ
ɢɡɞɟɥɢɹ
-
ɉɚɧɟɥɶ
ɭɩɪɚɜɥɟɧɢɹ
,7
Ɇɨɧɬɚɠ
,75
B
ɚɪɨɱɧɚɹ
ɩɚɧɟɥɶ
,78
ɉɪɟɞɨɫɬɨɪɨɠɧɨɫɬɢ
ɢ
ɪɟɤɨɦɟɧɞɚɰɢɢ
,81
Ɍɟɯɧɢɱɟɫɤɨɟ
ɨɛɫɥɭɠɢɜɚɧɢɟ
ɢ
ɭɯɨɞ
,82
Ɍɟɯɧɢɱɟɫɤɨɟ
ɨɛɫɥɭɠɢɜɚɧɢɟ
,82
VRA 641 D X S
VRA 641 D B S
VRA 640 X S
Ɋɭɤɨɜɨɞɫɬɜɨ
ɩɨ
ɷɤɫɩɥɭɚɬɚɰɢɢ
ȼȺɊɈɑɇȺə
ɉȺɇȿɅɖ
ɋɨɞɟɪɠɚɧɢɟ
Ɋɭɤɨɜɨɞɫɬɜɨ
ɩɨ
ɷɤɫɩɥɭɚɬɚɰɢɢ
,1
ȼɇɂɆȺɇɂȿ
,2
Ɋɭɫɫɤɢɣ
Ɋɭɤɨɜɨɞɫɬɜɨ
ɩɨ
ɷɤɫɩɥɭɚɬɚɰɢɢ
ȼȺɊɈɑɇȺə
ɉȺɇȿɅɖ
ɋɨɞɟɪɠɚɧɢɟ
Ɋɭɫɫɤɢɣ
Ɋɭɤɨɜɨɞɫɬɜɨ
ɩɨ
ɷɤɫɩɥɭɚɬɚɰɢɢ
ȼȺɊɈɑɇȺə
ɉȺɇȿɅɖ
ɋɨɞɟɪɠɚɧɢɟ
Ɋɭɫɫɤɢɣ
Português
Português
Español
Español
English
English
VRA 640 C S
2
•
WARNING: The appliance and
its accessible parts become hot
during use.
•
Care should be taken to avoid
touching heating elements.
•
Children less than 8 years of
age shall be kept away unless
continuously supervised.
•
This appliance can be used by
children aged from 8 years and
above and persons with reduced
physical, sensory or mental
capabilities or lack of experience
and knowledge if they have been
given supervision or instruction
concerning use of the appliance
in a safe way and understand the
hazards involved. Children shall not
play with the appliance. Cleaning
and user maintenance shall not
be made by children without
supervision.
•
WARNING: Unattended cooking
on a hob with fat or oil can be
dangerous and may result in fire.
•
NEVER try to extinguish a fire with
water, but switch off the appliance
and then cover flame e.g. with a lid
or a fire blanket.
•
WARNING: Danger of fire: do
not store items on the cooking
surfaces.
•
WARNING: If the surface in glass-
ceramic is cracked, switch off the
appliance to avoid the possibility of
electric shock.
•
Never use steam cleaners
or pressure cleaners on the
appliance.
•
The appliance is not intended to be
operated by means of an external
timer or separate remote control
system.
English
GB
WARNING!
FR
Français
•
ATTENTION : cet appareil ainsi que
ses parties accessibles deviennent très
chauds pendant leur fonctionnement.
•
Il faut faire attention de ne pas toucher
les éléments chauffants.
•
Ne laisser s’approcher les enfants de
moins de 8 ans à moins qu’ils ne soient
sous surveillance constante.
•
Le présent appareil peut être utilisé par
des enfants de plus de 8 ans et par des
personnes présentant des capacités
physiques, sensorielles ou mentales
réduites ou n’ayant pas l’expérience
ou les connaissances nécessaires,
à condition qu’ils soient sous bonne
surveillance ou qu’ils aient reçu les
instructions nécessaires pour une
utilisation de l’appareil en toute sécurité
et à condition qu’ils se rendent compte
des dangers encourus. Les enfants ne
doivent pas jouer avec l’appareil. Les
opérations de nettoyage et d’entretien
ne doivent pas être effectuées par des
enfants non surveillés.
•
ATTENTION : laisser un récipient de
cuisson contenant de l’huile ou de la
graisse sur le foyer est dangereux et
risque d’entraîner un incendie
•
Il ne faut JAMAIS essayer d’éteindre
une flamme ou un incendie avec de
l’eau ! Il faut éteindre l’appareil et
couvrir la flamme avec un couvercle,
par exemple, ou avec une couverture
anti-feu.
•
ATTENTION : risque d’incendie : ne
pas laisser d’objets sur les surfaces de
cuisson.
•
ATTENTION : si la surface
vitrocéramique est fêlée, éteindre
l’appareil afin d’éviter tout risque
d’électrocution.
•
Ne jamais nettoyer l’appareil avec des
nettoyeurs vapeur ou haute pression.
•
Cet appareil ne peut pas être allumé au
moyen d’un temporisateur extérieur ou
d’un système de commande à distance
séparé.
ATTENTION !
GB
3
Español
ES
•
ATENCIÓN: Este aparato y sus
partes accesibles se calientan
mucho durante el uso.
•
Por lo tanto, es importante evitar
tocar los elementos calentadores.
•
Mantenga alejados a los niños
menores de 8 años si no son
continuamente vigilados.
•
El presente aparato puede ser
utilizado por niños mayores
de 8 años y por personas con
capacidades físicas, sensoriales
o mentales disminuidas o sin
experiencia ni conocimientos, si
se encuentran bajo una adecuada
vigilancia o si han sido instruidos
sobre el uso del aparato de modo
seguro y comprenden los peligros
relacionados con el mismo.
Los niños no deben jugar con
el aparato. Las operaciones de
limpieza y de mantenimiento no
deben ser realizadas por niños sin
vigilancia.
•
ATENCIÓN: Dejar un quemador
con grasas o aceites sin vigilancia
puede ser peligroso y provocar un
incendio.
•
NUNCA intente apagar una llama/
incendio con agua, se debe apagar
el aparato y cubrir la llama, por
ejemplo, con una tapa o con una
manta ignífuga.
•
ATENCIÓN: Riesgo de incendio: no
deje objetos sobre las superficies
de cocción.
•
ATENCIÓN: Si la superficie de
vitrocerámica está agrietada,
apague el aparato para evitar
sacudidas eléctricas.
•
No utilice nunca limpiadores a
vapor o de alta presión para la
limpieza del aparato.
•
El aparato no se debe poner en
funcionamiento a través de un
temporizador externo o de un
sistema de mando a distancia.
ATENCIÓN !
PT
Português
ATENÇÃO !
•
ATENÇÃO: Este aparelho e as suas
partes acessíveis aquecem muito
durante a utilização.
•
É preciso ter atenção e evitar tocar os
elementos que aquecem.
•
Manter afastadas as crianças com
menos de 8 anos, caso não estejam a
ser vigiadas.
•
O presente aparelho pode ser
utilizado por crianças com mais
de 8 anos e por pessoas com
capacidades físicas, sensoriais ou
mentais reduzidas ou com pouca
experiência e conhecimentos, caso
sejam adequadamente vigiadas ou
caso tenham recebido instruções em
relação ao uso do aparelho de forma
segura e tenham conhecimento dos
perigos associados. As crianças não
devem brincar com o aparelho. As
operações de limpeza e manutenção
não devem ser efectuadas por
crianças sem vigilância.
•
ATENÇÃO: Deixar um fogão com
gordura e óleo sem vigilância pode
ser perigoso e provocar um incêndio.
•
NUNCA tente apagar as chamas
com água. É necessário desligar o
aparelho e cobrir as chamas com uma
tampa ou com uma manta ignífuga.
•
ATENÇÃO: Risco de incêndio: não
deixe objectos sobre as superfícies de
cozedura.
•
ATENÇÃO: Se a superfície
vitrocerâmica estiver rachada,
desligue o aparelho para evitar a
possibilidade de choques eléctricos.
•
Nunca utilize equipamento de limpeza
a vapor ou de alta pressão para limpar
o aparelho.
•
O aparelho não é destinado a ser
colocado em funcionamento por meio
de um temporizador externo ou por
um sistema de comando à distância
separado.
4
DE
Deutsch
•
ZUR BEACHTUNG: Bei Gebrauch wird
dieses Gerät und alle zugänglichen Teile
sehr heiß.
•
Es ist darauf zu achten, dass die
Heizelemente nicht berührt werden.
•
Kinder unter 8 Jahren, die nicht ständig
beaufsichtigt sind, von dem Gerät
fernhalten.
•
Das Gerät darf von Kindern ab 8 Jahren
und Personen mit eingeschränkten
körperlichen, geistigen oder
Wahrnehmungsfähigkeiten oder
aber ohne ausreichende Erfahrung
und Kenntnis verwendet werden,
vorausgesetzt sie werden ausreichend
überwacht oder sie wurden in den
sicheren Gebrauch des Geräts
eingewiesen und haben eine
ausreichende Wahrnehmung der mit
dem Gebrauch des Geräts verbundenen
Gefahren. Erlauben Sie Kindern nicht,
mit dem Gerät zu spielen. Reinigungs-
und Wartungsarbeiten dürfen nicht von
unbewachten Kindern ausgeführt werden.
•
ZUR BEACHTUNG: Lassen Sie keine
Fette oder Öle unbewacht auf dem Herd
stehen. Das ist gefährlich und kann einen
Brand verursachen.
•
NIEMALS eine Flamme/Brandherd mit
Wasser löschen. Schalten Sie das Gerät
aus und ersticken Sie die Flamme mit
einem Deckel oder einer feuerfesten
Decke.
•
ZUR BEACHTUNG: Brandgefahr: Keine
Gegenstände auf den Kochstellen liegen
lassen.
•
ZUR BEACHTUNG: Sollte die
Glaskeramitoberfläche gesprungen
sein, schalten Sie das Gerät aus, um so
mögliche Stromschläge zu vermeiden.
•
Verwenden Sie zur Reinigung des
Kochfeldes keine Dampf- oder
Hochdruckreinigungsgeräte.
•
Dieses Gerät kann nicht mit einem
externen Timer oder einem getrennten
Fernsteuerungssystem betrieben werden.
ZUR BEACHTUNG !
•
ATTENZIONE: Questo apparecchio e
le sue parti accessibili diventano molto
caldi durante l’uso.
•
Bisogna fare attenzione ed evitare di
toccare gli elementi riscaldanti.
•
Tenere lontani i bambini inferiori agli 8
anni se non continuamente sorvegliati.
•
Il presente apparecchio puo’ essere
utilizzato dai bambini a partire dagli
8 anni e da persone con ridotte
capacita’ fisiche, sensoriali o mentali
oppure con mancanza di esperienza
e di conoscenza se si trovano sotto
adeguata sorveglianza oppure se sono
stati istruiti circa l’uso dell’apparecchio
in modo sicuro e se si rendono conto
dei pericoli correlati. I bambini non
devono giocare con l’apparecchio. Le
operazioni di pulizia e di manutenzione
non devono essere effettuate dai
bambini senza sorveglianza.
•
ATTENZIONE: Lasciare un fornello
incustodito con grassi e olii puo’
essere pericoloso e puo’ provocare un
incendio.
•
Non bisogna MAI tentare di spegnere
una fiamma/incendio con acqua, bense
bisogna spegnere l’apparecchio e
coprire la fiamma per esempio con un
coperchio o con una coperta ignifuga
•
ATTENZIONE: Rischio di incendio:
non lasciare oggetti sulle superfici di
cottura.
•
ATTENZIONE: Se la superficie
vetroceramica e’ incrinata, spegnere
l’apparecchio per evitare la possibilit?
di scossa elettrica.
•
Non utilizzare mai pulitori a vapore
o ad alta pressione per la pulizia
dell’apparecchio.
•
L’apparecchio non e’ destinato a
essere messo in funzione per mezzo
di un temporizzatore esterno oppure
di un sistema di comando a distanza
separato.
ATTENZIONE!
Italiano
IT
GB
5
NL
Nederland
PL
Polski
•
PAS OP: Dit apparaat en zijn
bereikbare onderdelen worden
tijdens gebruik zeer heet.
•
Zorg ervoor de verwarmende
elementen niet aan te raken.
•
Zorg ervoor dat kinderen die kleiner
dan 8 jaar oud zijn niet dichtbij het
apparaat kunnen komen, tenzij onder
constant toezicht.
•
Het huidige apparaat mag alleen
door kinderen van 8 jaar en ouder
en door personen met een beperkt
lichamelijk, sensorieel of geestelijk
vermogen, of zonder ervaring en
kennis worden gebruikt, mits ze
onder adequaat toezicht zijn, of
mits ze zijn onderricht m.b.t. het
veilige gebruik van het apparaat en
zich bewust zijn van de betreffende
gevaren. Voorkom dat kinderen met
het apparaat spelen. De reinigings-
en onderhoudshandelingen
mogen niet door kinderen worden
uitgevoerd, tenzij onder toezicht.
•
PAS OP: Het kan gevaarlijk zijn een
fornuis met vet of olie onbewaakt te
laten. Er kan brand ontstaan.
•
U moet NOOIT proberen een vlam/
brand te blussen met water. U dient
daarentegen het apparaat uit te
schakelen en de vlam te bedekken
met bijvoorbeeld een (blus)deken.
•
PAS OP: Brandgevaar: laat nooit
voorwerpen op het kookoppervlak
liggen.
•
PAS OP: Als het oppervlak van de
glaskeramische kookplaat gebarsten
is, moet u het apparaat uitschakelen
om te voorkomen dat u een
elektrische schok krijgt.
•
Gebruik nooit huishoudapparaten met
stoom of hoge druk voor het reinigen
van de kookplaat.
•
Het apparaat is niet geschikt om te
worden ingeschakeld m.b.v. een
externe timer of door een gescheiden
afstandsbedieningssysteem.
PAS OP !
•
UWAGA: To urz
ą
dzenie oraz jego
dost
Ċ
pne cz
ĊĞ
ci silnie si
Ċ
rozgrzewaj
ą
podczas u
Ī
ytkowania.
•
Nale
Ī
y uwa
Ī
a
ü
, aby nie dotkn
ąü
elementów grzejnych.
•
Nie pozwala
ü
, aby dzieci poni
Ī
ej 8 roku
Ī
ycia zbli
Ī
a
á
y si
Ċ
do urz
ą
dzenia, je
Ğ
li
nie s
ą
pod sta
á
ym nadzorem doros
á
ych.
•
Z niniejszego urz
ą
dzenia mog
ą
korzysta
ü
dzieci powy
Ī
ej 8 roku
Ī
ycia i osoby o ograniczonych
zdolno
Ğ
ciach fi zycznych, zmys
á
owych
b
ą
d
Ĩ
umys
á
owych, jak równie
Ī
osoby
nieposiadaj
ą
ce do
Ğ
wiadczenia lub
znajomo
Ğ
ci urz
ą
dzenia, je
Ğ
li znajduj
ą
si
Ċ
one pod nadzorem innych osób
lub je
Ğ
li zosta
á
y pouczone na temat
bezpiecznego sposobu u
Ī
ycia
urz
ą
dzenia oraz zdaj
ą
sobie spraw
Ċ
ze zwi
ą
zanych z nim zagro
Ī
e
Ĕ
. Dzieci
nie powinny bawi
ü
si
Ċ
urz
ą
dzeniem.
Prace zwi
ą
zane z czyszczeniem
i konserwacj
ą
nie mog
ą
by
ü
wykonywane przez dzieci, je
Ğ
li nie s
ą
one nadzorowane.
•
UWAGA: Pozostawienie bez nadzoru
na kuchence t
á
uszczów i olejów
mo
Ī
e by
ü
niebezpieczne i mo
Ī
e
spowodowa
ü
po
Ī
ar.
•
Nie nale
Ī
y NIGDY próbowa
ü
ugasi
ü
p
á
omieni/po
Ī
aru wod
ą
; nale
Ī
y wy
áą
czy
ü
urz
ą
dzenie i przykry
ü
p
á
omie
Ĕ
np.
pokrywk
ą
lub ognioodpornym kocem.
•
UWAGA: Ryzyko po
Ī
aru: nie
pozostawia
ü
przedmiotów na
powierzchniach grzejnych.
•
UWAGA: Je
Ī
eli powierzchnia ze szk
á
a
ceramicznego jest p
Ċ
kni
Ċ
ta, nale
Ī
y
wy
áą
czy
ü
urz
ą
dzenie, aby unikn
ąü
niebezpiecze
Ĕ
stwa pora
Ī
enia pr
ą
dem
elektrycznym.
•
Nie stosowa
ü
nigdy oczyszczaczy
parowych lub ci
Ğ
nieniowych do
czyszczenia urz
ą
dzenia.
•
Urz
ą
dzenie nie jest przeznaczone do
w
áą
czania przy u
Ī
yciu zewn
Ċ
trznego
przeka
Ĩ
nika czasowego lub zdalnego
systemu sterowania
.
UWAGA !
6
RS
Ɋɭɫɫɤɢɣ
ȼɇɂɆȺɇɂȿ
!
•
ȼɇɂɆȺɇɂȿ
:
Ⱦɚɧɧɨɟ ɢɡɞɟɥɢɟ ɢ
ɟɝɨ ɞɨɫɬɭɩɧɵɟ ɤɨɦɩɥɟɤɬɭɸɳɢɟ
ɫɢɥɶɧɨ ɧɚɝɪɟɜɚɸɬɫɹ ɜ ɩɪɨɰɟɫɫɟ
ɷɤɫɩɥɭɚɬɚɰɢɢ
.
•
Ȼɭɞɶɬɟ ɨɫɬɨɪɨɠɧɵ ɢ ɧɟ ɤɚɫɚɣɬɟɫɶ
ɧɚɝɪɟɜɚɬɟɥɶɧɵɯ ɷɥɟɦɟɧɬɨɜ
.
•
ɇɟ ɪɚɡɪɟɲɚɣɬɟ ɞɟɬɹɦ ɦɥɚɞɲɟ
8
ɥɟɬ ɩɪɢɛɥɢɠɚɬɶɫɹ ɤ ɢɡɞɟɥɢɸ ɛɟɡ
ɤɨɧɬɪɨɥɹ
.
•
Ⱦɚɧɧɨɟ ɢɡɞɟɥɢɟ ɦɨɠɟɬ ɛɵɬɶ
ɢɫɩɨɥɶɡɨɜɚɧɨ ɞɟɬɶɦɢ ɫɬɚɪɲɟ
8
ɥɟɬ ɢ ɥɢɰɚɦɢ ɫ ɨɝɪɚɧɢɱɟɧɧɵɦɢ
ɮɢɡɢɱɟɫɤɢɦɢ
,
ɫɟɧɫɨɪɧɵɦɢ ɢɥɢ
ɭɦɫɬɜɟɧɧɵɦɢ ɫɩɨɫɨɛɧɨɫɬɹɦɢ ɢɥɢ
ɛɟɡ ɨɩɵɬɚ ɢ ɡɧɚɧɢɹ ɨ ɩɪɚɜɢɥɚɯ
ɢɫɩɨɥɶɡɨɜɚɧɢɹ ɢɡɞɟɥɢɹ ɩɪɢ ɭɫɥɨɜɢɢ
ɧɚɞɥɟɠɚɳɟɝɨ ɤɨɧɬɪɨɥɹ ɢɥɢ ɨɛɭɱɟɧɢɹ
ɛɟɡɨɩɚɫɧɨɦɭ ɢɫɩɨɥɶɡɨɜɚɧɢɸ
ɢɡɞɟɥɢɹ ɫ ɭɱɟɬɨɦ ɫɨɨɬɜɟɬɫɬɜɭɸɳɢɯ
ɪɢɫɤɨɜ
.
ɇɟ ɪɚɡɪɟɲɚɣɬɟ ɞɟɬɹɦ ɢɝɪɚɬɶ
ɫ ɢɡɞɟɥɢɟɦ
.
ɇɟ ɪɚɡɪɟɲɚɣɬɟ ɞɟɬɹɦ
ɨɫɭɳɟɫɬɜɥɹɬɶ ɱɢɫɬɤɭ ɢ ɭɯɨɞ ɡɚ
ɢɡɞɟɥɢɟɦ ɛɟɡ ɤɨɧɬɪɨɥɹ ɜɡɪɨɫɥɵɯ
.
•
ȼɇɂɆȺɇɂȿ
:
Ɉɩɚɫɧɨ ɨɫɬɚɜɥɹɬɶ
ɜɤɥɸɱɟɧɧɭɸ ɤɨɧɮɨɪɤɭ ɫ ɦɚɫɥɨɦ ɢɥɢ
ɠɢɪɨɦ ɛɟɡ ɩɪɢɫɦɨɬɪɚ
,
ɬɚɤ ɤɚɤ ɷɬɨ
ɦɨɠɟɬ ɩɪɢɜɟɫɬɢ ɤ ɩɨɠɚɪɭ
.
•
ɇɂɄɈȽȾȺ ɧɟ ɩɵɬɚɣɬɟɫɶ ɩɨɝɚɫɢɬɶ
ɩɥɚɦɹ
/
ɩɨɠɚɪ ɜɨɞɨɣ
.
ɉɪɟɠɞɟ ɜɫɟɝɨ
ɜɵɤɥɸɱɢɬɟ ɢɡɞɟɥɢɟ ɢ ɧɚɤɪɨɣɬɟ
ɩɥɚɦɹ ɤɪɵɲɤɨɣ ɢɥɢ ɨɝɧɟɭɩɨɪɧɨɣ
ɬɤɚɧɶɸ
.
•
ȼɇɂɆȺɇɂȿ
:
Ɉɩɚɫɧɨɫɬɶ ɩɨɠɚɪɚ
:
ɧɟ
ɨɫɬɚɜɥɹɣɬɟ ɩɪɟɞɦɟɬɨɜ ɧɚ ɜɚɪɨɱɧɵɯ
ɩɨɜɟɪɯɧɨɫɬɹɯ
.
•
ȼɇɂɆȺɇɂȿ
:
ȿɫɥɫɬɟɤɥɨɤɟɪɚɦɢɱɟɫɤɚɹ
ɩɨɜɟɪɯɧɨɫɬɶ ɜɚɪɨɱɧɨɣ ɩɚɧɟɥɢ
ɬɪɟɫɧɭɥɚ
,
ɜɵɤɥɸɱɢɬɟ ɟɟ ɜɨ
ɢɡɛɟɠɚɧɢɟ ɭɞɚɪɨɜ ɬɨɤɨɦ
.
•
ɇɢɤɨɝɞɚ ɧɟ ɢɫɩɨɥɶɡɭɣɬɟ ɩɚɪɨɜɵɟ
ɱɢɫɬɹɳɢɟ ɚɝɪɟɝɚɬɵ ɢɥɢ ɚɝɪɟɝɚɬɵ
ɩɨɞ ɜɵɫɨɤɢɦ ɞɚɜɥɟɧɢɟɦ ɞɥɹ ɱɢɫɬɤɢ
ɢɡɞɟɥɢɹ
.
•
ɂɡɞɟɥɢɟ ɧɟ ɪɚɫɫɱɢɬɚɧɨ ɧɚ
ɜɥɸɱɟɧɢɟ ɩɨɫɪɟɞɫɬɜɨɦ ɜɧɟɲɧɟɝɨ
ɫɢɧɯɪɨɧɢɡɚɬɨɪɚ ɢɥɢ ɨɬɞɟɥɶɧɨɣ
ɫɢɫɬɟɦɵ ɞɢɫɬɚɧɰɢɨɧɧɨɝɨ
ɭɩɪɚɜɥɟɧɢɹ
.
GB
7
Description of the appliance
Control panel
GB
Description de l’appareil
Tableau de bord
FR
The control panel described in this manual is only a
representative example: it may not exactly match the panelon
your appliance.
1
INCREASE POWER
button switches on the hotplate
and controls the power (
see Start-up and use
).
2
REDUCE POWER
button controls the power and
switches off the hotplate (
see Start-up and use
).
3
COOKING ZONE SELECTOR
indicator shows a
particular cooking zone has been selected and
therefore various adjustments are possible.
4
COOKING ZONE SELECTOR
button is used to
select the desired cooking zone.
5
POWER
indicator provides a visual display for the
current heat level.
6
ON/OFF
button switches the appliance on and off.
7
ON/OFF
indicator light shows whether the appliance
is on or off.
8
CONTROL PANEL LOCK
button prevents
accidental changes to the hob settings (
see Start-up
and use
).
9
CONTROL PANEL LOCK
indicator light shows the
control panel has been locked (
see Start-up and use
).
! This product complies with the requirements of the
latest European Directive on the limitation of power
consumption of the standby mode.
If no operations are carried out for a period of 2
minutes, after the residual heat indicator lights turn
off and the fan stops (if present), the appliance
automatically switches to the .off mode..
The appliance resumes the operating mode once the
ON/OFF button is pressed.
Le tableau de bord qui est
décrit n.a qu.une valeur d.exemple :
il peut ne pas correspondre au modèle acheté
.
1 Touche
AUGMENTATION DE PUISSANCE
pour
allumer le foyer et régler sa puissance (
voir Mise en
marche et utilisation
).
2 Touche
DIMINUTION DE PUISSANCE
pour régler la
puissance et éteindre le foyer (
voir Mise en marche et
utilisation
).
3 Voyant
FOYER SELECTIONNÉ
pour signaler que
le foyer correspondant a été sélectionné et que les
régulations sont donc possibles.
4 Touche
SÉLECTION FOYER
pour sélectionner le
foyer souhaité
5 Indicateur de
PUISSANCE
: une colonne lumineuse
pour signaler le niveau de puissance atteint.
6 Touche
ON/OFF
pour allumer ou éteindre l’appareil.
7 Voyant
ON/OFF
: il signale si l’appareil est allumé ou
éteint.
8 Touche
VERROUILLAGE DES COMMANDES
pour empêcher toute intervention extérieure sur les
réglages de la table de cuisson (
voir Mise en marche
et Utilisation
).
9 Voyant
COMMANDES VERROUILLÉES
: pour
signaler le verrouillage des commandes (
voir Mise en
marche et Utilisation
).
!
Ce produit est conforme à la nouvelle Directive
Européenne sur la réduction de la consommation
d’énergie en mode standby.
Sans opérations pendant 2 minutes, après
l’extinction des voyants de chaleur résiduelle et
l’arrêt du ventilateur (si existants), l’appareil se place
automatiquement en „off mode”.
Pour remettre l’appareil en mode de fonctionnement
normal, appuyer sur la touche ON/OFF.
13
1
2
3
5
4
6
7
8
9 10
11
12
14
15
8
Descripción del aparato
Panel de control
ES
Descrição do aparelho
Painel de comandos
PT
El panel de control se describe a continuación a modo de
ejemplo: puede no ser una exacta reproducción del
modelo adquirido.
1 Botón
AUMENTO DE POTENCIA
para encender
la placa y regular la potencia (
ver Puesta en
funcionamiento y uso
).
2 Botón
DISMINUCIÓN DE POTENCIA
para regular
la potencia y apagar la placa (
ver Puesta en
funcionamiento y uso
).
3 Piloto
ZONA DE COCCIÓN SELECCIONADA
indica
que ha sido seleccionada dicha zona de cocción
y, por lo tanto, se pueden realizar las distintas
regulaciones
4 Botón
SELECCIÓN DE ZONA DE COCCIÓN
para
seleccionar la zona de cocción deseada
5 Indicador de
POTENCIA
: indica visualmente el nivel
de calor alcanzado.
6 Botón
ON/OFF
para encender y apagar el aparato.
7 Piloto
ON/OFF
: indica si el aparato está encendido o
apagado.
8 Botón
BLOQUEO DE MANDOS
para impedir
modificaciones fortuitas a las regulaciones de la
encimera (
ver Puesta en funcionamiento y uso
).
9 Piloto
MANDOS BLOQUEADOS
: indica que se ha
producido el bloqueo de los mandos (
ver Puesta en
funcionamiento y uso
).
! Este producto satisface los requisitos establecidos
por la nueva Directiva europea sobre la limitación de
los consumos energéticos en standby.
Si no se realizan operaciones por 2 minutos, una vez
que se apagan los luces piloto del calor residual y
del ventilador (si están presentes), el aparato se
coloca de forma automática en el modo .off mode..
El aparato vuelve al modo operativo utilizando la
tecla ON/OFF.
O painel de comandos descrito a seguir está representado para
fins explicativos: pode não ser uma exacta
reprodução do modelo comprado.
1 Botão
AUMENTO POTÊNCIA
para ligar a chapa e
regular a potência (
veja Início e utilização
).
2 Botão
DIMINUIÇÃO POTÊNCIA
para regular a
potência e desligar a chapa (
veja Início e utilização
).
3 Indicador luminoso
ZONA DE COZEDURA
SELECCIONADA
indica que a zona de cozedura
relativa foi seleccionada e são portanto possíveis as
várias regulações.
4 Botão
SELECÇÃO ZONA DE COZEDURA
para
seleccionar a zona de cozedura desejada.
5 Indicador
POTÊNCIA
sinaliza visualmente o nível de
calor alcançado.
6 Botão
ON/OFF
para ligar e desligar o aparelho.
7 Indicador
ON/OFF
: sinaliza se o aparelho está
aceso ou apagado.
8 Botão
BLOQUEIO DOS COMANDOS
para impedir
modificações acidentais das regulações do plano
de cozedura (
veja Início e utilização
).
9 Indicador luminoso
COMANDOS BLOQUEADOS
:
sinaliza o bloqueio dos comandos (
veja Início e
utilização
).
! Este produto satisfaz os requisitos impostos pela
nova Directiva Europeia sobre a limitação dos
consumos energéticos em stand-by.
Se não se efectuarem operações por 2 minutos,
depois que os indicadores de calor resíduo e da
ventoinha (se presentes) se desligarem, o aparelho
coloca-se automaticamente na modalidade .off
mode..
O aparelho voltará para a modalidade operativa ao
carregar na tecla ON/OFF.
DE
Beschreibung des Gerätes
Bedienfeld
Das hier beschriebene Bedienfeld dient nur als Beispiel,
es handelt sich nicht unbedingt um eine genaue
Widergabe des von Ihnen erworbenen Modells.
1 Taste
ERHÖHEN DER LEISTUNG:
Zum Einschalten
sowie zur Leistungsregelung der Kochzone (
siehe
Inbetriebsetzung und Gebrauch
).
2 Taste
HERABSETZEN DER LEISTUNG:
Zur
Leistungsregelung sowie zum Ausschalten der
Kochzone (
siehe Inbetriebsetzung und Gebrauch
).
3 Kontrollleuchte
GEWÄHLTE KOCHZONE:
Diese zeigt an, dass die der Kontrollleuchte
entsprechende Kochzone gewählt wurde und die
gewünschten Einstellungen demnach vorgenommen
werden können.
4 Taste
WAHL DER KOCHZONE:
Mittels dieser wird
die gewünschte Kochzone gewählt.
5 LEISTUNGSANZEIGE: Auf dieser ist der jeweils
erreichte Heizwert ersichtlich.
6 Taste
ON/OFF:
Zum Ein- bzw. Ausschalten des
Gerätes.
7 Kontrollleuchte
ON/OFF:
Diese zeigt an, ob das
Gerät ein- oder ausgeschaltet ist.
8 Taste
SPERRE DER SCHALTELEMENTE:
Um
versehentliche Änderungen der am Kochfeld
erfolgten Einstellungen zu verhindern (
siehe
Inbetriebsetzung und Gebrauch
).
9 Kontrollleuchte
SCHALTELEMENTE GESPERRT:
Diese signalisiert, dass die Schaltelemente gesperrt
wurden (
siehe Inbetriebsetzung und Gebrauch
).
! Dieses Produkt entspricht den Vorschriften der
neuen Europäischen Richtlinie zur Einschränkung des
Energieverbrauchs im Standby. Werden für 2 Minuten keine
Tasten gedrückt, dann stellt sich das Gerät nach Ausschalten
der Anzeigen für Resthitze und des Lüfters (wenn vorhanden)
automatisch in den “off mode”. Das Gerät kehrt durch Drücken
der Taste ON/OFF in den Betriebsmodus zurück.
GB
9
IT
Il pannello di controllo che qui viene descritto è
rappresentato a fini esemplificativi: può non essere una
esatta riproduzione del modello acquistato.
1 Tasto
AUMENTO POTENZA
per accendere la
piastra e regolare la potenza (
vedi Avvio e utilizzo
).
2 Tasto
DIMINUZIONE POTENZA
per regolare la
potenza e spegnere la piastra (
vedi Avvio e utilizzo
).
3 Spia
ZONA DI COTTURA SELEZIONATA
indica
che la zona di cottura relativa è stata selezionata e
quindi sono possibili le varie regolazioni
4 Tasto
SELEZIONE ZONA DI COTTURA
per
selezionare la zona di cottura desiderata
5 Indicatore
POTENZA
: segnala visivamente il livello
di calore raggiunto.
6 Tasto
ON/OFF
per accendere e spegnere
l’apparecchio.
7 Spia
ON/OFF
: segnala se l’apparecchio è acceso
o
spento.
8 Tasto
BLOCCO DEI COMANDI
per impedire
modifiche fortuite alle regolazioni del piano cottura
(
vedi Avvio e utilizzo
).
9 Spia
COMANDI BLOCCATI
: segnala l’avvenuto
blocco dei comandi (
vedi Avvio e utilizzo
).
!
Questo prodotto soddisfa i requisiti imposti dalla nuova
Direttiva Europea sulla limitazione dei consumi energetici in
standby. Se non si eseguono operazioni per 2 minuti, dopo
lo spegnimento delle spie di calore residuo e della ventola
(ove presenti), l’apparecchio si dispone automaticamente
in modalità “off mode”. L’apparecchio ritorna in modalità
operativa agendo sul tasto ON/OFF.
Descrizione dell’apparecchio
Pannello di controllo
NL
Beschrijving van het apparaat
Bedieningspaneel
Het bedieningspaneel dat hier wordt beschreven en afgebeeld geldt
alleen als voorbeeld: het is mogelijk dat het niet exact overeenkomt met
het door u aangeschafte model.
1 Toets
TOENAME VERMOGEN
om de kookplaat
aan te zetten en het vermogen ervan te regelen (
zie
Starten en gebruik
).
2 Toets
AFNAME VERMOGEN
om het vermogen te
regelen en de kookplaat uit te zetten (
zie Starten en
gebruik
).
3 Controlelampje
GESELECTEERD
KOOKGEDEELTE
geeft aan dat het betreffende
kookgedeelte geselecteerd is en dat u het kunt
regelen.
4 Toets
SELECTEREN KOOKGEDEELTE
om het
gewenste kookgedeelte te selecteren
5 Aanwijzer
VERMOGEN
: geeft het bereikte
warmteniveau aan.
6 Toets
ON/OFF
voor het in- en uitschakelen van het
apparaat.
7 Controlelampje
ON/OFF
: geeft aan of het apparaat
in- of uitgeschakeld is.
8 Toets
BLOKKERING BEDIENINGSPANEEL
om
te voorkomen dat er ongewilde wijzigingen aan de
regeling van het kookvlak worden uitgevoerd (
zie
Starten en gebruik
).
9 Controlelampje
BLOKKERING
BEDIENINGSPANEEL
: toont dat de blokkering van
het bedieningspaneel heeft plaatsgevonden (
zie
Starten en gebruik
).
!
Dit product voldoet aan de eisen die gesteld worden door de
nieuwe Europese Richtlijn voor energiebesparing voor apparaten
in de standby-stand.
Wanneer 2 minuten lang geen handelingen worden uitgevoerd
gaat het apparaat, na het uitgaan van de waarschuwingslampjes
voor restwarmte en voor de ventilator (indien aanwezig),
automatisch in de “off mode”.
Door op de ON/OFF toets te drukken, keert het apparaat weer
terug in de operationele stand.
PL
Opis urz
ą
dzenia
Panel sterowania
Opisany tu panel sterowania jest przedstawiony jako
przyk
á
ad: nie musi by
ü
dok
á
adnie taki sam, jak panel
zainstalowany w zakupionym urz
ą
dzeniu.
Przycisk
ZWIEKSZENIA MOCY
do wlaczania plyty i
do regulacji mocy (
patrz Uruchomienie i uzytkowanie
).
2 Przycisk
ZMNIEJSZENIA MOCY
do regulacji
mocy i do wylaczania plyty (
patrz Uruchomienie i
uzytkowanie
).
3 Kontrolka
WYBRANEGO POLA GRZEJNEGO
wskazuje, ze dane pole grzejne zostalo wybrane, a
wiec mozliwe sa rózne regulacje
4 Przycisk
WYBORU POLA GRZEJNEGO
do
wybrania zadanego pola grzejnego.
5 WskaŸnik
MOCY
: wizualnie sygnalizuje osi¹gniêty
poziom ciep³a.
6 Przycisk
ON/OFF
do wlaczania i wylaczania
urzadzenia.
7 Kontrolka
ON/OFF
: sygnalizuje, czy urzadzenie jest
wlaczone, czy wylaczone.
8 Przycisk
BLOKADY STEROWANIA
do
zapobiegania przypadkowym zmianom parametrów
przy regulacji plyty grzejnej (
patrz Uruchomienie i
uzytkowanie
).
9 Kontrolka
BLOKADY STEROWANIA
: sygnalizuje
zablokowanie sterowania (
patrz Uruchomienie i
uzytkowanie
).
! Ten produkt spe
á
nia wymogi dyrektywy wspólnotowej
dotycz
ą
cej ograniczenia zu
Ī
ycia energii w trybie czuwania.
Je
Ğ
li przez 2 minuty nie s
ą
wykonywane
Ī
adne operacje,
po wy
áą
czeniu wska
Ĩ
nika ciep
á
a resztkowego i wentylatora
(je
Ğ
li obecne), urz
ą
dzenie automatycznie przechodzi w tryb
„off mode”.Urz
ą
dzenie powraca do trybu aktywnego po
naci
Ğ
ni
Ċ
ciu przycisku ON/OFF.
10
RS
Ɉɩɢɫɚɧɢɟ ɢɡɞɟɥɢɹ
ɉɚɧɟɥɶ ɭɩɪɚɜɥɟɧɢɹ
ɉɚɧɟɥɶ ɭɩɪɚɜɥɟɧɢɹ
,
ɨɩɢɫɚɧɢɟ ɤɨɬɨɪɨɢ ɩɪɢɜɨɞɢɬɫɹ
ɧɢɠɟ
,
ɫɥɭɠɢɬ ɬɨɥɶɤɨ ɜ ɤɚɱɟɫɬɜɟ ɩɪɢɦɟɪɚ
:
ɨɧɚ ɦɨɠɟɬ ɧɟ
ɜ ɬɨɱɧɨɫɬɢ ɫɨɨɬɜɟɬɫɬɜɨɜɚɬɶ ȼɚɲɟɢ ɦɨɞɟɥɢ
1
Ʉɧɨɩɤɚ
ɍȼȿɅɂɑȿɇɂȿ ɆɈɓɇɈɋɌɂ
ɫɥɭɠɢɬ ɞɥɹ
ɜɤɥɸɱɟɧɢɹ ɜɚɪɨɱɧɨɢ ɡɨɧɵ ɢ ɪɟɝɭɥɹɰɢɢ ɦɨɳɧɨɫɬɢ
ɧɚɝɪɟɜɚ
(
ɫɦ
.
ȼɤɥɸɱɟɧɢɟ ɢ ɷɤɫɩɥɭɚɬɚɰɢɹ
).
2
Ʉɧɨɩɤɚ
ɍɆȿɇɖɒȿɇɂȿ ɆɈɓɇɈɋɌɂ
ɫɥɭɠɢɬ ɞɥɹ
ɪɟɝɭɥɹɰɢɢ ɦɨɳɧɨɫɬɢ ɢ ɜɵɤɥɸɱɟɧɢɹ ɜɚɪɨɱɧɨɢ
ɡɨɧɵ
(
ɫɦ
.
ȼɤɥɸɱɟɧɢɟ ɢ ɷɤɫɩɥɭɚɬɚɰɢɹ
).
3
ɂɧɞɢɤɚɬɨɪ
ȼɕȻɊȺɇɇȺə ȼȺɊɈɑɇȺə ɁɈɇȺ
ɩɨɤɚɡɵɜɚɟɬ
,
ɱɬɨ ɫɨɨɬɜɟɬɫɬɜɭɸɳɚɹ ɜɚɪɨɱɧɚɹ
ɡɨɧɚ ɛɵɥɚ ɜɵɛɪɚɧɚ ɢ ɫɥɟɞɨɜɚɬɟɥɶɧɨ ɜɨɡɦɨɠɧɨ
ɩɪɨɢɡɜɟɫɬɢ ɧɚɫɬɪɨɢɤɢ ɟɟ ɮɭɧɤɰɢɢ
.
4
Ʉɧɨɩɤɚ
ȼɕȻɈɊ ȼȺɊɈɑɇɈɂ ɁɈɇɕ
ɫɥɭɠɢɬ ɞɥɹ
ɜɵɛɨɪɚ ɧɭɠɧɨɢ ɜɚɪɨɱɧɨɢ ɡɨɧɵ
.
5
ɂɧɞɢɤɚɬɨɪ
ɆɈɓɇɈɋɌɖ
:
ɩɨɤɚɡɵɜɚɟɬ ɭɪɨɜɟɧɶ
ɧɚɝɪɟɜɚ
.
6
Ʉɧɨɩɤɚ
ON/OFF (
ȼɄɅ
./
ȼɕɄɅ
.)
ɫɥɭɠɢɬ ɞɥɹ
ɜɤɥɸɱɟɧɢɹ ɢ ɜɵɤɥɸɱɟɧɢɹ ɢɡɞɟɥɢɹ
.
7
ɂɧɞɢɤɚɬɨɪ
ON/OFF (
ȼɄɅ
./
ȼɕɄɅ
.)
:
ɩɨɤɚɡɵɜɚɟɬ
ɫɨɫɬɨɹɧɢɟ ɢɡɞɟɥɢɹ
,
ɜɤɥɸɱɟɧɨ ɢɥɢ ɜɵɤɥɸɱɟɧɨ
.
8
Ʉɧɨɩɤɚ
ȻɅɈɄɂɊɈȼɄȺ ɍɉɊȺȼɅȿɇɂɂ
ɫɥɭɠɢɬ
ɞɥɹ ɡɚɳɢɬɵ ɭɩɪɚɜɥɟɧɢɢ ɜɚɪɨɱɧɨɢ ɩɚɧɟɥɢ
ɨɬ ɫɥɭɱɚɢɧɵɯ ɢɡɦɧɟɧɢɢ
(
ɫɦ
.
ȼɤɥɸɱɟɧɢɟ ɢ
ɷɤɫɩɥɭɚɬɚɰɢɹ
).
9
ɂɧɞɢɤɚɬɨɪ
ɍɉɊȺȼɅȿɇɂə ɁȺȻɅɈɄɂɊɈȼȺɇɕ
ɩɨɤɚɡɵɜɚɟɬ
,
ɱɬɨ ɭɩɪɚɜɥɟɧɢɹ ɡɚɛɥɨɤɢɪɨɜɚɧɵ
(
ɫɦ
.
ȼɤɥɸɱɟɧɢɟ ɢ ɷɤɫɩɥɭɚɬɚɰɢɹ
).
!
Ⱦɚɧɧɨɟ ɢɡɞɟɥɢɟ ɨɬɜɟɱɚɟɬ ɬɪɟɛɨɜɚɧɢɹɦ ɧɨɜɨɣ
ȿɜɪɨɩɟɣɫɤɨɣ Ⱦɢɪɟɤɬɢɜɵ ɩɨ ɨɝɪɚɧɢɱɟɧɢɸ
ɷɧɟɪɝɨɩɨɬɪɟɛɥɟɧɢɹ ɜ ɪɟɠɢɦɟ ɷɧɟɪɝɨɫɛɟɪɟɠɟɧɢɹ
.
ȿɫɥɢ ɜ ɬɟɱɟɧɢɟ
2-
ɯ ɦɢɧɭɬ ɧɟ ɩɪɨɢɡɜɨɞɢɬɫɹ
ɧɢɤɚɤɢɯ ɞɟɣɫɬɜɢɣ ɩɨɫɥɟ ɜɵɤɥɸɱɟɧɢɹ ɢɧɞɢɤɚɬɨɪɨɜ
ɨɫɬɚɬɨɱɧɨɝɨ ɬɟɩɥɚ ɢ ɜɟɧɬɢɥɹɬɨɪɚ
(
ɟɫɥɢ ɨɧɢ
ɩɪɢɫɭɬɫɬɜɭɸɬ
),
ɢɡɞɟɥɢɟ ɚɜɬɨɦɚɬɢɱɟɫɤɢ ɩɟɪɟɯɨɞɢɬ ɜ
ɪɟɠɢɦ
«
ȼɕɄɅ
.».
ȼɨɡɜɪɚɬ ɢɡɞɟɥɢɹ ɜ ɪɚɛɨɱɢɣ ɪɟɠɢɦ ɩɪɨɢɡɜɨɞɢɬɫɹ
ɤɧɨɩɤɨɣ ȼɄɅ
./
ȼɕɄɅ
.
11
GB
Installation
!
Before operating your new appliance please read
this instruction booklet carefully. It contains important
information concerning the safe operation, installation
and maintenance of the appliance.
!
Please keep these operating instructions for future
reference. Pass them on to any new owners of the
appliance.
Positioning
!
Keep all packaging material out of the reach of
children. It may present a choking or suffocation
hazard (
see Precautions and tips
).
!
The appliance must be installed by a qualified
professional in accordance with the instructions
provided. Incorrect installation may cause harm to
people and animals or may damage property.
Built-in appliance
Use a suitable cabinet to ensure that the appliance
functions properly.
• The supporting surface must be heat-resistant up to
a temperature of approximately 100°C.
• If the appliance is to be installed above an oven,
the oven must be equipped with a forced ventilation
cooling system.
• Avoid installing the hob above a dishwasher: if this
cannot be avoided, place a waterproof separation
device between the two appliances.
• Depending on the hob you want to install, the
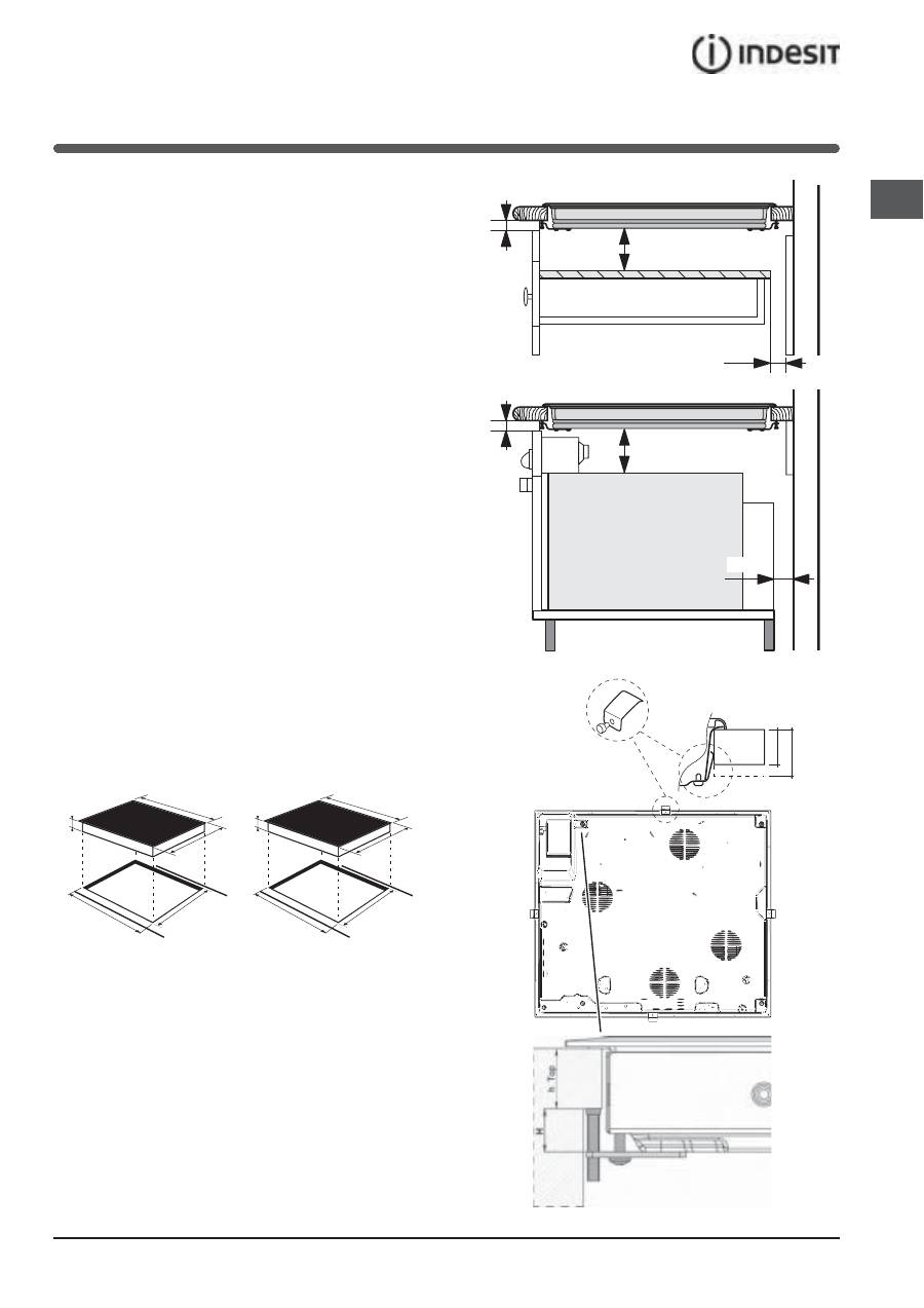
cabinet must have the following dimensions (
see
fi gure
):
560 +/- 1
490 +/- 1
48
590
520
560 +/- 1
490 +/- 1
48
574
504
Ventilation
To allow adequate ventilation and to avoid overheating of
the surrounding surfaces the hob should be positioned as
follows:
• At a minimum distance of 40 mm from the back
panel.
• So that a minimum distance of 20 mm is maintained
between the installation cavity and the cabinet
underneath.
• Kitchen cabinets adjacent to the appliance and taller
than the top of the hob must be at least 600 mm
from the edge of the hob.
FRONT SIDE
OF HOB
SUPPORTING
SURFACE
30
40
UNDERSIDE
OF HOB
5 mm
min. 20 mm
min. 20 mm
min. 40 mm
COMPARTMENT
5 mm
min. 40 mm
FAN-ASSISTED
OVEN
12
GB
Fixing
The appliance must be installed
on a perfectly level
supporting surface.
Any deformities caused by improper fixing could affect
the features and operation of the hob.
The thickness of the supporting surface should be taken
into account when choosing
the length of the screws for
the fixing hooks:
• 30 mm thick: 17.5 mm screws
• 40 mm thick: 7.5 mm screws
Fix the hob as follows:
1. Use short flat-bottomed screws to fix the 4 alignment
springs in the holes provided at the central point of
each side of the hob.
2. Place the hob in the cavity, make sure it is in a
central position and push down on the whole perimeter
until the hob is stuck to the supporting surface.
3. For hobs with raised sides: After inserting the hob
into its cavity, insert the 4 fixing hooks (each has its
own pin) into the lower edges of the hob, using the
long pointed screws to fix them in place, until the glass
is stuck to the supporting surface.
!
The screws for the alignment springs must remain
accessible.
!
In order to adhere to safety standards, the appliance
must not come into contact with electrical parts once it
has been installed.
!
All parts which ensure the safe operation of the
appliance must not be removable without the aid of a
tool.
Electrical connection
!
The electrical connection for the hob and for any built-
in oven must be carried out separately, both for safety
purposes and to make extracting the oven easier.
Terminal board
On the lower part of the appliance there is a
connection box for the different
types of electricity supply (the
picture is only an indication and
is not an exact representation
of the purchased model).
Single-phase connection
The hob is equipped with a pre-connected electricity
supply cable, which is designed for single-phase
connection. Connect the wires in accordance with the
instructions given in the following table and diagrams:
Voltage and
mains frequency
Electrical cable
Wire connection
230-240V 1+N ~
220-240V 1+N ~
50/60 Hz
: yellow/green
N
: the two blue wires together
L
: brown and black together
Other types of connection
If the mains supply corresponds with one of the
following:
Voltage and mains frequency
• 400V - 2+N ~ 50/60 Hz
• 220-240V 3 ~ 50/60 Hz
• 230-240V 3 ~ 50/60 Hz
• 400V - 2+2N ~ 50/60 Hz
Separate the wires and connect them in accordance with
the instructions given in the following table and diagrams:
Voltage and
mains frequency
Electrical cable
Wire connection
400V - 2+N ~
50/60 Hz
230-240V 3 ~
220-240V 3 ~
50/60 Hz
: yellow/green;
N
: the two blue wires
together
L1
: black
L2
: brown
400V - 2+2N ~
50/60 Hz
: yellow/green;
N1
: blue
N2
: blue
L1
: black
L2
: brown
If the mains supply corresponds with one of the
following:
Voltage and mains frequency
• 400V 3 - N ~ 50/60 Hz
proceed as follows:
!
The cable provided is not suitable for the following
types of installation.
1. Use a suitable supply cable, H05RR-F or higher, with
the right dimensions (cable cross section: 25 mm).
2. To open the terminal board, use a screwdriver as
a lever under the side tabs of the cover (
see Terminal
board picture
).
3. Loosen the cable clamp screw and the terminal
board screws in accordance with the type of
connection required and position the connection
supports as shown in the following table and diagrams.
4. Position the wires in accordance with the information
given in the following table and diagrams and connect
the appliance by tightening all the screws for the
springs as much as possible.
Voltage and
mains frequency
Electrical connections
Terminal board
400V 3-N ~
50/60 Hz
Three-phase 400
UNDERSIDE OF HOB
13
GB
5. Secure the power supply cable by fastening the
cable clamp screw, then put the cover back on.
Three-phase 400
U-bolt
connection support
Neutral
Earth
Phase
Phase
Phase
1
2
3
5
4
Connecting the electricity supply cable to the mains
If the appliance is being connected directly to the
electricity mains an omnipolar switch must be installed
with a minimum opening of 3 mm between contacts.
!
The installer must ensure that the correct electrical
connection has been made and that it is fully compliant
with safety regulations.
Before connecting the appliance to the power supply,
make sure that:
• The appliance is earthed and the plug is compliant
with the law.
• The socket can withstand the maximum power of
the appliance, which is indicated on the data plate
located on the appliance itself.
• The voltage falls within the range of values indicated
on the data plate.
• The socket is compatible with the plug of the
appliance. If the socket is incompatible with the plug,
ask an authorised technician to replace it. Do not use
extension cords or multiple sockets.
!
Once the appliance has been installed, the power
supply cable and the electrical socket must be easily
accessible.
!
The cable must not be bent or compressed.
!
The cable must be checked regularly and replaced by
authorised technicians only.
!
The manufacturer declines any liability should these
safety measures not be observed.
!
Do not remove or replace the power supply cable
for any reason. Its removal or replacement will void
the warranty and the CE marking. INDESIT does not
assume liability for accidents or damage arising from
replacement/removal of the original power supply
cable. Replacement can only be accepted when
carried out by personnel authorised by INDESIT and
using an original spare part.
Extendable cooking zones
Certain models are fitted with extendable cooking
zones. These may be circular and may vary in their
extensibility (they may be double or triple hotplates).
A list of controls is given below (these controls are
only present in models with the extendable cooking
zone option).
Circular extendable hotplate
•
DOUBLE HOTPLATE ON
button switches on the
double hotplate (
see Start-up and use
).
•
DOUBLE HOTPLATE ON indicator light shows
the double hotplate has been switched on.
•
TRIPLE HOTPLATE ON
button switches on the
triple hotplate (
see Start-up and use
).
•
TRIPLE HOTPLATE ON indicator light shows the
triple hotplate has been switched on.
DOUBLE
HOTPLATE ON
indicator light
DOUBLE
HOTPLATE ON
button
TRIPLE
HOTPLATE ON
indicator light
TRIPLE
HOTPLATE ON
button
14
GB
Start-up and use
!
The glue applied on the gaskets leaves traces of
grease on the glass. Before using the appliance, we
recommend you remove these with a special non-
abrasive cleaning product. During the first few hours
of use there may be a smell of rubber which will
disappear very quickly.
!
A few seconds after the hob is connected to the
electricity supply, a buzzer will sound. The hob may
now be switched on.
!
If the
-
or
+
button is pressed for an extended
period of time, the display scrolls quickly though the
power levels and timer minutes.
Switching on the hob
To switch the hob on, press and hold the
button
for approximately one second.
Switching on the cooking zones
Each cooking zone is controlled using a selector button
and a power adjustment device consisting of a
double
-
and
+
button.
• To begin operating a cooking zone, press the
corresponding control button and set the desired
power level (between 0 and 9) using the buttons
-
and
+
.
Power function
The power function for the cooking zones may be used
to shorten heating-up times. Activate and set the power
level for the desired cooking zone
as described
in the previous paragraph. Press and hold the selector
button corresponding to the desired cooking zone
for at least 2 seconds. The display, the power level
indicator, will alternately show the letter “P” and the
power level set previously until the desired power level
has been reached. Once this level has been reached,
the display will revert to showing the set power level.
To deactivate this function, press and hold – for at
least 2 seconds - the selector button corresponding to
the cooking zone on which the
function has been
activated; alternatively, select a different power level
using the buttons
-
and
+
.
Switching off the cooking zones
To switch off a cooking zone, select it using the
corresponding selector button
and:
• Press the
-
button: the power of the cooking zone
will progressively decrease until it is switched off.
Heating elements
Two types of heating element may be installed,
depending on the appliance model: halogen and
radiant elements.
Halogen elements emit heat via radiation from the
halogen lamps they contain.
They have similar properties to gas burners: they are
easy to control and reach set temperatures quickly,
allowing you to see the power level instantly.
Radiant elements consist of a series of coils which
allow heat to be distributed evenly at the base of
the cookware, so that all slow-flame cooking may be
performed successfully, for example stews, sauces or
reheated dishes.
Control panel lock
When the hob is switched on, it is possible to lock the
oven controls in order to avoid accidental changes
being made to the settings (by children, during
cleaning, etc.). Press the
button to lock the control
panel: the indicator light above the button will switch
on.
To use any of the controls (e.g. to stop cooking), you
must switch off this function. Press the
button for a
few moments, the indicator light will switch off and the
lock function will be removed.
Switching off the hob
Press the
button to switch the appliance off.
If the control panel lock has been activated, the
controls will continue to be locked even after the hob is
switched on again. In order to switch the hob on again,
you must first remove the lock function.
15
GB
Practical advice on using the appliance
To obtain the best results from your hob:
• Use pans with a thick, flat base in order to fully
utilise the cooking zone.
• Always use pans with a diameter which is large
enough to cover the hotplate fully, in order to use all
the available heat.
• Make sure that the base of the cookware is always
clean and dry, in order to fully utilise and extend the
life of both the cooking zones and the cookware.
• Avoid using the same cookware which has been
used on gas burners: the heat concentration on gas
burners may distort the base of the pan, causing it
not to adhere correctly.
Safety devices
Pan sensor
Each cooking zone is equipped with a pan sensor
device. The hotplate only emits heat when a pan with
suitable measurements for the cooking zone is placed
on it. If the indicator light is flashing, it may indicate:
• An incompatible pan
• A pan whose diameter is too small
• The pan has been removed from the hotplate.
Residual heat indicators
Each cooking zone is equipped with a residual heat
indicator. This indicator signals which cooking zones
are still at a high temperature. If the power display
shows
, the cooking zone is still hot. It is possible,
for example, to keep a dish warm or melt butter or
chocolate. As the cooking zone cools, the power
display will show
. The display switches off when the
cooking zone has cooled sufficiently.
Overheating protection
If the electronic elements overheat, the hob switches
off automatically and
F
appears on the display,
followed by a flashing number. When the temperature
has reached a suitable level, this message disappears
and the hob may be used again.
Safety switch
The appliance has a safety switch which automatically
switches the cooking zones off after they have been
in operation for a certain amount of time at a particular
power level. When the safety switch has been
triggered, the display shows “0”.
For example: the right rear hotplate is set to 5 and will
switch off after 5 hours of continuous operation, while
the front left hotplate is set to 2 and will switch off after
8 hours.
Power level
1
2
3
4
5
6
7
8
9
Maximum operating time in hours
9
8
7
6
5
4
3
2
1
Buzzer
This can also indicate several irregularities:
• An object (a pan, cutlery, etc.) has been placed on
the control panel for more than 10 seconds.
• Something has been spilt on the control panel.
• A button has been pressed for too long. All of the
above situations may cause the buzzer to sound.
Remove the cause of the malfunction to stop the
buzzer. If the cause of the problem is not removed,
the buzzer will keep sounding and the hob will
switch off.
16
GB
Practical cooking advice
ª
Pressure cooking
Pressure cooker
Frying
Grilling
Boiling
Very high-flame
cooking
High-flame
cooking
Medium-flame cooking
Low-flame
cooking
Very
low-flame
cooking
• • ¶
Crêpes
Cooking on a high flame and browning
(roasts, steaks, escalopes, fish fillets,
fried eggs)
¶ §
Fast thickening (liquid juices)
Boiling water (pasta, rice, vegetables)
Milk
§ S
Slow thickening (dense juices)
S ¢
Bain-marie cooking
Pressure cooking after whistle
¢ £ ™
Low-flame cooking (stews)
Reheating dishes
™ ¡
Chocolate sauce
Keeping food hot
17
GB
Precautions and tips
!
This appliance has been designed and manufactured
in compliance with international safety standards. The
following warnings are provided for safety reasons and
must be read carefully.
This appliance conforms to the following
European Economic Community directives:
- 2006/95/EEC dated 12/12/06 (Low Voltage) and
subsequent amendments;
- 2004/108/EEC dated 15/12/04 (Electromagnetic
Compatibility) and subsequent amendments;
- 93/68/EEC dated 22/07/93 and subsequent
amendments.
- 1275/2008 stand-by/off mode.
General safety
!
Make sure that the air inlet behind the fan grille is never
obstructed. The built-in hob should, in fact, be provided
with suitable ventilation for the cooling of the electronic
components used in the appliance.
• The appliance was designed for domestic use inside
the home and is not intended for commercial or
industrial use.
• The appliance must not be installed outdoors, even in
covered areas. It is extremely dangerous to leave the
appliance exposed to rain and storms.
• Do not touch the appliance when barefoot or with wet
or damp hands and feet.
•
The appliance must be used by adults only for
the preparation of food, in accordance with the
instructions outlined in this booklet. Any other
use of the appliance (e.g. for heating the room)
constitutes improper use and is dangerous.
The manufacturer may not be held liable for any
damage resulting from improper, incorrect and
unreasonable use of the appliance.
• The glass ceramic hob is resistant to mechanical
shocks, but it may crack (or even break) if hit with
a sharp object such as a tool. If this happens,
disconnect the appliance from the electricity mains
immediately and contact a Service Centre.
• Ensure that power supply cables of other electrical
appliances do not come into contact with the hot
parts of the hob.
• Remember that the cooking zones remain relatively
hot for at least thirty minutes after they have been
switched off. An indicator light provides a warning
when residual heat is present (
see Start-up and use
).
• Keep any object which could melt away from the
hob, for example plastic and aluminium objects, or
products with a high sugar content. Be especially
careful when using plastic film and aluminium foil or
packaging: if placed on surfaces which are still hot,
they may cause serious damage to the hob.
• Always make sure that pan handles are turned
towards the centre of the hob in order to avoid
accidental burns.
• When unplugging the appliance, always pull the
plug from the mains socket; do not pull on the cable.
• Never perform any cleaning or maintenance work
without having disconnected the appliance from the
electricity mains.
• The appliance should not be operated by people
(including children) with reduced physical, sensory
or mental capacities, by inexperienced individuals
or by anyone who is not familiar with the product.
These individuals should, at the very least, be
supervised by someone who assumes responsibility
for their safety or receive preliminary instructions
relating to the operation of the appliance.
• Do not look at the halogen lamps in the cooking
zones for long if they are present.
• Do not let children play with the appliance.
• Do not place metal objects (knives, spoons, pan
lids, etc.) on the hob as they may become hot.
•
The appliance is not intended to be operated by
means of an external timer or separate remote-
control system.
Disposal
• When disposing of packaging material: observe local
legislation so that the packaging may be reused.
• The European Directive 2002/96/EC relating to Waste
Electrical and Electronic Equipment (WEEE) states
that household appliances should not be disposed of
using the normal solid urban waste cycle. Exhausted
appliances should be collected separately in order
to optimise the cost of re-using and recycling the
materials inside the machine, while preventing
potential damage to the atmosphere and to public
health. The crossed-out dustbin is marked on all
products to remind the owner of their obligations
regarding separated waste collection.
For further information relating to the correct disposal
of exhausted household appliances, owners may
contact the public service provided or their local
dealer.
18
GB
Care and maintenance
Switching the appliance off
Disconnect your appliance from the electricity supply
before carrying out any work on it.
Cleaning the appliance
!
Do not use abrasive or corrosive detergents (for
example, products in spray cans for cleaning barbecues
and ovens), stain removers, anti-rust products, powder
detergents or sponges with abrasive surfaces: these may
scratch the surface beyond repair.
!
Never use steam cleaners or pressure cleaners on the
appliance.
• It is usually sufficient simply to wash the hob using a
damp sponge and dry it with absorbent kitchen towel.
• If the hob is particularly dirty, rub it with a special glass
ceramic cleaning product, then rinse well and dry
thoroughly.
• To remove more stubborn dirt, use a suitable scraper.
Remove spills as soon as possible, without waiting for
the appliance to cool, to avoid residues forming crusty
deposits. You can achieve excellent results by using a
rust-proof steel wire sponge - specifically designed for
glass ceramic surfaces - soaked in soapy water.
• If any plastic or sugary substances are accidentally
melted on the hob, remove them immediately with the
scraper, while the surface is still hot.
• Once it is clean, the hob may be treated with a special
protective maintenance product: the invisible film left
by this product protects the surface from drips during
cooking. This maintenance task should be carried out
while the appliance is warm (not hot) or cold.
• Always remember to rinse the appliance well with clean
water and dry it thoroughly: residues can become
encrusted during subsequent cooking processes.
Stainless steel frame
(only in models with outer frame)
Stainless steel can be marked by hard water which has
been left on the surface for a long time, or by cleaning
products containing phosphorus.
After cleaning, it is advisable to rinse the surface well
and dry it thoroughly. If water is spilt on the surface, dry it
quickly and thoroughly.
!
Some hobs have an aluminium frame which is
similar to stainless steel. Do not use any cleaning or
degreasing products which are not suitable for use
with aluminium.
Disassembling the hob
If it is necessary to disassemble the hob:
1. Loosen the screws fixing the alignment springs on
each side.
2. Loosen the screws holding the fixing hooks in each
corner.
3. Take the hob out of its installation cavity.
!
Do not attempt to repair the appliance yourself. If the
appliance breaks down, contact a Service Centre.
Technical description of the models
This table provides a model-by-model list of the energy absorption values, type of heating elements and diameters of
each cooking zone.
Key:
H = single hilight
HD = double hilight
HT = triple hilight
AD = double halogen
Hobs
Cooking zone
Back Left
Back Right
Front Left
Front Right
Total power
Power (W)
HD 2300
H 1400
H 1200
H 1800
Diameter (mm)
210
160
145
180
6700
VRA 640 X S
Power (W)
HT 2200/1000
H 1400
H 1200
H 1800
Diameter (mm)
210/140
160
145
180
6600
VRA 641 D B S
VRA 641 D X S
VRA 640 C S
19
FR
Installation
!
Conserver ce mode d’emploi pour pouvoir le
consulter à tout moment. En cas de vente, de
cession ou de déménagement, veiller à ce qu’il
suive l’appareil pour informer le nouveau propriétaire
sur son fonctionnement et lui fournir les conseils
correspondants.
!
Lire attentivement les instructions : elles contiennent
des conseils importants sur l’installation, l’utilisation et
la sécurité de cet appareil.
Positionnement
!
Les emballages ne sont pas des jouets pour
enfants, il faut les mettre au rebut en respectant la
réglementation sur le tri sélectif des déchets (
voir
Précautions et conseils
).
!
L’installation doit être effectuée par un professionnel
du secteur conformément aux instructions du fabricant.
Une mauvaise installation peut causer des dommages
à des personnes, des animaux ou des biens.
Encastrement
Pour garantir le bon fonctionnement de l’appareil, il
faut que le meuble possède des caractéristiques bien
précises :
• le matériau du plan d’appui doit pouvoir résister à
une température d’environ 100°C;
• en cas d’installation de la table de cuisson au-
dessus d’un four, il faut que ce dernier soit équipé
d’un dispositif de refroidissement par ventilation
forcée ;
• éviter d’installer la table de cuisson au-dessus d’un
lave-vaisselle : si c’est le cas, prévoir une séparation
étanche entre les deux appareils ;
• selon la table de cuisson à installer (
voir fi gures
),
la découpe du meuble doit avoir les dimensions
suivantes :
560 +/- 1
490 +/- 1
48
590
520
560 +/- 1
490 +/- 1
48
574
504
Aération
Pour permettre une bonne aération et pour éviter toute
surchauffe des surfaces autour de l’appareil, la table de
cuisson doit être positionnée :
• à au moins 40 mm de distance du mur arrière;
• de manière à ce qu’il reste au moins 20 mm de
distance entre la découpe d’encastrement et le
meuble en dessous.
• Les meubles jouxtant la table, dont la hauteur
5 mm
min. 20 mm
min. 20 mm
min. 40 mm
TIROIR
5 mm
min. 40 mm
CHALEUR
TOURNANTE
CÔTÉ AVANT DE LA
TABLE DE CUISSON
PLAN DE
TRAVAIL
30
40
TABLE DE CUISSON
RETOURNÉE
20
FR
dépasse celle du plan de cuisson, doivent être
placés à au moins 600 mm du bord du plan.
Fixation
Il est impératif d’assurer
l’encastrement de l’appareil sur
un plan d’appui parfaitement plat.
Les déformations provoquées par une mauvaise
fixation risquent d’altérer les caractéristiques de la
table de cuisson ainsi que ses performances.
La longueur de la vis de réglage des crochets de
fixation doit être réglée avant leur montage
selon
l’épaisseur du plan d’appui :
• épaisseur 30 mm : vis 17,5 mm;
• épaisseur 40 mm : vis 7,5 mm
Pour sa fixation, procéder comme suit :
1. Se servir des vis courtes sans pointe pour visser
les 4 ressorts de centrage dans les trous prévus sur
chaque côté de la table, en leur milieu;
2. insérer la table de cuisson dans la découpe prévue,
bien au centre et bien appuyer tout autour du cadre
pour que la table adhère parfaitement au plan d’appui.
3. pour les tables avec profils latéraux : après avoir
encastré la table de cuisson dans la découpe, insérer
les 4 crochets de fixation (chacun avec son goujon) sur
le périmètre inférieur de la table de cuisson et visser
avec les vis longues à pointe jusqu’à ce que le verre
adhère bien au plan d’appui.
!
Il faut absolument que les vis des ressorts de
centrage soient accessibles.
!
Conformément aux normes de sécurité, après
encastrement de l’appareil, il ne doit plus y avoir
possibilité de contact avec les parties électrifiées.
!
Toutes les parties qui servent de protection doivent
être fixées de manière à ne pouvoir être enlevées
qu’avec l’aide d’un outil.
Raccordement électrique
!
Le branchement électrique de la table de cuisson
et celui d’un éventuel four à encastrer doivent être
effectués séparément, pour des raisons de sécurité
électrique et pour pouvoir démonter plus facilement le
four en cas de besoin.
Bornier
L’appareil est équipé, sur le dessous, d’un boîtier
de raccordement à plusieurs types d’alimentation
électrique (la figure n’est qu’indicative, elle peut ne pas
correspondre au modèle acheté).
Raccordement monophasé
La table est fournie déjà équipée
d’un cordon d’alimentation prévu
pour raccordement monophasé.
Procéder au raccordement des
fils en suivant les indications du
tableau et des dessins suivants :
Autres types de branchement
Si l’installation électrique correspond à une des
caractéristiques suivantes :
Tension type et fréquence réseau
• 400V - 2+N ~ 50/60 Hz
• 220-240V 3 ~ 50/60 Hz
• 230-240V 3 ~ 50/60 Hz
• 400V - 2+2N ~ 50/60 Hz
Séparer les câbles et procéder au raccordement des
fils en suivant les indications du tableau et des dessins
suivants :
Tension type et
fréquence réseau
Cordon électrique
Raccordement fils
400V - 2+N ~
50/60 Hz
230-240V 3 ~
220-240V 3 ~
50/60 Hz
: jaune/vert;
N
: les 2 fils bleus
ensemble
L1
: noir
L2
: marron
400V - 2+2N ~
50/60 Hz
: jaune/vert;
N1
: bleu
N2
: bleu
L1
: noir
L2
: marron
caractéristiques suivantes :
Tension type et fréquence réseau
• 400V 3 - N ~ 50/60 Hz
procéder comme suit :
!
Le câble éventuellement fourni n’est pas prévu pour
ces types d’installation.
1. Utiliser un câble d’alimentation approprié, type
H05RR-F ou supérieur, aux dimensions adéquates
(section câble : 25 mm).
2. Faire levier à l’aide d’un tournevis sur les languettes
du couvercle du bornier pour l’ouvrir (
voir fi gure
Bornier
).
3. Dévisser la vis du serre-câble et les vis des bornes
correspondant au type de raccordement nécessaire
TABLE DE CUISSON
RETOURNEE
Tension type et
fréquence réseau
Cordon électrique
Raccordement fils
230-240V 1+N ~
220-240V 1+N ~
50/60 Hz
: jaune/vert;
N
: les 2 fils bleus ensemble
L
: le marron avec le noir

