Indesit VRA640XS – page 4
Manual for Indesit VRA640XS
61
NL
4. Plaats de draden zoals aangegeven in de volgende
afbeeldingen en tabel en stel een verbinding tot stand
door alle schroeven van de klemmetjes goed vast te
draaien.
Spanningstype
en netfrequentie
Elektrische aansluitingen
Klemmenbord
400V 3-N ~
50/60 Hz
Driefasen 400
5. Bevestig de voedingskabel in de speciale kabelklem
en sluit het deksel af.
Driefase 400
Het aansluiten van de voedingskabel aan het
elektrische net
Bij een rechtstreekse aansluiting op het net moet
u tussen het apparaat en het net een meerpolige
schakelaar aanbrengen met een minimum afstand van
3 mm tussen de contacten.
!
De installateur is verantwoordelijk voor een correcte
elektrische aansluiting en de inachtneming van de
veiligheidsnormen.
Vóór het aansluiten moet u controleren dat:
• de contactdoos geaard is en voldoet aan de
geldende normen;
• het stopcontact in staat is het maximale vermogen
van het apparaat te verdragen, zoals aangegeven
op het typeplaatje dat zich op het apparaat bevindt;
• de spanning zich bevindt tussen de waarden die
staan aangegeven op het typeplaatje;
• de contactdoos en de stekker overeenkomen.
Als dat niet zo is, dient u ofwel de stekker ofwel
de contactdoos te vervangen; gebruik geen
verlengsnoeren of dubbelstekkers.
!
Wanneer het apparaat geïnstalleerd is, moeten de
elektrische kabel en de contactdoos gemakkelijk te
bereiken zijn.
!
De kabel mag niet gebogen of samengedrukt
worden.
!
De kabel moet van tijd tot tijd worden gecontroleerd
en mag alleen door erkende monteurs worden
vervangen.
!
De fabrikant kan nergens aansprakelijk voor
worden gesteld als deze normen niet worden
nageleefd.
!
Verwijder of vervang de voedingskabel voor
geen enkele reden. De eventuele verwijdering of
vervanging doet de garantie en de CE markering
vervallen. INDESIT kan niet aansprakelijk worden
gesteld voor ongelukken of schade die het resultaat
zijn van de vervanging/verwijdering van de originele
voedingskabel. De vervanging met een origineel
onderdeel is alleen toegestaan indien uitgevoerd door
een erkende INDESIT technicus.
Fase
Fase
Fase
Verbindingskabel
Neutraal
Aarde
1
2
3
5
4
Verlengbare kookgedeeltes
Enkele modellen beschikken over verlengbare
kookplaten. Deze kunnen verschillende vormen
hebben en op verschillende manieren worden verlengd
(dubbel of drievoudig straalelement). Hier worden de
betreffende bedieningsknoppen beschreven; alleen
aanwezig op modellen die zijn voorzien van deze
opties.
Verlengbare kookplaat rond
• Toets
ONTSTEKEN DUBBELE KOOKPLAAT
om
de dubbele kookplaat in te schakelen (
zie Starten en
gebruik
).
• Controlelampje
DUBBELE KOOKPLAAT AAN
:
geeft aan dat de dubbele kookplaat ingeschakeld is.
• Toets
ONTSTEKEN DRIEVOUDIGE KOOKPLAAT
om de drievoudige kookplaat in te schakelen (
zie
Starten en gebruik
).
• Controlelampje
DRIEVOUDIGE KOOKPLAAT
AAN
: geeft aan dat de drievoudige kookplaat
ingeschakeld is.
Controlelampje
DUBBELE
KOOKPLAAT
AAN
Toets
ONTSTEKEN
DUBBELE
KOOKPLAAT
Controlelampje
DRIEVOUDIGE
KOOKPLAAT AAN
Toets
ONTSTEKEN
DRIEVOUDIGE
KOOKPLAAT
62
NL
Starten en gebruik
!
De lijm die gebruikt is voor de afdichtingen laat wat
vetvlekjes achter op het glas. Voordat u het apparaat
gebruikt raden wij u aan de vlekken te verwijderen
met een speciaal niet-schurend schoonmaakmiddel.
Gedurende de eerste paar uur dat u het apparaat
gebruikt kan het zijn dat u een rubbergeur ruikt. Deze
zal echter snel wegtrekken.
!
Als de kookplaat elektrisch wordt aangesloten hoort
u na enkele seconden een kort geluidssignaal afgaan.
Alleen dan kunt u de kookplaat aanzetten.
!
Als u lang op de toetsen drukt
-
en
+
kunt u de
stroomsterkte en de minuten van de timer snel laten
toenemen.
Inschakelen kookplaat
Druk ongeveer 1 seconde op de knop
voor het
inschakelen van de kookplaat.
Inschakelen kookzones
Iedere kookzone wordt in werking gesteld door middel
van een selectietoets
en een regelsysteem voor
de stroomsterkte, bestaande uit een dubbele toets
-
en
+
.
• Voor het in werking stellen van een kookzone drukt
u op de betreffende toets en stelt u de gewenste
stroomsterkte in met de toetsen
-
en
+
.
Uitschakelen kookgedeeltes
Voor het uitschakelen van een kookgedeelte kiest u dit
door middel van de selectietoets
en:
• Druk op de toets
-
: het vermogen van het
kookgedeelte wordt langzaam minder totdat het
uitgaat.
Power functie
Voor het versnellen van de verwarmingstijd van
de kookzones, is het mogelijk de power functie te
activeren. Schakel de stroom van de gewenste
kookzone
in zoals beschreven in de voorgaande
paragraaf. Houd de toets voor het selecteren
van de kookzone
minstens 2 seconden lang
ingedrukt. Op het display zal de aanwijzer van de
stroomsterkte worden afgewisseld met de letter “P”
en de voordien ingestelde stroomsterkte, net zo lang
totdat de gewenste stroomsterkte is bereikt. Zodra de
temperatuur is bereikt zal het display de ingestelde
stroomsterkte tonen. Om deze functie uit te schakelen
houdt u de selectietoets van de kookzone waarop
de functie
actief is minstens 2 seconden lang
ingedrukt. Als alternatief kunt u een verschillende
stroomsterkte selecteren m.b.v. de selectietoetsen
-
en
+
.
De verwarmingselementen
Aan de hand van het type kookplaat kunnen twee
verschillende verwarmingselementen worden
gemonteerd: halogeen of stralend.
De halogeenelementen verspreiden de warmte door de
uitstraling van de halogeenlamp die zich erin bevindt.
De belangrijkste eigenschappen lijken op die van
het gasfornuis: snelle reactie op de bediening en het
onmiddellijk zichtbaar worden van de stroomsterkte.
De stralingselementen bestaat uit een hoeveelheid
spiralen die het gelijkmatig verspreiden van de warmte
op de bodem van de pan garanderen. Hierdoor kunt
u etenswaren optimaal op laag vuur bereiden: voor
stoofschotels, sausen of het opwarmen van gerechten.
Blokkering van het bedieningspaneel
Als de kookplaat in werking is kunt u het
bedieningspaneel blokkeren om een
ongewenst aanraken te vermijden (kinderen,
schoonmaakhandelingen, enz.). Door op de toets
te drukken zal het bedieningspaneel worden
geblokkeerd. Het controlelampje boven de toets gaat
aan.
Als u het bedieningspaneel weer wilt gebruiken (bv.
als u wilt stoppen met koken) moet u de blokkering
uitschakelen: druk even op de toets
. Het
controlelampje gaat uit en het bedieningspaneel wordt
weer geactiveerd.
Uitschakelen kookplaat
Druk op de toets
; het apparaat gaat uit.
Als het bedieningspaneel is geblokkeerd, blijft dit ook
geblokkeerd nadat u de kookplaat opnieuw inschakelt.
Als u de kookplaat opnieuw wilt inschakelen moet u
eerst het bedieningspaneel deblokkeren.
Praktische tips voor het gebruik van het
apparaat
Om optimale resultaten te bereiken met de kookplaat:
• Gebruik alleen pannen met een dikke, platte bodem
zodat ze perfect aansluiten op het verwarmingsvlak.
63
NL
• Gebruik pannen die groot genoeg zijn om
de kookplaat geheel te bedekken zodat alle
beschikbare hitte wordt benut.
• Houd de bodem van de pannen altijd goed schoon
en droog zodat ze goed aansluiten op het kookvlak.
Dit verlengt de levensduur van zowel de pannen als
het kookvlak zelf.
• Vermijd dezelfde pannen te gebruiken die
u ook op een gasfornuis heeft gebruikt: de
warmteconcentratie van gasbranders kan de bodem
van pannen vervormen, waardoor ze niet goed meer
aansluiten.
Veiligheidssystemen
Pannensensor
Ieder kookgedeelte is voorzien van een systeem
dat waarneemt of er een pan op staat. De plaat
straalt alleen warmte uit als er een pan van de juiste
afmetingen op staat. Het knipperende controlelampje
kan betekenen:
• dat de pan niet geschikt is
• dat de pan een te kleine diameter heeft
• dat de pan niet goed aansluit
Aanwijzers van de resterende warmte
Ieder kookgedeelte is voorzien van een aanwijzer van
de resterende warmte. Deze aanwijzer geeft aan welke
kookzones nog heet zijn. Als het vermogensdisplay
toont dan is het kookgedeelte nog warm. Het is
bijvoorbeeld mogelijk een gerecht warm te houden of
boter of chocolade te laten smelten. Met het afkoelen
van het kookgedeelte zal het vermogensdisplay
tonen. Het display gaat uit wanneer de kookzone
voldoende is afgekoeld.
Oververhitting
In het geval van oververhitting van de elektronische
onderdelen gaat de kookplaat automatisch uit
en verschijnt op het display
F
gevolgd door een
knipperend nummer. Deze boodschap verdwijnt
en u kunt de kookplaat weer gebruiken zodra de
temperatuur tot op een acceptabel niveau is gezakt.
Veiligheidsschakelaar
Het apparaat beschikt over een veiligheidsschakelaar
die de kookgedeeltes automatisch uitschakelt als
de tijdslimiet voor een bepaald vermogensniveau is
bereikt. Tijdens deze veiligheidsonderbreking vertoont
het display het cijfer “0”.
B.v.: de kookplaat rechtsachter staat op 5, terwijl de
plaat linksvoor op 2 staat. De plaat rechtsachter zal
automatisch na 5 uur uitgaan, de plaat linksvoor na 8
uur.
Vermogensniveau
1
2
3
4
5
6
7
8
9
Begrenzing van de werkingsduur in uren
9
8
7
6
5
4
3
2
1
Geluidssignaal
Enkele storingen, zoals:
• een voorwerp (pan, bestek, enz.) dat meer dan 10
seconden op het bedieningspaneel ligt,
• gemors op het bedieningspaneel,
• een lange druk op een toets, kunnen een
geluidssignaal veroorzaken. Verwijder de oorzaak
van de storing en het geluidssignaal houdt op. Als
de oorzaak van de storing niet wordt verwijderd
blijft het geluidssignaal gaan en wordt het kookvlak
uitgeschakeld.
64
NL
Praktische kooktips
ª
Koken met een snel
kookpanSnelkookpan
Frituren
Grillen
Koken
VKoken op zeer
hoog vuur
Koken op
hoog vuur
Koken op middelmatig vuur
Koken op
laag vuur
Koken op
zeer laag
vuur
• • ¶
Crêpes
Koken op hoog vuur en bruin bakken
(Braadstukken, biefstukken, kalfslappen,
visfilets, gebakken eieren)
¶ §
Snel indikken (vloeibare sauzen)
Koken van water (pasta, rijst, groente)
Melk
§ S
Langzaam indikken (gebonden sauzen)
S ¢
Au bain-marie koken
Koken met snelkookpan, na het sissen
¢ £ ™
Koken op laag vuur
(stoofschotels)
Opwarmen van gerechten
™ ¡
Chocoladesaus
Warm houden van gerechten
65
NL
Voorzorgsmaatregelen
en advies
!
Dit apparaat is ontwikkeld en gefabriceerd volgens de
geldende internationale veiligheidsvoorschriften. Deze
aanwijzingen zijn geschreven voor uw veiligheid en u dient
ze derhalve goed door te nemen.
Dit apparaat voldoet aan de volgende EU
Richtlijnen:
- 2006/95/EEG van 12/12/06 (Laagspanning) en
daaropvolgende wijzigingen
- 2004/108/EEG van 15/12/04 (Elektromagnetische
Compatibiliteit) en daaropvolgende wijzigingen
- 93/68/EEG van 22/07/93 en daaropvolgende wijzigingen.
- 1275/2008 stand-by/off mode.
Algemene veiligheidsmaatregelen
!
Controleer dat de luchttoevoeropening van het rooster
van de ventilator niet verstopt is. De inbouwkookplaat moet
voorzien zijn van een goede ventilatie voor het afkoelen
van de elektronische componenten.
• Dit apparaat is vervaardigd voor niet-professioneel
gebruik binnenshuis.
• Het apparaat dient niet buitenshuis te worden geplaatst,
ook niet in overdekte toestand. Het is erg gevaarlijk als
het in aanraking komt met regen of onweer.
• Raak het apparaat niet aan als u blootsvoets bent of met
natte of vochtige handen of voeten.
•
Het apparaat dient gebruikt te worden om
voedsel te bereiden. Het mag uitsluitend door
volwassenen worden gebruikt en alleen volgens
de instructies die in deze handleiding beschreven
staan. Elk ander gebruik (bv.: verwarming van
ruimten) is als oneigenlijk te beschouwen en dus
gevaarlijk. De fabrikant kan niet aansprakelijk
worden gesteld voor eventuele schade die te
wijten is aan onjuist, verkeerd of onredelijk
gebruik.
• Het glaskeramische kookvlak is bestand tegen
mechanische stoten. Het kan echter worden
beschadigd (of barsten) als het wordt geraakt door
een puntig object, bijvoorbeeld door gereedschap.
Als dit gebeurt moet u onmiddellijk het apparaat
afsluiten van de elektrische stroom en contact
opnemen met de Technische Dienst.
• Voorkom dat elektrische snoeren van andere kleine
keukenapparaten op warme delen van de kookplaat
terechtkomen.
• Vergeet niet dat de temperatuur in het kookgedeelte
aanzienlijk hoog blijft tot minstens 30 minuten nadat
u het heeft uitgeschakeld. De resterende warmte
wordt aangeduid door een aanwijzer (
zie Starten en
gebruik
).
• Houd voorwerpen die kunnen smelten op afstand
van de kookplaat, zoals bv. plastic, aluminium of
suikerhoudende etenswaren. Let vooral op plastic
of aluminium verpakkingen en folie: als u ze op het
nog warme of lauwe kookvlak neerlegt, kunt u zware
schade aanrichten.
• Richt de handvaten van de pannen altijd naar de
binnenzijde van de kookplaat zodat u er niet per
ongeluk tegenaan stoot.
• Trek nooit de stekker aan het snoer uit het
stopcontact, maar pak altijd de stekker direct beet.
• Maak het apparaat niet schoon of voer geen
onderhoud uit als de stekker nog in het stopcontact
zit.
• Dit apparaat mag niet worden gebruikt door
personen (kinderen inbegrepen) met een beperkt
lichamelijk, sensorieel of geestelijk vermogen of
personen die niet de nodige ervaring of kennis
hebben met het apparaat, tenzij onder toezicht
van een persoon die verantwoordelijk is voor
hun veiligheid of nadat hun is uitgelegd hoe het
apparaat werkt.
• Als de kookplaat halogene kookzones heeft moet u
vermijden er lang naar te kijken.
• Voorkom dat kinderen met het apparaat spelen.
• Plaats geen metalen voorwerpen (messen, lepels,
deksels enz.) op de kookplaat aangezien zij heet
kunnen worden..
•
Het apparaat is niet geschikt om te worden
ingeschakeld m.b.v. een externe timer ofwel door
een gescheiden afstandsbedieningssysteem.
Afvalverwijdering
• Het verwijderen van het verpakkingsmateriaal: houdt
u aan de plaatselijke normen zodat het materiaal
hergebruikt kan worden.
• De Europese richtlijn 2002/96/EG, betreffende
afgedankte elektrische en elektronische apparatuur
(AEEA), voorziet dat huishoudelijke apparatuur niet
met het normale afval mag worden meegegeven. De
verwijderde apparaten moeten apart worden opgehaald
om het terugwinnen en recyclen van de materialen
waaruit ze bestaan te optimaliseren en te voorkomen
dat er eventuele schade voortvloeit voor de gezondheid
en het milieu. Het symbool van de afvalemmer met een
kruis staat op alle producten om de consument eraan te
herinneren dat dit gescheiden afval is.
Om meer informatie te verkrijgen betreffende een juiste
verwijdering van huishoudapparaten kan de consument
zich richten tot de gemeentelijke reinigingsdienst of de
verkopers.
66
NL
Onderhoud en verzorging
De elektrische stroom afsluiten
Sluit altijd eerst de stroom af voordat u tot enige handeling
overgaat.
Reinigen van het apparaat
!
Vermijd het gebruik van schuurmiddelen of bijtende
middelen, zoals sprays voor barbecues en ovens,
vlekkenmiddelen, roestverwijderende producten,
schoonmaakmiddelen in poedervorm of schuursponzen:
deze kunnen het oppervlak onherstelbaar krassen.
!
Gebruik nooit stoom- of hogedrukreinigers voor het reinigen
van het apparaat.
• Voor normaal onderhoud moet u de kookplaat met een
vochtige spons reinigen en afdrogen met keukenpapier.
• Als de plaat erg vuil is moet hij worden schoongemaakt
met een speciaal middel voor keramiekplaten. Daarna
moet u hem afspoelen en afdrogen.
• Voor het verwijderen van hardnekkig vuil kunt u een
hiervoor bestemd schrapertje gebruiken. Doe dit zo
snel mogelijk voordat het apparaat afkoelt, zodat de
etensresten niet aankoeken. Uitstekende resultaten bereikt
u ook met een speciaal voor keramiekplaten vervaardigd
roestvrij staal sponsje dat u in een sopje doopt.
• Als er op de kookplaat onverhoopt voorwerpen of plastic
materiaal of suiker zouden smelten, moet u ze onmiddellijk
met het schrapertje verwijderen zolang het oppervlak nog
warm is.
• Als de plaat is schoongemaakt, kan hij worden
behandeld met een speciaal product voor onderhoud
en bescherming: het onzichtbare laagje dat dit
product achterlaat beschermt de plaat in het geval er
iets overkookt. Dit soort handelingen moeten worden
uitgevoerd als de plaat lauw of koud is.
• Vergeet niet de kookplaat altijd met schoon water af te
spoelen en goed af te drogen: restjes schoonmaakmiddel
kunnen de volgende keer dat u kookt aankoeken.
Raamwerk van roestvrij staal
(alleen bij modellen met lijst)
Roestvrij staal kan vlekken gaan vertonen als er voor langere
tijd kalkhoudend water op blijft liggen of als gevolg van
gebruik van schoonmaakmiddelen die fosfor bevatten.
Spoel en droog de kookplaat altijd goed af nadat u hem heeft
schoongemaakt. Droog gemorst water altijd meteen goed af.
!
Enkele kookplaten hebben een lijst van aluminium die lijkt
op roestvrij staal. Gebruik voor het reinigen en ontvetten
geen producten die niet geschikt zijn voor aluminium.
De kookplaat verwijderen
Als u de kookplaat uit elkaar moet halen:
1. verwijder de schroeven die de centreringsklemmen aan de
zijkant vasthouden;
2. maak de schroeven van de bevestigingshaken op de
hoeken los;
3. haal de kookplaat uit het meubel.
!
U mag nooit aan het interne systeem sleutelen om een
reparatie proberen uit te voeren. Als er een storing is moet u
contact opnemen met de Service Dienst.
Technische beschrijving van de modellen
In deze tabellen vindt u de waarden terug van de stroomopname voor ieder afzonderlijk model, het type
verwarmingselement en de diameter van ieder kookgedeelte.
Legenda:
H = hilight enkel
HD = hilight dubbel
HT = hilight drievoudig
AD = dubbel halogeen
Kookplaten
Kookgedeeltes
Linksachter
Rechtsachter
Linksvoor
Rechtsvoor
Totaal vermogen
Vermogen (in W)
HD 2300
H 1400
H 1200
H 1800
Diameter (in mm)
210
160
145
180
6700
Vermogen (in W)
HT 2200/1000
H 1400
H 1200
H 1800
Diameter (in mm)
210/140
160
145
180
6600
VRA 640 X S
VRA 641 D B S
VRA 641 D X S
VRA 640 C S
VRA 640 C S
67
PL
Instalacja
!
Nale
Ī
y zachowa
ü
niniejsz
ą
instrukcj
Ċ
, aby móc z
niej skorzysta
ü
w ka
Ī
dej chwili. W razie sprzeda
Ī
y,
odst
ą
pienia lub przeniesienia urz
ą
dzenia, nale
Ī
y si
Ċ
upewni
ü
, czy instrukcja zosta
á
a przekazana wraz z nim,
aby nowy w
á
a
Ğ
ciciel p
á
yty grzejnej móg
á
si
Ċ
zapozna
ü
z
jej dzia
á
aniem i z w
á
a
Ğ
ciwymi ostrze
Ī
eniami.
!
Nale
Ī
y uwa
Ī
nie przeczyta
ü
instrukcj
Ċ
: zawiera ona
wa
Ī
ne informacje dotycz
ą
ce instalacji, u
Ī
ytkowania i
bezpiecze
Ĕ
stwa.
Ustawienie
!
Elementy opakowania nie sa zabawkami dla dzieci
i nalezy je usunac zgodnie z normami dotyczacymi
selektywnego gromadzenia odpadów (
patrz Zalecenia i
srodki ostroznosci
).
!
Instalacja powinna zosta
ü
wykonana zgodnie z
niniejszymi instrukcjami przez wykwalifi kowany
personel. Niew
á
a
Ğ
ciwa instalacja mo
Ī
e spowodowa
ü
szkody w stosunku do osób, zwierz
ą
t lub mienia.
Zabudowa
Aby zapewni
ü
prawid
á
owe dzia
á
anie urz
ą
dzenia, mebel
musi posiada
ü
odpowiednie w
á
a
Ğ
ciwo
Ğ
ci:
• blat musi by
ü
wykonany z materia
á
u odpornego na
ciep
á
o, na temperatur
Ċ
oko
á
o 100°C;
• je
Ğ
li p
á
yta grzejna ma by
ü
zainstalowana na piecu,
musi on posiada
ü
system ch
á
odzenia z wentylacj
ą
wymuszon
ą
;
• nale
Ī
y unika
ü
instalowania p
á
yty grzejnej na
zmywarce: w przypadku takiej konieczno
Ğ
ci,
umie
Ğ
ci
ü
pomi
Ċ
dzy dwoma urz
ą
dzeniami szczelny
element oddzielaj
ą
cy;
• w zaleznosci od plyty grzejnej, jaka ma byc
zainstalowana (
patrz rysunki
), wewnetrzna czesc
mebla powinna miec nastepujace wymiary:
560 +/- 1
490 +/- 1
48
590
520
560 +/- 1
490 +/- 1
48
574
504
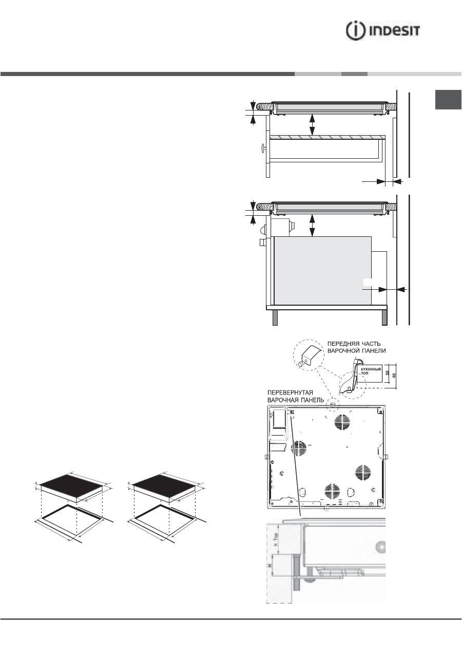
Obieg powietrza
Aby umo
Ī
liwi
ü
w
á
a
Ğ
ciwy obieg powietrza i aby unikn
ąü
przegrzania powierzchni wokó
á
urz
ą
dzenia, p
á
yta grzejna
powinna by
ü
umieszczona:
• w
odleg
á
o
Ğ
ci co najmniej 40 mm od tylnej
Ğ
ciany lub;
• w taki sposób, aby zachowa
ü
odleg
á
o
Ğü
minimum
20 mm pomi
Ċ
dzy przestrzeni
ą
do zabudowy a
znajduj
ą
cym si
Ċ
pod ni
ą
meblem.
• Meble
znajduj
ą
ce si
Ċ
obok, a których wysoko
Ğü
przekracza
wysoko
Ğü
p
á
yty roboczej, powinny zosta
ü
odsuni
Ċ
te
przynajmniej na 600 mm od kraw
Ċ
dzi p
á
yty roboczej.
5 mm
min. 20 mm
min. 20 mm
min. 40 mm
SZUFLADY
5 mm
min. 40 mm
PIEKARNK
WENTYLATOROWY
68
PL
Mocowanie
Urz
ą
dzenie powinno by
ü
zainstalowane
na idealnie
p
á
askim blacie.
Ewentualne odkszta
á
cenia, spowodowane
nieprawid
á
owym zamocowaniem, mog
ą
by
ü
przyczyn
ą
zmiany w
á
a
Ğ
ciwo
Ğ
ci urz
ą
dzenia i, w konsekwencji,
wp
á
ywaj
ą
c niekorzystnie na jego prac
Ċ
.
D
á
ugo
Ğü Ğ
ruby regulacyjnej uchwytów mocuj
ą
cych
nale
Ī
y ustawi
ü
przed ich zamontowaniem,
na podstawie
grubo
Ğ
ci blatu:
• grubo
Ğü
30 mm:
Ğ
ruba 17,5 mm;
• grubo
Ğü
40 mm:
Ğ
ruba 7,5 mm.
W celu zamocowania urz
ą
dzenia nale
Ī
y wykona
ü
nast
Ċ
puj
ą
ce czynno
Ğ
ci:
1. Przy pomocy krótkich
Ğ
rub bez
á
ba przykr
Ċ
ci
ü
4
spr
ĊĪ
yny centruj
ą
ce do otworów umieszczonych w
Ğ
rodkowej cz
ĊĞ
ci ka
Ī
dego boku p
á
yty;
2. umie
Ğ
ci
ü
p
á
yt
Ċ
grzejn
ą
w meblu, wy
Ğ
rodkowa
ü
j
ą
i
wywrze
ü
odpowiedni nacisk na ca
á
y jej obwód, tak aby
p
á
yta dobrze przylega
á
a do blatu.
3. w przypadku p
á
yt z profi lami bocznymi: po
zainstalowaniu p
á
yty grzejnej w meblu umie
Ğ
ci
ü
4
uchwyty mocuj
ą
ce (ka
Ī
dy ze sworzniem) na dolnym
obwodzie p
á
yty grzejnej i przykr
Ċ
ci
ü
je d
á
ugimi
Ğ
rubami z
á
bem w taki sposób, aby szk
á
o przylega
á
o do blatu.
!
ĝ
ruby spr
ĊĪ
yn centruj
ą
cych musz
ą
pozosta
ü
dost
Ċ
pne.
!
Zgodnie z normami bezpiecze
Ĕ
stwa, po zabudowaniu
urz
ą
dzenia nie powinien by
ü
mo
Ī
liwy kontakt z jego
elementami elektrycznymi.
!
Wszystkie cz
ĊĞ
ci, które stanowi
ą
zabezpieczenie,
powinny by
ü
zamocowane w taki sposób, aby nie
mo
Ī
na by
á
o ich zdj
ąü
bez u
Ī
ycia narz
Ċ
dzia.
Pod
áą
czenie do sieci elektrycznej
!
Pod
áą
czenie do sieci elektrycznej p
á
yty grzejnej
oraz ewentualnego pieca do zabudowy powinno
by
ü
wykonane oddzielnie, zarówno ze wzgl
Ċ
dów
bezpiecze
Ĕ
stwa elektrycznego, jak i dla u
á
atwienia
czynno
Ğ
ci zwi
ą
zanych z wyjmowaniem pieca.
Skrzynka zaciskowa
W dolnej cz
ĊĞ
ci urz
ą
dzenia znajduje si
Ċ
puszka
umo
Ī
liwiaj
ą
ca pod
áą
czenie ró
Ī
nych typów zasilania
elektrycznego (rysunek jest przyk
á
adowy i mo
Ī
e
przedstawia
ü
inny model ni
Ī
zakupiony).
Pod
áą
czenie jednofazowe
P
á
yta jest wyposa
Ī
ona w kabel
zasilaj
ą
cy przygotowany do
pod
áą
czenia jednofazowego.
Nale
Ī
y po
áą
czy
ü
przewody
zgodnie z tabel
ą
i z rysunkami
umieszczonymi poni
Ī
ej:
Inne typy pod
áą
cze
Ĕ
Je
Ğ
li instalacja elektryczna posiada jedn
ą
z
nast
Ċ
puj
ą
cych cech:
Typowe napi
Ċ
cie i cz
Ċ
stotliwo
Ğü
sieci
• 400V - 2+N ~ 50/60 Hz
• 220-240V 3 ~ 50/60 Hz
• 230-240V 3 ~ 50/60 Hz
• 400V - 2+2N ~ 50/60 Hz
Oddzieli
ü
kable i po
áą
czy
ü
przewody zgodnie z tabel
ą
i
z rysunkami umieszczonymi poni
Ī
ej:
Typowe napięcie i
częstotliwość sieci
Kabel elektryczny
Połączenie przewodów
400V - 2+N ~
50/60 Hz
230-240V 3 ~
220-240V 3 ~
50/60 Hz
: żółty/zielony;
N
:
2 przewody
niebieskie razem
L1
:
czarny
L2
:
brązowy
400V - 2+2N ~
50/60 Hz
: żółty/zielony;
N1
: niebieski
N2
: niebieski
L1
:
czarny
L2
:
brązowy
Je
Ğ
li instalacja elektryczna posiada jedn
ą
z
nast
Ċ
puj
ą
cych cech:
Typowe napi
Ċ
cie i cz
Ċ
stotliwo
Ğü
sieci
• 400V 3 - N ~ 50/60 Hz
nale
Ī
y wykona
ü
nast
Ċ
puj
ą
ce czynno
Ğ
ci:
!
Ewentualny kabel znajduj
ą
cy si
Ċ
w wyposa
Ī
eniu
urz
ą
dzenia nie nadaje si
Ċ
do tego typu instalacji.
1. Nalezy zastosowac kabel zasilajacy typu H05RR-F
lub o wyzszych wlasciwosciach, posiadajacy
odpowiednie wymiary (przekrój kabla: 25 mm).
2. Przy pomocy srubokretu podwazyc zatrzaski pokrywy
skrzynki zaciskowej i otworzyc ja (
patrz rysunek
Skrzynka zaciskowa
).
3. Odkr
Ċ
ci
ü Ğ
rub
Ċ
zacisku kabla oraz
Ğ
ruby zacisków
odpowiadaj
ą
cych danemu typowi pod
áą
czenia i
Typowe napięcie i
częstotliwość sieci
Kabel elektryczny
Połączenie przewodów
230-240V 1+N ~
220-240V 1+N ~
50/60 Hz
: żółty/zielony;
N
:
2 przewody niebieskie razem
L
:
brązowy razem z czarnym
69
PL
zainstalowa
ü Ğ
ruby
áą
cz
ą
ce w kszta
á
cie U zgodnie z
tabel
ą
i z rysunkami znajduj
ą
cymi si
Ċ
poni
Ī
ej:
4. U
á
o
Ī
y
ü
przewody zgodnie z tabel
ą
i z rysunkami
znajduj
ą
cymi si
Ċ
poni
Ī
ej i wykona
ü
pod
áą
czenie
ca
á
kowicie dokr
Ċ
caj
ą
c wszystkie
Ğ
ruby zacisków.
Typowe napięcie i
częstotliwość sieci
Połączenia elektryczne
Skrzynka zaciskowa
400V 3-N ~
50/60 Hz
Trójfazowa 400
5. Zamocowa
ü
kabel zasilaj
ą
cy w odpowiednim zacisku
i zamkn
ąü
pokryw
Ċ
.
Trójfazowa 400
Pod
áą
czenie kabla zasilaj
ą
cego do sieci
W przypadku bezpo
Ğ
redniego pod
áą
czenia do sieci
pomi
Ċ
dzy urz
ą
dzeniem a sieci
ą
, nale
Ī
y zainstalowa
ü
wy
áą
cznik wielobiegunowy z minimalnym otwarciem
mi
Ċ
dzy stykami wynosz
ą
cym 3 mm.
!
Instalator odpowiada za prawid
á
owe wykonanie
pod
áą
czenia elektrycznego i za zachowanie norm
bezpiecze
Ĕ
stwa.
Przed pod
áą
czeniem urz
ą
dzenia, nale
Ī
y si
Ċ
upewni
ü
czy:
• gniazdko posiada uziemienie i jest zgodne z
obowiazujacymi przepisami;
• gniazdko jest w stanie wytrzymac maksymalne
obciazenie mocy urzadzenia wskazane na tabliczce
znamionowej plyty;
• napi
Ċ
cie zasilania odpowiada warto
Ğ
ciom podanym
na tabliczce znamionowej;
• gniazdko jest kompatybilne z wtyczk
ą
urz
ą
dzenia.
Je
Ğ
li gniazdko nie jest kompatybilne, nale
Ī
y
wymieni
ü
gniazdko lub wtyczk
Ċ
; nie stosowa
ü
przed
á
u
Ī
aczy ani rozga
áĊ
ziaczy.
!
Po zainstalowaniu urz
ą
dzenia kabel elektryczny i
gniazdko pr
ą
du powinny by
ü á
atwo dost
Ċ
pne.
!
Kabel nie powinien by
ü
pogi
Ċ
ty ani przygnieciony.
!
Kabel elektryczny musi byc okresowo sprawdzany i
wymieniany wylacznie przez autoryzowany personel
techniczny.
!
W przypadku nieprzestrzegania tych zasad,
producent nie ponosi
Ī
adnej odpowiedzialno
Ğ
ci.
!
Nie usuwa
ü
ani zamienia
ü
przewodu zasilaj
ą
cego z
jakiego kolwiek powodu. Usuni
Ċ
cie lub wymiana b
Ċ
dzie
powodem utracenia gwarancji i znaku CE. INDESIT
zwolniony jest z jakiejkolwiek odpowiedzialno
Ğ
ci
za wypadki lub szkody wynikaj
ą
ce z usuni
Ċ
cia lub
wymiany oryginalnego przewodu zasilaj
ą
cego.
Dozwolona jest tylko wymiana przewodu na oryginalny,
a wymiany ma dokona
ü
upowa
Ī
niony personel z
INDESIT.
1
2
3
5
4
Rozszerzalne pola grzejne
Niektóre modele posiadaj
ą
rozszerzalne pola grzejne.
Mog
ą
one mie
ü
ró
Ī
ny kszta
á
t i ró
Ī
n
ą
rozszerzalno
Ğü
(p
á
yta podwójna lub potrójna). Przedstawione s
ą
tu
ich komendy sterowania, dost
Ċ
pne tylko w modelach
wyposa
Ī
onych w te opcje.
P
á
yta rozszerzalna okr
ą
g
á
a
• Przycisk
WLACZENIA PODWÓJNEJ PLYTY
do
aktywacji podwójnej plyty (
patrz Uruchomienie i
uzytkowanie
).
• Kontrolka
W£¥CZENIA PODWÓJNEJ P£YTY
:
sygnalizuje w
áą
czenie podwójnej p
á
yty.
• Przycisk
WLACZENIA POTRÓJNEJ PLYTY
do
aktywacji potrójnej plyty (
patrz Uruchomienie i
uzytkowanie
).
• Kontrolka
W£¥CZENIA POTRÓJNEJ P£YTY
:
sygnalizuje w
áą
czenie potrójnej p
á
yty.
70
PL
Uruchomienie i
u
Ī
ytkowanie
!
Klej stosowany do uszczelek pozostawia na szkle
t
á
uste plamy. Przed przyst
ą
pieniem do eksploatacji
urz
ą
dzenia zaleca si
Ċ
usun
ąü
te plamy przy pomocy
odpowiedniego produktu nieposiadaj
ą
cego w
á
a
Ğ
ciwo
Ğ
ci
Ğ
ciernych. Podczas pierwszych godzin dzia
á
ania
urz
ą
dzenia mo
Ī
e by
ü
wyczuwalny zapach gumy, który
jednak szybko zanika.
!
Kiedy p
á
yta grzejna zostanie pod
áą
czona do zasilania
elektrycznego, po kilku sekundach w
áą
cza si
Ċ
krótki
sygna
á
d
Ĩ
wi
Ċ
kowy. Dopiero po tym sygnale mo
Ī
na
w
áą
czy
ü
p
á
yt
Ċ
grzejn
ą
.
!
Dluzsze nacisniecie przycisków
-
i
+
umozliwia
szybki wybór poziomów mocy i minut regulatora
czasowego.
W
áą
czanie p
á
yty grzejnej
P
á
yt
Ċ
grzejn
ą
w
áą
cza si
Ċ
trzymaj
ą
c wci
Ğ
ni
Ċ
ty przycisk
przez oko
á
o sekund
Ċ
.
W
áą
czanie pól grzejnych
Ka
Ī
de pole grzejne jest aktywowane za pomoc
ą
przycisku wyboru
oraz regulatora mocy
sk
á
adaj
ą
cego si
Ċ
z podwójnego przycisku
-
i
+
.
• Aby
w
áą
czy
ü
pole grzejne, nale
Ī
y nacisn
ąü
jego
przycisk sterowania i ustawi
ü Īą
dan
ą
moc za
pomoc
ą
przycisków
-
i
+
.
Wy
áą
czanie pól grzejnych
Aby wy
áą
czy
ü
pole grzejne, nale
Ī
y je wybra
ü
za
pomoc
ą
jego przycisku wyboru
i:
• Nacisn
ąü
przycisk
-
: moc pola grzejnego stopniowo
spada, a
Ī
do jego wy
áą
czenia.
Funkcja power
Aby przyspieszyc czas nagrzewania pól grzejnych,
mozna wlaczyc funkcje power. Wlaczyc zadane pole
grzejne
i ustawic jego moc zgodnie z opisem
zawartym w poprzednim rozdziale. Nacisnac i
przytrzymac wcisniety przez co najmniej 2 sekundy
przycisk wyboru pola grzejnego
. Na wyswietlaczu,
na wskazniku mocy, przez caly czas konieczny dla
osiagniecia zadanego poziomu mocy wyswietla sie
naprzemiennie litera „
P
” oraz wczesniej ustawiony
poziom mocy. Po osiagnieciu zadanego poziomu mocy
na wyswietlaczu bedzie wskazany ustawiony poziom
mocy. Aby wylaczyc te funkcje, nalezy nacisnac i
przytrzymac wcisniety przez co najmniej 2 sekundy
przycisk wyboru pola grzejnego
, dla którego
funkcja jest wlaczona, lub wybrac inny poziom mocy za
pomoca przycisków
-
i
+
.
Elementy grzejne
Na plycie grzejnej, w zaleznosci od modelu, moga
byc zainstalowane dwa typy elementów grzejnych:
halogenowe i promiennikowe.
Elementy halogenowe przekazuj
ą
ciep
á
o poprzez
promieniowanie zawartej w nich
Ī
arówki halogenowej.
Charakteryzuj
ą
si
Ċ
w
á
asno
Ğ
ciami, które przypominaj
ą
typowe w
á
asno
Ğ
ci gazu: szybk
ą
reakcj
ą
na sterowanie i
wy
Ğ
wietlaniem mocy chwilowej.
Elementy promiennikowe sa zbudowane z duzej liczby
zwojów, które zapewniaja równomierne rozlozenie
ciepla na dno naczynia, dzieki czemu uzyskuje sie
doskonale wyniki gotowania na wolnym ogniu: jest to
idealne rozwiazanie w przypadku takich potraw jak na
przyklad duszone miesa, sosy lub dania do podgrzania.
Blokada sterowania
Kiedy p
á
yta grzejna jest w trakcie pracy, mo
Ī
na
zablokowa
ü
jej sterowanie, aby unikn
ąü
niebezpiecze
Ĕ
stwa przypadkowej zmiany ustawie
Ĕ
(dzieci, czynno
Ğ
ci konserwacyjne, itp.). Po naci
Ğ
ni
Ċ
ciu
przycisku
sterowanie zostaje zablokowane i w
áą
cza
si
Ċ
kontrolka umieszczona nad tym przyciskiem.
Aby przywróci
ü
mo
Ī
liwo
Ğü
dokonywania regulacji (np.
przerwa
ü
gotowanie), nale
Ī
y odblokowa
ü
sterowanie:
nacisn
ąü
na chwil
Ċ
przycisk
, kontrolka wy
áą
czy si
Ċ
,
a sterowanie zostanie odblokowane.
Wy
áą
czanie p
á
yty grzejnej
Po naci
Ğ
ni
Ċ
ciu przycisku
urz
ą
dzenie wy
áą
cza si
Ċ
.
Je
Ğ
li sterowanie zosta
á
o zablokowane, pozostanie ono
zablokowane równie
Ī
po ponownym w
áą
czeniu p
á
yty
grzejnej. Aby móc ponownie w
áą
czy
ü
p
á
yt
Ċ
, nale
Ī
y
najpierw odblokowa
ü
jej sterowanie.
71
PL
Praktyczne porady dotycz
ą
ce
u
Ī
ytkowania urz
ą
dzenia
Aby uzyska
ü
jak najlepsze wyniki u
Ī
ytkowania p
á
yty
grzejnej:
• Stosowa
ü
garnki z p
á
askim dnem i znacznej grubo
Ğ
ci,
aby mie
ü
pewno
Ğü
,
Ī
e dok
á
adnie przylegaj
ą
do pola
grzejnego.
• Stosowa
ü
garnki o
Ğ
rednicy wystarczaj
ą
cej do
ca
á
kowitego przykrycia pola grzejnego, tak aby
zapewni
ü
wykorzystanie ca
á
ego ciep
á
a;
• Upewni
ü
si
Ċ
czy dno garnka jest zawsze dok
á
adnie
osuszone i czyste, aby zagwarantowa
ü
dok
á
adne
przyleganie i d
á
ugotrwa
á
o
Ğü
u
Ī
ytkowania zarówno pól
grzejnych, jak i garnków.
• Unika
ü
stosowania tych samych garnków co
u
Ī
ywane na palnikach gazowych: skupienie ciep
á
a w
przypadku palników gazowych mo
Ī
e odkszta
á
ci
ü
dno
garnka, przez co nie b
Ċ
dzie on dok
á
adnie przylega
ü
;
Urz
ą
dzenia zabezpieczaj
ą
ce
Rozpoznawanie naczy
Ĕ
Ka
Ī
de pole grzejne posiada system rozpoznawania
naczy
Ĕ
. Pole grzejne wydziela ciep
á
o wy
áą
cznie, je
Ğ
li
znajduje si
Ċ
na nim garnek o dostosowanej do niego
wielko
Ğ
ci. Pulsuj
ą
ca kontrolka mo
Ī
e wskazywa
ü
na:
• nieodpowiedni
garnek
• garnek o zbyt ma
á
ej
Ğ
rednicy
• uniesienie
garnka
Wska
Ĩ
niki ciep
á
a szcz
ą
tkowego
Ka
Ī
de pole grzejne posiada wska
Ĩ
nik ciep
á
a
szcz
ą
tkowego. Wska
Ĩ
nik ten sygnalizuje, które pola
grzejne maj
ą
jeszcze wysok
ą
temperatur
Ċ
. Je
Ğ
li
na wy
Ğ
wietlaczu mocy jest wy
Ğ
wietlony symbol
, pole grzejne jest jeszcze ciep
á
e. Mo
Ī
na na przyk
á
ad
pozostawi
ü
na nim danie, aby nie wystyg
á
o, albo
roztopi
ü
mas
á
o lub czekolad
Ċ
. Kiedy temperatura pola
grzejnego spadnie, na wy
Ğ
wietlaczu mocy pojawi si
Ċ
symbol
. Wy
Ğ
wietlacz wy
áą
czy si
Ċ
, kiedy pole grzejne
b
Ċ
dzie dostatecznie zimne.
Przegrzanie
W przypadku przegrzania elementów elektronicznych
p
á
yta grzejna wy
áą
cza si
Ċ
automatycznie, a na
wy
Ğ
wietlaczu pojawia si
Ċ
symbol
F
, po którym
nast
Ċ
puje pulsuj
ą
ca cyfra. Komunikat ten znika i p
á
yta
grzejna mo
Ī
e by
ü
znowu u
Ī
ytkowana zaraz jak tylko
temperatura spadnie do akceptowalnego poziomu.
Wy
áą
cznik bezpiecze
Ĕ
stwa
Urz
ą
dzenie jest wyposa
Ī
one w wy
áą
cznik
bezpiecze
Ĕ
stwa, który automatycznie wy
áą
cza pola
grzejne, kiedy zostanie osi
ą
gni
Ċ
ty graniczny czas ich
u
Ī
ytkowania na danym poziomie mocy. W przypadku
zadzia
á
ania wy
áą
cznika bezpiecze
Ĕ
stwa wy
Ğ
wietlacz
wskazuje „
0
”.
Przyklad: prawe tylne pole grzejne jest ustawione
na 5, natomiast lewe przednie pole grzejne na
2. Prawe tylne pole wylaczy sie po 5 godzinach
dzialania, lewe przednie po 8 godzinach.
Poziom mocy
1
2
3
4
5
6
7
8
9
Graniczny czas działania w godzinach
9
8
7
6
5
4
3
2
1
Sygna
á
d
Ĩ
wi
Ċ
kowy
Niektóre anomalie, takie jak:
• umieszczenie przedmiotu (garnka, sztu
ü
ca itp.) na
ponad 10 sekund w strefi e panelu sterowania,
• zalanie strefy panelu sterowania,
• d
á
ugi nacisk na jaki
Ğ
przycisk, mog
ą
spowodowa
ü
w
áą
czenie si
Ċ
sygna
á
u d
Ĩ
wi
Ċ
kowego. Aby przerwa
ü
sygna
á
d
Ĩ
wi
Ċ
kowy, nale
Ī
y usun
ąü
przyczyn
Ċ
nieprawid
á
owo
Ğ
ci dzia
á
ania. Je
Ğ
li przyczyna anomalii
nie zostanie usuni
Ċ
ta, sygna
á
d
Ĩ
wi
Ċ
kowy pozostanie
w
áą
czony a p
á
yta wy
áą
czy si
Ċ
.
72
PL
Praktyczne porady dotycz
ą
ce gotowania
ª
Gotowanie pod ciśnieniem
Garnek ciśnieniowy
Smażenie
Grilowanie
Gotowanie
Gotowanie na
dużym ogniu
Gotowanie
na dużym
ogniu
Gotowanie na średnim ogniu
Gotowanie na
wolnym ogniu
Gotowanie
na bardzo
wolnym
ogniu
• • ¶
Naleśniki
Gotowanie na dużym ogniu i przysmażanie
(Pieczenie, Befsztyki, Zrazy, Filety rybne,
Smażone jajka)
¶ §
Szybkie zagęszczenie (Płynne sosy)
Woda gorąca (Makarony, Ryż, Warzywa)
Mleko
§ S
Wolne zagęszczanie (Sosy gęste)
S ¢
Gotowanie na wodzie
Gotowanie pod ciśnieniem po gwizdku
¢ £ ™
Gotowanie na wolnym
ogniu (mięso duszone)
Podgrzewanie potraw
™ ¡
Czekolada rozpuszczona
Utrzymywanie potraw w temperaturze
73
PL
Zalecenia i
Ğ
rodki ostro
Ī
no
Ğ
ci
!
Urz
ą
dzenie zosta
á
o zaprojektowane i wyprodukowane
zgodnie z mi
Ċ
dzynarodowymi normami bezpiecze
Ĕ
stwa.
Poni
Ī
sze ostrze
Ī
enia dotycz
ą
zasad bezpiecze
Ĕ
stwa i
nale
Ī
y je uwa
Ī
nie przeczyta
ü
.
Niniejsze urz
ą
dzenie jest zgodne z nast
Ċ
puj
ą
cymi
dyrektywami unijnymi:
- 2006/95/EWG z 12/12/06 (Niskie napiecie) wraz z
pózniejszymi zmianami
- 2004/108/EWG z 15/12/04 (Kompatybilno
Ğü
elektromagnetyczna) wraz z pó
Ĩ
niejszymi zmianami
- 93/68/EWG z 22/07/93 wraz z pó
Ĩ
niejszymi zmianami.
- 1275/2008 stand-by/off mode.
Ogólne zasady bezpiecze
Ĕ
stwa
!
Sprawdza
ü
, czy wlot powietrza poprzez kratk
Ċ
wentylatora
nigdy nie jest zatkany. Zabudowana p
á
yta grzejna wymaga
dobrego obiegu powietrza dla zapewnienia ch
á
odzenia
elementów elektronicznych.
• Niniejsze
urz
ą
dzenie przeznaczone jest do u
Ī
ytku
domowego.
• Nie
nale
Ī
y instalowa
ü
urz
ą
dzenia na zewn
ą
trz, nawet
w zadaszonym miejscu, poniewa
Ī
wystawienie go na
dzia
á
anie deszczu i burz jest bardzo niebezpieczne.
• Nie dotykac urzadzenia stojac przy nim boso lub majac
mokre albo wilgotne rece badz stopy.
•
Urz
ą
dzenie powinno by
ü
u
Ī
ywane przez osoby
doros
á
e jedynie w celach kulinarnych, zgodnie
ze wskazówkami zawartymi w instrukcji
u
Ī
ytkownika. Wszelkie inne próby u
Ī
ycia
urz
ą
dzenia (np. do ogrzewania pomieszcze
Ĕ
)
uwa
Ī
a si
Ċ
za niew
á
a
Ğ
ciwe i niebezpieczne.
Producent nie ponosi odpowiedzialno
Ğ
ci
za uszkodzenia wynikaj
ą
ce z niew
á
a
Ğ
ciwej i
nierozs
ą
dnej eksploatacji urz
ą
dzenia.
• Plyta szklano-ceramiczna jest odporna na uderzenia,
moze jednak ulec uszkodzeniu (lub ewentualnie
peknieciu), jesli zostanie uderzona ostrym przedmiotem,
np. jakims narzedziem. W takim przypadku nalezy
natychmiast odlaczyc urzadzenie od zasilania
elektrycznego i wezwac Serwis Techniczny.
• Nale
Ī
y uwa
Ī
a
ü
, aby przewody zasilaj
ą
ce pozosta
á
e
domowe urz
ą
dzenia elektryczne nie styka
á
y si
Ċ
z
rozgrzanymi elementami p
á
yty grzejnej.
• Nie nalezy zapominac, ze temperatura pól grzejnych
pozostaje wysoka przez co najmniej trzydziesci minut
po ich wylaczeniu. Cieplo szczatkowe jest równiez
sygnalizowane przez odpowiedni wskaznik (
patrz
Uruchomienie i uzytkowanie
).
• Utrzymywa
ü
w odpowiedniej odleg
á
o
Ğ
ci od p
á
yty
grzejnej ka
Ī
dy przedmiot, który mo
Ī
e si
Ċ
stopi
ü
,
np. przedmioty plastikowe, aluminiowe lub produkty
z du
Īą
zawarto
Ğ
ci
ą
cukru. Szczególnie uwa
Ī
a
ü
na wszelkie opakowania i ta
Ğ
my plastikowe lub
aluminiowe: ich pozostawienie na jeszcze gor
ą
cych
lub ciep
á
ych powierzchniach mo
Ī
e spowodowa
ü
powa
Ī
ne uszkodzenie p
á
yty.
• Nale
Ī
y si
Ċ
upewnia
ü
, czy uchwyty garnków s
ą
zawsze zwrócone w kierunku wewn
Ċ
trznej cz
ĊĞ
ci
p
á
yty grzejnej, aby unikn
ąü
ich przypadkowego
potr
ą
cenia.
• Nie
wyci
ą
ga
ü
wtyczki z gniazdka ci
ą
gn
ą
c za kabel -
nale
Ī
y trzyma
ü
za wtyczk
Ċ
.
• Nie
czy
Ğ
ci
ü
urz
ą
dzenia ani nie wykonywa
ü
czynno
Ğ
ci
konserwacyjnych bez uprzedniego od
áą
czenia
wtyczki od sieci elektrycznej.
• Nie jest przewidziane, aby urz
ą
dzenie by
á
o u
Ī
ywane
przez osoby (w tym dzieci) o ograniczonych
mo
Ī
liwo
Ğ
ciach fi zycznych lub umys
á
owych, przez
osoby bez do
Ğ
wiadczenia lub bez znajomo
Ğ
ci
urz
ą
dzenia, chyba
Ī
e pod nadzorem osoby
odpowiedzialnej za ich bezpiecze
Ĕ
stwo, jak równie
Ī
przez osoby, które nie zosta
á
y zapoznane ze
wst
Ċ
pnymi instrukcjami dotycz
ą
cymi u
Ī
ytkowania
urz
ą
dzenia.
•
Je
Ğ
li s
ą
, nie patrze
ü
d
á
ugo na gor
ą
ce pole
alogenowe.
• Nie
dopu
Ğ
ci
ü
aby dzieci bawi
á
y si
Ċ
urz
ą
dzeniem.
• Zabroni
ü
dzieciom bawienia si
Ċ
z urz
ą
dzeniem.
• Na
p
á
ycie nie nale
Ī
y k
á
a
Ğü
metalowych przedmiotów (no
Ī
y,
á
y
Ī
ek, pokrywek itp.), poniewa
Ī
mog
ą
si
Ċ
nagrzewa
ü
.
•
Urz
ą
dzenie nie jest przeznaczone do tego,
aby by
á
o w
áą
czane przy u
Ī
yciu zewn
Ċ
trznego
przeka
Ĩ
nika czasowego lub osobnego systemu
sterowania zdalnego.
Utylizacja
• Utylizacja opakowania: nale
Ī
y stosowa
ü
si
Ċ
do lokalnych
przepisów, dzi
Ċ
ki temu opakowania b
Ċ
d
ą
mog
á
y zosta
ü
poddane reutylizacji.
• Dyrektywa europejska 2002/96/WE w sprawie zu
Ī
ytego
sprz
Ċ
tu elektrycznego oraz elektronicznego (RAEE)
przewiduje,
Ī
e domowe urz
ą
dzenia elektryczne nie
mog
ą
podlega
ü
zwyk
á
emu cyklowi utylizacji sta
á
ych
odpadów miejskich. Zu
Ī
yte urz
ą
dzenia powinny by
ü
zbierane oddzielnie w celu zoptymalizowania stopnia
odzysku i recyklingu materia
á
ów, które zawieraj
ą
, oraz
aby zapobiec potencjalnym szkodom dla zdrowia i
Ğ
rodowiska. Symbol przekre
Ğ
lonego kosza umieszczony
na wszystkich produktach przypomina o obowi
ą
zku
selektywnego gromadzenia tych odpadów.
W celu uzyskania bli
Ī
szych informacji dotycz
ą
cych
prawid
á
owego z
á
omowania sprz
Ċ
tu domowego,
u
Ī
ytkownicy mog
ą
si
Ċ
zwróci
ü
do w
á
a
Ğ
ciwych s
á
u
Ī
b
miejskich lub do skupuj
ą
cych go sprzedawców.
74
PL
Konserwacja i utrzymanie
Od
áą
czenie pr
ą
du elektrycznego
Przed ka
Ī
d
ą
czynno
Ğ
ci
ą
nale
Ī
y od
áą
czy
ü
urz
ą
dzenie od sieci
zasilania elektrycznego.
Mycie urz
ą
dzenia
!
Unika
ü
stosowania
Ğ
rodków czyszcz
ą
cych o w
á
a
Ğ
ciwo
Ğ
ciach
Ğ
ciernych lub korozyjnych, takich jak produkty w sprayu do
barbecue i piecyków, odplamiacze i
Ğ
rodki przeciwrdzewne,
detergenty w proszku oraz g
ą
bki z powierzchni
ą
Ğ
cieraj
ą
c
ą
:
mog
ą
one w sposób nieodwracalny zarysowa
ü
powierzchni
Ċ
.
!
Do czyszczenia urzadzenia nigdy nie nalezy uzywac
oczyszczaczy parowych lub wysokocisnieniowych.
• W ramach zwyk
á
ej konserwacji wystarczy przemywa
ü
p
á
yt
Ċ
wilgotn
ą
g
ą
bk
ą
i osusza
ü
j
ą
papierowym r
Ċ
cznikiem
kuchennym.
• Je
Ğ
li p
á
yta jest szczególnie silnie zabrudzona, wyczy
Ğ
ci
ü
j
ą
przy pomocy odpowiedniego produktu do czyszczenia
powierzchni szklano-ceramicznych, sp
á
uka
ü
i osuszy
ü
.
• W celu eliminacji najtrudniejszych do usuni
Ċ
cia
zanieczyszcze
Ĕ
pos
á
ugiwa
ü
si
Ċ
odpowiedni
ą
skrobaczk
ą
.
Usuwa
ü
zanieczyszczenia zaraz jak tylko jest to mo
Ī
liwe,
nie czekaj
ą
c a
Ī
urz
ą
dzenie ostygnie, tak aby resztki
Ī
ywno
Ğ
ci nie stwardnia
á
y. Znakomite wyniki mo
Ī
na
uzyska
ü
stosuj
ą
c g
ą
bk
Ċ
drucian
ą
ze stali nierdzewnej
- specjaln
ą
do szklano-ceramicznych p
á
yt grzejnych -
nas
ą
czon
ą
wod
ą
i myd
á
em.
• Je
Ğ
li na p
á
ycie grzejnej stopi
ą
si
Ċ
przypadkowo przedmioty
lub materia
á
y, takie jak plastik albo cukier, nale
Ī
y je usun
ąü
przy pomocy skrobaczki, dopóki powierzchnia jest jeszcze
ciep
á
a.
• Po oczyszczeniu p
á
yta mo
Ī
e zosta
ü
pokryta odpowiednim
produktem do konserwacji i ochrony: jego niewidoczna
warstwa chroni powierzchni
Ċ
w przypadku wykipienia
potraw podczas gotowania. Zaleca si
Ċ
wykonywanie tych
czynno
Ğ
ci, gdy urz
ą
dzenie jest letnie lub zimne.
• Nale
Ī
y pami
Ċ
ta
ü
, aby zawsze sp
á
uka
ü
p
á
yt
Ċ
czyst
ą
wod
ą
i
dok
á
adnie j
ą
osuszy
ü
: resztki produktów mog
á
yby bowiem
przyklei
ü
si
Ċ
do jej powierzchni podczas nast
Ċ
pnego
gotowania.
Rama ze stali nierdzewnej
(tylko w modelach z ramka)
Na stali nierdzewnej moga powstac plamy w przypadku
pozostawienia na jej powierzchni przez dluzszy czas bardzo
twardej wody lub w przypadku stosowania srodków czystosci
zawierajacych fosfor.
Zaleca si
Ċ
obfi cie sp
á
uka
ü
i dok
á
adnie osuszy
ü
p
á
yt
Ċ
po
umyciu. W przypadku rozlania wody, nale
Ī
y j
ą
jak najszybciej
dok
á
adnie wytrze
ü
.
!
Niektóre p
á
yty grzejne maj
ą
ramk
Ċ
aluminiow
ą
, która jest
podobna do ramki ze stali nierdzewnej. Nie nale
Ī
y stosowa
ü
produktów do mycia i odt
á
uszczania innych ni
Ī
przeznaczone
do aluminium.
Demonta
Ī
p
á
yty
W razie konieczno
Ğ
ci zdemontowania p
á
yty grzejnej:
1. odkr
Ċ
ci
ü
Ğ
ruby przy pomocy których spr
ĊĪ
yny centruj
ą
ce s
ą
przymocowane do boków p
á
yty;
2. poluzowa
ü
Ğ
ruby uchwytów mocuj
ą
cych w rogach;
3. wyj
ąü
p
á
yt
Ċ
grzejn
ą
z mebla.
!
Odradza si
Ċ
ingerencj
Ċ
w wewn
Ċ
trzne mechanizmy
urz
ą
dzenia z zamiarem dokonania naprawy. W przypadku
awarii skontaktowa
ü
si
Ċ
z Serwisem.
Opis techniczny modeli
W tych tabelach podane s
ą
, kolejno dla ka
Ī
dego modelu, warto
Ğü
poch
á
anianej energii, typ elementu grzejnego oraz
Ğ
rednica ka
Ī
dego pola grzejnego.
Legenda:
H = hilight pojedyncze
HD = hilight podwójne
HT = hilight potrójne
AD = halogenowe podwójne
Płyty grzejne
Pola grzejne
Tylne lewe
Tylne prawe
Przednie lewe
Przednie prawe
Moc całkowita
Moc (w W
)
HD 2300
H 1400
H 1200
HD 1800
Œ
rednica (w mm
)
210
160
145
180
6700
Moc (w W
)
HT 2200/1000
H 1400
H 1200
H 1800
Œ
rednica (w mm
)
230/180/120
145
145
180
6600
VRA 640 X S
VRA 641 D B S
VRA 641 D X S
VRA 640 C S
VRA 640 C S
75
RS
Ɇɨɧɬɚɠ
!
ȼɚɠɧɨ ɫɨɯɪɚɧɢɬɶ ɞɚɧɧɨɟ ɪɭɤɨɜɨɞɫɬɜɨ ɞɥɹ ɟɝɨ
ɩɨɫɥɟɞɭɸɳɢɯ ɤɨɧɫɭɥɶɬɚɰɢɢ
.
ȼ ɫɥɭɱɚɟ ɩɪɨɞɚɠɢ
,
ɩɟɪɟɞɚɱɢ ɢɡɞɟɥɢɹ ɢɥɢ ɩɪɢ ɩɟɪɟɟɡɞɟ ɧɚ ɧɨɜɨɟ
ɦɟɫɬɨ ɠɢɬɟɥɶɫɬɜɚ ɧɟɨɛɯɨɞɢɦɨ ɩɪɨɜɟɪɢɬɶ
,
ɱɬɨɛɵ
ɪɭɤɨɜɨɞɫɬɜɨ ɨɫɬɚɜɚɥɨɫɶ ɜɦɟɫɬɟ ɫ ɢɡɞɟɥɢɟɦ
,
ɞɥɹ
ɬɨɝɨ ɱɬɨɛɵ ɟɝɨ ɧɨɜɵɢ ɜɥɚɞɟɥɟɰ ɦɨɝ ɨɡɧɚɤɨɦɢɬɶɫɹ
ɫ ɩɪɚɜɢɥɚɦɢ ɷɤɫɩɥɭɚɬɚɰɢɢ ɢ ɫ ɫɨɨɬɜɟɬɫɬɜɭɸɳɢɦɢ
ɩɪɟɞɭɩɪɟɠɞɟɧɢɹɦɢ
.
!
ȼɧɢɦɚɬɟɥɶɧɨ ɩɪɨɱɢɬɚɢɬɟ ɢɧɫɬɪɭɤɰɢɢ
:
ɜ ɧɢɯ
ɫɨɞɟɪɠɚɬɫɹ ɜɚɠɧɵɟ ɫɜɟɞɟɧɢɹ ɨ ɦɨɧɬɚɠɟ ɢɡɞɟɥɢɹ
,
ɟɝɨ ɷɤɫɩɥɭɚɬɚɰɢɢ ɢ ɛɟɡɨɩɚɫɧɨɫɬɢ
.
Ɋɚɫɩɨɥɨɠɟɧɢɟ
!
ɇɟ ɪɚɡɪɟɲɚɢɬɟ ɞɟɬɹɦ ɢɝɪɚɬɶ ɫ ɭɩɚɤɨɜɨɱɧɵɦɢ
ɦɚɬɟɪɢɚɥɚɦɢ
.
ɍɩɚɤɨɜɤɚ ɞɨɥɠɧɚ ɛɵɬɶ ɭɧɢɱɬɨɠɟɧɚ
ɜ ɫɨɨɬɜɟɬɫɬɜɢɢ ɫ ɩɪɚɜɢɥɚɦɢ ɫɛɨɪɚ ɦɭɫɨɪɚ
(
ɫɦ
.
ɉɪɟɞɨɫɬɨɪɨɠɧɨɫɬɢ ɢ ɪɟɤɨɦɟɧɞɚɰɢɢ
).
!
Ɇɨɧɬɚɠ ɢɡɞɟɥɢɹ ɩɪɨɢɡɜɨɞɢɬɫɹ ɜ ɫɨɨɬɜɟɬɫɬɜɢɢ
ɫ ɞɚɧɧɵɦɢ ɢɧɫɬɪɭɤɰɢɹɦɢ ɤɜɚɥɢɮɢɰɢɪɨɜɚɧɧɵɦɢ
ɫɩɟɰɢɚɥɢɫɬɚɦɢ
.
ɇɟɩɪɚɜɢɥɶɧɵɣ ɦɨɧɬɚɠ ɢɡɞɟɥɢɹ
ɦɨɠɟɬ ɫɬɚɬɶ ɩɪɢɱɢɧɨɣ ɩɨɜɪɟɠɞɟɧɢɹ ɢɦɭɳɟɫɬɜɚ ɢ
ɩɪɢɱɢɧɢɬɶ ɭɳɟɪɛ ɥɸɞɹɦ ɢ ɞɨɦɚɲɧɢɦ ɠɢɜɨɬɧɵɦ
.
ȼɫɬɪɨɟɧɧɵɣ ɦɨɧɬɚɠ
Ⱦɥɹ ɨɛɟɫɩɟɱɟɧɢɹ ɢɫɩɪɚɜɧɨɝɨ ɮɭɧɤɰɢɨɧɢɪɨɜɚɧɢɹ
ɜɫɬɪɚɢɜɚɟɦɨɝɨ ɢɡɞɟɥɢɹ ɤɭɯɨɧɧɵɣ ɦɨɞɭɥɶ ɞɨɥɠɟɧ
ɢɦɟɬɶ ɫɨɨɬɜɟɬɫɬɜɭɸɳɢɟ ɯɚɪɚɤɬɟɪɢɫɬɢɤɢ
:
•
ɩɨɜɟɪɯɧɨɫɬɶ ɤɭɯɨɧɧɨɝɨ ɬɨɩɚ ɞɨɥɠɧɚ ɛɵɬɶ ɢɡ
ɦɚɬɟɪɢɚɥɚ
,
ɭɫɬɨɣɱɢɜɨɝɨ ɤ ɬɟɦɩɟɪɚɬɭɪɟ ɩɪɢɦɟɪɧɨ
100°C;
•
ɟɫɥɢ ɜɚɪɨɱɧɚɹ ɩɚɧɟɥɶ ɭɫɬɚɧɚɜɥɢɜɚɟɬɫɹ ɧɚɞ
ɞɭɯɨɜɵɦ ɲɤɚɮɨɦ
,
ɨɧ ɞɨɥɠɟɧ ɛɵɬɶ ɨɫɧɚɳɟɧ
ɫɢɫɬɟɦɨɣ ɨɯɥɚɠɞɟɧɢɹ ɫ ɩɪɢɧɭɞɢɬɟɥɶɧɨɣ
ɜɟɧɬɢɥɹɰɢɟɣ
.
•
ɧɟ ɪɟɤɨɦɟɧɞɭɟɬɫɹ ɭɫɬɚɧɚɜɥɢɜɚɬɶ ɜɚɪɨɱɧɭɸ
ɩɚɧɟɥɶ ɧɚɞ ɩɨɫɭɞɨɦɨɟɱɧɵɦɢ ɦɚɲɢɧɚɦɢ
:
ɩɪɢ
ɧɟɨɛɯɨɞɢɦɨɫɬɢ ɭɫɬɚɧɨɜɢɬɟ ɦɟɠɞɭ ɜɚɪɨɱɧɨɣ
ɩɚɧɟɥɶɸ ɢ ɩɨɫɭɞɨɦɨɟɱɧɨɣ ɦɚɲɢɧɨɣ ɝɟɪɦɟɬɢɱɧɭɸ
ɪɚɡɞɟɥɢɬɟɥɶɧɭɸ ɜɫɬɚɜɤɭ
;
•
ɜ ɡɚɜɢɫɢɦɨɫɬɢ ɨɬ ɦɨɞɟɥɢ ɜɚɪɨɱɧɨɣ ɩɚɧɟɥɢ
,
ɤɨɬɨɪɭɸ ɜɵ ɭɫɬɚɧɚɜɥɢɜɚɟɬɟ
(
ɫɦ
.
ɫɯɟɦɵ
)
,
ɪɚɡɦɟɪɵ ɧɢɲɢ ɜ ɤɭɯɨɧɧɨɦ ɦɨɞɭɥɟ ɞɨɥɠɧɵ ɛɵɬɶ
ɫɥɟɞɭɸɳɢɦɢ
:
560 +/- 1
490 +/- 1
48
590
520
560 +/- 1
490 +/- 1
48
574
504
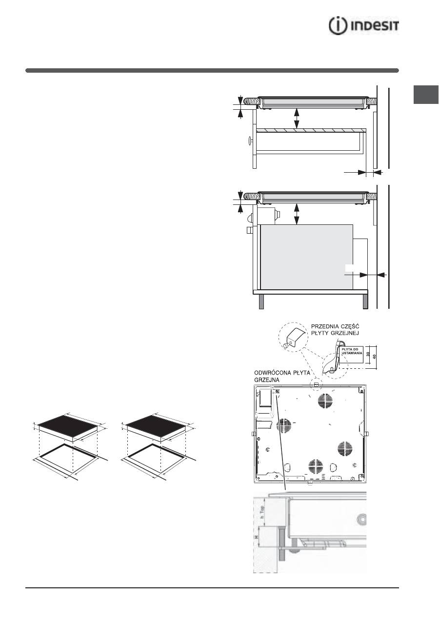
ȼɟɧɬɢɥɹɰɢɹ
Ⱦɥɹ ɨɛɟɫɩɟɱɟɧɢɹ ɧɚɞɥɟɠɚɳɟɣ ɜɟɧɬɢɥɹɰɢɢ ɢ ɜɨ
ɢɡɛɟɠɚɧɢɟ
ɩɟɪɟɝɪɟɜɚ ɩɪɢɥɟɝɚɸɳɢɯ ɩɨɜɟɪɯɧɨɫɬɟɢ ɜɚɪɨɱɧɚɹ
ɩɚɧɟɥɶ ɞɨɥɠɧɚ ɛɵɬɶ ɭɫɬɚɧɨɜɥɟɧɚ
:
•
ɧɚ ɦɢɧɢɦɚɥɶɧɨɦ ɪɚɫɫɬɨɹɧɢɢ
40
ɦɦ ɨɬ ɡɚɞɧɟɣ
ɫɬɟɧɤɢ
;
5 mm
min. 20 mm
min. 20 mm
min. 40 mm
Ящик
5 mm
min. 40 mm
Вентилируемая
76
RS
•
ɦɟɠɞɭ ɩɪɨɟɦɨɦ ɩɨɞ ɜɚɪɨɱɧɭɸ ɩɚɧɟɥɶ ɢ
ɪɚɫɩɨɥɨɠɟɧɧɵɦ ɫɧɢɡɭ ɤɭɯɨɧɧɵɦ ɷɥɟɦɟɧɬɨɦ
ɞɨɥɠɧɨ ɛɵɬɶ ɪɚɫɫɬɨɹɧɢɟ ɧɟ ɦɟɧɟɟ
20
ɦɦ
.
•
Ʉɭɯɨɧɧɵɟ ɷɥɟɦɟɧɬɵ
,
ɪɚɫɩɨɥɨɠɟɧɧɵɟ ɪɹɞɨɦ ɫ
ɤɭɯɨɧɧɨɣ ɩɥɢɬɨɣ
,
ɜɵɫɨɬɚ ɤɨɬɨɪɵɯ ɩɪɟɜɵɲɚɟɬ
ɭɪɨɜɟɧɶ ɜɚɪɨɱɧɨɣ ɩɚɧɟɥɢ
,
ɞɨɥɠɧɵ ɧɚɯɨɞɢɬɶɫɹ ɧɚ
ɪɚɫɫɬɨɹɧɢɟ ɧɟ ɦɟɧɟɟ
600
ɦɦ ɨɬ ɤɪɚɹ ɜɚɪɨɱɧɨɣ
ɩɚɧɟɥɢ
.
Ʉɪɟɩɥɟɧɢɟ
ɂɡɞɟɥɢɟ ɞɨɥɠɧɨ ɛɵɬɶ ɭɫɬɚɧɨɜɥɟɧɨ
ɧɚ ɢɞɟɚɥɶɧɨ
ɪɨɜɧɨɢ ɩɨɜɟɪɯɧɨɫɬɢ
.
ȼɨɡɦɨɠɧɵɟ ɞɟɮɨɪɦɚɰɢɢ
,
ɜɵɡɜɚɧɧɵɟ ɧɟɩɪɚɜɢɥɶɧɵɦ
ɤɪɟɩɥɟɧɢɟɦ
,
ɦɨɝɭɬ ɩɪɢɜɟɫɬɢ ɤ ɢɡɦɟɧɟɧɢɹɦ
ɯɚɪɚɤɬɟɪɢɫɬɢɤ ɢ ɷɤɫɩɥɭɚɬɚɰɢɨɧɧɵɯ ɤɚɱɟɫɬɜ
ɜɚɪɨɱɧɨɢ ɩɚɧɟɥɢ
.
Ⱦɥɢɧɚ ɪɟɝɭɥɹɰɢɨɧɧɨɝɨ ɜɢɧɬɚ ɤɪɟɩɟɠɧɵɯ ɤɪɸɤɨɜ
ɪɟɝɭɥɢɪɭɟɬɫɹ ɩɟɪɟɞ ɧɚɱɚɥɨɦ ɦɨɧɬɚɠɚ
ɩɨ ɬɨɥɳɢɧɟ
ɤɭɯɨɧɧɨɝɨ ɬɨɩɚ
:
•
ɬɨɥɳɢɧɚ
30
ɦɦ
:
ɞɥɢɧɚ ɜɢɧɬɚ
17,5
ɦɦ
;
•
ɬɨɥɳɢɧɚ
40
ɦɦ
:
ɞɥɢɧɚ ɜɢɧɬɚ
7,5
ɦɦ
;
ɉɨɪɹɞɨɤ ɤɪɟɩɥɟɧɢɹ ɢɡɞɟɥɢɹ
:
1.
ɉɪɢ ɩɨɦɨɳɢ ɤɨɪɨɬɤɢɯ ɬɭɩɵɯ ɲɭɪɭɩɨɜ
ɩɪɢɜɢɧɬɢɬɟ
4
ɰɟɧɬɪɨɜɨɱɧɵɟ ɩɪɭɠɢɧɵ ɜ ɨɬɜɟɪɫɬɢɹɯ
,
ɪɚɫɩɨɥɨɠɟɧɧɵɯ ɩɨ ɛɨɤɚɦ ɜɚɪɨɱɧɨɢ ɩɚɧɟɥɢ
;
2.
ȼɫɬɚɜɶɬɟ ɜɚɪɨɱɧɭɸ ɩɚɧɟɥɶ ɜ ɩɪɨɟɦ ɜ ɤɭɯɨɧɧɨɦ
ɦɨɞɭɥɟ
,
ɜɵɪɨɜɧɹɢɬɟ ɢ ɫɥɟɝɤɚ ɧɚɠɦɢɬɟ ɜ ɰɟɧɬɪ
ɜɩɥɨɞɶ ɞɨ ɢɞɟɚɥɶɧɨɝɨ ɩɪɢɥɟɝɚɧɢɹ ɜɚɪɨɱɧɨɢ ɩɚɧɟɥɢ
ɤ ɩɨɜɟɪɯɧɨɫɬɢ ɤɭɯɨɧɧɨɝɨ ɬɨɩɚ
.
3.
ɞɥɹ ɜɚɪɨɱɧɵɯ ɩɚɧɟɥɟɢ ɫ ɛɨɤɨɜɵɦɢ ɩɪɨɮɢɥɹɦɢ
:
ɜɫɬɚɜɢɜ ɜɚɪɨɱɧɭɸ ɩɚɧɟɥɢ ɜ ɧɢɲɭ ɤɭɯɨɧɧɨɝɨ ɦɨɞɭɥɹ
,
ɜɫɬɚɜɶɬɟ
4
ɤɪɟɩɟɠɧɵɯ ɤɪɸɤɚ
(
ɤɚɠɞɵɢ ɫɨ ɫɜɨɢɦ
ɲɬɢɮɬɨɦ
)
ɩɨ ɧɢɠɧɟɦɭ ɩɟɪɢɦɟɬɪɭ ɜɚɪɨɱɧɨɢ ɩɚɧɟɥɢ
,
ɡɚɤɪɭɱɢɜɚɹ ɢɯ ɞɥɢɧɧɵɦɢ ɨɫɬɪɵɦɢ ɛɨɥɬɚɦɢ ɞɨ
ɬɟɯ ɩɨɪ
,
ɩɨɤɚ ɫɬɟɤɥɨ ɧɟ ɛɭɞɟɬ ɩɥɨɬɧɨ ɩɪɢɥɟɝɚɬɶ ɤ
ɤɭɯɨɧɧɨɦɭ ɬɨɩɭ
.
!
ȼɚɠɧɨ
,
ɱɬɨɛɵ ɲɭɪɭɩɵ ɰɟɧɬɪɨɜɨɱɧɵɯ ɩɪɭɠɢɧ
ɨɫɬɚɜɚɥɢɫɶ ɞɨɫɬɭɩɧɵɦɢ
.
!
ȼ ɫɨɨɬɜɟɬɫɬɜɢɢ ɫ ɩɪɚɜɢɥɚɦɢ ɛɟɡɨɩɚɫɧɨɫɬɢ ɩɨɫɥɟ
ɭɫɬɚɧɨɜɤɢ ɢɡɞɟɥɢɹ ɜ ɤɭɯɨɧɧɵɢ ɦɨɞɭɥɶ ɞɨɥɠɧɚ ɛɵɬɶ
ɢɫɤɥɸɱɟɧɚ ɜɨɡɦɨɠɧɨɫɬɶ ɤɚɫɚɧɢɹ ɤ ɷɥɟɤɬɪɢɱɟɫɤɢɦɢ
ɱɚɫɬɹɦɢ
.
!
ȼɫɟ ɡɚɳɢɬɧɵɟ ɷɥɟɦɟɧɬɵ ɞɨɥɠɧɵ ɛɵɬɶ ɡɚɤɪɟɩɥɟɧɵ
ɬɚɤɢɦ ɨɛɪɚɡɨɦ
,
ɱɬɨɛɵ ɢɯ ɦɨɠɧɨ ɛɵɥɨ ɫɧɹɬɶ ɬɨɥɶɤɨ
ɩɪɢ ɩɨɦɨɳɢ ɫɩɟɰɢɚɥɶɧɨɝɨ ɢɧɫɬɪɭɦɟɧɬɚ
.
ɗɥɟɤɬɪɢɱɟɫɤɨɟ ɩɨɞɤɥɸɱɟɧɢɟ
!
ɗɥɟɤɬɪɢɱɟɫɤɨɟ ɩɨɞɤɥɸɱɟɧɢɟ ɜɚɪɨɱɧɨɢ ɩɚɧɟɥɢ ɢ
ɜɨɡɦɨɠɧɨɝɨ ɜɫɬɪɚɢɜɚɟɦɨɝɨ ɞɭɯɨɜɨɝɨ ɲɤɚɮɚ ɞɨɥɠɧɨ
ɜɵɩɨɥɧɹɬɶɫɹ ɪɚɡɞɟɥɶɧɨ ɩɨ ɩɪɢɱɢɧɚɦ ɛɟɡɨɩɚɫɧɨɫɬɢ
,
ɚ ɬɚɤ ɠɟ ɞɥɹ ɥɟɝɤɨɝɨ ɫɴɟɦɚ ɞɭɯɨɜɨɝɨ ɲɤɚɮɚ
.
Ʉɥɟɦɦɧɚɹ ɤɨɥɨɞɤɚ
ȼ ɧɢɠɧɟɢ ɱɚɫɬɢ ɢɡɞɟɥɢɟ ɨɫɧɚɳɟɧɨ ɤɨɥɨɞɤɨɢ ɞɥɹ
ɩɨɞɫɨɟɞɢɧɟɧɢɹ ɪɚɡɧɵɯ ɜɢɞɨɜ ɷɥɟɤɬɪɨɩɢɬɚɧɢɹ
(
ɪɢɫɭɧɨɤ ɩɪɢɜɨɞɢɬɫɹ ɞɥɹ ɩɪɢɦɟɪɚ ɢ ɦɨɠɟɬ ɧɟ
ɫɨɨɬɜɟɬɫɬɜɨɜɚɬɶ ɦɨɞɟɥɢ ɜɚɲɟɝɨ ɢɡɞɟɥɢɹ
).
Ɇɨɧɨɮɚɡɧɨɟ ɫɨɟɞɢɧɟɧɢɟ
ȼɚɪɨɱɧɚɹ ɩɚɧɟɥɶ
ɨɫɧɚɳɟɧɚ ɫɟɬɟɜɵɦ
ɤɚɛɟɥɟɦ
,
ɪɚɫɫɱɢɬɚɧɧɵɦ ɧɚ
ɦɨɧɨɮɚɡɧɨɟ ɷɥɟɤɬɪɨɩɢɬɚɧɢɟ
.
ɉɨɞɫɨɟɞɢɧɢɬɟ ɩɪɨɜɨɞɚ ɜ
ɫɨɨɬɜɟɬɫɬɜɢɢ ɫ ɬɚɛɥɢɰɟɢ ɢ
ɩɪɢɜɟɞɟɧɧɵɦ ɧɢɠɟ ɫɯɟɦɚɦ
:
Типовое
напряжение
и частота сети
Электрический провод
Подсоединение
проводов
230-240V 1+N ~
220-240V 1+N ~
50/60 Hz
:
желто-зеленый
;
N
:
2 синий провода
вместе на
L
:
коричневый
вместе с черным
Ⱦɪɭɝɢɟ ɬɢɩɵ ɫɨɟɞɢɧɟɧɢɣ
ȿɫɥɢ ɷɥɟɤɬɪɨɩɪɨɜɨɞɤɚ ɫɨɨɬɜɟɬɫɬɜɭɟɬ ɨɞɧɨɢ ɢɡ
ɫɥɟɞɭɸɳɢɯ ɯɚɪɚɤɬɟɪɢɫɬɢɤ
:
Ɍɢɩɨɜɨɟ ɧɚɩɪɹɠɟɧɢɟ ɢ ɱɚɫɬɨɬɚ ɫɟɬɢ
• 400
ȼ
- 2+N ~ 50/60
Ƚɰ
• 220-240
ȼ
3 ~ 50/60
Ƚɰ
• 230-240B 3 ~ 50/60 Hz
• 400
ȼ
- 2+2N ~ 50/60
Ƚɰ
Ɋɚɡɞɟɥɢɬɟ ɩɪɨɜɨɞɚ ɢ ɩɨɞɫɨɟɞɢɧɢɬɟ ɩɪɨɜɨɞɧɢɤɢ
ɜ ɫɨɨɬɜɟɬɫɬɜɢɢ ɫ ɬɚɛɥɢɰɟɢ ɢ ɩɪɢɜɟɞɟɧɧɵɦ ɧɢɠɟ
ɫɯɟɦɚɦ
:
Типовое
напряжение
и частота сети
Электрический провод
Подсоединение
проводов
400V - 2+N ~
50/60 Hz
230-240V 3 ~
220-240V 3 ~
50/60 Hz
:
желто-зеленый
;
N
:
2 синий провода
вместе на
L1
:
черный
L2
:
коричневый
400V - 2+2N ~
50/60 Hz
:
желто-зеленый
;
N1
:
синий
N2
:
синий
L1
:
черный
L2
:
коричневый
ȿɫɥɢ ɷɥɟɤɬɪɨɩɪɨɜɨɞɤɚ ɫɨɨɬɜɟɬɫɬɜɭɟɬ ɨɞɧɨɢ ɢɡ
ɫɥɟɞɭɸɳɢɯ ɯɚɪɚɤɬɟɪɢɫɬɢɤ
:
Ɍɢɩɨɜɨɟ ɧɚɩɪɹɠɟɧɢɟ ɢ ɱɚɫɬɨɬɚ ɫɟɬɢ
• 400
ȼ
3 - N ~ 50/60
Ƚɰ
ɜɵɩɨɥɧɢɬɟ ɫɥɟɞɭɸɳɟɟ
:
!
ȼɨɡɦɨɠɧɵɢ ɩɪɢɥɚɝɚɸɳɢɢɫɹ ɫɟɬɟɜɨɢ ɤɚɛɟɥɶ ɧɟɥɶɡɹ
ɢɫɩɨɥɶɡɨɜɚɬɶ ɞɥɹ ɬɚɤɨɝɨ ɬɢɩɚ ɦɨɧɬɚɠɚ
.
1.
ɂɫɩɨɥɶɡɭɢɬɟ ɧɚɞɥɟɠɚɳɢɢ ɫɟɬɟɜɨɢ ɤɚɛɟɥɶ ɬɢɩɚ
H05RR-F
ɢɥɢ ɫ ɛɨɥɶɲɢɦ ɡɧɚɱɟɧɢɟɦ
,
ɧɚɞɥɟɠɚɳɟɝɨ
ɪɚɡɦɟɪɚ
(
ɫɟɱɟɧɢɟ ɤɚɛɟɥɹ
: 25
ɦɦ
).
2.
ɉɪɢ ɩɨɦɨɳɢ ɨɬɜɟɪɬɤɢ ɩɨɞɧɢɦɢɬɟ ɹɡɵɱɤɢ ɤɪɵɲɤɢ
ɤɥɟɦɦɧɨɢ ɤɨɥɨɞɤɢ ɢ ɨɬɤɪɨɢɬɟ ɟɟ
(
ɫɦ
.
ɢɡɨɛɪɚɠɟɧɢɟ
ɤɥɟɦɦɧɨɢ ɤɨɥɨɞɤɢ
).
77
RS
3.
Ɉɬɜɢɧɬɢɬɟ ɩɪɢɠɢɦɧɨɢ ɜɢɧɬ ɩɪɨɜɨɞɚ ɢ ɜɢɧɬɵ
ɡɚɠɢɦɨɜ
,
ɫɨɨɬɜɟɬɫɬɜɭɸɳɢɯ ɬɢɩɭ ɧɟɨɛɯɨɞɢɦɨɝɨ
ɫɨɟɞɢɧɟɧɢɹ
,
ɡɚɬɟɦ ɭɫɬɚɧɨɜɢɬɟ ɫɨɟɞɢɧɢɬɟɥɶɧɵɟ
ɩɟɪɟɦɵɱɤɢ ɫɨɝɥɚɫɧɨ ɬɚɛɥɢɰɟ ɢ ɩɪɢɜɟɞɟɧɧɵɦ ɧɢɠɟ
ɫɯɟɦɚɦ
.
4.
Ɋɚɫɩɨɥɨɠɢɬɟ ɩɪɨɜɨɞɧɢɤɢ ɫɨɝɥɚɫɧɨ ɬɚɛɥɢɰɟ ɢ
ɩɪɢɜɟɞɟɧɧɵɦ ɧɢɠɟ ɫɯɟɦɚɦ ɢ ɩɨɞɫɨɟɞɢɧɢɬɟ ɢɯ
,
ɞɨ
ɭɩɨɪɚ ɡɚɤɪɭɬɢɜ ɜɫɟ ɜɢɧɬɵ ɡɚɠɢɦɨɜ
.
Типовое напряжение
и частота сети
Электропитание
Зажимная коробка
400V 3-N ~
50/60 Hz
Трехфазный 400
5.
Ɂɚɮɢɤɫɢɪɭɢɬɟ ɫɟɬɟɜɨɢ ɤɚɛɟɥɶ ɜ ɫɩɟɰɢɚɥɶɧɨɦ
ɤɚɛɟɥɶɧɨɦ ɫɚɥɶɧɢɤɟ ɢ ɡɚɤɪɨɢɬɟ ɤɪɵɲɤɭ
.
Ɍɪɟɯɮɚɡɧɨɟ
400
ɉɨɞɫɨɟɞɢɧɟɧɢɟ ɫɟɬɟɜɨɝɨ ɤɚɛɟɥɹ ɢɡɞɟɥɢɹ ɤ ɫɟɬɢ
ɷɥɟɤɬɪɨɩɢɬɚɧɢɹ
ȼ ɫɥɭɱɚɟ ɩɪɹɦɨɝɨ ɩɨɞɤɥɸɱɟɧɢɹ ɢɡɞɟɥɢɹ ɤ ɫɟɬɢ
ɧɟɨɛɯɨɞɢɦɨ ɭɫɬɚɧɨɜɢɬɶ ɦɟɠɞɭ ɢɡɞɟɥɢɟɦ ɢ
ɷɥɟɤɬɪɢɱɟɫɤɨɢ ɫɟɬɶɸ ɦɧɨɝɨɩɨɥɹɪɧɵɢ ɪɚɡɴɟɞɢɧɢɬɟɥɶ
ɫ ɦɢɧɢɦɚɥɶɧɵɦ ɪɚɫɫɬɨɹɧɢɟɦ ɦɟɠɞɭ ɤɨɧɬɚɤɬɚɦɢ
3
ɦɦ
.
!
ɗɥɟɤɬɪɨɦɨɧɬɟɪ ɧɟɫɟɬ ɨɬɜɟɬɫɬɜɟɧɧɨɫɬɶ ɡɚ
ɩɪɚɜɢɥɶɧɨɟ ɩɨɞɤɥɸɱɟɧɢɟ ɢɡɞɟɥɢɹ ɤ ɷɥɟɤɬɪɢɱɟɫɤɨɢ
ɫɟɬɢ ɢ ɡɚ ɫɨɛɥɸɞɟɧɢɟ ɩɪɚɜɢɥ ɛɟɡɨɩɚɫɧɨɫɬɢ
.
ɉɟɪɟɞ ɨɫɭɳɟɫɬɜɥɟɧɢɟɦ ɷɥɟɤɬɪɢɱɟɫɤɨɝɨ
ɩɨɞɫɨɟɞɢɧɟɧɢɹ ɧɟɨɛɯɨɞɢɦɨ ɩɪɨɜɟɪɢɬɶ ɫɥɟɞɭɸɳɟɟ
:
•
ɫɟɬɟɜɚɹ ɪɨɡɟɬɤɚ ɞɨɥɠɧɚ ɛɵɬɶ ɫɨɟɞɢɧɟɧɚ ɫ
ɡɚɡɟɦɥɟɧɢɟɦ ɢ ɫɨɨɬɜɟɬɫɬɜɨɜɚɬɶ ɧɨɪɦɚɬɢɜɚɦ
;
•
ɫɟɬɟɜɚɹ ɪɨɡɟɬɤɚ ɞɨɥɠɧɚ ɛɵɬɶ ɪɚɫɱɢɬɚɧɚ ɧɚ
ɦɚɤɫɢɦɚɥɶɧɭɸ ɩɨɬɪɟɛɥɹɟɦɭɸ ɦɨɳɧɨɫɬɶ
ɢɡɞɟɥɢɹ
,
ɭɤɚɡɚɧɧɭɸ ɧɚ ɩɚɫɩɨɪɬɧɨɢ ɬɚɛɥɢɱɤɟ ɫ
ɬɟɯɧɢɱɟɫɤɢɦɢ ɯɚɪɚɤɬɟɪɢɫɬɢɤɚɦɢ
;
•
ɧɚɩɪɹɠɟɧɢɟ ɢ ɱɚɫɬɨɬɚ ɬɨɤɚ ɫɟɬɢ ɞɨɥɠɧɵ
ɫɨɨɬɜɟɬɫɬɜɨɜɚɬɶ ɷɥɟɤɬɪɢɱɟɫɤɢɦ ɞɚɧɧɵɦ ɢɡɞɟɥɢɹ
;
•
ɫɟɬɟɜɚɹ ɪɨɡɟɬɤɚ ɞɨɥɠɧɚ ɛɵɬɶ ɫɨɜɦɟɫɬɢɦɚ ɫɨ
ɲɬɟɩɫɟɥɶɧɨɢ ɜɢɥɤɨɢ ɢɡɞɟɥɢɹ
.
ȼ ɩɪɨɬɢɜɧɨɦ
ɫɥɭɱɚɟ ɡɚɦɟɧɢɬɟ ɪɨɡɟɬɤɭ ɢɥɢ ɜɢɥɤɭ
;
ɧɟ
ɢɫɩɨɥɶɡɭɢɬɟ ɭɞɥɢɧɢɬɟɥɢ ɢɥɢ ɬɪɨɢɧɢɤɢ
.
!
ɂɡɞɟɥɢɟ ɞɨɥɠɧɨ ɛɵɬɶ ɭɫɬɚɧɨɜɥɟɧɨ ɬɚɤɢɦ ɨɛɪɚɡɨɦ
,
ɱɬɨɛɵ ɫɟɬɟɜɨɢ ɤɚɛɟɥɶ ɢ ɫɟɬɟɜɚɹ ɪɨɡɟɬɤɚ ɛɵɥɢ ɥɟɝɤɨ
ɞɨɫɬɭɩɧɵ
.
!
ɋɟɬɟɜɨɢ ɤɚɛɟɥɶ ɢɡɞɟɥɢɹ ɧɟ ɞɨɥɠɟɧ ɛɵɬɶ ɫɨɝɧɭɬ
ɢɥɢ ɫɠɚɬ
.
!
Ɋɟɝɭɥɹɪɧɨ ɩɪɨɜɟɪɹɢɬɟ ɫɨɫɬɨɹɧɢɟ ɫɟɬɟɜɨɝɨ ɤɚɛɟɥɹ
ɢ ɩɪɢ ɧɟɨɛɯɨɞɢɦɨɫɬɢ ɩɨɪɭɱɚɢɬɟ ɟɝɨ ɡɚɦɟɧɭ ɬɨɥɶɤɨ
ɭɩɨɥɧɨɦɨɱɟɧɧɵɦ ɬɟɯɧɢɤɚɦ
.
!
ɉɪɨɢɡɜɨɞɢɬɟɥɶ ɧɟ ɧɟɫɟɬ ɨɬɜɟɬɫɬɜɟɧɧɨɫɬɢ ɡɚ
ɩɨɫɥɟɞɫɬɜɢɹ ɧɟɫɨɛɥɸɞɟɧɢɹ ɩɟɪɟɱɢɫɥɟɧɧɵɯ
ɜɵɲɟ ɬɪɟɛɨɜɚɧɢɢ
.
!
Ʉɚɬɟɝɨɪɢɱɟɫɤɢ ɡɚɩɪɟɳɚɟɬɫɹ ɨɬɫɨɟɞɢɧɹɬɶ ɢ ɧɟ
ɡɚɦɟɧɹɬɶ ɫɟɬɟɜɨɣ ɤɚɛɟɥɶ
.
ȼ ɫɥɭɱɚɟ ɨɬɫɨɟɞɢɧɟɧɢɹ
ɢɥɢ ɡɚɦɟɧɵ ɫɟɬɟɜɨɝɨ ɤɚɛɟɥɹ ɝɚɪɚɧɬɢɹ ɧɚ ɢɡɞɟɥɢɟ
ɚɧɧɭɥɢɪɭɟɬɫɹ
,
ɪɚɜɧɨ ɤɚɤ ɢ ɦɚɪɤɢɪɨɜɤɚ ȿɋ
.
Ʉɨɦɩɚɧɢɹ
INDESIT
ɫɧɢɦɚɟɬ ɫ ɫɟɛɹ ɜɫɹɤɭɸ ɨɬɜɟɬɫɬɜɟɧɧɨɫɬɶ
ɡɚ ɧɟɫɱɚɫɬɧɵɟ ɫɥɭɱɚɢ ɢɥɢ ɭɳɟɪɛ
,
ɜɵɡɜɚɧɧɵɣ
ɨɬɫɨɟɞɢɧɟɧɢɟɦ ɢɥɢ ɡɚɦɟɧɨɣ ɨɪɢɝɢɧɚɥɶɧɨɝɨ
ɫɟɬɟɜɨɝɨ ɤɚɛɟɥɹ
.
Ⱦɨɩɭɫɤɚɟɬɫɹ ɡɚɦɟɧɚ ɬɨɥɶɤɨ ɧɚ
ɨɪɢɝɢɧɚɥɶɧɵɣ ɫɟɬɟɜɨɣ ɤɚɛɟɥɶ
,
ɜɵɩɨɥɧɹɟɦɚɹ
ɬɟɯɧɢɤɨɦ
,
ɭɩɨɥɧɨɦɨɱɟɧɧɵɦ Ʉɨɦɩɚɧɢɟɣ
INDESIT.
1
2
3
5
4
Ɋɚɫɲɢɪɹɸɳɢɟɫɹ ɜɚɪɨɱɧɵɟ ɡɨɧɵ
ȼ ɧɟɤɨɬɨɪɵɯ ɦɨɞɟɥɹɯ ɢɦɟɸɬɫɹ ɪɚɫɲɢɪɹɸɳɢɟɫɹ
ɜɚɪɨɱɧɵɟ ɡɨɧɵ
.
Ɉɧɢ ɦɨɝɭɬ ɛɵɬɶ ɪɚɡɧɨɢ ɮɨɪɦɵ
ɢ ɪɚɡɥɢɱɧɨɝɨ ɪɚɞɢɭɫɚ ɪɚɫɲɢɪɟɧɢɹ
(
ɞɜɨɢɧɚɹ ɢɥɢ
ɬɪɨɢɧɚɹ ɜɚɪɨɱɧɚɹ ɡɨɧɚ
).
ɇɢɠɟ ɩɪɢɜɨɞɢɬɫɹ ɨɩɢɫɚɧɢɟ
ɫɨɨɬɜɟɬɫɬɜɭɸɳɢɯ ɭɩɪɚɜɥɟɧɢɢ
,
ɢɦɟɸɳɢɯɫɹ ɬɨɥɶɤɨ ɜ
ɦɨɞɟɥɹɯ
,
ɨɫɧɚɳɟɧɧɵɯ ɷɬɢɦɢ ɮɭɧɤɰɢɹɦɢ
.
Ʉɪɭɝɥɚɹ ɪɚɫɲɢɪɹɸɳɚɹɫɹ ɜɚɪɨɱɧɚɹ ɡɨɧɚ
•
Ʉɧɨɩɤɚ
ȼɄɅɘɑȿɇɂȿ ȾȼɈɂɇɈɂ ȼȺɊɈɑɇɈɂ
ɁɈɇɕ
ɫɥɭɠɢɬ ɞɥɹ ɜɤɥɸɱɟɧɢɹ ɞɜɨɢɧɨɢ ɤɨɧɮɨɪɤɢ
(
ɫɦ
.
ȼɤɥɸɱɟɧɢɟ ɢ ɷɤɫɩɥɭɚɬɚɰɢɹ
).
•
ɂɧɞɢɤɚɬɨɪ
ȾȼɈɂɇȺə ȼȺɊɈɑɇȺə ɁɈɇȺ
ȼɄɅɘɑȿɇȺ
:
ɩɨɤɚɡɵɜɚɟɬ
,
ɱɬɨ ɞɜɨɢɧɚɹ ɜɚɪɨɱɧɚɹ
ɡɨɧɚ ɜɤɥɸɱɟɧɚ
.
•
Ʉɧɨɩɤɚ
ȼɄɅɘɑȿɇɂȿ ɌɊɈɂɇɈɂ ȼȺɊɈɑɇɈɂ
ɁɈɇɕ
ɫɥɭɠɢɬ ɞɥɹ ɜɤɥɸɱɟɧɢɹ ɬɪɨɢɧɨɢ ɤɨɧɮɨɪɤɢ
(
ɫɦ
.
ȼɤɥɸɱɟɧɢɟ ɢ ɷɤɫɩɥɭɚɬɚɰɢɹ
).
•
ɂɧɞɢɤɚɬɨɪ
ɌɊɈɂɇȺə ȼȺɊɈɑɇȺə ɁɈɇȺ
ȼɄɅɘɑȿɇȺ
:
ɩɨɤɚɡɵɜɚɟɬ
,
ɱɬɨ ɬɪɨɢɧɚɹ ɜɚɪɨɱɧɚɹ
ɡɨɧɚ ɜɤɥɸɱɟɧɚ
.
78
RS
ȼɤɥɸɱɟɧɢɟ ɢ
ɷɤɫɩɥɭɚɬɚɰɢɹ
!
ɇɚ ɫɬɟɤɥɹɧɧɨɢ ɩɨɜɟɪɯɧɨɫɬɢ ɜɚɪɨɱɧɨɢ ɩɚɧɟɥɢ ɦɨɝɭɬ
ɛɵɬɶ ɜɢɞɧɵ ɫɚɥɶɧɵɟ ɫɥɟɞɵ ɨɬ ɤɥɟɹ
,
ɧɚɧɟɫɟɧɧɨɝɨ
ɧɚ ɩɪɨɤɥɚɞɤɢ ɉɟɪɟɞ ɧɚɱɚɥɨɦ ɷɤɫɩɥɭɚɬɚɰɢɢ
ɢɡɞɟɥɢɹ ɫɥɟɞɭɟɬ ɭɞɚɥɢɬɶ ɫɥɟɞɵ ɤɥɟɹ ɩɪɢ ɩɨɦɨɳɢ
ɫɩɟɰɢɚɥɶɧɨɝɨ ɧɟɚɛɪɚɡɢɜɧɨɝɨ ɦɨɸɳɟɝɨ ɫɪɟɞɫɬɜɚ
.
ȼ
ɩɟɪɜɵɟ ɱɚɫɵ ɪɚɛɨɬɵ ɜɵ ɦɨɠɟɬɟ ɩɨɱɭɜɫɬɜɨɜɚɬɶ ɡɚɩɚɯ
ɠɠɟɧɨɢ ɪɟɡɢɧɵ
,
ɤɨɬɨɪɵɢ ɛɵɫɬɪɨ ɩɪɨɩɚɞɚɟɬ
.
!
ɑɟɪɟɡ ɧɟɫɤɨɥɤɨ ɫɟɤɭɧɞ ɩɨɫɥɟ ɩɨɞɫɨɟɞɢɧɟɧɢɹ
ɜɚɪɨɱɧɨɢ ɩɚɧɟɥɢ ɤ ɫɟɬɢ ɷɥɟɤɬɪɨɩɢɬɚɧɢɹ ɜɤɥɸɱɚɟɬɫɹ
ɤɨɪɨɬɤɢɢ ɡɜɭɤɨɜɨɢ ɫɢɝɧɚɥ
.
Ɍɨɥɶɤɨ ɩɨɫɥɟ ɷɬɨɝɨ ɦɨɠɧɨ
ɜɤɥɸɱɢɬɶ ɜɚɪɨɱɧɭɸ ɩɚɧɟɥɶ
.
!
ɉɪɢ ɞɥɢɬɟɥɶɧɨɦ ɧɚɠɚɬɢɢ ɧɚ ɤɧɨɩɤɢ
-
ɢ
+
ɩɪɨɢɫɯɨɞɢɬ ɛɵɫɬɪɚɹ ɫɦɟɧɚ ɭɪɨɜɧɟɢ ɦɨɳɧɨɫɬɢ ɢ
ɦɢɧɭɬ ɬɚɢɦɟɪɚ
.
ȼɤɥɸɱɟɧɢɟ ɜɚɪɨɱɧɨɣ ɩɚɧɟɥɢ
ȼɤɥɸɱɢɬɟ ɜɚɪɨɱɧɭɸ ɩɚɧɟɥɶ
,
ɧɚɠɚɜ ɤɧɨɩɤɭ
ɩɪɢɦɟɪɧɨ ɧɚ ɨɞɧɭ ɫɟɤɭɧɞɭ
.
ȼɤɥɸɱɟɧɢɟ ɜɚɪɨɱɧɵɯ ɡɨɧ
Ʉɚɠɞɚɹ ɡɨɧɚ ɜɚɪɨɱɧɨɢ ɩɚɧɟɥɢ ɜɤɥɸɱɚɟɬɫɹ ɩɪɢ
ɩɨɦɨɳɢ ɤɧɨɩɤɢ
ɢ ɪɟɝɭɥɹɬɨɪɚ ɦɨɳɧɨɫɬɢ
,
ɫɨɫɬɨɹɳɟɝɨ ɢɡ ɞɜɨɢɧɨɢ ɤɧɨɩɤɢ
-
ɢ
+
.
•
Ⱦɥɹ ɜɤɥɸɱɟɧɢɹ ɨɞɧɨɢ ɢɡ ɜɚɪɨɱɧɵɯ ɡɨɧ ɧɚɠɦɢɬɟ
ɫɨɨɬɜɟɬɫɬɜɭɸɳɭɸ ɤɧɨɩɤɭ ɢ ɧɚɫɬɪɨɢɬɟ ɧɭɠɧɭɸ
ɦɨɳɧɨɫɬɶ ɩɪɢ ɩɨɦɨɳɢ ɤɧɨɩɨɤ
-
ɢ
+
.
ȼɵɤɥɸɱɟɧɢɟ ɜɚɪɨɱɧɵɯ ɡɨɧ
Ⱦɥɹ ɨɬɤɥɸɱɟɧɢɹ ɜɚɪɨɱɧɨɢ ɡɨɧɵ ɜɵɛɟɪɢɬɟ ɟɟ ɩɪɢ
ɩɨɦɨɳɢ ɫɨɨɬɜɟɬɫɬɜɭɸɳɟɢ ɤɧɨɩɤɢ
ɢ ɡɚɬɟɦ
:
•
ɇɚɠɦɢɬɟ ɤɧɨɩɤɭ
-
:
ɦɨɳɧɨɫɬɶ ɜɚɪɨɱɧɨɢ ɡɨɧɵ
ɩɨɫɬɟɩɟɧɧɨ ɩɨɧɢɡɢɬɫɹ ɜɩɥɨɬɶ ɞɨ ɜɵɤɥɸɱɟɧɢɹ
.
Ɏɭɧɤɰɢɹ
power
Ⱦɥɹ ɭɫɤɨɪɟɧɢɹ ɧɚɝɪɟɜɚ ɜɚɪɨɱɧɵɯ ɡɨɧ ɦɨɠɧɨ
ɢɫɩɨɥɶɡɨɜɚɬɶ ɮɭɧɤɰɢɸ
power.
ȼɤɥɸɱɢɬɟ ɢ ɧɚɫɬɪɨɢɬɟ
ɦɨɳɧɨɫɬɶ ɧɭɠɧɨɢ ɜɚɪɨɱɧɨɢ ɡɨɧɵ
,
ɤɚɤ ɨɩɢɫɚɧɨ
ɜ ɩɪɟɞɵɞɭɳɟɦ ɩɚɪɚɝɪɚɮɟ
.
ɇɚɠɦɢɬɟ ɢ ɞɟɪɠɢɬɟ
ɧɚɠɚɬɨɢ ɧɟ ɦɟɧɟɟ
2
ɫɟɤɭɧɞ ɤɧɨɩɤɭ ɜɵɛɨɪɚ ɧɭɠɧɨɢ
ɜɚɪɨɱɧɨɢ ɡɨɧɵ
.
ɇɚ ɞɢɫɩɥɟɟ ɩɨɩɟɪɟɦɟɧɧɨ
ɛɭɞɟɬ ɩɨɤɚɡɵɜɚɬɶɫɹ ɢɧɞɢɤɚɬɨɪ ɦɨɳɧɨɫɬɢ
,
ɛɭɤɜɚ
«
Ɋ
»
ɢ ɪɚɧɟɟ ɡɚɞɚɧɧɨɟ ɡɧɚɱɟɧɢɟ ɭɪɨɜɧɹ ɦɨɳɧɨɫɬɢ
ɜ ɬɟɱɟɧɢɟ ɜɫɟɝɨ ɜɪɟɦɟɧɢ
,
ɧɟɨɛɯɨɞɢɦɨɝɨ ɞɥɹ
ɞɨɫɬɢɠɟɧɢɹ ɡɚɞɚɧɧɨɝɨ ɭɪɨɜɧɹ ɦɨɳɧɨɫɬɢ
.
ɉɨ
ɞɨɫɬɢɠɟɧɢɢ ɡɚɞɚɧɧɨɝɨ ɭɪɨɜɧɹ ɦɨɳɧɨɫɬɢ ɧɚ ɞɢɫɩɥɟɟ
ɨɩɹɬɶ ɛɭɞɟɬ ɩɨɤɚɡɵɜɚɬɶɫɹ ɡɚɞɚɧɧɵɢ ɭɪɨɜɟɧɶ
ɦɨɳɧɨɫɬɢ
.
Ⱦɥɹ ɨɬɦɟɧɵ ɷɬɨɢ ɮɭɧɤɰɢɢ ɧɚɠɦɢɬɟ ɢ
ɞɟɪɠɢɬɟ ɧɚɠɚɬɨɢ ɧɟ ɦɟɧɟɟ
2
ɫɟɤɭɧɞ ɤɧɨɩɤɭ ɜɵɛɨɪɚ
ɜɚɪɨɱɧɨɢ ɡɨɧɵ
,
ɞɥɹ ɤɨɬɨɪɨɢ ɛɵɥɚ ɜɤɥɸɱɟɧɚ ɮɭɧɤɰɢɹ
,
ɢɥɢ ɠɟ ɡɚɞɚɢɬɟ ɞɪɭɝɨɢ ɭɪɨɜɟɧɶ ɦɨɳɧɨɫɬɢ ɩɪɢ
ɩɨɦɨɳɢ ɤɧɨɩɨɤ
-
ɢ
+
.
ɇɚɝɪɟɜɚɬɟɥɶɧɵɟ ɷɥɟɦɟɧɬɵ
ȼ ɡɚɜɢɫɢɦɨɫɬɢ ɨɬ ɦɨɞɟɥɢ ɜɚɲɟɢ ɜɚɪɨɱɧɨɢ ɩɚɧɟɥɢ
ɨɧɚ ɦɨɠɟɬ ɛɵɬɶ ɭɤɨɦɩɥɟɤɬɨɜɚɧɚ ɧɚɝɪɟɜɚɬɟɥɶɧɵɦɢ
ɷɥɟɦɟɧɬɚɦɢ ɞɜɭɯ ɜɢɞɨɜ
:
ɝɚɥɨɝɟɧɧɵɦɢ ɢ
ɫɩɢɪɚɥɶɧɵɦɢ
.
Ƚɚɥɨɝɟɧɧɵɟ ɷɥɟɦɟɧɬɵ ɩɟɪɟɞɚɸɬ ɬɟɩɥɨ ɩɨɫɪɟɞɫɬɜɨɦ
ɢɡɥɭɱɟɧɢɹ ɜɧɭɬɪɟɧɧɟɢ ɝɚɥɨɝɟɧɧɨɢ ɥɚɦɩɵ
.
Ɍɚɤɨɢ ɩɪɢɧɰɢɩ ɧɚɝɪɟɜɚɧɢɹ ɩɨ ɫɜɨɢɦ
ɯɚɪɚɤɬɟɪɢɫɬɢɤɚɦ ɚɧɚɥɨɝɢɱɟɧ ɬɢɩɢɱɧɵɦ ɝɚɡɨɜɵɦ
ɤɨɧɮɨɪɤɚɦ
:
ɛɵɫɬɪɚɹ ɪɟɚɤɰɢɹ ɧɚ ɭɩɪɚɜɥɟɧɢɟ
,
ɦɝɧɨɜɟɧɧɚɹ ɜɢɡɭɚɥɢɡɚɰɢɹ ɦɨɳɧɨɫɬɢ
.
ɋɩɢɪɚɥɶɧɵɢ ɧɚɝɪɟɜɚɬɟɥɶɧɵɢ ɷɥɟɦɟɧɬ ɫɨɫɬɨɢɬ
ɢɡ ɧɟɫɤɨɥɶɤɢɯ ɫɩɢɪɚɥɶɧɵɯ ɫɨɩɪɨɬɢɜɥɟɧɢɢ
,
ɨɛɟɫɩɟɱɢɜɚɸɳɢɯ ɨɞɧɨɪɨɞɧɨɟ ɪɚɫɩɪɟɞɟɥɟɧɢɟ
ɬɟɩɥɚ ɩɨ ɜɫɟɦɭ ɞɧɭ ɩɨɫɭɞɵ ɞɥɹ ɨɩɬɢɦɚɥɶɧɨɝɨ
ɩɪɢɝɨɬɨɜɥɟɧɢɹ ɥɸɛɵɯ ɛɥɸɞ ɧɚ ɦɟɞɥɟɧɧɨɦ ɨɝɧɟ
:
ɪɚɝɭ
,
ɫɨɭɫɵ ɢɥɢ ɞɥɹ ɪɚɡɨɝɪɟɜɚɧɢɹ ɝɨɬɨɜɵɯ ɛɥɸɞ
.
Ȼɥɨɤɢɪɨɜɤɚ ɭɩɪɚɜɥɟɧɢɣ
ȼ ɩɪɨɰɟɫɫɟ ɮɭɧɤɰɢɨɧɢɪɨɜɚɧɢɹ ɜɚɪɨɱɧɨɢ ɩɚɧɟɥɢ
ɦɨɠɧɨ ɡɚɛɥɨɤɢɪɨɜɚɬɶ ɟɟ ɭɩɪɚɜɥɟɧɢɹ ɜɨ ɢɡɛɟɠɚɧɢɟ
ɫɥɭɱɚɢɧɨɝɨ ɢɡɦɟɧɟɧɢɹ ɧɚɫɬɪɨɟɤ
(
ɞɟɬɢ
,
ɜ ɩɪɨɰɟɫɫɟ
ɭɛɨɪɤɢ ɢ ɬ
.
ɞ
.).
ɉɪɢ ɩɨɦɨɳɢ ɤɧɨɩɤɢ
ɭɩɪɚɜɥɟɧɢɹ
ɛɥɨɤɢɪɭɸɬɫɹ
,
ɢ ɢɧɞɢɤɚɬɨɪ ɧɚɞ ɷɬɨɢ ɤɧɨɩɤɨɢ
ɡɚɝɨɪɚɟɬɫɹ
.
Ⱦɥɹ ɪɚɡɛɥɨɤɢɪɨɜɤɢ ɭɩɪɚɜɥɟɧɢɢ
(
ɧɚɩɪ
.,
ɞɥɹ
ɩɪɟɪɵɜɚɧɢɹ ɩɪɢɝɨɬɨɜɥɟɧɢɹ
)
ɧɟɨɛɯɨɞɢɦɨ
:
ɧɚɠɚɬɶ
ɤɧɨɩɤɭ
ɧɚ ɧɟɫɤɨɥɶɤɨ ɫɟɤɭɧɞ
,
ɢɧɞɢɤɚɬɨɪ ɩɨɝɚɫɧɟɬ
,
ɢ ɭɩɪɚɜɥɟɧɢɹ ɪɚɡɛɥɨɤɢɪɭɸɬɫɹ
.
ȼɵɤɥɸɱɟɧɢɟ ɜɚɪɨɱɧɨɣ ɩɚɧɟɥɢ
Ⱦɥɹ ɜɵɤɥɸɱɟɧɢɹ ɢɡɞɟɥɢɹ ɧɚɠɦɢɬɟ ɤɧɨɩɤɭ
.
ȿɫɥɢ ɭɩɪɚɜɥɟɧɢɹ ɜɚɪɨɱɧɨɢ ɩɚɧɟɥɢ ɛɵɥɢ
ɡɚɛɥɨɤɢɪɨɜɚɧɵ
,
ɨɧɢ ɨɫɬɚɧɭɬɫɹ ɡɚɛɥɨɤɢɪɨɜɚɧɧɵɦɢ
ɬɚɤɠɟ ɩɨɫɥɟ ɩɨɜɬɨɪɨɝɨ ɜɤɥɸɱɟɧɢɹ ɜɚɪɨɱɧɨɢ
ɩɚɧɟɥɢ
.
Ⱦɥɹ ɩɨɜɬɨɪɨɝɨ ɜɤɥɸɱɟɧɢɹ ɜɚɪɨɱɧɨɢ ɩɚɧɟɥɢ
ɧɟɨɛɯɨɞɢɦɨ ɫɧɚɱɚɥɚ ɪɚɡɛɥɨɤɢɪɨɜɚɬɶ ɭɩɪɚɜɥɟɧɢɹ
.
ɉɪɚɤɬɢɱɟɫɤɢɟ ɫɨɜɟɬɵ ɩɨ ɷɤɫɩɥɭɚɬɚɰɢɢ
ɢɡɞɟɥɢɹ
Ʉɪɨɦɟ ɬɨɝɨ ɞɥɹ ɛɨɥɶɲɟ ɷɮɮɟɤɬɢɜɧɨɫɬɢ ɜɚɪɨɱɧɨɢ
ɩɚɧɟɥɢ ɫɥɟɞɭɟɬ
:
79
RS
•
ɂɫɩɨɥɶɡɨɜɚɬɶ ɩɨɫɭɞɭ ɫ ɩɥɨɫɤɢɦ ɬɨɥɫɬɵɦ ɞɧɨɦ
,
ɢɞɟɚɥɶɧɨ ɩɪɢɥɟɝɚɸɳɢɦ ɤ ɡɨɧɟ ɧɚɝɪɟɜɚ
;
•
ɂɫɩɨɥɶɡɨɜɚɬɶ ɩɨɫɭɞɭ ɫ ɞɧɨɦ ɬɚɤɨɝɨ ɞɢɚɦɟɬɪɚ
,
ɱɬɨɛɵ ɩɨɥɧɨɫɬɶɸ ɡɚɤɪɵɬɶ ɜɚɪɨɱɧɭɸ ɡɨɧɭ ɞɥɹ
ɨɩɬɢɦɚɥɶɧɨɝɨ ɢɫɩɨɥɶɡɨɜɚɧɢɹ ɜɫɟɝɨ ɜɵɞɟɥɹɟɦɨɝɨ
ɬɟɩɥɚ
.
•
ɉɪɨɜɟɪɢɬɶ
,
ɱɬɨɛɵ ɞɧɨ ɢɫɩɨɥɶɡɭɟɦɨɢ ɩɨɫɭɞɵ
ɛɵɥɨ ɜɫɟɝɞɚ ɫɨɜɟɪɲɟɧɧɨ ɫɭɯɢɦ ɢ ɱɢɫɬɵɦ ɞɥɹ
ɢɞɟɚɥɶɧɨɝɨ ɩɪɢɥɟɝɚɧɢɹ ɤ ɜɚɪɨɱɧɨɢ ɡɨɧɟ ɢ ɞɥɹ
ɞɨɥɝɨɝɨ ɫɪɨɤɚ ɫɥɭɠɛɵ ɤɚɤ ɜɚɪɨɱɧɨɢ ɩɚɧɟɥɢ
,
ɬɚɤ ɢ
ɫɚɦɨɢ ɩɨɫɭɞɵ
.
•
ɇɟ ɫɥɟɞɭɟɬ ɢɫɩɨɥɶɡɨɜɚɬɶ ɧɚ ɞɚɧɧɨɢ ɜɚɪɨɱɧɨɢ
ɩɚɧɟɥɢ ɩɨɫɭɞɭ
,
ɢɫɩɨɥɶɡɨɜɚɧɧɭɸ ɧɚ ɝɚɡɨɜɵɯ
ɤɨɧɮɨɪɤɚɯ
.
ɤɨɧɰɟɧɬɪɚɰɢɹ ɬɟɩɥɚ ɧɚ ɝɚɡɨɜɵɯ
ɤɨɧɮɨɪɤɚɯ ɦɨɠɟɬ ɞɟɮɨɪɦɢɪɨɜɚɬɶ ɞɧɨ ɩɨɫɭɞɵ ɢ
ɧɚɪɭɲɢɬɶ ɩɪɢɥɟɝɚɧɢɟ ɤ ɜɚɪɨɱɧɨɢ ɡɨɧɟ
;
Ɂɚɳɢɬɧɵɟ ɭɫɬɪɨɣɫɬɜɚ
ɋɟɧɫɨɪ ɧɚɥɢɱɢɹ ɩɨɫɭɞɵ
Ʉɚɠɞɚɹ ɜɚɪɨɱɧɚɹ ɡɨɧɚ ɭɤɨɦɩɥɟɤɬɨɜɚɧɚ ɫɟɧɫɨɪɨɦ
ɧɚɥɢɱɢɹ ɩɨɫɭɞɵ
.
Ʉɨɧɮɨɪɤɚ ɜɵɞɟɥɹɟɬ ɬɟɩɥɨ
ɬɨɥɶɤɨ ɩɪɢ ɧɚɥɢɱɢɢ ɧɚ ɧɟɢ ɩɨɫɭɞɵ ɫ ɪɚɡɦɟɪɚɦɢ
,
ɫɨɨɬɜɟɬɫɬɜɭɸɳɢɦɢ ɞɚɧɧɨɢ ɤɨɧɮɨɪɤɟ
.
Ɇɢɝɚɸɳɢɢ
ɢɧɞɢɤɚɬɨɪ ɦɨɠɟɬ ɨɡɧɚɱɚɬɶ
:
•
ɧɟɩɨɞɯɨɞɹɳɚɹ ɩɨɫɭɞɚ
•
ɩɨɫɭɞɚ ɧɟɩɨɞɯɨɞɹɳɟɝɨ ɞɢɚɦɟɬɪɚ
•
ɩɨɫɭɞɚ ɫɧɹɬɚ ɫ ɜɚɪɨɱɧɨɣ ɡɨɧɵ
ɂɧɞɢɤɚɬɨɪɵ ɨɫɬɚɬɨɱɧɨɝɨ ɬɟɩɥɚ
Ʉɚɠɞɚɹ ɜɚɪɨɱɧɚɹ ɡɨɧɚ ɭɤɨɦɩɥɟɤɬɨɜɚɧɚ ɫɟɧɫɨɪɨɦ
ɨɫɬɚɬɨɱɧɨɝɨ ɬɟɩɥɚ
.
ɗɬɨɬ ɢɧɠɢɤɚɬɨɪ ɩɨɤɚɡɵɜɚɟɬ
ɜɚɪɨɱɧɵɟ ɡɨɧɵ
,
ɟɳɟ ɫɨɯɪɚɧɢɜɲɢɟ ɨɩɚɫɧɨɟ
ɬɟɩɥɨ
.
ȿɫɥɢ ɞɢɫɩɥɟɢ ɦɨɳɧɨɫɬɢ ɩɨɤɚɡɵɜɚɟɬ
,
ɞɚɧɧɚɹ ɜɚɪɨɱɧɚɹ ɡɨɧɚ ɟɳɟ ɝɨɪɹɱɚɹ
.
ɇɚɩɪɢɦɟɪ
,
ɦɨɠɧɨ ɢɫɩɨɥɶɡɨɜɚɬɶ ɷɬɨ ɨɫɬɚɬɨɱɧɨɟ ɬɟɩɥɨ ɞɥɹ
ɩɨɞɞɟɪɠɚɧɢɹ ɛɥɸɞɚ ɬɟɩɥɵɦ ɢɥɢ ɞɥɹ ɬɨɩɥɟɧɢɹ
ɦɚɫɥɚ ɢɥɢ ɲɨɤɨɥɚɞɚ
.
ɉɨɫɥɟ ɨɯɥɚɠɞɟɧɢɹ ɜɚɪɨɱɧɨɢ
ɡɨɧɵ ɧɚ ɞɢɫɩɥɟɟ ɦɨɳɧɨɫɬɢ ɩɨɤɚɡɵɜɚɟɬɫɹ
.
ɉɨɫɥɟ ɩɨɥɧɨɝɨ ɨɯɥɚɠɞɟɧɢɹ ɜɚɪɨɱɧɨɢ ɡɨɧɵ ɞɢɫɩɥɟɢ
ɨɬɤɥɸɱɚɟɬɫɹ
.
ɉɟɪɟɝɪɟɜ
ȼ ɫɥɭɱɚɟ ɩɟɪɟɝɪɟɜɚ ɷɥɟɤɬɪɨɧɧɵɯ ɤɨɦɩɥɟɤɬɭɸɳɢɯ
ɜɚɪɨɱɧɚɹ ɩɚɧɟɥɶ ɚɜɬɨɦɚɬɢɱɟɫɤɢ ɨɬɤɥɸɱɚɟɬɫɹ
,
ɢ ɧɚ ɞɢɫɩɥɟɟ ɩɨɹɜɥɹɟɬɫɹ
F
ɫ ɦɢɝɚɸɳɢɦ ɤɨɞɨɦ
.
ɗɬɨ ɫɨɨɛɳɟɧɢɟ ɩɪɨɩɚɞɚɟɬ
,
ɢ ɜɚɪɨɱɧɚɹ ɩɚɧɟɥɶ
ɜɨɡɜɪɚɳɚɟɬɫɹ ɜ ɪɚɛɨɱɢɢ ɪɟɠɢɦ
,
ɤɨɝɞɚ ɬɟɦɩɟɪɚɬɭɪɚ
ɨɩɭɫɤɚɟɬɫɹ ɞɨ ɞɨɩɭɫɬɢɦɨɝɨ ɭɪɨɜɧɹ
.
ɉɪɟɞɨɯɪɚɧɢɬɟɥɶɧɵɣ ɜɵɤɥɸɱɚɬɟɥɶ
ɂɡɞɟɥɢɟ ɨɫɧɚɳɟɧɨ ɩɪɟɞɨɯɪɚɧɢɬɟɥɶɧɵɦ
ɜɵɤɥɸɱɚɬɟɥɟɦ
,
ɚɜɬɨɦɚɬɢɱɟɫɤɢ ɨɬɤɥɸɱɚɸɳɢɦ
ɜɚɪɨɱɧɵɟ ɡɨɧɵ ɩɨ ɢɫɬɟɱɟɧɢɢ ɜɪɟɦɟɧɢ
ɮɭɧɤɰɢɨɧɢɪɨɜɚɧɢɹ ɞɚɧɧɨɝɨ ɭɪɨɜɧɹ ɦɨɳɧɨɫɬɢ
.
ȼ ɩɪɨɰɟɫɫɟ ɚɜɚɪɢɢɧɨɝɨ ɨɬɤɥɸɱɟɧɢɹ ɧɚ ɞɢɫɩɥɟɟ
ɩɨɹɜɥɹɟɬɫɹ
«
0
».
ɉɪɢɦɟɪ
:
ɡɚɞɧɹɹ ɩɪɚɜɚɹ ɜɚɪɨɱɧɚɹ ɡɨɧɚ ɧɚɫɬɪɨɟɧɚ ɧɚ
5,
ɩɟɪɟɞɧɹɹ ɥɟɜɚɹ ɜɚɪɨɱɧɚɹ ɡɨɧɚ ɧɚɫɬɪɨɟɧɚ ɧɚ
2.
Ɂɚɞɧɹɹ ɩɪɚɜɚɹ ɜɚɪɨɱɧɚɹ ɡɨɧɚ ɨɬɤɥɸɱɚɟɬɫɹ ɱɟɪɟɡ
5
ɱɚɫɚ ɪɚɛɨɬɵ
,
ɩɟɪɟɞɧɹɹ ɥɟɜɚɹ ɱɟɪɟɡ
8
ɱɚɫɨɜ
.
Уровень мощности
1
2
3
4
5
6
7
8
9
Макс. кол-во часов функционирования
9
8
7
6
5
4
3
2
1
Ɂɜɭɤɨɜɚɹ ɫɢɝɧɚɥɢɡɚɰɢɹ
ɇɟɤɨɬɨɪɵɟ ɧɟɢɫɩɪɚɜɧɨɫɬɢ ɬɚɤɢɟ ɤɚɤ
:
•
ɤɚɤɨɢ
-
ɥɢɛɨ ɩɪɟɞɦɟɬ
(
ɩɨɫɭɞɚ
,
ɫɬɨɥɨɜɵɢ ɩɪɢɛɨɪ
ɢ ɬ
.
ɞ
.)
ɧɚɯɨɞɢɬɫɹ ɜ ɡɨɧɟ ɭɩɪɚɜɥɟɧɢɢ ɛɨɥɟɟ
10
ɫɟɤɭɧɞ
.
•
ɭɬɱɟɤɚ ɠɢɞɤɨɫɬɢ ɧɚ ɡɨɧɭ ɭɩɪɚɜɥɟɧɢɢ
;
•
ɩɪɢ ɞɥɢɬɟɥɶɧɨɦ ɧɚɠɚɬɢɢ ɧɚ ɤɧɨɩɤɭ ɦɨɠɟɬ
ɜɤɥɸɱɢɬɶɫɹ ɡɜɭɤɨɜɨɢ ɫɢɝɧɚɥ
.
ɍɫɬɪɚɧɢɬɟ
ɩɪɢɱɢɧɭ ɧɟɢɫɩɪɚɜɧɨɫɬɢ ɞɥɹ ɝɚɲɟɧɢɹ ɡɜɭɤɨɜɨɢ
ɫɢɝɧɚɥɢɡɚɰɢɢ
.
ȿɫɥɢ ɩɪɢɱɢɧɚ ɧɟɢɫɩɪɚɜɧɨɫɬɢ ɧɟ
ɛɭɞɟɬ ɭɫɬɪɚɧɟɧɚ
,
ɡɜɭɤɨɜɨɢ ɫɢɝɧɚɥ ɧɟ ɝɚɫɢɬɫɹ
,
ɢ
ɜɚɪɨɱɧɚɹ ɩɚɧɟɥɶ ɜɵɤɥɸɱɚɟɬɫɹ
.
80
RS
ɉɪɚɤɬɢɱɟɫɤɢɟ ɫɨɜɟɬɵ ɩɨ ɩɪɢɝɨɬɨɜɥɟɧɢɸ ɛɥɸɞ
ª
Приготовление под давлением
Скороварка
Фритюр
Бифштексы
Варка
Приготовление на большом огне
Приготовление
на среднем
огне
Приготовление на умеренном огне
Приготовление на малом огне
Приготовление
на самом малом огне
• • ¶
Блины
Приготовление на среднем огне,
обжаривание (Жаркое, бифштексы,
эскалопы, рыбное филе, яичница)
¶ §
Быстрое загустени (Жидкие соусы)
Кипячение воды (для варки макарон, риса, овощей)
Кипячение молока
§ S
Постепенное загустение (густые соусы)
S ¢
Приготовление на пару
Продолжение приготовление в скороварке
после первого выпуска пара
¢ £ ™
Приготовление на
малом огне (рагу)
Разогревание готовых блюд
™ ¡
Шоколадный соус
Поддержание блюд в горячем состоянии

