Indesit VRA 640 X: Instalação
Instalação: Indesit VRA 640 X
30
PT
Instalação
!
É importante guardar este folheto para poder
consultá-lo a qualquer momento. No caso de venda,
cessão ou mudança, assegure-se que o mesmo
permanece com o aparelho para informar o novo
proprietário sobre o funcionamento e sobre as
respectivas advertências.
!
Leia com atenção as instruções: há informações
importantes sobre a instalação, a utilização e a
segurança.
Posicionamento
!
As embalagens não são brinquedos para as crianças
e devem ser eliminadas em conformidade com as
regras de colecta diferenciada (
veja em Precauções e
Conselhos
).
!
A instalação deve ser realizada segundo estas
instruções e por pessoal profissional qualificado. Uma
instalação errada pode causar danos a pessoas,
animais ou objectos.
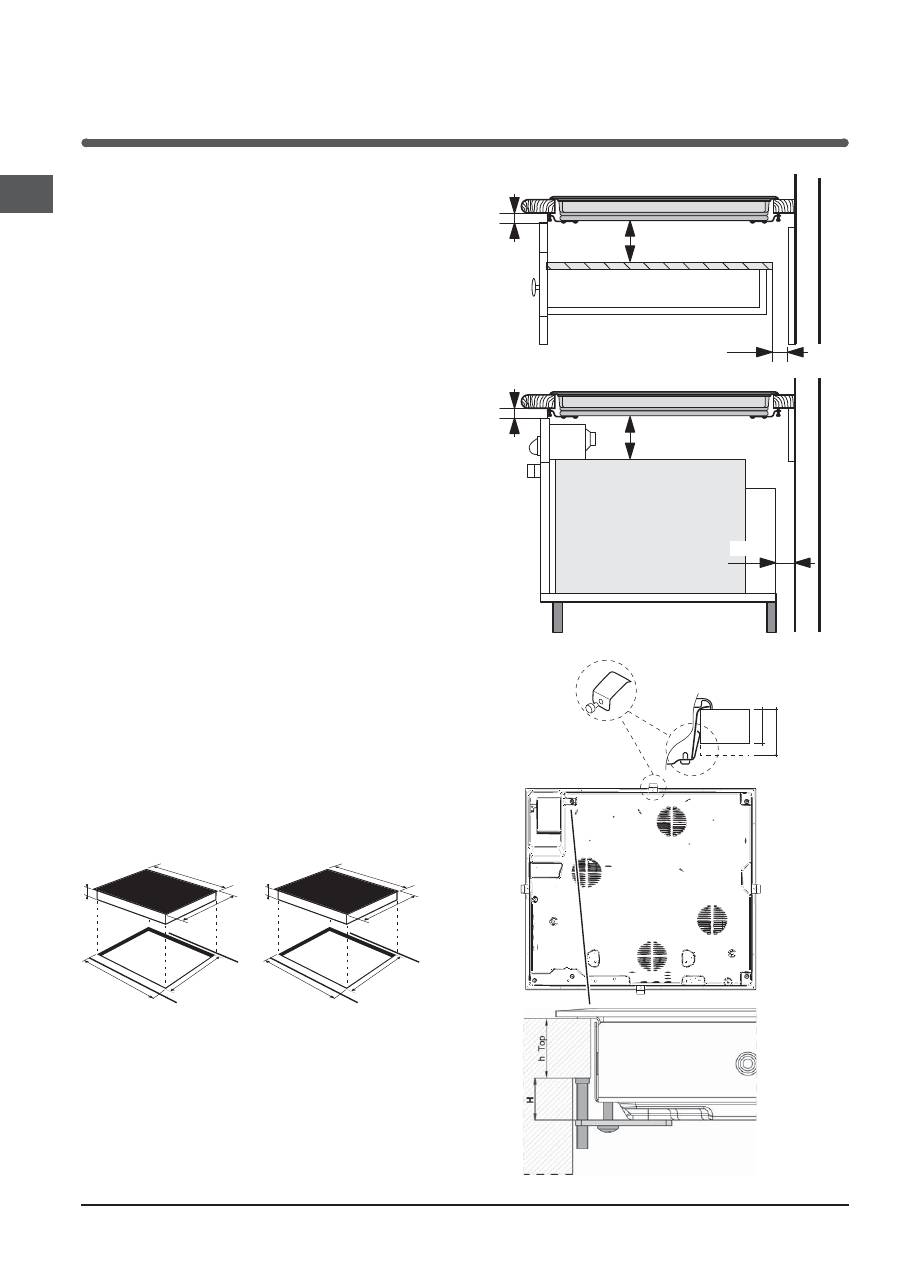
Encaixe
Para garantir um bom funcionamento do aparelho
é necessário que o móvel seja de características
adequadas.
• o material do plano de apoio deve resistir a uma
temperatura de aproximadamente 100ºC;
• se desejar instalar o plano de cozedura sobre um
forno, este deve ser equipado com de um sistema
de arrefecimento com ventilação forçada;
• evite instalar o plano de cozedura sobre uma
máquina de lavar louça: se for faze-lo, instale um
elemento de separação entre os dois aparelhos
com retenção hermética;
• conforme o plano de cozedura que desejar instalar
(
veja fi guras
), o vão do móvel deverá ter as seguintes
dimensões:
560 +/- 1
490 +/- 1
48
590
520
560 +/- 1
490 +/- 1
48
574
504
Ventilação
Para consentir uma adequada ventilação e para evitar
o superaquecimento das superfícies ao redor do
aparelho, o plano de cozedura deve ser posicionado:
• a uma distância mínima de 40 mm da parede de
trás;
• de forma a manter uma distância mínima de 20 mm
entre o vão para o encaixe e o móvel abaixo dele.
• Os móveis situados ao lado, com altura superior
LADO ANTERIOR DO
PLANO DE COZEDURA
PLANO
DE APOIO
30
40
PLANO DE
COZEDURA VIRADO
5 mm
min. 20 mm
min. 20 mm
min. 40 mm
GAVETA
5 mm
min. 40 mm
FORNO VENTILADO
31
PT
aquela do plano de trabalho, devem ser situados ao
menos 600 mm do bordo do mesmo plano.
Fixação
A instalação do aparelho deve ser realizada
sobre uma
superfície de apoio perfeitamente plana.
As deformações eventualmente provocadas por uma
fixação errada poderão alterar as características e as
performances do plano de cozedura.
O comprimento do parafuso de regulação dos
ganchos de fixação deve ser configurado antes da sua
montagem,
conforme a espessura do plano de apoio:
• 30 mm de espessura: parafuso 17,5 mm;
• 40 mm de espessura: parafuso 7,5 mm.
Para a fixação proceder da seguinte maneira:
1. Com os parafusos sem ponta, parafusar as 4 molas
de centragem nos furos colocados no centro de cada
lado do plano;
2. introduza o plano de cozedura no vão do móvel a
exercer uma adequada pressão no inteiro perímetro
para o plano de cozedura prender-se perfeitamente no
plano de apoio.
3. para os planos com perfis laterais: após ter inserido
o plano de cozedura no móvel, inserir os 4 ganchos
de fixação (cada um com o seu perno) no perímetro
inferior do plano de cozedura, parafusando-os com os
parafusos compridos com ponta até que o vidro fique
aderente ao plano de apoio.
!
É indispensável que os parafusos das molas de
centragem sejam acessíveis.
!
Em conformidade com as normas de segurança,
depois de instalar o aparelho encaixado, não deve ser
possível o contacto com componentes eléctricos.
!
Todos os componentes de garantia da protecção
precisam estar presos de modo que não possam ser
tirados sem o emprego de uma ferramenta.
Ligação eléctrica
!
A ligação eléctrica do plano de cozedura e a de um
eventual forno de encaixar precisam ser realizadas
separadamente, seja por razões de segurança
eléctrica, seja para facilitar uma eventual remoção do
forno.
Caixa de bornes
O aparelho é equipado, na
parte inferior, com uma caixa
para a ligação aos vários tipos
de alimentação eléctrica (a
imagem é indicativa e pode
não corresponder ao modelo
comprado).
Ligação monofásica
O plano está provido de cabo de alimentação já ligado
e predisposto na fábrica para a ligação monofásica.
Efectuar a ligação dos fios de acordo com a tabela e
os desenhos a seguir:
Tensão tipo e
frequência rede
Cabo eléctrico
Ligação fios
230-240V 1+N ~
220-240V 1+N ~
50/60 Hz
: verde/amarelo
N
: os 2 fios azuis juntos
L
: marrom junto ao preto
Outros tipos de ligações
Se o sistema eléctrico corresponder à uma dessas
características:
Tensão tipo e frequência de rede
• 400V - 2+N ~ 50/60 Hz
• 220-240V 3 ~ 50/60 Hz
• 230-240V 3 ~ 50/60 Hz
• 400V - 2+2N ~ 50/60 Hz
Soltar os cabos e efectuar a ligação dos fios de acordo
com a tabela e os desenhos a seguir:
Tensão tipo e
frequência rede
Cabo eléctrico
Ligação fios
400V - 2+N ~
50/60 Hz
230-240V 3 ~
220-240V 3 ~
50/60 Hz
: verde/amarelo;
N
: os 2 fios azuis juntos
L1
: preto
L2
: marrom
400V - 2+2N ~
50/60 Hz
: verde/amarelo;
N1
: azul
N2
: azul
L1
: preto
L2
: marrom
Se o sistema eléctrico corresponder à uma dessas
características:
Tensão tipo e frequência de rede
• 400V 3 - N ~ 50/60 Hz
proceder da seguinte maneira:
!
O eventual cabo em dotação não pode ser utilizado
para estes tipos de instalação.
1. Utilizar um cabo de alimentação apropriado, tipo
H05RR-F ou de valor superior, com medias adaptas
(secção do cabo: 25 mm).
PLANO DE
COZEDURA VIRADO
32
PT
2. Utilize uma chave de fenda, para fazer alavanca nas
linguetas laterais da tampa da caixa de bornes e abri-
la (
veja imagem Caixa de bornes
).
3. Desatarraxe o parafuso do grampo do cabo e os
parafusos dos bornes relativos ao tipo de ligação
necessária e posicione os grampos de ligação
conforme a tabela e os desenhos a seguir.
4. Posicione os fios de acordo com a tabela e os
desenhos abaixo e efectue a ligação apertando todos
os parafusos dos bornes.
Tensão tipo e
frequência rede
Ligações eléctricas
Caixa de bornes
400V 3-N ~
50/60 Hz
Trifásica 400
5. Fixe o cabo de alimentação na apropriada
braçadeira e feche a tampa.
Trifásica 400
Ligação do cabo de alimentação à rede
No momento de efectuar a ligação directamente na
rede, instalar entre o aparelho e a rede um interruptor
omnipolar com uma abertura mínima de 3 mm entre os
contactos.
!
O técnico instalador é responsável pela realização
certa da ligação eléctrica e da obediência das regras
de segurança.
Antes de efectuar a ligação, certifique-se que:
• a tomada tenha uma ligação à terra e seja em
conformidade com a legislação;
• a tomada tenha a capacidade de suportar a carga
máxima de potência da máquina, indicada na placa
de identificação colocada no aparelho;
• a tensão de alimentação seja entre os valores da
placa de identificação;
• a tomada seja compatível com a ficha do aparelho.
Em caso contrário, substitua a tomada ou a ficha;
não empregue extensões nem tomadas múltiplas.
!
Depois de ter instalado o aparelho, o acesso ao cabo
eléctrico e à tomada da corrente deve ser fácil.
!
O cabo não deve ser dobrado nem comprimido.
!
O cabo deve ser verificado periodicamente e
substituído somente por técnicos autorizados.
!
A empresa exime-se de qualquer
responsabilidade se estas regras não forem
obedecidas.
!
Não remover ou substituir por motivo algum o cabo
de alimentação. A eventual remoção ou substituição
do mesmo fará decair a garantia e a marca CE. A
INDESIT exime-se de qualquer responsabilidade
por incidentes ou danos derivados da substituição/
remoção do cabo de alimentação original. Admite-
se exclusivamente a substituição com uma peça de
reposição original, efectuada por pessoal autorizado
INDESIT.
Fase
Fase
Fase
Neutro
Terra
1
2
3
5
4
Grampo
Zonas de cozedura extensíveis
Alguns modelos dispõem de chapas extensíveis. Estas
podem ter várias formas e várias extensibilidades
(chapa dupla ou tripla). Aqui estão ilustrados os
respectivos comandos, presentes apenas nos modelos
dotados destas opções.
Chapa extensível circular
• Botão
LIGAR CHAPA DUPLA
para ligar/desligar a
chapa dupla (
veja Início e utilização
).
• Indicador luminoso
CHAPA DUPLA LIGADA
: indica
que a chapa dupla está ligada.
• Botão
LIGAR CHAPA TRIPLA
para ligar/desligar a
chapa tripla (
veja Início e utilização
).
• Indicador luminoso
CHAPA TRIPLA LIGADA
:
indica que a chapa tripla está ligada.
Indicador
luminoso
CHAPA DUPLA
LIGADA
Botão
LIGAR
CHAPA DUPLA
Indicador
luminoso
CHAPA
TRIPLA LIGADA
Botão
LIGAR
CHAPA TRIPLA
Table of contents
- Installation
- Start-up and use
- Precautions and tips
- Care and maintenance
- Installation
- Mise en marche et utilisation
- Précautions et conseils
- Nettoyage et entretien
- Instalación
- Puesta en funcionamiento y uso
- Precauciones y consejos
- Mantenimiento y cuidados
- Instalação
- Início e utilização
- Precauções e conselhos
- Manutenção e cuidados
- Installation
- Inbetriebsetzung und Gebrauch
- Vorsichtsmaßregeln und Hinweise
- Reinigung und Pflege
- Installazione
- Avvio e utilizzo
- Precauzioni e consigli
- Manutenzione e cura
- Installatie
- Starten en gebruik
- Voorzorgsmaatregelen en advies
- Onderhoud en verzorging
- Instalacja
- Uruchomienie i u ż ytkowanie
- Zalecenia i ś rodki ostro ż no ś ci
- Konserwacja i utrzymanie
- Монтаж
- Включение и эксплуатация
- Предосторожности и рекомендации
- Техническоеобслуживани и уход





