Indesit VRA 640 X: Instalacja
Instalacja: Indesit VRA 640 X
62
PL
Instalacja
!
Nale
ż
y zachowa
ć
niniejsz
ą
instrukcj
ę
, aby móc z
niej skorzysta
ć
w ka
ż
dej chwili. W razie sprzeda
ż
y,
odst
ą
pienia lub przeniesienia urz
ą
dzenia, nale
ż
y si
ę
upewni
ć
, czy instrukcja zosta
ł
a przekazana wraz z nim,
aby nowy w
ł
a
ś
ciciel p
ł
yty grzejnej móg
ł
si
ę
zapozna
ć
z
jej dzia
ł
aniem i z w
ł
a
ś
ciwymi ostrze
ż
eniami.
!
Nale
ż
y uwa
ż
nie przeczyta
ć
instrukcj
ę
: zawiera ona
wa
ż
ne informacje dotycz
ą
ce instalacji, u
ż
ytkowania i
bezpiecze
ń
stwa.
Ustawienie
!
Elementy opakowania nie sa zabawkami dla dzieci
i nalezy je usunac zgodnie z normami dotyczacymi
selektywnego gromadzenia odpadów (
patrz Zalecenia i
srodki ostroznosci
).
!
Instalacja powinna zosta
ć
wykonana zgodnie z
niniejszymi instrukcjami przez wykwali
fi
kowany
personel. Niew
ł
a
ś
ciwa instalacja mo
ż
e spowodowa
ć
szkody w stosunku do osób, zwierz
ą
t lub mienia.
Zabudowa
Aby zapewni
ć
prawid
ł
owe dzia
ł
anie urz
ą
dzenia, mebel
musi posiada
ć
odpowiednie w
ł
a
ś
ciwo
ś
ci:
• blat musi by
ć
wykonany z materia
ł
u odpornego na
ciep
ł
o, na temperatur
ę
oko
ł
o 100°C;
• je
ś
li p
ł
yta grzejna ma by
ć
zainstalowana na piecu,
musi on posiada
ć
system ch
ł
odzenia z wentylacj
ą
wymuszon
ą
;
• nale
ż
y unika
ć
instalowania p
ł
yty grzejnej na
zmywarce: w przypadku takiej konieczno
ś
ci,
umie
ś
ci
ć
pomi
ę
dzy dwoma urz
ą
dzeniami szczelny
element oddzielaj
ą
cy;
• w zaleznosci od plyty grzejnej, jaka ma byc
zainstalowana (
patrz rysunki
), wewnetrzna czesc
mebla powinna miec nastepujace wymiary:
560 +/- 1
490 +/- 1
48
590
520
560 +/- 1
490 +/- 1
48
574
504
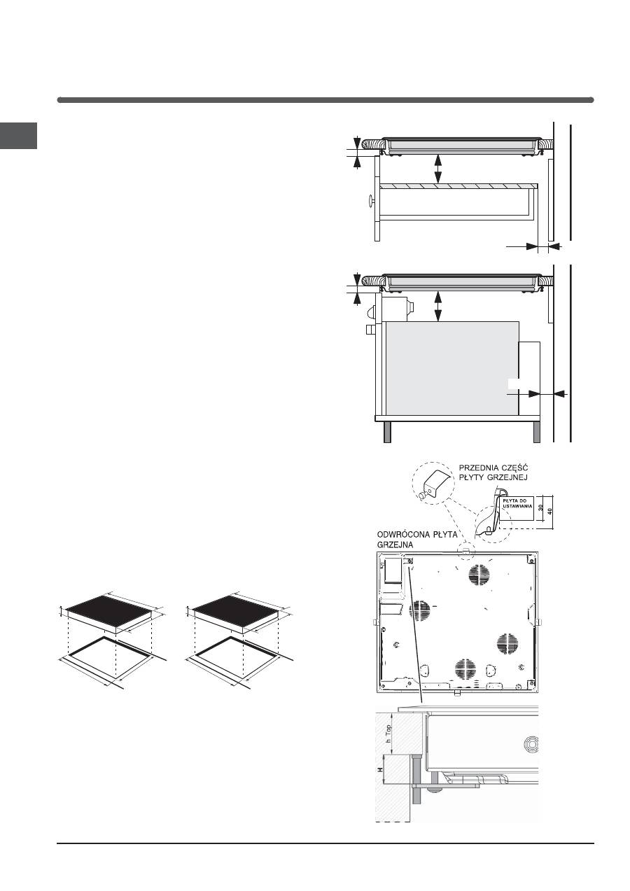
Obieg powietrza
Aby umo
ż
liwi
ć
w
ł
a
ś
ciwy obieg powietrza i aby unikn
ąć
przegrzania powierzchni wokó
ł
urz
ą
dzenia, p
ł
yta grzejna
powinna by
ć
umieszczona:
• w odleg
ł
o
ś
ci co najmniej 40 mm od tylnej
ś
ciany lub;
• w taki sposób, aby zachowa
ć
odleg
ł
o
ść
minimum
20 mm pomi
ę
dzy przestrzeni
ą
do zabudowy a
znajduj
ą
cym si
ę
pod ni
ą
meblem.
• Meble
znajduj
ą
ce si
ę
obok, a których wysoko
ść
przekracza
wysoko
ść
p
ł
yty roboczej, powinny zosta
ć
odsuni
ę
te
przynajmniej na 600 mm od kraw
ę
dzi p
ł
yty roboczej.
5 mm
min. 20 mm
min. 20 mm
min. 40 mm
SZUFLADY
5 mm
min. 40 mm
PIEKARNK
WENTYLATOROWY
63
PL
Mocowanie
Urz
ą
dzenie powinno by
ć
zainstalowane
na idealnie
p
ł
askim blacie.
Ewentualne odkszta
ł
cenia, spowodowane
nieprawid
ł
owym zamocowaniem, mog
ą
by
ć
przyczyn
ą
zmiany w
ł
a
ś
ciwo
ś
ci urz
ą
dzenia i, w konsekwencji,
wp
ł
ywaj
ą
c niekorzystnie na jego prac
ę
.
D
ł
ugo
ść
ś
ruby regulacyjnej uchwytów mocuj
ą
cych
nale
ż
y ustawi
ć
przed ich zamontowaniem,
na podstawie
grubo
ś
ci blatu:
• grubo
ść
30 mm:
ś
ruba 17,5 mm;
• grubo
ść
40 mm:
ś
ruba 7,5 mm.
W celu zamocowania urz
ą
dzenia nale
ż
y wykona
ć
nast
ę
puj
ą
ce czynno
ś
ci:
1. Przy pomocy krótkich
ś
rub bez
ł
ba przykr
ę
ci
ć
4
spr
ęż
yny centruj
ą
ce do otworów umieszczonych w
ś
rodkowej cz
ęś
ci ka
ż
dego boku p
ł
yty;
2. umie
ś
ci
ć
p
ł
yt
ę
grzejn
ą
w meblu, wy
ś
rodkowa
ć
j
ą
i
wywrze
ć
odpowiedni nacisk na ca
ł
y jej obwód, tak aby
p
ł
yta dobrze przylega
ł
a do blatu.
3. w przypadku p
ł
yt z pro
fi
lami bocznymi: po
zainstalowaniu p
ł
yty grzejnej w meblu umie
ś
ci
ć
4
uchwyty mocuj
ą
ce (ka
ż
dy ze sworzniem) na dolnym
obwodzie p
ł
yty grzejnej i przykr
ę
ci
ć
je d
ł
ugimi
ś
rubami z
ł
bem w taki sposób, aby szk
ł
o przylega
ł
o do blatu.
!
Ś
ruby spr
ęż
yn centruj
ą
cych musz
ą
pozosta
ć
dost
ę
pne.
!
Zgodnie z normami bezpiecze
ń
stwa, po zabudowaniu
urz
ą
dzenia nie powinien by
ć
mo
ż
liwy kontakt z jego
elementami elektrycznymi.
!
Wszystkie cz
ęś
ci, które stanowi
ą
zabezpieczenie,
powinny by
ć
zamocowane w taki sposób, aby nie
mo
ż
na by
ł
o ich zdj
ąć
bez u
ż
ycia narz
ę
dzia.
Pod
łą
czenie do sieci elektrycznej
!
Pod
łą
czenie do sieci elektrycznej p
ł
yty grzejnej
oraz ewentualnego pieca do zabudowy powinno
by
ć
wykonane oddzielnie, zarówno ze wzgl
ę
dów
bezpiecze
ń
stwa elektrycznego, jak i dla u
ł
atwienia
czynno
ś
ci zwi
ą
zanych z wyjmowaniem pieca.
Skrzynka zaciskowa
W dolnej cz
ęś
ci urz
ą
dzenia
znajduje si
ę
puszka
umo
ż
liwiaj
ą
ca pod
łą
czenie
ró
ż
nych typów zasilania
elektrycznego (rysunek
jest przyk
ł
adowy i mo
ż
e
przedstawia
ć
inny model ni
ż
zakupiony).
Pod
łą
czenie jednofazowe
P
ł
yta jest wyposa
ż
ona w kabel zasilaj
ą
cy
przygotowany do pod
łą
czenia jednofazowego. Nale
ż
y
po
łą
czy
ć
przewody zgodnie z tabel
ą
i z rysunkami
umieszczonymi poni
ż
ej:
Typowe napięcie i
częstotliwość sieci
Kabel elektryczny
Połączenie przewodów
230-240V 1+N ~
220-240V 1+N ~
50/60 Hz
: żółty/zielony;
N
:
2 przewody niebieskie razem
L
:
brązowy razem z czarnym
Inne typy pod
łą
cze
ń
Je
ś
li instalacja elektryczna posiada jedn
ą
z
nast
ę
puj
ą
cych cech:
Typowe napi
ę
cie i cz
ę
stotliwo
ść
sieci
• 400V - 2+N ~ 50/60 Hz
• 220-240V 3 ~ 50/60 Hz
• 230-240V 3 ~ 50/60 Hz
• 400V - 2+2N ~ 50/60 Hz
Oddzieli
ć
kable i po
łą
czy
ć
przewody zgodnie z tabel
ą
i
z rysunkami umieszczonymi poni
ż
ej:
Typowe napięcie i
częstotliwość sieci
Kabel elektryczny
Połączenie przewodów
400V - 2+N ~
50/60 Hz
230-240V 3 ~
220-240V 3 ~
50/60 Hz
: żółty/zielony;
N
:
2 przewody
niebieskie razem
L1
:
czarny
L2
:
brązowy
400V - 2+2N ~
50/60 Hz
: żółty/zielony;
N1
: niebieski
N2
: niebieski
L1
:
czarny
L2
:
brązowy
Je
ś
li instalacja elektryczna posiada jedn
ą
z
nast
ę
puj
ą
cych cech:
Typowe napi
ę
cie i cz
ę
stotliwo
ść
sieci
• 400V 3 - N ~ 50/60 Hz
nale
ż
y wykona
ć
nast
ę
puj
ą
ce czynno
ś
ci:
!
Ewentualny kabel znajduj
ą
cy si
ę
w wyposa
ż
eniu
urz
ą
dzenia nie nadaje si
ę
do tego typu instalacji.
1. Nalezy zastosowac kabel zasilajacy typu H05RR-F
lub o wyzszych wlasciwosciach, posiadajacy
64
PL
odpowiednie wymiary (przekrój kabla: 25 mm).
2. Przy pomocy srubokretu podwazyc zatrzaski pokrywy
skrzynki zaciskowej i otworzyc ja (
patrz rysunek
Skrzynka zaciskowa
).
3. Odkr
ę
ci
ć
ś
rub
ę
zacisku kabla oraz
ś
ruby zacisków
odpowiadaj
ą
cych danemu typowi pod
łą
czenia i
zainstalowa
ć
ś
ruby
łą
cz
ą
ce w kszta
ł
cie U zgodnie z
tabel
ą
i z rysunkami znajduj
ą
cymi si
ę
poni
ż
ej:
4. U
ł
o
ż
y
ć
przewody zgodnie z tabel
ą
i z rysunkami
znajduj
ą
cymi si
ę
poni
ż
ej i wykona
ć
pod
łą
czenie
ca
ł
kowicie dokr
ę
caj
ą
c wszystkie
ś
ruby zacisków.
Typowe napięcie i
częstotliwość sieci
Połączenia elektryczne
Skrzynka zaciskowa
400V 3-N ~
50/60 Hz
Trójfazowa 400
5. Zamocowa
ć
kabel zasilaj
ą
cy w odpowiednim zacisku
i zamkn
ąć
pokryw
ę
.
Trójfazowa 400
Pod
łą
czenie kabla zasilaj
ą
cego do sieci
W przypadku bezpo
ś
redniego pod
łą
czenia do sieci
pomi
ę
dzy urz
ą
dzeniem a sieci
ą
, nale
ż
y zainstalowa
ć
wy
łą
cznik wielobiegunowy z minimalnym otwarciem
mi
ę
dzy stykami wynosz
ą
cym 3 mm.
!
Instalator odpowiada za prawid
ł
owe wykonanie
pod
łą
czenia elektrycznego i za zachowanie norm
bezpiecze
ń
stwa.
Przed pod
łą
czeniem urz
ą
dzenia, nale
ż
y si
ę
upewni
ć
czy:
• gniazdko posiada uziemienie i jest zgodne z
obowiazujacymi przepisami;
• gniazdko jest w stanie wytrzymac maksymalne
obciazenie mocy urzadzenia wskazane na tabliczce
znamionowej plyty;
• napi
ę
cie zasilania odpowiada warto
ś
ciom podanym
na tabliczce znamionowej;
• gniazdko jest kompatybilne z wtyczk
ą
urz
ą
dzenia.
Je
ś
li gniazdko nie jest kompatybilne, nale
ż
y
wymieni
ć
gniazdko lub wtyczk
ę
; nie stosowa
ć
przed
ł
u
ż
aczy ani rozga
łę
ziaczy.
!
Po zainstalowaniu urz
ą
dzenia kabel elektryczny i
gniazdko pr
ą
du powinny by
ć
ł
atwo dost
ę
pne.
!
Kabel nie powinien by
ć
pogi
ę
ty ani przygnieciony.
!
Kabel elektryczny musi byc okresowo sprawdzany i
wymieniany wylacznie przez autoryzowany personel
techniczny.
!
W przypadku nieprzestrzegania tych zasad,
producent nie ponosi
ż
adnej odpowiedzialno
ś
ci.
!
Nie usuwa
ć
ani zamienia
ć
przewodu zasilaj
ą
cego z
jakiego kolwiek powodu. Usuni
ę
cie lub wymiana b
ę
dzie
powodem utracenia gwarancji i znaku CE. INDESIT
zwolniony jest z jakiejkolwiek odpowiedzialno
ś
ci
za wypadki lub szkody wynikaj
ą
ce z usuni
ę
cia lub
wymiany oryginalnego przewodu zasilaj
ą
cego.
Dozwolona jest tylko wymiana przewodu na oryginalny,
a wymiany ma dokona
ć
upowa
ż
niony personel z
INDESIT.
1
2
3
5
4
Rozszerzalne pola grzejne
Niektóre modele posiadaj
ą
rozszerzalne pola grzejne.
Mog
ą
one mie
ć
ró
ż
ny kszta
ł
t i ró
ż
n
ą
rozszerzalno
ść
(p
ł
yta podwójna lub potrójna). Przedstawione s
ą
tu
ich komendy sterowania, dost
ę
pne tylko w modelach
wyposa
ż
onych w te opcje.
P
ł
yta rozszerzalna okr
ą
g
ł
a
• Przycisk
WLACZENIA PODWÓJNEJ PLYTY
do
aktywacji podwójnej plyty (
patrz Uruchomienie i
uzytkowanie
).
• Kontrolka
W£¥CZENIA PODWÓJNEJ P£YTY
:
sygnalizuje w
łą
czenie podwójnej p
ł
yty.
• Przycisk
WLACZENIA POTRÓJNEJ PLYTY
do
aktywacji potrójnej plyty (
patrz Uruchomienie i
uzytkowanie
).
• Kontrolka
W£¥CZENIA POTRÓJNEJ P£YTY
:
sygnalizuje w
łą
czenie potrójnej p
ł
yty.
Table of contents
- Installation
- Start-up and use
- Precautions and tips
- Care and maintenance
- Installation
- Mise en marche et utilisation
- Précautions et conseils
- Nettoyage et entretien
- Instalación
- Puesta en funcionamiento y uso
- Precauciones y consejos
- Mantenimiento y cuidados
- Instalação
- Início e utilização
- Precauções e conselhos
- Manutenção e cuidados
- Installation
- Inbetriebsetzung und Gebrauch
- Vorsichtsmaßregeln und Hinweise
- Reinigung und Pflege
- Installazione
- Avvio e utilizzo
- Precauzioni e consigli
- Manutenzione e cura
- Installatie
- Starten en gebruik
- Voorzorgsmaatregelen en advies
- Onderhoud en verzorging
- Instalacja
- Uruchomienie i u ż ytkowanie
- Zalecenia i ś rodki ostro ż no ś ci
- Konserwacja i utrzymanie
- Монтаж
- Включение и эксплуатация
- Предосторожности и рекомендации
- Техническоеобслуживани и уход





