Indesit VRA 640 X: Installazione
Installazione: Indesit VRA 640 X
46
IT
Installazione
!
È importante conservare questo libretto per poterlo
consultare in ogni momento. In caso di vendita, di
cessione o di trasloco, assicurarsi che resti insieme
all’apparecchio per informare il nuovo proprietario sul
funzionamento e sui relativi avvertimenti.
!
Leggere attentamente le istruzioni: ci sono importanti
informazioni sull’installazione, sull’uso e sulla sicurezza.
Posizionamento
!
Gli imballaggi non sono giocattoli per bambini e vanno
eliminati secondo le norme per la raccolta differenziata
(
vedi Precauzioni e consigli
).
!
L’installazione va effettuata secondo queste istruzioni e
da personale professionalmente qualificato. Una errata
installazione può causare danni a persone, animali o
cose.
Incasso
Per garantire un buon funzionamento dell’apparecchio è
necessario che il mobile abbia le caratteristiche adatte:
• il piano d’appoggio deve essere di materiale
resistente al calore, a una temperatura di circa
100°C;
• se si desidera installare il piano cottura sopra un
forno, questo deve essere provvisto di un sistema di
raffreddamento a ventilazione forzata;
• evitare di installare il piano cottura sopra una
lavastoviglie: all’occorrenza frapporre un elemento
di separazione a tenuta stagna fra i due apparecchi;
• a seconda del piano cottura che si desidera
installare (
vedi fi gure
), il vano del mobile deve avere
le seguenti dimensioni:
560 +/- 1
490 +/- 1
48
590
520
560 +/- 1
490 +/- 1
48
574
504
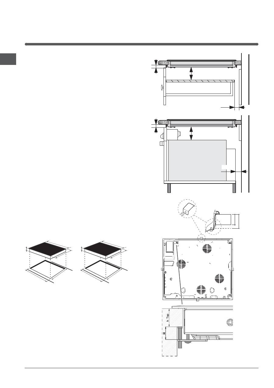
Aerazione
Per consentire un’adeguata aerazione e per evitare
il surriscaldamento delle superfici attorno all’apparecchio,
il piano cottura deve essere posizionato:
• a una distanza minima di 40 mm dalla parete
retrostante;
• in modo da mantenere una distanza minima di 20 mm
fra il vano per l’incasso e il mobile sottostante.
• I mobili situati a fianco, la cui altezza superi quella
del piano di lavoro, debbono essere situati ad
almeno 600 mm dal bordo del piano stesso.
5 mm
min. 20 mm
min. 20 mm
min. 40 mm
CASSETTO
5 mm
min. 40 mm
FORNO
VENTILATO
LATO ANTERIORE
DEL PIANO COTTURA
PIANO DI
APPOGGIO
30
40
PIANO COTTURA
ROVESCIATO
IT
47
Fissaggio
L’installazione dell’apparecchio deve essere effettuata
su un piano d’appoggio perfettamente piano.
Le eventuali deformazioni provocate da un errato
fissaggio potrebbero alterare le caratteristiche e
le prestazioni del piano cottura.
La lunghezza della vite di regolazione dei ganci
di fissaggio va impostata prima del loro montaggio,
in base allo spessore del piano d’appoggio:
• spessore di 30 mm: vite 17,5 mm;
• spessore di 40 mm: vite 7,5 mm.
Per il fissaggio agire come segue:
1. Con le viti corte senza punta, avvitare le 4 molle di
centraggio nei fori posti al centro di ogni lato del piano;
2. inserire il piano cottura nel vano del mobile, centrarlo
ed esercitare una adeguata pressione sull’intero perimetro
affinché il piano di cottura aderisca bene al piano
d’appoggio.
3. per i piani con profili laterali: dopo aver inserito il piano
cottura nel mobile, inserire i 4 ganci di fissaggio (ognuno
con il suo perno) sul perimetro inferiore del piano cottura,
avvitandoli con le viti lunghe con punta finché il vetro non
aderisce al piano d’appoggio.
!
È indispensabile che le viti delle molle di centraggio
rimangano accessibili.
!
In conformità alle norme di sicurezza, una volta
incassato l’apparecchio, non debbono essere possibili
eventuali contatti con le parti elettriche.
!
Tutte le parti che assicurano la protezione debbono
essere fissate in modo tale da non poter essere tolte
senza l’aiuto di qualche utensile.
Collegamento elettrico
!
L’allacciamento elettrico del piano cottura e quello di
un eventuale forno da incasso devono essere realizzati
separatamente, sia per ragioni di sicurezza elettrica sia
per facilitare le operazioni di estrazione del forno.
Morsettiera
L’apparecchio è provvisto, nella
parte inferiore, di una scatola per
il collegamento a differenti tipi di
alimentazione elettrica
(l’immagine è indicativa e può
non corrispondere al modello
acquistato).
Collegamento monofase
Il piano è dotato di cavo di alimentazione già collegato
e predisposto per il collegamento monofase. Effettuare
l’allaccio dei fili in accordo con la tabella e i disegni che
seguono:
Tensione tipo e
frequenza rete
Cavo elettrico
Collegamento fili
230-240V 1+N ~
220-240V 1+N ~
50/60 Hz
: giallo/verde
N
: i 2 fili blu insieme
L
: marrone insieme al nero
Altri tipi di collegamento
Se l’impianto elettrico corrisponde a una delle seguenti
caratteristiche:
Tensione tipo e frequenza di rete
• 400V - 2+N ~ 50/60 Hz
• 220-240V 3 ~ 50/60 Hz
• 230-240V 3 ~ 50/60 Hz
• 400V - 2+2N ~ 50/60 Hz
Separare i cavi ed effettuare il collegamento dei fili in
accordo con la tabella e i disegni che seguono:
Tensione tipo e
frequenza rete
Cavo elettrico
Collegamento fili
400V - 2+N ~
50/60 Hz
230-240V 3 ~
220-240V 3 ~
50/60 Hz
: giallo/verde;
N
: i 2 fili blu insieme
L1
: nero
L2
: marrone
400V - 2+2N ~
50/60 Hz
: giallo/verde;
N1
: blu
N2
: blu
L1
: nero
L2
: marrone
Se l’impianto elettrico corrisponde a una delle seguenti
caratteristiche:
Tensione tipo e frequenza di rete
• 400V 3 - N ~ 50/60 Hz
procedere come segue:
!
L’eventuale cavo in dotazione non è utilizzabile per
questi tipi di installazione.
1. Utilizzare un cavo di alimentazione appropriato, tipo
H05RR-F o di valore superiore, delle dimensioni adatte
(sezione cavo: 25 mm).
2. Servendosi di un cacciavite, far leva sulle linguette
del coperchio della morsettiera e aprirla (
vedi immagine
Morsettiera
).
3. Svitare la vite del serracavo e le viti dei morsetti relativi
al tipo di allaccio necessario e posizionare i cavallotti di
collegamento secondo la tabella e i disegni che seguono.
4. Posizionare i fili in accordo con la tabella e i disegni
che seguono ed effettuare il collegamento stringendo a
fondo tutte le viti dei morsetti.
Tensione tipo e
frequenza rete
Cavo elettrico
Collegamento fili
400V 3-N ~
50/60 Hz
Trifase 400
PIANO COTTURA
ROVESCIATO
48
IT
5. Fissare il cavo di alimentazione nell’apposito fermacavo
e chiudere il coperchio.
Fase
Fase
Fase
Cavallotto
Neutro
Terra
1
2
3
5
4
Trifase
400
Allacciamento del cavo di alimentazione alla rete
In caso di collegamento diretto alla rete è necessario
interporre tra l’apparecchio e la rete un interruttore
onnipolare con apertura minima fra i contatti di 3 mm.
!
L’installatore è responsabile del corretto collegamento
elettrico e dell’osservanza delle norme di sicurezza.
Prima di effettuare l’allacciamento accertarsi che:
• la presa abbia la messa a terra e sia a norma di legge;
• la presa sia in grado di sopportare il carico massimo di
potenza della macchina, indicato nella
targhetta caratteristiche posta sull’apparecchio;
• la tensione di alimentazione sia compresa nei valori
della targhetta caratteristiche;
• la presa sia compatibile con la spina dell’apparecchio.
In caso contrario sostituire la presa o la spina; non
usare prolunghe e multiple.
!
Ad apparecchio installato, il cavo elettrico e la presa
della corrente devono essere facilmente raggiungibili.
!
Il cavo non deve subire piegature o compressioni.
!
Il cavo deve essere controllato periodicamente e
sostituito solo da tecnici autorizzati.
!
L’azienda declina ogni responsabilità qualora queste
norme non vengano rispettate.
!
Non rimuovere o sostituire per nessun motivo il cavo
di alimentazione. L’ eventuale rimozione o sostituzione
fa’ decadere la garanzia e il marchio CE. INDESIT
non si assume alcuna responsabilita’ per incidenti
o danni derivanti dalla sostituzione/rimozione del
cavo di alimentazione originale. E’ ammessa solo la
sostituzione con un ricambio originale ed effettuata da
personale autorizzato INDESIT.
Zone di cottura estensibili
In alcuni modelli sono presenti piastre estensibili.
Queste possono avere diversa forma e diversa
estensibilità (piastra doppia o tripla). Sono qui
illustrati i comandi relativi, presenti solo sui modelli
dotati di queste opzioni.
Piastra estensibile circolare
Spia
PIASTRA DOPPIA
ACCESA
Tasto
ACCENSIONE
PIASTRA DOPPIA
Spia
PIASTRA TRIPLA
ACCESA
Tasto
ACCENSIONE
PIASTRA TRIPLA
• Tasto
ACCENSIONE PIASTRA DOPPIA
per attivare
la piastra doppia (
vedi Avvio e utilizzo
).
• Spia
PIASTRA DOPPIA ACCESA
: segnala
l’accensione della piastra doppia.
• Tasto
ACCENSIONE PIASTRA TRIPLA
per attivare
la piastra tripla (
vedi Avvio e utilizzo
).
• Spia
PIASTRA TRIPLA ACCESA
: segnala
l’accensione della piastra tripla.
Table of contents
- Installation
- Start-up and use
- Precautions and tips
- Care and maintenance
- Installation
- Mise en marche et utilisation
- Précautions et conseils
- Nettoyage et entretien
- Instalación
- Puesta en funcionamiento y uso
- Precauciones y consejos
- Mantenimiento y cuidados
- Instalação
- Início e utilização
- Precauções e conselhos
- Manutenção e cuidados
- Installation
- Inbetriebsetzung und Gebrauch
- Vorsichtsmaßregeln und Hinweise
- Reinigung und Pflege
- Installazione
- Avvio e utilizzo
- Precauzioni e consigli
- Manutenzione e cura
- Installatie
- Starten en gebruik
- Voorzorgsmaatregelen en advies
- Onderhoud en verzorging
- Instalacja
- Uruchomienie i u ż ytkowanie
- Zalecenia i ś rodki ostro ż no ś ci
- Konserwacja i utrzymanie
- Монтаж
- Включение и эксплуатация
- Предосторожности и рекомендации
- Техническоеобслуживани и уход





