Indesit VRA 640 X: Installation
Installation: Indesit VRA 640 X
38
DE
Installation
!
Bewahren Sie diese Bedienungsanleitung bitte
sorgfältig auf, damit Sie sie jederzeit zu Rate ziehen
können. Sorgen Sie dafür, dass sie im Falle eines
Verkaufs, eines Umzugs oder einer Übergabe an
einen anderen Benutzer das Gerät stets begleitet,
damit auch der Nachbesitzer die Möglichkeit hat, darin
nachschlagen zu können.
!
Lesen Sie bitte die nachfolgenden Hinweise
aufmerksam durch: sie liefern wichtige Informationen
hinsichtlich der Installation, des Gebrauchs und der
Sicherheit.
Aufstellung
!
Verpackungsmaterial ist kein Spielzeug für Kinder.
Es ist entsprechend den Vorschriften zur getrennten
Müllsammlung zu entsorgen (
siehe Vorsichtsmaßregeln
und Hinweise
).
!
Die Installation ist gemäß den vorliegenden
Anweisungen und von Fachpersonal durchzuführen.
Jede unsachgemäße Installation kann Menschen und
Tiere gefährden oder Sachschaden verursachen.
Einbau
Um eine einwandfreie Betriebsweise des Gerätes zu
gewährleisten, muss der Umbauschrank folgende
Eigenschaften aufweisen:
• Die Auflagefläche muss aus hitzebeständigem
Material beschaffen sein, um einer Temperatur von
ca. 100°C standzuhalten.
• Soll das Kochfeld über einem Backofen installiert
werden, muss letzterer mit einem Kühlsystem mit
Zwangsbelüftung ausgestattet sein.
• Von der Installation eines Kochfeldes über einem
Geschirrspüler wird abgeraten. Gegebenenfalls ist
zur Abdichtung ein Zwischenteil zwischen beiden
Geräten zu installieren.
• Je nach dem zu installierenden Kochfeld (
siehe
Abbildungen
) sind Arbeitsflächenausschnitte
folgender Abmessungen vorzusehen:
560 +/- 1
490 +/- 1
48
590
520
560 +/- 1
490 +/- 1
48
574
504
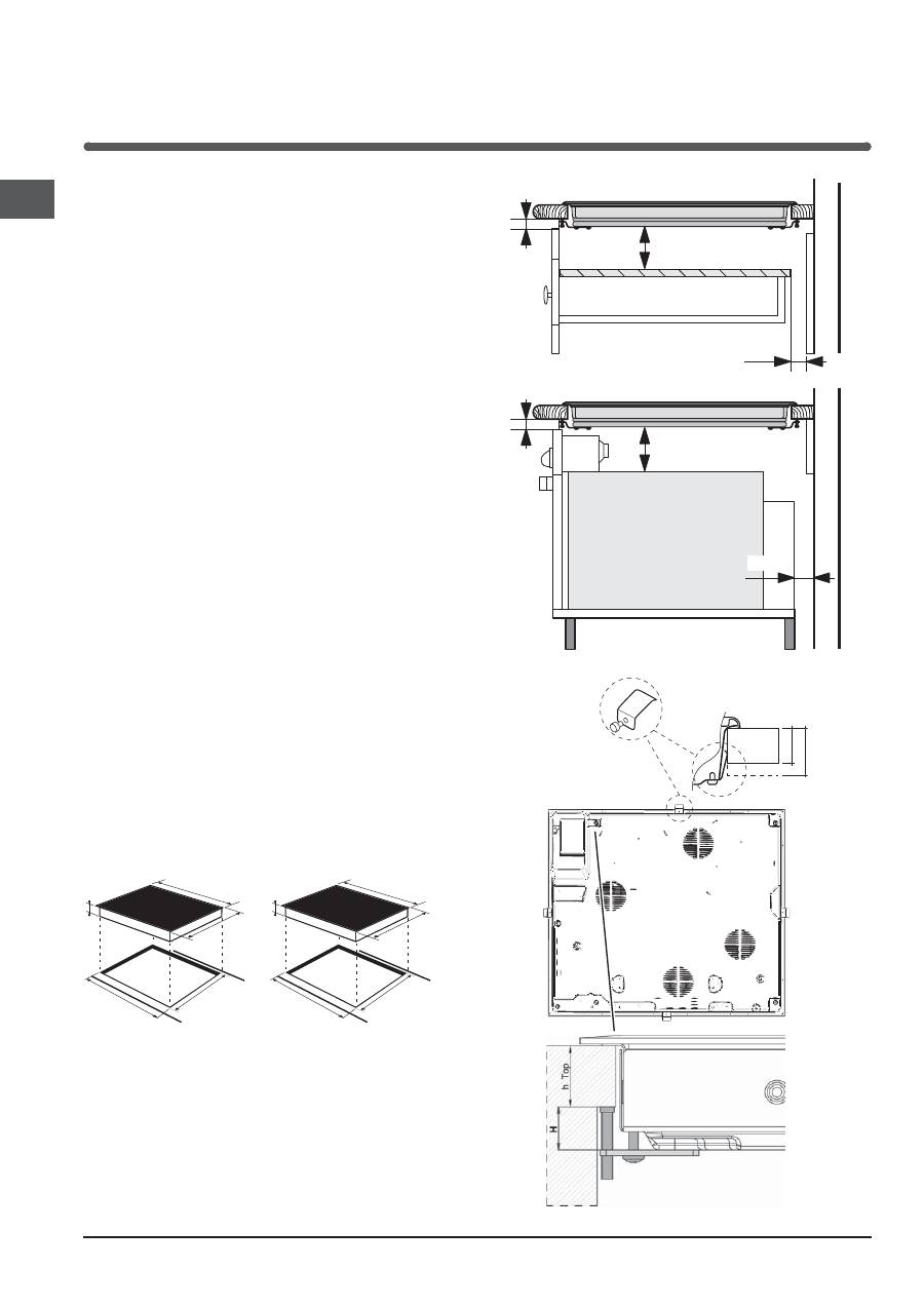
Belüftung
Zur ausreichenden Belüftung und zur Vermeidung
der Überhitzung der Flächen rund um das Gerät muss das
Kochfeld wie folgt positioniert werden:
• in einem Abstand von mindestens 40 mm von der
dahinter liegenden Wand;
• um einen Abstand von mindestens 20 mm zwischen
dem für den Einbau bestimmten Ausschnitt und dem
entsprechenden Unterschrank zu gewährleisten.
• Angrenzende Schränke, deren Höhe die der
5 mm
min. 20 mm
min. 20 mm
min. 40 mm
WÄRMEFACH
5 mm
min. 40 mm
HEIßLUFT
FRONTSEITE DES
KOCHFELDES
AUFLAGEFLÄCHE
AUFLAGEFLÄCHE
30
40
KOCHFELD
UMGEDREHT
AUFLAGEFLÄCHE
39
DE
Arbeitsplatte überschreiten, müssen einen Abstand
vom Rand der Kochmulde von mindestens 600 mm
aufweisen.
Befestigung
Das Kochfeld muss auf einer
perfekt ebenen Stütz- bzw.
Auflagefläche installiert werden.
Durch unsachgemäße Befestigung hervorgerufene
Verformungen könnten die Eigenschaften und
Leistungen des Kochfeldes beeinträchtigen.
Die Länge der Regelschrauben der
Befestigungsklammern wird vor Montage derselben
eingestellt,
und zwar je nach der Stärke der
Auflagefläche:
• 30 mm - Schraube 17.5 mm;
• 40 mm - Schraube 7.5 mm.
Verfahren Sie zur Befestigung wie folgt:
1. Schrauben Sie die 4 Zentrierungsfedern mittels
der vier kurzen, stumpfen Schrauben in die in
der Mitte einer jeden Kochfeldseite befindlichen
Lochbohrungen.
2. Setzen Sie das Kochfeld durch leichtes Andrücken
des gesamten umlaufenden Randes mittig in
den Möbelausschnitt ein, und zwar so, dass es
vorschriftsmäßig auf der gesamten Auflagefläche
aufstützt.
3. Für Kochfelder mit Seitenprofilen: Stecken Sie nach
Einsatz des Kochfeldes in den Möbelausschnitt die
4 Befestigungshaken (ein jeder mit seinem Stift) in
den umlaufenden unteren Rand des Kochfeldes, und
schrauben Sie diese mittels der vier langen, spitzen
Schrauben fest, bis das Glas an der Auflagefläche
anhaftet.
!
Die Schrauben der Zentrierungsfedern müssen
unbedingt zugänglich sein.
!
Gemäß den Sicherheitsvorschriften muss nach
erfolgtem Einbau die Möglichkeit einer Berührung mit
Strom führenden Teilen ausgeschlossen sein.
!
Alle zum Schutz dienenden Teile müssen so
befestigt werden, dass ein Entfernen derselben ohne
Zuhilfenahme eines Werkzeugs nicht möglich ist.
Elektroanschluss
!
Bei der Installation des Kochfeldes und der eines
eventuellen Einbaubackofens müssen sämtliche
Elektroanschlüsse getrennt vorgenommen werden, und
dies nicht nur aus Sicherheitsgründen, sondern auch
um den Backofen, falls nötig, leichter herausziehen zu
können.
Klemmengehäuse
Das Gerät ist mit einem
Gehäuse (befindlich im unteren
Teil) ausgestattet, das für den
Anschluss an andersartige
Elektroversorgungen bestimmt
ist (die Abbildung ist nur
richtungsweisend, demnach
ist es möglich, dass sie mit
dem erworbenen Gerät nicht
übereinstimmt).
Einphasenanschluss
Das Kochfeld ist mit einem bereits angeschlossenen
Netzkabel ausgestattet und ist für einen
Einphasenanschluss voreingestellt. Schließen Sie
die Drähte gemäß nachfolgender Tabelle und
Zeichnungen an:
Netzspannung
und -frequenz
Elektrokabel
Anschluss der Drähte
230-240V 1+N ~
220-240V 1+N ~
50/60 Hz
: gelb/grün;
N
: die 2 blauen Drähte zusammen
L
: braun zusammen mit schwarz
Andere Anschlussarten
Sollte die Elektroanlage einer der nachfolgenden
Eigenschaften entsprechen:
Netzspannung und -frequenz
• 400V - 2+N ~ 50/60 Hz
• 220-240V 3 ~ 50/60 Hz
• 230-240V 3 ~ 50/60 Hz
• 400V - 2+2N ~ 50/60 Hz
Trennen Sie die Drähte und schließen Sie sie gemäß
nachfolgender Tabelle und Zeichnungen an:
Netzspannung
und -frequenz
Elektrokabel
Anschluss der Drähte
400V - 2+N ~
50/60 Hz
230-240V 3 ~
220-240V 3 ~
50/60 Hz
: gelb/grün;
N
: die 2 blauen
Drähte zusammen
L1
: schwarz
L2
: braun
400V - 2+2N ~
50/60 Hz
: gelb/grün;
N1
: blau
N2
: blau
L1
: schwarz
L2
: braun
Sollte die Elektroanlage einer der nachfolgenden
Eigenschaften entsprechen:
Netzspannung und -frequenz
• 400V 3 - N ~ 50/60 Hz
dann verfahren Sie wie folgt:
!
Das eventuell mitgelieferte Netzkabel kann für diese
Installationsarten nicht verwendet werden.
1. Verwenden Sie ein geeignetes Versorgungskabel
des Typs H05RR-F, oder eines höheren Wertes,
geeigneter Maße (Kabelquerschnitt: 25 mm).
2. Heben Sie unter Zuhilfenahme eines
Schraubenziehers die seitlichen Zungen des
KOCHFELD
UMGEDREHT
40
DE
Klemmengehäusedeckels an (
siehe Abbildung
Klemmengehäuse
).
3. Schrauben Sie die Schraube der Kabelklemme
sowie die Schrauben der Klemmen, die der
erforderlichen Anschlussart entsprechen, aus und
positionieren Sie die Brücken in Anlehnung an
nachfolgende Tabelle und Zeichnungen:
4. Verlegen Sie die Drähte gemäß nachstehenden
Zeichnungen und Tabelle und schließen Sie die Drähte
an. Ziehen Sie die Klemmenschrauben hierbei fest an .
5. Befestigen Sie das Netzkabel in der entsprechenden
Kabelklemme und schließen Sie den Deckel.
Dreiphasenanschluss 400
Anschluss des Netzkabels an das Stromnetz
Wird das Gerät direkt an das Stromnetz
angeschlossen, ist zwischen Stromnetz und Gerät ein
allpoliger Schalter mit einer Mindestkontaktöffnung von
3 mm zwischenzuschalten.
!
Der Installateur ist für den ordnungsgemäßen
elektrischen Anschluss sowie die Einhaltung der
Sicherheitsvorschriften verantwortlich.
Vor dem Anschluss stellen Sie bitte sicher, dass:
• die Netzsteckdose geerdet ist und den gesetzlichen
Bestimmungen entspricht;
• die Netzsteckdose für die auf dem Typenschild
(befindlich auf dem Gerät) angegebene maximale
Leistungsaufnahme des Gerätes ausgelegt ist;
• die Netzspannung im Bereich der auf dem
Typenschild angegebenen Werte liegt;
• die Steckdose mit dem Netzstecker kompatibel ist.
Sollte dies nicht der Fall sein, wechseln Sie bitte die
Steckdose oder den Netzstecker aus; verwenden
Sie keine Verlängerungen und Mehrfachsteckdosen.
!
Netzkabel und Steckdose müssen bei installiertem
Gerät leicht zugänglich sein.
!
Das Netzkabel darf nicht gebogen oder eingeklemmt
werden.
!
Das Netzkabel muss regelmäßig kontrolliert werden
und darf nur durch autorisiertes Fachpersonal
ausgetauscht werden.
!
Der Hersteller lehnt jede Verantwortung ab, falls
diese Vorschriften nicht eingehalten werden sollten.
!
Entfernen oder ersetzten Sie unter keinen Umständen
das Netzkabel. Wird das Kabel entfernt oder ersetzt,
verfallen sowohl die Gewährleistung als auch das
CE-Zeichen. INDESIT übernimmt keine Verantwortung
für Unfälle oder Schäden, die durch das Entfernen/
Ersetzen des Original-Netzkabels verursacht
werden. Der Austausch darf ausschließlich mit einem
Originalersatzteil und durch autorisiertes Fachpersonal
INDESIT durchgeführt werden.
Brücke
Nullleiter
Erdleiter
Phase
Phase
Phase
1
2
3
5
4
Erweiterbare Kochzonen
Einige Modelle verfügen über erweiterbare Kochzonen.
Diese können unterschiedliche Formen aufweisen
sowie unterschiedliche Erweiterungsmöglichkeiten
besitzen (Doppel- oder Dreifach-Kochzone). Hier
werden die entsprechenden Bedienelemente
aufgeführt, mit denen die Modelle bestückt sind, die
über solche Optionen verfügen.
Runde, erweiterbare Kochzone
• Taste
EINSCHALTEN DER DOPPELKOCHZONE:
Mittels dieser kann die Doppelkochzone aktiviert
werden. (
siehe Inbetriebsetzung und Gebrauch
).
• Kontrollleuchte
DOPPELKOCHZONE
EINGESCHALTET:
Diese zeigt an, dass die
Doppelkochzone eingeschaltet wurde.
• Taste
EINSCHALTEN DER DREIFACHKOCHZONE:
Mittels dieser kann die Dreifachkochzone aktiviert
werden. (
siehe Inbetriebsetzung und Gebrauch
).
• Kontrollleuchte
DREIFACHKOCHZONE
EINGESCHALTET:
Diese zeigt an, dass die
Dreifachkochzone eingeschaltet wurde.
Kontrollleuchte
DOPPELKOCHZONE
EINGESCHALTET
Taste
EINSCHALTEN DER
DOPPELKOCHZONE
Kontrollleuchte
DREIFACHKOCHZONE
EINGESCHALTET
Taste
EINSCHALTEN DER
DREIFACHKOCHZONE
Netzspannung
und -frequenz Elektrischer Anschluss Klemmengehäuse
400V 3-N ~
50/60 Hz
Dreiphasenanschluss 400
Table of contents
- Installation
- Start-up and use
- Precautions and tips
- Care and maintenance
- Installation
- Mise en marche et utilisation
- Précautions et conseils
- Nettoyage et entretien
- Instalación
- Puesta en funcionamiento y uso
- Precauciones y consejos
- Mantenimiento y cuidados
- Instalação
- Início e utilização
- Precauções e conselhos
- Manutenção e cuidados
- Installation
- Inbetriebsetzung und Gebrauch
- Vorsichtsmaßregeln und Hinweise
- Reinigung und Pflege
- Installazione
- Avvio e utilizzo
- Precauzioni e consigli
- Manutenzione e cura
- Installatie
- Starten en gebruik
- Voorzorgsmaatregelen en advies
- Onderhoud en verzorging
- Instalacja
- Uruchomienie i u ż ytkowanie
- Zalecenia i ś rodki ostro ż no ś ci
- Konserwacja i utrzymanie
- Монтаж
- Включение и эксплуатация
- Предосторожности и рекомендации
- Техническоеобслуживани и уход





