Indesit VRA 640 X: Installatie
Installatie: Indesit VRA 640 X
54
NL
Installatie
!
Bewaar dit instructieboekje zorgvuldig voor eventuele
raadpleging in de toekomst. Wanneer u het product
weggeeft, verkoopt, of wanneer u verhuist, dient
u dit boekje bij het apparaat te bewaren zodat
waarschuwingen en informatie betreffende werking
voorhanden blijven.
!
Lees de instructies aandachtig door: u vindt er
belangrijke informatie betreffende installatie, gebruik
en veiligheid.
Plaatsing
!
Het verpakkingsmateriaal is niet bestemd voor
kinderen en dient daarom te worden verwijderd
volgens de geldende normen voor gescheiden
afvalverzameling (
zie Voorzorgsmaatregelen en advies
).
!
De installatie moet worden uitgevoerd door een
bevoegde installateur en volgens de instructies van
de fabrikant. Een verkeerde installatie kan schade
berokkenen aan personen, dieren of dingen.
Inbouw
Voor een goede werking van het apparaat moet het
keukenmeubel de juiste kenmerken hebben:
• het keukenblad moet uit hittebestendig materiaal zijn
vervaardigd en een temperatuur van circa 100°C
kunnen verdragen;
• als de kookplaat boven een oven wordt geïnstalleerd
moet deze zijn voorzien van een geforceerd
geventileerd afkoelingssysteem;
• installeer de kookplaat nooit boven een
afwasautomaat: indien u dit toch doet, breng dan
een waterdichte afscheiding aan tussen de twee
apparaten;
• naar gelang het type kookplaat dat u wenst
te installeren (
zie afbeeldingen
), moet het
keukenmeubel de volgende afmetingen hebben:
560 +/- 1
490 +/- 1
48
590
520
560 +/- 1
490 +/- 1
48
574
504
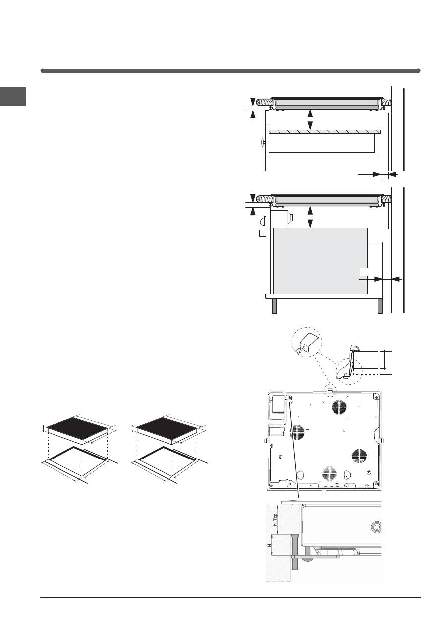
Ventilatie
Teneinde een correcte ventilatie te bereiken en
een oververhitting van de oppervlakken rondom het
apparaat te voorkomen, moet de kookplaat geïnstalleerd
worden op:
• op een minimum afstand van 40 mm van de
achterwand;
• op zodanige wijze dat er een minimum afstand
overblijft van 20 mm tussen het inbouwmeubel en
het onderstaande meubel.
• De meubels die direct naast de kookplaat staan en
VOORZIJDE VAN
DE KOOKPLAAT
KEUKENBLAD
30
40
KOOKPLAAT
ONDERSTEBOVEN
5 mm
min. 20 mm
min. 20 mm
min. 40 mm
LADE
5 mm
min. 40 mm
HETELUCHTOVEN
55
NL
hierboven uitsteken, moeten op minstens 600 mm
van de rand van de plaat staan.
Bevestigen
Het apparaat moet op een
absoluut horizontaal
oppervlak worden geïnstalleerd.
Eventuele door onjuiste installatie veroorzaakte
vervormingen kunnen de eigenschappen en de
prestaties van de kookplaat aantasten.
De lengte van de regelschroef van de
bevestigingshaken moet op basis van de dikte van het
keukenblad worden ingesteld
voordat de haken worden
gemonteerd:
• als de dikte 30 mm is: schroef 17,5 mm;
• als de dikte 40 mm is: schroef 7,5 mm.
Voor het bevestigen moet u als volgt te werk gaan:
1. Draai met korte, puntloze schroeven de 4
centreringsklemmen in de openingen in het midden
van elke zijde van het blad vast;
2. zet de kookplaat in het midden van de opening van
het keukenmeubel door gelijke druk uit te oefenen op
de hele omtrek totdat de kookplaat perfect aansluit op
het keukenblad.
3. voor een blad met zijprofielen: nadat u de kookplaat
in het keukenmeubel heeft geplaatst moet u de
4 bevestigingshaken aan de onderste rand van
de kookplaat vastschroeven met gepunte, lange
schroeven, net zolang tot het glas goed aan het blad
vastzit.
!
De schroeven van de centreringsklemmen moeten te
allen tijde bereikbaar blijven.
!
Volgens de veiligheidsnormen mag er geen contact
meer mogelijk zijn met de elektrische onderdelen nadat
het apparaat is ingebouwd.
!
Alle beschermende onderdelen moeten zodanig
worden bevestigd dat ze niet kunnen worden
verwijderd zonder gereedschap te gebruiken.
Elektrische aansluiting
!
De elektrische aansluitingen van de kookplaat en
de eventuele inbouwoven moeten apart worden
uitgevoerd, zowel om elektrische veiligheidsredenen
als om de oven eventueel eenvoudiger te kunnen
verwijderen.
Klemmenstrook
Aan de onderkant van het
apparaat bevindt zich een
klemmenstrook voor de
verschillende types elektrische
voeding (het is mogelijk dat
de afbeelding niet exact
overeenkomt met het model dat
u heeft aangeschaft).
Eenfasige aansluiting
De kookplaat is voorzien van een voedingskabel
bestemd voor een eenfasige aansluiting. Voer de
draadverbinding uit zoals aangegeven in de volgende
tabel en tekeningen:
Spanningstype
en netfrequentie
Elektrische kabel
Draadverbinding
230-240V 1+N ~
220-240V 1+N ~
50/60 Hz
: geel/groen;
N
: de 2 blauwe draden samen
L
: bruin en zwart samen
Andere soorten aansluitingen
Als het elektrische net overeenkomt met een van de
volgende karakteristieken:
Spanningstype en netfrequentie
• 400V - 2+N ~ 50/60 Hz
• 220-240V 3 ~ 50/60 Hz
• 230-240V 3 ~ 50/60 Hz
• 400V - 2+2N ~ 50/60 Hz
Scheid de kabels en voer de draadverbinding uit zoals
aangegeven in de volgende tabel en tekeningen:
Spanningstype
en netfrequentie
Elektrische kabel
Draadverbinding
400V - 2+N ~
50/60 Hz
230-240V 3 ~
220-240V 3 ~
50/60 Hz
: geel/groen;
N
: de 2 blauwe
draden samen
L1
: zwart
L2
: bruin
400V - 2+2N ~
50/60 Hz
: geel/groen;
N1
: blauw
N2
: blauw
L1
: zwart
L2
: bruin
Als het elektrische net overeenkomt met een van de
volgende karakteristieken:
Spanningstype en netfrequentie
• 400V 3 - N ~ 50/60 Hz
ga als volgt te werk:
!
De eventuele bijgeleverde kabel is niet geschikt voor
dit type installatie.
KOOKPLAAT
ONDERSTEBOVEN
56
NL
1. Gebruik een geschikte voedingskabel, type
H05RR-F of met een hogere waarde, met de juiste
afmetingen (diameter kabel: 25 mm).
2. Licht de lippen aan de zijkant van het deksel van de
klemmenstrook op met een schroevendraaier en open
hem (
zie afbeelding Klemmenstrook
).
3. Draai de schroef van de kabelklem en de schroeven
van de benodigde klemmetjes los en bevestig de
verbindingskabels volgens de aanwijzingen van de
volgende tabel en afbeeldingen.
4. Plaats de draden zoals aangegeven in de volgende
afbeeldingen en tabel en stel een verbinding tot stand
door alle schroeven van de klemmetjes goed vast te
draaien.
Spanningstype
en netfrequentie
Elektrische aansluitingen
Klemmenbord
400V 3-N ~
50/60 Hz
Driefasen 400
5. Bevestig de voedingskabel in de speciale kabelklem
en sluit het deksel af.
Driefase 400
Het aansluiten van
de voedingskabel
aan het elektrische net
Bij een rechtstreekse aansluiting op het net moet
u tussen het apparaat en het net een meerpolige
schakelaar aanbrengen met een minimum afstand van
3 mm tussen de contacten.
!
De installateur is verantwoordelijk voor een correcte
elektrische aansluiting en de inachtneming van de
veiligheidsnormen.
Vóór het aansluiten moet u controleren dat:
• de contactdoos geaard is en voldoet aan de
geldende normen;
• het stopcontact in staat is het maximale vermogen
van het apparaat te verdragen, zoals aangegeven
op het typeplaatje dat zich op het apparaat bevindt;
• de spanning zich bevindt tussen de waarden die
staan aangegeven op het typeplaatje;
• de contactdoos en de stekker overeenkomen.
Als dat niet zo is, dient u ofwel de stekker ofwel
de contactdoos te vervangen; gebruik geen
verlengsnoeren of dubbelstekkers.
!
Wanneer het apparaat geïnstalleerd is, moeten de
elektrische kabel en de contactdoos gemakkelijk te
bereiken zijn.
!
De kabel mag niet gebogen of samengedrukt
worden.
!
De kabel moet van tijd tot tijd worden gecontroleerd
en mag alleen door erkende monteurs worden
vervangen.
!
De fabrikant kan nergens aansprakelijk voor
worden gesteld als deze normen niet worden
nageleefd.
!
Verwijder of vervang de voedingskabel voor
geen enkele reden. De eventuele verwijdering of
vervanging doet de garantie en de CE markering
vervallen. INDESIT kan niet aansprakelijk worden
gesteld voor ongelukken of schade die het resultaat
zijn van de vervanging/verwijdering van de originele
voedingskabel. De vervanging met een origineel
onderdeel is alleen toegestaan indien uitgevoerd door
een erkende INDESIT technicus.
Fase
Fase
Fase
Verbindingskabel
Neutraal
Aarde
1
2
3
5
4
Verlengbare kookgedeeltes
Enkele modellen beschikken over verlengbare
kookplaten. Deze kunnen verschillende vormen
hebben en op verschillende manieren worden verlengd
(dubbel of drievoudig straalelement). Hier worden de
betreffende bedieningsknoppen beschreven; alleen
aanwezig op modellen die zijn voorzien van deze
opties.
Verlengbare kookplaat rond
• Toets
ONTSTEKEN DUBBELE KOOKPLAAT
om
de dubbele kookplaat in te schakelen (
zie Starten en
gebruik
).
• Controlelampje
DUBBELE KOOKPLAAT AAN
:
geeft aan dat de dubbele kookplaat ingeschakeld is.
• Toets
ONTSTEKEN DRIEVOUDIGE KOOKPLAAT
om de drievoudige kookplaat in te schakelen (
zie
Starten en gebruik
).
• Controlelampje
DRIEVOUDIGE KOOKPLAAT
AAN
: geeft aan dat de drievoudige kookplaat
ingeschakeld is.
Controlelampje
DUBBELE
KOOKPLAAT
AAN
Toets
ONTSTEKEN
DUBBELE
KOOKPLAAT
Controlelampje
DRIEVOUDIGE
KOOKPLAAT AAN
Toets
ONTSTEKEN
DRIEVOUDIGE
KOOKPLAAT
Table of contents
- Installation
- Start-up and use
- Precautions and tips
- Care and maintenance
- Installation
- Mise en marche et utilisation
- Précautions et conseils
- Nettoyage et entretien
- Instalación
- Puesta en funcionamiento y uso
- Precauciones y consejos
- Mantenimiento y cuidados
- Instalação
- Início e utilização
- Precauções e conselhos
- Manutenção e cuidados
- Installation
- Inbetriebsetzung und Gebrauch
- Vorsichtsmaßregeln und Hinweise
- Reinigung und Pflege
- Installazione
- Avvio e utilizzo
- Precauzioni e consigli
- Manutenzione e cura
- Installatie
- Starten en gebruik
- Voorzorgsmaatregelen en advies
- Onderhoud en verzorging
- Instalacja
- Uruchomienie i u ż ytkowanie
- Zalecenia i ś rodki ostro ż no ś ci
- Konserwacja i utrzymanie
- Монтаж
- Включение и эксплуатация
- Предосторожности и рекомендации
- Техническоеобслуживани и уход





