Stiebel Eltron SHW ... S с 06.05.2013: InStallatIe
InStallatIe: Stiebel Eltron SHW ... S с 06.05.2013
46
| SHW S www.stiebel-eltron.com
InStallatIe
veiligheid
InStallatIe
7. Veiligheid
Installatie, ingebruikname, evenals onderhoud en reparatie van
het toestel mogen alleen door een gekwalificeerde installateur
uitgevoerd worden.
7.1 algemene veiligheidsaanwijzingen
Wij waarborgen de goede werking en de bedrijfszekerheid uit-
sluitend bij gebruik van originele accessoires en vervangingson-
derdelen voor het toestel.
7.2 Voorschriften, normen en bepalingen
Info
Neem alle nationale en regionale voorschriften en be-
palingen in acht.
8. toestelbeschrijving
8.1 leveringsomvang
Bij het toestel wordt het volgende geleverd:
- Thermometer (bij levering in de schakelruimte)
- Koudwateraansluitbuis met vlakke afdichting
- Kleefrozet voor circulatieleiding
- Overgangsstuk met vlakke afdichting voor aansluiting van
een circulatieleiding
- Kunststofsluitdop
8.2 toebehoren
noodzakelijk toebehoren
Afhankelijk van de statische druk zijn veiligheidsgroepen en redu-
ceerafsluiters verkrijgbaar. Deze typegekeurde veiligheidsgroepen
beschermen het toestel tegen een verboden drukoverschrijding.
overig toebehoren
Als een staafanode niet langs boven kan gemonteerd worden,
installeert u een signaal-elementanode.
9. Voorbereidingen
9.1 montageplaats
Monteer het toestel altijd in een vorstvrije ruimte in de buurt van
het tappunt en bevestig het toestel op de vloer.
9.2 transport
!
Materiële schade
Voor het transport naar de opstelplaats is het aan te beve-
len de boilerommanteling te demonteren, zodat deze niet
vuil wordt of beschadigd raakt (zie hoofdstuk "Montage/
boilerommanteling en evt. circulatieleiding monteren").
10. montage
10.1 Boilerommanteling en eventueel
circulatieleiding monteren
Info
Monteer de boilerommanteling met deksel vóór de wa-
teraansluiting en evt. vóór de circulatieleiding of de elek-
trische verwarmingsflens.
Monteer de sokkelafdekking na de dichtheidscontrole.
Monteer een circulatieleiding op de aansluiting "circulatie" (zie
"Technische gegevens/afmetingen en aansluitingen"). Als alter-
natief kunt u de aansluiting "circulatie" gebruiken om een ther-
mometer aan te sluiten.
demontage
f
f
Verwijder achtereenvolgens het deksel en de sokkelafdekking
van de boilerommanteling.
f
f
Trek de temperatuurinstelknop van de elektrische verwar-
mingsflens af.
f
f
Verwijder het afsluitdeksel en de kabeldoorvoer.
f
f
Verwijder de boilerommanteling.
www.stiebel-eltron.com
SHW S |
47
N
ed
er
la
N
d
s
InStallatIe
Montage
montage
f
f
Monteer de boilerommanteling.
f
f
Monteer de kabeldoorvoer en het afsluitdeksel.
f
f
Steek de temperatuurinstelknop erop.
f
f
Wanneer u de aansluiting "Circulatie" voor de circulatielei-
ding gebruikt, dient u ter hoogte van de aansluiting (holte in
het schuim) een opening voor de circulatieleiding in de boile-
rommanteling te snijden.
f
f
Verwijder de isolatie ter hoogte van de aansluiting.
f
f
Steek de circulatieleiding door de opening in de boilerom-
manteling en monteer de circulatieleiding.
f
f
Isoleer de aansluiting "circulatie".
f
f
Schroef het meegeleverde overgangsstuk met vlakke afdich-
ting en een verlenging erop.
f
f
Dek het gat in de boilerommanteling af met de meegeleverde
plakrozet.
f
f
Monteer het deksel en de sokkelafdekking van de
boilerommanteling.
10.2 thermometer
26
�0
2�
09
�0
06
2
f
f
Steek de thermometer tot aan de aanslag in en lijn hem uit.
10.3 signaalanode
!
Materiële schade
Het toestel mag niet gebruikt worden zonder verbruiksin-
dicator of als de verbruiksindicator beschadigd is, want
als de anode versleten is, zou er water naar buiten komen.
26
�0
2�
09
�0
06
3
1
2
1 Transportbeveiliging
2 Verbruiksindicator signaalanode
f
f
Verwijder de transportbeveiliging.
f
f
Controleer de verbruiksindicator op transportschade.
10.4 wateraansluiting en veiligheidsgroep
10.4.1 Veiligheidsaanwijzingen
Info
Voer alle werkzaamheden voor wateraansluiting en in-
stallatie uit conform de voorschriften.
!
Materiële schade
Neem het hoofdstuk "Technische gegevens/storingssitua-
ties" in acht bij het gebruik van kunststof buizen.
!
Materiële schade
Het toestel moet met drukkranen worden gebruikt.
Koudwaterleiding
Als materiaal is thermisch verzinkt staal, roestvrij staal, koper of
kunststof toegestaan.
Een veiligheidsklep is verplicht.
warmwaterleiding
Als materiaal zijn roestvrijstalen, koperen of kunststof buizen
toegestaan.
48
| SHW S www.stiebel-eltron.com
InStallatIe
Montage
10.4.2 aansluiting
f
f
Spoel de buizen grondig door.
f
f
Het is verboden de maximaal toegelaten druk te overschrij-
den (zie hoofdstuk “Technische gegevens/gegevenstabel”).
ff
Monteer een type-gekeurde veiligheidsklep in de koudwa-
teraanvoerleiding. Let erop dat daarvoor, afhankelijk van de
statische druk, eventueel ook een reduceerafsluiter nodig is.
f
f
Monteer de warmwateruitloopleiding en de
koudwateraanvoerleiding.
26
�0
2�
09
�0
03
5
1
2
1 Koudwateraansluiting
2 Koudwater-aansluitbuis
f
f
Sluit de koudwateraansluiting rechtstreeks aan of monteer
de aansluitbuis tussen de voeten.
f
f
Bij het vastschroeven houdt u tegen met een sleutel (sleutel-
maat 36).
f
f
Controleer de stabiliteit van de aansluitbuis en zet de aan-
sluitbuis evt. extra vast.
ff
Gebruik een afvoerleiding met voldoende capaciteit om het
water bij volledig geopende veiligheidsklep ongehinderd af
te voeren.
ff
Monteer de afblaasleiding van de veiligheidsklep met een
constante afwaartse helling in een vorstvrije ruimte.
f
f
De afblaasopening van de veiligheidsklep moet geopend blij-
ven naar de atmosfeer.
10.5 elektriciteitsaansluiting
WAARSCHUWING elektrische schok
Scheid alle polen van het toestel van het elektriciteitsnet
voor aanvang van alle werkzaamheden.
WAARSCHUWING elektrische schok
De aansluiting op het stroomnet is enkel als vaste aan-
sluiting toegestaan in combinatie met de uitneembare
kabeldoorvoer. Het toestel moet op alle polen met een
afstand van minstens 3 mm van de aansluiting op het net
kunnen worden losgekoppeld.
WAARSCHUWING elektrische schok
Zorg ervoor dat het toestel is aangesloten op de aard-
leiding.
!
Materiële schade
Neem de gegevens op het typeplaatje in acht. De aange-
geven spanning moet overeenkomen met de netspanning.
f
f
Trek de temperatuurinstelknop eraf.
f
f
Draai de schroeven onderaan het afsluitdeksel eruit en ver-
wijder het afsluitdeksel.
f
f
Prepareer de aansluitdraad en steek deze door de ka-
beldoorvoer in de schakelruimte. Selecteer een kabeldiame-
ter die voldoet aan het vermogen van het toestel.
f
f
Sluit het gewenste vermogen aan in overeenstemming met
de aansluitvoorbeelden (zie hoofdstuk "Technische gegevens/
elektriciteitsschakelschema en aansluitingen").
f
f
Monteer het afsluitdeksel.
f
f
Steek de temperatuurinstelknop erop.
f
f
Indien de energiemaatschappij een snelopwarming niet
toestaat, moet de drukknop met de bijgevoegde kunststof-
sluitdop worden afgedekt.
f
f
Markeer met een pen het geselecteerde aansluitvermogen en
de -spanning op het typeplaatje.
www.stiebel-eltron.com
SHW S |
49
N
ed
er
la
N
d
s
InStallatIe
Ingebruikname
11. ingebruikname
11.1 eerste ingebruikname
f
f
Open een tappunt tot het toestel is gevuld en het leidingnet
luchtvrij is.
f
f
Stel het doorstroomvolume in. Let daarbij op het maximaal
toegelaten doorstroomvolume bij een volledig geopende
kraan (zie hoofdstuk "Technische gegevens / Gegevenstabel").
Reduceer, indien gewenst, het doorstroomvolume op de
smoring van de veiligheidsgroep.
f
f
Voer een dichtheidscontrole uit.
f
f
Draai de temperatuurinstelknop naar de maximale
temperatuur.
f
f
Schakel de netspanning in.
f
f
Controleer de werkmodus van het toestel.
f
f
Controleer de goede werking van de veiligheidsgroep.
11.1.1 overdracht van het toestel
f
f
Leg aan de gebruiker de werking van het toestel uit en maak
hem vertrouwd met het gebruik ervan.
f
f
Wijs de gebruiker op mogelijk gevaar, met name het gevaar
van brandwonden.
f
f
Overhandig deze handleiding.
11.2 opnieuw in gebruik nemen
Zie hoofdstuk "Ingebruikname".
12. instellingen
12.2.1 temperatuurkeuzebegrenzing
U kunt de temperatuurkeuzebegrenzing via de temperatuurin-
stelknop instellen.
Fabrieksinstelling: begrenzing tot 60 °C
f
f
Zet de temperatuurinstelknop op "koud" en ontkoppel het
toestel van het voedingsnet.
f
f
Verwijder de temperatuurinstelknop en het afsluitdeksel.
1
2
26
�0
2�
79
�0
07
0
1 Begrenzingsschijf
2 zonder begrenzingsschijf, maximaal 82 °C
f
f
U kunt de begrenzing instellen op 45 °C/60 °C door Begren-
zingsschijf draaien te selecteren. Als u de begrenzingsschijf
hebt verwijderd, kan de maximale temperatuur ingesteld
worden.
f
f
Steek het afsluitdeksel en de temperatuurinstelknop weer
erop.
13. Buitendienststelling
f
f
Verbreek de verbinding tussen het toestel met de zekering in
de huisinstallatie en de netspanning.
f
f
Tap het toestel af. Zie het hoofdstuk "Onderhoud/toestel
aftappen".
50
| SHW S www.stiebel-eltron.com
InStallatIe
Storingen verhelpen
14. storingen verhelpen
Info
Bij temperaturen onder -15 °C kan de veiligheidstempe-
ratuurbegrenzer activeren. Het toestel kan al bij opslag of
bij het transport aan deze temperaturen zijn blootgesteld.
Storing
Oorzaak
Oplossing
Het water wordt niet
warm.
De veiligheidstempera-
tuurbegrenzer is geacti-
veerd, omdat de regelaar
defect is.
Vernieuw de thermostaat
en druk op de resettoets
van de veiligheidstempe-
ratuurbegrenzer.
De veiligheidstempera-
tuurbegrenzer is geacti-
veerd, omdat de tempera-
tuur lager is dan -15 °C.
Druk op de resetknop.
Een verwarmingselement
is defect
Vervang de verwarmings-
flens.
De snelopwarming scha-
kelt niet in.
Controleer het relais en
vervang het evt.
De veiligheidsklep
druppelt na, wanneer
de verwarming is uit-
geschakeld.
De klepzitting is vuil.
Reinig de klepzitting.
26
�0
2�
09
�0
07
0�
1
1 Resettoets van de veiligheidstemperatuurbegrenzer
15. onderhoud
WAARSCHUWING elektrische schok
Voer alle werkzaamheden voor elektriciteitsaansluitin-
gen en montage uit conform de voorschriften.
WAARSCHUWING elektrische schok
Scheid alle polen van het toestel van de netspanning voor
aanvang van alle werkzaamheden.
Wanneer het toestel moet worden afgetapt, raadpleeg dan het
hoofdstuk "Toestel aftappen".
15.1 Veiligheidsklep controleren
f
f
Zet de veiligheidsklep op de veiligheidsgroep regelmatig
open tot de volle waterstraal eruit loopt.
15.2 Het toestel aftappen
WAARSCHUWING verbranding
Tijdens het aftappen kan er heet water uit het toestel
lopen.
Indien de boiler voor onderhoudswerkzaamheden of bij vorstge-
vaar moet worden afgetapt voor de bescherming van de volledige
installatie, gaat u als volgt te werk:
f
f
Sluit de afsluitklep in de koudwateraanvoerleiding.
f
f
Open de warmwaterklep van alle aftappunten.
f
f
Tap het toestel af via de veiligheidsgroep.
15.3 signaalanode vervangen
f
f
Vervang de signaalanode als deze is versleten.
15.4 Het toestel reinigen en ontkalken
f
f
Gebruik geen ontkalkingspomp.
f
f
Ontkalk de verwarmingsflens pas wanneer deze is gedemon-
teerd en behandel het oppervlak van de boiler en de veilig-
heidsanode niet met ontkalkingsmiddelen.
Aanzetkoppel van de flensschroeven: zie hoofdstuk "Technische
gegevens/afmetingen en aansluitingen"
15.5 Verwarmingsflens vervangen
26
�0
2�
09
�0
06
9�
5
6
4
2
3
1
1 Isolatieplaat
2 Flensplaat
3 Soldeerflens
4 Isolatieplaat
5 Corrosiebeschermende weerstand 390 Ω
6 Dichting
De corrosiebeschermende weerstand dient als potentiaalcompen-
satie en voorkomt stroomuitgangscorrosie op de verwarmings-
elementen.
f
f
De corrosiebeschermende weerstand mag bij onder-
houdswerkzaamheden niet worden beschadigd of worden
verwijderd.
f
f
Zet, na vervanging van de corrosiebeschermende weerstand,
de verwarmingsflens weer op de juiste wijze in elkaar.
www.stiebel-eltron.com
SHW S |
51
N
ed
er
la
N
d
s
InStallatIe
technische gegevens
16. technische gegevens
16.1 afmetingen en aansluitingen
sHw 200 s
430
a43
60
80
1578
340
1035
730
630
h43
i01
i18
i18
c03
c06
c01
c10
b02
b03
45°
45°
D
00000
17
59
2
SHW 200 S
a43 Hartcirkeldiameter voeten
b02 Doorvoer elektr.kabels I
Diameter
PG 16
b03 Doorvoer elektr.kabels II
Diameter
PG 13,5
c01 Koudwatertoevoer
Buitendraad
G 1 A
c03 Koudwatertoevoerbuis
Buitendraad
G 1 A
Aanzetkoppel
Nm
100
c06 Warmwateruitloop
Buitendraad
G 1 A
c10 Circulatie
Buitendraad
G 1/2 A
h43 Thermometer
Diameter
mm
14,5
i01 Flens
Diameter
mm
210
Hartcirkeldiameter mm
180
Bouten
10 x M12
Aanzetkoppel
Nm
55
i18 Veiligheidsanode
Binnendraad
G 1 1/4
sHw 300 s
75
55
1593
365
1040
815
700
i18
i18
c03
45°
45°
h43
i01
c01
c10
b02
b03
490
a43
c06
D
00000
17
59
3
SHW 300 S
a43 Hartcirkeldiameter voeten
b02 Doorvoer elektr.kabels I
Diameter
PG 16
b03 Doorvoer elektr.kabels II
Diameter
PG 13,5
c01 Koudwatertoevoer
Buitendraad
G 1 A
c03 Koudwatertoevoerbuis
Buitendraad
G 1 A
Aanzetkoppel
Nm
100
c06 Warmwateruitloop
Buitendraad
G 1 A
c10 Circulatie
Buitendraad
G 1/2 A
h43 Thermometer
Diameter
mm
14,5
i01 Flens
Diameter
mm
210
Hartcirkeldiameter mm
180
Bouten
10 x M12
Aanzetkoppel
Nm
55
i18 Veiligheidsanode
Binnendraad
G 1 1/4
52
| SHW S www.stiebel-eltron.com
InStallatIe
technische gegevens
sHw 400 s
75
55
1763
375
1160
865
750
i18
i18
c03
45°
45°
h43
i01
c01
c10
b02
b03
540
a43
c06
D
00000
17
59
4
SHW 400 S
a43 Hartcirkeldiameter voeten
b02 Doorvoer elektr.kabels I
Diameter
PG 16
b03 Doorvoer elektr.kabels II
Diameter
PG 13,5
c01 Koudwatertoevoer
Buitendraad
G 1 A
c03 Koudwatertoevoerbuis
Buitendraad
G 1 A
Aanzetkoppel
Nm
100
c06 Warmwateruitloop
Buitendraad
G 1 A
c10 Circulatie
Buitendraad
G 1/2 A
h43 Thermometer
Diameter
mm
14,5
i01 Flens
Diameter
mm
210
Hartcirkeldiameter mm
180
Bouten
10 x M12
Aanzetkoppel
Nm
55
i18 Veiligheidsanode
Binnendraad
G 1 1/4
toesteldoorsnede
i18
c03
h43
i01
c01
c10
b02
b03
c06
D
00000
35
57
6
www.stiebel-eltron.com
SHW S |
53
N
ed
er
la
N
d
s
InStallatIe
technische gegevens
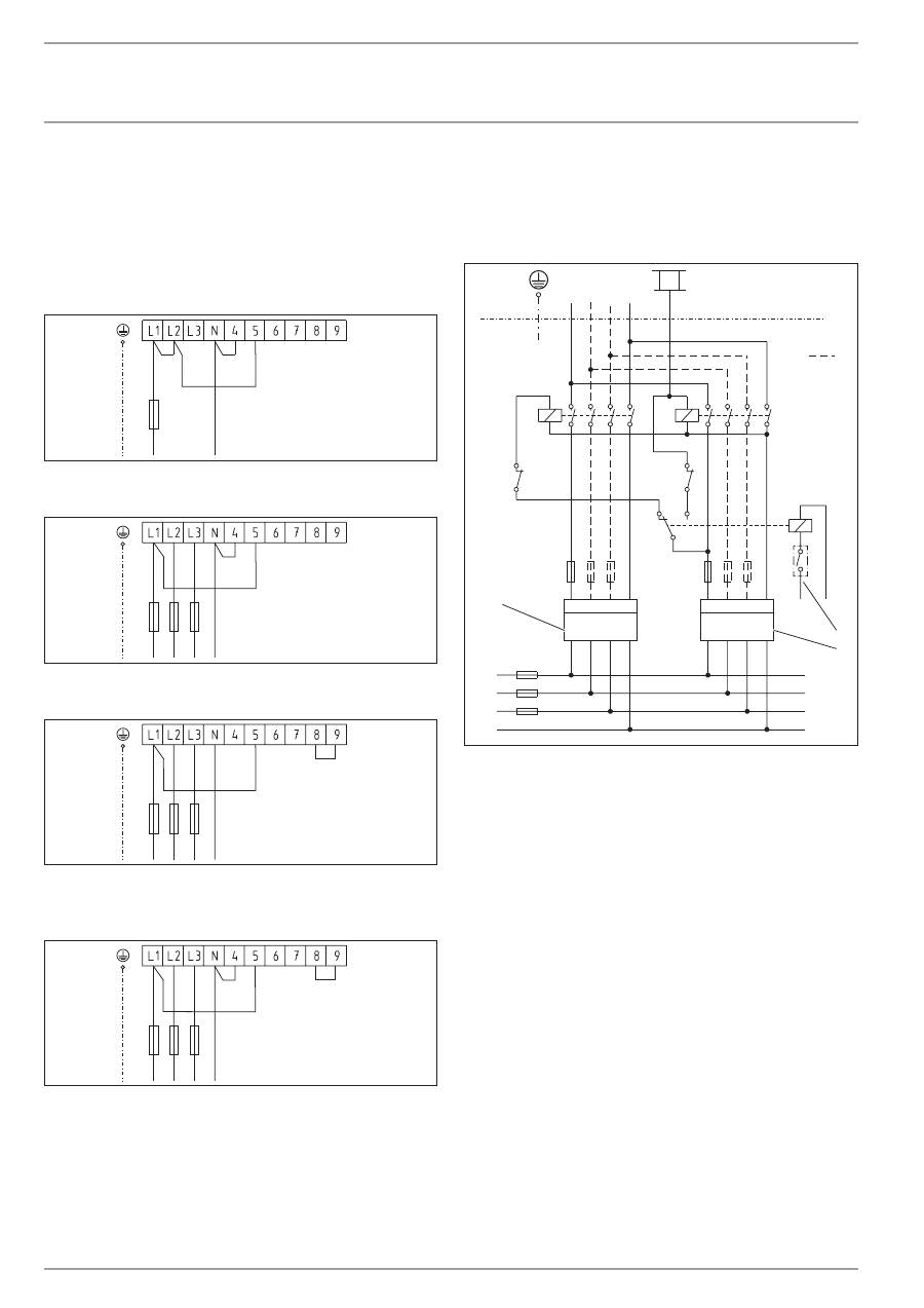
16.2 elektriciteitsschakelschema en aansluitingen
L1 L2 L3 N 4 5 6 7 8 9
1
II
3
I
2
2
1
5
4
3
6
26
�0
2�
79
�0
06
0
1 Krachtschakelaar in de schakelruimte
2 Drukknop voor snelopwarming
3 Veiligheidstemperatuurbegrenzer
4 Temperatuurregelaar
5 Relais
6 Verwarmingselementen elk 2 kW ~ 230 V
tweekringwerking, meting met één meter met contact van het
energiebedrijf
Bij de volgende aansluitvoorbeelden is het vermogen van de sne-
lopwarming gedurende de tijd van het dagtarief met de schuine
streep aangeduid.
Let op de instelling van de krachtschakelaar in de schakelruimte.
2/4 kW
Schakelstand I
1/N/PE ~ 230 V
4/4 kW
Schakelstand II
1/N/PE ~ 230 V
2
1
26
�0
2�
79
�0
06
1
2/6 kW
Schakelstand I
3/N/PE ~ 400 V
2
1
26
�02
�7
9�
00
62
3/6 kW
Schakelstand I
3/N/PE ~ 400 V
2
1
26
�0
2�
79
�0
06
3
4/6 kW
Schakelstand I
3/N/PE ~ 400 V
6/6 kW
Schakelstand II
3/N/PE ~ 400 V
2
1
26
�0
2�
79
�0
06
4
1 Drukknop voor snelopwarming
2 Contact van de stroomregeling
54
| SHW S www.stiebel-eltron.com
InStallatIe
technische gegevens
eenkringwerking
Bij de volgende aansluitvoorbeelden is het vermogen van de sne-
lopwarming tussen haakjes aangeduid.
Let op de instelling van de krachtschakelaar in de schakelruimte.
2(4) kW
Schakelstand I
1/N/PE ~ 230 V
4(4) kW
Schakelstand II
1/N/PE ~ 230 V
26
�0
2�
79
�0
06
5
2(6) kW
Schakelstand I
3/N/PE ~ 400 V
26
�0
2�
79
�0
06
6
3(6) kW
Schakelstand I
3/N/PE ~ 400 V
26
�0
2�
79
�0
067
4(6) kW
Schakelstand I
3/N/PE ~ 400 V
6(6) kW
Schakelstand II
3/N/PE ~ 400 V
26
�0
2�
79
�0
06
8
tweekringwerking, meting met twee meters met contact van
het energiebedrijf
1/N/PE ~ 230 V
3/N/PE ~ 400 V
5
PE
K1
K2
K2
K1
L1
N
L3
L2
26
�0
2�
79
�0
06
9
3
2
1
4
K1 Schakelcontactgever (WPF 1)
K2 Relais 2
1 Bijkomend noodzakelijke aansluitingen voor 3/N/PE ~ 400 V
2 Contact van de stroomregeling
3 Teller nachtstroom
4 Teller dagstroom
Let op de overeenstemming van de fasen.
www.stiebel-eltron.com
SHW S |
55
N
ed
er
la
N
d
s
16.3 Verwarmingsgrafiek
De opwarmtijd is afhankelijk van de boilerinhoud, van de koud-
watertemperatuur en van het verwarmingsvermogen.
Bij 10 °C koudwatertemperatuur en temperatuurinstelling "E":
400
300
2
4
6
8
10
12
2
3
4
1
84
�0
2�
02
�0
01
6
X Nominale inhoud [I]
Y Duur [h]
1 2 kW
2 3 kW
3 4 kW
4 6 kW
16.4 storingssituaties
Bij een storing kunnen er temperaturen tot 95 °C bij 0,6 MPa
voorkomen.
16.5 gegevenstabel
SHW 200 S
SHW 300 S
SHW 400 S
182120
182121
182122
Hydraulische gegevens
Nominale inhoud
l
200
300
400
Mengwatervolume van 40 °C (15 °C/60 °C)
l
397
590
780
Elektrische gegevens
Aansluitvermogen ~ 230 V
kW
2-4
2-4
2-4
Aansluitvermogen ~ 400 V
kW
2-6
2-6
2-6
Nominale spanning
V
230/400
230/400
230/400
Fasen
1/N/PE, 3/N/PE
1/N/PE, 3/N/PE
1/N/PE, 3/N/PE
Frequentie
Hz
40-450
40-450
40-450
Werkwijze Eenkring
X
X
X
Werkwijze Tweekring
X
X
X
Werkingsbereik
Temperatuurinstelbereik
°C
35-82
35-82
35-82
Max. toegelaten druk
MPa
0,6
0,6
0,6
Testdruk
MPa
0,78
0,78
0,78
Max. toegelaten temperatuur
°C
95
95
95
Max. doorstroomvolume
l/min
30
38
45
Energiegegevens
Energieverbruik in stand-by/24 u bij 65 °C
kWh
1,5
1,9
2,25
Uitvoeringen
Beschermingsgraad (IP)
IP24
IP24
IP24
Uitvoering gesloten
X
X
X
Kleur
zuiver wit/basaltgrijs
zuiver wit/basaltgrijs
zuiver wit/basaltgrijs
Afmetingen
Hoogte
mm
1578
1593
1763
Breedte
mm
630
700
750
Diepte
mm
730
815
865
Gewichten
Gevuld gewicht
kg
265
277
490
Leeg gewicht
kg
65
77
90
Garantie
Voor toestellen die buiten Duitsland zijn gekocht, gelden de
garantievoorwaarden van onze Duitse ondernemingen niet.
Bovendien kan in landen waar één van onze dochtermaat-
schappijen verantwoordelijk is voor de verkoop van onze
producten, alleen garantie worden verleend door deze doch-
termaatschappij. Een dergelijk garantie wordt alleen verstrekt,
wanneer de dochtermaatschappij eigen garantievoorwaarden
heeft gepubliceerd. In andere situaties wordt er geen garantie
verleend.
Voor toestellen die in landen worden gekocht waar wij geen
dochtermaatschappijen hebben die onze producten verkopen,
verlenen wij geen garantie. Een eventueel door de importeur
verzekerde garantie blijft onverminderd van kracht.
Milieu en recycling
Wij verzoeken u ons te helpen ons milieu te beschermen. Doe
de materialen na het gebruik weg overeenkomstig de natio-
nale voorschriften.
gaRantIe | MIlIeu en Recy- clIng
InStallatIe | gaRantIe | MIlIeu en RecyclIng
technische gegevens

