Stiebel Eltron DHB-E 13 SL: инструкция
Раздел: Бытовая, кухонная техника, электроника и оборудование
Тип: Водонагреватель
Инструкция к Водонагревателю Stiebel Eltron DHB-E 13 SL
BEDIENUNG UND INSTALLATION
OPERATING AND INSTALLATION
UTILISATION ET INSTALLATION
GEBRUIK EN INSTALLATIE
OPERACIÓN E INSTALACIÓN
OBStUGA IINSTALACJA
OBSLUHA AINSTALACE
ИНСТРУКЦИЯ ПО ЭКСПЛУАТАЦИИ И УСТАНОВКЕ
COMANDÀ ÇI MONTARE/ASAMBLARE/INSTALARE
ELEKTRONISCH GESTEUERTER DURCHLAUFERHITZER 1 ELECTRONICALLY CONTROLLED
INSTANTANEOUS WATER HEATER | CHAUFFE-EAU INSTANTANÉ À GESTION ÉLECTRONIQUE |
ELEKTRONISCH GESTUURDE ELEKTRISCHE DOORSTROMER | CALENTADOR INSTANTÁNEO CON
CONTROLADO ELECTRÓNICA | ELEKTRONICZNIE STEROWANY PRZEPLYWOWY OGRZEWACZ
WODY I ELEKTRONICKYRÍZENY PRÚTOKOVYOHRÍVAC | ПРОТОЧНЫЕ ВОДОНАГРЕВАТЕЛИ C
ЭЛЕКТРОННЫМ УПРАВЛЕНИЕМ I ÎNCÂLZITOR INSTANT CONTROLAT ELECTRONIC
» DHB-E 11 SLi electronic
» DHB-E 13 SL electronic
» DHB-E 18 SLi
25
A electronic
» DHB-E 18/21/24 SLi electronic
» DHB-E 27 SLi electronic
STIEBEL ELTRON
BEDIENUNG
ALLGEMEINE HINWEISE
BEDIENUNG
2
1. Allgemeine Hinweise
Das Kapitel Bedienung richtet sich an den Benutzer und den
1. Allsememe Hinweise
2
1.1 Zekhenerklärune
2
Fachhandwerker.
2. Sicherheit
3
Das Kapitel Installation richtet sich an den Fachhandwerker.
2.1 Bestimmun^sc^emäße Verwendung
3
2.2 Sicherheitshinweise
3
r'Til Bitte lesen!
I j j M Lesen Sie diese Anleitung vor der Bedienung sorg
fältig durch und bewahren Sie sie auf. Geben Sie sie
im Falle einer Weitergabe des Gerätes an den nach
folgenden Benutzer weiter.
2.3 CE-Kennzeichnune
3
3. Gerätebeschreibuni^
3
k.
Bedienuns
3
t».l Temperiitur-EinstellkncDf
3
<».2 Ausl;)ufmentren
3
1.1 Zeichenerklärung
i*.3 Thermostat-Armatur
3
ln dieser Dokumentation werden Ihnen Symbole und Herv'orhe-
kA
Tempera tu rbeerenzuns/Verbrühschutz
3
bungen begegnen. Diese haben folgende Bedeutung:
1.1.1 Symbole in dieser Dokumentation
5. Reinisune. Pfleee und Wartune
3
6. Was tun wenn ...
6
6.1 ... bei Unterbrechung der Wasserzufuhr
4
A Verletzungsgefahr!
6.2 ... Störungen am Gerät auftreten
4
Hinweis auf mögliche Verletzungsrisiken für den
INSTALLATION
5
t
\
Installateur
oder
den
Benutzer
und
auf
mögliche
Gerätebeschädigung!
?. Sicherheit
5
Lebensgefahr durch Stromschlag!
7.1 Allgemeine Sicherheitshinweise
5
7.2 Vorschriften, Normen und Bestimmunsjen
5
Gefahr durch Verbrühungen!
7.3 Wasserinstallation
5
7.t» Frostgefahr
5
8. Gerätebeschreibuni^
5
/V Beschädigungsgefahrl
/ !\ Hinweis auf eine mögliche Gefahrensituation. die
8.1 Lieferumfang
5
8.2 Montage
5
‘ ^ während der Installation des Gerätes oder während
8.3 Tem oeratu rbegrenzung/Verbrühschütz
5
des
Betriebs
entstehen
könnte
und
Schaden
am
Gerät
beziehungsweise
eine
Umweltschädigungoder
wirtschaftliche Schäden verursachen kann.
S.Í* Montage-Varianten
6
8.6 Sonderzubehör
6
9. Installation
?
r""]^ Bitte lesen!
Lesen Sie diesen Abschnitt sorgfältig durch.
9.1 Installationshinweise
7
10. Montage
7
» Passagen mit dem Symbol»»" zeigen Ihnen erfcrderlkhe Hand-
10.1 Montageort
7
lungen. die Schritt für Schritt beschrieben werden.
10.2 Montage
8
-Passagen mit dem Symbol zeigen Ihnen Aufzählungen.
10.3 Montage-Varianten
11
11. Erstinbetriebnahme
14
1.1.2 Symbole am Gerät
12. Qbersabe des Gerätes
16
Entsorgung!
13. Störuni^sbeseit^um^
15
Geräte mit dieser Kennzeichnung gehören nicht in den
Restmüll und sind getrennt zu entsorgen.
13.1 Anzeieemöglichkeiten LED-Diagnoseamoel
15
13.2 Störungstabelle
15
16. Technische Daten
16
14.1 Maßzeichnung
16
14.2 Elektroschaltolan
16
14.3 Landessoezifische Zulassungen und Zeugnisse
16
14.4 Einsatzbereich
16
14.6 Extreme Betriebsbedingungen und Störfallbedingungen
14.6 Technische Daten
_17
17
KUNDENDIENST UND GARANTIE
18
UMWELT UND RECYCLING
18
2
1 DHB-E ... SLi eLsctronic
vrww.stiebeL-eltron.com
BEDIENUNG
SICHERHEIT
2. Sicherheit
2.1 Bestimmungsgemäße Verwendung
Dns Gerät ist ein Druckgerät zur Erwärmung von Knitwasser nach
DIN 198B. Mit dem Gerät können Sie eine cder mehrere Zapfstellen
versorgen.
Eine andere oder darüber hinausgehende Benutzung gilt als nicht
bestimmungsgemäß.
Zum
beslimmungsgemäßen
Gebrauch
ge
hört auch das Beachten dieser Anleitung. Bei Änderungen oder
Umbauten am Gerät erlischt Jegliche Gewährleistung!
2.2
Sicherheitshinweise
Beachten
Sie
die
nachfolgenden
Sicherheitshinweise
und
Vorschriften.
Die Installation und die Erstinbetriebnahme dieses Gerätes darf
nur von einem Fachhandwerker durchgeführt werden.
Der Fachhandwerker ist bei der Installation und der Erstinbe*
triebnahme
verantwortlich
für
die
Einhaltung
der
geltenden
Vorschriften.
Betreiben Sie das Gerät nur komplett installiert und mit allen
Sicherheitseinrichtungen.
Gefahr durch Verbrühungen!
Bei
Auslauftemperaturen
größer
43
besteht
VerbrOhungsgefahr.
Verletzungsgefahri
Sollten
Kinder
oder
Personen
mit
eingeschränkten
körperlichen,
sensorischen
oder
geistigen
Fähig
keiten das Gerät bedienen, stellen Sie sicher, dass
dies
nur
unter
Aufsicht
oder
nach
entsprechender
Einweisung durch eine für ihre Sicherheit zuständige
Person geschieht.
Beaufsichtigen
Sie
Kinder,
um
sicherzustellen,
dass
sie nicht mit dem Gerät spielen!
Besch äd igu n g sgefahr!
Nach Unterbrechung der Wasserzufuhr darf das Gerät
nicht
bedient
werden.
Das
Blankdraht-Heizsystem
kann zerstört werden. Bedienen Sie das Gerät erst
wieder, wenn Sie mindestens eine Minute lang Wasser
haben durchfließen lassen (Kapitel ..Was tun wenn”).
A
2.S CE-Kennz€!Ìchnung
Die CE-Kennzeichnung belegt, dass das Gerät alle grundlegenden
Anforderungen erfüllt:
- Richtlinie über die elektromagnetische Verträglichkeit (Richtlinie
200<»/108/EG des Rates)
-Niederspannungsrichtlinie (Richtlinie 2006/95/EG des Rates)
3. Gerätebeschreibung
Das Gerät erwärmt das Wasser, während es durch das Gerät
Strömt.
Die
Warmwasser-Auslauftemperatur
können
Sie
stufenlos
mit
dem
Temperatur-Einstellknopf
einstellen.
Ab
einer
bestimm
ten Durchflussmenge schaltet die Steuerung in Abhängigkeit von
der
Temperatur-Einstellung
und
der
Kaltwassertemperatur
die
richtige Heizleistung ein.
Dns Gerät ist mit einer Lufterkennung nusgestattet, die eine Be
schädigung
des
Heizsystems
weitgehend
verhindert.
Wird
wäh
rend des Betriebes Luft eingespült, schaltet das Gerätdie Leistung
für eine Minute aus und schützt somit das Heizsystem.
<f. Bedienung
kA
Temperatur-Einstellknopf
t/i
I-
3
lU
X
LJ
1
ca. 30
K
7 ca. 60 ''C
Am
Temperntur-Einstellknöpf
kann
die
gewünschte
Temperntur
stufenlos eingestellt werden.
Wird
bei
voll
geöffnetem
Zapfventil
und
maximaler
Tempera
tureinstellung
..7"
(Rechtsanschlag
desTemperatuf-Einstellknop-
fes)
keine
nusreichende
Auslauftemperntur
erreicht,
fließt
mehr
Wasser durch das Gerät, als der Heizkörper erwärmen kann.
»Reduzieren Sie die Durchflussmenge am Zapfventil.
k.2
Auslaufmengen
|e nach Jahreszeit ergeben sich bei verschiedenen Kaltwasser
temperaturen
unterschiedliche
maximale
Mischwassermengen
beziehungsweise
Auslaufmengen.
Weitere
Informationen
dazu
erhalten Sie im Kapitel ..Technische Daten“.
Thermostat-Armatur
Wir empfehlen Ihnen, das Gerät auf die maximale Temperatur
einzustellen „7“ (Temperatur-Einstellknopf auf Rechtsanschlag).
Temperaturbegrenzung/Verbrühschutz
Die maximale Auslauftemperatur kann für das Gerät auf 43 be
grenzt werden. Sprechen Sie hierzu Ihren Fachhandwerker an.
S. Reinigung, Pflege und Wartung
»Verwenden
Sie
keine
scheuernden
oder
anlösenden
Reini
gungsmittel! Zur Pflege und Reinigung des Gerätes genügt ein
feuchtes Tuch.
Wartungsarbeiten,
wie
zum
Beispiel
die
Überprüfung
der
elek
trischen
Sicherheit,
dürfen
nur
durch
einen
Fachhandwerker
erfolgen.
www.stiebeL-eltron.com
DHB-E ... SLi electronic I 3
BEDIENUNG
WAS TUN WENN
6. Was tun wenn ...
6.1 ... bei Unterbrechung der Wasserzufuhr
A
Be s chä d igungsgef a h rl
Nach
Unterbrechung
der
Wasserzuiuhr
müssen
Sie
folgende
Arbeitsschritte
vor
der
Wiederinbetrieb
nahme des Gerätes durchführen.
» Schrauben Sie die Sicherungen heraus beziehungsweise schal
ten Sie diese aus.
»Offnen Sie ein dem Gerät nnchgeschaltetes Zapfventil solange,
bis das Gerät und die vorgeschaltete Kaltwasserzuleitung luftfrei
sind.
»Schrauben Sie die vorgeschaltete Sicherungen wieder ein be
ziehungsweise schalten Sie sie wieder ein.
6.2 ... Störungen am Gerät aufireten
Störung
Das Gerät schaltet
Irolc voll gcöfiniHcm
Wr.r m vvass er ve nti I
nicht chl.
Ursache
Es hegt keine Spannung
an.
Dil' Ehlsihältnii'ngc
wird nicht erreicht. Der
Perlator in der Arma-
lui oder der Djsch-
kopf ist verkalkt oder
verseil nutzt.___________
Das Heirsystem ist
dcii'kt.
Behebung
»Überprüfen Sie die
Siihcrungcil in der
Haijsinstallalion.
»Reinigen und / oder ent
kalken Sie den Terlator
oder den Dubihkopi.
»Rufen Sie den
Fa ihh and werk er.
Das Gerät jeht nach einer
Minute helbsbtöndig wie
der in Betrieb.
Oie Lüfterkennung er
kennt Luft im
.ind schaltet die Hei?-
___________________ lei^tuiife kuficeitls at>. ______________________________
Können Sie die Ursache nicht beheben rufen Sie den Fachhand
werker. Zur besseren und schnelleren Hilfe teilen Sie ihm die
Nummer vom Typenschild mit (Nr. OOOOOO-OODO-OOODOO):
Es fließt kurrreitig
kälti's Wäbscr wöh
rend warmes Wasser
{{^¿t.pitwird._____
4 IDHB-E ... SLi electronic
vzww.stiebeL-eltron.com
INSTALLATION
SICHERHEIT
7. Sicherheit
7,1 Allgemeine Sicherheitshinweise
Alle nötigen Schritte bis nnch derErstinbetriebnnhme müssen von
einem Fachhand werker durch geführt werden. Dabei muss diese
Installaticnsanweisung beachtet werden.
Wir gewährleisten eine einwandfreie Funktion und Betriebssicher
heit nur, wenn dnsfür dns Ger^t bestimmten Originnl-Zubehör und
die originalen Ersatzteile verwendet werden.
?«2
Vorschriften. Normen und Bestimmungen
A A A A A
Besch äd igu n gsgef ahr!
Beachten
Sie
das
Typenschild.
Spannung
muss
mit
der
iibereinstimmen.
Die
angegebene
Netzspannung
Lebensgefahr durch Stromschlag!
Fuhren
Sie
alle
elektrischen
Anschluss-
und
Installationsarbeiten
nach
den
VDE-Bestimmungen
(DIN
VDE
0100).
den
Vorschriften
des zuständigen
EVUs
sowie
den
entsprechenden
nationalen
und
regionalen Vorschriften aus.
Lebensgefahr durch Stromschlagl
Der Anschluss an das Stromnetz ist nur als fester
Anschluss möglich. Das Gerät muss über eine Trenn
strecke von mindestens 3 mm allpolig vom Netz ge
trennt werden können.
Besch äd igu n gsgef ahr!
Beachten
Sie
beim
Wasseranschluss
alle
nationalen
und
regionalen
Vorschriften
und
Bestimmungen,
in
Deutschland zum Beispiel die DIN 1$88.
-Die Schutzart IP 25 (strahlwassergeschützt) ist nur mit sachge
mäß montierter Kabeltülle gewährleistet.
-Der spezifische elektrische Widerstand des Wassers darf nicht
kleiner sein als nuf dem Typenschild nngegebeni Bei einem
Wasser-Verbundnetz
ist
der
niedrigste
elektrische
Widerstand
des
Wassers
zu
berücksichtigen
(siehe
Kapitel
«Einsatzbe
reiche'').
Den
spezifischen
elektrischen
Widerstand
oder
die
elektrische
Leitfähigkeit
des
Wassers
erfahren
Sie
bei
Ihrem
Wasserversorgungs-Unternehmen.
7.3 VUasserinsiallaiion
7.3.1
Kaltwasserleitung
Als Werkstoff sind von uns Stahl- oder Kupferrohre zugelassen
oder Kunststoff-Rohrsysteme.
7.3.2
Warmwasserleitung
Als Werkstoff sind von uns Kupfer oder Kunststoff-Rohrsysteme
zugelassen.
Beschädigungsgefahr!
^
Beim
Einsatz
von
Kun$(stoff*Rohrsy$(eme
beachten
^
Sie
die
extremste
Betriebsbedingung
und
Störfall-
i-
bedingung. die am Gerät auftreten können.
S
• I Kunststoffrohr-Hersteller.
Beachten Sie die Angaben des Kunststoffrohr*
Herstellers.
-Sicherheitsventile
in
der
Warmwasserleitung
des
Durchlauf
erhitzers sind nicht zulässig.
-Der Betrieb mit vorgewärmtem Wasser ist nicht zulässig!
-
Der Betrieb mit Armaturen, die für offene Geräte geeignetsind,
ist nicht zulässig!
7. <» Frostgefahr
Die Installation des Gerätes darf nur im frostfreien Raum
erfolgen.
»Lagern Sie ein dementiertes Gerät frestfrei, da sich Restwas-
ser im Gerät befindet, das gefrieren und Schäden verursachen
kann.
8. Gerätebeschreibung
Das Blankdraht-Heizsystem istfür kalkarme und kalkhaltige Wäs
ser geeignet. Die Beheizung ist gegen Verkalkung weitgehend
unempfindlich.
Die Auslauftemperatur können Sie stufenlos einstellen. Durch die
elektronische Steuerung erfolgteine automatische Anpassung der
elektrischen Leistung entsprechend der gewählten Temperatur in
Abhängigkeit der Durchflussmenge.
8.1 Lieferumfang
-Aufhängeleiste
-Montageschablone
- Doppel nippel
-Kreuzstück
-T-Stück
-Flachdichtungen
-Sieb
-Durchflussmengenbegrenzer
- Kunststoffformscheibe
- Kunststoff kappe
- Kunststoff-Verbindungsstücke
-Kappen- und Rückwand-Führungsstücke
8.2 Montage
Werkseitig haben wir das Gerät für folgende Bedingungen
vorbereitet:
-Elektroanschluss ..unten^ Unterputz-Installation
-Wasseranschluss Unterputz-Installation
Das Gerät muss senkrecht untertisch- oder übertisch an einer
festen Wand montiert werden.
8.8 Temperaturbogrenzung/Verbrühschutz
Die maximale Temperaturbegrenzung kann im Bedienteil derGe-
rätekappeauf43^C begrenzt werden. Dazu sind folgende Schritte
notwendig:
»Nehmen Sie die Gerätekappe ab.
www.stiebeL-eltron.com
DHB-E ... SLi electronic | 5
INSTALLATION
GERÄTEBESCHREIBUNG
» Nehmen Sie die eingesteckte Elektrcnikpl;)tine aus dem Bedien
teil der Gerätekappe. Achten Sie dabei auf die Schnapphaken.
»Versetzen Sie den Stecker von links niich rechts (Position
» Bauen Sie das Bedienteil wieder ein, die Schnapphaken müssen
einrasten. Achten Sie auf die Knopf- und Achsposition.
SM
Montage-Varianten
Nachfolgende Montage-Varianten sind möglkh/zulässig:
-ElektrOiinschluss unterputz - oben
-Elektroanschluss aufputz
-Wasser-Äufputzinsiallation
-Installiition mit gedrehter Gerötekappe
-Installiition bei Fliesenversatz
-Einbau eines Lastabwurfrelais
8.5 Sonderzubehör
8.5.1
Zweigritf-Druckarmaturen
-WKMD- Küchenarmatur, Bestellnummer 222A37
-WBMD- Badewannenarmatur. Bestellnummer 222438
8.5.2
Montage-Zubehdr
-Rohrbausalz-Untertischmoniage, Bestellnummer 070565,
Anschlüsse: Aufputz. G 3/8. oben.
-Bausatz 2 Stück Wasser-Stopfen G Vi. Bestellnummer 074326,
diese Stopfen sind nötig, wenn Sie Fremd-Druckarmaturen
einsetzen.
8.5.3
Montagesets Aufputz-Installation
-Lötverschraubung • Kupferrohr. Bestellnummer 074019, beste
hend aus: 2 Wasser-Stopfen G V
j
und 2 Überwurfmuttern Vz"
mit Einlegeteil für lötanschluss
0 12
mm.
- Pressfitting - Kupferrohr. Bestellnum mer 222380. bestehend aus:
2 Wasser-Stopfen G Vz und 2 Pressfittingen
W
x 15 mm. sowie
Dichtungen.
-PressfittTng* Kunststoffrohr, Bestei In ummer2223Bl, bestehend
aus: 2 Wasser-Stopfen G Vz und 2 Pressfittingen Vz" x 16 mm
(Viega: Sanfix-Plus, oder Sanfix-Fosta), sowie Dichtungen.
8.5.4
Universal-Montagerahmen
Bestellnummer
220291,
bestehend
aus:
Mcntagerahmen
mit
elektrischer
Verdrahtung.
Dieser
Bausatz
schafft
zwischen
der
GeräterückWiind und der Installationswand einen Hohl raum von
30
mm.
Dieser
ermöglicht
einen
Unterputz-Elektroanschluss
an
jeder beliebigen Stelle hinter dem Gerät. Die Tiefe des Gerätes
erhöht sich um 30 mm. Durch den Bausatz verändert sich die
Schutzortin IP 24 (spritzwassergeschützt).
8.5.5
Rohrbausatz-Versatzmontage
Bestellnummer
220290.
bestehend
aus:
Universal
Montagerah
men (Technische Beschreibung siehe Bestellnummer 220291) und
Rohrbögen zur senkrechten Verschiebung des Gerätes gegenüber
dem Wasseranschluss um 90 mm nach unten.
8.5.6
RohrbousatZ'Gas*'Wa$serhei
2
er*Ausfausch
Bestellnummer
2205L0,
bestehend
aus:
Universal
Montagerah
men
(Technische
Beschreibung
siehe Bestellnummer220291)
und
Rohrbögen für eine Installation bei vorhandenen Gas-Wasserhei-
zer-Anschlüssen (Kallwasseranschluss links und Warm Wasseran
schluss rechts).
8.5.7
Rohrbausafz DHB-Ausfausch
Bestellnummer
159876.
bestehend
aus:
2
Wassersleckkupplun
gen. Damit können Sie das Gerät an die vorhandenen Wasser-
Steckanschlüsse eines DHB anschließen.
8.5.8
Lostabwurfrelais LR l^A
Bestellnummer
001786.
Das
Lastabwurfrelais
ermöglicht
Ihnen
einen
Betrieb
mit
zum
Beispiel
Elektrc-Speicherheizgeräten.
Der
Durchlauferhitzer
wird
durch
das
Lastabwurfrelais
vorrangig
vor
dem anderen Gerät betrieben.
6 I DHB-E ... SLi electronic
vzww.stiebeL-eLtron.com
INSTALLATION
INSTALLATION
9. Installation
9.1 Insiallaiionshinweise
9.1.1
Fließdruck
Wird die Durchflussmenge zum Einsch;)lten des Gerätes auch bei
vdlgeöffneterArmatur
nicht
erreicht
müssen
Sieden
Durchfluss
mengenbegrenzer ausbauen. Ersetzen Sie ihn durch die mitge-
lieferte
Kunststoffformscheibe.
Gegebenenfalls
können
Sie
aber
auch den Druck in der Wasserinstallation erhöhen.
Thermostatarmaturen.
Damit
die
Thermostatarmatur
richtig
funktioniert»
dürfen
Sie
den
Durchilussmengenbegrenzer
bei
dieser Armatur nicht gegen die Kunslsioffformscheibe
austauschen!
1
Durchflussmengenbegrenzer
2
Kunststoffformscheibe
9.1.2
Flexible Wasseranscblussleitungen
Schließen
Sie
das
Gerat
mit
flexiblen
Wasseranschlussleitungen
an, müssen Sie verhindern, dass sich die ßnionett-Verbindungen
der Rohrbögen im Gerät verdrehen können.
9.1.3
Gerat mit umschaltbarer Anschlussleistung
Das Gerät DHB-E 18/21/24 SLi ist im Auslieferungszustand nuf
21 kW geschaltet. Soll das Gerät mit einer anderen Leistung ins
talliert werden, müssen Sie folgende Schritte vornehmen^
»Stecken Sie den Kodierstecker entsprechend der gewählten Leis
tung um, wählbare Leistung und Absicherung des Gerätes siehe
„Technische Daten".
» Kreuzen Sie die gewählte Leistung auf dem Typenschild an. Ver
wenden Sie dabei einen dokumentenechten Stift.
»Setzen Sie den der Geräteleistung entsprechenden Durchfluss
mengenbegrenzerein.
Die
Farbe
des
Durchflussmengenbegren-
zers ist in der Tabelle „Technische Daten“ genannt.
Kodierstecker für Leistungsumschaltung
....
........ ■■■
......
t/)
I-
3
lU
3C
LJ
10. Montage
10.1 Montageorl
Dns Gerät ist ausschließlich zur festen Wandmontage vorgesehen.
Achten Sie darauf, dass die Wand ausreichend tragfähig ist.
Montieren Sie das Gerät immer senkrecht (übertisch oder unter
tisch) und in einem froslfreien Raum.
10.1.1 Untertisch
1
Knitwasserzulauf
2
Warmwasserauslauf
10
.
1.2
Obertisch
1
Knitwasserzulauf
2
Warmwasserauslauf
www.stiebeL-eltron.com
DHB-E ... SLi eLectronic | 7
INSTALLATION
MONTAGE
10.2
Montage
10.2.1 Gerät öffnen
Zur
Einhaltung
des
Berührungsschutzes
im
Auslieferungszustand
ist bei einigen Varianten im Bedienteil ein Pappstreifen eingelegt.
Entfernen Sie diesen Streifen vor der Gerätemontage.
10.2.2
Rückwand trennen
»Drücken Sie die beiden Rasthaken rechts und links und ziehen
Sie das Unterteil nach vorne ab.
10.2.3
Aufhängeleiste montieren
»Zeichnen
Sie
die
Bchrlöcher
mit
Hilfe
der
Montageschablone
an. Wenn das Gerät mit aufputz liegenden Wasseranschlüssen
montiert wird, müssen Sie zusätzlich das Befesligungsloch im
unteren Teil der Schablone mit anzeichnen.
» Bohren Sie die Löcher und befestigen Sie die Aufhangeleiste mit
2 Schrauben und 2 Dübeln. Die Schrauben und Dübel gehören
nicht zum üeferumfnng.
io.2.t> Elektroanschlusskabel herrichten
»Bereiten Sie das Elektroanschlusskabel vor.
»Verwenden Sie die Kunststoff kappe als Montagehilfe.
10.2.S
Doppelnippel einschrauben
10.2.6
Wasseranschluss vorbereiten
»Schrauben Sie dns T-Stück und dns Kreuzstück mit jeweils einer
Flachüichtung auf die Doppel nippel.
»Spülen Sie die Kaltwasserzuleitung gründlich durch.
8 IDHB-E ... SLi electronic
vrww.stiebeL-eltron.com
INSTALLATION
MONTAGE
• I 3-Wege-Absperrung.
ll
Die
3-Wege-Absperrung
dürfen
Sie
nkht
?um
Drosseln des Durchflusses verwenden! Sie dient nur
zur Absperrung.
Wasseranschluss
1
T-Stück
2
Kreuzstück
10.2.7 Einbau Sieb
»Montieren Sie das mitgelieferte Sieb in den Kallwassereinlauf
des Gerätes.
Sieb.
DamK die Funktion des Gerätes gewährleistet ist. muss
das Sieb immer eingebaut sein. Wird eine Installation
mit
Geräteaustausch
vorgenommen.
müssen
Sie
auf
das Vorhandensein des Siebes achten.
Einbau Sieb
Einbau Durchflussmengenbegrenzer
t/)
I-
3
llJ
X
LJ
10.2.9 Gerät aufhängen
Die nach hinten zur Wand hin weisende Kabeltülle kann unter
Umständen
verhindern,
dass
das
Cer^t
problemlos
wandbündig
aufgehängt werden kann. Um das zu verhindern, ist es sinnvoll
die Kabeltülle kurz von hinten in die Rückwand hineinzudrücken,
um die SteifigkeitderTülle zu verringern.
»Nehmen Sie den Befestigungsknebel aus dem oberen Teil der
Rückwand heraus (Bild „Gerät aufhängen*').
»Führen
Sie
das
Elektroanschlusskabel
von
hinten
durch
die
Kabeltülle, bis diese am Kabelmantel anliegt. Richten Sie das
Elektroanschlusskabel
aus.
Hat
das
Elektroanschlusskabel
einen größeren Querschnittals 6mm2. vergrößern Sie das Loch
in
der
Kabeltülle
(siehe
auch
„Elektroanschluss
bei
großen
Duerschnitten'').
»Drücken Sie das Gerät über den Gewindebolzen der Aufhänge*
leiste, so dass die Weichdichtung durchstoßen wird, gegebenen
falls die Weichdichtung mit Schraubendreher anstechen.
»Stecken Sieden Befestigungsknebel auf den Gewindebolzen der
Aufhangeleiste. der durch die Rückwand taucht.
»Drücken Sie die Rückwand fest an und verriegeln Sieden Befes
tigungsknebel durch eine Rechtsdrehung um 90^
10.2.S Einbau Durchflus&mengenbegrenzer DMB
»Selzen Sie <jen mitgelieferten Durchflussmengenbegrenzer in
den Kaltwassereinlauf des Gerätes.
Beim
DHB-E
l&/2l/2i»
SU
wird
ein
zweiter
Durchflussmengen-
begrenzer mitgeliefert. Setzen Sie den der Geräteleistung ent
sprechenden
Durchflussmengenbegrenzer
ein.
Die
Farbe
des
Durchflussmengenbegrenzers
istin
derTabelle
„Technische
Daten*'
genannt.
www.stiebeL-eltron.com
DHB-E ... SLi eLectronic | 9
INSTALLATION
MONTAGE
Gerät aufhängen
10.2.10Wasseran$chlussiertig$tellen
10.2.11 E(ektroan$chluss her$tellen
» Schließen Sie das Elektroanschlufskabel an die Netzanfchluss-
klemme an. siehe Kapitel "Elektroschaltplan".
Schutzleiteranschiuss.
Achten Sie darauf, dass das Gerät an den Schlitzleiter
angeschiossen ist!
10.2.12Riickwanduriterteil montieren
10.2.13 Montagevorgang abschließen
»Richten Sie das montierte Gerät aus, indem Sie den Befesti
gungsknebel
lösen,
den
Elektroanschluss
und
die
Rückwand
ausrichten
und
den
ßefestigungsknebei
wieder
festdrehen.
Liegt
die
Geräterückwand
nicht
wandbündig
an,
können
Sie
das Gerät im unteren Bereich mit einer zusätzlichen Schraube
befestigen.
10 1DHB-E ... SLi electronic
v/ww.stiebe L-eltron.com
INSTALLATION
MONTAGE
lO.S Montage'Vananten
10.3.1
Elektroanschlusj unterputz oben
A
u
5 folgendem Bild können Sie die Maßefür den Elektroanschluss
oben entnehmen.
möglichen Ausbruchstellen erkennen Sie in Bild „Maße für
Elektraanschluss*.
Um den Elektroanschluss hersteilen zu können, müssen Sie fol
gende Schritte vornehmen^
»Schneiden Sie die Kabeltülle entsprechend dem Querschnitt des
Elektroanschlusskabels auf.
»Drücken Sie den Rasthaken zur Befestigung derNetzanschluss-
klemme herunter und ziehen Sie diese heraus.
»Versetzen Sie die Netzanschlussklemme im Gerät von unten nach
oben und rasten Sie diese ein.
10.3.2
Eiektroanschfuss aufputz
Sie können das Gerätauch anschließen, wenn üerElektroanschluss
aufputz verlegt wurde. Das gilt fürden Anschluss oben und unten.
Dafür müssen Sie folgende Schritte vornehmen:
»Schneiden beziehungsweise brechen Sie die Durchführun
gen in der Rückwand und in der Gerätekappe heraus. Die
Schutzartänderung.
üj
Wenn Sie das Gerät mit einem aufputz liegenden ^
Elektroanschluss angeschlossen haben, müssen Sie
die Schutzart von IP2S in IP2A auf dem Typenschild
ändern. Verwenden Sie dafür einen dokumenten*
echten Stift.
»Streichen Sie die Angabe ..IP
75“
durch und kreuzen Sie das
Kästchen ,.IP 24" an.
10.3.3
Elektroanschluss bei großen Querschnitten
Demontage und Montage Kabeltülle
Bei Verwendung von großen Leitungsquerschnitten kann die Ka
beltülle nach der Montage des Gerätes montiert werden. Dafür
müssen Sie folgende Schritte vornehmen:
» Drücken Sie die Kabeltülle mit Hilfe eines Schraubendrehers vor
der Montage des Gerätes heraus.
»Drücken Sie das Gerät über den Gewindebolzen derAufhänge*
leiste, so dass die Weichdichtung durchstoßen wird.
» Stecken Sie den Befestigungsknebel auf den Gewindebolzen der
Aufhängeleiste, der durch die Rückwand taucht.
»Drücken Sie die Rückwand fest an und verriegeln Sieden Befes
tigungsknebel durch eine Rechtsdrehung um 90^
»Schieben
Sie
die
Kabeltülle
über
das
Elektroanschlusskabel.
Verwenden Sie hierfür die Montagehilfe. Bei einem Elektroan
schlusskabel von 10 beziehungsweise 16 mm^ müssen Sie das
Loch in der Kabeltülle vergrößern. Rasten Sie die Kabeltülle in
die Rückwand ein.
10.3.4
Anschluss eines Lastabwurfrelais
Setzen Sie das Lastabwurfrelais in Kombination mit anderen
Elektrogeräten, zum Beispiel Elektro-Speicherheizgeräten, ein.
www.stiebeL-eltron.com
DHB-E ... SLi electronic 111
INSTALLATION
MONTAGE
Der L<)stabwurf erfolgt bei Betrieb des Durchlauferhitzers. Das
Lastabwurfrelais erhalten Sie von uns als Senderzubehör.
Phasenanschluss.
|L|
Schließen
Sie
die
Phase,
die
das
Lastabwurfrelais
schaltet, an die gekennzeichnete Klemme der Netz-
anschlusskiemme im Oerät an.
Varrangschaltung mit LR 1-A
L
ii-i
2 —•
XJ--
5
[ ] [ ;
1
Steuerleitung zum Schaltschütz des 2. Gerätes (zum Bei
spiel Elektro-Speicherheizung).
2
Steuerkontakt, öffnet beim Einschalten des
Durchlauferhitzers.
10.3.5
Wasserinstallation aufputz
Geeignete Aufputz-Druckarmaturen WKMD oderWBMD können
Sie als Sonclerzubehör bestellen.
»Montieren Sie die Wasserstopfen mit Dichtungen, um den Un-
terputznnschluss
zu
verschließen.
Bei
unseren
Druckarmntu-
ren gehören die Stopfen und Dichtungen zum Lieferumfang. Für
Fremd-Druckarmaturen können Sie Stopfen und Dichtungen als
weiteres Sonderzubehör bestellen.
»Montieren Sie die Armatur.
»Schieben
Sie
das
Rückwandunterteil
unter
die
Anschlussrohre
der Armatur und rasten es in die Rückwand ein.
»Verschrauben Sie die Anschlussrohre mit dem Gerät.
Beim
Sonüerzubehör
,.Lötanschluss*'
ist
ein
Schraubanschluss
mit bauseitigen 12 mm Kupferrohrleitungen möglich. Dazu sind
folgende Schritte nötig:
»Schieben Sie die Überwurfmuttern über die Anschi ussrehre.
»Verlöten Sie die Einlegeteile mit den Kupferleitungen.
»Schieben
Sie
das
Rückwandunterteil
unter
die
Anschlussrohre
und rasten es in der Rückwand ein.
»Verschrauben Sie die Anschlussrohre mit dem Gerät.
# I Montagehinweis der Armatur.
1-1 Beachten Sie die Montagehinweise des
Ar m atu re n he rstel I e rsJ
10.3.7
Wasserinstallation aufputz. Montage der Geratekappe
Für die abschließende Montage der Gerätekappe sind folgende
Schritte nötig:
»Brechen
Sie
die
Durchführungsöffnungen
in
der
Gerätekappe
sauber aus. Benutzen Sie gegebenenfalls eine Feile.
»Brechen
Sie
die
Lippen
aus
den
Kappen-Führungsstücke
heraus.
Montagehinweis
bei
leichtem
Versatz
der
Armaturenrohre.
Mit dem Einbau der Kappen-Führungsstücke mit Lip
pen können Sie bei leichtem Versatz der Armaturen
rohre das Gerat abdichten. Die Ruckwand-Führungs
stücke werden in diesem Fall nicht benötigt.
»Rasten
Sie
die
beiliegenden
Kappen-Führungsstücke
in
die
Durchführungsöffnungen ein.
»Setzen
Sie
die Rückwand-Führungsstücke
auf
die
Rohre und
schieben Sie sie zusammen. Anschließend schieben Sie die Füh
rungsstücke bis zum Anschlag an die Rückwand.
»Befestigen Sie die Rückwand unten miteinerSchraube. Dies gilt
auch, wenn Sie flexible Wnsserleitungssysteme verwenden.
10.3.6
Wasserinstallation
aufputz
mit
Lötanschluss/Pressfitting
Mit dem Sonderzubehör ..Lötanschluss" oder ..Pressfitting" siehe
„Sonderzubehör"
lassen
sich
bei
Aufputz-Montage
Kupferrohrlei
tungen oderauch Kunststaffrohrleitungen verbinden.
12 I DHB-E ... SLi electronic
vrww.stiebeL-eLtron.com
INSTALLATION
MONTAGE
Montagehinweise für AP-Armaturen
müssen Sie dann um gedreht an die Wand montieren. Der
Schriftzug „DHF“ erscheint dann in Leserichtung.
5
1
Durchführungsöffnung
2
Kn ppen-Füh rungsstücke
3
Rückwand'Führungsstücke
4
Schraube
10.3.8
Geteiltes Ruckwartdunterteil
Bei Aufputz- Schraubanschlüssen kann das Rückwandunterteil
auch nach der Armaturenmontage montiert werden;
»Sägen Sie dnzu das Mittelteil nus dem Rückwandunterteil
heraus.
»Stecken Sie die Verbindungsstücke aus dem Beipack von hinten
in dns Mittelteil ein.
» Führen Sie das Mittelteil unter die Rohre und schieben es nach
oben.
» Stecken Sie das Rückwandunterteil an das Mittelteil.
» Rasten Sie das Rückwandunterteil in die Rückwand ein. Das Un
terteil müssen Sie mit einer zusätzlichen Schraube befestigen.
»Verschrauben Sie die Anschlussrohre der Armatur mit ciem
Gerät.
10.3.0
Installation bei Gerateaustauscli
Eine
vorhandene
Aufhängeleiste
kann
bei
Austausch
unserer
Geräte verwendet werden (außer ..DHF"). Dazu müssen Sie die
passende Durchführungfür den Gewindebolzen der bereits mon
tierten Aufhnngeleiste in der Rückwand durchstoßen.
Montieren Sie das Gerät an Stelle eines DHF, müssen Sie den
Gewindebolzen an der Aufhängeleiste versetzen, wie im Bild .Auf
hängeleiste bei Geräteaustausch DHF" beschrieben. Der Gewin
debolzen hat ein selbstfurchendes Gewinde. Die Aufhängeleiste
Beim Austausch eines Fremdgerätes können Sie passende Dübel- ^
löcher verwenden.
S
lO.s.ioUntertisch-Montage mit gedrehter Geratekappe
Sie können die Gerätekappe um 180^ gedreht auf die Rückwand
aufsetzen. Dies istvor allem vorteilhaft, wenn das Gerät untertisch
montiert wird. Dazu müssen Sie folgende Schritte vornehmen;
»Nehmen Sie das Bedienteil aus der Gernteknppe. drücken Sie
dazu die Raslhaken.
»Drehen Sie Gerätekappe und rasten Sie das Bedienteil wieder
ein.
dabei
müssen
alle
Rasthaken
einrasten.
Zur
leichteren
Montage des Bedienteiles drücken Siegegen die Innenseite der
Gerätekappe (im schraffierten Bereich, siehe Bild .Gerätekappe
bei Untefiisch-Montage").
^ Bedienteil mit defekten Rasthaken.
Ein Bedienteil mit defekten Rasfhaken darf nicht
eingebaut werden. Oie Sicherheit ist dadurch nicht
gewährleistet.
»Stecken Sie das Sollwertgeberkabel auf die Elektronik .J-soll''.
siehe „Erstinbetriebnahme“.
»Hängen Siedle Gerätekappe unten ein und schwenken Sie diese
oben auf die Rückwand, achten Sie dabei auf den richtigen Sitz
der
umlaufenden
Rückwanddichtung.
Dazu
schieben
Sie
die
Kappe bei der Montage etwas vor und zurück.
»Verschließen
Sie
das
Gerät
mit
der
Schraube
in
der
Gerätekappe.
www.stiebeL-eltron.com
DHB-E ... SLi electronic I 13
INSTALLATION
ERSTINBETRIEBNAHME
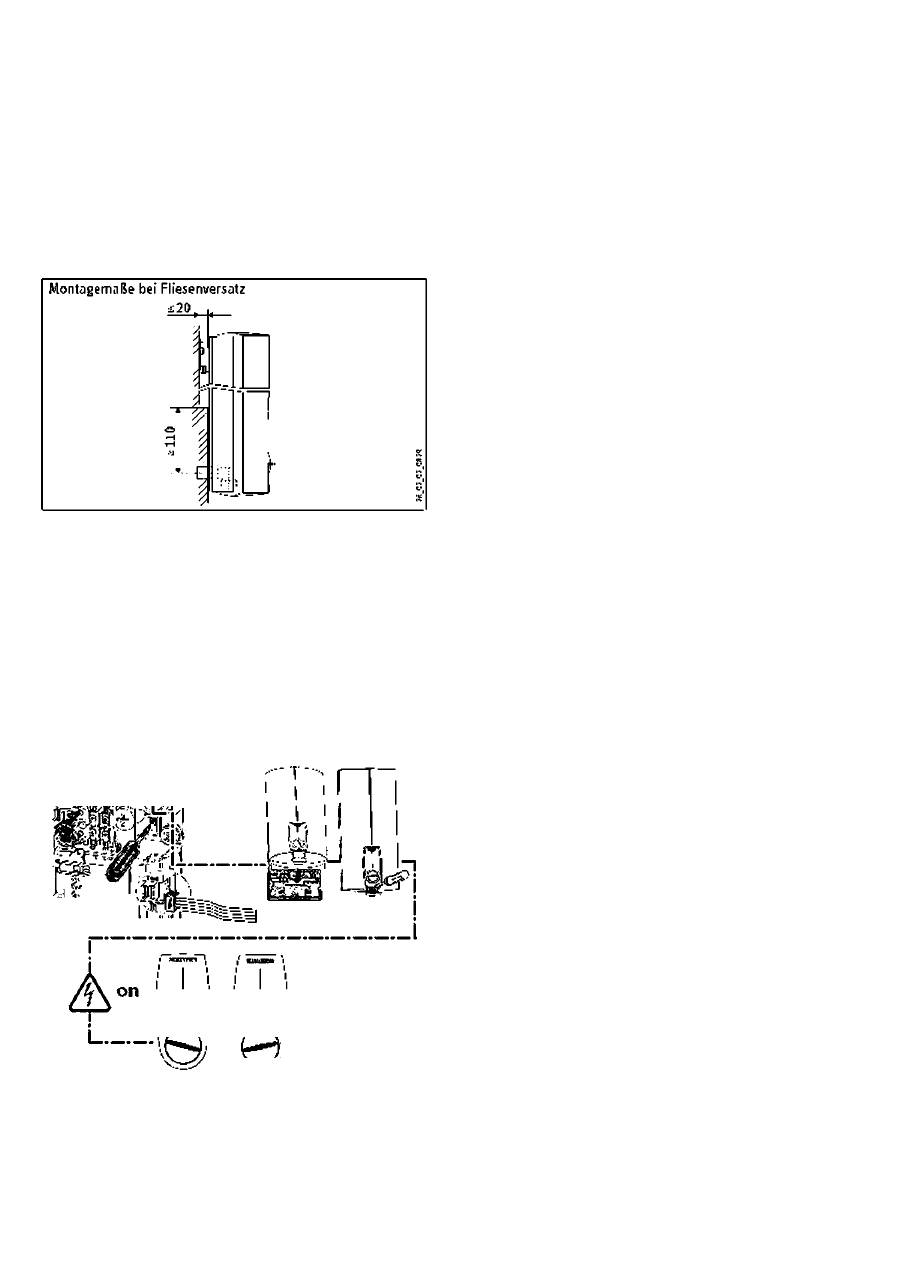
10.3.11 InstallaUon bei Fliesenversatz
Sie können das Gerüt bei einem Fliesenversatz montieren. Den
maximalen
Fliesenversatz
und
Mindestauflage
des
Gerätes ent
nehmen Sie dem Bild. Justieren Sie den Wnndabstand und ver
riegeln Sie die Rückwand mitdem Befestigungsknebel durch eine
Rechtsdrehung um 90®.
11. Erstinbetriebnahme
A
Lebensgefahr durch Stromschlag!
Oie Erstinbetriebnahme darf nur durch einen Fach-
handbverker unter der Beachtung der Sicherheitsvor
schriften erfolgen)
Erstinbetriebnahme
■Z)
on
№
I " -=ÌI.7É^..
toi
» Stecken Sie den Stecker des Temperatureinstellers auf die Elek
tronik ,.T*5oir'. Achten Sie darauf, dass die Dichtungstasche am
Rückwand u nterteil n icht geknickt wird und bei der Montage der
Gerätekappe den unteren Teil des Bedienteiles nbdichtet.
»Montieren Sie die Gerätekappe und befestigen Sie sie mit der
Schraube.
»Schalten Sie die Netzspannung ein.
»Kalibrieren Sie die Temperatur. Dazu drehen Sie den Tempera
tur-Einstellknopf zum Rechts- und Linksanschlag.
» Prüfen Sie die Arbeitsweise des Gerätes.
»Ziehen Sie die Schutzfolie von der Bedienblende ab.
12. Übergabe des Gerätes
» Erklären Sie dem Benutzerdie Funktion des Gerätes und machen
Sie ihn mitdem Gebrauch des Gerätes vertraut.
»Weisen Sie den Benutzer auf mögliche Gefahren hin. speziell
die Verbrühungsgefnhr.
» Übergeben Sie diese Anweisu ng zur sorgfältigen Aufbewahrung
durch den Benutzer.
»Offnen und schließen Sie mehrfach alle nngeschlossenen Zapf
ventile. Dies machen Sie sc lange, bis das Leitungsnetz und das
Gerät luftfrei sind.
»Aktivieren Sie den Sicherheits-Druckbegrenzer. Drücken Sie
dazu die Rücksetztaste ein. Das Gerät wird mit deaktiviertem
Sicherheits-Druckbegrenzer ausgeliefert.
1A IDHB-E ... SLi eLectronic
v/ww.stiebeL-eLtron.com
INSTALLATION
STöRUNeSBESEITieUNG
13. Störungsbeseitig»ng
A
Lebenssefahr durch Stromschlas^
Um da$ Gerat prüfen zu können, muss die Spannung
am Gerät anliegen.
13.1 Anzeigemöglkhkeiten LED'Dlagnoseampel
A П
2
« ig e m ö g Li c hkeiten
Г
rot
leuchtet bei Störung
О
о
gelb
grün
leuchtet bei Heilbet rieb
blinkt: Gerät am Neu
13.2 Sförungstabelle
Störung
/
Anzeige LEP'Piagnoseampel
Das Gerät schaltet nicht ein.
Ursache
Der Duschkopf die Perlatoren sind verkalkt.
Behebung
Entkalken gegebenenfalls erneuern Sie den Dusch*
köpf / die Perlutoreri.
□er Durchfluss ist /u «erino.
Das Sieh im Gerät ist ver&chmuUt.
Reinigen Sie das Sieb.
Die Solltemperatur v/ir:! nicht erreicht.
Eine Phase fehlt.
überprüfen Sie die Sicherung in der
He usi risia Helion.
Di« Heirung schsitel nicht <-b.
Die Lufterkennung sensiert Luft im Wasser und schaltet
die Heizleistung kurzzeitig ab.
Das Eerätgeht nach einer ZAinute wieder in Betrieb.
О
о
о
Kein Wcinnes Wusser und kein« Ampeljn-
?eige.
Die Sicherung hui <iusgelöst.
Überprüfen Sie die Sicherung in der
Hausinstallation.
Der SicherheitS'Druckbegrenzer AP 3 hat ausgeschaltet.
Beseitigen Sie :!ie Fehlerursache (zum Beispiel ein
defekter Druckspuler).
Schützen Sie das Hei/systemvor Überhitzung, in
dem Sie ein dem Gerät na ch ge sc ha Itetes Za ptventil
eine Minute äffneri. Uudurch wird dus Heùsyslem
druckentiastet und ahoekühlt.
Aktivieren Sie den Sicherheits-Druckbegren*
zer. in dem Sie den Knopf cm Sicherheils*
Dnickbegrenzer ein drücken siehe auch Kapitel
..Erstinbetriebnahme".
Die Elektronik ist deiekl.
Überprüfen Sie die Eleklronik, gegebenen felis
tauschen.
Kein warmes Wasser bei Durchfluss
> 3 l/min.
Die Elektronik ist defekt.
überprüfen Sie die Elektronik, gegebenenfalls
Idv sehen.
о
Ampelanreige:
grün blinkt o:!er Dauerlicht
Die Diirchfhisserkennung DF Eist nicht aufgesteckt.
Stecken Sie den Stecker der Durchflusserkennung
v/ieder aut.
Die Uurchilusserkemiung DFE ist defekt.
Kontrollieren Sie di« Durch fl usserkerinurig. gegebe
nenfalls tauschen.
т
о
Kein warmes Wasser bei Durchfluss
> 3 l/min.
Ampel an reige:
gelb Dauerlicht, grün blinkt
Der Sicherheitstemperatur-Begrenzer STD hat ausgelöst Kontrollieren Sie den Sicherheitstemperatur*Be*
oö e r i s l u n lerb roef le ri. g re luer. ge ge be ne n fj 1 Is Ic u sc Ile ri.
Das Heizsystem ist rfefekt. iitessen Sie den Widerstand vom Hei/systeni. gege*
benenUlls tauschen.
Die Elektronik ist defekt.
Überprüfen Sie die Eleklronik, gegebeiieiifjlls
tauschen.
#
о
Kein warmes Wasser
Ampelunceige:
rot Oauerlicht. grün blinkt
Die Kaltwasserzulauftemperaturist höher als 35 ^'C.
Der KalMasser-Sensorist dehikt.
Verringern Sie die Kzitwasserzulauftemperaturzum
Gerät.
Überprüfen Sie die Elektronik, gegebenenfalls
tauschen.
X
LJ
t/i
I-
Э
Ш
www.stiebeL-eltron.com
DHB-E ... SLi electronic 115
INSTALLATION
TECHNISCHE DATEN
lA. Technische Daten
Maßzeichnung
1
Warmwasser-Schraubanschluis
2
Kaltwasser-Schraubnnschluss (3-Wege-Absperrung)
3
Elektrische Zuleitung unten
14.2 Elekiroschaltplan
Elektroschaltpinn
ÜIL
A
r:
I fv I /I r? *
2
>........ -?......... -V-..........-ZLfpTl
T ”
t
CI.
l
u
3
J
3/PE-400V
1» Beheizung
2 = Sicherheiistemperatur-Begfenzef
3 = Sicherheits-Druckbegrenzer
14.2.1 Mischwassermenge
Aus nachfolgender Tabelle können Sie die Misch wassermenge
entnehmen. Die Formelzeichen haben folgende Bedeutung:
d’. = Kaltwasser-Zulauftemperatur
= Misch
Wassertemperatur
t
J, = Auslauftemperatur.
Nutztemperaturen:
-in der Dusche, für Handwäsche, Wannenfüllung... (- 3S ‘'C).
-für die Küchenspüle und bei EinsatzvonThermostnt-Armaturen
(- eo •’C).
<}.^ (Mischwassertemperatiir)
kW 11 13.5 la
Ct, Prnin
21
26
27
5,0
6.1
8.0
9.i»
10,7
12.1
10 "C 5.7
G.9
9.2
10.7
12.3
13.8
U"C G.G
a.i
10.7
12 .S
16.5
1G.1
d, = 60 "C (AuslauftemperatuO
kW
d.
11
lonin
13.5
18
21
24
37
6“C
2.9
3.6
6.<l
5.6
6.6
7.2
10 "C
3.2
3.9
5.2
6.0
6.9
7.7
16 *C
6.3
6,5
7.5
8.4
Die Tabellenwerte sind auf eine Nennspannung von 400 V bezo
gen. Die Auslaufmenge ist abhängig vom vorhandenen Versor-
gungsdruck und der tatsächlich anliegenden Spannung.
14.3
Landesspezifische Zulassungen
und
Zeugnisse
14.3.1 Deutschland:
.il|a:Ja«dkl;(«J
Für
die
Durchlauferhitzer
Typenreihe
DHB-E
...SLi/SL
electronic
ist
aufgrund
der
Landesbauordnungen
ein
allgemeines
bauauf-
sichtliches
Prüfzeugnis
zum
Nachweis
der
Verwendbarkeit
hin
sichtlich des Geräuschverhaltens beantragt.
14.4 Einsaizbereich
Elnsdtzbereiche
Angabe als
Spe7ifischer elektrischer Wirierstanri und spe-
¿Uuihi: dcklribihc Lcilinhi^kdl
Normangabe
bei IS
bei 20
bei 25 ‘‘C
Widcrsiand
Oim
> 900
i
800
5 735
Ldli^iigkdl
mS/m
< 111
< 125
< 12G
Leitfähigkeit
M>/cm
ä 1110
ä 1250
s 1360
16 I DHB-E ... SU electronic
v/ww.stiebeL-eltron.com
INSTALLATION
TECHNISCHE DATEN
14.S Extreme Betriebsbedingungen und
Stbrfallbedingungen
Es
können
Betriebstemperaturen
bis
maximal
60
erreicht
wer
den. Im Störfall können in der Installation kurzfristig Belastungen
von maximal 95 * *C bei einem Druck von
1,2
MPa auftreten.
X
LJ
t/i
I-
3
lU
â
lb.6 Technische Daten
liodeLl
Elektronisch gesteuerter Oorchlauterhitzer
Typ
0HB-E11 SLi
dee Ironic
0HB-E13 5L
electron il
OHB-E 18 SLi 2S A
dcclronic
OHB-E 18.'21.'26SLi
dcclronic
OHB-E 27 SU'
dcclronic
ßestellnummer
227689
2276<ll
227686
227607
227688
Betriebsdaten
Nennleistung
600 V
kW
11
13,5
18
18
21
26
27
3 a o v
kW
10.1
li.2
16.2
16.i
19
21.7
24.6
Nenn Strom
600 V
A
16
19.5
26
29
31
35
39
380 V
A
15.6
18.5
26.7
27,6
2S.S
33.3
37.1
Abbich L'runi!
A
16
20
26
32
32
35
60
Umschaltbare Leistung
nein
nein
nein
ja
la
Î8
nein
Elcklroiinsihlubä
37PE-380- 400V-
37PE-380-600V-
3/PE-380-600V-
37PE - 380 - 600 '7 - 50
37PE-33fl-6flflV-
90 Hz
50 Hz
50 Hz
50 Hz
N»nninhalt
Oäudrl
OA
NennCib«rdruck
MPa 1
TemperAtur-Elnstellbereich
** BO ■ 60
DfUtkwrIusr mil
MPay|/mîn 0.07/3.1
Dti rc hfl ij s&m &n g &n h egren r_________ __________
DfUtkviTljsr ohne
.VIPa
i
l/mîn 0.D2 /3.1
Du rc hfl u ssm en g en b egren ze r__________________
0.117 3.9
0.08 / 5.2
0.087 5.2 0.10 7 6.0
0.13 7 6.9
0.167 7.7
0.03 7 3.9
0.06 / 5.2
0.067 5.2 0.087 6.0
0.107 6.9
0.1Î7 7.7
Oll rc hfl ijs&m »n ge n ■
Dcfefcn^cf______
Färbe
6,0
road
KaUwe$seiZjlaufiempereur_____________ ^ s 25
Prüf7eichen
Z u laasu n<ic n7Zc uan iasc__________
Schul! kl asse nach EN 60335_________
Sch ut? art nach EN 60S29
Dl
a
nlid ra h i- H
ic ni______________
Ems&izgefciei______________________
6.0
rosil
7.S
bIdU
7.5
bliiu
7.5
bläu
8.S
flrün
8.S
flrün
siehe Typenschild
siehe Kapild ..It.ndi*sbt>c2ifiachc Zulaasun<icn7Zcuaniasc*
IP 25. strxhlwxssergeschntxt {IP 26 nei Eleklro/inschluss nufput?)
900 ûcm biche Kapild ..Eins nube re ich“)_______________________
kalkarme und kalkheliìge Wässer
Durch il Uäsm enge ,cin‘‘
urtd Gewichte
Abmessungen H x D xT
17
Iti
in > 3.0
mm 678x 225 x 116
Gewicht
W^b^cranschlUM
kg -3.6
__ 6 V/ A lAußcnfecwindci
* Werte für AOO V. Die Werte für Druckverlust gelten auch für
Mindestfließtiruck
nach
DIN
66651
/
Durchflussmenge
bei
Er
wärmung 10 auf 60
(¿d so K). In Anlehnung an DIN 1983
Teil 3. Tabelle 6 wird für Rohrnetz-Dimensionierungen ein Druck
verlust von 0,1 MPa empfohlen.
www.stiebeL-eltron.com
DHB-E ... SLi electronic 117

