Stiebel Eltron SBP E с 12.04.2008: installation
installation: Stiebel Eltron SBP E с 12.04.2008
26
| sBp 1000-1500 e | e sol | e cool
www.stiebel-eltron.com
installation
sécurité
installation
6. sécurité
Le montage, la mise en service, la maintenance et les réparations
de cet équipement ne doivent être effectuées que par un instal-
lateur qualifié.
6.1 consignes de sécurité générales
Nous ne garantissons un bon fonctionnement et en toute sécurité
de l’appareil que si les accessoires d’origine qui lui sont destinés
sont employés.
6.2 Prescriptions, normes et directives
Remarque.
Tenez compte de la législation et des prescriptions na-
tionales et locales.
7. description de l‘appareil.
7.1 Fournitures
Sont fournis avec l‘appareil :
- Bride borgne
- Plaque signalétique supplémentaire
7.2 accessoires
7.2.1 accessoires nécessaires
Des groupes de sécurité et des réducteurs de pression peuvent
être fournis si la pression au repos le nécessite. Ces groupes de
sécurité homologués protègent l‘appareil des excès de pression
non autorisés.
7.2.2 autres accessoires
Les accessoires disponibles comprennent des échangeur de cha-
leur, des corps de chauffe électriques à visser, des résistances
électriques à bride et une isolation thermique.
Il faudra installer une anode articulée si le montage d‘une anode
en forme de tige est impossible par le haut.
8. travaux préparatoires
8.1 lieu d‘implantation
f
f
Montez toujours l‘appareil dans un local à l‘abri du gel à
proximité du point de soutirage.
f
f
Veiller à ce que le sol présente une charge maximale admis-
sible et une planéité suffisantes (voir le chapitre « Données
techniques / Tableau de données «).
f
f
Tenez compte de la hauteur de la pièce et de la hauteur de
basculement (voir le chapitre Données techniques / Tableau
de données).
8.2 transport
Pour le transport, utiliser les œillets de transport sur le haut de
l’appareil.
9. montage
9.1 le cas échéant, installer l‘isolation thermique
f
f
Placez l’appareil sur son emplacement définitif.
f
f
Poser l’isolation thermique comme décrit dans l’annexe.
en prévoyant un dégagement suffisant pour le montage.
Vous pouvez ensuite raccorder l’appareil à l’installation de
chauffage.
26
�0
3�
01
�0
95
5
1
2
3
11
4
5
12
6
7
8
9
10
14
13
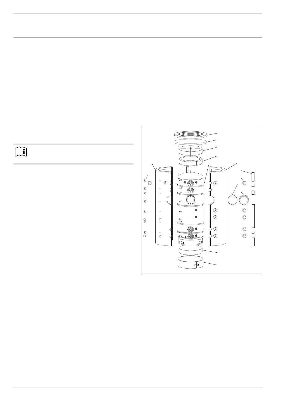
1 Couvercle
2 Segment isolant supérieur
3 Segment isolant supérieur
4 Isolation thermique supérieure
5 Frein à convection
6 Segment isolant droit
7 Barrette couvre-joint
8 Capuchon (isolation comprise)
9 Isolation de la bride
10 Protection de la bride
11 Segment isolant inférieur
12 Bague d‘isolation thermique inférieure
13 Rosace
14 Segment isolant gauche
www.stiebel-eltron.com
sBp 1000-1500 e | e sol | e cool |
27
FR
A
N
çA
IS
installation
Montage
f
f
Pour les ballons transportés à l‘horizontale, placez avant la
mise en place le segment isolant dans le bas, sous l‘anneau
support. Inclinez les ballons transportés à la verticale pour
positionner le segment isolant en-dessous.
f
f
Enveloppez l’anneau support avec la bague d’isolation ther-
mique inférieure et fixez-la à l’aide de ruban adhésif.
f
f
Retirez le film des 5 bandes de mousse (freins à convec-
tion) et collez-les en position représentée tout autour de
l‘accumulateur.
f
f
Avant montage, mettez les segments isolants droite et
gauche en forme de demi-cercle pendant env. 10 secondes.
Une colle réagissant à la pression maintient alors les seg-
ments isolants dans la forme nécessaire, ce qui facilite le
montage.
Veillez à ne pas endommager l‘isolation thermique avec des
sangles de serrage.
f
f
Insérez les segments isolants sur les raccords de l‘appareil.
f
f
Reliez les segments isolants sur le devant en accrochant la
barrette de fermeture à la dernière barrette à crochets. Si
nécessaire, utilisez les barrettes couvre-joints courtes de
couleur noire pour maintenir la barrette de fermeture un
bref instant.
f
f
Posez les segments isolants autour du ballon et reliez ces
segments à l‘arrière en accrochant barrette de fermeture à la
première ou à la seconde barrette à crochets.
f
f
Ajustez les segments isolants à l‘appareil en tapotant et en
appuyant avec le plat de la main.
f
f
Tendez la barrette de fermeture en commençant par le
haut jusqu‘à ce qu‘elle s‘accroche à la dernière barrette à
crochets.
f
f
Placez l‘anneau d‘isolation thermique et les deux segments
d‘isolation thermique en haut.
f
f
Posez le couvercle sur les segments isolants.
f
f
Installez les barrettes couvre-joints sur les barrettes de fer-
meture. Les couvre-joints peuvent être coupés à la longueur
nécessaire.
f
f
Remplissez les vides au niveau des raccords avec des mor-
ceaux de mousse souple.
f
f
Insérez les rosaces et les capots dans les ouvertures.
Remarque.
Collez la plaque signalétique supplémentaire à un endroit
bien visible sur l‘isolation thermique.
9.2 montage des purgeurs manuels
26
�0
3�
01
�0
97
3
f
f
Montez un purgeur manuel au raccord prévu pour la purge
d‘air.
9.3 montage de la sonde thermométrique
f
f
Remplissez le tube de protection de pâte thermique.
f
f
Placez la sonde dans le tube de protection jusqu’en butée.
Avant de placer la sonde d’applique AVF 6 dans le tube de protec-
tion, il faut recourber vers l’avant le crampon de serrage.
9.4 le cas échéant, monter la résistance électrique
à bride ou le corps de chauffe à visser
f
f
Démontez la bride borgne ou le bouchon pour installer
l’échangeur de chaleur, la résistance électrique à bride ou le
corps de chauffe à visser. Respectez la séparation galvanique
avec le ballon.
28
| sBp 1000-1500 e | e sol | e cool
www.stiebel-eltron.com
installation
Mise en service
10. mise en service
10.1 Première mise en service
!
Dommage matériel
Un groupe de sécurité est indispensable.
f
f
Ouvrez un point de soutirage jusqu’à ce que l’appareil soit
rempli et qu’il n’y ait plus d’air dans les conduites.
f
f
Réglez le débit. Tenez compte du débit maximal lorsque
la robinetterie est ouverte au maximum (voir le chapitre
« Données techniques / Tableau de données «). Réduisez, si
nécessaire, le débit au niveau du limiteur de débit du groupe
de sécurité.
f
f
Effectuez un contrôle d‘étanchéité.
f
f
Procédez à la purge de l’échangeur de chaleur.
f
f
Le cas échéant, mettez sous tension secteur.
f
f
Vérifiez le bon fonctionnement du groupe de sécurité.
f
f
Contrôlez le fonctionnement des accessoires installés.
f
f
Le cas échéant, contrôlez le bon fonctionnement de l‘installa-
tion solaire.
f
f
Le cas échéant, vérifiez que l’affichage de la température de
l’eau chaude sanitaire sur l’appareil de régulation du géné-
rateur de chaleur est correct.
10.1.1 remise de l‘appareil
f
f
Expliquez les différentes fonctions à l‘utilisateur, puis fami-
liarisez-le avec l‘emploi de l‘appareil.
f
f
Indiquez à l‘utilisateur les risques encourus, notamment les
risques de brûlure.
f
f
Remettez-lui cette notice.
10.2 remise en service
Voir le chapitre « Première mise en service «.
11. mise hors service
f
f
Séparez éventuellement du secteur les accessoires intégrés
en déclenchant le disjoncteur modulaire correspondant de
l‘installation domestique.
f
f
Videz l‘appareil. Voir le chapitre « Maintenance / Vidange de
l‘appareil «.
12. maintenance
L’appareil ne nécessite aucune maintenance particulière. Un
contrôle visuel à intervalles réguliers suffit.
12.1 Vidange de l‘appareil
AVERTISSEMENT Brûlure
L‘eau sortant lors de la vidange peut être très chaude !
Il faut procéder comme suit si l’appareil doit être vidangé pour les
travaux de maintenance ou en cas de risque de gel afin de protéger
l’ensemble de l’installation :
f
f
Fermez le robinet d‘arrêt de la conduite d‘arrivée d‘eau
froide.
f
f
Ouvrez les robinets d‘eau chaude sanitaire de tous les points
de soutirage.
f
f
Enlevez l’isolation thermique au niveau de manchons de
vidange pour vidanger l’appareil.
www.stiebel-eltron.com
sBp 1000-1500 e | e sol | e cool |
29
FR
A
N
çA
IS
installation
données techniques
13. données techniques
13.1 cotes et raccordements
sBP 1000 e | sBP 1000 e sol
175
175
790
1010
262
522
902
1122
1452
1777
1997
2240
2340
302
277
400
730
827
1060
1390
1650
1800
2050
e01
d36
d02 d36
d25
d01
e02
d35
d35
d26
h22
d46
d47
h43
h22
h22
h28
h02
i07
i07
i01
45°
D
00
00
01
73
90
sBp 1000 e
sBp 1000 e sol
d01 PAC départ
Diamètre
DN 80
DN 80
d02 PAC retour
Diamètre
DN 80
DN 80
d25 Solaire départ
Filetage femelle
G 1
d26 Solaire retour
Filetage femelle
G 1
d35 Générateur de chaleur départ opt.
Filetage femelle
G 1 1/2
G 1 1/2
d36 Générateur de chaleur retour opt.
Filetage femelle
G 1 1/2
G 1 1/2
d46 Ventilation
Filetage femelle
G 1/2
G 1/2
d47 Vidange
Filetage mâle
G 3/4 A
G 3/4 A
e01 Chauffage départ
Diamètre
DN 80
DN 80
e02 Chauffage retour
Diamètre
DN 80
DN 80
h02 Sonde PAC retour
Diamètre
mm
9,5
9,5
h22 Sonde générateur de chaleur
Diamètre
mm
9,5
9,5
h28 Sonde solaire ballon
Diamètre
mm
9,5
9,5
h43 Thermomètre
Diamètre
mm
14,5
14,5
i01 Bride
Diamètre
mm
280
280
Diamètre du cercle de perçage des pieds
mm
245
245
Vis
M 14
M 14
i07 Chauffage électr. d‘appoint / de secours Filetage femelle
G 1 1/2
G 1 1/2
30
| sBp 1000-1500 e | e sol | e cool
www.stiebel-eltron.com
installation
données techniques
sBP 1500 e | sBP 1500 e sol
175
175
1000
1220
349
609
956
1179
1319
1629
1849
2240
2154
389
364
464
759
914
1054
1349
1600
1710
1900
i01
i07
i07
h22
h43
d46
h22
h22
h28
h02
d47
d35
d01
d35
e02
d26
d02
d36
d36
e01
d25
45°
D
00
00
01
74
06
sBp 1500 e
sBp 1500 e sol
d01 PAC départ
Diamètre
DN 80
DN 80
d02 PAC retour
Diamètre
DN 80
DN 80
d25 Solaire départ
Filetage femelle
G 1
d26 Solaire retour
Filetage femelle
G 1
d35 Générateur de chaleur départ opt.
Filetage femelle
G 1 1/2
G 1 1/2
d36 Générateur de chaleur retour opt.
Filetage femelle
G 1 1/2
G 1 1/2
d46 Ventilation
Filetage femelle
G 1/2
G 1/2
d47 Vidange
Filetage mâle
G 3/4 A
G 3/4 A
e01 Chauffage départ
Diamètre
DN 80
DN 80
e02 Chauffage retour
Diamètre
DN 80
DN 80
h02 Sonde PAC retour
Diamètre
mm
9,5
9,5
h22 Sonde générateur de chaleur
Diamètre
mm
9,5
9,5
h28 Sonde solaire ballon
Diamètre
mm
9,5
9,5
h43 Thermomètre
Diamètre
mm
14,5
14,5
i01 Bride
Diamètre
mm
280
280
Diamètre du cercle de perçage des pieds
mm
245
245
Vis
M 14
M 14
i07 Chauffage électr. d‘appoint / de secours Filetage femelle
G 1 1/2
G 1 1/2
www.stiebel-eltron.com
sBp 1000-1500 e | e sol | e cool |
31
FR
A
N
çA
IS
installation
données techniques
sBP 1000 e cool
175
175
822
1010
262
522
902
1122
1452
1777
1997
2240
2340
302
400
730
1060
1390
1650
1800
2050
i01
i07
i07
h22
h43
d46
h22
h22
h28
h02
d47
d35
d01
d35
e02
d02
d36
d36
e01
45°
D
00
00
01
74
21
sBp 1000 e cool
d01 PAC départ
Diamètre
DN 80
d02 PAC retour
Diamètre
DN 80
d35 Générateur de chaleur départ opt.
Filetage femelle
G 1 1/2
d36 Générateur de chaleur retour opt.
Filetage femelle
G 1 1/2
d46 Ventilation
Filetage femelle
G 1/2
d47 Vidange
Filetage mâle
G 3/4 A
e01 Chauffage départ
Diamètre
DN 80
e02 Chauffage retour
Diamètre
DN 80
h02 Sonde PAC retour
Diamètre
mm
9,5
h22 Sonde générateur de chaleur
Diamètre
mm
9,5
h28 Sonde solaire ballon
Diamètre
mm
9,5
h43 Thermomètre
Diamètre
mm
14,5
i01 Bride
Diamètre
mm
280
Diamètre du cercle de perçage des pieds
mm
245
Vis
M 14
i07 Chauffage électr. d‘appoint / de secours Filetage femelle
G 1 1/2
32
| sBp 1000-1500 e | e sol | e cool
www.stiebel-eltron.com
installation
données techniques
sBP 1500 e cool
175
175
1032
1220
349
609
956
1179
1319
1629
1849
2154
2255
389
464
759
1054
1349
1600
1710
1900
i01
i07
i07
h22
h43
d46
h22
h22
h28
h02
d47
d35
d01
d35
e02
d02
d36
d36
e01
45°
D
00
00
01
74
23
sBp 1500 e cool
d01 PAC départ
Diamètre
DN 80
d02 PAC retour
Diamètre
DN 80
d35 Générateur de chaleur départ opt.
Filetage femelle
G 1 1/2
d36 Générateur de chaleur retour opt.
Filetage femelle
G 1 1/2
d46 Ventilation
Filetage femelle
G 1/2
d47 Vidange
Filetage mâle
G 3/4 A
e01 Chauffage départ
Diamètre
DN 80
e02 Chauffage retour
Diamètre
DN 80
h02 Sonde PAC retour
Diamètre
mm
9,5
h22 Sonde générateur de chaleur
Diamètre
mm
9,5
h28 Sonde solaire ballon
Diamètre
mm
9,5
h43 Thermomètre
Diamètre
mm
14,5
i01 Bride
Diamètre
mm
280
Diamètre du cercle de perçage des pieds
mm
245
Vis
M 14
i07 Chauffage électr. d‘appoint / de secours Filetage femelle
G 1 1/2
13.2 conditions de pannes
En fonction des échangeurs de chaleur installés, il peut survenir
des températures pouvant atteindre 95 °C à 1,0 MPa en cas de
panne.
www.stiebel-eltron.com
sBp 1000-1500 e | e sol | e cool |
33
FR
A
N
çA
IS
13.3 tableau de données
sBp 1000 e sBp 1500 e sBp 1000 e sol sBp 1500 e sol sBp 1000 e cool sBp 1500 e cool
227564
227565
227566
227567
227588
227589
Données hydrauliques
Contenance nominale
l
1000
1500
1000
1500
1000
1500
Contenance de l‘échangeur de chaleur inférieur
l
25,9
31,2
Surface de l‘échangeur de chaleur inférieur
m²
3
3,6
Perte de charge échangeur de chaleur inférieur
à 1,0 m³/h
hPa
8
9
Limites d‘utilisation
Pression maxi admissible
MPa
0,3
0,3
0,3
0,3
0,3
0,3
Pression d‘essai
MPa
0,45
0,45
0,45
0,45
0,45
0,45
Température maxi admissible
°C
95
95
95
95
95
95
Surface maxi d‘entrée de capteur recommandée
m²
20
30
Dimensions
Hauteur
mm
2240
2154
2240
2154
2240
2154
Diamètre
mm
790
1000
790
1000
822
1032
Diamètre isolation thermique comprise
mm
1010
1220
1010
1220
1010
1220
Hauteur de basculement
mm
2335
2250
2335
2250
2335
2250
Poids
Poids, rempli
kg
1172
1729
1184
1750
1141
1698
Poids, à vide
kg
172
229
219
285
173
230
garantie environneMent et reCyClage
installation | garantie | environneMent et reCyClage
données techniques
Garantie
Les conditions de garantie de nos filiales allemandes ne s’appli-
quent pas aux appareils achetés hors d’Allemagne. Au contraire,
c’est la filiale chargée de la distribution de nos produits dans le
pays qui est seule habilitée à accorder une garantie. Une telle
garantie ne pourra cependant être accordée que si la filiale a
publié ses propres conditions de garantie. Il ne sera accordé
aucune garantie par ailleurs.
Nous n’accordons aucune garantie pour les appareils achetés
dans des pays où aucune filiale de notre société ne distribue
nos produits. D’éventuelles garanties accordées par l’importa-
teur restent inchangées.
Environnement et recyclage
Merci de contribuer à la préservation de notre environnement.
Après usage, procédez à l‘élimination de ces matériaux confor-
mément à la réglementation nationale.

