Danfoss AVQT (Gen. 2006): SLOVENŠČINA ČESKY POLSKI MAGYAR РУССКИЙ
SLOVENŠČINA ČESKY POLSKI MAGYAR РУССКИЙ: Danfoss AVQT (Gen. 2006)
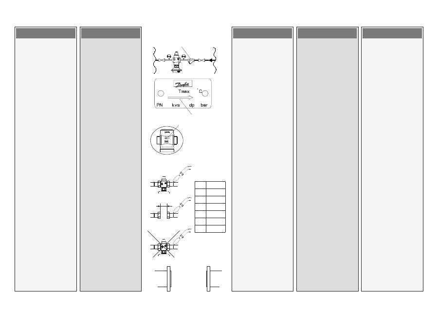
AVQ, AVQT - PN 16,25
20
L
SLOVENŠČINA ČESKY POLSKI MAGYAR РУССКИЙ
Vgradnja ventila
1. Pred montažo očistite
cevovod.
2. Močno priporočamo
vgradnjo filtra pred
regulator
.
3. Vgradite ventil
• Upoštevajte puščico na
etiketi proizvoda oz. na
proizvodu samem, ki kaže
smer pretoka
.
• Ventil z vgrajenimi
varilnimi priključki se
lahko samo pritrdi na
cevovod
.
Varilni priključki so nato
lahko polno varjeni samo
brez ventila in tesnil!
Ob neupoštevanju teh
navodil lahko visoke
temperature pri varjenju
uničijo tesnila.
• Protiprirobnice
morajo
biti vzporedne, tesnilne
površine morajo biti čiste.
in brez poškodb.
Pritegnite vijake na
prirobnicah križem v treh
korakih do maksimalnega
momenta.
Instalace ventilu
1. Před montáží vyčistěte
potrubní systém.
2. Před regulátor
doporučujeme
nainstalovat filtr
.
3. Nainstalujte ventil.
• Při montáži dejte pozor na
to, aby na štítku vyznačený
směr proudění média
odpovídal skutečnosti
.
• Ventil s namontovanými
navařovacími koncovkami
může být napojen pouze
přímo na potrubí
.
Koncovky musí být
navařovány bez těsnění a
připojeného ventilu !
.
Jestliže nebude
postupováno podle
tohoto návodu, tak vysoká
svařovací teplota může
zničit těsnění.
• Příruby
na potrubí musí
být k sobě orientovány
kolmo, kdy styčné těsnící
plochy musí být čisté a
bez poškození. Šrouby na
přírubě dotahujte napříč
a ve třech krocích až do
dosažení maximálního
kroutícího momentu.
Montaż zaworu
1. Przed zamontowaniem
zaworu przepłukać
instalację.
2. Przed regulatorem
zamontować filtr
.
3. Zamontować zawór.
• Należy zachować kierunek
przepływu zaznaczony na
tabliczce znamionowej lub
na korpusie zaworu
.
• Zawór z zamocowanymi
końcówkami do
przyspawania może
być tylko punktowo
przyspawany do
rurociągu
.
Końcówki mogą
być przyspawane
tylko bez zaworu i
uszczelnienia!
.
Nie zastosowanie się
do tego zalecenia może
spowodować uszkodzenie
uszczelnień wskutek
wysokiej temperatury.
• Kołnierze
na rurociągu
muszą być równoległe
a powierzchnie pod
uszczelki czyste i bez
uszkodzeń.
Dokręcać śruby przy
kołnierzach po przekątnej,
w trzech krokach, aż do
uzyskania maksymalnego
momentu (50 Nm).
A szelep beépítése
1. A munka megkezdése
előtt végezze el a
csővezeték hálózat
tisztítását!
2. Erősen ajánlott egy szűrő
beépítése a szabályzó
elé
.
3. A szelep beépítése:
• A beépítésnél
vegye figyelembe a
termékcímkén
ill. a
szelepen feltüntetett
áramlási irányt
!
• A hegesztett toldatokkal
rendelkező szelepeket
a csővezetékhez csak
néhány ponton szabad
hegesztéssel rögzíteni
!
A toldatok csak a szelep és
a tömítőelemek levétele
után hegeszthetőek
körül!
Ha ezeket az
útmutatásokat nem
tartja be, a magas
hegesztési hőmérsékleten
a tömítőelemek
tönkremennek.
• A csővezetékek
karimáinak
párhuzamosan kell állniuk,
és a tömítő-felületeknek
szennyeződés-mentesnek
és épnek kell lenniük!
A karimákat összekötő
csavarokat három
lépésben szorítsa meg a
max. nyomaték eléréséig!
Монтаж клапана
1. Перед монтажом клапана
промойте трубопроводную
систему.
2. До регулятора (по
ходу движения среды)
рекомендуется установка
сетчатого фильтра
.
3. Установка клапана
• Клапан устанавливается
так, чтобы направление
стрелки на этикетке
или
на его корпусе
совпадало
с направлением движения
регулируемой среды.
• Резьбовой клапан
монтируется с помощью
приварных фитингов,
которые при установленном
между ними клапане
должны предварительно
фиксироваться
на трубопроводе
прихваткой
.
Окончательная приварка
фитингов к трубопроводу
может производиться
только при отсутствии
клапана и уплотнительных
прокладок!
При несоблюдении этих
инструкций высокая
температура сварки может
повредить уплотнения
фитингов и самого клапана.
• При применении
фланцевого клапана
ответные фланцы
на
трубопроводе должны быть
установлены параллельно
и их уплотняемые
поверхности должны
быть чистыми и без
повреждений.
Болты на фланцах следует
затягивать крестообразно
в три этапа до достижения
максимального крутящего
момента.
DN L (mm)
15
69
20
74
25
79
32
104
40
114
50
134
Оглавление
- ENGLISH DEUTSCH ESPAÑOL NEDERLANDS
- ENGLISH DANSK
- ENGLISH DANSK DEUTSCH ESPAÑOL NEDERLANDS
- ENGLISH DANSK DEUTSCH ESPAÑOL NEDERLANDS
- ENGLISH DANSK DEUTSCH ESPAÑOL NEDERLANDS
- ENGLISH DANSK DEUTSCH ESPAÑOL NEDERLANDS
- ENGLISH DANSK DEUTSCH ESPAÑOL NEDERLANDS
- ENGLISH DANSK DEUTSCH ESPAÑOL NEDERLANDS
- ENGLISH DANSK DEUTSCH ESPAÑOL NEDERLANDS
- ENGLISH DANSK DEUTSCH ESPAÑOL NEDERLANDS
- SLOVENŠČINA ČESKY
- SLOVENŠČINA ČESKY POLSKI MAGYAR РУССКИЙ
- SLOVENŠČINA ČESKY POLSKI
- SLOVENŠČINA ČESKY POLSKI MAGYAR РУССКИЙ
- SLOVENŠČINA ČESKY POLSKI MAGYAR РУССКИЙ
- SLOVENŠČINA ČESKY POLSKI MAGYAR РУССКИЙ
- SLOVENŠČINA ČESKY POLSKI MAGYAR РУССКИЙ
- SLOVENŠČINA ČESKY POLSKI MAGYAR РУССКИЙ
- SLOVENŠČINA ČESKY POLSKI MAGYAR РУССКИЙ
- SLOVENŠČINA ČESKY POLSKI MAGYAR РУССКИЙ
- SLOVENŠČINA ČESKY POLSKI MAGYAR РУССКИЙ

