Danfoss AVQT (Gen. 2006): ENGLISH DANSK DEUTSCH ESPAÑOL NEDERLANDS
ENGLISH DANSK DEUTSCH ESPAÑOL NEDERLANDS: Danfoss AVQT (Gen. 2006)
AVQ, AVQT - PN 16,25
6
L
ENGLISH DANSK DEUTSCH ESPAÑOL NEDERLANDS
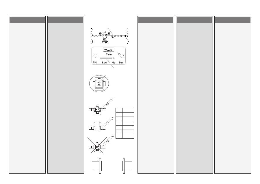
Valve Installation
1. Clean pipeline system
prior to assembly.
2. The installation of a
strainer in front of the
controller is strongly
recommended
.
3. Install valve
• The flow direction
indicated on the product
label
or on the valve
must be observed.
• The valve with mounted
weld-on taipieces may
only be spotwelded to the
pipeline
.
The weld-on taipieces may
be welded only without
the valve and seals!
If these instructions
are not observed, high
welding temperatures may
destroy the seals.
• Flanges
in the pipeline
must be in parallel
position and sealing
surfaces must be clean
and without any damage.
Tighten screws in flanges
crosswise in 3 steps up
to the maximum torque
(50 Nm).
4.
Caution:
Mechanical loads of
the valve body by
the pipelines are not
permitted.
Ventilinstallation
1. Rengør
rørledningssystemet før
montering.
2. Det anbefales stærkt at
installere et filter foran
regulatoren
.
3. Installer ventilen
• Den flowretning, der
vises på produktetiketten
eller på ventilen, skal
respekteres
.
• Ventilen med monterede
svejsestudser må
kun klemmes fast til
rørledningen
.
Svejsestudserne må kun
svejses uden ventil og
pakninger!
Høje svejsetemperaturer
kan ødelægge
pakningerne, hvis
disse instruktioner ikke
overholdes.
• Flanger
i rørledningen
skal være placeret
parallelt, og pakfladerne
skal være rene og uden
skader. Krydsspænd
skruerne i flangerne i 3 trin
til maks. moment (50 Nm).
4.
Forsigtig:
Rørledningerne må
ikke belaste ventilhuset
mekanisk.
Einbau Ventil
1. Rohrleitung vor der
Montage reinigen.
2. Es ist empfehlenswert
einen Schmutzfänger
vor dem Regler
einzubauen.
3. Ventil einbauen
• Durchflussrichtung
auf
dem Typenschild oder
Ventil beachten
.
• Ventil mit angeschraubten
Anschweißenden nur
an die Rohrleitung
anheften
.
Das Einschweißen der
Anschweißenden ist
nur ohne Ventil und
Dichtungen zulässig!
Bei Nichtbeachtung
zerstören die hohen
Schweißtemperaturen die
Dichtungen des Ventils.
• Flansche
in der
Rohrleitung müssen
parallel, Dichtflächen
sauber und ohne
Beschädigungen sein.
Schrauben über Kreuz
in 3 Stufen bis zum max.
Drehmoment anziehen
(50 Nm).
4.
Achtung:
Mechanische Belastungen
des Ventilgehäuses durch
die Rohrleitungen sind
nicht zulässig.
Instalación de la válvula
1. Limpie el sistema de
tuberías antes del
montaje.
2. Se recomientda la
instalación de un filtro
delante del controlador
.
3. Instale la válvula
• Observe la dirección del
caudal indicada en la
etiqueta del producto o en
la válvula
.
• La válvula con conectores
para soldar solo pueden
ser fijados a la tubería
.
Los conectores para soldar
solo pueden soldarse sin la
válvula y sin sellos!
Si estas instrucciones no se
tienen en cuenta, las altas
temperaturas al soldar
pueden destruir los
sellos.
• Las bridas
en la tubería
deben estar en posición
paralela y las superficies
que sellan deben estar
limpias y sin ningún daño.
Apriete los tornillos en
las bridas en diagonal en
3 pasos hasta el máximo
(50 Nm).
4.
Precaución:
No se permiten cargas
mecánicas del cuerpo de
la válvula por las tuberías
Afsluiter installeren
1. Reinig eerst het
leidingsysteem.
2. Plaatsing van een vuilfilter
voor de regelaar wordt
sterk aanbevolen
.
3. Monteer de afsluiter
• Let op de stromingsrichting
die op het type-plaatje of
op de afsluiter staat
aangegeven
.
• De afsluiter met
gemonteerde
laskoppelingen mag alleen
met laspunten aan de
leiding gehecht worden
.
Daarna de afsluiter en
pakkingen uitnemen en de
koppelingen definitief vast
lassen!
Als deze instructies niet
worden opgevolgd
kunnen hoge
lastemperaturen de
pakkingen beschadigen.
• De flenzen
in de leiding
moeten evenwijdig
zijn en de sluitvlakken
moeten schoon zijn en
onbeschadigd.
Zet de bouten in 3
stappen kruislings vast
met het maximum koppel
(50 Nm).
4.
Let op:
Mechanische belasting
van het afsluiterhuis
door de leidingen is niet
toegestaan.
DN L (mm)
15
69
20
74
25
79
32
104
40
114
50
134
Оглавление
- ENGLISH DEUTSCH ESPAÑOL NEDERLANDS
- ENGLISH DANSK
- ENGLISH DANSK DEUTSCH ESPAÑOL NEDERLANDS
- ENGLISH DANSK DEUTSCH ESPAÑOL NEDERLANDS
- ENGLISH DANSK DEUTSCH ESPAÑOL NEDERLANDS
- ENGLISH DANSK DEUTSCH ESPAÑOL NEDERLANDS
- ENGLISH DANSK DEUTSCH ESPAÑOL NEDERLANDS
- ENGLISH DANSK DEUTSCH ESPAÑOL NEDERLANDS
- ENGLISH DANSK DEUTSCH ESPAÑOL NEDERLANDS
- ENGLISH DANSK DEUTSCH ESPAÑOL NEDERLANDS
- SLOVENŠČINA ČESKY
- SLOVENŠČINA ČESKY POLSKI MAGYAR РУССКИЙ
- SLOVENŠČINA ČESKY POLSKI
- SLOVENŠČINA ČESKY POLSKI MAGYAR РУССКИЙ
- SLOVENŠČINA ČESKY POLSKI MAGYAR РУССКИЙ
- SLOVENŠČINA ČESKY POLSKI MAGYAR РУССКИЙ
- SLOVENŠČINA ČESKY POLSKI MAGYAR РУССКИЙ
- SLOVENŠČINA ČESKY POLSKI MAGYAR РУССКИЙ
- SLOVENŠČINA ČESKY POLSKI MAGYAR РУССКИЙ
- SLOVENŠČINA ČESKY POLSKI MAGYAR РУССКИЙ
- SLOVENŠČINA ČESKY POLSKI MAGYAR РУССКИЙ

