Stiebel Eltron PSH EL с 05.12.2011: Монтаж
Монтаж: Stiebel Eltron PSH EL с 05.12.2011
ру
сс
кий
www.StiEbEL-ELtron.CoM
PSH EL|
75
Монтаж
техника безопаСноСти
Монтаж
7. техника безопасности
Монтаж, запуск, а также техобслуживание и ремонт при-
бора должны производиться только квалифицированным
специалистом.
7.1 общие указания по технике
безопасности
Мы гарантируем безупречную работу прибора и безопас-
ность эксплуатации только при использовании оригиналь-
ных принадлежностей и оригинальных запчастей.
7.2 предписания, стандарты и положения
Указание
необходимо соблюдать все национальные и реги-
ональные предписания и постановления.
8. описание прибора
8.1 комплект поставки
В комплект поставки прибора входят:
-
настенная монтажная планка в сборе
-
предохранительный клапан (SYr) с обратным
клапаном.
9. подготовительные
мероприятия
9.1 Место монтажа
прибор предназначен для жесткого крепления на стене.
Стена должна быть рассчитана на соответствующую на-
грузку.
рядом с прибором должен находиться соответствующий
слив для отвода излишков воды, образующихся в резуль-
тате теплового расширения.
f
f
устанавливать прибор только вертикально, в незамер-
зающем помещении, рядом с точкой отбора воды.
10. Монтаж
10.1 Монтаж прибора
настенная монтажная планка, закрепленная на приборе,
оснащена пазами для крючков, обеспечивающими в боль-
шинстве случаев монтаж на уже существующие настенные
шпильки предыдущего прибора.
f
f
В противном случае нужно произвести разметку от-
верстий на стене (см. главу «технические характери-
стики / размеры и соединения»).
f
f
при необходимости просверлить отверстия и за-
крепить настенную монтажную планку с помощью
шурупов и дюбелей. крепежный материал следует вы-
бирать с учетом прочности стены.
f
f
подвесить прибор с помощью настенной монтажной
планки на шурупы или шпильки. при этом нужно учи-
тывать порожний вес прибора (см. главу «технические
данные / таблица параметров»), и при необходимости
привлечь к работе помощника.
f
f
Выровнять прибор по отвесу.
10.2 подключение воды
!
Повреждение оборудования и ущерб для окру-
жающей среды
Все работы по подводу воды и монтажу прибора
необходимо производить в соответствии с ин-
струкцией.
Водопроводная линия для холодной воды
В качестве материала для труб могут использоваться сталь,
медь или пластик.
Водопроводная линия для горячей воды
В качестве материала для труб могут использоваться медь
или пластик.
!
Повреждение оборудования и ущерб для окру-
жающей среды
при использовании труб из пластика нужно учиты-
вать указания из главы «технические характеристи-
ки / Возможные неисправности».
Указание
если давление воды выше 0,6 Мпа, на линии подачи
холодной воды необходимо установить редуктор.
прибор необходимо эксплуатировать с напорной армату-
рой.
f
f
прежде чем подключать линию холодной воды к ре-
зервуару, пропустите через нее достаточное количе-
ство воды, чтобы в резервуар или в предохранитель-
ный клапан не попали инородные тела.
f
f
направить слив для капающей воды (с предохрани-
тельного клапана) в незамерзающую сливную трубу,
с постоянным уклоном вниз, обеспечивающим бес-
препятственный сток воды. продувочное отверстие
предохранительного клапана должно оставаться от-
крытым в атмосферу.
76
| PSH EL www.StiEbEL-ELtron.CoM
Монтаж
Монтаж
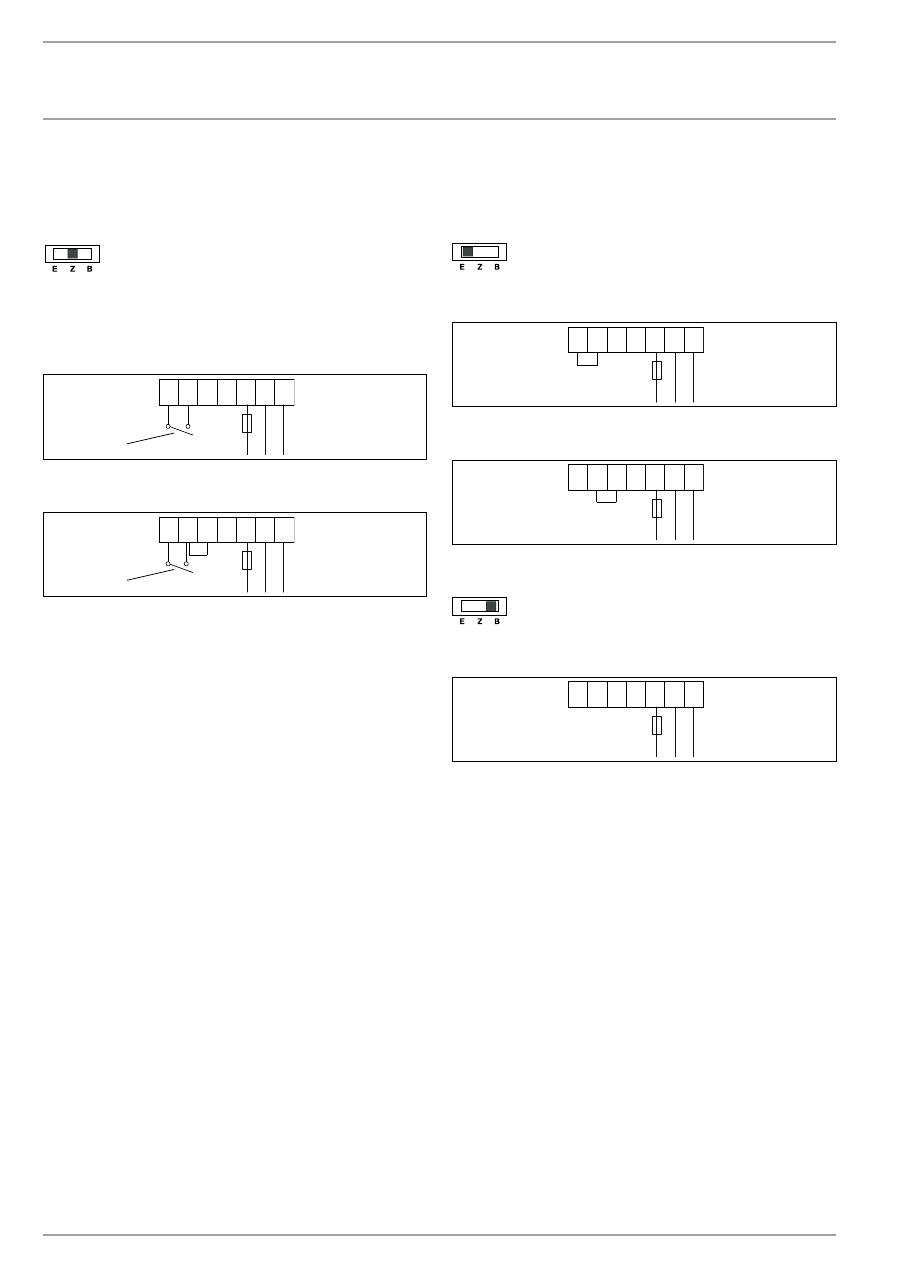
10.3 Электрическое подключение
ОПАСНОСТЬ поражения электрическим током
При любых работах следует полностью отклю-
чать прибор от сети!
ОПАСНОСТЬ поражения электрическим током
Все работы по установлению электрических со-
единений и монтажу необходимо производить в
соответствии с инструкцией.
ОПАСНОСТЬ поражения электрическим током
Для подключения к электросети использовать
только постоянные соединения. Прибор дол-
жен отсоединяться от сети с расстоянием между
всеми контактами не менее 3 ММ на всех полю-
сах.
Опасность повреждения!
Следует соблюдать данные на заводской табличке.
напряжение сети должно совпадать с указанным
на табличке.
Подключение провода заземления
необходимо обеспечить, чтобы прибор был под-
ключен к проводу заземления!
1
2
3
26
�0
2�
07
�0
30
0
1 Электронный блок регулирования, поз. х2
2 Соединительный кабель для электронных модулей
3 Электронный блок управления
как снять нижнюю крышку
f
f
Вывернуть 4 винта.
f
f
Снять нижнюю крышку.
f
f
отсоединить кабель от электронного блока управле-
ния, поз. х2.
при двухтарифном режиме работы дополнительно:
f
f
отвинтить фиксатор.
f
f
пропустить кабель питания через фиксатор, завинтить
фиксатор.
Выбор режима работы
!
Повреждение оборудования и ущерб для окру-
жающей среды
переключение режима работы производится в
обесточенном состоянии.
26
�0
2�
07
�0
28
5
E однотарифный режим работы накопительного
водонагревателя
Z двухтарифный режим работы накопительного
водонагревателя
b режим бойлера
f
f
Выбрать режим работы посредством переключателя
на электронном блоке регулирования, затем выбрать
желаемое подключение (см. главу «технические харак-
теристики / Электрическая схема и соединения»).
f
f
подключить соединительный кабель к электронному
блоку, поз. х2 (см. главу «технические характеристики /
Электрические схемы и соединения»).
f
f
закрепить нижнюю крышку с помощью 4 винтов.
Электрические подключения
ОПАСНОСТЬ поражения электрическим током
Соединительный кабель при повреждении или
замене должен заменяться только уполномочен-
ным специалистом завода-изготовителя.
прибор поставляется с подготовленным гибким соедини-
тельным кабелем и наконечниками для жил без штекера.
f
f
если длины недостаточно, соединительный кабель
нужно отсоединить от клемм в приборе. для замены
использовать надлежащий электромонтажный кабель.
f
f
при укладке нового соединительного кабеля необ-
ходимо обеспечить герметичность имеющегося ка-
бельного ввода и правильность подключения кабеля
внутри прибора.
ру
сс
кий
www.StiEbEL-ELtron.CoM
PSH EL|
77
Монтаж
ВВод В ЭкСплуатацию
11. Ввод в эксплуатацию
11.1 первый ввод в эксплуатацию
f
f
открыть запорный вентиль в трубопроводе подачи
холодной воды.
f
f
держать открытым кран точки отбора до тех пор, пока
прибор не будет заполнен, а из системы трубопрово-
дов не будет полностью удален воздух.
f
f
учесть максимально допустимый расход при полно-
стью открытой арматуре (см. главу «технические харак-
теристики / таблица параметров»).
f
f
подать сетевое напряжение. прибор произведет
самопроверку.
f
f
проверить работу прибора.
f
f
проверить исправность предохранительного клапана.
11.1.1 передача прибора
f
f
объяснить пользователю принцип работы прибора и
ознакомить его с правилами использования прибора.
f
f
обратить внимание пользователя на предохранитель-
ный клапан, его значение и на то, как им управлять.
f
f
указать пользователю на возможные опасности, осо-
бенно на опасность получения ожога.
f
f
передать данное руководство.
11.2 повторный ввод в эксплуатацию
См. главу «первый ввод в эксплуатацию».
12. настройки
12.1 Включение производственного режима
26
�0
2�
07
�0
29
6
S перемычка ECo (активация энергосберегающего
режима)
E ECo Вкл. (заводская настройка)
A ECo ВЫкл. (производственный режим)
f
f
для включения производственного режима переста-
вить перемычку.
12.2 Включение управления по обратной
связи
26
�0
2�
07
�0
29
6
r перемычка управления по обратной связи
E управление по обратной связи Вкл.
A управление по обратной связи ВЫкл (заводская
настройка)
f
f
для включения режима управления по обратной связи
переставить перемычку.
13. Вывод из эксплуатации
f
f
обесточить прибор с помощью предохранителя до-
машней электрической сети.
f
f
опорожнить прибор. См. главу «техобслуживание /
опорожнение прибора».
78
| PSH EL www.StiEbEL-ELtron.CoM
Монтаж
техобСлужиВание
14. техобслуживание
ОПАСНОСТЬ поражения электрическим током
При любых работах следует полностью отклю-
чать прибор от сети!
ОПАСНОСТЬ поражения электрическим током
Все работы по установлению электрических со-
единений и монтажу необходимо производить в
соответствии с инструкцией.
если необходимо произвести слив воды из прибора, сле-
довать указаниям главы «опорожнение прибора».
14.1 проверка предохранительного
комплекта и предохранительного
клапана
f
f
необходимо регулярно проверять предохранитель-
ный узел и предохранительный клапан.
14.2 опорожнение прибора
ОПАСНОСТЬ ожог
При сливе воды из прибора может вытекать го-
рячая вода.
если для техобслуживания или для защиты всей установки
при опасности замерзания необходимо произвести слив
воды из прибора, нужно выполнить следующее:
f
f
закрыть запорный вентиль в трубопроводе подачи
холодной воды.
f
f
опорожнить прибор, для чего следует открыть запор-
ный кран на предохранительном клапане
14.3 проверка защитного анода
f
f
первую проверку защитного анода выполнить через
год, при небходимости заменить его.
f
f
после этого принять решение, через какие интер-
валы времени необходимо проводить дальнейшие
проверки.
14.4 удаление накипи
f
f
удалить из резервуара отслоившиеся отложения
накипи.
f
f
при необходимости удалить накипь во внутреннем
баке с помощью стандартных средств для удаления
накипи.
f
f
удалять накипь с фланца только после его демонтажа,
не обрабатывать средствами для удаления накипи по-
верхность бака и защитный анод.
14.5 Монтаж ограничителя температуры
26
�0
2�
07
�0
30
5
1
1 датчик ограничителя
f
f
Вставить щуп ограничителя во втулку щупа до упора.
ру
сс
кий
www.StiEbEL-ELtron.CoM
PSH EL|
79
Монтаж
уСтранение неиСпраВноСтей
15. устранение неисправностей
Указание
при температуре ниже -15 °C может сработать
предохранительный ограничитель температуры.
прибор мог подвергаться воздействию таких тем-
ператур еще при хранении или транспортировке.
f
f
показать код ошибки (см. главу «настройки / Функции
меню / показать код ошибки»).
f
f
описание разъемов приведено в главе «технические
характеристики / Электрические схемы и соединения».
неисправность
код
причина
f
f
Способ устранения
очень длительный процесс нагре-
ва, горит символ нагрева.
Фланец покрыт известковым налётом.
удалить накипь с фланца с тЭном.
просачивается вода из предохра-
нительного клапана, не горит сим-
вол нагрева.
загрязнено седло клапана.
очистить седло клапана.
индикатор мигает.
E2
неисправность датчика температуры.
проверить правильность подключения разъема
х10.
|E4
проверить датчик температуры.
E128
нарушена коммутация между электронными бло-
ками регулирования и управления.
проверить, правильно ли вставлены разъемы х2 в
обоих блоках. проверить блоки и соединительный
кабель.
Вода не нагревается.
Символ нагрева не загорается.
индикатор мигает.
E8
Сработал предохранительный ограничитель тем-
пературы.
проверить прибор и устранить причину сбоя. на-
жать кнопку сброса (см. рисунок).
предохранительный ограничитель температуры
сработал по причине неисправности регулятора.
устранить причину неисправности. заменить пре-
дохранительный ограничитель температуры.
предохранительный ограничитель температуры
сработал из-за температуры ниже -15 °C.
нажать кнопку сброса (см. рисунок).
не включается ускоренный нагрев.
проверить кнопку.
неисправен фланец с нагревательным тЭном.
заменить фланец с нагревательным тЭном.
Вода не нагревается.
индикатор мигает.
E6
неисправен датчик температуры.
проверить правильность подключения разъема
х10. проверить датчик температуры.
кнопка сброса предохранительного ограничителя
температуры
f
f
отключить прибор от сети электропитания.
f
f
Вывернуть винты и снять нижнюю крышку.
f
f
отсоединить кабель от электронного блока управле-
ния, поз. х2.
1
26
�0
2�
07
�0
28
7
1 кнопка сброса предохранительного ограничителя
температуры
80
| PSH EL www.StiEbEL-ELtron.CoM
Монтаж
техниЧеСкие характериСтики
16. технические характеристики
16.1 размеры и соединения
100
a20
a30
a10
c01
c06
b01
i13
D
00000
19
02
9
PSH 30 EL
PSH 50 EL
PSH 80 EL
PSH 100 EL
PSH 120 EL
PSH 150 EL
a10 прибор
Высота
мм
676
931
893
1045
1200
1435
a20 прибор
Ширина
мм
380
380
475
475
475
475
a30 прибор
Глубина
мм
380
380
475
475
475
475
b01 Ввод для электропроводки
Высота
мм
78,5
78,5
78,5
78,5
78,5
78,5
c01 подвод холодной воды
наружная резьба
G ½ A
G ½ A
G ½ A
G ½ A
G ½ A
G ½ A
расстояние сзади
мм
80
80
85
85
85
85
c06 Выпуск. труба горячей воды
наружная резьба
G ½ A
G ½ A
G ½ A
G ½ A
G ½ A
G ½ A
расстояние сзади
мм
80
80
85
85
85
85
i13 планка для подвешивания
Высота
мм
445
705
592
735
870
1090
планка для подвешивания
30 - 50 l
184
265
300
360
80
�0
2�
07
�0
00
5
80 - 150 л
450
415
360
350
300
265
80
�0
2�
07
�0
00
6
ру
сс
кий
www.StiEbEL-ELtron.CoM
PSH EL|
81
Монтаж
техниЧеСкие характериСтики
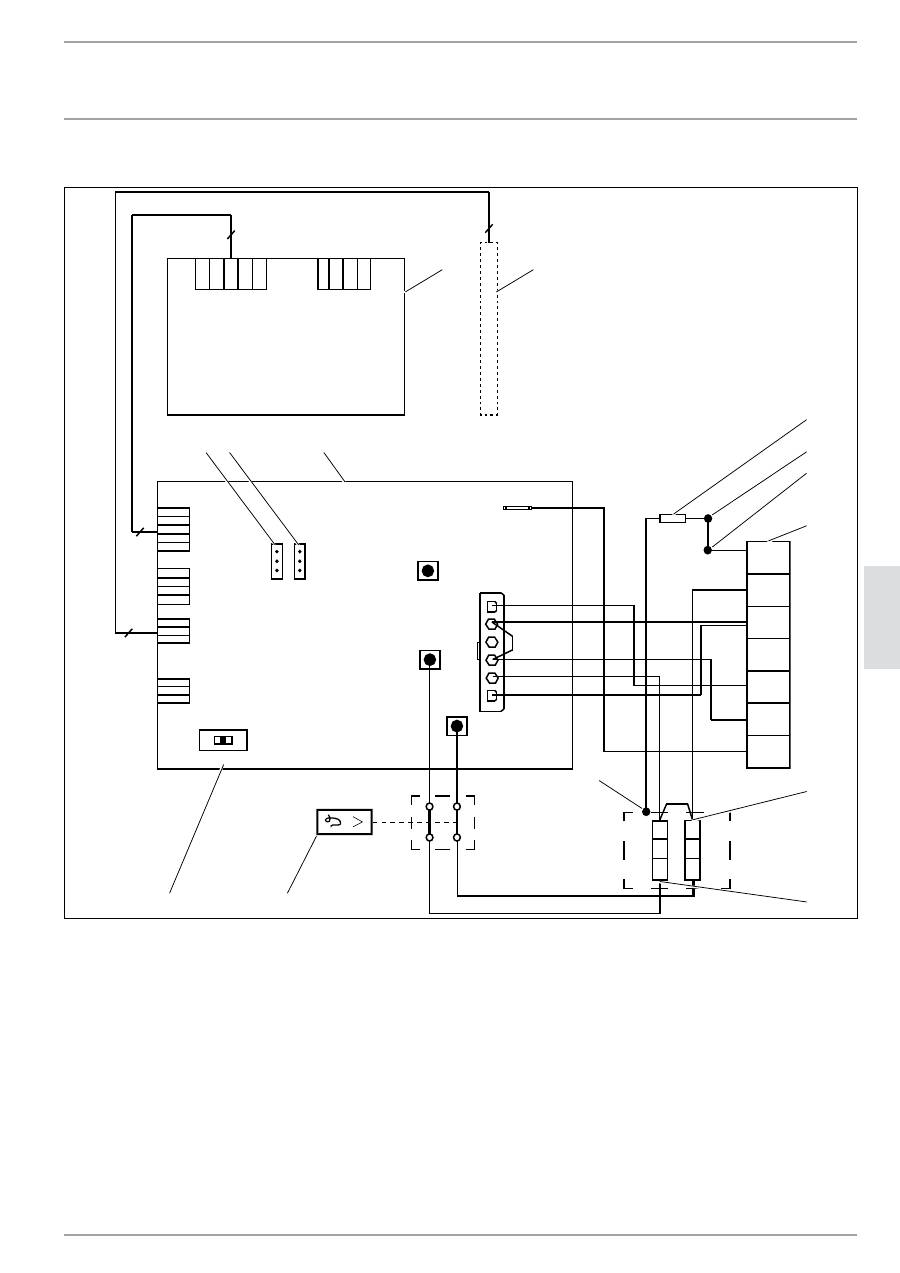
16.2 Электрические схемы и соединения
FB
L1
CB
L3
N
L2
L1
L3
N
L2
PE
5
6
LF
X6
ws
vi
S
E Z B
X2
X12
X10
X7
A
E
A
E
X2
X1
5
5
3
3
X9
R
3
r
4
1
12
13
2
5
6
7
9
11
8
85
�0
2�
07
�0
02
2
10
r 560 ом
1 анод
2 резервуар накопителя
3 клемма подключения к сети
4 нагревательный элемент из нержавеющей стали
5 нагревательный элемент 2 кВт ~ 230 В
6 дополнительный нагревательный элемент 1 кВт ~ 230 В
7 предохранительный ограничитель температуры
8 переключатель режимов работы
9 перемычка режима ECo
10 перемычка управления по обратной связи
11 Электронный блок регулирования
12 Электронный блок управления
13 датчик температуры
82
| PSH EL www.StiEbEL-ELtron.CoM
Монтаж
техниЧеСкие характериСтики
16.2.1 двухтарифный режим работы накопительного
водонагревателя
Мощность ускоренного нагрева указана после наклонной
черты.
одноканальный счетчик с контактом для
подключения к энергоснабжающему предприятию
2 / 3 кВт
L1
L3
N
L2
PE
5
6
85
�0
2�
07
�0
02
0
1
3 / 3 кВт
L1
L3
N
L2
PE
5
6
85
�0
2�
07
�0
02
1
1
1 контакт для подключения энергоснабжающего
предприятия
16.2.2 однотарифный режим работы накопительного
водонагревателя
Мощность ускоренного нагрева указана после наклонной
черты.
2 / 3 кВт
L1
L3
N
L2
PE
5
6
85
�0
2�
07
�0
01
8
3 / 3 кВт
L1
L3
N
L2
PE
5
6
85
�0
2�
07
�0
01
9
16.2.3 режим бойлера
3 кВт
L1
L3
N
L2
PE
5
6
85
�0
2�
07
�0
02
4
16.3 Возможные неисправности
при неисправности температура при 0,6 Мпа может повы-
шаться до 95 °C.
ру
сс
кий
www.StiEbEL-ELtron.CoM
PSH EL|
83
Монтаж | Гарантия | защита окружающей СредЫ и утилизация
техниЧеСкие характериСтики
16.4 таблица параметров
PSH 30 EL
PSH 50 EL
PSH 80 EL
PSH 100 EL
PSH 120 EL
PSH 150 EL
231155
231156
231157
231158
231648
231159
Гидравлические характеристики
номинальный объем
l
30
50
80
100
120
150
объем смешиваемой воды 40 °C (15 °C / 60 °C)
l
53
100
141
187
223
288
Электрические характеристики
подключаемая мощность ~ 230 В
кВт
3
3
3
3
3
3
номинальное напряжение
В
230
230
230
230
230
230
Фазы
1/n/PE
1/n/PE
1/n/PE
1/n/PE
1/n/PE
1/n/PE
Частота
Гц
50
50
50
50
50
50
однотарифный режим
X
X
X
X
X
X
двухтарифный режим
X
X
X
X
X
X
бойлерный режим
X
X
X
X
X
X
Время нагрева 3,0 кВт (15°C/60°C)
h
0,53
0,88
1,42
1,77
2,13
2,66
пределы рабочего диапазона
диапазон регулировки температуры
°C
7-85
7-85
7-85
7-85
7-85
7-85
Макс. допустимое давление
|MPa
0,6
0,6
0,6
0,6
0,6
0,6
Макс. расход
л/мин
23,5
23,5
23,5
23,5
23,5
23,5
Энергетические характеристики
расход энергии в режиме готовности /24 часа при 65 °C
кВтч
0,52
0,69
0,72
0,84
0,91
1,21
исполнения
Степень защиты (iP)
iP25
iP25
iP25
iP25
iP25
iP25
конструкция закрытого типа
X
X
X
X
X
X
кабель питания
X
X
X
X
X
X
длина кабеля питания
мм
1000
1000
1000
1000
1000
1000
цвет
белый
белый
белый
белый
белый
белый
размеры
Высота
мм
676
931
893
1045
1200
1435
Ширина
мм
380
380
475
475
475
475
Глубина
мм
380
380
475
475
475
475
показатели веса
Вес заполненного
кг
49
75
111
135
161
199
Вес порожнего
кг
19
25
31
35
41
49
Гарантия защита окружающей СредЫ и утилизация
Гарантия
Приборы, приобретенные за пределами Германии, не под-
падают под условия гарантии немецких компаний. К тому
же в странах, где продажу нашей продукции осуществляет
одна из наших дочерних компаний, гарантия предоставля-
ется исключительно этой дочерней компанией. Такая га-
рантия предоставляется только в случае, если дочерней
компанией изданы собственные условия гарантии. За пре-
делами этих условий никакая гарантия не предоставляется.
На приборы, приобретенные в странах, где ни одна из
наших дочерних компаний не осуществляет продажу
нашей продукции, никакие гарантии не распространяют-
ся. Это не затрагивает гарантий, которые могут предостав-
ляться импортером.
Защита окружающей среды и
утилизация
Внесите свой вклад в охрану окружающей среды. Утили-
зацию использованных материалов следует производить
в соответствии с национальными нормами.

