Stiebel Eltron PSH EL с 05.12.2011: inStaLLation
inStaLLation: Stiebel Eltron PSH EL с 05.12.2011
www.StiEbEL-ELtron.CoM
PSH EL|
43
fr
an
çai
s
inStaLLation
SéCurité
inStaLLation
7. sécurité
Le montage, la mise en service, la maintenance et les réparations
de cet équipement ne doivent être effectués que par un installa-
teur qualifié.
7.1 consignes de sécurité générales
Nous ne garantissons le bon fonctionnement et la sécurité de
l’appareil que si les accessoires et pièces de rechange d’origine
sont employés.
7.2 Prescriptions, normes et directives
Remarque
Respectez la législation et les prescriptions nationales
et locales.
8. description de l‘appareil
8.1 Fournitures
Sont fournis avec l‘appareil :
- Suspension murale montée
- Soupape de sécurité (SYR) avec clapet anti-retour
9. travaux préparatoires
9.1 emplacement d‘installation
L‘appareil est conçu pour un montage fixe au mur. Vérifiez que le
mur est suffisamment porteur.
Pour évacuer l‘eau d‘expansion, une évacuation appropriée doit
être prévue à proximité de l‘appareil.
f
f
Installez l’appareil verticalement, dans un local à l’abri du
gel et à proximité du point de soutirage.
10. montage
10.1 montage de l‘appareil
La suspension murale de l’appareil est pourvue de lumières oblon-
gues qui permettent dans la plupart des cas la pose sur des bou-
lons de fixation existants ayant servi pour l’appareil précédent.
f
f
Dans le cas contraire, tracez les entraxes des trous sur
le mur (voir chapitre « Données techniques / Cotes et
raccordements «).
f
f
Au besoin, percez les trous et fixez la suspension murale à
l’aide de vis et de chevilles. Choisissez le matériel de fixation
en fonction des caractéristiques de solidité du mur.
f
f
Suspendez l’appareil aux vis ou aux boulons par sa suspen-
sion murale. Lors de cette opération, prenez en compte le
poids à vide de l‘appareil (voir le chapitre Données tech-
niques / Tableau de données) et si nécessaire, travaillez à
deux.
f
f
Alignez l’appareil verticalement.
10.2 raccordement hydraulique
!
Endommagements de l‘appareil et pollution de l‘envi-
ronnement
Exécutez tous les travaux de raccordement et d‘installa-
tion hydrauliques suivant les prescriptions.
conduite d‘eau froide
Les matériaux comme les tuyaux de cuivre ou d‘acier ou les sys-
tèmes de tuyaux en matière synthétique sont autorisés.
conduite d‘eau chaude
Les matériaux autorisés sont le cuivre et les matières synthétiques.
!
Endommagements de l‘appareil et pollution de l‘envi-
ronnement
Si une tuyauterie en matière synthétique est utilisée, re-
portez-vous au chapitre Données techniques / Conditions
de pannes.
Remarque
Si la pression de l‘eau est supérieure à 0,6 MPa, un ré-
ducteur de pression doit être installé dans l‘arrivée d‘eau
froide.
Cet appareil doit être utilisé avec des robinetteries à pression.
f
f
Rincez soigneusement la conduite d‘eau froide avant de
raccorder l‘appareil pour éviter que des corps étrangers ne
pénètrent dans le ballon ou dans la soupape de sécurité.
f
f
Raccordez l’évacuation du groupe de sécurité vers un tuyau
d’évacuation hors gel à pente constante garantissant un
écoulement libre de l’eau. L‘ouverture de purge de la sou-
pape de sécurité doit être en permanence à l‘air libre.
44
| PSH EL www.StiEbEL-ELtron.CoM
inStaLLation
MontagE
10.3 raccordement électrique
DANGER Électrocution
Coupez l’appareil sur tous les pôles du réseau d’alimen-
tation avant toute intervention !
DANGER Électrocution
Exécutez tous les travaux de raccordement et d‘installa-
tion électriques conformément aux prescriptions.
DANGER Électrocution
Le raccordement au secteur n‘est autorisé que comme
connexion fixe. L‘appareil doit pouvoir être déconnecté
du secteur par un dispositif de coupure multipolaire
ayant une ouverture minimale des contacts de 3 mm.
Remarque
Respectez les indications de la plaque signalétique. La
tension spécifiée doit correspondre à la tension du sec-
teur.
Remarque
Veillez à ce que l’appareil soit raccordé au conducteur
de mise à la terre.
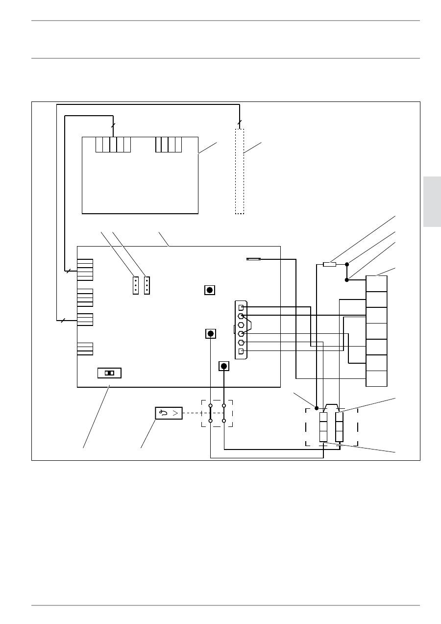
1
2
3
26
�0
2�
07
�0
30
0
1 Platine électronique, position X2
2 Câble de raccordement entre les modules électroniques
3 Module électronique de commande
dépose du capot de protection
f
f
Dévissez les 4 vis.
f
f
Retirez le capot inférieur.
f
f
Débranchez le câble de raccordement du module électro-
nique, position X2.
Dans le cas du fonctionnement ballon double puissance :
f
f
Enlevez le passe-câble vers le bas en appuyant sur le crochet
d‘arrêt.
f
f
Faites glisser le passe-câble sur le câble d’alimentation et
poussez-le en place jusqu’à enclenchement.
choix du mode de fonctionnement
!
Endommagements de l‘appareil et pollution de l‘envi-
ronnement
Ne changez le mode de fonctionnement que lorsque l’ap-
pareil est hors tension.
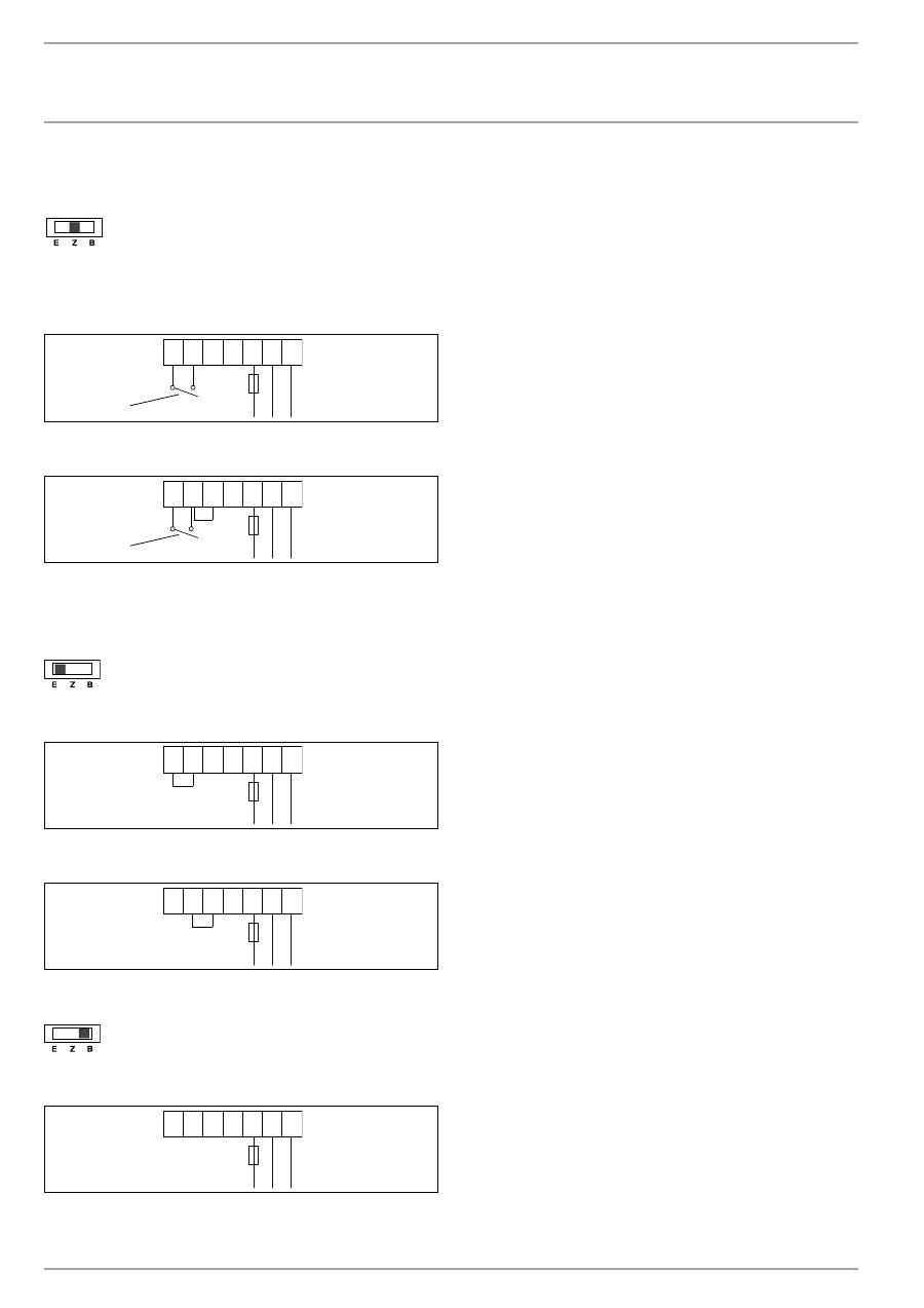
26
�0
2�
07
�0
28
5
E Ballon simple puissance
Z Ballon double puissance
B Fonctionnement intermittent
f
f
Sélectionnez le mode de fonctionnement à l’aide du commu-
tateur coulissant sur la platine électronique et choisissez le
type de raccordement (voir chapitre « Données techniques /
Schémas électriques et raccordements «).
f
f
Branchez le câble de raccordement sur la platine électro-
nique, position X2 (voir le chapitre « Données techniques /
Schéma électrique et raccordements «).
f
f
Fixez le capot à l‘aide des quatre vis.
câble de raccordement électrique
DANGER Électrocution
En cas d‘endommagement ou de remplacement, le câble
de raccordement électrique ne doit être remplacé que
par un installateur habilité par le fabricant.
L‘appareil est fourni avec un câble de raccordement flexible pré-
confectionné avec des embouts sans fiches.
f
f
Si la longueur de câble est insuffisante, déconnectez le câble
de raccordement dans l‘appareil. Utilisez un câble adapté
pour le raccordement à l’installation électrique.
f
f
Lors de la pose du nouveau câble de raccordement, veillez à
l’étanchéité au niveau du passe-câble existant et raccordez-
le de manière appropriée dans l’appareil.
www.StiEbEL-ELtron.CoM
PSH EL|
45
fr
an
çai
s
inStaLLation
MiSE En SErviCE
11. mise en service
11.1 Première mise en service
f
f
Ouvrez la vanne d‘arrêt de l‘arrivée d‘eau froide.
f
f
Ouvrez un point de soutirage jusqu’à ce que l’appareil soit
rempli et qu’il n’y ait plus d’air dans les conduites.
f
f
Respectez le débit maximal admissible lorsque la robinette-
rie est ouverte au maximum (voir le chapitre Données tech-
niques / Tableau de données).
f
f
Mettez sous tension secteur. L’appareil effectue automatique-
ment un auto-diagnostic.
f
f
Contrôlez le fonctionnement de l‘appareil.
f
f
Vérifiez le bon fonctionnement du groupe de sécurité.
11.1.1 remise de l‘appareil
f
f
Expliquez les différentes fonctions à l‘utilisateur puis familia-
risez-le avec l‘emploi de l‘appareil.
f
f
Attirez l‘attention de l‘utilisateur sur la présence de la sou-
pape de sécurité, son rôle et les consignes d‘utilisation.
f
f
Indiquez à l‘utilisateur les risques encourus, notamment les
risques de brûlure.
f
f
Remettez-lui cette notice.
11.2 remise en marche
Voir le chapitre Première mise en service.
12. réglages
12.1 activation du mode professionnel
26
�0
2�
07
�0
29
6
S Cavalier ECO (mode économies d’énergie)
E ECO activé (configuration usine)
A ECO désactivé (mode professionnel)
f
f
Pour activer le mode professionnel, déplacez le cavalier.
12.2 activation de la commande retardée
26
�0
2�
07
�0
29
6
R Cavalier Commande retardée
E Commande retardée activée
A Commande retardée désactivée (configuration usine)
f
f
Pour activer la commande retardée, permutez le cavalier.
13. mise hors service
f
f
Coupez l‘appareil de la tension secteur à l‘aide du fusible de
l‘installation domestique.
f
f
Videz l‘appareil. Voir le chapitre Maintenance / Vidange de
l‘appareil.
46
| PSH EL www.StiEbEL-ELtron.CoM
inStaLLation
MaintEnanCE
14. maintenance
DANGER Électrocution
Coupez l’appareil sur tous les pôles du réseau d’alimen-
tation avant toute intervention.
DANGER Électrocution
Exécutez tous les travaux de raccordement et d‘installa-
tion électriques conformément aux prescriptions.
Si vous devez en plus vidanger l‘appareil, observez les consignes
du chapitre Vidange de l‘appareil.
14.1 Vérification du groupe de sécurité et de la
soupape de sécurité
f
f
Vérifiez régulièrement le groupe de sécurité et la soupape de
sécurité.
14.2 Vidange de l‘appareil
DANGER Brûlure
L‘eau sortant lors de la vidange peut être très chaude.
Il faut procéder comme suit si l’appareil doit être vidangé pour les
travaux de maintenance ou en cas de risque de gel afin de protéger
l’ensemble de l’installation :
f
f
Fermez la vanne d‘arrêt de l‘arrivée d‘eau froide.
f
f
Vidangez l’appareil en ouvrant la vanne d’arrêt du groupe de
sécurité.
14.3 contrôle de l‘anode de protection
f
f
Contrôlez l‘anode de protection pour la première fois au bout
d‘un an et remplacez-la si nécessaire.
f
f
Déterminez ensuite à quels intervalles, les autres contrôles
doivent être réalisés.
14.4 détartrage
f
f
Ôtez les dépôts de tartre sur le ballon.
f
f
Si nécessaire, détartrez le ballon intérieur à l‘aide d‘un dé-
tartrant du commerce.
f
f
Ne détartrez la bride électrique qu‘après démontage et ne
traitez ni la surface du ballon ni l‘anode de protection avec
un produit détartrant.
14.5 Pose d’un limiteur de température
26
�0
2�
07
�0
30
5
1
1 Capteur du limiteur
f
f
Insérez la sonde du limiteur dans le doigt de gant jusqu’en
butée.
www.StiEbEL-ELtron.CoM
PSH EL|
47
fr
an
çai
s
inStaLLation
aidE au déPannagE
15. aide au dépannage
Remarque
Le thermostat limiteur de sécurité peut se déclencher à
des températures inférieures à -15 °C. L‘appareil peut
déjà avoir été soumis à de telles températures lors de
son stockage ou de son transport.
f
f
Affichez le code d’erreur (voir le chapitre « Configuration /
Fonctions de menu / Afficher code d’erreur «).
f
f
Les connecteurs sont décrits au chapitre Données techniques
/ Schémas électriques et raccordements.
Panne
Code Cause
f
f
Solution
Le temps de montée en température est très
long et le symbole Chauffe est allumé.
Le corps de chauffe est entartré.
Détartrez le corps de chauffe.
Le groupe de sécurité goutte et le symbole
Chauffe ne s’allume pas.
Le siège de la soupape est sale.
Nettoyez le siège de la soupape.
L’affichage clignote.
E2
La sonde de température est défectueuse.
Vérifiez que le connecteur X10 est correctement branché.
E4
Vérifiez la sonde de température.
E128
La communication entre les modules électro-
niques Régulation et Commande est perturbée.
Vérifiez que les fiches X2 sont correctement branchées sur
les deux modules. Contrôlez les modules et le câble de rac-
cordement.
L‘eau ne chauffe pas.
Le symbole Montée en température ne s’al-
lume pas.
L’affichage clignote.
E8
Le thermostat limiteur de sécurité s’est déclen-
ché.
Vérifiez l’appareil et supprimez la cause. Appuyez sur le
bouton de réarmement (voir illustration).
Le limiteur de sécurité s‘est déclenché en raison
d‘une défaillance du régulateur.
Supprimer l‘origine de l‘erreur. Remplacez le limiteur de
sécurité.
Le limiteur de sécurité s‘est déclenché en raison
d‘une température inférieure à -15 °C.
Appuyez sur le bouton de réarmement (voir illustration).
La chauffe rapide ne fonctionne pas.
Vérifiez la touche.
Le corps de chauffe est défectueux.
Remplacez le corps de chauffe.
L‘eau ne chauffe pas.
L’affichage clignote.
E6
La sonde de température est défectueuse.
Vérifiez que le connecteur X10 est correctement branché.
Vérifiez la sonde de température.
Bouton de réarmement du limiteur de sécurité
f
f
Mettez l’appareil hors tension.
f
f
Déposez les vis et enlevez le capot de protection.
f
f
Débranchez le câble de raccordement du module électro-
nique, position X2.
1
26
�0
2�
07
�0
28
7
1 Bouton de réarmement du limiteur de sécurité
48
| PSH EL www.StiEbEL-ELtron.CoM
inStaLLation
CaraCtériStiquES tECHniquES
16. caractéristiques techniques
16.1 cotes et raccordements
100
a20
a30
a10
c01
c06
b01
i13
D
00000
19
02
9
PSH 30 EL PSH 50 EL PSH 80 EL PSH 100 EL PSH 120 EL PSH 150 EL
a10 Appareil
Hauteur
mm
676
931
893
1045
1200
1435
a20 Appareil
Largeur
mm
380
380
475
475
475
475
a30 Appareil
Profondeur
mm
380
380
475
475
475
475
b01 Passage des câbles électriques
Hauteur
mm
78,5
78,5
78,5
78,5
78,5
78,5
c01 Eau froide arrivée
Filetage mâle
G ½ A
G ½ A
G ½ A
G ½ A
G ½ A
G ½ A
Dégagement arrière
mm
80
80
85
85
85
85
c06 ECS sortie
Filetage mâle
G ½ A
G ½ A
G ½ A
G ½ A
G ½ A
G ½ A
Dégagement arrière
mm
80
80
85
85
85
85
i13 Suspension murale
Hauteur
mm
445
705
592
735
870
1090
suspension murale
30 - 50 l
184
265
300
360
80
�0
2�
07
�0
00
5
80 - 150 l
450
415
360
350
300
265
80
�0
2�
07
�0
00
6
www.StiEbEL-ELtron.CoM
PSH EL|
49
fr
an
çai
s
inStaLLation
CaraCtériStiquES tECHniquES
16.2 schéma des connexions électriques et
raccordements
FB
L1
CB
L3
N
L2
L1
L3
N
L2
PE
5
6
LF
X6
ws
vi
S
E Z B
X2
X12
X10
X7
A
E
A
E
X2
X1
5
5
3
3
X9
R
3
R
4
1
12
13
2
5
6
7
9
11
8
85
�0
2�
07
�0
02
2
10
R 560 Ω
1 Mise à la terre de l‘anode
2 Mise à la terre du ballon
3 Bornier de raccordement au secteur
4 Corps de chauffe inox
5 Corps de chauffe, 2 kW ~ 230 V
6 Nombre de résistances supplémentaires 1 kW ~ 230 V
7 Limiteur de sécurité
8 Commutateur coulissant du mode de fonctionnement
9 Cavalier ECO
10 Cavalier Commande retardée
11 Module électronique de régulation
12 Module électronique de commande
13 Sonde de température
50
| PSH EL www.StiEbEL-ELtron.CoM
inStaLLation
CaraCtériStiquES tECHniquES
16.2.1 Ballon double puissance
La puissance de chauffe rapide figure après la barre oblique.
mesure à compteur simple avec contact heures creuses
2 / 3 kw
L1
L3
N
L2
PE
5
6
85
�0
2�
07
�0
02
0
1
3 / 3 kw
L1
L3
N
L2
PE
5
6
85
�0
2�
07
�0
02
1
1
1 Contact SDE
16.2.2 Ballon simple puissance
La puissance de chauffe rapide figure après la barre oblique.
2 / 3 kw
L1
L3
N
L2
PE
5
6
85
�0
2�
07
�0
01
8
3 / 3 kw
L1
L3
N
L2
PE
5
6
85
�0
2�
07
�0
01
9
16.2.3 Fonctionnement intermittent
3 kw
L1
L3
N
L2
PE
5
6
85
�0
2�
07
�0
02
4
16.3 conditions de pannes
En cas de panne, la température peut atteindre 95 °C à 0,6 MPa.
www.StiEbEL-ELtron.CoM
PSH EL|
51
fr
an
çai
s
16.4 tableau de données
PSH 30 EL
PSH 50 EL
PSH 80 EL
PSH 100 EL
PSH 120 EL
PSH 150 EL
231155
231156
231157
231158
231648
231159
Données hydrauliques
Contenance nominale
l
30
50
80
100
120
150
Quantité d’eau mélangée à 40 °C (15 °C / 60 °C)
l
53
100
141
187
223
288
Données électriques
Puissance de raccordement ~ 230 V
kW
3
3
3
3
3
3
Tension nominale
V
230
230
230
230
230
230
Phases
1/N/PE
1/N/PE
1/N/PE
1/N/PE
1/N/PE
1/N/PE
Fréquence
Hz
50
50
50
50
50
50
Mode de fonctionnement Simple puissance
X
X
X
X
X
X
Mode de fonctionnement Double puissance
X
X
X
X
X
X
Mode de fonctionnement Intermittent
X
X
X
X
X
X
Temps de montée en température 3,0 kW (15 °C/60 °C)
h
0,53
0,88
1,42
1,77
2,13
2,66
Limites d‘utilisation
Plage de réglage de température
°C
7-85
7-85
7-85
7-85
7-85
7-85
Pression max. admissible
MPa
0,6
0,6
0,6
0,6
0,6
0,6
Débit maximum
l/min
23,5
23,5
23,5
23,5
23,5
23,5
Données énergétiques
Consommation énergétique en état de disponibi-
lité/24 h à 65 °C
kWh
0,52
0,69
0,72
0,84
0,91
1,21
Versions
Indice de protection (IP)
IP25
IP25
IP25
IP25
IP25
IP25
Type de construction sous pression
X
X
X
X
X
X
Câble de raccordement électrique
X
X
X
X
X
X
Longueur du câble de raccordement électrique
mm
1000
1000
1000
1000
1000
1000
Couleur
blanc
blanc
blanc
blanc
blanc
blanc
Dimensions
Hauteur
mm
676
931
893
1045
1200
1435
Largeur
mm
380
380
475
475
475
475
Profondeur
mm
380
380
475
475
475
475
Poids
Poids, ballon rempli
kg
49
75
111
135
161
199
Poids, à vide
kg
19
25
31
35
41
49
inStaLLation | garantiE | EnvironnEMEnt Et rECyCLagE
CaraCtériStiquES tECHniquES
garantiE EnvironnEMEnt Et rECyCLagE
Garantie
Les conditions de garantie de nos sociétés allemandes ne
s’appliquent pas aux appareils achetés hors d’Allemagne. Au
contraire, c’est la filiale chargée de la distribution de nos pro-
duits dans le pays qui est seule habilitée à accorder une garan-
tie. Une telle garantie ne pourra cependant être accordée que
si la filiale a publié ses propres conditions de garantie. Il ne sera
accordé aucune garantie par ailleurs.
Nous n’accordons aucune garantie pour les appareils achetés
dans des pays où aucune filiale de notre société ne distribue
nos produits. D’éventuelles garanties accordées par l’importa-
teur restent inchangées.
Environnement et recyclage
Merci de contribuer à la préservation de notre environnement.
Après usage, procédez à l’élimination de des matériaux confor-
mément à la réglementation nationale.

