Stiebel Eltron PSH EL с 05.12.2011: inStaLLatiE
inStaLLatiE: Stiebel Eltron PSH EL с 05.12.2011
www.StiEbEL-ELtron.CoM
PSH EL|
59
N
ed
er
la
N
d
s
inStaLLatiE
vEiLigHEid
inStaLLatiE
7. Veiligheid
Installatie, ingebruikname, evenals onderhoud en reparatie van
het toestel mogen alleen door een gekwalificeerde installateur
worden uitgevoerd.
7.1 algemene veiligheidsaanwijzingen
Wij waarborgen de goede werking en de bedrijfsveiligheid uit-
sluitend bij gebruik van originele accessoires en vervangingson-
derdelen voor het toestel.
7.2 Voorschriften, normen en bepalingen
Info
Neem alle nationale en regionale voorschriften en be-
palingen in acht.
8. toestelbeschrijving
8.1 leveringstoebehoren
Bij het toestel wordt het volgende geleverd:
- gemonteerde wandbevestiging;
- veiligheidsklep (SYR) met terugslagklep.
9. Voorbereidingen
9.1 montageplaats
Het toestel is uitsluitend bestemd voor vaste montage aan de
wand. Zorg ervoor dat de wand voldoende draagvermogen heeft.
Voor het afvoeren van het expansiewater dient een passende af-
voer in de buurt van het toestel te zitten.
f
f
Monteer het toestel verticaal in een vorstvrije ruimte en in de
buurt van het tappunt.
10. montage
10.1 montage van het toestel
De aan het toestel bevestigde wandbevestiging is voorzien van
slobgaten voor haken, waardoor montage op reeds bestaande
ophangbouten van vorige toestellen meestal mogelijk is.
f
f
Breng anders de afmetingen voor de boorgaten over op
de wand (zie hoofdstuk “Technische gegevens/maten en
aansluitingen”).
f
f
Boor, indien noodzakelijk, de gaten en bevestig de wandbe-
vestiging met schroeven en pluggen. Kies bevestigingsmate-
riaal dat past bij de sterkte van de wand.
f
f
Hang het toestel met de wandbevestiging aan de schroeven
of bouten. Houd daarbij rekening met het lege gewicht van
het toestel (zie hoofdstuk “Technische gegevens/gegevensta-
bel”) en voer de werkzaamheden eventueel met twee perso-
nen uit.
f
f
Lijn het toestel verticaal uit.
10.2 wateraansluiting
!
Toestel- en milieuschade
Voer alle werkzaamheden voor wateraansluiting en in-
stallatie uit conform de voorschriften.
Koudwaterleiding
Als materiaal zijn stalen of koperen buizen of kunststofbuizen
toegestaan.
warmwaterleiding
Als materiaal zijn koperen of kunststof buizen toegestaan.
!
Toestel- en milieuschade
Neem het hoofdstuk “Technische gegevens/storingssitu-
aties” in acht bij het gebruik van kunststof buizen.
Info
Als de waterdruk hoger is dan 0,6 MPa, moet in de “Koud-
watertoevoer” een reduceerventiel worden ingebouwd.
Het toestel moet met drukkranen worden gebruikt.
f
f
Spoel de koudwaterleiding grondig door vóór aansluiting
van het toestel op de waterleiding, zodat er geen vreemde
voorwerpen in de boiler of de veiligheidsklep terecht kunnen
komen.
f
f
Leid de afvoerleiding van de veiligheidsklep naar een vorst-
bestendige afvoerbuis met een onafgebroken afwaartse hel-
ling, zodat een onbelemmerde waterafloop wordt verzekerd.
De afblaasopening van de veiligheidsklep moet geopend
blijven in de richting van de atmosfeer.
60
| PSH EL www.StiEbEL-ELtron.CoM
inStaLLatiE
MontagE
10.3 elektrische aansluiting
GEVAAR Elektrische schok
Scheid alle polen van het toestel van het elektriciteitsnet
voor aanvang van alle werkzaamheden.
GEVAAR Elektrische schok
Voer alle werkzaamheden voor elektriciteitsaansluitin-
gen en montage uit conform de voorschriften.
GEVAAR Elektrische schok
Aansluiting op het stroomnet is alleen als vaste aanslui-
ting toegestaan. Het toestel moet op alle polen met een
afstand van minstens 3 mm van de aansluiting op het net
kunnen worden losgekoppeld.
Info
Neem de gegevens op het typeplaatje in acht. De aan-
gegeven spanning moet overeenkomen met de netspan-
ning.
Info
Zorg ervoor dat het toestel is aangesloten op de aard-
leiding.
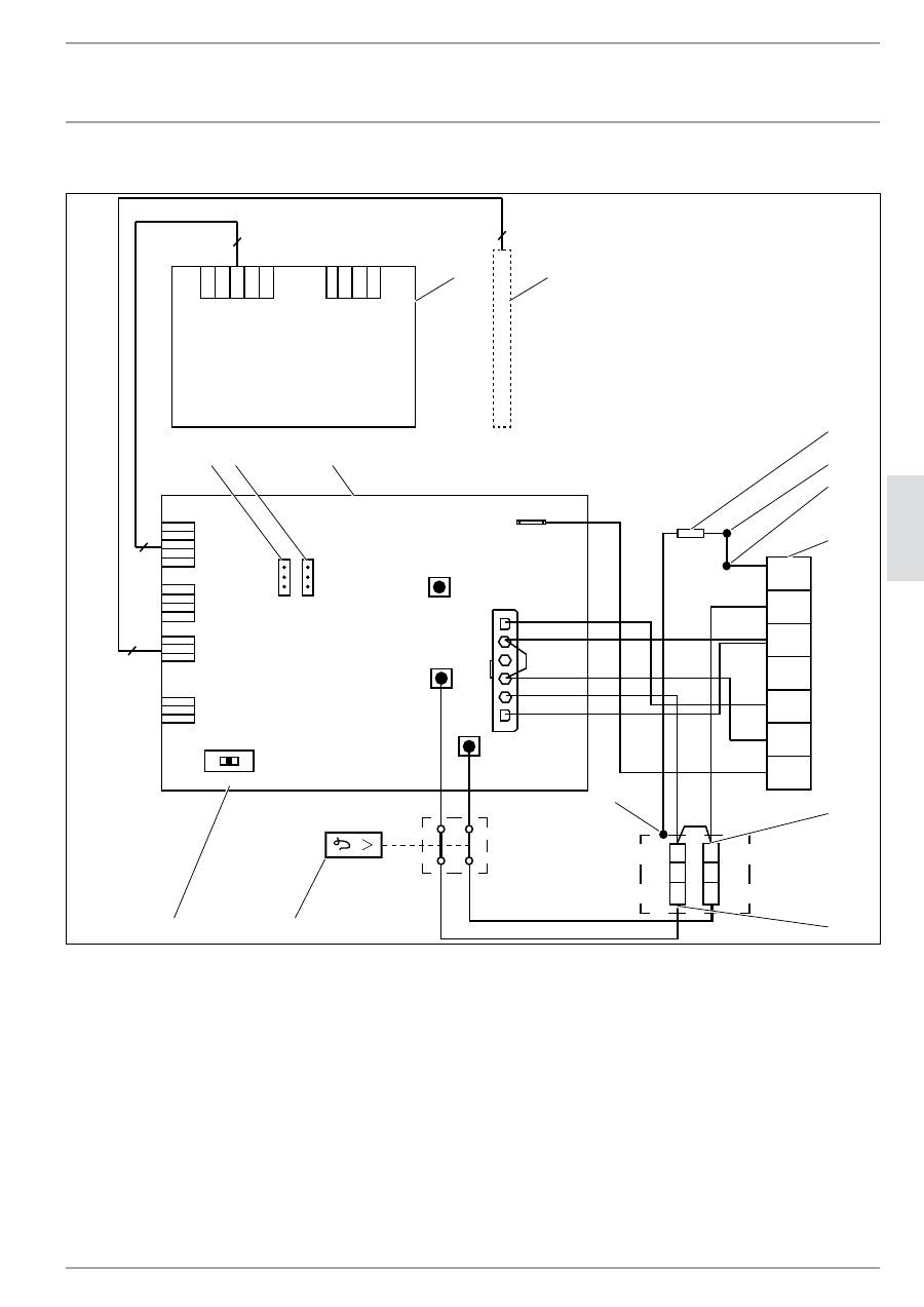
1
2
3
26
�0
2�
07
�0
30
0
1 Elektronische module Regeling, positie X2
2 Aansluitkabel elektronische modules
3 Elektronische module Bediening
onderste kap afnemen
f
f
Draai de 4 schroeven eruit.
f
f
Verwijder de onderste kap.
f
f
Trek de aansluitkabel van de elektronische module Bedie-
ning, positie X2 eraf.
Daarnaast in tweekringboilerwerking:
f
f
trek de kabeldoorvoer er aan de onderkant uit. Druk daar-
voor op de vergrendelhaakjes.
f
f
Schuif de kabeldoorvoer over de elektriciteitskabel en ver-
grendel de kabeldoorvoer opnieuw.
werkwijze kiezen
!
Toestel- en milieuschade
Schakel de werkwijze alleen om, wanneer het toestel van
het stroomnet is ontkoppeld.
26
�0
2�
07
�0
28
5
E Eénkringboilerwerking
Z Tweekringboilerwerking
B Boilerwerking
f
f
Selecteer de werkwijze met de schakelaar op de elektroni-
sche module Regeling en kies de gewenste aansluiting (zie
hoofdstuk “Technische gegevens/elektriciteitsschema’s en
aansluitingen”).
f
f
Steek de aansluitkabel op de elektronische module, positie
X2 (zie hoofdstuk “Technische gegevens/elektriciteitssche-
ma’s en aansluitingen”).
f
f
Bevestig de onderste kap met de 4 schroeven.
elektriciteitskabel
GEVAAR Elektrische schok
De elektriciteitskabel mag bij beschadiging of vervan-
ging alleen worden vervangen door een installateur die
daartoe door de fabrikant is gemachtigd.
Het toestel wordt geleverd met een voorbereide aansluitkabel met
adereindhulzen zonder stekkers.
f
f
Indien de kabellengte onvoldoende is, dient u de aansluit-
kabel in het toestel af te klemmen. Gebruik een geschikte
installatiekabel.
f
f
Let er bij het leggen van de nieuwe elektriciteitskabel op dat
deze waterdicht door de aanwezige kabeldoorvoer wordt ge-
leid en sluit deze in het toestel op vakkundige wijze aan.
www.StiEbEL-ELtron.CoM
PSH EL|
61
N
ed
er
la
N
d
s
inStaLLatiE
ingEbruiKnaME
11. ingebruikname
11.1 eerste ingebruikname
f
f
Open de afsluitklep in de koudwateraanvoerleiding.
f
f
Open een tappunt tot het toestel is gevuld en het leidingnet
luchtvrij is.
f
f
Let op het maximaal toegelaten doorstroomvolume bij
een volledig geopende kraan (zie hoofdstuk “Technische
gegevens/gegevenstabel”).
f
f
Schakel de netspanning in. Het toestel voert een zelftest uit.
f
f
Controleer de werkmodus van het toestel.
f
f
Controleer de goede werking van de veiligheidsklep.
11.1.1 overdracht van het toestel
f
f
Leg aan de gebruiker de werking van het toestel uit en maak
hem vertrouwd met het gebruik ervan.
f
f
Wijs de gebruiker op de veiligheidsklep, de betekenis daar-
van en de bedieningsinstructies.
f
f
Wijs de gebruiker op mogelijk gevaar, met name
verschroeiingsgevaar.
f
f
Overhandig deze handleiding.
11.2 opnieuw in gebruik nemen
Zie hoofdstuk “Eerste ingebruikname”.
12. instellingen
12.1 commerciële modus inschakelen
26
�0
2�
07
�0
29
6
S Jumper ECO (energiebesparingmodus)
E ECO Aan (fabrieksinstelling)
A ECO Uit (commerciële modus)
f
f
Steek de jumper om om de commerciële modus in te
schakelen.
12.2 regeling achteruit inschakelen
26
�0
2�
07
�0
29
6
R Jumper regeling Achteruit
E Regeling Achteruit Aan
A Regeling Achteruit Uit (fabrieksinstelling)
f
f
Steek de jumper om om de regeling Achteruit in te
schakelen.
13. Buitendienststelling
f
f
Verbreek de verbinding tussen het toestel met de zekering in
de huisinstallatie en de netspanning.
f
f
Tap het toestel af. Zie hoofdstuk “Onderhoud/toestel
aftappen”.
62
| PSH EL www.StiEbEL-ELtron.CoM
inStaLLatiE
ondErHoud
14. onderhoud
GEVAAR Elektrische schok
Scheid alle polen van het toestel van de netspanning voor
aanvang van alle werkzaamheden.
GEVAAR Elektrische schok
Voer alle werkzaamheden voor elektriciteitsaansluitin-
gen en montage uit conform de voorschriften.
Wanneer het toestel bovendien moet worden afgetapt, raadpleeg
dan het hoofdstuk “Toestel aftappen”.
14.1 Veiligheidsgroep en -klep testen
f
f
Het is verplicht de veiligheidsgroep en de veiligheidsklep re-
gelmatig te testen.
14.2 Het toestel aftappen.
GEVAAR voor verschroeiing
Tijdens het aftappen kan er heet water uitlopen.
Indien het toestel voor onderhoudswerkzaamheden of bij vorstge-
vaar moet worden afgetapt voor de bescherming van de volledige
installatie, gaat u als volgt te werk:
f
f
sluit de afsluitklep in de koudwateraanvoerleiding.
f
f
Tap het toestel af door de afsluitkraan op de veiligheidsklep
te openen.
14.3 de signaalanode controleren
f
f
Controleer de veiligheidsanode voor het eerst na één jaar en
vervang deze, indien nodig.
f
f
Neem daarna de beslissing in welke tijdsintervallen de ver-
dere tests moeten worden uitgevoerd.
14.4 ontkalken
f
f
Verwijder de losse kalkafzettingen uit de boiler.
f
f
Ontkalk, indien noodzakelijk, het binnenreservoir met in de
handel verkrijgbare ontkalkingmiddelen.
f
f
Ontkalk de flens pas wanneer deze is gedemonteerd en be-
handel de oppervlakte van de boiler en de veiligheidsanode
niet met ontkalkingmiddelen.
14.5 temperatuurbegrenzer monteren
26
�0
2�
07
�0
30
5
1
1 Begrenzersensor
f
f
Steek de begrenzersensor tot tegen de aanslag in de
sensorhuls.
www.StiEbEL-ELtron.CoM
PSH EL|
63
N
ed
er
la
N
d
s
inStaLLatiE
StoringEn vErHELPEn
15. storingen verhelpen
Info
Bij temperaturen lager dan -15 °C kan de veiligheidstem-
peratuurbegrenzer worden geactiveerd. Het toestel kan
al bij opslag of bij het transport aan deze temperaturen
zijn blootgesteld.
f
f
Laat de storingscode weergeven (zie hoofdstuk “Instellingen/
menufuncties/storingscode weergeven”).
f
f
De stekkers worden beschreven in hoofdstuk “Technische ge-
gevens/elektriciteitsschema’s en aansluitingen”.
Storing
Code oorzaak
f
f
oplossing
De opwarmtijd duurt erg lang en het
symbool Verwarmen is verlicht.
De verwarmingsflens is verkalkt.
Ontkalk de verwarmingsflens.
De veiligheidsklep druppelt en het sym-
bool Verwarmen is niet verlicht.
De klepzitting is vuil.
Reinig de klepzitting.
Het display knippert.
E2
De temperatuursensor heeft een storing.
Controleer of stekker X10 er op de juiste wijze is inge-
stoken.
E4
Controleer de temperatuursensor.
E128
De communicatie tussen de elektronische modules Re-
geling en Bediening heeft een storing.
Controleer of stekker X2 op de juiste wijze is ingestoken
in beide modules. Controleer de modules en de aan-
sluitkabel.
Het water wordt niet warm.
Het symbool Verwarmen wordt niet
getoond.
Het display knippert.
E8
De veiligheidstemperatuurbegrenzer is geactiveerd.
Controleer het toestel en verhelp de oorzaak. Druk op de
resettoets (zie afbeelding).
De veiligheidstemperatuurbegrenzer is geactiveerd,
omdat de regelaar defect is.
Los de oorzaak van de storing op. Vervang de veilig-
heidstemperatuurbegrenzer.
De veiligheidstemperatuurbegrenzer is geactiveerd,
omdat de temperatuur lager is dan -15 °C.
Druk op de resettoets (zie afbeelding).
De snelopwarming schakelt niet in.
Controleer de toets.
De verwarmingsflens is defect.
Vervang de verwarmingsflens.
Het water wordt niet warm.
Het display knippert.
E6
De temperatuursensor is defect.
Controleer of stekker X10 er op de juiste wijze is ingesto-
ken. Controleer de temperatuursensor.
resettoets veiligheidstemperatuurbegrenzer
f
f
Ontkoppel het toestel van de stroomvoorziening.
f
f
Draai de schroeven eruit en verwijder de onderste kap.
f
f
Trek de aansluitkabel van de elektronische module Bedie-
ning, positie X2 eraf.
1
26
�0
2�
07
�0
28
7
1 Resettoets van de veiligheidstemperatuurbegrenzer
64
| PSH EL www.StiEbEL-ELtron.CoM
inStaLLatiE
tECHniSCHE gEgEvEnS
16. technische gegevens
16.1 afmetingen en aansluitingen
100
a20
a30
a10
c01
c06
b01
i13
D
00000
19
02
9
PSH 30 EL PSH 50 EL PSH 80 EL PSH 100 EL PSH 120 EL PSH 150 EL
a10 Toestel
Hoogte
mm
676
931
893
1045
1200
1435
a20 Toestel
Breedte
mm
380
380
475
475
475
475
a30 Toestel
Diepte
mm
380
380
475
475
475
475
b01 Doorvoer elektr.kabels
Hoogte
mm
78,5
78,5
78,5
78,5
78,5
78,5
c01 Koudwatertoevoer
Buitendraad
G ½ A
G ½ A
G ½ A
G ½ A
G ½ A
G ½ A
Afstand aan de achterzijde mm
80
80
85
85
85
85
c06 Warmwateruitloop
Buitendraad
G ½ A
G ½ A
G ½ A
G ½ A
G ½ A
G ½ A
Afstand aan de achterzijde mm
80
80
85
85
85
85
i13 Wandbevestiging
Hoogte
mm
445
705
592
735
870
1090
wandbevestiging
30 - 50 l
184
265
300
360
80
�0
2�
07
�0
00
5
80 - 150 l
450
415
360
350
300
265
80
�0
2�
07
�0
00
6
www.StiEbEL-ELtron.CoM
PSH EL|
65
N
ed
er
la
N
d
s
inStaLLatiE
tECHniSCHE gEgEvEnS
16.2 elektriciteitsschakelschema en aansluitingen
FB
L1
CB
L3
N
L2
L1
L3
N
L2
PE
5
6
LF
X6
ws
vi
S
E Z B
X2
X12
X10
X7
A
E
A
E
X2
X1
5
5
3
3
X9
R
3
R
4
1
12
13
2
5
6
7
9
11
8
85
�0
2�
07
�0
02
2
10
R 560 Ω
1 Anode
2 Boilervat
3 Netaansluitklem
4 Roestvrijstalen verwarmingselement
5 Verwarmingselement, 2 kW ~ 230 V
6 Extra verwarmingselement, 1 kW ~ 230 V
7 Veiligheidstemperatuurbegrenzer
8 Schakelaar voor werkwijze
9 Jumper ECO
10 Jumper regeling Achteruit
11 Elektronische module Regeling
12 Elektronische module Bediening
13 Temperatuursensor
66
| PSH EL www.StiEbEL-ELtron.CoM
inStaLLatiE
tECHniSCHE gEgEvEnS
16.2.1 tweekringboilerwerking
Het vermogen van de snelopwarming wordt na de schuine streep
getoond.
eén-teller-meting met energiemaatschappijcontact
2/3 kw
L1
L3
N
L2
PE
5
6
85
�0
2�
07
�0
02
0
1
3 / 3 kw
L1
L3
N
L2
PE
5
6
85
�0
2�
07
�0
02
1
1
1 Contact van de stroomregeling
16.2.2 eénkringboilerwerking
Het vermogen van de snelopwarming wordt na de schuine streep
getoond.
2/3 kw
L1
L3
N
L2
PE
5
6
85
�0
2�
07
�0
01
8
3 / 3 kw
L1
L3
N
L2
PE
5
6
85
�0
2�
07
�0
01
9
16.2.3 Boilerwerking
3 kw
L1
L3
N
L2
PE
5
6
85
�0
2�
07
�0
02
4
16.3 storingssituaties
Bij een storing kunnen er temperaturen tot 95 °C bij 0,6 MPa
voorkomen.
www.StiEbEL-ELtron.CoM
PSH EL|
67
N
ed
er
la
N
d
s
inStaLLatiE
tECHniSCHE gEgEvEnS
16.4 gegevenstabel
PSH 30 EL
PSH 50 EL
PSH 80 EL
PSH 100 EL
PSH 120 EL
PSH 150 EL
231155
231156
231157
231158
231648
231159
Hydraulische gegevens
Nominale inhoud
l
30
50
80
100
120
150
Mengwatervolume van 40 °C (15 °C/60 °C)
l
53
100
141
187
223
288
Elektrische gegevens
Aansluitvermogen ~ 230 V
kW
3
3
3
3
3
3
Nominale spanning
V
230
230
230
230
230
230
Fasen
1/N/PE
1/N/PE
1/N/PE
1/N/PE
1/N/PE
1/N/PE
Frequentie
Hz
50
50
50
50
50
50
Werkwijze Eenkring
X
X
X
X
X
X
Werkwijze Tweekring
X
X
X
X
X
X
Werkwijze boiler
X
X
X
X
X
X
Opwarmtijd 3,0 kW (15°C/60°C)
h
0,53
0,88
1,42
1,77
2,13
2,66
Werkingsgebied
Temperatuurinstelbereik
°C
7-85
7-85
7-85
7-85
7-85
7-85
Max. toegelaten druk
MPa
0,6
0,6
0,6
0,6
0,6
0,6
Max. doorstroomvolume
l/min
23,5
23,5
23,5
23,5
23,5
23,5
Energiegegevens
Energieverbruik in stand-by/24 h bij 65 °C
kWh
0,52
0,69
0,72
0,84
0,91
1,21
Uitvoeringen
Beschermingsgraad (IP)
IP25
IP25
IP25
IP25
IP25
IP25
Uitvoering gesloten
X
X
X
X
X
X
Elektriciteitskabel
X
X
X
X
X
X
Lengte elektriciteitskabel
mm
1000
1000
1000
1000
1000
1000
Kleur
wit
wit
wit
wit
wit
wit
Afmetingen
Hoogte
mm
676
931
893
1045
1200
1435
Breedte
mm
380
380
475
475
475
475
Diepte
mm
380
380
475
475
475
475
Gewichten
Gevuld gewicht
kg
49
75
111
135
161
199
Leeg gewicht
kg
19
25
31
35
41
49
Garantie
Voor toestellen die buiten Duitsland zijn gekocht, gelden de
garantievoorwaarden van onze Duitse ondernemingen niet.
Bovendien kan in landen waar één van onze dochtermaat-
schappijen verantwoordelijk is voor de verkoop van onze
producten, alleen garantie worden verleend door deze doch-
termaatschappij. Een dergelijk garantie wordt alleen verstrekt,
wanneer de dochtermaatschappij eigen garantievoorwaarden
heeft gepubliceerd. In andere situaties wordt er geen garantie
verleend.
Voor toestellen die in landen worden gekocht waar wij geen
dochtermaatschappijen hebben die onze producten verkopen,
verlenen wij geen garantie. Een eventueel door de importeur
verzekerde garantie blijft onverminderd van kracht.
Milieu en recycling
Wij verzoeken u ons te helpen ons milieu te beschermen. Doe
de materialen na het gebruik weg overeenkomstig de natio-
nale voorschriften.

