Stiebel Eltron SHD ... S с 13.04.2009 – страница 3
Инструкция к Водонагревателю Stiebel Eltron SHD ... S с 13.04.2009

INSTALLATIE
VEILIGHEID
7. Veiligheid
9.2 Montage
Installatie, inbedrijfstelling, evenals onderhoud en reparatie
9.2.1 Ophangbeugel monteren
van het toestel mogen alleen door een gekwalificeerde vakman
» U kunt de montagesjabloon gebruiken om de maten af te tekenen
worden uitgevoerd.
op de wand.
7.1 Algemene veiligheidsaanwijzingen
» Boor de gaten en bevestig de ophangbeugel met schroeven en
pluggen. Kies bevestigingsmateriaal dat past bij de sterkte van
Wij waarborgen de goede werking en de bedrijfsveiligheid
de wand.
uitsluitend bij gebruik van originele toebehoren en
vervangingsonderdelen voor de apparatuur.
Oneffenheden kunnen met bijgevoegde 5 mm dikke
overbruggingshulpstukken worden geëgaliseerd.
7.2 Voorschriften, normen en bepalingen
2
Neem alle nationale en regionale voorschriften en
bepalingen in acht.
8. Toestelbeschrijving
8.1 Leveringsomvang
Bij het toestel wordt het volgende geleverd:
— Ophangbeugel
— Overbruggingshulpstukken (2 stuks voor boven, 2 stuks voor onder)
NederlaNds
1
— Afdekkappen (2 stuks)
26�02�01�0572
— Montagesjabloon
1 Overbruggingshulpstuk onder
8.2 Toebehoren
2 Overbruggingshulpstuk boven
Noodzakelijk toebehoren
9.2.2 Elektrische aansluitkabel voorbereiden
Afhankelijk van de statische druk zijn veiligheidsgroepen
en reduceerafsluiters verkrijgbaar. Deze typegekeurde
270
veiligheidsgroepen beschermen het toestel tegen een verboden
120
drukoverschrijding.
Overig toebehoren
26�02�01�0017
Het lastafwerprelais zorgt voor de voorrangsschakeling tijdens de
werking van het toestel als u tegelijk een ander toestel gebruikt,
9.2.3 Waterinstallatie
bijvoorbeeld een elektrische warmteaccumulator (aansluiting zie
Koudwaterleiding
hoofdstuk “Technische gegevens / Elektriciteitsschakelschema en
aansluitingen”).
Als materiaal zijn stalen of koperen buizen of kunststofbuizen
toegestaan.
9. Montage
Een veiligheidsklep is verplicht.
9.1 Montageplaats
Warmwaterleiding
Het toestel is uitsluitend voorzien voor vaste wandmontage. Zorg
Als materiaal is koper toegelaten.
ervoor dat de wand voldoende draagvermogen heeft.
Monteer het toestel altijd verticaal, in een vorstvrije ruimte en in
Gevaar voor beschadiging!
de buurt van het aftappunt.
!
Het toestel is niet geschikt voor kunststof-
buissystemen voor de warmwaterleiding.
WWW.STIEBEL-ELTRON.COM SHD S | 41
INSTALLATIE

INSTALLATIE
MONTAGE
9.2.4 Montage veiligheidsgroep
9.2.6 Elektrische aansluiting realiseren
Gevaar voor beschadiging!
Levensgevaar door elektrische schok!
!
Voer alle werkzaamheden voor wateraansluiting en
Voer alle werkzaamheden voor
installatie uit conform de voorschriften.
elektriciteitsaansluitingen en montage uit conform
de voorschriften.
» Monteer de typegekeurde veiligheidsklep in de koudwaterleiding.
Let er daarbij op dat afhankelijk van de statische druk de juiste
Levensgevaar door elektrische schok!
veiligheidsgroep wordt geselecteerd.
Aansluiting op het stroomnet is enkel als vaste
» Dimensioneer de afvoerleiding op een wijze dat het water bij
aansluiting mogelijk. Het toestel moet op alle
volledig geopende veiligheidsklep ongehinderd kan worden
polen met een afstand van minstens 3mm van het
afgevoerd. De afblaasopening van de veiligheidsklep moet
stroomnetwerk kunnen worden losgekoppeld.
geopend blijven in de richting van de atmosfeer.
» Monteer de afblaasleiding van de veiligheidsgroep met een
constante afwaartse helling.
» Houd rekening met de instructies in de montagevoorschriften
van de veiligheidsgroep.
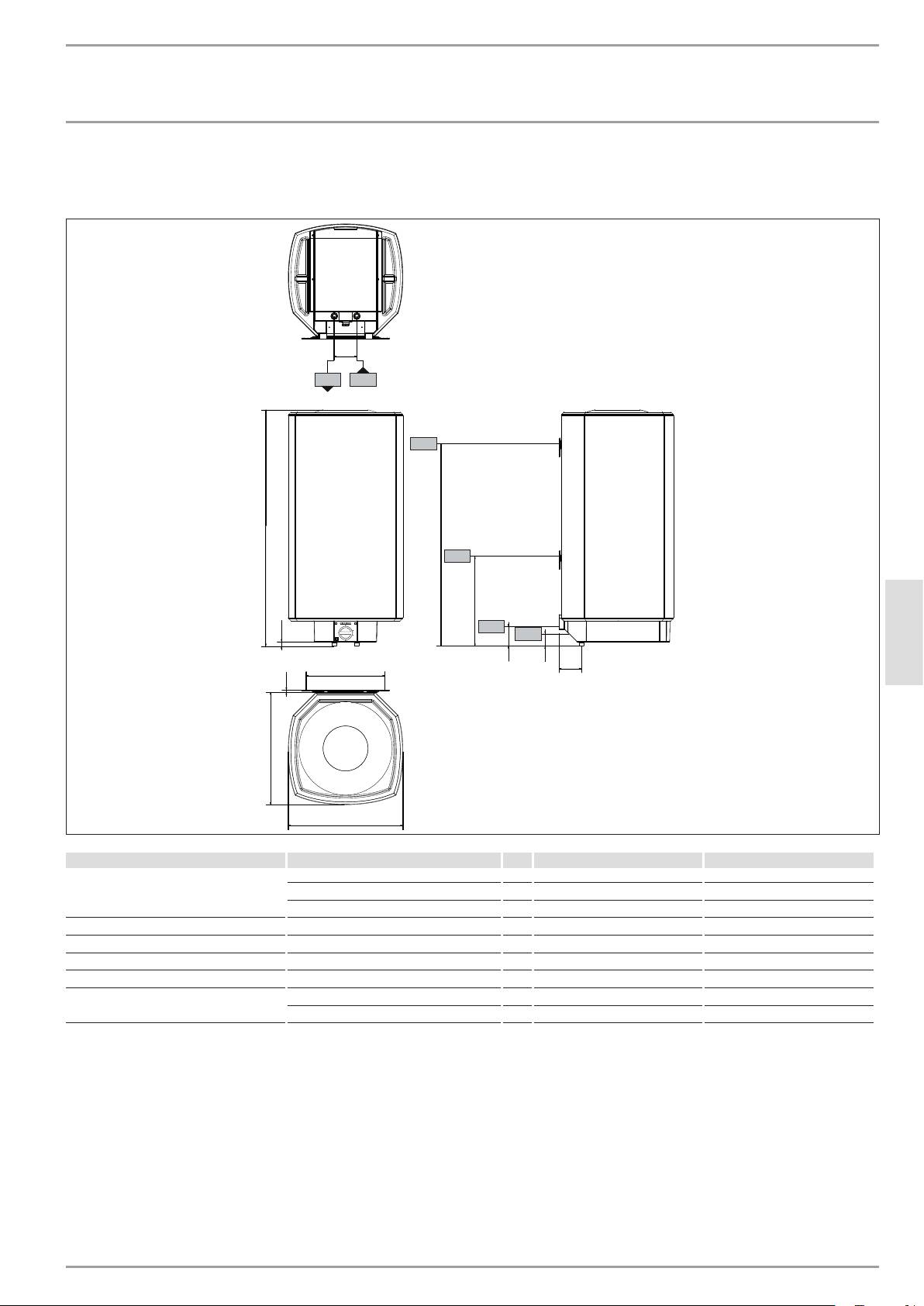
9.2.5 Toestel ophangen
26�02�01�0424
1
26�02�01�0430
1 Afdekkap
» Monteer de afdekkappen.
42 |SHD S WWW.STIEBEL-ELTRON.COM
!
Gevaar voor beschadiging!
Neem de gegevens op het typeplaatje in acht. De
aangegeven spanning moet overeenkomen met de
netspanning.
Aardingsaansluiting.
Zorg ervoor dat het toestel aangesloten is op de
aardleiding!
26�02�07�0127
» Trek de temperatuurinstelknop eraf.
» Draai de schroeven eruit.
» Verwijder de onderste kap.
» Trek de kabeldoorvoer er aan de onderkant uit. Druk daarvoor
op de vergrendelhaakjes.
» Schuif de kabeldoorvoer over de verbindingskabel heen
en vergrendel de kabeldoorvoer opnieuw.
» Sluit de elektrische aansluitkabel aan op de netaansluitklem (zie
hoofdstuk "Technische gegevens/ Elektriciteitsschakelschema en
aansluitingen").

INSTALLATIE
MONTAGE
9.2.7 Montageprocedure afsluiten
7
1 2
Tijdens éénkring- en tweekringwerking kunt u de
temperatuurkeuzebegrenzing instellen.
3
1
2
26�02�07�0099
56
34
26�02�07�0096
1 Temperatuurselectieknop
2 Aanpassingsmogelijkheid van de temperatuurbegrenzing
1 Drukschakelaar voor veiligheidsanode
naar 45°C, 55°C, 65°C.
2 Schakelaar voor werkwijze
3 Fabrieksinstelling 85°C
3 Thermostaat
4 Elektronische module
» Plaats de onderste kap opnieuw.
NederlaNds
5 Relais
» Draai de schroeven vast.
6 Flensplaat
7 Dichtingsring
» Steek de temperatuurinstelknop erop.
» Sluit de veiligheidsgroep aan op het toestel door de buizen op
» Kies de werkwijze met de schakelaar:
het toestel te schroeven.
Stand I = doorloopboilerwerking
Stand II = tweekring-/éénkringboilerwerking
(zie hoofdstuk “Technische gegevens / Elektriciteitsschakelschema
en aansluitingen”).
WWW.STIEBEL-ELTRON.COM SHD S | 43

INSTALLATIE
EERSTE INGEBRUIKNAME
10. Eerste ingebruikname
13. Overdracht van het toestel
» Leg aan de gebruiker de werking van het toestel uit en maak
hem vertrouwd met het gebruik ervan.
» Wijs de gebruiker op mogelijk gevaar, met name
verbrandingsgevaar.
26�02�07�0115
» Geef deze instructies mee.
» Open de warmwaterkraan totdat het toestel is gevuld en het
14. Storingen verhelpen
leidingnet luchtvrij is.
14.1 Storingstabel
» Stel het doorstroomvolume in. Let daarbij op het maximaal
toegelaten doorstroomvolume bij een volledig geopende kraan
Bij temperaturen onder -15 °C kan de
(zie hoofdstuk "Technische gegevens/ technische gegevens").
veiligheidstemperatuurbegrenzer activeren. *
Reduceer, indien gewenst, het doorstroomvolume op de smoring
* Het toestel kan al bij opslag of bij het transport aan deze
van de veiligheidsgroep.
temperaturen zijn blootgesteld.
» Draai de temperatuurinstelknop naar de maximale temperatuur.
Storing Oorzaak » Oplossing
» Schakel de netspanning in.
Het water wordt niet
De veiligheids-
Los de oorzaak van de
» Controleer de werkmodus van het toestel. Let daarbij op het
warm.
temperatuurbegrenzer
storing op. Vervang de
uitschakelen van de thermostaat.
is geactiveerd, omdat de
thermostaat.
regelaar defect is.
» Controleer de goede werking van de veiligheidsgroep.
De veiligheids-
Druk op de resetknop.
temperatuurbegrenzer
11. Buiten bedrijf stellen
is geactiveerd, omdat de
» Verbreek de verbinding tussen het toestel met de zekering in de
temperatuur lager is dan
huisinstallatie en de netspanning.
-15°C
De verwarmingsflens is
Vervang de
» Maak het toestel leeg. Zie hoofdstuk "Onderhoud/ toestel
defect.
verwarmingsflens.
aftappen".
Tijdens
Er stroomt meer water
Verminder de
doorloopboilerwerking
door het toestel dan het
waterhoeveelheid op de
12. Opnieuw in gebruik nemen
wordt de geselecteerde
verwarmingselement
warmwaterkraan.
Zie hoofdstuk "Eerste ingebruikname".
uitlooptemperatuur niet
(21kW) kan opwarmen.
bereikt als de aftapkraan
volledig geopend is.
De veiligheidsklep
De klepzitting is vuil.
Reinig de klepzitting.
druppelt na wanneer
de verwarming is
uitgeschakeld.
1
2
26�02�07�0097
1 Veiligheidstemperatuurbegrenzer
2 Resetknop
44 |SHD S WWW.STIEBEL-ELTRON.COM

INSTALLATIE
ONDERHOUD
15. Onderhoud
15.4 Veiligheidsanode vervangen
Voor enkele onderhoudswerkzaamheden is het noodzakelijk de
» Bij de vervanging van de anode dient u er in elk geval op te letten
onderste kap te verwijderen.
dat u de drukschakelaar dicht opschroeft.
Sleutelmaat van de anode:
Levensgevaar door elektrische schok!
Scheid alle polen van het toestel van het elektriciteitsnet
— SHD 30 S - SW 13
voor aanvang van alle werkzaamheden!
— SHD 100 S - SW 27
Wanneer het toestel bovendien moet worden afgetapt, raadpleeg
Aanzetkoppel: 1 +0,5 Nm (handvast)
dan het hoofdstuk "Toestel aftappen".
De overgangsweerstand tussen de veiligheidsanode en de
15.1 Veiligheidsgroep testen
aansluithulpstukken van de boiler mag maximaal 1,0Ω zijn.
» Het is verplicht de veiligheidsgroep periodiek te testen.
15.5 Flens ontkalken
15.2 Thermostaat-voeler dompeldiepte
» Ontkalk de flens pas wanneer deze is gedemonteerd en behandel
de oppervlakte van de boiler en de veiligheidsanode niet met
1
ontkalkingsmiddelen.
400
15.6 Corrosiebeschermende weerstand
26�02�07�0100
Zorg ervoor dat bij servicewerkzaamheden de corrosiebeschermende
weerstand op de isolatieplaat niet wordt beschadigd of wordt
1 Thermostaat-voeler
verwijderd. Monteer de corrosiebeschermende weerstand na
NederlaNds
vervanging weer conform de voorschriften.
15.3 Het toestel aftappen
Verbrandingsgevaar!
Tijdens het aftappen kan er heet water uitlopen.
3
4
Indien de boiler voor onderhoudswerkzaamheden of bij
vorstgevaar moet worden afgetapt voor de bescherming van de
volledige installatie, gaat u als volgt te werk:
2
1
26�02�01�0228
» sluit de afsluitklep in de koudwateraanvoerleiding.
» open de warmwaterkraan van alle aftappunten.
1 Corrosiebeschermende weerstand
2 Drukplaat
3 Isolatieplaat
4 Koperverwarmingsflens
1
26�02�07�0097
1 Aftapkraan met slangaansluiting
» Schroef een slang met aansluiting G 3/4 op de aftapkraan.
» Open de aftapkraan.
WWW.STIEBEL-ELTRON.COM SHD S | 45

INSTALLATIE
TECHNISCHE GEGEVENS
16. Technische gegevens
16.1 Afmetingen en aansluitingen
46 |SHD S WWW.STIEBEL-ELTRON.COM
a10
100
c06
c01
i14
i15
b02
20
b03
87
50
100
350
10
a30
a20
D0000024812
SHD 30 S SHD 100 S
a10 Toestel
Hoogte mm 770 1050
a20
Breedte mm 410 510
a30 Diepte mm 420 510
b02 Doorvoer elektr.kabels I
b03 Doorvoer elektr.kabels II
c01 Koudwatertoevoer Buitendraad G 1/2 A G 1/2 A
c06 Warmwateruitloop Buitendraad G 1/2 A G 1/2 A
i14 Wandbevestiging I
Hoogte mm 700 900
Max. Ø bevestigingsschroef mm 12 12

INSTALLATIE
TECHNISCHE GEGEVENS
16.2 Elektriciteitsschakelschema en aansluitingen
Twee-teller-meting met EVU-contact: 3,5 / 21kW, 3/PE ~ 400V
7
1
6
2
1
5
55°C385°C4
26�02�07�0001
NederlaNds
1 Schakelaar voor werkwijze
2 Elektronische module met nulspannings- en schakelrelais
3 Knop voor snelopwarming
26�02�07�0003
4 Thermostaat
5 Drukschakelaar voor veiligheidsanode
1 EVU-contact
6 Veiligheidstemperatuurbegrenzer
7 Verwarmingselement
Eénkringboilerwerking
Verwarmingselement
21kW, 3/PE ~ 400V
1 2 3 4
kW 7,0 7,0 3,5 3,5
Doorloopboilerwerking
3,5 / 21kW, 3/PE ~ 400V
26�02�07�0105
Lastafwerprelais LR 1-A
3
26�02�07�0104
Tweekringboilerwerking
Eén-teller-meting met EVU-contact: 3,5 / 21kW, 3/PE ~ 400V
2
1
26�02�07�0107
1
26�02�07�0106
1 Lastafwerprelais
2 Besturingscontact, gaat open als de SHD S inschakelt.
1 EVU-contact
3 Stuurkabel voor het relais van het tweede toestel
WWW.STIEBEL-ELTRON.COM SHD S | 47

GARANTIE
ENVIRONNEMENT ET RECYCLAGE
INSTALLATIE | GARANTIE | MILIEU EN RECYCLING
TECHNISCHE GEGEVENS
16.3 Technische gegevens
SHD 30 S SHD 100 S
073059 073060
Hydraulische gegevens
Nominale inhoud l 30 100
Mengwatervolume van 40°C (15°C/60°C) l 59 195
Elektrische gegevens
Aansluitvermogen ~ 400 V kW 3,5/21 3,5/21
Nominale spanning V 400 400
Fasen 3/PE 3/PE
Frequentie Hz 50 50
Werkwijze Eenkring X X
Werkwijze Tweekring X X
Werkingsgebied
Temperatuurinstelbereik °C 35-85 35-85
Max. toegelaten druk MPa 0,6 0,6
Testdruk MPa 0,78 0,78
Max. toegelaten temperatuur °C 110 110
Max. doorstroomvolume l/min 18 18
Energiegegevens
Energieverbruik in stand-by/24 u bij 65°C kWh 0,45 0,77
Uitvoeringen
Beschermingsgraad (IP) IP25 IP25
Uitvoering gesloten X X
Kleur wit wit
Afmetingen
Hoogte mm 770 1050
Breedte mm 410 510
Diepte mm 420 510
Gewichten
Gevuld gewicht kg 54,3 140,1
Leeg gewicht kg 24,3 40,1
16.3.1 Vermogenstabellen
De opwarmtijd is afhankelijk van de boilerinhoud, van de
koudwatertemperatuur en van het verwarmingsvermogen. De
opwarmtijd bij snelopwarming (21kW) en een koudwatertoevoer
van 10°C vindt u in de volgende tabel.
Opwarmtijd (boilerwerking)
Temperatuurinstelling °C 65 85
Garantie
SHD 30 S min 6 8
SHD 100 S min 18 25
Voor toestellen die buiten Duitsland zijn gekocht, gelden de
garantievoorwaarden van onze Duitse ondernemingen niet.
Bovendien kan in landen waar één van onze dochtermaat-
In doorloopwerking kunnen volgende warmwaterhoeveelheden
schappijen verantwoordelijk is voor de verkoop van onze
worden afgetapt.
producten, alleen garantie worden verleend door deze doch-
termaatschappij. Een dergelijk garantie wordt alleen verstrekt,
Warmwatervermogen (doorloopwerking)
wanneer de dochtermaatschappij eigen garantievoorwaarden
Warmwatertemperatuur °C 38 55
heeft gepubliceerd. In andere situaties wordt er geen garantie
Koudwatertoevoer 6°C l/min 9,4 6,1
verleend.
Koudwatertoevoer 10°C l/min 10,7 6,7
Koudwatertoevoer 14°C l/min 12,7 7,3
Voor toestellen die in landen worden gekocht waar wij geen
dochtermaatschappijen hebben die onze producten verkopen,
verlenen wij geen garantie. Een eventueel door de importeur
verzekerde garantie blijft onverminderd van kracht.
Milieu en recycling
Wij verzoeken u ons te helpen ons milieu te beschermen. Doe
de materialen na het gebruik weg overeenkomstig de natio-
nale voorschriften.
48 |SHD S WWW.STIEBEL-ELTRON.COM

|
________________________________ 49
1.
1. __________________________________49
1.1
1.1 ____________________________ 49
1.2 ________________________________ 49
2. _____________________________ 50
.
2.1 ______________________ 50
.
2.2 ___________________ 50
2.3 CE ___________________________________________ 50
!
2.4 ________________________ 50
3. ________________________________ 50
.
3.1 _________________ 50
.
3.2
__________________________________ 50
1.2
3.3
,
__________________________________ 50
4. ____________________________________ 51
. :
4.1 ________________________________ 51
4.2
!
__________________________________________ 51
!
4.3
_____________ 51
! !
5. , _________ 51
6. , ... _________________________________ 51
6.1 ... _________________________ 51
!
_______________________________________ 52
7. _____________________________ 52
русск ий
7.1 ____________ 52
!
7.2 , ___________________ 52
,
!
.
8. ________________________________ 52
8.1 ___________________________________ 52
!
8.2 __________________________________ 52
9. __________________________________________ 52
.
9.1 __________________________________ 52
» «»»
9.2 __________________________________________ 52
. .
10. ______________________ 55
11. ____________________________ 55
12. ___________________ 55
!
13. ________________________________ 55
,
14. _______________________ 55
.
14.1 ___________________________ 55
15. _________________________________ 56
15.1 ____________ 56
, .
15.2 _ 56
15.3 _____________________________ 56
15.4 ___________________________ 56
15.5 __________________________ 56
15.6 __________________ 56
16. ______________________ 57
16.1 _____________________________ 57
16.2 _________________ 58
16.3 _______________________ 59
______________________________________ 59
__ 59
WWW.STIEBELELTRON.COM SHD S | 49

2.
3.
2.1
,
.
.
.
.
.
:
.
,
, , , ,
.
.
«anticor®» .
.
.
.
!
«».
.
2.2
.
!
.
43 °C
.
3.1
!
8
.
,
,
,
(. « /
»).
.
.
.
(. « /
,
»).
, .
, !
.
,
,
.
.
.
.
3.2
2.3 CE
CE ,
:
.
—
( 89/336/ )
3.3
—
( 73/23/ )
2.4
.
. .
50 |SHD S WWW.STIEBELELTRON.COM

4.
4.1
4
1
3
2
26_02_07_0094
1
2
(
)
3
4 «SERVICE ANODE» («
»)
русск ий
WWW.STIEBELELTRON.COM SHD S | 51
!
5. ,
»
!
.
» .
.
»
-
.
»
.
»
«SERVICE ANODE»
(« ») ( «
/ »).
6. , ...
6.1 ...
!
»
«SERVICE
.
.
ANODE»(« »),
.
.
.
• холодно
.
E ,
/
.
.
85 °C
,
.
«SERVICE ANODE»
.
.
(«
.
»).
4.2
,
.
,
«», 85 °C.
( 000000-0000-000000):
4.3
.
Nr.: 000000 - 0000 - 000000
.
.
Made in Germany
26_02_07_0124

7.
9.2
, ,
9.2.1
»
.
.
7.1
»
.
.
.
5.
7.2 ,
2
.
8.
8.1
:
—
— (2 . , 2 . )
— (2 .)
—
1
8.2
26_02_01_0572
1
2
.
9.2.2
.
270
120
, ,
26_02_01_0017
(. « /
»).
9.2.3
9.
,
9.1
.
.
.
.
.
,
.
!
!
.
52 |SHD S WWW.STIEBELELTRON.COM

9.2.4
9.2.6
!
! !
!
.
.
» ,
! !
.
.
.
» ,
3 .
!
.
!
.
.
.
»
.
.
»
.
.
9.2.5
русск ий
26_02_07_0127
» .
» .
» .
» ,
.
»
26_02_01_0424
.
»
1
(. « /
»).
26_02_01_0430
1
» .
WWW.STIEBELELTRON.COM SHD S | 53

9.2.7
7
1 2
-
.
3
1
2
26_02_07_0099
56
34
26_02_07_0096
1
2 : 45 °C,
1
55 °C, 65 °C.
2
3 85 °C
3
4
» .
5
» .
6
7
» .
» ,
» :
.
I =
II = /
(. « /
»).
54 |SHD S WWW.STIEBELELTRON.COM

10.
13.
»
.
» ,
.
26_02_07_0115
» .
» ,
14.
,
14.1
.
» .
-15 °C
. *
(. « /
*
»).
.
.
»
»
.
.
.
» !
.
» .
.
.
.
» .
,
11.
-15 °C.
»
русск ий
.
.
.
» . . « /
,
.
».
(21).
12.
.
.
. « ».
.
.
1
2
26_02_07_0097
1
2
WWW.STIEBELELTRON.COM SHD S | 55

15.
15.4
» ,
.
.
:
! !
— SHD 30 S - SW 13
!
— SHD 100 S - SW 27
,
: 1 +0,5* ( )
« ».
15.1
1,0Ω.
» .
15.5
15.2
»
1
.
15.6
400
26_02_07_0100
.
1
.
15.3
!
3
4
.
,
2
1
26_02_01_0228
:
1
»
2
.
3
» .
4
1
26_02_07_0097
1
» G 3/4 .
» .
56 |SHD S WWW.STIEBELELTRON.COM

16.
16.1
русск ий
WWW.STIEBELELTRON.COM SHD S | 57
a10
100
c06
c01
i14
i15
b02
20
b03
87
50
100
350
10
a30
a20
D0000024812
SHD 30 S SHD 100 S
a10 770 1050
a20
410 510
a30 420 510
b02 I
b03 II
c01 G 1/2 A G 1/2 A
c06 . G 1/2 A G 1/2 A
i14 I
700 900
. 12 12

16.2
: 3,5 / 21 ,
400 B
7
1
6
2
5
1
55 °C385 °C4
26_02_07_0001
1
2
3
4
26_02_07_0003
5
6
1
7
1 2 3 4
21 , 3/PE ~ 400 B
7,0 7,0 3,5 3,5
3,5 / 21 ,
400 B
26_02_07_0105
LR 1-A
3
26_02_07_0104
: 3,5 / 21 ,
2
400 B
1
26_02_07_0107
1
2 , SHD S
3
1
26_02_07_0106
1
58 |SHD S WWW.STIEBELELTRON.COM

| |
16.3
SHD 30 S SHD 100 S
073059 073060
l 30 100
40°C (15°C/60°C) l 59 195
~ 400 3,5/21 3,5/21
V 400 400
3/PE 3/PE
50 50
X X
X X
°C 35-85 35-85
. MPa 0,6 0,6
MPa 0,78 0,78
. °C 110 110
. / 18 18
/24 65°C 0,45 0,77
(IP) IP25 IP25
X X
770 1050
410 510
русск ий
420 510
54,3 140,1
24,3 40,1
16.3.1
,
.
(21 )
10 °C .
( )
Гарантия
°C 65 85
SHD30S 6 8
Приборы, приобретенные за пределами Германии, не под-
SHD100S 18 25
падают под условия гарантии немецких компаний. К тому
же в странах, где продажу нашей продукции осуществляет
одна из наших дочерних компаний, гарантия предоставля-
ется исключительно этой дочерней компанией. Такая га-
.
рантия предоставляется только в случае, если дочерней
( )
компанией изданы собственные условия гарантии. За пре-
°C 38 55
делами этих условий никакая гарантия не предоставляется.
6 °C
/ 9,4 6,1
10 °C
/ 10,7 6,7
На приборы, приобретенные в странах, где ни одна из
14 °C
/ 12,7 7, 3
наших дочерних компаний не осуществляет продажу
нашей продукции, никакие гарантии не распространяют-
ся. Это не затрагивает гарантий, которые могут предостав-
ляться импортером.
Защита окружающей среды и
утилизация
Внесите свой вклад в охрану окружающей среды. Утили-
зацию использованных материалов следует производить
в соответствии с национальными нормами.
WWW.STIEBELELTRON.COM SHD S | 59

Deutschland
Verkauf Tel. 05531 702-110 | Fax 05531 702-95108 | info-center@stiebel-eltron.de
STIEBEL ELTRON GmbH & Co. KG
Kundendienst Tel. 05531 702-111 | Fax 05531 702-95890 | kundendienst@stiebel-eltron.de
Dr.-Stiebel-Straße | 37603 Holzminden
Ersatzteilverkauf Tel. 05531 702-120 | Fax 05531 702-95335 | ersatzteile@stiebel-eltron.de
Tel. 05531 702-0 | Fax 05531 702-480
info@stiebel-eltron.de
www.stiebel-eltron.de
Irrtum und technische Änderungen vorbehalten! | Subject to errors and technical changes! | Sous réserve
d‘erreurs et de modifications techniques! | Onder voorbehoud van ver
g
issin
g
en en technische wi
j
zi
g
in
g
en! |
Salvo error o modificación técnica! | Excepto erro ou alteração técnica | Zastrzeżone zmian
y
techniczne i
ewentualne błęd
y
| Om
y
l
y
a technické změn
y
j
sou v
y
hrazen
y
! | A muszaki változtatások és tévedések
j
o
g
France
Slovakia
Australia
STIEBEL ELTRON SAS
TATRAMAT - ohrievače vody, s.r.o.
STIEBEL ELTRON Australia Pty. Ltd.
7-9, rue des Selliers
Hlavná 1 | 058 01 Poprad
4/8 Rocklea Drive | Port Melbourne VIC 3207
B.P 85107 | 57073 Metz-Cédex 3
Tel. 052 7127-125 | Fax 052 7127-148
Tel. 03 9645-1833 | Fax 03 9645-4366
Tel. 0387 7438-88 | Fax 0387 7468-26
info@stiebel-eltron.sk
info@stiebel.com.au
info@stiebel-eltron.fr
www.stiebel-eltron.sk
www.stiebel.com.au
www.stiebel-eltron.fr
Switzerland
Austria
Hungary
STIEBEL ELTRON AG
STIEBEL ELTRON Ges.m.b.H.
STIEBEL ELTRON Kft.
Industrie West
Eferdinger Str. 73 | 4600 Wels
Gyár u. 2 | 2040 Budaörs
Gass 8 | 5242 Lupfig
Tel. 07242 47367-0 | Fax 07242 47367-42
Tel. 01 250-6055 | Fax 01 368-8097
Tel. 056 4640-500 | Fax 056 4640-501
info@stiebel-eltron.at
info@stiebel-eltron.hu
info@stiebel-eltron.ch
www.stiebel-eltron.at
www.stiebel-eltron.hu
www.stiebel-eltron.ch
Belgium
Japan
Thailand
STIEBEL ELTRON bvba/sprl
NIHON STIEBEL Co. Ltd.
STIEBEL ELTRON Asia Ltd.
't Hofveld 6 - D1 | 1702 Groot-Bijgaarden
Kowa Kawasaki Nishiguchi Building 8F
469 Moo 2 Tambol Klong-Jik
Tel. 02 42322-22 | Fax 02 42322-12
66-2 Horikawa-Cho
Amphur Bangpa-In | 13160 Ayutthaya
info@stiebel-eltron.be
Saiwai-Ku | 212-0013 Kawasaki
Tel. 035 220088 | Fax 035 221188
www.stiebel-eltron.be
Tel. 044 540-3200 | Fax 044 540-3210
info@stiebeleltronasia.com
Czech Republic
info@nihonstiebel.co.jp
www.stiebeleltronasia.com
STIEBEL ELTRON spol. s r.o.
www.nihonstiebel.co.jp
United Kingdom and Ireland
K Hájům 946 | 155 00 Praha 5 - Stodůlky
Netherlands
STIEBEL ELTRON UK Ltd.
Tel. 251116-111 | Fax 235512-122
STIEBEL ELTRON Nederland B.V.
Unit 12 Stadium Court
info@stiebel-eltron.cz
Daviottenweg 36
Stadium Road | CH62 3RP Bromborough
www.stiebel-eltron.cz
5222 BH 's-Hertogenbosch
Tel. 0151 346-2300 | Fax 0151 334-2913
Denmark
Tel. 073 623-0000 | Fax 073 623-1141
info@stiebel-eltron.co.uk
Pettinaroli A/S
info@stiebel-eltron.nl
www.stiebel-eltron.co.uk
Mandal Allé 21 | 5500 Middelfart
www.stiebel-eltron.nl
United States of America
Tel. 06341 666-6 | Fax 06341 666-0
Poland
STIEBEL ELTRON, Inc.
info@stiebel-eltron.dk
STIEBEL ELTRON Polska Sp. z o.o.
17 West Street | 01088 West Hatfield MA
www.stiebel-eltron.dk
ul. Działkowa 2 | 02-234 Warszawa
Tel. 0413 247-3380 | Fax 0413 247-3369
Finland
Tel. 022 60920-30 | Fax 022 60920-29
info@stiebel-eltron-usa.com
STIEBEL ELTRON OY
stiebel@stiebel-eltron.pl
www.stiebel-eltron-usa.com
Kapinakuja 1 | 04600 Mäntsälä
www.stiebel-eltron.pl
Tel. 020 720-9988 | Fax 020 720-9989
Russia
info@stiebel-eltron.fi
STIEBEL ELTRON LLC RUSSIA
www.stiebel-eltron.fi
Urzhumskaya street 4,
building 2 | 129343 Moscow
Tel. 0495 7753889 | Fax 0495 7753887
info@stiebel-eltron.ru
www.stiebel-eltron.ru
át
4<AMHCMM=faefhf>
fenntartjuk! |
Отсутствие ошибок не гарантируется. Возможны технические изменения.
| Chyby a
technické zmeny sú vyhradené! Stand 8836
A 150457-37297-8842

