Stiebel Eltron SHD ... S с 13.04.2009 – страница 2
Инструкция к Водонагревателю Stiebel Eltron SHD ... S с 13.04.2009

INSTALLATION
INSTALLATION
9.2.7 Completing the installation process
7
1 2
In single circuit and dual-circuit operation, you can adjust the
temperature selection limitation.
3
1
ENGLISH
2
26�02�07�0099
56
34
26�02�07�0096
1 Temperature selector
2 The temperature limit can be adjusted to 45 °C, 55 °C or 65 °C.
1 Pressure switch for protective anode
3 Factory setting 85 °C
2 Operating mode switch
3 Thermostat
» Replace the bottom cap.
4 Electronic assembly
» Insert the screws.
5 Contactor
6 Flange plate
» Replace the temperature selector.
7 Seal ring
» Connect the safety assembly with the appliance by securing the
pipes to the appliance with screws.
» Select the operating mode using the switch:
Position I =Instantaneous DHW cylinder operation
Position II = Dual-circuit/single circuit operation
(see chapter "Specification / Wiring diagrams and connections").
WWW.STIEBEL-ELTRON.COM SHD S | 21

INSTALLATION
COMMISSIONING
10. Commissioning
13. Appliance handover
» Explain the appliance function to users and familiarise them
with its operation.
» Make users aware of potential dangers, especially the risk
of scalding.
26�02�07�0115
» Hand over these instructions.
» Open the DHW valve until the appliance has filled up and the
14. Troubleshooting
pipes are free of air.
14.1 Fault table
» Adjust the flow rate. Be aware of the maximum permissible
flow rate with a fully opened tap (see chapter "Specification /
The high limit safety cut-out can respond at
Specification"). If necessary reduce the flow rate at the butterfly
temperatures below –15 °C. *
valve of the safety assembly.
* The appliance may be subjected to these temperatures
» Turn the temperature selector to maximum temperature.
during storage or transport.
» Switch the mains power ON.
Fault Cause » Remedy
» Check the function of the appliance. Ensure that the thermostat
The water does not
The high limit safety
Remedy the cause of
switches off.
heat up.
cut-out has responded
the fault. Replace the
because the controller
thermostat.
» Check the function of the safety assembly.
is faulty.
The high limit safety
Press the reset button.
11. Taking the appliance out of use
cut-out has responded
» Disconnect the appliance from the mains at the MCB/fuse in
because the temperature
the fuse box.
has dropped below
-15 °C.
» Drain the appliance. See chapter "Maintenance / draining
The flanged immersion
Replace the flanged
the appliance".
heater is faulty.
immersion heater.
The selected outlet
More water flows
Reduce the amount of
12. Recommissioning
temperature is not
through the appliance
water at the DHW valve.
See also chapter "Commissioning".
reached during
than the heating element
instantaneous DHW
(21 kW) can heat up.
cylinder operation when
the draw-off valve is
fully opened.
The safety valve drips
The valve seat is
Clean the valve seat.
when the heating is
contaminated.
switched off.
1
2
26�02�07�0097
1 High limit safety cut-out
2 Reset button
22 |SHD S WWW.STIEBEL-ELTRON.COM

INSTALLATION
MAINTENANCE
15. Maintenance
15.4 Replacing the protective anode
For some maintenance work you must remove the bottom cap.
» When replacing the anode, take great care not to screw the
pressure switch on too tightly.
Danger of electrocution!
Spanner size for the anode:
Before any work on the appliance, disconnect all poles
from the power supply.
— SHD 30 S - SW 13
If you additionally need to drain the appliance, look at the chapter
— SHD 100 S - SW 27
"Draining the appliance".
Torque: 1 +0.5 Nm (finger-tight)
15.1 Checking the safety assembly
The transition resistance between the protective anode and
ENGLISH
cylinder connector must be no more than 1.0 Ω.
» Regularly check the safety assembly.
15.5 Descaling the flange
15.2 Immersion depth of thermostat sensor
» Only descale the flange after disassembly and never treat the
1
cylinder surface and protective anode with descaling agents.
400
15.6 Anti-corrosion protection
26�02�07�0100
Ensure when carrying out service work that the anti-corrosion
protection on the insulating plate is not damaged or removed.
1 Thermostat sensor
Reinsert the anti-corrosion protection correctly after replacement.
15.3 Draining the appliance
Risk of scalding!
3
4
Hot water can be expelled during draining
If the cylinder needs to be drained for maintenance or to protect the
whole installation when there is a risk of frost, proceed as follows:
2
1
26�02�01�0228
» Close the shut-off valve in the cold water line.
» Open the DHW valves on all draw-off points.
1 Anti-corrosion protection
2 Pressure plate
3 Insulating plate
4 Copper flanged immersion heater
1
26�02�07�0097
1 Drain valve with hose connection
» Screw a hose with G 3/4" connection onto the drain valve.
» Open the drain valve.
WWW.STIEBEL-ELTRON.COM SHD S | 23

INSTALLATION
SPECIFICATION
16. Specification
16.1 Dimensions and connections
24 |SHD S WWW.STIEBEL-ELTRON.COM
a10
100
c06
c01
i14
i15
b02
20
b03
87
50
100
350
10
a30
a20
D0000024812
SHD 30 S SHD 100 S
a10 Appliance
Height mm 770 1050
a20
Width mm 410 510
a30 Depth mm 420 510
b02 Entry electrical cables I
b03 Entry electrical cables II
c01 Cold water inlet Male thread G 1/2 A G 1/2 A
c06 DHW outlet Male thread G 1/2 A G 1/2 A
i14 Wall mounting bracketI
Height mm 700 900
Max. Ø fixing screw mm 12 12

INSTALLATION
SPECIFICATION
16.2 Wiring diagrams and connections
Dual-meter counting with power-OFF contact: 3.5/21 kW, 3/PE ~ 400 V
7
1
6
2
ENGLISH
1
5
55 °C385 °C4
26�02�07�0001
1 Operating mode switch
2 Electronic assembly with zero volt and switching relay
3 Booster heater pushbutton
26�02�07�0003
4 Thermostat
5 Pressure switch for protective anode
1 Power-OFF contact
6 High limit safety cut-out
7 Heating element
Single circuit operation
Heating element
21 kW, 3/PE ~ 400 V
1 2 3 4
kW 7.0 7.0 3.5 3.5
Instantaneous DHW cylinder operation
3.5/21 kW, 3/PE ~ 400 V
26�02�07�0105
Load shedding relay LR 1-A
3
26�02�07�0104
Dual-circuit operation
Single-meter counting with power-OFF contact: 3.5/21 kW, 3/PE ~ 400 V
2
1
26�02�07�0107
1
26�02�07�0106
1 Load shedding relay
2 Control contact, opens when switching on the SHD S
1 Power-OFF contact
3 Control cable to the contactor of the second appliance
WWW.STIEBEL-ELTRON.COM SHD S | 25

WARRANTY
ENVIRONMENT AND RECYCLING
INSTALLATION | WARRANTY | ENVIRONMENT AND RECYCLING
SPECIFICATION
16.3 Specification
SHD 30 S SHD 100 S
073059 073060
Hydraulic data
Nominal capacity l 30 100
Amount of mixed water 40 °C (15 °C/60 °C) l 59 195
Electrical data
Connected load ~ 400 V kW 3.5/21 3.5/21
Rated voltage V 400 400
Phases 3/PE 3/PE
Frequency Hz 50 50
Single circuit operating mode X X
Dual circuit operating mode X X
Application limits
Temperature setting range °C 35-85 35-85
Max. permissible pressure MPa 0.6 0.6
Test pressure MPa 0.78 0.78
Max. permissible temperature °C 110 110
Max. flow rate l/min 18 18
Energy data
Standby energy consumption/24h at 65°C kWh 0.45 0.77
Versions
IP rating IP25 IP25
Sealed unvented type X X
Colour white white
Dimensions
Height mm 770 1050
Width mm 410 510
Depth mm 420 510
Weights
Weight, full kg 54.3 140.1
Weight, empty kg 24.3 40.1
16.3.1 Output tables
The heat-up time depends on the cylinder capacity, cold water
inlet temperature and appliance output. For the heat-up time with
the booster heater (21 kW) and a cold water supply of 10 °C, see
the following table.
Heat-up time (cylinder operation)
Temperature setting °C 65 85
SHD 30 S min 6 8
SHD 100 S min 18 25
Warranty
In instantaneous DHW cylinder operation, the following amounts
of hot water can be drawn off.
The warranty conditions of our German companies do not
apply to appliances acquired outside of Germany. In countries
DHW output (instantaneous operation)
where our subsidiaries sell our products, it is increasingly the
DHW temperature °C 38 55
case that warranties can only be issued by those subsidiaries.
Cold water supply 6 °C l/min 9.4 6.1
Such warranties are only granted if the subsidiary has issued
Cold water supply 10 °C l/min 10.7 6.7
its own terms of warranty. No other warranty will be granted.
Cold water supply 14 °C l/min 12.7 7.3
We shall not provide any warranty for appliances acquired in
countries where we have no subsidiary to sell our products.
This will not aect warranties issued by any importers.
Environment and recycling
We would ask you to help protect the environment. After use,
dispose of the various materials in accordance with national
regulations.
26 |SHD S WWW.STIEBEL-ELTRON.COM

TABLE DES MATIÈRES | UTILISATION
REMARQUES GÉNÉRALES
1. Remarques générales
1.1 Informations document
Le chapitre Utilisation s'adresse aux utilisateurs et artisans
professionnels.
Le chapitre Installation s'adresse aux artisans professionnels.
à lire SVP !
Veuillez lire attentivement cette notice avant l'emploi
et conservez-la. En cas de cession de l'appareil,
veuillez la transmettre au nouvel utilisateur.
1.2 Explication des symboles
Symboles utilisés dans cette documentation
Vous rencontrerez à la lecture de cette documentation des
français
symboles et des mises en évidence qui ont la signification suivante.
Risque de blessures !
Remarque signalant des risques de blessures
potentiels !
Danger d’électrocution !
Risque de brûlures ou d'ébouillantement !
WWW.STIEBEL-ELTRON.COM SHD S | 27
!
UTILISATION
UTILISATION ___________________________________________ 27
1. Remarques générales ���������������������������������������� 27
1.1 Informations document ������������������������������������������ 27
1.2 Explication des symboles ���������������������������������������� 27
2. Sécurité �������������������������������������������������������� 28
2.1 Utilisation conforme ���������������������������������������������� 28
2.2 Consignes de sécurité �������������������������������������������� 28
2.3 Marquage CE �������������������������������������������������������28
2.4 Marque de conformité �������������������������������������������� 28
3. Description de l’appareil ������������������������������������� 28
3.1 Fonctionnement en ballon instantané ������������������������28
3.2 Fonctionnement en ballon à double circuit ������������������28
3.3 Fonctionnement en ballon à circuit unique ������������������ 28
4. Utilisation ����������������������������������������������������� 29
4.1 Tableau de commande �������������������������������������������29
4.2 Fonctionnement en ballon instantané après panne de
courant �������������������������������������������������������������� 29
4.3 Fonctionnement en ballon à double circuit et chauffe
rapide ���������������������������������������������������������������� 29
5. Nettoyage, maintenance et entretien ����������������������� 29
6. Que faire si ... ? ����������������������������������������������� 29
6.1 ... des pannes se produisent sur l'appareil ������������������� 29
INSTALLATION _________________________________________ 30
7. Sécurité �������������������������������������������������������� 30
7.1 Sécurité générale ��������������������������������������������������30
7.2 Prescriptions, normes et directives ���������������������������� 30
8. Description de l’appareil ������������������������������������� 30
Détériorations éventuelles !
8.1 Fourniture �����������������������������������������������������������30
Remarque signalant une détérioration de l'appareil, un
8.2 Accessoires ��������������������������������������������������������� 30
dommage économique ou environnemental.
9. Montage ������������������������������������������������������� 30
à lire SVP !
9.1 Emplacement de montage ��������������������������������������� 30
Les textes que vous trouverez à côté de tels symboles
9.2 Montage ������������������������������������������������������������� 30
sont particulièrement importants.
10. Première mise en service ������������������������������������ 33
11. Mise hors service ��������������������������������������������� 33
» Ces textes et le symbole » vous indiquent que vous devez agir.
12. Remise en marche �������������������������������������������� 33
Les actions nécessaires sont décrites étape par étape.
13. Remise de l'appareil ������������������������������������������ 33
Symboles apposés sur l'appareil
14. Dépannage ���������������������������������������������������� 33
14.1 Table des perturbations ������������������������������������������ 33
Élimination !
Les appareils portant ce marquage ne doivent pas être
15. Entretien ������������������������������������������������������� 34
jetés dans les déchets domestiques mais être éliminés
15.1 Contrôle du groupe de sécurité ���������������������������������34
ou collectés séparément.
15.2 Profondeur d’immersion de la sonde du régulateur de
température ��������������������������������������������������������34
15.3 Vidange de l'appareil ��������������������������������������������� 34
Unités de mesure
15.4 Remplacement de l'anode de protection ���������������������34
Toutes les cotes sont indiquées en millimètre sauf indication
15.5 Détartrage de la résistance ��������������������������������������34
contraire.
15.6 Résistance de protection contre la corrosion ���������������� 34
16. Données techniques ������������������������������������������ 35
16.1 Cotes et raccordements ������������������������������������������ 35
16.2 Schémas électriques et connexions ���������������������������36
16.3 Données techniques ���������������������������������������������� 37
GARANTIE ______________________________________________ 37
ENVIRONNEMENT ET RECYCLAGE ____________________ 37

UTILISATION
SÉCURITÉ
2. Sécurité
3. Description de l’appareil
Cet appareil réchauffe l'eau chaude sanitaire électriquement à
2.1 Utilisation conforme
puissance de chauffe normale ou en chauffe rapide. La température
Cet appareil est un appareil à pression servant au chauffage de
se détermine à l'aide du bouton de réglage de température.
l'eau chaude sanitaire.
L'appareil alimente un ou plusieurs points de soutirage.
L’appareil est destiné à une utilisation domestique. Il peut être
Cet appareil s'utilise selon trois modes : ballon instantané, ballon
utilisé par des personnes qui ne disposent pas de connaissances
à double circuit ou à circuit unique.
techniques particulières. L’appareil peut également être utilisé
Le réservoir intérieur en acier a un revêtement spécial émail direct
dans un environnement non domestique, p. ex. dans des petites
®
anticor
et possède une anode de protection. Cette anode protège
entreprises, à condition que son utilisation soit identique.
l'intérieur du réservoir de la corrosion.
Tout emploi sortant de ce cadre est considéré comme non
L'appareil est également protégé du gel même avec le réglage
conforme. Fait aussi partie d'une utilisation conforme le respect
de la température sur froid. Il se met en marche à temps pour
de cette notice. Toute garantie expire en cas de modifications ou
chauffer l'eau. La conduite d'eau et le groupe de sécurité ne sont
de transformations apportées à cet appareil.
pas protégés du gel par l'appareil. L'appareil n'est protégé du gel
en mode à double circuit que pendant la période à tarif réduit.
2.2 Consignes de sécurité
3.1 Fonctionnement en ballon instantané
Risque de brûlure par vapeur !
Risque de brûlure par vapeur à des températures
En ce mode, l'appareil fonctionne selon une puissance de chauffe
d'écoulement supérieures à 43°C !
normale lors du prélèvement de faibles volumes d'eau.
Si le réglage de la température est élevé et après le prélèvement
Risque de blessures !
de grands volumes d'eau, l'appareil commute automatiquement
L’appareil peut être utilisé par les enfants de 8 ans
sur chauffe rapide (voir le chapitre Données techniques / Données
et plus ainsi que par les personnes aux facultés
techniques).
physiques, sensorielles ou mentales réduites ou bien
par des personnes sans expérience lorsqu’ils sont sous
Après le prélèvement de toute l'eau chauffée du ballon, l'appareil
se met en fonctionnement instantané et chauffe rapide. Les débits
surveillance ou qu’ils ont été formés à l’utilisation en
de sortie disponibles sont alors réduits en conséquence (voir le
toute sécurité de l’appareil et qu’ils ont compris les
chapitre Données techniques / Tables de puissance).
dangers encourus. Ne laissez pas les enfants jouer
avec l’appareil. Ni le nettoyage ni la maintenance
Le relais à tension nulle inhibe l'enclenchement immédiat de la
relevant de l’utilisateur ne doivent être effectués par
chauffe rapide après une panne de courant prolongée. Lorsque
des enfants sans surveillance.
la tension revient, l'appareil fonctionne dans un premier temps
à puissance de chauffe normale jusqu'à la première activation
Cet appareil fonctionne sous la pression d'alimentation
du régulateur de température. La chauffe rapide est ensuite
du réseau d'eau en circuit fermé !
automatiquement opérationnelle à nouveau.
Pendant la montée en température, de l'eau due à
l'expansion goutte de la vanne de sécurité. Si l'eau
3.2 Fonctionnement en ballon à double circuit
coule toujours alors que le chauffage de l'eau est
L'appareil chauffe l'eau contenue, quelle que soit la température
achevé, appelez l'installateur.
réglée, automatiquement selon une puissance de chauffe normale
pendant la période à tarif réduit (périodes autorisées par la société
2.3 Marquage CE
distributrice d'électricité).
Le marquage CE certifie que l'appareil répond à toutes les
3.3 Fonctionnement en ballon à circuit unique
exigences fondamentales :
Dans ce mode de fonctionnement, l'appareil enclenche
— la directive sur la compatibilité électromagnétique (directive
automatiquement la chauffe rapide quelle que soit la température
89/336/CEE du Conseil)
réglée.
— la directive basse tension (directive 73/23/CEE du conseil)
2.4 Marque de conformité
Voir la plaque signalétique apposée sur l'appareil.
28 |SHD S WWW.STIEBEL-ELTRON.COM

UTILISATION
UTILISATION
4. Utilisation
4.1 Tableau de commande
4
1
3
2
26�02�07�0094
1 Témoin lumineux signalant le fonctionnement en chauffe
français
rapide
2 Bouton-poussoir de chauffe rapide
(uniquement en mode à circuit double)
3 Bouton de réglage de la température
4 Témoin lumineux SERVICE ANODE
WWW.STIEBEL-ELTRON.COM SHD S | 29
!
5. Nettoyage, maintenance et
entretien
» N'utilisez pas de produit de nettoyage abrasifs ou solvants ! Un
chiffon humide suffit pour l'entretien de l'appareil.
» Contrôlez régulièrement la robinetterie. Vous pouvez éliminer
le tartre sur les robinetteries avec les produits de détartrage
du commerce.
» Actionnez régulièrement la soupape de sécurité afin d’éviter tout
grippage dû aux dépôts de calcaire.
» Faîtes contrôler régulièrement par un artisan professionnel la
sécurité électrique de l'appareil et le fonctionnement du groupe
de sécurité.
» L'anode de protection doit être contrôlée par un artisan
professionnel dès que le témoin lumineux SERVICE ANODE
s'allume (voir le chapitre Maintenance / Remplacement de
l'anode de protection).
6. Que faire si ... ?
6.1 ... des pannes se produisent sur l'appareil
Perturbation Cause »
Comment y remédier
Détériorations éventuelles !
L’eau n’est pas chaude.
Pas de tension.
Contrôlez les fusibles
Veuillez informer votre spécialiste dès que le témoin
dans la boîte de fusibles
lumineux SERVICE ANODE s'allume.
de la maison.
Le débit d'écoulement
Le régulateur de jet de
Nettoyez ou détartrez le
Vous pouvez régler la température en continu.
est faible.
la robinetterie ou de la
régulateur de jet ou la
• froid
pomme de douche est
pomme de douche.
E position d'économie d'énergie préconisée,
entartré ou sale.
faible formation de tartre
Le témoin lumineux
Il faut remplacer l'anode
Contactez votre
85°C température maximale réglable
SERVICE ANODE est
de protection.
spécialiste professionnel.
Il est à noter que les températures peuvent s’écarter légèrement
allumé.
de la valeur réglée.
Le témoin lumineux de l'indicateur de fonctionnement est allumé
Si vous ne pouvez pas remédier à la panne, appelez un spécialiste.
lorsque l'eau est chauffée rapidement.
Pour qu'il puisse vous aider plus rapidement et mieux, donnez-lui
le numéro indiqué sur la plaque signalétique (n° 000000-0000-
4.2 Fonctionnement en ballon instantané après
000000) :
panne de courant
Suite à une panne de courant prolongée, vous pouvez commuter
immédiatement l'appareil sur chauffe rapide manuellement en
tournant tout d'abord le bouton de réglage de température sur la
position Froid puis sur 85°C.
Nr.: 000000 - 0000 - 000000
4.3 Fonctionnement en ballon à double circuit et
chauffe rapide
Vous pouvez mettre l'appareil sur chauffe rapide avec le bouton-
poussoir. Une télécommande peut être installée dans ce but. Dès
Made in Germany
que la température réglée est atteinte, la chauffe rapide se coupe
26�02�07�0124
et ne se remet plus en marche.

INSTALLATION
SÉCURITÉ
7. Sécurité
9.2 Montage
L’installation, la mise en service, la maintenance et les réparations
9.2.1 Montage de la barrette d'accrochage de l'appareil
de cet équipement ne doivent être effectuées que par un artisan
» Vous pouvez vous servir du gabarit de montage pour reporter
professionnel.
les cotes sur le mur.
7.1 Sécurité générale
» Percez les trous puis fixez la barrette à l'aide de vis et de chevilles.
Choisissez le matériel de fixation selon la résistance du mur.
Nous garantissons un bon fonctionnement et la sécurité
d’exploitation uniquement si les accessoires d’origine destinés à
Les entretoises de 5mm d'épaisseur vous serviront à compenser
l’appareil ainsi que les pièces de rechange d’origine sont utilisés.
les inégalités du mur.
7.2 Prescriptions, normes et directives
2
Prenez en compte toutes les prescriptions et les
consignes nationales et régionales.
8. Description de l’appareil
8.1 Fourniture
Equipement fourni avec l'appareil :
— barrette pour accrocher l'appareil
— entretoises (2 pour le haut et 2 pour le bas)
1
— caches (2 pièces)
— gabarit de montage
26�02�01�0572
8.2 Accessoires
1 Entretoise du bas
2 Entretoise du haut
Accessoires nécessaires
9.2.2 Réalisation du câble de raccordement électrique
Des groupes de sécurité et des réducteurs de pression peuvent
être fournis si la pression au repos le nécessite. Ces groupes de
270
sécurité homologués protègent l’appareil des excès de pression
120
non autorisés.
Autres accessoires
26�02�01�0017
Le relais de délestage active le dispositif de commutation à priorité
si l’appareil fonctionne simultanément avec un autre appareil tel
9.2.3 Installation de la distribution d’eau
un appareil de chauffage électrique par accumulation (pour le
raccordement, voir le chapitre Données techniques / Schémas
Conduite d’eau froide
électriques et connexions).
Les systèmes de tuyauterie en acier, cuivre ou matière plastique
sont autorisés.
9. Montage
Une vanne de sécurité est requise.
9.1 Emplacement de montage
Conduite ECS
L'appareil n'est prévu que pour un montage à un mur fixe.
Assurez-vous de la portance suffisante du mur.
Le cuivre est autorisé.
Toujours monter l'appareil verticalement dans un local hors gel
et près du point de prélèvement.
30 |SHD S WWW.STIEBEL-ELTRON.COM
!
INSTALLATION
Risque de détérioration !
Cet appareil ne convient pas à une utilisation avec
des conduites d'eau chaude sanitaire en matière
plastique.

INSTALLATION
MONTAGE
9.2.4 Montage du groupe de sécurité
9.2.6 Raccordement électrique
Risque de détérioration !
Danger d’électrocution !
!
Exécutez tous les travaux de raccordement de l'eau
Exécutez tous les travaux de raccordement et
et d'installation électriques conformément aux
d'installation électriques conformément aux
prescriptions.
prescriptions.
» Installez une soupape de sécurité testée dans la conduite d’eau
Danger d’électrocution !
froide. Veillez à choisir le groupe de sécurité approprié en
Le raccordement au secteur ne peut être qu'une
fonction de la pression au repos.
connexion fixe. L'appareil doit pouvoir être déconnecté
du secteur par un dispositif de coupure omnipolaire
» Dimensionnez la conduite d'écoulement pour que l'eau puisse
ayant une ouverture minimale des contacts de 3 mm.
s'écouler sans retenue lorsque la vanne de sécurité est ouverte
à fond. L’ouverture de purge de la vanne de sécurité doit être
tournée vers l’atmosphère.
» Installez le conduit de purge du groupe de sécurité avec une
inclinaison vers le bas constante.
français
» Observez les remarques mentionnées dans la notice d'installation
du groupe de sécurité.
9.2.5 Suspension de l'appareil
26�02�01�0424
1
26�02�01�0430
1 Capot
» Mettez les caches en place.
WWW.STIEBEL-ELTRON.COM SHD S | 31
!
Risque de détérioration !
Se référer à la plaque signalétique. La tension
indiquée doit concorder avec celle du secteur.
Raccordement du conducteur de protection.
Assurez-vous que l'appareil est bien raccordé au
conducteur de protection.
26�02�07�0127
» Sortez le bouton de réglage de la température.
» Dévissez les vis.
» Enlevez le capot inférieur.
» Sortez le passage de câbles par le bas en appuyant sur les
crochets d'arrêt.
» Insérez le passage de câble sur le câble de raccordement électrique
et faîtes à nouveau encliqueter le passage de câble.
» Raccordez le câble de raccordement électrique au bornier de
raccordement au secteur (voir le chapitre Données techniques /
Schémas électriques et connexions).

INSTALLATION
MONTAGE
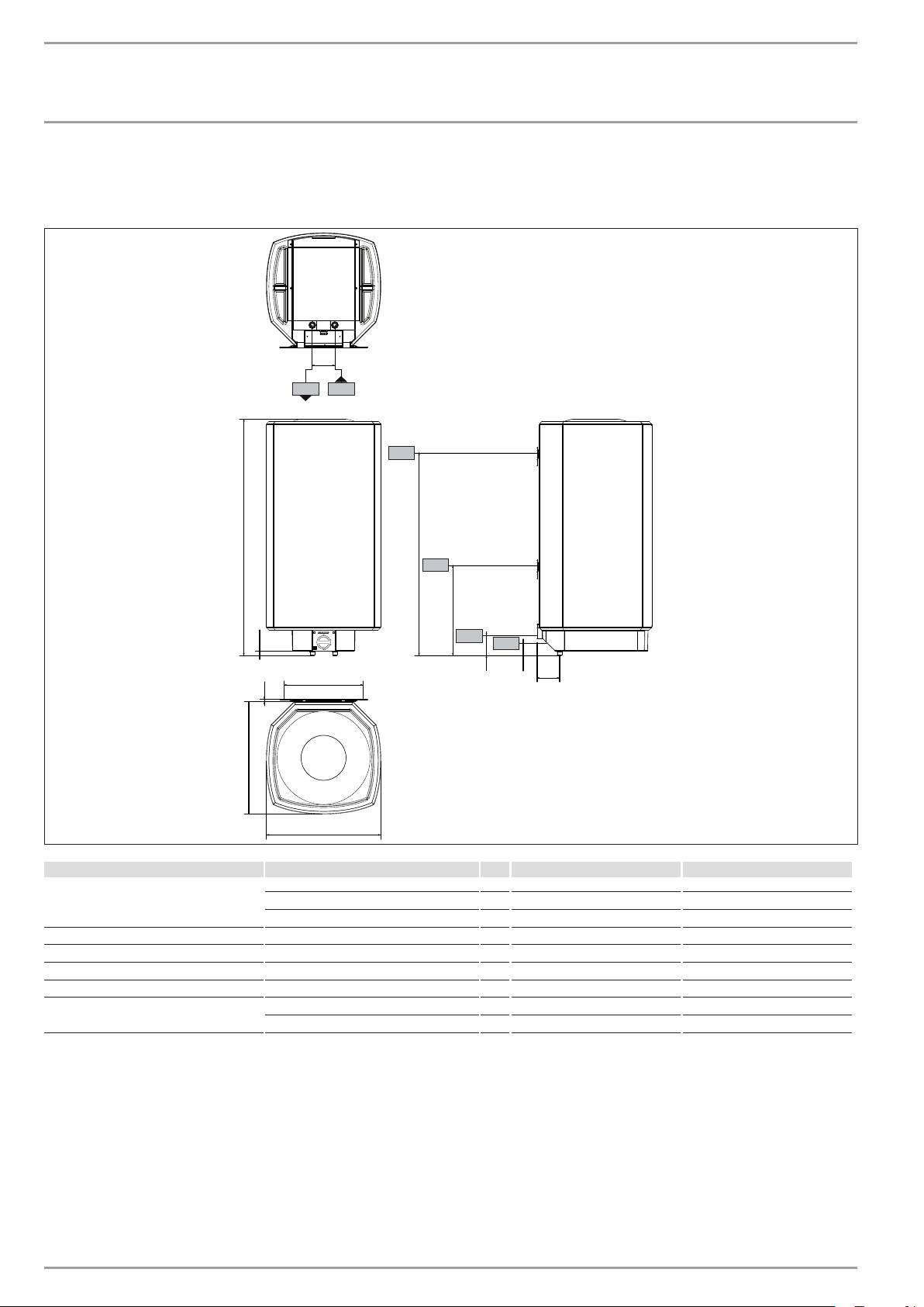
9.2.7 Achèvement du montage
7
1 2
Vous pouvez limiter la sélection de température en mode de ballon
à double circuit ou circuit unique.
3
1
2
26�02�07�0099
56
34
26�02�07�0096
1 Sélecteur de température
2 Possibilité de réglage de la limitation de température sur
1 Pressostat indicateur d'usure d'anode
45°C, 55°C, 65°C.
2 Commutateur de mode de fonctionnement
3 Réglages d'usine 85°C
3 Régulateur de température
4 Système électronique
» Remettez le sous-cache en place.
5 Contacteur
» Vissez les vis à l'intérieur.
6 Plaque de bridage
7 Bague de joint
» Remettez le bouton de réglage de la température en place.
» Reliez le groupe de sécurité à l'appareil en vissant les tubes à
» Sélectionnez le mode de fonctionnement sur le commutateur :
l'appareil.
Position I = ballon instantané
Position II = double circuit / circuit unique
(voir le chapitre Données techniques / Schémas électriques et
connexions).
32 |SHD S WWW.STIEBEL-ELTRON.COM

INSTALLATION
PREMIÈRE MISE EN SERVICE
10. Première mise en service
14. Dépannage
14.1 Table des perturbations
Le limiteur de température de sécurité peut se
déclencher à des températures inférieures à -15°C. *
26�02�07�0115
* L'appareil peut être soumis à de telles températures lors de
son stockage ou de son transport.
» Ouvrez le robinet d'eau chaude jusqu'à ce que l'appareil soit
rempli et que les conduites soient purgées.
Perturbation Cause »
Comment y remédier
L’eau n’est pas chaude.
Le limiteur de
Remédiez à la cause du
» Réglez le débit. Prenez en compte pour cela le débit d'écoulement
température de sécurité
problème. Remplacez
maximal admissible lorsque la robinetterie est ouverte à fond
s'est déclenché parce
le régulateur de
(voir le chapitre Données techniques / Données techniques).
que le régulateur est
température.
Réduisez si nécessaire le débit au niveau du restricteur sur le
défaillant.
groupe de sécurité.
Le limiteur de
Appuyez sur le bouton de
français
» Tournez le bouton de réglage de la température sur la
température de sécurité
réarmement.
température maximale.
s'est déclenché parce
que la température est
» Branchez la tension secteur.
inférieure à -15°C.
» Contrôlez le fonctionnement de l'appareil, en veillant à ce que
La résistance chauffante
Remplacez la résistance
le régulateur de température se coupe.
est défectueuse.
chauffante.
Si l'appareil fonctionne
Il coule plus d'eau dans
Réduisez le volume au
» Vérifiez le fonctionnement du groupe de sécurité.
en ballon instantané, la
l'appareil que le corps de
niveau du robinet de
température de sortie
chauffe (21kW) ne peut
prélèvement.
11. Mise hors service
sélectionnée n'est pas
chauffer.
» Coupez l'appareil de la tension secteur avec le fusible de
atteinte lorsque le
l'installation.
robinet de prélèvement
est ouvert en grand.
» Vidangez l’appareil (voir le chapitre Maintenance / Vidange de
La vanne de sécurité
Le siège de la vanne est
Nettoyez le siège de la
l'appareil).
goutte lorsque le
sale.
vanne.
chauffage est en arrêt.
12. Remise en marche
Voir le chapitre Première mise en service.
13. Remise de l'appareil
» Expliquez le fonctionnement de l'appareil à l'utilisateur puis
1
familiarisez-le avec l'emploi de l'appareil.
» Instruisez l'utilisateur sur les risques éventuels, notamment sur
les risques de brûlure.
» Remettez cette notice.
2
26�02�07�0097
1 Limiteur de température de sécurité
2 Bouton de réarmement
WWW.STIEBEL-ELTRON.COM SHD S | 33

INSTALLATION
ENTRETIEN
15. Entretien
15.4 Remplacement de l'anode de protection
Pour effectuer certains travaux de maintenance, il est nécessaire
» Au remplacement de l'anode de protection, veillez à ce que le
d'enlever le capot inférieur.
pressostat soit hermétiquement vissé.
Ouverture de clé de l'anode :
Danger d’électrocution !
Coupez l'appareil sur tous les pôles du réseau pour
— SHD 30 S - ouverture de 13
tous les travaux !
— SHD 100 S - ouverture de 27
Si vous devez en plus vidanger l'appareil, tenez compte du chapitre
Couple de serrage : 1 +0,5 Nm (serrage à la main)
Vidange de l'appareil.
La résistance de passage entre l'anode de protection et la douille
15.1 Contrôle du groupe de sécurité
de raccordement au réservoir est de 1,0Ω maximum.
» Contrôlez le groupe de sécurité régulièrement.
15.5 Détartrage de la résistance
15.2 Profondeur d’immersion de la sonde du
» Ne détartrez la résistance qu'après démontage et ne traitez pas
la surface du réservoir et l'anode de protection avec des produits
régulateur de température
de détartrage.
1
15.6 Résistance de protection contre la corrosion
400
Assurez-vous que la résistance de protection contre la corrosion
26�02�07�0100
sur la plaque d'isolation ne soit ni endommagée ni enlevée lors
des travaux de service. Montez la résistance de protection contre
1 Sonde du régulateur de température
la corrosion selon les règles de l'art après un remplacement.
15.3 Vidange de l'appareil
Risque de brûlure par vapeur !
3
4
L'eau qui sort peut être chaude
Il faut procéder comme suit si le ballon doit être vidangé pour les
travaux de maintenance ou en cas de risque de gel pour protéger
l'ensemble de l'installation.
2
1
26�02�01�0228
» Fermez la vanne d'arrêt de l'arrivée d'eau froide.
1 Résistance de protection contre la corrosion
» Ouvrez les robinets d'eau chaude de tous les points de
2 Plaque de pression
prélèvement.
3 Plaque d'isolation
4 Résistance chauffante en cuivre
1
26�02�07�0097
1 Vanne de vidange à raccord à vis pour tuyau
» Raccordez un tuyau au raccord à vis G 3/4 de la vanne de vidange.
» Ouvrez la vanne de vidange.
34 |SHD S WWW.STIEBEL-ELTRON.COM

INSTALLATION
DONNÉES TECHNIQUES
16. Données techniques
16.1 Cotes et raccordements
français
WWW.STIEBEL-ELTRON.COM SHD S | 35
a10
100
c06
c01
i14
i15
b02
20
b03
87
50
100
350
10
a30
a20
D0000024812
SHD 30 S SHD 100 S
a10 Appareil
Hauteur mm 770 1050
a20
Largeur mm 410 510
a30 Profondeur mm 420 510
b02 Passage des câbles électriques I
b03 Passage des câbles électriques II
c01 Eau froide arrivée Filetage mâle G 1/2 A G 1/2 A
c06 ECS sortie Filetage mâle G 1/2 A G 1/2 A
i14 Pose muraleI
Hauteur mm 700 900
max. Ø de la vis de fixation mm 12 12

INSTALLATION
DONNÉES TECHNIQUES
16.2 Schémas électriques et connexions
Mesure à deux compteurs avec contact SDE : 3,5 / 21kW, 3/PE ~ 400V
7
1
6
2
1
5
55°C385°C4
26�02�07�0001
1 Commutateur de mode de fonctionnement
2 Système électronique avec relais à tension nulle et relais de
commutation
26�02�07�0003
3 Bouton-poussoir de chauffe rapide
4 Régulateur de température
1 Contact SDE
5 Pressostat indicateur d'usure d'anode
6 Limiteur de température de sécurité
Fonctionnement en ballon à circuit unique
7 Corps de chauffe
21kW, 3/PE ~ 400V
Corps de chauffe
1 2 3 4
kW 7,0 7,0 3,5 3,5
Fonctionnement en ballon instantané
3,5 / 21kW, 3/PE ~ 400V
26�02�07�0105
Relais de délestage LR 1-A
3
26�02�07�0104
Fonctionnement en ballon à double circuit
Mesure à un compteur avec contact SDE : 3,5 / 21kW, 3/PE ~ 400V
2
1
26�02�07�0107
1 Relais de délestage
1
26�02�07�0106
2 Contact de commande, s'ouvre à la mise en marche du SHD S
3 Ligne de commande au contacteur du second appareil
1 Contact SDE
36 |SHD S WWW.STIEBEL-ELTRON.COM

GARANTIE
INSTALLATION | GARANTIE | ENVIRONNEMENT ET RECYCLAGE
ENVIRONNEMENT ET RECYCLAGE
DONNÉES TECHNIQUES
16.3 Données techniques
SHD 30 S SHD 100 S
073059 073060
Données hydrauliques
Capacité nominale l 30 100
Quantité d’eau mélangée à 40 °C (15 °C / 60 °C) l 59 195
Données électriques
Puissance de raccordement ~ 400 V kW 3,5/21 3,5/21
Tension nominale V 400 400
Phases 3/PE 3/PE
Fréquence Hz 50 50
Mode de fonctionnement Simple puissance X X
Mode de fonctionnement Double puissance X X
Limites d’utilisation
Plage de réglage de température °C 35-85 35-85
Pression max. admissible MPa 0,6 0,6
français
Pression d’essai MPa 0,78 0,78
Température maxi admissible °C 110 110
Débit maximum l/min 18 18
Données énergétiques
Consommation énergétique en état de disponibilité/24 h à 65 °C kWh 0,45 0,77
Versions
Indice de protection (IP) IP25 IP25
Type de construction sous pression X X
Couleur blanc blanc
Dimensions
Hauteur mm 770 1050
Largeur mm 410 510
Profondeur mm 420 510
Poids
Poids, ballon rempli kg 54,3 140,1
Poids à vide kg 24,3 40,1
16.3.1 Tables de puissance
La durée de chauffage dépend de la contenance du ballon, de
la température de l'eau froide et de la puissance de chauffe.
Consultez la table ci-après pour connaître la durée de chauffe en
cas de chauffe rapide (21kW) et une arrivée d'eau froide à 10°C.
Durée de chauffe (mode ballon)
Réglage de la
température
°C
65
85
SHD30S min 6 8
Garantie
SHD100S min 18 25
Les conditions de garantie de nos liales allemandes ne s’appli-
quent pas aux appareils achetés hors d’Allemagne. Au contraire,
En mode instantané, il est possible d'obtenir les débits d'eau
c’est la liale chargée de la distribution de nos produits dans le
chaude sanitaire suivants.
pays qui est seule habilitée à accorder une garantie. Une telle
garantie ne pourra cependant être accordée que si la liale a
Débit d'eau chaude sanitaire (mode instantané)
publié ses propres conditions de garantie. Il ne sera accordé
Température ECS °C 38 55
aucune garantie par ailleurs.
Arrivée d'eau froide à 6°C l/min 9,4 6,1
Arrivée d'eau froide à 10°C
l/min 10,7 6,7
Nous n’accordons aucune garantie pour les appareils achetés
Arrivée d'eau froide à 14°C
l/min 12,7 7,3
dans des pays où aucune liale de notre société ne distribue
nos produits. D’éventuelles garanties accordées par l’importa-
teur restent inchangées.
Environnement et recyclage
Merci de contribuer à la préservation de notre environnement.
Après usage, procédez à l‘élimination de ces matériaux confor-
mément à la réglementation nationale.
WWW.STIEBEL-ELTRON.COM SHD S | 37

INHOUD | BEDIENING
Algemene AAnwzingen
1. Algemene aanwijzingen
1.1 Informatie over dit document
Het hoofdstuk Bediening is bedoeld voor de gebruiker van het
toestel en voor de vakman.
Het hoofdstuk Installatie is bedoeld voor de vakman.
Dit lezen!
Lees deze handleiding voor gebruik zorgvuldig door
en bewaar deze op een veilige plaats. Als het toestel
wordt doorgegeven aan derden, dient u ook de
handleiding mee te geven.
1.2 Legende
Symbolen in deze documentatie
In deze documentatie staan symbolen en waarschuwingen. Ze
hebben de volgende betekenis:
Gevaar voor verwondingen!
Aanwijzing over mogelijk letselgevaar.
Levensgevaar door elektrische schok!
Gevaar voor brandwonden of verbranding!
38 |SHD S WWW.STIEBEL-ELTRON.COM
!
BEDIENING _____________________________________________ 38
BEDIENING
1. Algemene aanwijzingen ������������������������������������� 38
1.1 Informatie over dit document ����������������������������������� 38
1.2 Legende �������������������������������������������������������������38
2. Veiligheid ������������������������������������������������������ 39
2.1 Voorgeschreven gebruik ����������������������������������������� 39
2.2 Veiligheidsaanwijzingen ����������������������������������������� 39
2.3 CE-logo �������������������������������������������������������������� 39
2.4 Keurmerk ������������������������������������������������������������ 39
3. Toestelbeschrijving ������������������������������������������� 39
3.1 Doorloopboilerwerking ������������������������������������������ 39
3.2 Tweekringboilerwerking ����������������������������������������� 39
3.3 Eénkringboilerwerking ������������������������������������������� 39
4. Bediening ����������������������������������������������������� 40
4.1 Bedieningspaneel ������������������������������������������������� 40
4.2 Doorloopboilerwerking na stroomonderbreking ����������� 40
4.3 Tweekringboilerwerking met snelopwarming ���������������40
5. Reiniging, verzorging en onderhoud ����������������������� 40
6. Wat moet u doen als... ��������������������������������������� 40
6.1 ... er zich storingen in het toestel voordoen �����������������40
INSTALLATIE ___________________________________________ 40
7. Veiligheid ������������������������������������������������������ 41
7.1 Algemene veiligheidsaanwijzingen ���������������������������� 41
7.2 Voorschriften, normen en bepalingen ������������������������ 41
8. Toestelbeschrijving ������������������������������������������� 41
8.1 Leveringsomvang �������������������������������������������������� 41
Mogelijke schade!
8.2 Toebehoren ��������������������������������������������������������� 41
Aanwijzing voor beschadiging van het toestel,
9. Montage ������������������������������������������������������� 41
milieuvervuiling of financiële schade.
9.1 Montageplaats ����������������������������������������������������� 41
Dit lezen!
9.2 Montage ������������������������������������������������������������� 41
De teksten die naast zo'n symbool staan, zijn bijzonder
10. Eerste ingebruikname ���������������������������������������� 44
belangrijk.
11. Buiten bedrijf stellen ����������������������������������������� 44
» Deze tekstgedeelten en het symbool "»" geven aan dat u een
12. Opnieuw in gebruik nemen ���������������������������������� 44
handeling moet verrichten. De vereiste handelingen worden
13. Overdracht van het toestel ���������������������������������� 44
stapsgewijs beschreven.
14. Storingen verhelpen ������������������������������������������ 44
Symbolen op het toestel
14.1 Storingstabel �������������������������������������������������������44
Afvalverwerking!
15. Onderhoud ���������������������������������������������������� 45
Toestellen met dit logo horen niet thuis bij het
15.1 Veiligheidsgroep testen ������������������������������������������ 45
restafval en moeten afzonderlijk worden ingezameld
15.2 Thermostaat-voeler dompeldiepte ����������������������������� 45
en verwerkt.
15.3 Het toestel aftappen ���������������������������������������������� 45
15.4 Veiligheidsanode vervangen ������������������������������������ 45
15.5 Flens ontkalken ���������������������������������������������������� 45
Meeteenheden
15.6 Corrosiebeschermende weerstand ���������������������������� 45
Tenzij anders wordt vermeld, worden alle maten in millimeter
16. Technische gegevens ����������������������������������������� 46
aangegeven.
16.1 Afmetingen en aansluitingen �����������������������������������46
16.2 Elektriciteitsschakelschema en aansluitingen ��������������� 47
16.3 Technische gegevens����������������������������������������������48
GARANTIE ______________________________________________ 48
ENVIRONNEMENT ET RECYCLAGE ____________________ 48

BEDIENING
VEILIGHEID
2. Veiligheid
3. Toestelbeschrijving
Het toestel verwarmt drinkwater elektrisch met normaal
2.1 Voorgeschreven gebruik
verwarmingsvermogen of met snelopwarming. U kunt de
Het toestel is een druktoestel voor de verwarming van drinkwater.
temperatuur regelen met de temperatuur-instelknop. Het toestel
is geschikt voor één of meer aftappunten.
Het toestel is bestemd voor gebruik in een huishoudelijke
omgeving. Het kan veilig bediend worden door personen die
Het toestel kan op drie manieren worden gebruikt: als
daarover niet geïnstrueerd zijn. Het toestel kan eveneens in
doorloopboiler, tweekringboiler of éénkringboiler.
een niet huishoudelijke omgeving gebruikt worden, bijv. in het
Het stalen binnenreservoir is voorzien van speciaal direct email
kleinbedrijf, voor zover het op dezelfde wijze wordt gebruikt.
"anticor®" en van een veiligheidsanode. De anode beschermt het
Elk ander gebruik geldt niet als gebruik conform de voorschriften.
binnenreservoir tegen corrosie.
Het voorgeschreven gebruik betekent ook de naleving van deze
Het toestel is ook bij de temperatuurinstelling "koud" tegen
handleiding. In geval van wijzigingen of aanpassingen aan het
vorst beschermd. Het toestel wordt op tijd ingeschakeld en het
toestel vervalt de garantie!
water wordt verwarmd. Het toestel biedt de waterleiding en de
veiligheidsgroep echter geen bescherming tegen vorst. Tijdens
2.2 Veiligheidsaanwijzingen
tweekringboilerwerking geldt de vorstbescherming enkel tijdens
nachtstroom.
Gevaar voor brandwonden!
Bij uitlooptemperaturen van meer dan 43°C bestaat
3.1 Doorloopboilerwerking
er gevaar voor brandwonden.
In deze werkwijze werkt het toestel met normaal
Gevaar voor verwondingen!
verwarmingsvermogen als er kleine hoeveelheden water worden
Het toestel kan door kinderen vanaf 8 jaar, alsmede
afgetapt.
NederlaNds
door personen met verminderde fysieke, sensorische
Bij een hoge temperatuurinstelling en als grote hoeveelheden
of geestelijke vermogens of met een gebrek aan
water werden afgetapt, schakelt het toestel automatisch naar
ervaring en kennis worden gebruikt, wanneer er
snelopwarming (zie hoofdstuk "Technische gegevens / Technische
toezicht op hen wordt gehouden, of wanneer ze met
gegevens").
betrekking tot het veilige gebruik van het toestel zijn
Als al het opgewarmde water in de boiler werd afgetapt, werkt het
geïnstrueerd en de gevaren die daaruit ontstaan,
toestel in doorloopwerking met snelopwarming. De beschikbare
hebben begrepen. Kinderen mogen niet met het toestel
uitloopvolumes dalen dienovereenkomstig (zie hoofdstuk
spelen. Kinderen mogen zonder toezicht geen reiniging
"Technische gegevens / Vermogenstabellen").
of gebruikersonderhoud uitvoeren.
Na een lange stroomonderbreking voorkomt het nulspanningsrelais
Het toestel staat in gesloten werkwijze onder druk van
dat de snelopwarming onmiddellijk wordt ingeschakeld. Als
de waterleiding!
de spanning terugkeert, werkt het toestel eerst met normaal
Het expansiewater druppelt tijdens verwarming uit de
verwarmingsvermogen tot de thermostaat voor het eerst in
veiligheidsklep. Waarschuw uw vakman als er na het
werking treedt. Daarna is de snelopwarming automatisch weer
verwarmen nog water nadruppelt.
bedrijfsklaar.
3.2 Tweekringboilerwerking
2.3 CE-logo
Het toestel verwarmt bij elke temperatuurinstelling
Het CE-logo geeft aan dat het toestel voldoet aan alle fundamentele
tijdens de nachtstroom (periodes met laagtarief van de
vereisten:
energiemaatschappij) de waterinhoud automatisch op met
— Richtlijn inzake elektromagnetische compatibiliteit (Richtlijn
normaal verwarmingsvermogen.
89/336/EEG van de Raad)
3.3 Eénkringboilerwerking
— Laagspanningsrichtlijn (Richtlijn 73/23/EEG van de Raad)
In deze werkwijze schakelt het toestel bij elke temperatuurinstelling
2.4 Keurmerk
automatisch de snelopwarming in.
Zie het typeplaatje op het toestel.
WWW.STIEBEL-ELTRON.COM SHD S | 39

BEDIENING
BEDIENING
4. Bediening
4.1 Bedieningspaneel
4
1
3
2
26�02�07�0094
1 Waarschuwingslampje als werkingsindicator bij
snelopwarming
2 Drukknop voor snelopwarming
(enkel voor tweekringboilerwerking)
3 Temperatuur-instelknop
4 Waarschuwingslampje "SERVICE ANODE"
40 |SHD S WWW.STIEBEL-ELTRON.COM
!
5. Reiniging, verzorging en onderhoud
7. Veiligheid
» Gebruik nooit schurende reinigingsmiddelen of
Installatie, inbedrijfstelling, evenals onderhoud en reparatie
reinigingsmiddelen met oplosmiddelen! Een vochtige doek
van het toestel mogen alleen door een gekwalificeerde vakman
volstaat om het toestel te onderhouden en te reinigen.
worden uitgevoerd.
» Controleer periodiek de kranen. Verwijder kalk op de
7.1 Algemene veiligheidsaanwijzingen
kraanuitlopen met in de handel verkrijgbare ontkalkingsmiddelen.
Wij waarborgen de goede werking en de bedrijfsveiligheid
» Stel periodiek de veiligheidsklep in werking, zodat vastzitten
uitsluitend bij gebruik van originele toebehoren en
door kalkafzettingen voorkomen wordt.
vervangingsonderdelen voor de apparatuur.
» Laat de elektrische veiligheid van het toestel en de werking van
de veiligheidsgroep periodiek door een vakman controleren.
7.2 Voorschriften, normen en bepalingen
» De veiligheidsanode moet door de vakman worden vervangen
Neem alle nationale en regionale voorschriften en
zodra het waarschuwingslampje "SERVICE ANODE" brandt (zie
bepalingen in acht.
hoofdstuk "Onderhoud / Veiligheidsanode vervangen").
6. Wat moet u doen als...
8. Toestelbeschrijving
6.1 ... er zich storingen in het toestel voordoen
8.1 Leveringsomvang
Storing Oorzaak » Oplossing
Bij het toestel wordt het volgende geleverd:
Het water wordt niet
Er is geen spanning. Controleer de zekeringen
— Ophangbeugel
warm.
van de huisinstallatie.
De uitstroomhoeveelheid
De straalregelaar in de
Reinig en / of ontkalk
— Overbruggingshulpstukken (2 stuks voor boven, 2 stuks voor onder)
Mogelijke schade!
is laag.
kraan of de douchekop is
de straalregelaar of de
— Afdekkappen (2 stuks)
Als het waarschuwingslampje "SERVICE ANODE"
verkalkt of vuil.
douchekop.
brandt, verwittigt u uw vakman.
Waarschuwingslampje
De veiligheidsanode moet
Waarschuw de vakman.
— Montagesjabloon
"SERVICE ANODE"
worden vervangen.
Het is mogelijk de temperatuur traploos in te stellen.
brandt.
8.2 Toebehoren
• koud
Noodzakelijk toebehoren
E aanbevolen energiezuinige stand,
Als u de oorzaak zelf niet kunt verhelpen, waarschuwt u de
lage watersteenvorming
Afhankelijk van de statische druk zijn veiligheidsgroepen
vakman. Om u nog sneller en beter te kunnen helpen, deelt u hem
85°C maximale insteltemperatuur
en reduceerafsluiters verkrijgbaar. Deze typegekeurde
het nummer op het typeplaatje mee (nr. 000000-0000-000000):
De temperaturen kunnen afhankelijk van het systeem van de
veiligheidsgroepen beschermen het toestel tegen een verboden
nominale waarde afwijken.
drukoverschrijding.
Het waarschuwingslampje als werkingsindicator is verlicht
Overig toebehoren
wanneer het water met snelopwarming wordt verwarmd.
Het lastafwerprelais zorgt voor de voorrangsschakeling tijdens de
Nr.: 000000 - 0000 - 000000
4.2 Doorloopboilerwerking na stroomonderbreking
werking van het toestel als u tegelijk een ander toestel gebruikt,
bijvoorbeeld een elektrische warmteaccumulator (aansluiting zie
Na een lange stroomonderbreking kunt u de snelopwarming
hoofdstuk “Technische gegevens / Elektriciteitsschakelschema en
onmiddellijk handmatig inschakelen door de temperatuurinstelknop
aansluitingen”).
eerst naar de stand "koud" en daarna naar 85°C te draaien.
Made in Germany
9. Montage
4.3 Tweekringboilerwerking met snelopwarming
26�02�07�0124
U kunt de snelopwarming inschakelen met de drukknop. Daartoe
9.1 Montageplaats
kan ook een afstandsbediening worden geïnstalleerd. Als de
Het toestel is uitsluitend voorzien voor vaste wandmontage. Zorg
ingestelde temperatuur bereikt is, schakelt de snelopwarming
ervoor dat de wand voldoende draagvermogen heeft.
uit en niet weer aan.
Monteer het toestel altijd verticaal, in een vorstvrije ruimte en in
de buurt van het aftappunt.
INSTALLATIE

